Filtros
0 · 179 resultados2 Quartos
1 WCs
Área bruta : 1512 m²
Apresento esta moradia antiga, inserida num generoso lote de 1.512 m², situada no Estreito de Câmara de Lobos, com uma vista mar desafogada e excelente exposição solar. Localizada no centro do terreno, esta propriedade oferece privacidade, amplitude e um enorme potencial de valorização, ideal para quem procura desenvolver um projeto personalizado — seja para habitação própria, investimento ou turismo. O lote destaca-se pelos seus amplos socalcos e áreas exteriores, proporcionando múltiplas possibilidades de construção, ampliação ou requalificação, sempre com o mar como pano de fundo. ? Acesso a carro por estrada ? A apenas 1 minuto da via expresso ? Zona tranquila e de fácil ligação ao Funchal ? Excelente orientação solar ao longo do dia Uma oportunidade rara para investidores ou particulares com visão, que valorizam espaço, localização e potencial de desenvolvimento. Transforme este espaço no seu próximo grande projeto.
AMI: 13132
Ref. Externa: KWPT-028447
Id: 1875465
Inicie sessão para guardar este imóvel e aceder à sua lista de favoritos em qualquer dispositivo.
2 Quartos
2 WCs
Área bruta : 140 m²
Este magnífico apartamento T2 de construção recente, concluído em 2025, representa o equilíbrio perfeito entre modernidade, conforto e localização privilegiada. Destaca-se pelas suas áreas generosas, superiores à média, e por uma ampla varanda panorâmica que acompanha toda a frente do imóvel, ligando as principais divisões a uma vista deslumbrante e desafogada sobre o mar e a montanha. Totalmente mobilado, equipado e pronto a habitar, oferece uma solução chave na mão ideal tanto para habitação própria como para investimento, permitindo entrar de imediato sem necessidade de qualquer preparação adicional. Inserido numa zona tranquila e residencial de Câmara de Lobos, beneficia de uma localização extremamente central e prática, encontrando-se a apenas um minuto da via rápida e a dois minutos do supermercado Continente, comércio e serviços essenciais, proporcionando o equilíbrio ideal entre tranquilidade e conveniência. O imóvel inclui ainda dois amplos lugares de estacionamento privativos e arrecadação, acrescentando funcionalidade e comodidade ao dia a dia. Se procura um apartamento contemporâneo, com excelente exposição solar, vistas incríveis e acabamentos modernos, numa localização estratégica e de elevada procura, esta é uma oportunidade imperdível para viver ou investir na Madeira. Venha descobrir a sua nova casa.
AMI: 7285
Ref. Externa: 8913
Id: 1825264
Inicie sessão para guardar este imóvel e aceder à sua lista de favoritos em qualquer dispositivo.
4 Quartos
3 WCs
Área bruta : 349 m²
Moradia T4, situada no Estreito de Câmara de lobos A moradia é composta por sala de estar, sala de jantar, cozinha em , lavandaria, dispensa, 3 WC, 4 quartos de dormir sendo que um quarto é em suite, que proporcionam todo o conforto e privacidade que deseja. Tem ainda uma garagem com capacidade para 2 carros, e no exterior da moradia tem possibilidade de estacionar. Conta ainda com um sótão grande, onde pode ser utilizado para várias situações, por exemplo rentabilizar No exterior pode encontrar um churrasco todo equipado, onde pode usufruir de refeições ao ar livre, acompanhado por familiares ou amigos. A moradia está situada numa zona calma, longe do ruído e da agitação, realçando a privacidade. Com uma excelente exposição solar ao longo do dia. Conta ainda com muita luz natural e vistas panorâmicas desafogadas e definitivas. A moradia conta com materiais de qualidade, e boas áreas gerais, tanto interiores como exteriores e bons acessos. Está próxima de vários serviços como cafés, restaurantes, supermercados, escolas, Centro de Saúde, Segurança Social, Farmácias, lojas, bancos, correios, clínicas entre outros. Não perca a oportunidade de possuir esta moradia de sonho na bela Iha da Madeira. Para mais informações ou agendar visita contacte o nosso Agente ONE! Ref: MN001177 Realty ONE Group A Realty ONE Group é atualmente a marca imobiliária com o crescimento mais rápido nos Estados Unidos. Com mais de 20 anos de experiência, está presente em 26 países e continua a expandir-se a nível global. À frente da marca está Vinnie Tracey, presidente da Realty ONE Group, que durante 40 anos liderou uma das maiores referências mundiais do setor. Com a sua vasta experiência, está a consolidar a Realty ONE Group como uma das marcas líderes nos Estados Unidos e no mundo. Motivos para escolher a ONE As Pessoas Primeiro. Os nossos consultores recebem formação de excelência, nacional e internacional, ministrada pelos melhores especialistas em todas as vertentes do negócio. Toda a formação é gratuita, garantindo que a equipa está preparada para o apoiar com máxima eficiência. “Enquanto desfruta dos prazeres da sua vida, compre e venda o seu imóvel de forma rápida, simples e segura.” ONE House. ONE Dream. ONE Life(style).
AMI: 20050
Ref. Externa: ONE361961-34
Id: 1821834
Inicie sessão para guardar este imóvel e aceder à sua lista de favoritos em qualquer dispositivo.
3 Quartos
4 WCs
Área bruta : 196 m²
Moradia T3 em fase de construção, no Concelho de Câmara de lobos, Esta elegante moradia T3 distingue-se pela sua arquitetura contemporânea, linhas minimalistas e uma envolvente que convida a viver com calma… e com vista larga sobre o Atlântico. No interior, a moradia apresentará áreas amplas e luminosas, com uma zona social em open space que liga harmoniosamente a sala e a cozinha, os três quartos de dormir sendo que dois são em suíte, 4 WC, garagem com capacidade para duas viaturas e jardim. As grandes superfícies envidraçadas permitem a entrada abundante de luz natural e enquadram a paisagem. Uma moradia pensada para quem procura tranquilidade, design, qualidade de construção. Inserida numa zona calma, afastada do ruído e da agitação, esta propriedade oferece elevada privacidade. Conclusão das moradias previstas para o fim de 2026. Para mais informações ou agendar visita contacte o nosso Agente ONE! Ref: MN001176 Realty ONE Group A Realty ONE Group é atualmente a marca imobiliária com o crescimento mais rápido nos Estados Unidos. Com mais de 20 anos de experiência, está presente em 26 países e continua a expandir-se a nível global. À frente da marca está Vinnie Tracey, presidente da Realty ONE Group, que durante 40 anos liderou uma das maiores referências mundiais do setor. Com a sua vasta experiência, está a consolidar a Realty ONE Group como uma das marcas líderes nos Estados Unidos e no mundo. Motivos para escolher a ONE As Pessoas Primeiro. Os nossos consultores recebem formação de excelência, nacional e internacional, ministrada pelos melhores especialistas em todas as vertentes do negócio. Toda a formação é gratuita, garantindo que a equipa está preparada para o apoiar com máxima eficiência. “Enquanto desfruta dos prazeres da sua vida, compre e venda o seu imóvel de forma rápida, simples e segura.” ONE House. ONE Dream. ONE Life(style).
AMI: 20050
Ref. Externa: ONE361961-32
Id: 1821815
Inicie sessão para guardar este imóvel e aceder à sua lista de favoritos em qualquer dispositivo.
3 Quartos
3 WCs
Área bruta : 186 m²
Moradia T3 em fase de construção, no Concelho de Câmara de lobos, Esta elegante moradia T3 distingue-se pela sua arquitetura contemporânea, linhas minimalistas e uma envolvente que convida a viver com calma… e com vista larga sobre o Atlântico. No interior, a moradia apresentará áreas amplas e luminosas, com uma zona social em open space que liga harmoniosamente a sala e a cozinha, os três quartos de dormir sendo que dois são em suíte, 4 WC, garagem com capacidade para duas viaturas e jardim. As grandes superfícies envidraçadas permitem a entrada abundante de luz natural e enquadram a paisagem. Uma moradia pensada para quem procura tranquilidade, design, qualidade de construção. Inserida numa zona calma, afastada do ruído e da agitação, esta propriedade oferece elevada privacidade. Conclusão das moradias previstas para o fim de 2026. Para mais informações ou agendar visita contacte o nosso Agente ONE! Ref: MN001176 Realty ONE Group A Realty ONE Group é atualmente a marca imobiliária com o crescimento mais rápido nos Estados Unidos. Com mais de 20 anos de experiência, está presente em 26 países e continua a expandir-se a nível global. À frente da marca está Vinnie Tracey, presidente da Realty ONE Group, que durante 40 anos liderou uma das maiores referências mundiais do setor. Com a sua vasta experiência, está a consolidar a Realty ONE Group como uma das marcas líderes nos Estados Unidos e no mundo. Motivos para escolher a ONE As Pessoas Primeiro. Os nossos consultores recebem formação de excelência, nacional e internacional, ministrada pelos melhores especialistas em todas as vertentes do negócio. Toda a formação é gratuita, garantindo que a equipa está preparada para o apoiar com máxima eficiência. “Enquanto desfruta dos prazeres da sua vida, compre e venda o seu imóvel de forma rápida, simples e segura.” ONE House. ONE Dream. ONE Life(style). Realty ONE Group A Realty ONE Group é atualmente a marca imobiliária com o crescimento mais rápido nos Estados Unidos. Com mais de 20 anos de experiência, está presente em 26 países e continua a expandir-se a nível global. À frente da marca está Vinnie Tracey, presidente da Realty ONE Group, que durante 40 anos liderou uma das maiores referências mundiais do setor. Com a sua vasta experiência, está a consolidar a Realty ONE Group como uma das marcas líderes nos Estados Unidos e no mundo. Motivos para escolher a ONE As Pessoas Primeiro. Os nossos consultores recebem formação de excelência, nacional e internacional, ministrada pelos melhores especialistas em todas as vertentes do negócio. Toda a formação é gratuita, garantindo que a equipa está preparada para o apoiar com máxima eficiência. “Enquanto desfruta dos prazeres da sua vida, compre e venda o seu imóvel de forma rápida, simples e segura.” ONE House. ONE Dream. ONE Life(style).
AMI: 20050
Ref. Externa: ONE361961-33
Id: 1821786
Inicie sessão para guardar este imóvel e aceder à sua lista de favoritos em qualquer dispositivo.
2 Quartos
Área bruta : 20 m²
Inserido numa encosta verdejante e em zona habitacional consolidada, este terreno com aproximadamente 885m² situa-se no Garachico, no Estreito de Câmara de Lobos, oferecendo um cenário autêntico madeirense marcado por socalcos agrícolas, vegetação exuberante e vistas amplas sobre a envolvente. Conta ainda com uma moradia T2, por terminar. Possibilidade de fazer garagem. Com moradias nas proximidades e bons acessos, esta é uma localização que combina privacidade e sossego com proximidade a serviços e às principais ligações rodoviárias, tornando-se perfeita tanto para habitação própria como para investimento. Para mais informações ou agendar visita contacte o nosso Agente ONE! Ref: MN001175 Realty ONE Group A Realty ONE Group é atualmente a marca imobiliária com o crescimento mais rápido nos Estados Unidos. Com mais de 20 anos de experiência, está presente em 26 países e continua a expandir-se a nível global. À frente da marca está Vinnie Tracey, presidente da Realty ONE Group, que durante 40 anos liderou uma das maiores referências mundiais do setor. Com a sua vasta experiência, está a consolidar a Realty ONE Group como uma das marcas líderes nos Estados Unidos e no mundo. Motivos para escolher a ONE As Pessoas Primeiro. Os nossos consultores recebem formação de excelência, nacional e internacional, ministrada pelos melhores especialistas em todas as vertentes do negócio. Toda a formação é gratuita, garantindo que a equipa está preparada para o apoiar com máxima eficiência. “Enquanto desfruta dos prazeres da sua vida, compre e venda o seu imóvel de forma rápida, simples e segura.” ONE House. ONE Dream. ONE Life(style).
AMI: 20050
Ref. Externa: ONE361961-31
Id: 1819421
Inicie sessão para guardar este imóvel e aceder à sua lista de favoritos em qualquer dispositivo.
1 Quartos
2 WCs
Área bruta : 82 m²
AMI: 27214
Ref. Externa: APA002
Id: 1807035
Inicie sessão para guardar este imóvel e aceder à sua lista de favoritos em qualquer dispositivo.
2 Quartos
2 WCs
Área bruta : 114 m²
AMI: 27214
Ref. Externa: APA003
Id: 1807036
Inicie sessão para guardar este imóvel e aceder à sua lista de favoritos em qualquer dispositivo.
3 Quartos
3 WCs
Área bruta : 162 m²
AMI: 27214
Ref. Externa: APA004
Id: 1807037
Inicie sessão para guardar este imóvel e aceder à sua lista de favoritos em qualquer dispositivo.
3 Quartos
3 WCs
Área bruta : 163 m²
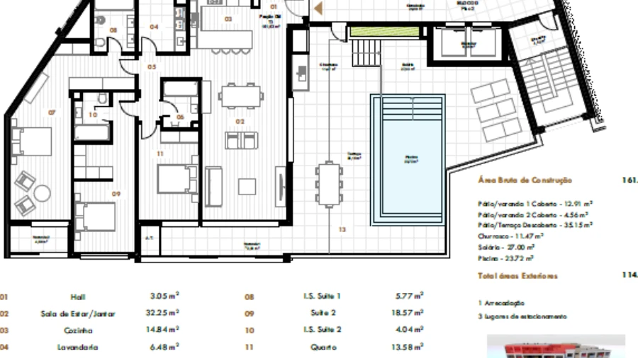
Apartamento T3 inserido no exclusivo Edifício Solar, um empreendimento moderno e sofisticado composto por apenas 24 apartamentos, concebido para quem valoriza conforto, privacidade e qualidade de vida. Localizado no Estreito de Câmara de Lobos, numa zona residencial tranquila e com excelentes acessos, o imóvel beneficia de ótima exposição solar, vista mar e proximidade à cidade do Funchal, reunindo o equilíbrio ideal entre serenidade e conveniência urbana. Com uma área total de 163,03 m², esta fração desenvolve-se integralmente num único piso, apresentando uma distribuição funcional e harmoniosa entre as áreas sociais e privadas. O hall de entrada garante privacidade à zona habitacional e conduz a uma ampla sala comum, muito luminosa, com ligação direta à varanda. A cozinha, em open space, alia design contemporâneo e funcionalidade, integrando-se naturalmente com a zona de refeições e sendo complementada por uma lavandaria independente, prática e bem dimensionada. A zona privada é composta por três quartos de áreas generosas, todos com roupeiros embutidos e excelente iluminação natural. A suíte destaca-se pelo conforto e pela casa de banho privativa, enquanto os restantes dois quartos são servidos por uma instalação sanitária completa e uma casa de banho social, assegurando comodidade para toda a família e convidados. Os espaços de circulação foram cuidadosamente pensados para garantir fluidez e aproveitamento eficiente da área disponível. A ampla varanda, com cerca de 19,5 m², constitui uma verdadeira extensão da área social, proporcionando um espaço ideal para momentos de lazer, refeições ao ar livre ou simplesmente para desfrutar da vista mar e da exposição solar privilegiada ao longo do dia. O apartamento dispõe ainda de dois lugares de estacionamento privativos e está equipado com soluções técnicas modernas que garantem elevado conforto térmico e eficiência energética, incluindo bomba de calor para produção de águas quentes sanitárias, sistema de climatização multi-split para aquecimento e arrefecimento e ventilação mecânica, assegurando uma excelente qualidade do ar interior. Os acabamentos refletem um elevado padrão de construção, com materiais cuidadosamente selecionados para proporcionar durabilidade, conforto e um ambiente contemporâneo. Este T3 no Edifício Solar representa uma oportunidade única para quem procura uma habitação de qualidade superior, com vista mar, áreas generosas e localização privilegiada, sendo igualmente uma excelente opção de investimento num empreendimento diferenciado e de elevada procura. Para mais informações ou agendamento de visita, contacte a Links Homes Real Estate. Abraçamos o seu sonho como se fosse o nosso!
AMI: 21454
Ref. Externa: LH-761-2025
Id: 1799028
Inicie sessão para guardar este imóvel e aceder à sua lista de favoritos em qualquer dispositivo.
Profissionais que conhecem esta zona a fundo — contacte-os para uma avaliação personalizada.
3 Quartos
3 WCs
Área bruta : 162 m²
Novo empreendimento no Estreito de Câmara de Lobos, com apartamentos T1, T2 e T3 que combinam modernidade, conforto e uma localização de excelência. Destaques do Empreendimento: Cozinhas totalmente equipadas. Varandas amplas e luminosas. Arrecadação e 2 lugares de garagem por fração. Pré-instalação de ar condicionado. Rooftop Exclusivo: Piscina com vista do campo ao mar, solário e áreas ajardinadas o seu refúgio perfeito no topo do edifício. Conclusão prevista: dezembro de 2028. Ideal para viver ou investir num projeto de referência na região. _______________________________________________________ A informação disponibilizada, embora precisa é meramente informativa, pelo que não pode ser considerada vinculativa, e poderá ser sujeita a alterações.
AMI: 12570
Ref. Externa: HH_2684MD25
Id: 1798612
Inicie sessão para guardar este imóvel e aceder à sua lista de favoritos em qualquer dispositivo.
3 Quartos
Área bruta : 227 m²
Moradia isolada T3 situada no Estreito de Câmara de Lobos.O imóvel é composto por três quartos, uma casa de banho, sala de estar e de jantar com boa luminosidade, cozinha, lavandaria e duas varandas. Dispõe de uma garagem com capacidade para várias viaturas. O terreno envolvente permite usufruir de áreas exteriores com bastante potencial, incluindo a criação de jardim ou zona de cultivo, tirando partido das condições naturais da zona.A propriedade apresenta-se em bom estado de conservação e beneficia de uma localização com acessos facilitados às principais vias rodoviárias, permitindo uma ligação rápida a outros pontos da ilha.
AMI: 15427
Ref. Externa: Q2668
Id: 1796614
Inicie sessão para guardar este imóvel e aceder à sua lista de favoritos em qualquer dispositivo.
5 Quartos
1 WCs
Área bruta : 70 m²
✨ Oportunidade no Estreito de Câmara de Lobos! ✨ Apresentamos esta encantadora moradia V2, com excelente exposição solar e uma vista agradável que convida ao bem-estar e à tranquilidade.☀️ Localizada à beira da estrada, oferece acessos fáceis e rápidos, com transportes públicos, mercearia e vários serviços mesmo ali ao lado — tudo o que precisa para um dia a dia prático e confortável. Com áreas agradáveis e bem distribuídas, esta moradia adapta-se perfeitamente tanto a habitação própria como a investimento para rentabilizar, sendo uma excelente oportunidade no mercado atual. Se procura um imóvel com potencial, boa localização e qualidade de vida, esta pode ser a escolha certa para si! ? Não perca esta oportunidade — marque já a sua visita! "O SEU SONHO ESTÁ NAS MINHAS MÃOS"
AMI: 23686
Ref. Externa: TRH189/2026
Id: 1785455
Inicie sessão para guardar este imóvel e aceder à sua lista de favoritos em qualquer dispositivo.
1 Quartos
1 WCs
Área útil : 45 m²
Ref.: 04986-T1 Descrição: Apresentamos modernos apartamentos em construção, situados numa zona residencial tranquila, com excelente acessibilidade a transportes públicos e uma vista deslumbrante sobre a montanha e o mar. O edifício distingue-se pelo seu design contemporâneo, piscina comum e amplas áreas verdes, proporcionando conforto, bem-estar e qualidade de vida. Com uma área total de 54,42 m², este apartamento é composto por: Hall de entrada – 1,96 m² Sala de estar e jantar – 16,43 m², ampla e luminosa Cozinha – 6,98 m² Lavandaria – 1,81 m² Área de circulação – 1,43 m² Quarto – 11,91 m² Casa de banho – 4,86 m² Varanda - 7,05 m² O imóvel inclui ainda 1 lugar de estacionamento e 1 arrecadação, garantindo toda a funcionalidade e comodidade. No mesmo empreendimento estão disponíveis: T2 a partir de 405.000 € T3 a partir de 450.000 € Não perca esta oportunidade de viver com conforto, modernidade e uma vista única! *Para mais informações, fotos ou visitas passe num dos nossos escritórios: -Estrada Monumental, Edf. RodaMar, loja 241-B (frente entrada principal Fórum, lado praça táxis), Tel 291 745 220 Horário: 2ª a 6ª das 9h30m às 13h e das 14h às 18h30m. -Rua Fernão Ornelas, 25, 1º Dto. Tel 291 214 140 (sujeito marcação prévia). PREDIFUNCHAL com 40 anos de experiência, a sua imobiliária de confiança na Ilha da Madeira, especialista em investimentos e rendimentos imobiliários desde 1985.
AMI: 914
Ref. Externa: 04986-T1
Id: 1780576
Inicie sessão para guardar este imóvel e aceder à sua lista de favoritos em qualquer dispositivo.
3 Quartos
2 WCs
Área bruta : 162 m²
Descubra uma oportunidade residencial verdadeiramente excepcional no coração de Estreito de Câmara de Lobos um empreendimento projetado para quem valoriza elegância, conforto e uma qualidade de vida superior. Esta coleção exclusiva de apenas 45 apartamentos (T1, T2 e T3) mistura perfeitamente a arquitetura contemporânea com uma localização privilegiada, oferecendo um estilo de vida refinado cercado pela beleza natural e autenticidade da Madeira. Projetado para Conforto, Estilo e Funcionalidade Cada apartamento foi criado cuidadosamente para oferecer o equilíbrio perfeito entre design moderno e praticidade cotidiana. Layouts espaçosos, acabamentos de alta qualidade e abundante luz natural definem cada casa, criando uma atmosfera ao mesmo tempo acolhedora e sofisticada. Os moradores podem aproveitar: Cozinhas contemporâneas totalmente equipadas, integradas a espaços de convivência em planta aberta Interiores generosos com excelente exposição ao sol Grandes varandas privativas, ideais para aproveitar o clima ameno da Madeira Pré-instalação de ar-condicionado para maior conforto Duas vagas de estacionamento privativas e um depósito incluídos em cada apartamento Uma experiência no telhado como nenhuma outra No topo do empreendimento está um destaque verdadeiramente marcante um santuário exclusivo no telhado, projetado para elevar sua experiência de vida cotidiana. Aqui, você pode relaxar e se deliciar com o seguinte: Uma deslumbrante piscina infinita com vistas panorâmicas que se estendem do campo ao Oceano Atlântico Um solário banhado pelo sol, perfeito para relaxar Áreas paisagísticas lindamente projetadas para momentos pacíficos ou encontros sociais Este telhado é mais do que um espaço compartilhado é uma fuga privada acima de tudo. Um local que oferece o melhor dos dois mundos Perfeitamente posicionado, o empreendimento coloca você no centro da conveniência e autenticidade: A uma curta distância a pé da vibrante vida local e do charme tradicional da Câmara de Lobos A poucos minutos de serviços essenciais, lojas e áreas de lazer Aproximadamente 10 minutos de Funchal, a capital da ilha Desfrute da rara combinação de vida residencial tranquila com fácil acesso à energia urbana. Com a conclusão prevista para 2027, este desenvolvimento representa uma oportunidade única para quem busca: Uma residência principal em um local premium Um retiro de férias em um dos destinos mais desejados da Europa Um investimento imobiliário de alto potencial Garanta Seu Futuro em um Desenvolvimento Excepcional Não perca a oportunidade de fazer parte deste projeto prestigiado. Entre em contato conosco hoje mesmo e dê o primeiro passo para conquistar seu imóvel em uma das localidades mais procuradas da Madeira.
AMI: 11097
Ref. Externa: #1482 T3
Id: 1777227
Inicie sessão para guardar este imóvel e aceder à sua lista de favoritos em qualquer dispositivo.
1 Quartos
1 WCs
Área bruta : 45 m²
Bem-vindo ao Elite Grand View, um excepcional novo empreendimento residencial que está surgindo na prestigiada área de Estreito de Câmara de Lobos um local que equilibra perfeitamente tranquilidade, acessibilidade e uma beleza natural deslumbrante. Projetado para quem valoriza elegância, conforto e qualidade, este empreendimento exclusivo conta com 45 apartamentos sofisticados que vão dos layouts T1, T1+1, T2 e T3, cuidadosamente elaborados para atender às demandas da vida moderna, ao mesmo tempo em que proporciona uma experiência de estilo de vida verdadeiramente elevada. Um Estilo de Vida Definido pelo Conforto e Sofisticação Cada residência no Elite Grand View foi meticulosamente projetada para oferecer espaços amplos, acabamentos refinados e funcionalidade perfeita. Os interiores apresentam materiais de qualidade acima da média, complementados por cozinhas contemporâneas totalmente equipadas, criando um ambiente ao mesmo tempo elegante e prático. Cada apartamento inclui: Duas vagas de estacionamento privativas para máxima conveniência Uma unidade de armazenamento dedicada para funcionalidades adicionais Excelente exposição ao sol, realçando a luz natural em todo o corpo Vistas Incomparáveis & Orientação Única Acorde com vistas panorâmicas de tirar o fôlego sobre a cidade de Câmara de Lobos e o vasto Oceano Atlântico. Escolha a perspectiva perfeita: Apartamentos voltados para o leste para desfrutar de espetaculares nasceres do sol Unidades voltadas para o oeste para momentos inesquecíveis de pôr do sol Residências selecionadas oferecem um recurso ainda mais exclusivo piscinas privadas, elevando sua casa a um refúgio pessoal. Vida em Estilo Resort em Casa No coração do empreendimento está uma bela piscina comunitária, projetada para relaxamento, lazer e para aproveitar o sol da Madeira durante todo o ano. Seja relaxando após um longo dia ou passando um tempo de qualidade com a família, o Elite Grand View oferece um estilo de vida que parece uma escapadinha permanente. Localização Privilegiada com Conectividade Excepcional Situada em uma área residencial tranquila e privilegiada, a Elite Grand View oferece a combinação perfeita de serenidade e conveniência: A poucos minutos do centro da Câmara de Lobos Aproximadamente 10 minutos de Funchal Fácil acesso a serviços essenciais, lojas e lazer Essa localização estratégica o torna ideal tanto para residência permanente quanto para investimentos de alto potencial. Um Investimento Futuro em Qualidade de Vida Com a conclusão prevista para o início de 2027, a Elite Grand View representa uma oportunidade rara de garantir um imóvel em uma das áreas residenciais mais promissoras da Madeira. Garanta seu lugar em algo extraordinário Elite Grand View é mais do que um lar é uma declaração de estilo de vida, um lugar onde arquitetura moderna, beleza natural e estilo de vida refinado se unem perfeitamente. Não perca essa oportunidade exclusiva. Descubra, reserve e faça parte de um empreendimento projetado para superar as expectativas.
AMI: 11097
Ref. Externa: #1481 T1
Id: 1777224
Inicie sessão para guardar este imóvel e aceder à sua lista de favoritos em qualquer dispositivo.
3 Quartos
2 WCs
Área bruta : 138 m²
Bem-vindo ao Elite Grand View, um excepcional novo empreendimento residencial que está surgindo na prestigiada área de Estreito de Câmara de Lobos um local que equilibra perfeitamente tranquilidade, acessibilidade e uma beleza natural deslumbrante. Projetado para quem valoriza elegância, conforto e qualidade, este empreendimento exclusivo conta com 45 apartamentos sofisticados que vão dos layouts T1, T1+1, T2 e T3, cuidadosamente elaborados para atender às demandas da vida moderna, ao mesmo tempo em que proporciona uma experiência de estilo de vida verdadeiramente elevada. Um Estilo de Vida Definido pelo Conforto e Sofisticação Cada residência no Elite Grand View foi meticulosamente projetada para oferecer espaços amplos, acabamentos refinados e funcionalidade perfeita. Os interiores apresentam materiais de qualidade acima da média, complementados por cozinhas contemporâneas totalmente equipadas, criando um ambiente ao mesmo tempo elegante e prático. Cada apartamento inclui: Duas vagas de estacionamento privativas para máxima conveniência Uma unidade de armazenamento dedicada para funcionalidades adicionais Excelente exposição ao sol, realçando a luz natural em todo o corpo Vistas Incomparáveis & Orientação Única Acorde com vistas panorâmicas de tirar o fôlego sobre a cidade de Câmara de Lobos e o vasto Oceano Atlântico. Escolha a perspectiva perfeita: Apartamentos voltados para o leste para desfrutar de espetaculares nasceres do sol Unidades voltadas para o oeste para momentos inesquecíveis de pôr do sol Residências selecionadas oferecem um recurso ainda mais exclusivo piscinas privadas, elevando sua casa a um refúgio pessoal. Vida em Estilo Resort em Casa No coração do empreendimento está uma bela piscina comunitária, projetada para relaxamento, lazer e para aproveitar o sol da Madeira durante todo o ano. Seja relaxando após um longo dia ou passando um tempo de qualidade com a família, o Elite Grand View oferece um estilo de vida que parece uma escapadinha permanente. Localização Privilegiada com Conectividade Excepcional Situada em uma área residencial tranquila e privilegiada, a Elite Grand View oferece a combinação perfeita de serenidade e conveniência: A poucos minutos do centro da Câmara de Lobos Aproximadamente 10 minutos de Funchal Fácil acesso a serviços essenciais, lojas e lazer Essa localização estratégica o torna ideal tanto para residência permanente quanto para investimentos de alto potencial. Um Investimento Futuro em Qualidade de Vida Com a conclusão prevista para o início de 2027, a Elite Grand View representa uma oportunidade rara de garantir um imóvel em uma das áreas residenciais mais promissoras da Madeira. Garanta seu lugar em algo extraordinário Elite Grand View é mais do que um lar é uma declaração de estilo de vida, um lugar onde arquitetura moderna, beleza natural e estilo de vida refinado se unem perfeitamente. Não perca essa oportunidade exclusiva. Descubra, reserve e faça parte de um empreendimento projetado para superar as expectativas.
AMI: 11097
Ref. Externa: #1481 T3
Id: 1777225
Inicie sessão para guardar este imóvel e aceder à sua lista de favoritos em qualquer dispositivo.
2 Quartos
2 WCs
Área bruta : 114 m²
Descubra uma oportunidade residencial verdadeiramente excepcional no coração de Estreito de Câmara de Lobos um empreendimento projetado para quem valoriza elegância, conforto e uma qualidade de vida superior. Esta coleção exclusiva de apenas 45 apartamentos (T1, T2 e T3) mistura perfeitamente a arquitetura contemporânea com uma localização privilegiada, oferecendo um estilo de vida refinado cercado pela beleza natural e autenticidade da Madeira. Projetado para Conforto, Estilo e Funcionalidade Cada apartamento foi criado cuidadosamente para oferecer o equilíbrio perfeito entre design moderno e praticidade cotidiana. Layouts espaçosos, acabamentos de alta qualidade e abundante luz natural definem cada casa, criando uma atmosfera ao mesmo tempo acolhedora e sofisticada. Os moradores podem aproveitar: Cozinhas contemporâneas totalmente equipadas, integradas a espaços de convivência em planta aberta Interiores generosos com excelente exposição ao sol Grandes varandas privativas, ideais para aproveitar o clima ameno da Madeira Pré-instalação de ar-condicionado para maior conforto Duas vagas de estacionamento privativas e um depósito incluídos em cada apartamento Uma experiência no telhado como nenhuma outra No topo do empreendimento está um destaque verdadeiramente marcante um santuário exclusivo no telhado, projetado para elevar sua experiência de vida cotidiana. Aqui, você pode relaxar e se deliciar com o seguinte: Uma deslumbrante piscina infinita com vistas panorâmicas que se estendem do campo ao Oceano Atlântico Um solário banhado pelo sol, perfeito para relaxar Áreas paisagísticas lindamente projetadas para momentos pacíficos ou encontros sociais Este telhado é mais do que um espaço compartilhado é uma fuga privada acima de tudo. Um local que oferece o melhor dos dois mundos Perfeitamente posicionado, o empreendimento coloca você no centro da conveniência e autenticidade: A uma curta distância a pé da vibrante vida local e do charme tradicional da Câmara de Lobos A poucos minutos de serviços essenciais, lojas e áreas de lazer Aproximadamente 10 minutos de Funchal, a capital da ilha Desfrute da rara combinação de vida residencial tranquila com fácil acesso à energia urbana. Com a conclusão prevista para 2027, este desenvolvimento representa uma oportunidade única para quem busca: Uma residência principal em um local premium Um retiro de férias em um dos destinos mais desejados da Europa Um investimento imobiliário de alto potencial Garanta Seu Futuro em um Desenvolvimento Excepcional Não perca a oportunidade de fazer parte deste projeto prestigiado. Entre em contato conosco hoje mesmo e dê o primeiro passo para conquistar seu imóvel em uma das localidades mais procuradas da Madeira.
AMI: 11097
Ref. Externa: #1482 T2
Id: 1777226
Inicie sessão para guardar este imóvel e aceder à sua lista de favoritos em qualquer dispositivo.
3 Quartos
3 WCs
Área bruta : 345 m²
Encante-se com esta extraordinária quinta agrícola localizada em Câmara de Lobos, com uma área total de 9.820 m² e excelente exposição solar durante todo o dia. Situada a apenas 250 metros de altitude, esta propriedade oferece condições ideais para o cultivo de vinhas (castas tradicionais madeirenses) ou bananeiras, aproveitando o microclima característico desta zona privilegiada da ilha da Madeira. A quinta inclui dois edifícios independentes: Edifício habitacional com uma ampla cave, perfeita para armazenar pipas de vinho, ferramentas ou adaptar a uma zona de produção vinícola artesanal; Anexo agrícola anteriormente utilizado para animais, com potencial de reconversão para armazém, estufas, turismo rural ou apoio agrícola. Destaques da propriedade: Terreno com excelente inclinação e acesso, ideal para mecanização leve; Rede de caminhos interiores e acessos facilitados; Grande potencial para investimento agrícola, turismo de natureza ou refúgio particular; Proximidade ao centro de Câmara de Lobos e a poucos minutos do Funchal. Esta é uma oportunidade única para quem pretende investir na agricultura, iniciar um projeto de enoturismo ou simplesmente viver em harmonia com a natureza, numa das zonas mais emblemáticas da Madeira.
AMI: 17917
Ref. Externa: MAS_115
Id: 1776865
Inicie sessão para guardar este imóvel e aceder à sua lista de favoritos em qualquer dispositivo.
2 Quartos
Área bruta : 140 m²
Apartamento T2 em Câmara de LobosViva a experiência única de morar no Estreito de Câmara de Lobos, onde a paisagem se encontra com o conforto e a modernidade.Apresentamos um empreendimento exclusivo, composto por apenas 45 apartamentos, nas tipologias T1, T2 e T3, concebido para oferecer uma qualidade de vida superior num dos locais mais prestigiados da ilha.Este T2 é composto por sala de estar e jantar com cozinha pen space totalmente equipada.Um quarto dormitório em suite com sua casa de banho privada e outro quarto simples todos com armários embutidos e acessos a varanda exterior, uma casa de banho comum, lavandaria, uma arrecadação e dois lugares de garagem.Cada apartamento foi pensado para combinar funcionalidade e elegância, com cozinhas totalmente equipadas, varandas amplas e luminosas que convidam a desfrutar do clima ameno, e a pré-instalação de ar condicionado para o seu máximo conforto. O coração deste projeto é o seu Rooftop Exclusivo, um verdadeiro refúgio privado com piscina infinita com uma vista panorâmica deslumbrante, do campo ao mar, aproveite o solário ou delicie-se com as áreas ajardinadas o cenário perfeito para momentos inesquecíveis.Conclusão prevista: 2027.Localizado perto do mercado local, com excelentes acessos, comercio geral, escolas, serviços e transportes.Venha conhecer este novo Empreendimento, marque já sua visita!*A informação disponibilizada, embora precisa é meramente informativa, pelo que não pode ser considerada vinculativa, e poderá ser sujeita a alterações.* Somos intermediários de crédito bancário Certificados - Registados junto do Banco de Portugal "*Ajudamos sempre a encontrar a melhor solução para o seu crédito habitação.. . Rápido, Eficaz e Seguro.
AMI: 9327
Ref. Externa: EEC_T2I_P2
Id: 1775147
Inicie sessão para guardar este imóvel e aceder à sua lista de favoritos em qualquer dispositivo.
© Copyright 2023 | CASACERTA. All rights reserved
Guardar favoritos
Este imóvel foi guardados nos seus favoritos com sucesso.
Para poder guardar pesquisa deverá ter a sua sessão iniciada.
Caso não tenha uma conta, deverá criar uma.
A sua pesquisa foi guardada com sucesso!
Este site utiliza cookies. Ao navegar no site estará a consentir a sua utilização.
Para mais informações sobre os cookies pode consultar a
política de privacidade.