Lista
Comprar
Arrendar
1.500.000 €
4 Quartos
3 WCs
Área bruta : 700 m²
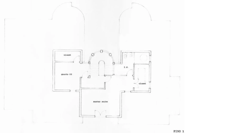
Apresentamos uma propriedade singular, onde a qualidade de construção e o requinte se encontram em perfeita harmonia. Localizada numa zona de excelência, esta moradia de 3 pisos oferece 418 m² de área útil, inserida num lote envolto por jardins, garantindo total privacidade e uma vivência de luxo. Arquitetura e Estrutura Construída com rigor técnico, a moradia possui paredes duplas com caixa de ar, assegurando um isolamento térmico e acústico superior. O interior é marcado pela presença de madeiras nobres e pedras naturais, que conferem uma atmosfera acolhedora e sofisticada a cada divisão. Distribuição Interior Piso Principal (R/C): O hall de entrada, majestoso e iluminado, serve de antecâmara para as áreas sociais: Área Social: Composta por um salão principal, sala de visitas (com versatilidade para ser convertida em quarto), uma sala de jantar formal e uma casa de banho de serviço. Cozinha e Copa: Cozinha totalmente equipada em conceito open-space com uma zona de refeições diárias. Dispõe de um prático elevador de carga (monta-pratos) que liga diretamente à despensa no piso inferior, facilitando toda a logística doméstica. Zona de Descanso: Dois quartos amplos com closets. apoiados por uma casa de banho completa. Funcionalidade: Lavandaria independente com acesso facilitado. 1.º Piso (Zona Privativa): Dedicado ao descanso absoluto, este piso conta com: Master Suite: Equipada com ar condicionado e um generoso walk-in closet. Quarto Adicional: Também servido por um walk-in closet privativo, garantindo máxima arrumação e conforto. Piso Inferior (Cave e Lazer): Um verdadeiro espaço dedicado ao entretenimento e organização: Salão de Festas e Jogos: Espaço amplo com cozinha de apoio, ideal para receções e convívios familiares. Arrumação: Três divisões destinadas a arrumos de grandes dimensões e uma despensa organizada. Garagem: Espaço interior para 4 viaturas, com acesso direto à habitação. Espaço Exterior e Lazer O exterior foi desenhado para potenciar o clima da região, apresentando um jardim que contorna toda a propriedade. Zona Gourmet: Churrasqueira coberta e uma zona de refeições sob o alpendre, ideal para momentos ao ar livre. Pormenores: Mesa e bancos em pedra trabalhada, conferindo um toque rústico e duradouro ao jardim. Estacionamento: Além da garagem, o logradouro permite o estacionamento cómodo de mais 2 viaturas. Características Técnicas: Área Bruta: 700 m² | Área Útil: 418 m² Climatização: Ar condicionado na Suite. Logística: Elevador monta-pratos entre pisos. Segurança e Isolamento: Parede dupla com caixa de ar. Uma oportunidade rara no mercado, ideal para quem procura uma residência de prestígio com todas as comodidades modernas num ambiente clássico. Partilhamos comissão com todas as agências imobiliárias com licença AMI, em regime de 50/50.
AMI: 25622
Ref. Externa: KWPT-027795
Id: 1608671
Inicie sessão para guardar este imóvel e aceder à sua lista de favoritos em qualquer dispositivo.
106.000 €
Área bruta : 82 m²
Prédio urbano com área total de 302m2 com moradia antiga para reabilitação/ampliação, atualmente utilizado como arrecadação e arrumos. Localizado no centro da freguesia de Relva a poucos minutos do aeroporto e centro de Ponta Delgada. Dispõe nas imediações vários serviços tais como comércio, centro de saúde, escola e paragem de autocarro.
AMI: 14250
Ref. Externa: DSPDLAL114
Id: 1580520
Inicie sessão para guardar este imóvel e aceder à sua lista de favoritos em qualquer dispositivo.
199.950 €
2 Quartos
Área bruta : 100 m²
Encontre o seu refúgio de serenidade nesta encantadora moradia localizada na pitoresca Rocha da Relva, freguesia da Relva, concelho de Ponta Delgada, na deslumbrante Ilha de São Miguel, Açores. Este imóvel é ideal para quem procura um local calmo e pacífico, perfeito para relaxar e estar em pleno contacto com a natureza. A moradia oferece uma experiência de vida única, num ambiente tranquilo e sereno, longe da agitação urbana. Rodeada por paisagens naturais impressionantes, é o local ideal para quem valoriza o sossego e o contacto direto com a natureza. A Rocha da Relva é famosa pela sua beleza natural e trilhos pedestres, tornando este imóvel perfeito para os amantes da natureza e das atividades ao ar livre. (Este imóvel não possui Licença de Utilização, está registado como terreno para construção) Destaques: Localização privilegiada com vista deslumbrante sobre o mar e a paisagem circundante. Perfeito para quem procura um retiro tranquilo e deseja recarregar energias. Excelente oportunidade para investimento em turismo rural ou para residência permanente. Não perca a chance de adquirir esta moradia única na Rocha da Relva e desfrute do melhor que a natureza dos Açores tem para oferecer. Agende já a sua visita e descubra este paraíso de tranquilidade e beleza natural. Atenção, o acesso a esta moradia só é possível através do trilho de acesso ( Rocha da Relva), e a moradia não tem licença de utilização. PORQUÊ TRABALHAR COM A EQUIPA JLS: - Equipa Nº1 da Keller Williams nos Açores - ÚNICA equipa Luxury da KW nos Açores - Equipa Top 5 nacional Keller Williams Portugal - Atendimento exclusivo por marcação: qualidade, privacidade e tecnologia de ponta - Especialistas em clientes internacionais (65% das transações) - Divulgação global: mais de 160 portais nacionais e internacionais - Serviços premium: fotografia profissional, vídeo, drone, medições 3D/láser e visitas virtuais.
AMI: 16107
Ref. Externa: KWPT-008880
Id: 1429964
Inicie sessão para guardar este imóvel e aceder à sua lista de favoritos em qualquer dispositivo.
299.950 €
4 Quartos
1 WCs
Área bruta : 105 m²
MORADIA: Tipologia: 4 quartos Casa de Banho: 1 Garagem: Não possui, mas tem entrada lateral que é feita perfeitamente para entrar carros. Proximidade: Situada ao lado da Igreja da Freguesia da Relva Descrição: Moradia V4 localizada na pitoresca freguesia da Relva, no concelho de Ponta Delgada, Ilha de São Miguel, Açores. Esta moradia, composta por quatro quartos e uma casa de banho, oferece um ambiente acolhedor e funcional para toda a família. Tem espaçoso terraço que proporciona uma vista magnífica sobre a freguesia e mar, permitindo momentos de relaxamento e contemplação da bela paisagem açoriana. TERRENO: Terreno plano com uma área total de 3080 m², localizado atrás da moradia, com entrada independente pela rua ao lado da casa. Este terreno é uma excelente oportunidade para investimento. PORQUÊ TRABALHAR COM A EQUIPA JLS: - Equipa Nº1 da Keller Williams nos Açores - ÚNICA equipa Luxury da KW nos Açores - Equipa Top 5 nacional Keller Williams Portugal - Atendimento exclusivo por marcação: qualidade, privacidade e tecnologia de ponta - Especialistas em clientes internacionais (65% das transações) - Divulgação global: mais de 160 portais nacionais e internacionais - Serviços premium: fotografia profissional, vídeo, drone, medições 3D/láser e visitas virtuais.
AMI: 16107
Ref. Externa: KWPT-003806
Id: 1426951
Inicie sessão para guardar este imóvel e aceder à sua lista de favoritos em qualquer dispositivo.
1.600.000 €
4 Quartos
3 WCs
Área útil : 700 m²
- Valor Negociável - Localizada na encantadora cidade de Ponta Delgada, esta moradia de luxo é o sonho de qualquer pessoa que procura conforto e elegância. Com 4 quartos espaçosos e 3 casas de banho bem equipadas, esta propriedade apresenta-se em excelente estado de conservação, pronta para receber os seus novos proprietários. Construída em 1992 e com uma área total de 1363m2, incluindo uma casa principal com 3 pisos e uma vista deslumbrante para o mar. A moradia vem totalmente mobilada, incluindo uma cozinha equipada com eletrodomésticos modernos, uma sala de jantar separada, uma acolhedora lareira, uma biblioteca para os amantes de leitura e uma sala de jogos para momentos de diversão em família. Além disso, conta com um ginásio privado e um jardim exuberante, perfeito para desfrutar do clima ameno dos Açores. Com quatro espaços de estacionamento na garagem, alarme de segurança várias despensas esta propriedade oferece o conforto e a conveniência que procura. A sua localização central permite um fácil acesso às zonas comerciais, ao aeroporto e ao transporte público, garantindo uma vida citadina sem preocupações. Não deixe escapar esta oportunidade única de adquirir uma moradia de luxo num dos locais mais desejados dos Açores. Marque já a sua visita e deixe-se encantar por esta propriedade de sonho.
AMI: 9792
Ref. Externa: CB11-0060
Id: 1164639
Inicie sessão para guardar este imóvel e aceder à sua lista de favoritos em qualquer dispositivo.
500.000 €
3 Quartos
4 WCs
Área bruta : 276 m²
VIVENDA T3+2 com excelente potencial - Relva, Ponta Delgada Descubra o conforto e a tranquilidade de viver numa moradia espaçosa, sólida e cheia de potencial, situada a poucos minutos do centro da cidade de Ponta Delgada. Localizada no bairro Alcindo Alves, freguesia da Relva, esta propriedade combina o melhor de dois mundos: uma zona calma e residencial, com a proximidade de escolas, hospital, comércio, serviços e zonas de lazer. Com uma área de terreno de 429 m² e construção robusta em betão armado (estrutura sismo resistente), esta moradia é ideal para quem procura uma habitação permanente com espaço, funcionalidade e boa localização, ou para investidores à procura de um imóvel para rentabilizar. ________________________________________ Destaques da propriedade: Terreno com 429 m² e áreas exteriores ajardinadas Moradia T3+2 com dois pisos e boa distribuição de espaços Estrutura em betão armado, incluindo cobertura Garagem com portão elétrico, + espaço para arrumos Logradouro com churrasqueira, zona de lazer e canil A poucos minutos do centro de Ponta Delgada e dos principais serviços Potencial para Alojamento Local ou arrendamento de longa duração ________________________________________ Distribuição da moradia: Piso 0 (Rés-do-chão): Jardim frontal e alpendre de entrada Amplo hall e escadas em madeira de acesso ao piso superior Escritório com vista para o jardim Sala de estar com lareira e sala de jantar, com portadas envidraçadas em madeira que permitem criar um ambiente em open space ou dividido Cozinha equipada com armários superiores e inferiores, com despensa Dois quartos com roupeiros embutidos, sendo um deles em suíte, com casa de banho privativa Casa de banho completa com banheira Logradouro com alpendre, churrasqueira, casa de banho exterior e zona de canil Garagem espaçosa com lugar para arrumos ou possível lavandaria Teto da garagem com placa de betão e vão superior aproveitável para arrumação adiciona l Piso 1: Ampla área multi funcional com lareira, ideal para zona de lazer, jogos ou convívio, que inclui uma mesa de snooker Aproveitamento de espaço para pequeno bar Quarto de cama adicional Divisão com cerca de 9 m² (ideal para quarto de solteiro, escritório ou arrumos) Casa de banho completa Divisões de arrumos através do aproveitamento das águas-furtadas, uma delas com tanque de reserva de água potável (500L) ________________________________________ A moradia encontra-se em bom estado de conservação, necessitando de algumas melhorias e eventualmente algumas atualizações estéticas ou modernizações pontuais, permitindo ao novo proprietário personalizar o espaço ao seu gosto. ________________________________________ Oportunidade a não perder! Contacte-nos para mais informações ou para marcar a sua visita! ________________________________________ Informação Adicional acerca das ÁREAS: Área Total de Terreno: 429 m² ; Área de Implantação: 176 m² ; Área de Construção: 276 m² ; Área Bruta Privativa: 226 m² ; Área Bruta Dependente: 50 m² ; Área Descoberta: 253 m² ; ________________________________________ Imóvel com Classe Energética: E;
AMI: 622
Ref. Externa: 3978
Id: 1155573
Inicie sessão para guardar este imóvel e aceder à sua lista de favoritos em qualquer dispositivo.
1.500.000 €
4 Quartos
4 WCs
Área útil : 335 m²
Moradia de arquitetura contemporânea, de amplas zonas envidraçadas por onde entra a luz natural, tem 700,36 m2 de área bruta de construção, distribui-se por três pisos, com acabamentos premium onde predominantemente foram usados a pedra natural e madeiras nobres. A entrada para o lote de 1.363m2 faz-se pela entrada principal e ainda por um portão elétrico que dá acesso direto à garagem com capacidade para 4 automóveis. A moradia distribui-se da seguinte forma: - Na cave: •garagem com instalação sanitária •sala de estar e de jogos •sala de refeições, ideal para eventos familiares mais informais, com ginásio e arrecadações de apoio; - No piso térreo: •hall de entrada •1 master suíte •1 quarto •biblioteca/escritório •sala de estar com lareira •sala de jantar •cozinha totalmente equipada •copa •lavandaria •casa de banho social. - No piso superior: •1 quarto com closet •1 quarto suíte. •Closet De realçar a vista no quarto suite para, onde podemos avistar o mar e até a Barrosa. No exterior o seu jardim frondoso com árvores de grande porte e zonas de lazer, dão a esta moradia um ambiente tranquilo e harmonioso. Oportunidade única, em localização privilegiada, num bairro calmo e de bons acessos, muito perto do aeroporto e a todo o tipo de comércio e serviços, a hospitais e, ainda, a excelentes colégios privados. Para informações contate-me. A IAD é uma rede de consultores imobiliários independes prontos para ajudá-lo a realizar os seus sonhos. Está presente em todo o país, mas também opera em Espanha, França, Itália, Alemanha, Reino Unido, México e no estado da Flórida. #ref: 128873
AMI: 11220
Ref. Externa: 128873
Id: 911303
Inicie sessão para guardar este imóvel e aceder à sua lista de favoritos em qualquer dispositivo.
480.000 €
3 Quartos
2 WCs
Área de terreno : 173 m²
Esta moradia individual de tipologia T3 é a escolha perfeita para quem procura conforto e privacidade. Com uma área bruta de 172,62 m2 e um terreno de 405 m2, esta casa é ideal para quem quer desfrutar de um espaço amplo e acolhedor. Com uma suíte e dois quartos, esta moradia tem capacidade para acomodar toda a família. O jardim, o logradouro e o muro oferecem privacidade e segurança, com 2 entradas uma que permite o acesso à garagem e a outra o acesso ao jardim e moradia. A orientação solar permite desfrutar do sol em todas as divisões da casa. Com uma localização privilegiada na freguesia de Relva, no concelho de Ponta Delgada, esta é uma oportunidade única de adquirir uma casa com um excelente estado de conservação, construída em 1994. Agende já a sua visita e descubra tudo o que esta casa tem para oferecer! Classe energética Isento. Preço: 390 000,00€. Descrição: RC - Hall; Sala com lareira; suíte com closet ;quarto (ambos os quartos com ar condicionado);cozinha (com ligação à garagem); Instalação Sanitária e garagem para 1 carro, podendo estacionar no logradouro mais duas viaturas. 1º Piso - 1 quarto; escritório; wc e espaço de arrumos. Lugar de estacionamento na rua para dois carros. Localiza-se no Bairro Alcindo Alves, Relva, logo com proximidade às principais superfícies comerciais.
AMI: 12315
Ref. Externa: 250-M-00805
Id: 812121
Inicie sessão para guardar este imóvel e aceder à sua lista de favoritos em qualquer dispositivo.
450.000 €
4 Quartos
3 WCs
Área bruta : 223 m²
Identificação do imóvel: ZMPT554692Se sonha viver numa zona premium e com qualidade de vida, então esta é a melhor solução para si e para a sua família.Apresentamos uma moradia com uma localização fantástica na periferia do centro da cidade de Ponta Delgada, nomeadamente no Bairro Alcino Alves, na freguesia da Relva.Situada num bairro residencial de referência e muito procurado por famílias que pretendem beneficiar da segurança e tranquilidade no dia a dia e que simultaneamente valorizam a proximidade aos seus empregos, escolas e atividades dos filhos beneficiando do acesso quase direto à via rápida, assim como a todo o tipo de serviços e comércio, sem estarem privados da vista mar e serra.Estamos perante uma moradia V3 +1, constituída por 2 pisos, com construção antissísmica, em condições de manutenção muito boas, edificada num lote de terreno com 409 m2, com entrada lateral, garagem e churrasqueira, totalizando uma área bruta de construção de 223 m2 acrescidos da marquise fechada e anexo/lavandaria.O Rés-do-chão (Piso 0) é constituído por: Alpendre, hall de entrada, ampla sala comum, 3 quartos de cama, 2 casas de banho, cozinha, despensa e agradável marquise fechada para bons momentos partilhados com a família e amigos.O 1º Piso é constituído por: 1 sala, 1 quarto de cama, 1 casa de banho e dois aproveitamentos de águas furtadas como sótão de elevada capacidade de arrumação.A área exterior é circulável em todo o perímetro da moradia, oferece a facilidade de estacionamento no acesso lateral à garagem como no exterior na via pública.Do ponto de vista de conforto térmico podemos indicar que a moradia possui ar-condicionado e possui caixilharias em alumínio fechado em persianas e em termos de segurança está protegida por um sistema de alarme.Marque a sua visita e pondere esta possibilidade de negócio, beneficiando de todas vantagens fiscais de uma permuta.O Certificado Energético do imóvel já foi solicitado e aguardamos a sua emissão.3 razões para comprar com a Zome+ acompanhamentoCom uma preparação e experiência única no mercado imobiliário, os consultores Zome põem toda a sua dedicação em dar-lhe o melhor acompanhamento, orientando-o com a máxima confiança, na direção certa das suas necessidades e ambições.Daqui para a frente, vamos criar uma relação próxima e escutar com atenção as suas expectativas, porque a nossa prioridade é a sua felicidade! Porque é importante que sinta que está acompanhado, e que estamos consigo sempre.+ simplesOs consultores Zome têm uma formação única no mercado, ancorada na partilha de experiência prática entre profissionais e fortalecida pelo conhecimento de neurociência aplicada que lhes permite simplificar e tornar mais eficaz a sua experiência imobiliária.Deixe para trás os pesadelos burocráticos porque na Zome encontra o apoio total de uma equipa experiente e multidisciplinar que lhe dá suporte prático em todos os aspetos fundamentais, para que a sua experiência imobiliária supere as expectativas.+ felizO nosso maior valor é entregar-lhe felicidade!Liberte-se de preocupações e ganhe o tempo de qualidade que necessita para se dedicar ao que lhe faz mais feliz.Agimos diariamente para trazer mais valor à sua vida com o aconselhamento fiável de que precisa para, juntos, conseguirmos atingir os melhores resultados.Com a Zome nunca vai estar perdido ou desacompanhado e encontrará algo que não tem preço: a sua máxima tranquilidade!É assim que se vai sentir ao longo de toda a experiência: Tranquilo, seguro, confortável e... FELIZ!Notas:1. Caso seja um consultor imobiliário, este imóvel está disponível para partilha de negócio. Não hesite em apresentar aos seus clientes compradores e fale connosco para agendar a sua visita.2. Para maior facilidade na identificação deste imóvel, por favor, refira o respetivo ID ZMPT ou o respetivo agente que lhe tenha enviado a sugestão.
AMI: 20030
Ref. Externa: ZMPT554692
Id: 467545
Inicie sessão para guardar este imóvel e aceder à sua lista de favoritos em qualquer dispositivo.
Este agente é especialista nesta zona:
Inicie sessão para ocultar este imóvel das suas pesquisas e manter a sua lista de resultados organizada.
Guardar favoritos
Este imóvel foi guardados nos seus favoritos com sucesso.
Para poder guardar pesquisa deverá ter a sua sessão iniciada.
Caso não tenha uma conta, deverá criar uma.
A sua pesquisa foi guardada com sucesso!
© Copyright 2023 | CASACERTA. All rights reserved
Este site utiliza cookies. Ao navegar no site estará a consentir a sua utilização.
Para mais informações sobre os cookies pode consultar a
política de privacidade.