Lista
Comprar
Arrendar
320.000 €
3 Quartos
3 WCs
Área bruta : 174 m²
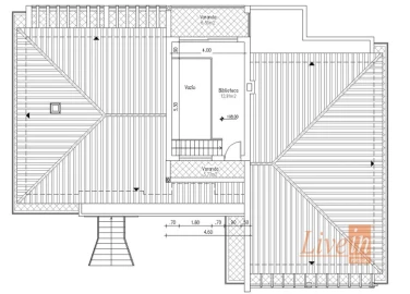
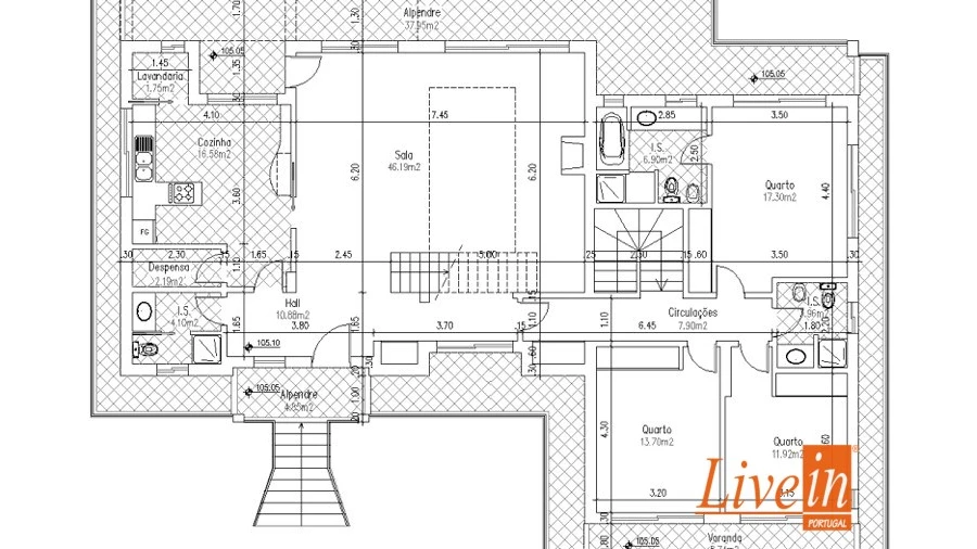
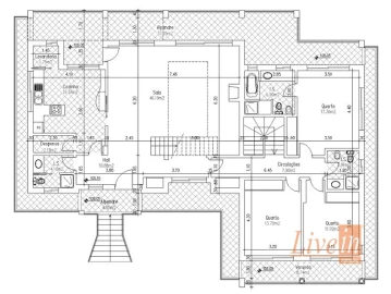
Esta encantadora moradia T3 está situada a apenas cinco minutos de Alcobaça e a dez minutos da famosa praia da Nazaré, oferecendo a combinação perfeita entre tranquilidade e acessibilidade à costa. Características da Moradia: Vista Deslumbrante: Desfrute de vistas panorâmicas que encantam a todos. Amplo Jardim: Excelente área de jardim com potencial para a construção de uma piscina, ideal para dias de calor e convívios em família. Anexo Funcional: Inclui sala, cozinha, casa de banho e uma garagem, perfeito para receber amigos ou criar um espaço de lazer. Três Pisos: A moradia é distribuída em três pisos, proporcionando ampla espaço útil e privacidade. Conforto e Qualidade: Lareiras com Recuperador de Calor: Duas lareiras garantem um ambiente acolhedor nos meses mais frios. Aquecimento Central: Para conforto em todas as estações do ano. Ar Condicionado: Disponível em dois quartos e na sala principal, assegurando um clima agradável durante o verão. Ideal para Convívios: Este espaço foi pensado para receber amigos e familiares, oferecendo conforto e áreas amplas para momentos inesquecíveis. Agende já a sua visita a esta moradia dos seus sonhos! Características ; Sala de estar 32,90 m2 Cozinha 28,70 m2 Despensa 3,90 m2 Casa de banho 2,80 m2 Atrio 4,30 m2 Quarto14,20 m2 Quarto 14m2 Casa de banho 5,25 m2 Casa de banho 6,40 m2 Quarto 14,80 m2 Alpendre piso 0 9,15 m2 Alpendre piso 0 3 m2 Varanda piso 1 11,60 m2 CAVE Cozinha, sala, escritório e casa de banho 82,55 m2
AMI: 1415
Ref. Externa: 030/2025.LM
Id: 1746783
Inicie sessão para guardar este imóvel e aceder à sua lista de favoritos em qualquer dispositivo.
325.000 €
3 Quartos
1 WCs
Área bruta : 5175 m²
Excelente oportunidade de investimento.Esta propriedade encontra-se na tranquila povoação do Bárrio, no concelho de Alcobaça, centro oeste de Portugal, uma zona em pleno crescimento e com enorme potencial para desenvolvimento de um projeto turístico, restauração ou habitação própria.Com uma localização privilegiada na Costa de Prata, a moradia beneficia da proximidade a alguns dos destinos mais procurados da região:A 5,5 km da cidade de Alcobaça, conhecida pelo seu imponente Mosteiro de Alcobaça, classificado como Património Mundial da UNESCO, e pela tradicional doçaria e gastronomia conventual.A 8 km da Vila da Nazaré, internacionalmente famosa pelas suas ondas gigantes e autenticidade piscatória.A 15 km da Baía de São Martinho do Porto, reconhecida pela sua beleza natural e praia de águas calmas, ideal para famílias.A cerca de 1 hora de Lisboa, com excelentes acessos pela A8, o que torna esta propriedade ideal tanto para fins turísticos como residenciais.Características do ImóvelTerreno com 5.175m².Área total de construção de 688m², composta por casa principal, anexos e armazém.Localização sossegada, com ótima exposição solar e vista panorâmica sobre o campo e mar.Bons acessos rodoviários, garantindo deslocações rápidas às principais vilas e praias da região.Potencial e OportunidadePela sua dimensão e localização estratégica, esta propriedade oferece um enorme potencial para:Desenvolvimento de um projeto turístico, como turismo rural, alojamento local, quinta pedagógica ou espaço de eventos.Instalação de um projeto de restauração com vista privilegiada e ambiente tranquilo.Criação de uma residência familiar ou casa de campo com total privacidade e ligação à natureza.Situada numa das regiões mais autênticas e procuradas de Portugal, entre o mar e o campo, esta moradia representa uma oportunidade única para quem procura investir na Costa de Prata, perto de Alcobaça, Nazaré e São Martinho do Porto.Contacte-nos para mais informações ou agendar a sua visita.
AMI: 329
Ref. Externa: JO-1933
Id: 1729159
Inicie sessão para guardar este imóvel e aceder à sua lista de favoritos em qualquer dispositivo.
313.500 €
3 Quartos
3 WCs
Área bruta : 0 m²
Moradia localizada em Val da Pereira.Composta por cave para garagem e arrumos, r/c com hall, sala de pé direito duplo com mezzanine, cozinha, wc, lavandaria, corredor, suíte, 2 quartos e 1 suite. 454m² área bruta, 182m² úteis; e 3.300m² de terreno;
AMI: 775
Ref. Externa: OP-999024621
Id: 1728585
Inicie sessão para guardar este imóvel e aceder à sua lista de favoritos em qualquer dispositivo.
458.000 €
4 Quartos
3 WCs
Área bruta : 290 m²
Moradia em condomínio privado com piscina e envolvida pela natureza. Esta moradia destaca-se pela tranquilidade e privacidade. Inserida num condomínio privilegiado e rodeada pela natureza está implantada num lote de 671,80 m², dispõe de piscina privada, jardim e vários espaços exteriores de lazer e convívio. Distribuída por três pisos, a moradia apresenta uma organização funcional e acolhedora: - Piso principal: sala ampla com vista aberta para o campo, cozinha equipada, casa de banho e dois quartos com roupeiro, sendo um deles suite e o outro, um escritório convertido em quarto. - 1º andar: dois quartos e varandas com vista panorâmica, além de uma casa de banho completa. - Cave: garagem espaçosa, divisão de utilização diversa e lavandaria. Equipada com: - painéis solares - bomba de calor com a opção de aquecimento e arrefecimento - piso radiante hidráulico - aspiração central - Piscina aquecida com os painéis solares Localizada no Bárrio, a apenas 15 minutos das praias da Nazaré e de São Martinho do Porto, a 10 minutos de Alcobaça, 25 minutos das Caldas da Rainha, 30 minutos de Leiria e a cerca de 1 hora de Lisboa, esta moradia oferece o equilíbrio perfeito entre o campo e o mar, num ambiente calmo, privado e rodeado por natureza. Uma excelente oportunidade para quem procura qualidade de vida, privacidade e proximidade às melhores praias da região.
AMI: 7420
Ref. Externa: MS1893
Id: 1717760
Inicie sessão para guardar este imóvel e aceder à sua lista de favoritos em qualquer dispositivo.
95.000 €
2 Quartos
Área bruta : 55 m²
Moradia para recuperação total em Bárrio - Alcobaça - Lote totalmente murado - Excelente localização em zona calma - Bom projeto de recuperação - Poço
AMI: 18372
Ref. Externa: IC_0314
Id: 1714607
Inicie sessão para guardar este imóvel e aceder à sua lista de favoritos em qualquer dispositivo.
210.000 €
2 Quartos
1 WCs
Área bruta : 80 m²
Moradia T2 em fase final de restauração, localizada no Bárrio, concelho de Alcobaça, numa zona tranquila e rodeada de natureza, ideal para quem procura qualidade de vida, seja para habitação própria ou investimento. Esta acolhedora moradia destaca-se pela sua funcionalidade e conforto, sendo composta por cozinha e sala em conceito open space com excelente luminosidade, casa de banho com base de duche e dois quartos com roupeiros embutidos. No exterior, dispõe ainda de lugar de estacionamento. Conta com excelente exposição solar, pré-instalação de ar condicionado, janelas em PVC com corte térmico e cozinha totalmente equipada, oferecendo todas as condições para o seu conforto no dia a dia. Conclusão da obra prevista para junho de 2026, sendo entregue chave na mão. Uma excelente oportunidade de adquirir a sua casa nova numa zona calma e em valorização. Marque já a sua visita e venha conhecer!
AMI: 24609
Ref. Externa: 0118
Id: 1711978
Inicie sessão para guardar este imóvel e aceder à sua lista de favoritos em qualquer dispositivo.
313.500 €
4 Quartos
3 WCs
Área bruta : 454 m²
Moradia situada em Val da Pereira, ideal para quem procura conforto, privacidade e qualidade de vida. Cave: destinada a garagem e arrumos, com espaço amplo e funcional. Rés do chão: composto por hall de entrada, sala espaçosa com pé direito duplo e mezzanine que proporciona excelente luminosidade e sensação de amplitude, cozinha funcional, WC de serviço, lavandaria, corredor de distribuição, três quartos, sendo dois deles em suíte, garantindo maior conforto e privacidade. Com uma área bruta de 454 m² e 182 m² de área útil, oferece divisões bem distribuídas e espaços generosos. No exterior, destaca-se o terreno com cerca de 3.300 m², ideal para lazer, jardim, cultivo ou eventual instalação de piscina, inserido numa zona tranquila e agradável. ***IMÓVEL SEM LICENÇA DE UTILIZAÇÃO.*** ***Escriturável ao abrigo do Simplex*** ***RIOMAGIC***
AMI: 5494
Ref. Externa: 100.26
Id: 1702014
Inicie sessão para guardar este imóvel e aceder à sua lista de favoritos em qualquer dispositivo.
210.000 €
2 Quartos
1 WCs
Área bruta : 80 m²
Há imóveis que cumprem uma função. E há imóveis que representam uma decisão inteligente para o futuro. Situada na tranquila freguesia do Bárrio, em Alcobaça, esta moradia combina aquilo que hoje o mercado procura cada vez mais: qualidade de vida, proximidade ao mar e forte potencial de valorização. Entre a serenidade do campo e algumas das praias mais icónicas da Europa, esta propriedade oferece um equilíbrio raro entre vida tranquila e oportunidade de investimento. Esta moradia térrea apresenta: 80 m² de área bruta de construção 114 m² de área total de terreno Tipologia T2 Implantação funcional Grande potencial de valorização após modernização Este tipo de imóvel permite várias estratégias: Habitação própria permanente Casa de férias na Costa de Prata Arrendamento tradicional Alojamento turístico Projeto de reabilitação para valorização futura Viver nesta zona significa estar a poucos minutos de Alcobaça, cidade histórica conhecida pelo: Mosteiro de Alcobaça - Património Mundial da UNESCO Este património cultural, aliado à gastronomia e tradição agrícola da região, tem atraído cada vez mais residentes e investidores. A Costa de Prata está hoje entre as regiões com maior crescimento imobiliário em Portugal. A localização permite acesso rápido a algumas das praias mais famosas do país: Nazaré - 15 minutos Destino internacional conhecido pelas maiores ondas do mundo. Praia do Norte - 15 minutos Um dos palcos mais mediáticos do surf mundial. São Martinho do Porto - 20 minutos Baía em forma de concha considerada uma das melhores praias familiares da Europa. Foz do Arelho - 30 minutos Onde a Lagoa de Óbidos encontra o Atlântico, ideal para desportos náuticos. Esta proximidade ao mar aumenta significativamente o valor turístico e imobiliário da propriedade. A localização permite deslocações rápidas para vários centros urbanos: A8 - ligação direta a Lisboa IC9 - ligação a Leiria e interior Aeroporto Internacional de Lisboa - cerca de 1h10 Isto torna o imóvel particularmente atrativo para: compradores estrangeiros segunda habitação investimento turístico Este imóvel pode enquadrar-se nas novas medidas de apoio à habitação jovem em Portugal. Possibilidade de isenção ou redução de IMT e Imposto de Selo na aquisição da primeira habitação própria permanente. Através do programa de garantia pública do Estado, jovens até 35 anos podem aceder a financiamento até 100% do valor do imóvel, reduzindo drasticamente a necessidade de capitais próprios. A região de Alcobaça e Nazaré tem registado crescimento consistente devido ao aumento do turismo internacional, escassez de imóveis perto do mar e procura crescente por qualidade de vida fora das grandes cidades Estimativa de rentabilidade (ROI) Arrendamento tradicional 900 € - 1.100 € / mês Rentabilidade bruta estimada 5% - 6,3% ao ano Caso seja adaptado para Alojamento Local ou turismo de curta duração: Estimativa média anual de ocupação: 180 - 220 noites Preço médio por noite: 120 € - 160 € Receita anual estimada: 21.000 € - 35.000 € ROI potencial: 10% - 16% anual Este tipo de rentabilidade é cada vez mais procurado por investidores na Costa de Prata. Mais do que uma casa uma oportunidade Imagine-se a viver ou investir numa região onde o mar está a poucos minutos, a qualidade de vida é superior e os preços ainda apresentam margem de valorização. Aqui não está apenas a comprar um imóvel. Está a adquirir localização, potencial e tempo a seu favor. As melhores oportunidades são reconhecidas por quem sabe olhar além do presente.
AMI: 10312
Ref. Externa: LM1129M
Id: 1683580
Inicie sessão para guardar este imóvel e aceder à sua lista de favoritos em qualquer dispositivo.
313.500 €
3 Quartos
2 WCs
Área bruta : 454 m²
Moradia de traça contemporânea com muita luz natural (vãos de grande dimensão). Organização prática: quartos e áreas sociais no rés do chão; 1.º piso destinado a sala/estúdio polivalente. Cave/garagem muito ampla, ideal para arrumação ou atelier. Teve infiltrações associadas a escoamentos entupidos requer correção das drenagens e reposição de acabamentos (ver fotos). Excelente potencial de valorização: concluir a obra e regularizar a documentação. Estado da obra: Estrutura concluída; faltam acabamentos e reposições (ex.: guardas, escadas, caixilharia/estores a verificar, loiças, pinturas e arranjos exteriores). O interior apresenta marcas de humidade em zonas pontuais recomenda-se intervenção técnica nas drenagens e substituição dos materiais afetados. Situação legal: Sem Licença/Autorização de Utilização (AU): o processo caducou por não ter sido pedida/levantada em tempo útil e por existirem acabamentos e elementos de conformidade em falta face ao projeto aprovado. O que é necessário para obter a AU: Concluir e repor os trabalhos em falta, em conformidade com o projeto (inclui guardas/escadas, fecho de vãos não previstos, caixilharia/estores conforme, loiças e arranjos exteriores). Realizar o levantamento 'as built' e, se necessário, elaborar telas finais ou projeto de legalização para alinhar o executado com o aprovado. Apresentar termos de responsabilidade e certificações das especialidades (acústica, SCIE, etc.). Dar entrada do pedido de AU na Câmara Municipal (com vistoria). Após a emissão, depositar a Ficha Técnica da Habitação. Estimativas do relatório técnico: Cerca de 11 semanas para preparar o pedido e um custo aproximado de 9.515,60 € (técnicos/taxas). Valores meramente indicativos, sujeitos a validação municipal e do técnico responsável. Ideal para: Investidores (flip/arrendamento) conclusão e regularização representam uma criação de valor. Famílias que pretendam personalizar a fase final da obra, beneficiando de um lote amplo (3.300 m²) e de total privacidade. Condições: Venda no estado em que se encontra. Dossier técnico (relatório, lista de trabalhos e checklist para AU) disponível para interessados qualificados. Deixe o seu crédito nas nossas mãos, somos intermediários de crédito com o número 0003129 autorizado pelo Banco de Portugal e garantimos as melhores soluções financeiras para si. *As informações apresentadas neste anúncio são de natureza meramente informativa não podendo ser consideradas vinculativas, não dispensa a consulta e confirmação das mesmas junto da mediadora.
AMI: 9871
Ref. Externa: 9843CD
Id: 1633523
Inicie sessão para guardar este imóvel e aceder à sua lista de favoritos em qualquer dispositivo.
895.000 €
3 Quartos
3 WCs
Área bruta : 286 m²
Esta fantástica propriedade com moradia de arquitetura contemporânea fica situada em zona de natureza, em localidade próxima da cidade de Alcobaça (6 minutos do centro - mosteiro), possui três quartos, um deles en suite, cozinha / sala em open space, três instalações sanitárias e ampla garagem para duas viaturas ligeiras e, ainda uma área destinada a área de jogos com mesa de snooker. A moradia foi projetada especialmente para tirar máximo partido do enquadramento paisagístico do local e da excelente luz natural da Costa de Prata, sendo orientada Nascente - Sul - Poente, possuindo amplas janelas e é de destacar a fantástica vista sobre a Serra D'Aires e Candeeiros, bem como sobre o vale. Pela dimensão do terreno esta propriedade é, realmente, exclusiva e plena de privacidade e tranquilidade. No espaço exterior, o terraço da piscina - que é equipada com sistema de filtragem e robot de limpeza - e a pérgula ficam no lado Nascente - Sul, permitindo usufruir de magníficos momentos de lazer no exterior, desde manhã cedo até ao entardecer. No interior, a sala de estar está dotada de recuperador de calor, toda a moradia está equipada com sistema de Ar Condicionado, a cozinha está completamente equipada, sendo as máquinas de lavar e de secar da marca Miele. Nas imediações, pode encontrar serviços de suporte às suas necessidades básicas diárias como: minimercado, restaurante, farmácia, posto de abastecimento de combustíveis e em, apenas, poucos minutos chega ao centro da cidade de Alcobaça, onde se encontram supermercados, hospital, bombeiros, mercado diário, comércio tradicional e ao longo de todo o ano uma agenda repleta de eventos culturais, salientando-se a tradicional Feira de São Bernardo que ocorre todos os anos por altura do Verão. Alcobaça é um dos pontos turísticos mais visitados e reconhecidos na zona centro do país, sendo o seu mosteiro o principal ponto de atração turística da cidade, bem como toda a tradição e história ligada à presença ancestral dos monges de Cister. Principais Áreas (aprox.) Quarto en suite 26 m2 + WC 11 m2 Quarto 15 m2 Quarto 15 m2 Sala 62 m2 Cozinha 28 m2 Garagem 70 m2 Exterior (logradouro / jardim) 5.685 m2 Destaques : Isolamento exterior - Capoto Tetos falsos com iluminação LED Ar Condicionado (quente e frio) Piso Radiante Painel Solar para aquecimento de águas sanitárias (AQS) Cozinha completamente equipada - máquinas de lavar e secar Miele Lareira com recuperador de calor Piscina com sistema de filtragem e robot de limpeza Amplo logradouro relvado Máquina de cortar relva Abrigos de Jardim Garagem para 2 viaturas - com portões de acesso automáticos Mesa de Snooker Distâncias : Alcobaça (centro) - 6 min São Martinho do Porto (praia) - 20 min Nazaré (praia/desportos/surf ondas gigantes) - 18 min Caldas da Rainha (museus, eventos, jardins) - 30 min Fátima (santuário) - 50 min Leiria (capital distrito) - 34 min Lisboa (aeroporto) - 1h25 min Venha visitar esta moradia de carácter único na região pela generosa área envolvente, privacidade, exposição solar e detalhes de construção e arquitetura. Usufrua em pleno do que só a Costa de Prata tem para oferecer: tranquilidade, luz natural, temperaturas amenas e qualidade de vida de exceção. Marque a sua visita - contacte a Casas & Properties.
AMI: 1415
Ref. Externa: 001/2025.AD
Id: 1620966
Inicie sessão para guardar este imóvel e aceder à sua lista de favoritos em qualquer dispositivo.
430.000 €
2 Quartos
3 WCs
Área bruta : 201 m²
Apresentamos uma moradia T2+2, situada no Bárrio. Este imóvel destaca-se pelo seu interior acolhedor e funcional, que conta com um espaço generoso em todas as divisões. A sala é ampla e muito iluminada, tendo caixilharia envidraçadas com vidro duplo de PVC que garantem conforto térmico. Os quartos são espaçosos e incluem uma suíte bem equipada. Para além disso, possui um armário/closet otimamente distribuído. No exterior da propriedade existem várias comodidades a destacar: um alpendre perfeito para momentos ao ar livre junto à churrasqueira, proporciona o cenário ideal para encontros familiares ou convívios. Além disso há também um anexo versátil que pode ser utilizado como garagem ou arrumação adicional conforme necessário, introduzindo assim maior utilidade neste admirável espaço rural fechado. A localização desta habitação é privilegiada, permitindo fácil acesso não apenas ao centro da cidade, mas também a um ambiente rural, com zonas sossegadas e campos verdes marcados pela presença da natureza à volta. A proximidade a serviços essenciais como bancos, farmácias, escolas, hospitais e supermercados torna este perímetro ainda mais prático. Pela sua ligação favorável à autoestrada não se fará sentir distante dos principais pontos. Este imóvel constitui uma encantadora oferta, tanto pela disposição cuidada, quanto pelos arredores harmoniosos. Oferece ambiente familiar tranquilo e propício para crianças. É impossível resistir... venha conhecer esta oportunidade única num refúgio aprazível!
AMI: 24609
Ref. Externa: 0101
Id: 1567115
Inicie sessão para guardar este imóvel e aceder à sua lista de favoritos em qualquer dispositivo.
325.000 €
3 Quartos
1 WCs
Área bruta : 688 m²
Excelente oportunidade de investimento. Esta propriedade encontra-se na tranquila povoação do Bárrio, no concelho de Alcobaça, centro oeste de Portugal, uma zona em pleno crescimento e com enorme potencial para desenvolvimento de um projeto turístico, restauração ou habitação própria. Com uma localização privilegiada na Costa de Prata, a moradia beneficia da proximidade a alguns dos destinos mais procurados da região: A 5,5 km da cidade de Alcobaça, conhecida pelo seu imponente Mosteiro de Alcobaça, classificado como Património Mundial da UNESCO, e pela tradicional doçaria e gastronomia conventual. A 8 km da Vila da Nazaré, internacionalmente famosa pelas suas ondas gigantes e autenticidade piscatória. A 15 km da Baía de São Martinho do Porto, reconhecida pela sua beleza natural e praia de águas calmas, ideal para famílias. A cerca de 1 hora de Lisboa, com excelentes acessos pela A8, o que torna esta propriedade ideal tanto para fins turísticos como residenciais. Características do Imóvel Terreno com 5.175 m². Área total de construção de 688 m², composta por casa principal, anexos e armazém. Localização sossegada, com ótima exposição solar e vista panorâmica sobre o campo e mar. Bons acessos rodoviários, garantindo deslocações rápidas às principais vilas e praias da região. Potencial e Oportunidade Pela sua dimensão e localização estratégica, esta propriedade oferece um enorme potencial para: Desenvolvimento de um projeto turístico, como turismo rural, alojamento local, quinta pedagógica ou espaço de eventos. Instalação de um projeto de restauração com vista privilegiada e ambiente tranquilo. Criação de uma residência familiar ou casa de campo com total privacidade e ligação à natureza. Situada numa das regiões mais autênticas e procuradas de Portugal, entre o mar e o campo, esta moradia representa uma oportunidade única para quem procura investir na Costa de Prata, perto de Alcobaça, Nazaré e São Martinho do Porto. Contacte-nos para mais informações ou agendar a sua visita.
AMI: 329
Ref. Externa: 1933
Id: 1463136
Inicie sessão para guardar este imóvel e aceder à sua lista de favoritos em qualquer dispositivo.
949.000 €
5 Quartos
5 WCs
Área útil : 387 m²
Vila encantadora e espetacular com vista mar e campo | Totalmente mobilada | Totalmente renovada em 2024 | Piscina infinita | Costa de Prata Localização: Próximo de Alcobaça | Entre São Martinho do Porto e Nazaré Preço: €949.000 (negociável) Área Bruta de Construção: 388 m² | Terreno: 3.960 m² ️ 5 quartos | 5 casas de banho | ✅ Moradia térrea Em ambiente tranquilo e privado, com vistas panorâmicas de mar e campo, esta moradia térrea foi totalmente renovada em 2024 com padrões premium e é vendida totalmente mobilada. Cada detalhe foi pensado para conforto, elegância e vida sem esforço—é chegar e desfrutar. ✨ Destaques do imóvel • ️ 5 quartos espaçosos (3 em suíte) • 5 casas de banho completas com acabamentos de qualidade • ️ Cozinha de luxo totalmente equipada (bancada em granito com partículas de ouro) + zona de refeições com acesso ao terraço • Lavandaria independente • ️ Sala de estar luminosa + sala dedicada a snooker/jogos • ️ Climatização eficiente: salamandra a pellets, bomba de calor e ar condicionado • Janelas com vidro duplo | Aspiração central | ☀️ Painéis solares fotovoltaicos Exterior de sonho • Piscina infinita de água salgada (11 × 5 m) • Jardins ajardinados com plantas exóticas e rega automática • Cozinha exterior com BBQ e forno de pizza • ️ Vários terraços para relaxar e refeições ao ar livre • Deck elevado com vista para área verde natural • Acesso em calçada portuguesa com estacionamento para várias viaturas Localização estratégica (tempos de viagem aprox.) • Alcobaça – 5 min | São Martinho do Porto – 12 min | Nazaré – 15 min • Óbidos – 25 min | Caldas da Rainha – 25 min | Leiria – 30 min • Fátima – 35 min | Lisboa & Aeroporto – 60 min Ideal para • Casa de férias de luxo • Residência permanente confortável • Alojamento Local / investimento de arrendamento com alta procura Apoio completo Trabalhamos com profissionais de confiança e experiência para entregar a sua casa com cuidado e excelência. Acompanhamos os nossos clientes de A a Z em todo o processo de compra—do financiamento e documentação à mudança, antes, durante e após a aquisição. O seu conforto e felicidade são a nossa prioridade. Falamos: Português | Inglês | Holandês | Espanhol | Francês | Italiano | Russo | Ucraniano. O seu conforto e felicidade são a nossa prioridade. Quer visitar a sua futura casa ou obter mais detalhes? Contacte-nos hoje e descubra como pode ser a sua vida na sua nova moradia na Costa de Prata! #ref: 146600
AMI: 11220
Ref. Externa: 146600
Id: 1301876
Inicie sessão para guardar este imóvel e aceder à sua lista de favoritos em qualquer dispositivo.
100.000 €
3 Quartos
1 WCs
Área bruta : 97 m²
Pequena moradia com jardim e terreno de 1900m2 entre Alfeizerão e Alcobaça. Contem actualmente um inquilino de 92 anos. Esta moradia traçada dos anos 80 é composta apenas por um piso e contém um pequeno logradouro de 187m2. A necessitar de obras de modernização, mas com imenso potencial, com 3 quartos, mas com possibilidade de remodelar e alterar as suas divisões de modo a criar espaços mais amplos e harmoniosos. Composto por 2 artigos (urbano + rústico). A sua proximidade com Alcobaça proporciona um fácil acesso a todos os serviços e comércio local, assim como de superfícies comerciais, acesso ao nó da A8 e a possibilidade de visitar o Mosteiro de Alcobaça sempre que pretender. As Escolas apenas a 10minutos também são um mais valia na aquisição deste imóvel, assim como os transportes públicos que facilitam o acesso e deslocação ao centro da cidade. Marque a sua visita e venha conhecer a sua próxima casa!
AMI: 8044
Ref. Externa: CAL-216713
Id: 1042953
Inicie sessão para guardar este imóvel e aceder à sua lista de favoritos em qualquer dispositivo.
1.150.000 €
3 Quartos
3 WCs
Área bruta : 254 m²
Moradia T3 para venda em Alcobaça. Moradia de construção contemporânea e acabamentos de luxo, implantada em terreno com 8.100m2, composta por: - 3 quartos - 2 casas de banho - sala de estar e jantar - cozinha equipada Conta ainda com piscina e garagem. O imóvel está localizado em zona muito tranquila, garantindo toda a tranquilidade e qualidade de vida. Marcamos visita? ------- Porquê comprar com a UNU Rede Imobiliária? Porque a UNU tem para lhe oferecer o melhor serviço no momento de vender, comprar ou arrendar casa! Integridade, credibilidade e profissionalismo As agências imobiliárias UNU pautam o seu trabalho por estas 3 premissas. Desta forma, asseguramos a todos os nossos clientes um serviço de excelência, altamente personalizado. Acreditamos que o momento de comprar casa tem de ser um momento prazeroso e por isso estamos aqui para lhe oferecer o melhor serviço! Consultores Imobiliários profissionais e experientes A UNU Rede Imobiliária, acredita que é ao investir na formação dos seus consultores imobiliários que consegue prestar um serviço de excelência. Por isso, proporcionamos a melhor formação e os sistemas mais sofisticados no mercado para que os nossos consultores imobiliários se concentrem no que é mais importante: os nossos Clientes! Vasta carteira de imóveis As agências imobiliárias UNU têm a vantagem de ter uma visão única sobre o mercado imobiliário. Todos os dias novas oportunidades de negócio para vender, comprar ou arrendar casa são registadas no portal imobiliário UNU. Os nossos consultores imobiliários realizam diversos estudos de mercado todos os meses, com um conhecimento profundo do mercado imobiliário onde operam, para o/a poder aconselhar. Partilha Na UNU Rede Imobiliária trabalhamos em regime de partilha por isso, ao trabalhar connosco, conta com a garantia de que procuraremos em toda a oferta disponível mercado o seu imóvel ideal, com todo o acompanhamento da nossa parte. 100% nacional A UNU é uma rede imobiliária 100% nacional que marca a diferença no atrativo mercado imobiliário em Portugal, e cuja posição no mercado é conquistada diariamente, pela sua diferenciação de serviço, compromisso com os clientes e cultura marcadamente nacional. UNU Rede Imobiliária O melhor serviço imobiliário para quem quer comprar casa, vender casa ou arrendar casa.
AMI: 14396
Ref. Externa: UNU.I.2269.14396
Id: 925122
Inicie sessão para guardar este imóvel e aceder à sua lista de favoritos em qualquer dispositivo.
Estes agentes são especialistas nesta zona:
Inicie sessão para ocultar este imóvel das suas pesquisas e manter a sua lista de resultados organizada.
© Copyright 2023 | CASACERTA. All rights reserved
Guardar favoritos
Este imóvel foi guardados nos seus favoritos com sucesso.
Para poder guardar pesquisa deverá ter a sua sessão iniciada.
Caso não tenha uma conta, deverá criar uma.
A sua pesquisa foi guardada com sucesso!
Este site utiliza cookies. Ao navegar no site estará a consentir a sua utilização.
Para mais informações sobre os cookies pode consultar a
política de privacidade.