Lista
Comprar
Arrendar
2 Quartos
2 WCs
Área bruta : 182 m²
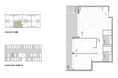
Apartamento T2 (+1), localizado no rés do chão, com três frentes solares e varandas, inserido num edifício de arquitetura moderna, em Fânzeres, Gondomar. A fração apresenta uma distribuição funcional, composta por uma suite, um quarto e um escritório com roupeiros embutidos e duas casas de banho no total. As varandas prolongam as áreas interiores, garantindo boa exposição solar e luminosidade natural. O apartamento dispõe de cozinha totalmente equipada, ar condicionado, carpintarias lacadas e acabamentos de qualidade, selecionados de acordo com uma linguagem contemporânea. Dispõe de um lugar de garagem com carregamento para viatura elétrica. Inserido numa zona residencial calma, beneficia de bons acessos rodoviários, proximidade a comércio e serviços, bem como vistas amplas. Certificação Energética: A+ Sobre o empreendimento: O Royal 2 é composto por dois edifícios de cinco pisos, num total de 24 apartamentos de tipologias T2 e T3, destacando-se pela arquitetura contemporânea e pela qualidade construtiva, inserido num enquadramento urbano consolidado e tranquilo. Equipamentos Eletrodomesticos: placa, forno e exaustor da marca Teka ou similar. Videoporteiro Legrand CLASSE 100X16E da BTICINO, posto interno video conectado por wi-fi integrada. Fornecimento e instalacao de iluminacao interior. Bomba de calor AQS para aquecimento das aguas sanitarias. Fornecimento e montagem de todas as loucas e equipamentos sanitarios, nomeadamente sanitas suspensas Sanitana ou similar. Ar-condicionado Fornecimento e instalacao de ar-condicionado Gree ou similar nas salas e quartos. Carpintarias Fornecimento e aplicacao desencontrada de piso laminado Basic 400 (AC5) da Parador em acabamento a definir, classe 23, alta resistencia para habitacao (15 anos de garantia),, sistema click Safe-Lock PRO, sem juntas. Portas interiores de batente ate ao teto em melamina ou termolaminada branca mate ou carvalho Rodapes interiores em MDF lacadas a tinta de acabamento mate ou carvalho. Armarios Roupeiros e tecnicos no interior das habitacoes com frentes e remates visiveis em melamina branca mate ou carvalho. Gavetas com corredicas de extracao total, e varao de aco inox, ferragens, acessorios, puxadores, dobradicas em aco inox HETICH, acessorios HETICH, ou similar. Conjunto de Armarios de Cozinha e/ou lavandaria com frentes e ilhargas visiveis em melamina branca de 19mm, com interiores, prateleiras e gavetas em MDF LUXE branco ou cinza, portas e gavetas com estrutura de prumos e batente e fecho retardado. Bancada em Silestone branco e=3cm. Inclui balde do lixo. Lava-louca em inox 50×50 cm de encastrar, c/ torneira misturadora Omosis (61480) da Clever, ou similar. Serralharias Portao de Garagem motorizado, seccionado tipo Rubi Titan da Valportas ou similar, com paineis isolados de correr vertical com acabamento lacado areado cor exterior RAL 7024 e interior branco, incluindo automatismo de teto OMNI II 600Nm ou similar com comandos remotos. Janelas fixas e grelhas de ventilacao permanente em aluminio com corte termico e acabamento lacado texturado mate de cor RAL 7016. Caixilharias exteriores de aluminio de rutura termica, com acabamento lacado texturado mate de cor RAL 7016, fixas, de correr, de batente, basculantes e oscilobatentes, da Alusys ou similar. Vidros duplos laminados Guardian Sun da Guardian Glass e camara de gas de 16 mm. Guardas de varanda e terracos indicados em projeto com sistema guarda View Cristal Plus Cortizo com fixacao lateral oculta por granito de revestimento da fachada ventilada com vidro de 10mm, conforme pormenor. PRAZOS Conclusão da obra: Dezembro de 2026 Para mais informações a nossa equipa encontra-se ao dispor.
AMI: 14355
Ref. Externa: MM102P-A1/26FAN/SE(1)
Id: 1595583
Inicie sessão para guardar este imóvel e aceder à sua lista de favoritos em qualquer dispositivo.
3 Quartos
3 WCs
Área bruta : 450 m²
MORADIA T3 com 4 frentes, garagem fechada e logradouro, em Fânzeres, Gondomar Localização e envolvente: Localização em zona habitacional calma, na Rua de Manariz 763, em Fânzeres, Gondomar. Fácil acesso/distribuição automóvel e pedonal. Na envolvente existe oferta de serviços (cafés, padarias, supermercados, escolas...). Principais características: - 3 pisos - 4 frentes - possibilidade de ser transformado em tipologia superior - garagem fechada - prédio misto (1 artigo urbano + 1 artigo rústico) - área de implantação do edifício: 150,00m2 - poderá ser utilizado o r/c + 1.º andar para habitação e a cave para garagem - área total dos artigos: 2592,00m2 (segundo registo no BUPi) Cave (150,00m2): - acesso ao exterior pela fachada tardoz - área ampla com iluminação e ventilação natural - escadaria de acesso ao r/c Rés-do-chão (150,00m2): - átrio de entrada - pré-instalação de cozinha - instalação sanitária - quarto - área ampla para acesso de viaturas (garagem) 4 carros - escadarias de acesso à cave e 1.º andar - acesso ao exterior pelas fachadas frontal e tardoz 1.º andar (150,00m2): - átrio de entrada com acesso direto pelo exterior - sala comum com acesso a uma varanda - varanda - cozinha com acesso a uma varanda - varanda - instalação sanitária - átrio de distribuição da zona privativa dos quartos - quarto com armário embutido - quarto com armário embutido - suite com armário embutido e instalação sanitária - escadaria de acesso ao r/c Outras características e valências: - caixilharias com vidros duplos - videoporteiro wifi - aquecimento de águas bomba de calor - arrefecimento (1.º andar) por bomba de calor Pontos de interesse: - a 300m do Parque Urbano de Fânzeres - a 950m de um jardim de infância - a 1,1km de uma farmácia - a 1,5km do Mercadona - a 1,5km do Colégio Paulo VI - a 1,7km do Pingo Doce - a 1,7km do Continente - a 1,8km de uma abastecedora de combustíveis - a 1,9km da Câmara Municipal de Gondomar - a 2,3km do ALDI - a 2,5km da Escola Secundária de Gondomar - a 2,9km do Multiusos de Gondomar - a 3,2km do Shopping Parque Nascente Transportes e acessos: - a 1,3km do acesso à A43 - a 1,5km da N209 - a 1,9km do metro (Estação – Fânzeres) - a 3,2km da N12 - a 4,9km do acesso à VCI - a 5,9km da Ponte do Freixo Áreas do artigo urbano (de acordo com as Caderneta Predial Urbana): - Área total do terreno: 150,00 m2 - Área de implantação do edifício: 150,00 m2 - Área bruta de construção: 450,00 m2 - Área bruta dependente: 300,00 m2 - Área bruta privativa: 150, 00 m2 Área do artigo rústico (de acordo com as Caderneta Predial Rústica): - Área total do terreno: 2358,00 m2 Este imóvel está parcialmente classificado no PDM – Plano Diretor Municipal de Gondomar como “Espaços Centrais” e “Espaços residenciais Tipo II”. Resumo: Espaços Centrais (apróx. 1000m2): - índice de utilização: 1,4 - índice de impermeabilização: 0,8 Espaços residenciais Tipo II (apróx. 1500m2): - índice de utilização: 0,8 - altura máxima da fachada: 12 metros ou 3 pisos - índice de impermeabilização: 0,8 (...) SECÇÃO II Espaços centrais Artigo 51.º Identificação e usos 1 — Os espaços centrais correspondem aos espaços onde predominam ou se pretenda venham a predominar as funções direcionais dos principais núcleos urbanos localizados na UP 1 — Território do Baixo Concelho. 2 — Nestas áreas pretende-se uma maior qualificação e disponibilização de espaço público e o incremento de funções comerciais, de serviços, de turismo e a instalação de equipamentos urbanos, sem prejuízo da indispensável função habitacional e de outras utilizações ou ocupações compatíveis com o uso dominante. Artigo 52.º Regime de edificabilidade 1 — No solo urbanizado e na ampliação ou na construção de novos edifícios aplicam-se as seguintes regras: a) Em frente urbana consolidada, dá-se cumprimento ao plano de vedação ou de fachada dominante e à moda da altura da fachada e da forma de relação do edifício com o espaço público na frente urbana em que o prédio se integra; b) Na ausência de frente urbana consolidada, os parâmetros de edificabilidade são os seguintes: i) O índice de utilização não pode ser superior a 1,4, exceto nas situações de cumprimento de uma altura de fachada devidamente estabelecida para a frente urbana respetiva; ii) O índice de impermeabilização do solo não pode ser superior a 80 %. 2 — Excetuam-se do número anterior as situações de colmatação, nas quais as novas construções ou ampliações de edifícios existentes respeitam os planos de vedação ou de fachada dos edifícios contíguos e estabelecem a articulação volumétrica desses mesmos edifícios. 3 — No solo urbanizável, o regime de edificabilidade é o estabelecido na alínea b) do n.º 1 do presente artigo, salvo quando integrado em UOPG e quando no conteúdo destas, em anexo ao presente regulamento, se dispuser sobre tal. SECÇÃO III Espaços residenciais Artigo 53.º Identificação e usos 1 — Nestes espaços integram-se as áreas que em função das tipologias e morfologias dominantes se destinam preferencialmente a funções residenciais, complementadas com usos comerciais, de serviços, turísticos e de equipamentos, incluindo áreas verdes de utilização coletiva públicas ou privadas, admitindo-se usos industriais, de armazenagem ou outros desde que compatíveis com a função habitacional nos termos do disposto no artigo 20.º 2 — Os espaços residenciais encontram-se divididos, em função das tipologias edificatórias e das densidades pretendidas, nas seguintes subcategorias: a) Espaços residenciais Tipo I; b) Espaços residenciais Tipo II. Artigo 54.º Regime de edificabilidade 1 — No solo urbanizado e na ampliação ou na construção de novos edifícios, aplicam-se as seguintes regras: a) Em frente urbana consolidada, dá-se cumprimento ao plano de vedação ou de fachada dominante e à moda da altura da fachada e da forma de relação do edifício com o espaço público na frente urbana em que o prédio se integra; b) Na ausência de frente urbana consolidada, os parâmetros de edificabilidade são os seguintes: (...) ii) Tipo II — O índice de utilização máximo é de 0,8 e a altura da fachada não pode ser superior a 12 metros ou 3 pisos, exceto nas situações de cumprimento de uma altura de fachada devidamente estabelecida para a frente urbana respetiva e para os casos a que se refere o n.º 4 do presente artigo; c) Em ambas os casos da alínea anterior, o índice de impermeabilização do solo não pode ser superior a 80 %. 2 — No solo urbanizável, os parâmetros de edificabilidade são os estabelecidos nas alíneas b) e c) do número anterior ou nas UOPG respetivas quando for o caso. 3 — Excetuam-se dos números anteriores as situações de colmatação, nas quais as novas construções ou ampliações de edifícios existentes respeitam os planos de vedação ou de fachada dos edifícios contíguos e estabelecem a articulação volumétrica desses mesmos edifícios; 4 — Nos espaços residenciais, os equipamentos privados de índole social não integrados em operações de loteamento e os estabelecimentos hoteleiros poderão atingir um iu de 1,4 e ter uma altura de fachada e um número de pisos superiores aos definidos desde que, cumulativamente: a) Garantam a correta integração paisagística e inserção urbana; b) O empreendimento integre espaços destinados a conferências, reuniões e exposições com área não inferior a 500 m2, no caso dos estabelecimentos hoteleiros. (...) In Regulamento do Plano Diretor Municipal de Gondomar (Aviso n.º 3337/2018 - Alteração do Plano Diretor Municipal de Gondomar), Diário da República, 2.ª série — N.º 51 — 13 de março de 2018, pág. 7581 Nota: para maior facilidade na identificação deste imóvel, por favor, refira o respectivo ID. Em caso de agendamento de visita, faça-se acompanhar de um documento de identificação. Muito obrigado! ***** ;ID RE/MAX: 126401038-255
AMI: 7772
Ref. Externa: 126401038-255
Id: 1593268
Inicie sessão para guardar este imóvel e aceder à sua lista de favoritos em qualquer dispositivo.
3 Quartos
2 WCs
Área bruta : 175 m²
Moradia T3 com + uma casa T1 com Entradas Independentes –Ideal para Habitação Própria ou Investimento. Excelente oportunidade para quem procura um imóvel versátil,com potencial para habitação própria e simultaneamente para rentabilização. Este imóvel está registado como propriedade plena e é o único no quarteirão com um excelente terraço e para aproveitamento da área abaixo que confronta com outra rua paralela à rua do imóvel, foi construído um T1 que consegue ver nas fotografias e no vídeo. Alertamos que esta casa T1 não consta nos registos, nem está mencionada na área do anúncio, apesar do imóvel ter sido adquirido através de recurso de financiamento bancário no estado atual. Esta incrível moradia está organizada da seguinte forma: Piso Superior – Casa T3 (dois pisos) Sala com boas áreas Cozinha 3 quartos ( um dos quartos com terraço) 2 casas de banho Um espaço pensado para o conforto de uma família, comdivisões bem distribuídas e funcionais. Piso Inferior – Casa T1 Sala e cozinha em conceito open space 1 quarto 1 casa de banho Garagem privativa Ideal para arrendamento, alojamento de familiares ou paracriar uma fonte de rendimento adicional com total independência da habitaçãoprincipal. O imóvel dispõe ainda de espaço exterior, proporcionando umazona adicional para lazer e convívio ao ar livre. Terraço amplo com espaço para barbecue Espaço para arrumação Estas duas casas têm as seguintes características:- Sala do T3 com recuperador de calor - Ambas as cozinhas equipadas e modernizadas - Quartos com armários embutidos - Um dos quartos do T3 tem uma mezzanine com um arrumo extra. Entre outras características e espaços únicos que conseguirá ver e sentir numa visita ao imóvel. Esta é sem dúvida uma solução habitacional prática e flexível, perfeita paraquem valoriza a possibilidade de viver e investir no mesmo imóvel. Vai deixar escapar esta oportunidade? ;ID RE/MAX: 120931606-49
AMI: 7772
Ref. Externa: 120931606-49
Id: 1593231
Inicie sessão para guardar este imóvel e aceder à sua lista de favoritos em qualquer dispositivo.
3 Quartos
4 WCs
Área bruta : 268 m²
Moradias das Regadas em São Pedro da Cova é um empreendimento que oferece Modernismo e Charme. Localizado próximo de escolas, comércio e vários serviços, este complexo residencial é composto por 20 moradias de tipologia T3, com 2 e 3 frentes. A construção apresenta uma qualidade elevada, com áreas generosas e excelente exposição solar. Além disso, as moradias possuem isolamento térmico (Capoto) e acústico, portas e janelas com vidro duplo, estores de alumínio elétricos no exterior e grandes vãos envidraçados. No interior, as divisórias são em gesso projetado, e há instalação de painéis solares para aquecimento de água. Os tetos falsos estão presentes em toda a casa, com exceção do teto da cave, e há projetores de LEDs em todos os ambientes, exceto na garagem. A iluminação indireta está presente na sala e nos quartos, e há um recuperador de calor na sala. A casa conta com tomadas de TV na sala, cozinha e quartos, além da instalação de Dolby Surround nesses ambientes. Também possui sistema de alarme e ar condicionado. A suite possui um armário closet, e os dois quartos possuem armários roupeiros lacados a branco, com gavetas, prateleiras e varão. Os pavimentos dos quartos, sala, casa de banho de serviço e halls são em soalho flutuante AC5 - Carvalho. O imóvel também possui sistema de aspiração central e garagem para 2 carros com portões automáticos. A porta corta-fogo da garagem para o hall interior é um diferencial de segurança. A escada interior é em betão armado revestida a soalho flutuante AC5 - Carvalho. A cozinha conta com móveis em MDF Hidrofogo Lacado a Branco, com ilha e está equipada com despenseiro. O balcão é em Silestone, e os eletrodomésticos são da marca Siemens (forno, micro-ondas, placa vitro cerâmica e máquina de lavar louça). O exaustor é da marca Cata, e o frigorífico é Side by Side da marca Beko. A cozinha também possui iluminação e espaço para resíduos recicláveis, e o pavimento é em grés porcelanato. As paredes são pintadas com tinta lavável, e as casas de banho possuem revestimentos em ladrilho retificado e projetores de LED embutidos. Os armários de lavatório são suspensos e lacados a branco brilhante, as louças sanitárias são suspensas, e há resguardos de base de chuveiro. A suite está equipada com coluna de hidromassagem, e a casa de banho de apoio aos quartos possui rampa de chuveiro. A zona exterior apresenta fachada em Capoto, caixilharia em alumínio com corte térmico, portas e janelas com vidro duplo e estores de alumínio elétricos. O imóvel também possui vídeo porteiro com ecrã a cores. Não perca a oportunidade de viver numa zona calma com toda a comodidade que esta Moradia lhe proporciona... Marque já a sua Visita... Tratamos gratuitamente de todo o processo compra, desde o pedido de financiamento até ao acompanhamento no ato da escritura. Serviços: - Análises de financiamentos; - Simulações de crédito habitação; - Simulações de seguros de vida e multirriscos; - Simulações de impostos e despesas com escritura; - Estudos de mercado / avaliação de imóveis; Estilo Intemporal Imobiliária "Focados no cliente, orientados a resultados"
AMI: 14561
Ref. Externa: 1666
Id: 1589468
Inicie sessão para guardar este imóvel e aceder à sua lista de favoritos em qualquer dispositivo.
3 Quartos
1 WCs
Área bruta : 116 m²
Apartamento T3 em Fânzeres, totalmente renovado, com áreas generosas e uma organização funcional que privilegia conforto, luminosidade e vivência diária.. . Com 137 m2 de área total, este imóvel apresenta divisões amplas e bem proporcionadas, pensadas para responder às exigências de uma vida moderna, sem comprometer a fluidez entre os espaços. A intervenção recente confere-lhe uma imagem atual e cuidada, permitindo uma ocupação imediata, sem necessidade de obras.. . A zona social desenvolve-se em torno de uma sala espaçosa e luminosa, com uma varanda contínua em ligação direta com a cozinha, que está renovada e totalmente equipada. Esta conexão reforça a entrada de luz natural e cria uma agradável extensão exterior, ideal para o dia a dia.. . Na área privada, o apartamento dispõe de três quartos, um dos quais com varanda privativa, oferecendo maior conforto e versatilidade. Conta ainda com duas casas de banho, uma completa e outra de apoio, garantindo funcionalidade para o uso familiar. Os vários espaços de arrumação integrados reforçam a praticidade do imóvel.. . Inclui um lugar de garagem com acesso independente, um elemento diferenciador em termos de comodidade e segurança. Localizado numa zona residencial consolidada de Fânzeres, beneficia da proximidade a transportes públicos, comércio e serviços, mantendo uma ligação rápida aos principais acessos e ao centro urbano.. . Uma solução equilibrada para quem procura um apartamento moderno, bem localizado e com potencial de valorização, num contexto residencial tranquilo.
AMI: 25679
Ref. Externa: N0073/12858
Id: 1589220
Inicie sessão para guardar este imóvel e aceder à sua lista de favoritos em qualquer dispositivo.
3 Quartos
1 WCs
Área bruta : 116 m²
Apartamento T3 em Fânzeres, totalmente renovado, com áreas generosas e uma organização funcional que privilegia conforto, luminosidade e vivência diária.. . Com 137 m2 de área total, este imóvel apresenta divisões amplas e bem proporcionadas, pensadas para responder às exigências de uma vida moderna, sem comprometer a fluidez entre os espaços. A intervenção recente confere-lhe uma imagem atual e cuidada, permitindo uma ocupação imediata, sem necessidade de obras.. . A zona social desenvolve-se em torno de uma sala espaçosa e luminosa, com uma varanda contínua em ligação direta com a cozinha, que está renovada e totalmente equipada. Esta conexão reforça a entrada de luz natural e cria uma agradável extensão exterior, ideal para o dia a dia.. . Na área privada, o apartamento dispõe de três quartos, um dos quais com varanda privativa, oferecendo maior conforto e versatilidade. Conta ainda com duas casas de banho, uma completa e outra de apoio, garantindo funcionalidade para o uso familiar. Os vários espaços de arrumação integrados reforçam a praticidade do imóvel.. . Inclui um lugar de garagem com acesso independente, um elemento diferenciador em termos de comodidade e segurança. Localizado numa zona residencial consolidada de Fânzeres, beneficia da proximidade a transportes públicos, comércio e serviços, mantendo uma ligação rápida aos principais acessos e ao centro urbano.. . Uma solução equilibrada para quem procura um apartamento moderno, bem localizado e com potencial de valorização, num contexto residencial tranquilo.
AMI: 25679
Ref. Externa: N0073/12858
Id: 1589212
Inicie sessão para guardar este imóvel e aceder à sua lista de favoritos em qualquer dispositivo.
2 Quartos
1 WCs
Área bruta : 103 m²
Apresentamos este agradável apartamento T2 com 103 m² de área total, localizado na Rua Arlindo Vieira de Sá, nº 313, em Fânzeres, numa zona residencial tranquila e muito bem servida de comércio e serviços. Situado no 2.º andar de um edifício organizado, o imóvel é composto por: Hall de entrada Sala comum ampla e luminosa Dois quartos confortáveis Instalação sanitária Cozinha funcional Lugar de garagem, garantindo comodidade e segurança A localização é um dos grandes destaques deste apartamento. Encontra-se próximo de comércio local, supermercados, farmácias, bancos, restaurantes e outros serviços essenciais, bem como de escolas e equipamentos educativos, o que o torna ideal para famílias. Em termos de acessos rodoviários, o imóvel beneficia de boas ligações às principais vias, com rápido acesso à A43, IC29 e VCI, permitindo deslocações fáceis para o Porto, Gondomar e zonas envolventes. A zona é ainda bem servida por transportes públicos, com paragens de autocarro nas proximidades, facilitando a mobilidade diária sem necessidade de viatura própria. Uma excelente oportunidade para habitação própria ou investimento, combinando área generosa, boa localização e facilidade de acessos.
AMI: 8645
Ref. Externa: GON016-01280
Id: 1587634
Inicie sessão para guardar este imóvel e aceder à sua lista de favoritos em qualquer dispositivo.
3 Quartos
5 WCs
Área útil : 184 m²
NOVA CONSTRUÇÃO em São Pedro da Cova, Gondomar! Moradias T3 de 2 frentes Espaço, conforto e privacidade para a sua família! Localização perfeita: Fora da confusão, mas perto de tudo! Bons acessos para uma mobilidade fácil e rápida. Destaques: Arquitetura moderna e acabamentos de qualidade Áreas amplas e bem distribuídas Excelente exposição solar Ideal para habitação própria Viva com tranquilidade sem abdicar da proximidade a comércio, serviços e transportes. Agende já a sua visita e venha conhecer o seu novo lar! Notas: Garantimos um acompanhamento total e profissional durante todo o seu processo de aquisição até à escritura e após a realização da mesma. Tratamos do seu processo de financiamento de Crédito à Habitação, garantindo as melhores propostas do mercado, através do nosso parceiro Intermediário de Crédito devidamente autorizado pelo Banco de Portugal. Mediação Imobiliária - Invest 351 Intermediação de operações de compra e venda de imóveis no mercado nacional e internacional. Fazemos da discrição, confidencialidade e segurança as nossas maiores valências na mediação imobiliária. Temos acesso ao mercado nacional, mas também a muitos investidores internacionais que procuram Portugal para investir. Invest in your dreams, #Invest351
AMI: 19960
Ref. Externa: 1132 - Moradia T3 NOVA em Gondomar
Id: 1587416
Inicie sessão para guardar este imóvel e aceder à sua lista de favoritos em qualquer dispositivo.
3 Quartos
5 WCs
Área útil : 274 m²
NOVA CONSTRUÇÃO em São Pedro da Cova, Gondomar! Moradias T3 de 3 frentes Espaço, conforto e privacidade para a sua família! Localização perfeita: Fora da confusão, mas perto de tudo! Bons acessos para uma mobilidade fácil e rápida. Destaques: Arquitetura moderna e acabamentos de qualidade Áreas amplas e bem distribuídas Excelente exposição solar Ideal para habitação própria Viva com tranquilidade sem abdicar da proximidade a comércio, serviços e transportes. Agende já a sua visita e venha conhecer o seu novo lar! Notas: Garantimos um acompanhamento total e profissional durante todo o seu processo de aquisição até à escritura e após a realização da mesma. Tratamos do seu processo de financiamento de Crédito à Habitação, garantindo as melhores propostas do mercado, através do nosso parceiro Intermediário de Crédito devidamente autorizado pelo Banco de Portugal. Mediação Imobiliária - Invest 351 Intermediação de operações de compra e venda de imóveis no mercado nacional e internacional. Fazemos da discrição, confidencialidade e segurança as nossas maiores valências na mediação imobiliária. Temos acesso ao mercado nacional, mas também a muitos investidores internacionais que procuram Portugal para investir. Invest in your dreams, #Invest351
AMI: 19960
Ref. Externa: 1131 - Moradia T3 NOVA em Gondomar
Id: 1587422
Inicie sessão para guardar este imóvel e aceder à sua lista de favoritos em qualquer dispositivo.
2 Quartos
1 WCs
Área bruta : 103 m²
Apresento-lhe este moderno apartamento T2 em São Pedro da Cova remodelado, situado perto da Bicafé . As visitas irão se realizar no dia 7 de fevereiro, sobre o regime de propostas múltiplas, apresentadas à carta fechada, com abertura agendada para o final do próprio dia. ✨ Principais Características ? Áreas Interiores - Sala ampla em open space; - Cozinha totalmente equipada com placa, forno, exaustor e frigorífico; - Lavandaria com máquina de lavar roupa; - Cortinas de calha incluídas nos quartos e na sala; - Prédio com elevador; - Aquecimento das águas por esquentador. ?️ Quartos - Dois quartos com boa luminosidade e conforto; - Roupeiro embutido no corredor, e outro novo no 2º quarto. ? Estacionamento & Arrumação - Lugar de garagem ?; - Arrumos. ? Localização - Situado em São Pedro da Cova, a poucos passos da Bicafé e do Continente; - Zona residencial com fácil acesso a comércio, serviços e transportes. Uma excelente oportunidade para quem procura um lar moderno e prático, numa localização conveniente. ? Agende já a sua visita e faça a sua proposta! A CASA DA PORTELA Imobiliária – É uma empresa de mediação imobiliária criada em 2013 e possui um sólido conhecimento acumulado desde 1999, sobre o mercado imobiliário, mantendo-se atenta às suas tendências e evolução. A empresa começou por se centrar na região do Grande Porto, conseguindo, desde o início, um grande volume de transações. O sucesso do modelo de negócio fez com que a marca Casa da Portela Imobiliária chegasse, em 2018 ao Marco de Canaveses e em 2022 a Vila Nova de Famalicão. A Casa da Portela pretende valorizar o trabalho dos consultores e prestar um serviço de excelência aos seus clientes proporcionando um serviço de qualidade e tranquilidade de forma a realizar bons negócios, garantindo a satisfação dos nossos clientes e parceiros. Para atingir esse propósito, dispomos de uma equipa multidisciplinar de profissionais qualificados com vasta experiência em mediação imobiliária que nos permite apresentar e sugerir as melhores alternativas para os seus objetivos de venda, arrendamento ou investimento imobiliário. Possuímos uma rede de contatos privilegiada que nos permite potenciar a divulgação, a gestão e a concretização do negócio do seu imóvel em vários formatos. 3 Pilares fundamentais da Casa da Portela: Missão A nossa missão é orientar os nossos objetivos excecionais (financeiros, humanos e sociais) na nossa organização e uni-los aos nossos não menos excecionais clientes, atendendo sempre às suas necessidades, desejos e expectativas. A Casa da Portela imobiliária nasceu para que fosse possível prestar um acompanhamento e apoio contínuos, explicação e esclarecimento de dúvidas, sobre todo o processo de compra, venda ou arrendamento de imóveis em Portugal. A concretização de tudo isto faz com que a nossa máxima ambição seja sermos os melhores no mercado imobiliário. Visão A nossa visão é sermos a empresa de referência no mercado imobiliário, assim como sermos reconhecidos como a melhor opção para os nossos clientes. Para isso, fazemos sempre por manter um espírito inovador e de liderança que nos levará ao reconhecimento pela nossa excelência no mercado. Valores Os nossos valores são sempre o conjunto das nossas atitudes e crenças, que envolvem todas as pessoas da organização, para que, em uníssono, consigamos atingir os resultados de excelência a que nos propomos sempre que são baseados na Qualidade, Profissionalismo, Responsabilidade, Respeito e Inovação.
AMI: 10340
Ref. Externa: 1120091
Id: 1587285
Inicie sessão para guardar este imóvel e aceder à sua lista de favoritos em qualquer dispositivo.
3 Quartos
2 WCs
Área bruta : 138 m²
SZH142 Apartamento remodelado a de tipologia T3 com varanda e lugar de estacionamento, à venda, localizada em Fânzeres, na zona da igreja de Fânzeres. Totalmente remodelado, com acabamentos modernos e pensados ao detalhe. Destaca-se a luminosidade, a arrumação e a varanda. Apartamento inserido no 5º piso em prédio com 2 elevadores Apartamento constituido por: - Sala ampla com acesso a varanda - 3 Quartos, sendo um deles com varanda - 2 Wc's: um completo com base de duche e um wc de serviço; - Cozinha renovada, equipada com eletrodomésticos novos e acesso a varanda - Dispensa na cozinha - Varanda comum a sala e cozinha - Lugar de estacionamento ACABAMENTOS - Cozinha com bancada em pedra de quartzo branco - Cozinha equipada com electrodomésticos Teka: Placa vitrocerâmica, Forno, Exaustor, Micro-ondas, Máquina de Lavar Louça - Pavimento vinilico - Carpintarias lacadas a branco LOCALIZAÇÃO Ponto de Referência: Igreja de Fânzeres Caso pretenda mais informações, estamos disponíveis para prestar esclarecimentos. Se pretender obter propostas de financiamento, trabalhamos com um intermediário de crédito, temos parcerias com as principais instituições bancárias e seguramente poderemos apresentar propostas bastante competitivas. _______________________________ O 'know-how' adquirido ao longo dos anos permite à Lounge Real Estate oferecer aos seus Clientes, um serviço de Mediação Imobiliária global, personalizado e de confiança, com base num conhecimento aprofundado do mercado imobiliário atual e direcionado para o Investidor e segmento Premium. Encontramos a solução certa para quem procura comprar ou investir e somos o parceiro ideal para quem pretende vender. Oferecemos um Serviço Personalizado e de Confiança adaptável às Suas Necessidades.
AMI: 19065
Ref. Externa: SZH142
Id: 1587152
Inicie sessão para guardar este imóvel e aceder à sua lista de favoritos em qualquer dispositivo.
3 Quartos
3 WCs
Área útil : 184 m²
Moradia T3 para vendaPlanta disponivel para Consulta **Moradias Modernas em S. Cosme, Gondomar** Prevê-se a finalização da obra para o final de 2026 ou inícios de 2027, apresentando-se uma oportunidade única para adquirir moradias de alto padrão na Rua da Cal, nº 1367 e 1375. Estas moradias com três frentes são construídas por um construtor de confiança, destacando-se pela qualidade dos acabamentos. **Detalhes do Imóvel:** - Área do Lote: 195,3 m²- Área Bruta de Construção: 269,50 m²- Área Exterior: 90,5 m² A construção é marcada por grandes fachadas envidraçadas, oferecendo ótima luminosidade natural e um ambiente acolhedor. **Características da Moradia T3 com 3 Frentes:** - Cave: Salão de 38 m², wc e lavandaria.- R/C: Hall de entrada, sala e cozinha em openspace, wc de serviço, garagem para 2 carros, terraço e jardim.- Piso 1: Três suítes com varanda, sendo uma equipada com closet. **Características Relevantes:** - Isolamento Térmico e Acústico: Capoto.- Portas e Janelas: Vidro duplo; estores de alumínio elétricos.- Grandes Vãos Envidraçados: Proporcionando iluminação abundante.- Divisórias Interiores: Gesso projetado.- Aquecimento: Instalação de bomba de calor para aquecimento de água.- Sistema de Iluminação: Projetores de LED; luz indireta na sala e quartos.- Acessibilidade e Segurança: Instalação de alarme; pré-instalação de ar condicionado; garagem com portões automáticos.- Acabamentos de Qualidade: Tectos falsos na casa (exceto na cave); armários roupeiros em MDF lacados a creme. **Cozinha:** - Móveis: MDF hidrofogo lacado a creme, com ilha e despenseiro.- Balcão: Em Silestone.- Equipamentos: Eletrodomésticos Bosh (exceto frigorífico Beko) incluindo fogão, micro-ondas e lava-louças.- Pavimento: Grés porcelânico definido conforme 3D.- Paredes: Pintadas com tinta lavável. **Casas de Banho:** - Revestimentos: Ladrilho retificado, conforme 3D.- Equipamentos: Louças sanitárias suspensas, armários de lavatório lacados a creme, resguardos de base de chuveiro.- Suítes: Equipadas com kit de duche; casas de banho completas em todos os quartos. **Zona Exterior:** - Fachada: Capoto e Alucobond.- Caixilharia: Alumínio com corte térmico; portas e janelas com vidro duplo e estores elétricos.- Segurança: Vídeo porteiro com ecrã a cores. Esse projeto está inserido em uma zona habitacional dinâmica, com fácil acesso a comércio e serviços, próximo ao centro de Gondomar, ao pavilhão multiusos e principais vias de acesso (IC29 e CREP). Não perca a oportunidade de adquirir uma moradia com acabamentos de excelência e localização privilegiada! ;ID RE/MAX: 123631347-89
AMI: 7772
Ref. Externa: 123631347-89
Id: 1587123
Inicie sessão para guardar este imóvel e aceder à sua lista de favoritos em qualquer dispositivo.
3 Quartos
2 WCs
Área bruta : 200 m²
Moradia de 4 Frentes com garagem em Gondomar Referencia Interna - gon_P260101 Moradia de quatro frentes situada em Gondomar, destinada a investidores que procuram uma oportunidade com elevado potencial de valorização. O imóvel dispõe de garagem, 3 quartos, 2 casas de banho e conta com 200 m² de área bruta, oferecendo uma base sólida para um projeto de reabilitação ou modernização. Implantada nem boa localização, com acessos facilitados, esta moradia apresenta-se como uma solução ideal para recuperação total ou para realização de algumas obras de melhoria, permitindo adaptar o espaço a diferentes finalidades, quer para habitação própria, quer para investimento. A excelente exposição solar, proporcionada pelas quatro frentes, aliada à localização estratégica e à envolvente consolidada, fazem desta moradia uma oportunidade única para transformar e valorizar num dos eixos mais procurados da zona. Observação: Casa de momento não tem licença de habitação dado ser anterior a 1951, aguarda averbamento em julho deste ano. Tratamos do financiamento sem qualquer custo! Certificado energético: A+ Área: 200 m2 Valor: 140.000 € Ref: gon_P260101 Marque já a sua visita!! Teremos todo o gosto em ajudar a escolher seu imóvel.
AMI: 14839
Ref. Externa: gon_P260101
Id: 1585303
Inicie sessão para guardar este imóvel e aceder à sua lista de favoritos em qualquer dispositivo.
3 Quartos
5 WCs
Área útil : 268 m²
Moradia T3 com duas frentes, orientada a norte e sul, com terraço, jardim e possibilidade de piscina privada. Projetada para conforto e funcionalidade, proporciona ambientes luminosos e acolhedores através dos grandes vãos envidraçados. A cozinha com ilha central e armários inteligentes, juntamente com ar condicionado e iluminação LED, torna o dia a dia mais prático. O piso inferior é versátil, podendo ser usado como sala de lazer, ginásio ou cinema. No piso superior, as três suites garantem privacidade e conforto, com armários embutidos, closets e casas de banho completas. A garagem fechada para dois carros oferece acesso direto à casa. Localizada numa nova urbanização de São Pedro da Cova, a moradia está perto de transportes públicos, escolas, comércio, serviços e áreas de lazer, com fácil acesso a vias rápidas. Exterior composto por: • Terraço com jardim • Com possibilidade de aprovar projeto para piscina privada com custo adicional de 25.000.00€ Primeiro piso composto por: • Cozinha totalmente equipada com ilha central • Sala de estar/jantar e cozinha em conceito open space • Garagem fechada para 2 carros, com portão automático e acesso direto à casa • Casa de banho de serviço Segundo piso composto por: • Master Suite completa com closet e varanda • 2 Suites completas com roupeiro embutido e varanda comum • Hall dos quartos com iluminação natural (Claraboia) Cave composta por: • Salão amplo e versátil para festas/jogos, sala de cinema, ginásio, entre outros • Arrumos com 38m² • Casa de banho de serviço Caraterísticas: • Isolamento Térmico (Capoto) e Acústico • Portas e Janelas com vidro Duplo • Estores de Alumínio Elétricos no Exterior • Grandes Vãos Envidraçados • Divisórias Interiores em Gesso Projetado • Instalação de Paneis Solares para Aquecimento de Água • Tetos Falsos em toda a casa, com exceção do teto da cave • Projetores de leds em toda a casa, exceto garagem • Luz indireta na Sala e nos quartos • Recuperador de Calor na Sala • Tomadas TV na sala, cozinha e quartos e salão • Instalação de Alarme • Instalação de Ar Condicionado • Portas com sistema pivot de altura igual ao pé direito das habitações, em madeira Lacado a Creme • Armário Closet na suite • Armários Roupeiros Lacados a Creme, com gavetas, prateleiras e varão, nos dois quartos • Pavimentos dos Quartos, Sala, Casa de Banho de Serviço e Halls em Soalho flutuante AC5 - Carvalho • Sistema de Aspiração Central • Garagem para 2 Carros com portões Automáticos • Porta Corta-fogo da Garagem para o hall interior • Escada Interior em betão armado revestida a soalho flutuante AC5 -Carvalho Cozinha: • Móveis em MDF Hidrofogo Lacado a Creme, com Ilha e equipada com Despenseiro • Balcão em Silestone • Eletrodomésticos da marca Bosh (Exaustor, Forno, Micro-ondas, Placa Vitrocerâmica e Máquina Lavar Louça) e Frigorifico Side by Side marca Candy • Iluminação e Espaço para Resíduos Recicláveis • Pavimento em grés porcelânico • Paredes Pintadas com tinta lavável Casas de banho: • Revestimentos em Ladrilho Retificado • Projetores de led embutidos • Armários de Lavatório suspensos, Lacados a Creme • Louças Sanitárias suspensas • Resguardos de Base de Chuveiro • Casas de Banho completas nos 3 Quartos • Suite equipada com Coluna de hidromassagem • Casas de Banho dos outros 2 quartos equipadas com rampa de chuveiro • Casa de banho com Sanita e Lavatório no piso 0 e no piso -1 Zona exterior: • Fachada em Capoto e Allucobond • Caixilharia em Alumínio com corte térmico • Portas e Janelas com Vidro Duplo e Estores de Alumínio Elétricos • Vídeo Porteiro com Ecrã a Cores Nas proximidades podemos encontrar várias infraestruturas que proporcionam uma melhor qualidade de vida: • Fácil acessibilidade à rede de transportes públicos (autocarro) • Fácil acesso a vias rápidas (A43/ Estrada Dom Miguel) • Bombeiros Voluntários de São Pedro da Cova • Parque Urbano de São Pedro da Cova • Piscina Municipal de São Pedro da Cova • Hospital Escola da Universidade Fernando Pessoa • Centro de saúde de São Pedro da Cova • Escolas/ Colégios/ Infantário • Ginásios • Restauração • Supermercados • Todo o tipo de comércio e serviços Para além deste imóvel, dispomos de mais opções que certamente vão ao encontro daquilo que procura. Viva a Felicidade em Sua Casa! A GlobalHome é uma empresa do ramo imobiliário localizada em Fânzeres, Gondomar, cuja Missão é proporcionar um atendimento personalizado para que cada cliente encontre a sua felicidade em casa. Comprometemo-nos a acompanhá-lo(a) em todo o processo de compra, através de: • Procura ativa até encontrar o imóvel ideal • Apresentação das melhores soluções financeiras • Apoio no processo de financiamento (Intermediário de Crédito autorizado pelo Banco de Portugal, nº 3133) • Acompanhamento em avaliações bancárias Dispomos também de serviços especializados que asseguram um processo simples e seguro: • Certificação Energética • Apoio na marcação e realização do CPCV (Contrato Promessa Compra e Venda) • Acompanhamento na escritura pública de compra e venda
AMI: 9559
Ref. Externa: GH002578
Id: 1585253
Inicie sessão para guardar este imóvel e aceder à sua lista de favoritos em qualquer dispositivo.
3 Quartos
5 WCs
Área útil : 252 m²
Moradia T3 com três frentes, com terraço e jardim, garantindo luz natural e ventilação em todos os ambientes. Pensada para conforto e funcionalidade, integra grandes vãos envidraçados que tornam os espaços acolhedores e bem iluminados. A cozinha com ilha central e armários bem distribuídos, aliada a ar condicionado e iluminação LED, facilita as tarefas do dia a dia. O piso inferior é versátil e pode ser adaptado para sala de lazer, ginásio ou espaço de convívio. No piso superior, a master suite conta com closet e casa de banho completa, enquanto os dois quartos oferecem roupeiros embutidos e varanda comum, o que garante privacidade e conforto. A garagem para dois carros permite acesso direto à casa. Inserida numa nova urbanização de São Pedro da Cova, a moradia está próxima de transportes públicos, comércio, escolas, serviços e áreas verdes, com fácil acesso a vias rápidas, combinando praticidade e qualidade de vida. Exterior composto por: • Terraço com jardim • Com possibilidade de aprovar projeto para piscina privada com custo adicional de 25.000.00€ Primeiro piso composto por: • Sala e cozinha em conceito open space • Cozinha totalmente equipada com ilha central • Sala de estar ampla com varanda • Casa de banho de serviço Segundo piso composto por: • Master Suite com casa de banho completa, closet e varanda • 2 Quartos amplos com roupeiro embutido e varanda comum • Casa de banho completa de apoio aos quartos Cave composta por: • Garagem fechada para 2 carros, com portão automático e acesso direto à casa • Arrumos com 20m² • Área técnica/ casa das máquinas Caraterísticas: • Isolamento Térmico (Capoto) e Acústico • Portas e Janelas com vidro Duplo • Estores de Alumínio Elétricos no Exterior • Grandes Vãos Envidraçados • Divisórias Interiores em Gesso Projetado • Instalação de Paneis Solares para Aquecimento de Água • Tetos Falsos em toda a casa, com exceção do teto da cave • Projetores de leds em toda a casa, exceto garagem • Luz indireta na Sala e nos quartos • Recuperador de Calor na Sala • Tomadas TV na sala, cozinha e quartos e salão • Instalação de Alarme • Instalação de Ar Condicionado • Portas com sistema pivot de altura igual ao pé direito das habitações, em madeira Lacado a Creme • Armário Closet na suite • Armários Roupeiros Lacados a Creme, com gavetas, prateleiras e varão, nos dois quartos • Pavimentos dos Quartos, Sala, Casa de Banho de Serviço e Halls em Soalho flutuante AC5 - Carvalho • Sistema de Aspiração Central • Garagem para 2 Carros com portões Automáticos • Porta Corta-fogo da Garagem para o hall interior • Escada Interior em betão armado revestida a soalho flutuante AC5 -Carvalho Cozinha: • Móveis em MDF Hidrofogo Lacado a Creme, com Ilha e equipada com Despenseiro • Balcão em Silestone • Eletrodomésticos da marca Bosh (Exaustor, Forno, Micro-ondas, Placa Vitrocerâmica e Máquina Lavar Louça) e Frigorifico Side by Side marca Candy • Iluminação e Espaço para Resíduos Recicláveis • Pavimento em grés porcelânico • Paredes Pintadas com tinta lavável Casas de banho: • Revestimentos em Ladrilho Retificado • Projetores de led embutidos • Armários de Lavatório suspensos, Lacados a Creme • Louças Sanitárias suspensas • Resguardos de Base de Chuveiro • Casas de Banho completas nos 3 Quartos • Suite equipada com Coluna de hidromassagem • Casas de Banho dos outros 2 quartos equipadas com rampa de chuveiro • Casa de banho com Sanita e Lavatório no piso 0 e no piso -1 Zona exterior: • Fachada em Capoto e Allucobond • Caixilharia em Alumínio com corte térmico • Portas e Janelas com Vidro Duplo e Estores de Alumínio Elétricos • Vídeo Porteiro com Ecrã a Cores Nas proximidades podemos encontrar várias infraestruturas que proporcionam uma melhor qualidade de vida: • Fácil acessibilidade à rede de transportes públicos (autocarro) • Fácil acesso a vias rápidas (A43/ Estrada Dom Miguel) • Bombeiros Voluntários de São Pedro da Cova • Parque Urbano de São Pedro da Cova • Piscina Municipal de São Pedro da Cova • Hospital Escola da Universidade Fernando Pessoa • Centro de saúde de São Pedro da Cova • Escolas/ Colégios/ Infantário • Ginásios • Restauração • Supermercados • Todo o tipo de comércio e serviços Para além deste imóvel, dispomos de mais opções que certamente vão ao encontro daquilo que procura. Viva a Felicidade em Sua Casa! A GlobalHome é uma empresa do ramo imobiliário localizada em Fânzeres, Gondomar, cuja Missão é proporcionar um atendimento personalizado para que cada cliente encontre a sua felicidade em casa. Comprometemo-nos a acompanhá-lo(a) em todo o processo de compra, através de: • Procura ativa até encontrar o imóvel ideal • Apresentação das melhores soluções financeiras • Apoio no processo de financiamento (Intermediário de Crédito autorizado pelo Banco de Portugal, nº 3133) • Acompanhamento em avaliações bancárias Dispomos também de serviços especializados que asseguram um processo simples e seguro: • Certificação Energética • Apoio na marcação e realização do CPCV (Contrato Promessa Compra e Venda) • Acompanhamento na escritura pública de compra e venda
AMI: 9559
Ref. Externa: GH002579
Id: 1585254
Inicie sessão para guardar este imóvel e aceder à sua lista de favoritos em qualquer dispositivo.
3 Quartos
5 WCs
Área bruta : 320 m²
Moradia T3 NOVA, de linhas modernas e acabamentos premium, situada numa zona residencial tranquila e harmoniosa em Gondomar, ideal para quem valoriza conforto, privacidade e qualidade de vida. Estas moradias destacam-se pela excelente qualidade de construção, pelos espaços amplos e bem distribuídos e por uma luminosidade natural extraordinária, proporcionada pelos generosos vãos envidraçados. A localização oferece o equilíbrio perfeito entre serenidade e conveniência, com ótimos acessos, proximidade a serviços, comércio, escolas e todas as comodidades do dia a dia. Distribuição por 3 pisos: 1.º Piso Elegante sala e cozinha em open space, criando um ambiente moderno e acolhedor Acesso a varanda com vistas desafogadas WC de serviço Garagem fechada para dois carros, com zona de arrumos 2.º Piso Três quartos em suite, todos com roupeiros embutidos Suite principal com 29 m², complementada por um sofisticado closet Varandas nos quartos, proporcionando luz natural e conforto adicional Rés do Chão Sala ampla, pensada para momentos de convívio e lazer, com ligação direta a um fantástico jardim WC de serviço Lavandaria funcional com espaço para arrumos Equipamentos e Acabamentos de Excelência. Esta moradia foi projetada ao detalhe, com materiais de elevada qualidade e soluções que garantem conforto, eficiência e sofisticação: Isolamento térmico (Capoto) e acústico Bomba de calor para aquecimento de águas Ar condicionado instalado Aspiração central Estores elétricos exteriores em alumínio Caixilharia com corte térmico e vidro duplo Interiores Soalho flutuante AC5 Carvalho nos quartos, salas e halls Tetos falsos com iluminação LED embutida Luz indireta na sala e quartos Portas pivotantes lacadas a creme, à altura do pé-direito Roupeiros e closet lacados a creme, totalmente equipados Cozinha Móveis em MDF hidrófugo lacado a creme, com ilha Balcão em Silestone Eletrodomésticos Bosch (forno, micro-ondas, placa, exaustor e máquina de lavar loiça) Frigorífico Side by Side Beko Espaço para reciclagem e iluminação integrada Casas de Banho Revestimentos em ladrilho retificado conforme projeto 3D Louças sanitárias suspensas Móveis de lavatório suspensos Bases de duche com resguardos Casas de banho completas nas três suites WC de serviço no piso 0 e no piso -1 Exterior & Segurança Fachada em Capoto e Allucobond Garagem para dois carros com portões automáticos Porta corta-fogo da garagem para o interior Vídeo porteiro com ecrã a cores Instalação de alarme Prazo de conclusão: Segundo trimestre de 2026 Existem apenas duas moradias disponíveis para venda, correspondentes às últimas unidades deste empreendimento. As plantas encontram-se no final do anúncio, para uma melhor visualização dos espaços. NOTA: Estas fotos são de uma moradia já pronta, que a nova proprietária escolheu os matérias. Para mais informações ou agendar visita, contacte a nossa equipa sem qualquer compromisso.
AMI: 14355
Ref. Externa: MM400B/22SPC/VS(1)
Id: 1585056
Inicie sessão para guardar este imóvel e aceder à sua lista de favoritos em qualquer dispositivo.
3 Quartos
5 WCs
Área útil : 184 m²
Moradia T3 em Construção em São Pedro da Cova - Prevê-se a finalização da obra para o 1º Semestre de 2026. Moradia T3 de 2 Frentes - Lote 20 Situada numa localização privilegiada, próxima aos acessos da IC29, escolas, comércio e diversos serviços, esta moradia insere-se num complexo residencial exclusivo composto por 20 unidades, oferecendo tranquilidade, segurança e conveniência. Construção de Alta Qualidade: Áreas generosas e bem aproveitadas Excelente exposição solar Isolamento térmico (Capoto) e acústico Portas e janelas com vidro duplo Estores de alumínio elétricos no exterior Grandes vãos envidraçados que proporcionam luminosidade natural Interior Moderno e Confortável: Divisórias em gesso projetado Painéis solares para aquecimento de água Tetos falsos em toda a casa, exceto na cave Iluminação LED embutida e indireta na sala e quartos Recuperador de calor na sala Sistema de som Dolby Surround na sala, cozinha e quartos Sistema de alarme e ar condicionado em vários ambientes Tomadas de TV na sala, cozinha e quartos Suíte com armário closet Dois quartos com armários roupeiros lacados a branco, com gavetas, prateleiras e varão Pavimentos em soalho flutuante AC5 - Carvalho nos quartos, sala, casa de banho de serviço e halls Sistema de aspiração central Garagem para 2 carros com portões automáticos e porta corta-fogo para maior segurança Escada interior em betão armado revestida a soalho de Carvalho AC5 Cozinha Equipada e Moderna: Móveis em MDF Hidrofugo Lacado a branco Ilha central com despenseiro Balcão em Silestone Eletrodomésticos Siemens: forno, micro-ondas, placa vitrocerâmica e máquina de lavar louça Exaustor Cata e frigorífico Side by Side Beko Iluminação específica e espaço para resíduos recicláveis Pavimento em grés porcelanato Casa de Banho Elegante: Revestimentos em ladrilho retificado Iluminação LED embutida Armários de lavatório suspensos e lacados a branco brilhante Louças sanitárias suspensas Resguardos de base de chuveiro Suite com coluna de hidromassagem Casa de banho de apoio com rampa de chuveiro Exterior e Segurança: Fachada com revestimento Capoto Caixilharia em alumínio com corte térmico e vidro duplo Estores elétricos de alumínio Vídeo porteiro com ecrã a cores Esta moradia combina conforto, segurança e modernidade, ideal para quem busca qualidade de vida numa zona bem servida e de fácil acesso. Não perca esta oportunidade de viver num espaço pensado ao pormenor para o seu bem-estar! Agende já a sua visita! Entre em contato agora mesmo: Helena Mendes 962878342 Vila Azul Imobiliária
AMI: 12024
Ref. Externa: 12607005
Id: 1580924
Inicie sessão para guardar este imóvel e aceder à sua lista de favoritos em qualquer dispositivo.
3 Quartos
5 WCs
Área útil : 162 m²
Moradias T3 em Construção em São Pedro da Cova - Prevê-se a finalização da obra para o 1º Semestre de 2026. Moradia T3 de 3 Frentes - Lote 22 Situada numa localização privilegiada, próxima aos acessos da IC29, escolas, comércio e diversos serviços, esta moradia insere-se num complexo residencial exclusivo composto por 20 unidades, oferecendo tranquilidade, segurança e conveniência. Construção de Alta Qualidade: Áreas generosas e bem aproveitadas Excelente exposição solar Isolamento térmico (Capoto) e acústico Portas e janelas com vidro duplo Estores de alumínio elétricos no exterior Grandes vãos envidraçados que proporcionam luminosidade natural Interior Moderno e Confortável: Divisórias em gesso projetado Painéis solares para aquecimento de água Tetos falsos em toda a casa, exceto na cave Iluminação LED embutida e indireta na sala e quartos Recuperador de calor na sala Sistema de som Dolby Surround na sala, cozinha e quartos Sistema de alarme e ar condicionado em vários ambientes Tomadas de TV na sala, cozinha e quartos Suíte com armário closet Dois quartos com armários roupeiros lacados a branco, com gavetas, prateleiras e varão Pavimentos em soalho flutuante AC5 - Carvalho nos quartos, sala, casa de banho de serviço e halls Sistema de aspiração central Garagem para 2 carros com portões automáticos e porta corta-fogo para maior segurança Escada interior em betão armado revestida a soalho de Carvalho AC5 Cozinha Equipada e Moderna: Móveis em MDF Hidrofugo Lacado a branco Ilha central com despenseiro Balcão em Silestone Eletrodomésticos Siemens: forno, micro-ondas, placa vitrocerâmica e máquina de lavar louça Exaustor Cata e frigorífico Side by Side Beko Iluminação específica e espaço para resíduos recicláveis Pavimento em grés porcelanato Casa de Banho Elegante: Revestimentos em ladrilho retificado Iluminação LED embutida Armários de lavatório suspensos e lacados a branco brilhante Louças sanitárias suspensas Resguardos de base de chuveiro Suite com coluna de hidromassagem Casa de banho de apoio com rampa de chuveiro Exterior e Segurança: Fachada com revestimento Capoto Caixilharia em alumínio com corte térmico e vidro duplo Estores elétricos de alumínio Vídeo porteiro com ecrã a cores Esta moradia combina conforto, segurança e modernidade, ideal para quem busca qualidade de vida numa zona bem servida e de fácil acesso. Não perca esta oportunidade de viver num espaço pensado ao pormenor para o seu bem-estar! Agende já a sua visita! Entre em contacto agora mesmo: Helena Mendes 962878342 Vila Azul Imobiliária
AMI: 12024
Ref. Externa: 12607004
Id: 1580916
Inicie sessão para guardar este imóvel e aceder à sua lista de favoritos em qualquer dispositivo.
2 Quartos
1 WCs
Área bruta : 73 m²
Identificação do imóvel: ZMPT584556 Apartamento T2 – Loja comercial convertida em habitação Rua Vasco da Gama, nº 292 – Fânzeres, Gondomar Apartamento T2 moderno e totalmente renovado, inserido ao nível da cave,com luz direta e conversão legalizada de espaço comercial para habitação.IMAGENS VIRTUAIS Características Tipologia: T2 Área total (conforme planta): 73,49 m² Área bruta privativa: 73 m² Sala / zona de estar e jantar – 37,90 m² Cozinha – 7,70 m² Quarto 1 – 13,28 m² Quarto 2 – 10,81 m² I.S. – 3,80 m²️ Cozinha equipada com placa, forno e exaustor ️ Sala e cozinha integradas em open space Casa de banho completa com base de duche Excelente distribuição e máxima funcionalidade️ Localização Imóvel situado em zona urbana de Fânzeres, com bons acessos e proximidade a transportes e serviços. Metro: Estação Venda Nova – aprox.2,3 km Comboio: Estação Rio Tinto – aprox. 3.6 km Paragens de autocarro próximas (aprox. 100 m – 300 m) com várias ligações locais Serviços, escolas e comércio nas imediações:• supermercados e comércio local• farmácias• escolas/agrupamentos próximos• restauração e serviços essenciais Acessos rápidos: ligação facilitada à A43 / A4 e Porto Boa luminosidade | zona calma | excelente para investimento ou habitação própria. Materiais e mapa de acabamentosCarpintarias• Portas e rodapés em Madeira termolaminada cor faia• Armários/roupeiros em madeira termolaminada cor faia• Armários de cozinha em MDF lacado branco mate, tampos e forras em Silestone• Móvel WC em revestimento melamínico hidrófugo• Pavimento em revestimento vinílico com relevo, cor madeiraParedes e tetos• Paredes e tetos com isolamento em lã de rocha + Pladur, para conforto térmico e acústico• Iluminação LED decorativa no teto• Focos nas zonas sociais e de serviçosOutros equipamentos• Cozinha equipada com: placa, forno, exaustor• Banca com pio inox “underbuilt” + torneira misturadoraNota importante: trata-se de venda de bem futuro (imóvel em construção). O contrato e a escritura serão celebrados de acordo com o calendário da obra e documentação legal. Apoiamos na procura do crédito ideal, com equipa disponível para o acompanhar em todo o processo3 razões para comprar com a Zome+ acompanhamentoCom uma preparação e experiência única no mercado imobiliário, os consultores Zome põem toda a sua dedicação em dar-lhe o melhor acompanhamento, orientando-o com a máxima confiança, na direção certa das suas necessidades e ambições.Daqui para a frente, vamos criar uma relação próxima e escutar com atenção as suas expectativas, porque a nossa prioridade é a sua felicidade! Porque é importante que sinta que está acompanhado, e que estamos consigo sempre.+ simplesOs consultores Zome têm uma formação única no mercado, ancorada na partilha de experiência prática entre profissionais e fortalecida pelo conhecimento de neurociência aplicada que lhes permite simplificar e tornar mais eficaz a sua experiência imobiliária.Deixe para trás os pesadelos burocráticos porque na Zome encontra o apoio total de uma equipa experiente e multidisciplinar que lhe dá suporte prático em todos os aspetos fundamentais, para que a sua experiência imobiliária supere as expectativas.+ felizO nosso maior valor é entregar-lhe felicidade!Liberte-se de preocupações e ganhe o tempo de qualidade que necessita para se dedicar ao que lhe faz mais feliz.Agimos diariamente para trazer mais valor à sua vida com o aconselhamento fiável de que precisa para, juntos, conseguirmos atingir os melhores resultados.Com a Zome nunca vai estar perdido ou desacompanhado e encontrará algo que não tem preço: a sua máxima tranquilidade!É assim que se vai sentir ao longo de toda a experiência: Tranquilo, seguro, confortável e... FELIZ!Notas:1. Caso seja um consultor imobiliário, este imóvel está disponível para partilha de negócio. Não hesite em apresentar aos seus clientes compradores e fale connosco para agendar a sua visita.2. Para maior facilidade na identificação deste imóvel, por favor, refira o respetivo ID ZMPT ou o respetivo agente que lhe tenha enviado a sugestão.
AMI: 17432
Ref. Externa: ZMPT584556
Id: 1580812
Inicie sessão para guardar este imóvel e aceder à sua lista de favoritos em qualquer dispositivo.
2 Quartos
1 WCs
Área útil : 81 m²
Andar Moradia T2 em Fânzeres situado numa zona residencial tranquila de Fânzeres, este andar moradia oferece o equilíbrio ideal entre conforto, funcionalidade e qualidade de vida, com bons acessos ao centro de Gondomar e às principais vias rodoviárias. A envolvente prática, com escolas, supermercados, transportes públicos (autocarro e metro) e o Hospital Escola Fernando Pessoa nas proximidades, permite um quotidiano cómodo e bem servido, ideal para quem valoriza proximidade e acessibilidade. O espaço exterior nas traseiras, com terraço, assume um papel central neste imóvel, proporcionando um ambiente agradável para momentos de lazer, convívio e descanso ao ar livre. O aproveitamento de sótão acrescenta versatilidade ao imóvel, oferecendo uma solução funcional para arrumação extra ou criação de uma área complementar adaptável às necessidades do dia a dia. Com exposição solar nascente e poente, beneficia de excelente luminosidade natural ao longo do dia, inserido num contexto residencial calmo e familiar. Um imóvel pensado para quem valoriza espaços bem distribuídos, luz natural e uma envolvente prática e familiar. Composto por: • Terraço com churrasqueira • Anexos de apoio no exterior • Hall de entrada com salamandra • Sala ampla • Cozinha equipada com placa, forno e micro-ondas • Lavandaria com acesso ao exterior e ligação à sala e cozinha • 2 quartos com roupeiros embutidos, um deles com varanda • Divisão ideal para escritório com luz natural e com acesso ao sótão • Casa de banho completa com base de duche Caraterísticas: • 2 frentes: nascente / poente • Excelente luminosidade natural • Salamandra • Aproveitamento de sótão • Sem garagem Nas proximidades podemos encontrar várias infraestruturas que proporcionam uma melhor qualidade de vida: • Escolas (ensino primário, básico e secundário) • Transportes públicos (autocarro e metro) • Supermercados (Continente, Lidl, Pingo Doce) • Acessos rápidos à Estrada D. Miguel e IC29 • Centro de Gondomar • Hospital Escola Fernando Pessoa • Toda a variedade de serviços e comércio Para além deste imóvel, dispomos de mais opções que certamente vão ao encontro daquilo que procura. Viva a Felicidade em Sua Casa! A GlobalHome é uma empresa do ramo imobiliário localizada em Fânzeres, Gondomar, cuja Missão é proporcionar um atendimento personalizado para que cada cliente encontre a sua felicidade em casa. Comprometemo-nos a acompanhá-lo(a) em todo o processo de compra, através de: • Procura ativa até encontrar o imóvel ideal • Apresentação das melhores soluções financeiras • Apoio no processo de financiamento (Intermediário de Crédito autorizado pelo Banco de Portugal, nº 3133) • Acompanhamento em avaliações bancárias Dispomos também de serviços especializados que asseguram um processo simples e seguro: • Certificação Energética • Apoio na marcação e realização do CPCV (Contrato Promessa Compra e Venda) • Acompanhamento na escritura pública de compra e venda
AMI: 9559
Ref. Externa: GH2772
Id: 1580747
Inicie sessão para guardar este imóvel e aceder à sua lista de favoritos em qualquer dispositivo.
Estes agentes são especialistas nesta zona:
Inicie sessão para ocultar este imóvel das suas pesquisas e manter a sua lista de resultados organizada.
Guardar favoritos
Este imóvel foi guardados nos seus favoritos com sucesso.
Para poder guardar pesquisa deverá ter a sua sessão iniciada.
Caso não tenha uma conta, deverá criar uma.
A sua pesquisa foi guardada com sucesso!
© Copyright 2023 | CASACERTA. All rights reserved
Este site utiliza cookies. Ao navegar no site estará a consentir a sua utilização.
Para mais informações sobre os cookies pode consultar a
política de privacidade.