Lista
Comprar
Arrendar
230.000 €
2 Quartos
2 WCs
Área útil : 81 m²
Apresentamos este apartamento T2 exclusivo, situado numa das zonas mais valorizadas de Paredes, junto ao Parque da Cidade e a poucos minutos a pé do centro. Uma localização que combina tranquilidade, proximidade a espaços verdes e a conveniência de ter serviços, comércio e acessos rápidos a curta distância. Trata-se de uma opção muito interessante para quem procura qualidade de vida, conforto e uma excelente perspetiva de valorização imobiliária. Este imóvel destaca-se pela sua organização funcional, pelo aproveitamento inteligente das áreas e pelo cuidado colocado em cada detalhe. Pensado para proporcionar uma vivência moderna e prática, oferece um ambiente acolhedor, luminoso e confortável, adaptado tanto a quem procura um lar para habitação própria como a quem pretende investir numa zona com forte procura. O apartamento apresenta uma distribuição equilibrada, com uma separação clara entre zona social e zona privada, garantindo privacidade e conforto no quotidiano. O apartamento é composto por: 2 quartos, sendo um deles uma suíte, ideal para quem valoriza maior privacidade e comodidade; 2 casas de banho, incluindo a da suíte e uma casa de banho de apoio, com soluções práticas e funcionais; Sala de estar e cozinha em conceito open space, promovendo maior fluidez e integração dos espaços, perfeita para convívios e para uma vivência moderna; Cozinha moderna e equipada, pensada para facilitar o dia a dia, incluindo: - Exaustor; - Lava-Louça; - Torneira Roca; Além das áreas interiores, o imóvel inclui características que reforçam a comodidade e a organização: Lugar de garagem para 1 automóvel, oferecendo segurança e praticidade; Arrumos fechados, ideais para manter a casa organizada e funcional; Sistema de bomba de calor, contribuindo para eficiência energética e conforto no aquecimento de águas; Pré-instalação de ar condicionado, permitindo adaptar o clima interior às suas necessidades futuras. A localização é um dos grandes pontos fortes deste T2, inserido numa zona com excelentes acessos e uma vasta oferta de serviços essenciais, garantindo uma rotina prática e bem conectada, sem necessidade de longas deslocações. Proximidades e acessos: A cerca de 600 metros da estação de comboios de Paredes, facilitando deslocações rápidas e regulares; A aproximadamente 3 minutos da autoestrada A4, permitindo ligação eficiente ao Porto e a outras zonas importantes da região; Proximidade a escolas, comércio local e serviços do dia a dia; Junto ao Parque da Cidade, ideal para quem valoriza caminhadas, lazer e atividades ao ar livre; Muito perto da CESPU de Paredes, reforçando o potencial de procura e valorização, especialmente para investimento. Com exposição solar Norte e Poente, o apartamento beneficia de boa luminosidade durante a tarde, proporcionando ambientes interiores agradáveis e confortáveis. Este T2 reúne características que o tornam uma opção diferenciadora: suíte, zona social em open space, cozinha equipada e uma localização privilegiada junto a pontos estratégicos da cidade. Este apartamento é ideal para: Casais que procuram uma habitação moderna e bem localizada Famílias pequenas que valorizam proximidade a serviços e comodidade Investidores, pela elevada procura na zona e pela proximidade a transportes e polo académico Para mais informações ou para agendar a sua visita, contacte-nos. Teremos todo o gosto em esclarecer todas as suas dúvidas e acompanhá-lo na descoberta deste apartamento em Paredes.
AMI: 19806
Ref. Externa: PG-PG-A-810
Id: 1589440
Inicie sessão para guardar este imóvel e aceder à sua lista de favoritos em qualquer dispositivo.
257.500 €
2 Quartos
2 WCs
Área bruta : 162 m²
Apresentamos este apartamento T2 exclusivo, situado numa das zonas mais valorizadas de Paredes, junto ao Parque da Cidade e a poucos minutos a pé do centro. Uma localização que combina tranquilidade, proximidade a espaços verdes e a conveniência de ter serviços, comércio e acessos rápidos a curta distância. Trata-se de uma opção muito interessante para quem procura qualidade de vida, conforto e uma excelente perspetiva de valorização imobiliária. Este imóvel destaca-se pela sua organização funcional, pelo aproveitamento inteligente das áreas e pelo cuidado colocado em cada detalhe. Pensado para proporcionar uma vivência moderna e prática, oferece um ambiente acolhedor, luminoso e confortável, adaptado tanto a quem procura um lar para habitação própria como a quem pretende investir numa zona com forte procura. O apartamento apresenta uma distribuição equilibrada, com uma separação clara entre zona social e zona privada, garantindo privacidade e conforto no quotidiano. O apartamento é composto por: 2 quartos, sendo um deles uma suíte, ideal para quem valoriza maior privacidade e comodidade; 2 casas de banho, incluindo a da suíte e uma casa de banho de apoio, com soluções práticas e funcionais; Sala de estar e cozinha em conceito open space, promovendo maior fluidez e integração dos espaços, perfeita para convívios e para uma vivência moderna; Cozinha moderna e equipada, pensada para facilitar o dia a dia, incluindo: - Exaustor; - Lava-Louça; - Torneira Roca; Além das áreas interiores, o imóvel inclui características que reforçam a comodidade e a organização: Lugar de garagem para 1 automóvel, oferecendo segurança e praticidade; Arrumos fechados, ideais para manter a casa organizada e funcional; Sistema de bomba de calor, contribuindo para eficiência energética e conforto no aquecimento de águas; Pré-instalação de ar condicionado, permitindo adaptar o clima interior às suas necessidades futuras. A localização é um dos grandes pontos fortes deste T2, inserido numa zona com excelentes acessos e uma vasta oferta de serviços essenciais, garantindo uma rotina prática e bem conectada, sem necessidade de longas deslocações. Proximidades e acessos: A cerca de 600 metros da estação de comboios de Paredes, facilitando deslocações rápidas e regulares; A aproximadamente 3 minutos da autoestrada A4, permitindo ligação eficiente ao Porto e a outras zonas importantes da região; Proximidade a escolas, comércio local e serviços do dia a dia; Junto ao Parque da Cidade, ideal para quem valoriza caminhadas, lazer e atividades ao ar livre; Muito perto da CESPU de Paredes, reforçando o potencial de procura e valorização, especialmente para investimento. Com exposição solar Norte e Poente, o apartamento beneficia de boa luminosidade durante a tarde, proporcionando ambientes interiores agradáveis e confortáveis. Este T2 reúne características que o tornam uma opção diferenciadora: suíte, zona social em open space, cozinha equipada e uma localização privilegiada junto a pontos estratégicos da cidade. Este apartamento é ideal para: Casais que procuram uma habitação moderna e bem localizada Famílias pequenas que valorizam proximidade a serviços e comodidade Investidores, pela elevada procura na zona e pela proximidade a transportes e polo académico Para mais informações ou para agendar a sua visita, contacte-nos. Teremos todo o gosto em esclarecer todas as suas dúvidas e acompanhá-lo na descoberta deste apartamento em Paredes.
AMI: 19806
Ref. Externa: PG-PG-A-811
Id: 1589439
Inicie sessão para guardar este imóvel e aceder à sua lista de favoritos em qualquer dispositivo.
285.000 €
3 Quartos
3 WCs
Área bruta : 148 m²
Apresentamos este apartamento T3 exclusivo em construção, situado numa das localizações mais procuradas de Paredes, junto ao Parque da Cidade e a poucos minutos a pé do centro. Um imóvel pensado para quem valoriza a harmonia entre a tranquilidade de uma envolvente verde e a conveniência de ter tudo por perto, desde comércio e serviços a acessos rápidos às principais vias. Este apartamento distingue-se pela privacidade, pela excelente luminosidade natural e pelo ambiente contemporâneo, com um projeto arquitetónico que privilegia o conforto e a funcionalidade. A distribuição das áreas foi cuidadosamente desenhada para proporcionar uma vivência prática no dia a dia, com espaços amplos e agradáveis para relaxar, conviver e receber família e amigos. A organização interior oferece uma separação equilibrada entre zona social e zona privada, garantindo conforto e bem-estar em todas as divisões. O apartamento é composto por: 3 quartos, incluindo uma suíte elegante, proporcionando maior conforto, privacidade e independência; Dois dos quartos com acesso direto a uma ampla varanda, ideal para desfrutar de momentos ao ar livre; 3 casas de banho, incluindo: Uma integrada na suíte Uma casa de banho de serviço Uma casa de banho de apoio aos restantes quartos Sala de estar e sala de jantar em conceito open space, criando uma zona social fluida, moderna e acolhedora, com ligação direta a uma varanda espaçosa; Cozinha moderna e equipada, pensada para quem valoriza praticidade e eficiência, incluindo: - Exaustor; - Lava-Louça; - Torneira Roca; Além das áreas interiores, este imóvel inclui características que reforçam a comodidade e a organização: Lugar de garagem para 2 automóveis, garantindo segurança e facilidade no estacionamento; Arrumos fechados, oferecendo espaço extra e maior organização; Sistema de bomba de calor, contribuindo para uma maior eficiência energética e conforto; Pré-instalação de ar condicionado, permitindo personalizar o ambiente interior conforme as suas necessidades. A localização é um dos grandes pontos fortes deste apartamento, inserido numa zona com excelentes acessos e uma vasta oferta de serviços essenciais, garantindo uma rotina prática e bem conectada. Proximidades e acessos: Cerca de 600 metros da estação de comboios de Paredes, facilitando deslocações rápidas e regulares; A apenas 3 minutos da autoestrada A4, assegurando ligação direta ao Porto e a outras zonas da região; Próximo de supermercados, comércio local, escolas e serviços essenciais; Junto ao Parque da Cidade, perfeito para caminhadas, lazer e atividades ao ar livre; Muito próximo da CESPU de Paredes, reforçando o potencial de procura e valorização, sendo também uma excelente opção para investimento. Com exposição solar Norte e Poente, o apartamento beneficia de boa luminosidade durante a tarde, proporcionando ambientes interiores agradáveis e varandas ideais para aproveitar o final do dia. Este T3 representa uma oportunidade rara em Paredes, reunindo qualidade de construção, áreas generosas, equipamentos modernos e uma localização privilegiada. Este apartamento é ideal para: Famílias que procuram um lar moderno e confortável Casais que valorizam espaço e proximidade ao centro Investidores, devido à forte procura e potencial de valorização futura Para mais informações ou para agendar a sua visita, contacte-nos. Teremos todo o gosto em acompanhá-lo nesta excelente oportunidade de adquirir um apartamento exclusivo em Paredes.
AMI: 19806
Ref. Externa: PG-PG-A-813
Id: 1589438
Inicie sessão para guardar este imóvel e aceder à sua lista de favoritos em qualquer dispositivo.
240.000 €
2 Quartos
2 WCs
Área bruta : 198 m²
Apresentamos este apartamento T2 exclusivo, situado numa das zonas mais valorizadas de Paredes, junto ao Parque da Cidade e a poucos minutos a pé do centro. Uma localização que combina tranquilidade, proximidade a espaços verdes e a conveniência de ter serviços, comércio e acessos rápidos a curta distância. Trata-se de uma opção muito interessante para quem procura qualidade de vida, conforto e uma excelente perspetiva de valorização imobiliária. Este imóvel destaca-se pela sua organização funcional, pelo aproveitamento inteligente das áreas e pelo cuidado colocado em cada detalhe. Pensado para proporcionar uma vivência moderna e prática, oferece um ambiente acolhedor, luminoso e confortável, adaptado tanto a quem procura um lar para habitação própria como a quem pretende investir numa zona com forte procura. O apartamento apresenta uma distribuição equilibrada, com uma separação clara entre zona social e zona privada, garantindo privacidade e conforto no quotidiano. O apartamento é composto por: 2 quartos, sendo um deles uma suíte, ideal para quem valoriza maior privacidade e comodidade; 2 casas de banho, incluindo a da suíte e uma casa de banho de apoio, com soluções práticas e funcionais; Sala de estar e cozinha em conceito open space, promovendo maior fluidez e integração dos espaços, perfeita para convívios e para uma vivência moderna; Cozinha moderna e equipada, pensada para facilitar o dia a dia, incluindo: - Exaustor; - Lava-Louça; - Torneira Roca; Além das áreas interiores, o imóvel inclui características que reforçam a comodidade e a organização: Lugar de garagem para 1 automóvel, oferecendo segurança e praticidade; Arrumos fechados, ideais para manter a casa organizada e funcional; Sistema de bomba de calor, contribuindo para eficiência energética e conforto no aquecimento de águas; Pré-instalação de ar condicionado, permitindo adaptar o clima interior às suas necessidades futuras. A localização é um dos grandes pontos fortes deste T2, inserido numa zona com excelentes acessos e uma vasta oferta de serviços essenciais, garantindo uma rotina prática e bem conectada, sem necessidade de longas deslocações. Proximidades e acessos: A cerca de 600 metros da estação de comboios de Paredes, facilitando deslocações rápidas e regulares; A aproximadamente 3 minutos da autoestrada A4, permitindo ligação eficiente ao Porto e a outras zonas importantes da região; Proximidade a escolas, comércio local e serviços do dia a dia; Junto ao Parque da Cidade, ideal para quem valoriza caminhadas, lazer e atividades ao ar livre; Muito perto da CESPU de Paredes, reforçando o potencial de procura e valorização, especialmente para investimento. Com exposição solar Norte e Poente, o apartamento beneficia de boa luminosidade durante a tarde, proporcionando ambientes interiores agradáveis e confortáveis. Este T2 reúne características que o tornam uma opção diferenciadora: suíte, zona social em open space, cozinha equipada e uma localização privilegiada junto a pontos estratégicos da cidade. Este apartamento é ideal para: Casais que procuram uma habitação moderna e bem localizada Famílias pequenas que valorizam proximidade a serviços e comodidade Investidores, pela elevada procura na zona e pela proximidade a transportes e polo académico Para mais informações ou para agendar a sua visita, contacte-nos. Teremos todo o gosto em esclarecer todas as suas dúvidas e acompanhá-lo na descoberta deste apartamento em Paredes.
AMI: 19806
Ref. Externa: PG-PG-A-812
Id: 1589437
Inicie sessão para guardar este imóvel e aceder à sua lista de favoritos em qualquer dispositivo.
295.000 €
3 Quartos
3 WCs
Área bruta : 133 m²
Apresentamos este apartamento T3 exclusivo em construção, situado numa das localizações mais procuradas de Paredes, junto ao Parque da Cidade e a poucos minutos a pé do centro. Um imóvel pensado para quem valoriza a harmonia entre a tranquilidade de uma envolvente verde e a conveniência de ter tudo por perto, desde comércio e serviços a acessos rápidos às principais vias. Este apartamento distingue-se pela privacidade, pela excelente luminosidade natural e pelo ambiente contemporâneo, com um projeto arquitetónico que privilegia o conforto e a funcionalidade. A distribuição das áreas foi cuidadosamente desenhada para proporcionar uma vivência prática no dia a dia, com espaços amplos e agradáveis para relaxar, conviver e receber família e amigos. A organização interior oferece uma separação equilibrada entre zona social e zona privada, garantindo conforto e bem-estar em todas as divisões. O apartamento é composto por: 3 quartos, incluindo uma suíte elegante, proporcionando maior conforto, privacidade e independência; Dois dos quartos com acesso direto a uma ampla varanda, ideal para desfrutar de momentos ao ar livre; 3 casas de banho, incluindo: Uma integrada na suíte Uma casa de banho de serviço Uma casa de banho de apoio aos restantes quartos Sala de estar e sala de jantar em conceito open space, criando uma zona social fluida, moderna e acolhedora, com ligação direta a uma varanda espaçosa; Cozinha moderna e equipada, pensada para quem valoriza praticidade e eficiência, incluindo: - Exaustor; - Lava-Louça; - Torneira Roca; Além das áreas interiores, este imóvel inclui características que reforçam a comodidade e a organização: Lugar de garagem para 2 automóveis, garantindo segurança e facilidade no estacionamento; Arrumos fechados, oferecendo espaço extra e maior organização; Sistema de bomba de calor, contribuindo para uma maior eficiência energética e conforto; Pré-instalação de ar condicionado, permitindo personalizar o ambiente interior conforme as suas necessidades. A localização é um dos grandes pontos fortes deste apartamento, inserido numa zona com excelentes acessos e uma vasta oferta de serviços essenciais, garantindo uma rotina prática e bem conectada. Proximidades e acessos: Cerca de 600 metros da estação de comboios de Paredes, facilitando deslocações rápidas e regulares; A apenas 3 minutos da autoestrada A4, assegurando ligação direta ao Porto e a outras zonas da região; Próximo de supermercados, comércio local, escolas e serviços essenciais; Junto ao Parque da Cidade, perfeito para caminhadas, lazer e atividades ao ar livre; Muito próximo da CESPU de Paredes, reforçando o potencial de procura e valorização, sendo também uma excelente opção para investimento. Com exposição solar Norte e Poente, o apartamento beneficia de boa luminosidade durante a tarde, proporcionando ambientes interiores agradáveis e varandas ideais para aproveitar o final do dia. Este T3 representa uma oportunidade rara em Paredes, reunindo qualidade de construção, áreas generosas, equipamentos modernos e uma localização privilegiada. Este apartamento é ideal para: Famílias que procuram um lar moderno e confortável Casais que valorizam espaço e proximidade ao centro Investidores, devido à forte procura e potencial de valorização futura Para mais informações ou para agendar a sua visita, contacte-nos. Teremos todo o gosto em acompanhá-lo nesta excelente oportunidade de adquirir um apartamento exclusivo em Paredes.
AMI: 19806
Ref. Externa: PG-PG-A-814
Id: 1589436
Inicie sessão para guardar este imóvel e aceder à sua lista de favoritos em qualquer dispositivo.
750.000 €
2 Quartos
2 WCs
Área bruta : 88 m²
Quinta T2 em Gandra: O Refúgio de Luxo Onde a Natureza Encontra a Modernidade Apresentamos uma propriedade exclusiva, totalmente renovada e mobilada, que combina o charme rústico com o máximo conforto contemporâneo. Localizada num ambiente sereno, esta quinta é a definição de qualidade de vida superior. ? A Residência (Design & Conforto) • Totalmente Renovada: Interior moderno com acabamentos premium e estores elétricos. • Conceito Open Space: Cozinha sofisticada com ilha central e eletrodomésticos integrados. • Suíte Master: Quarto principal com um elegante e generoso closet privativo. • Ambientes Acolhedores: Sala de estar e jantar integradas, com excelente luminosidade natural. ? Lazer e Exterior (Privacidade Absoluta) • Piscina de Água Salgada: Com sistema de limpeza automática. • Court de Ténis Iluminado: Para prática desportiva a qualquer hora. • Espaço Gourmet: Zona de convívio coberta com churrasqueira e fogão a lenha. • Sala exterior: Sala independente com lareira, ideal momentos de lazer. • Cozinha Regional: Espaço independente para preservar as tradições gastronómicas. ? Sustentabilidade e Funcionalidade • Mobilidade Elétrica: Ponto de carregamento para carros elétricos. • Terreno Produtivo: Diversas árvores de fruto e ambiente sustentável. • Apoio Agrícola: Dois espaços de arrumos amplos para tratores e ferramentas. Uma oportunidade única em Gandra para quem não abdica de conforto, lazer e natureza.
AMI: 10340
Ref. Externa: 1120101
Id: 1589353
Inicie sessão para guardar este imóvel e aceder à sua lista de favoritos em qualquer dispositivo.
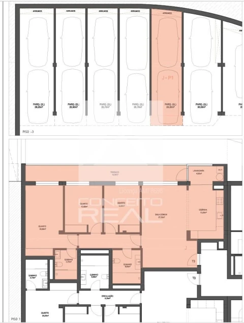
277.500 €
2 Quartos
2 WCs
Área bruta : 155 m²
Apresentamos um exclusivo apartamento T2, inserido no moderno Empreendimento Baltar 676, um projeto residencial que se distingue pela qualidade de construção, arquitetura contemporânea e design funcional. Situado em Baltar - Paredes, este empreendimento oferece o equilíbrio perfeito entre modernidade, conforto e conveniência, tornando-se o local ideal para viver com qualidade e bem-estar. Com linhas elegantes, acabamentos de elevado padrão e espaços amplos, o Baltar 676 foi concebido para quem procura um lar que alia sofisticação, eficiência e praticidade. Localização de Excelência Localizado numa das zonas mais centrais de Baltar, o empreendimento beneficia de excelentes acessos rodoviários, permitindo uma ligação rápida a Paredes, Penafiel e ao Porto. A envolvente é marcada por um ambiente residencial calmo e familiar, com comércio local, escolas, serviços, cafés e zonas verdes nas proximidades. Esta localização estratégica proporciona um quotidiano mais simples e confortável, onde tudo o que precisa está a poucos minutos de casa. Composição do Apartamento O apartamento T2 destaca-se pela funcionalidade dos espaços e pela luminosidade natural que o percorre. A disposição em open space entre a sala e a cozinha oferece fluidez e modernidade, criando um ambiente acolhedor e perfeito para o convívio familiar. O imóvel é composto por: Dois quartos, sendo um deles uma suíte completa, com casa de banho privativa e roupeiros embutidos; Uma segunda casa de banho, equipada com louças suspensas, móveis modernos e polibã com resguardo em vidro; Sala ampla e cozinha integradas em open space, com acesso direto à varanda privativa, que proporciona luz natural e uma agradável ligação ao exterior. O apartamento inclui ainda 2 lugares de garagem e arrecadação, garantindo total comodidade, segurança e organização. A cozinha, moderna e funcional, está totalmente equipada com eletrodomésticos de gama superior, incluindo placa de indução, forno, micro-ondas, exaustor, máquina de lavar louça e frigorífico combinado. Cada detalhe foi pensado para unir estética, eficiência e conforto, facilitando o dia a dia e mantendo o ambiente sempre organizado. Conforto e Eficiência Energética O apartamento dispõe de soluções de climatização e eficiência energética de última geração, garantindo conforto em todas as estações do ano. Entre os principais equipamentos, incluem-se: Ar condicionado; Bomba de calor; Estores elétricos; Isolamentos térmicos e acústicos de alta qualidade. Estes elementos asseguram conforto, poupança energética e um ambiente interior sempre equilibrado. Comodidades e Áreas Comuns O Baltar 676 oferece todas as comodidades necessárias para um estilo de vida moderno e seguro: Garagem fechada; Arrecadação individual; Elevador moderno; Áreas comuns acessíveis e bem cuidadas. A disposição das áreas e o cuidado nos acabamentos refletem o compromisso do empreendimento com o conforto e a qualidade de vida dos seus residentes. Um Novo Conceito de Viver em Baltar - Paredes O Baltar 676 é mais do que um edifício é um conceito de habitação moderna, que combina design, funcionalidade e tranquilidade num só espaço. Com áreas generosas, acabamentos de excelência e uma localização privilegiada, este apartamento T2 é ideal tanto para habitação própria como para investimento. Descubra o prazer de viver em Baltar - Paredes, num empreendimento que redefine o padrão de conforto e qualidade. Agende a sua visita e conheça o Baltar 676, o seu novo lar onde a modernidade encontra o equilíbrio perfeito.
AMI: 19806
Ref. Externa: PG-PG-A-807
Id: 1587397
Inicie sessão para guardar este imóvel e aceder à sua lista de favoritos em qualquer dispositivo.
265.500 €
2 Quartos
2 WCs
Área bruta : 157 m²
Apresentamos um exclusivo apartamento T2, inserido no moderno Empreendimento Baltar 676, um projeto residencial que se distingue pela qualidade de construção, arquitetura contemporânea e design funcional. Situado em Baltar - Paredes, este empreendimento oferece o equilíbrio perfeito entre modernidade, conforto e conveniência, tornando-se o local ideal para viver com qualidade e bem-estar. Com linhas elegantes, acabamentos de elevado padrão e espaços amplos, o Baltar 676 foi concebido para quem procura um lar que alia sofisticação, eficiência e praticidade. Localização de Excelência Localizado numa das zonas mais centrais de Baltar, o empreendimento beneficia de excelentes acessos rodoviários, permitindo uma ligação rápida a Paredes, Penafiel e ao Porto. A envolvente é marcada por um ambiente residencial calmo e familiar, com comércio local, escolas, serviços, cafés e zonas verdes nas proximidades. Esta localização estratégica proporciona um quotidiano mais simples e confortável, onde tudo o que precisa está a poucos minutos de casa. Composição do Apartamento O apartamento T2 destaca-se pela funcionalidade dos espaços e pela luminosidade natural que o percorre. A disposição em open space entre a sala e a cozinha oferece fluidez e modernidade, criando um ambiente acolhedor e perfeito para o convívio familiar. O imóvel é composto por: Dois quartos, sendo um deles uma suíte completa, com casa de banho privativa e roupeiros embutidos; Uma segunda casa de banho, equipada com louças suspensas, móveis modernos e polibã com resguardo em vidro; Sala ampla e cozinha integradas em open space, com acesso direto à varanda privativa, que proporciona luz natural e uma agradável ligação ao exterior. O apartamento inclui ainda 2 lugares de garagem e arrecadação, garantindo total comodidade, segurança e organização. A cozinha, moderna e funcional, está totalmente equipada com eletrodomésticos de gama superior, incluindo placa de indução, forno, micro-ondas, exaustor, máquina de lavar louça e frigorífico combinado. Cada detalhe foi pensado para unir estética, eficiência e conforto, facilitando o dia a dia e mantendo o ambiente sempre organizado. Conforto e Eficiência Energética O apartamento dispõe de soluções de climatização e eficiência energética de última geração, garantindo conforto em todas as estações do ano. Entre os principais equipamentos, incluem-se: Ar condicionado; Bomba de calor; Estores elétricos; Isolamentos térmicos e acústicos de alta qualidade. Estes elementos asseguram conforto, poupança energética e um ambiente interior sempre equilibrado. Comodidades e Áreas Comuns O Baltar 676 oferece todas as comodidades necessárias para um estilo de vida moderno e seguro: Garagem fechada; Arrecadação individual; Elevador moderno; Áreas comuns acessíveis e bem cuidadas. A disposição das áreas e o cuidado nos acabamentos refletem o compromisso do empreendimento com o conforto e a qualidade de vida dos seus residentes. Um Novo Conceito de Viver em Baltar - Paredes O Baltar 676 é mais do que um edifício é um conceito de habitação moderna, que combina design, funcionalidade e tranquilidade num só espaço. Com áreas generosas, acabamentos de excelência e uma localização privilegiada, este apartamento T2 é ideal tanto para habitação própria como para investimento. Descubra o prazer de viver em Baltar - Paredes, num empreendimento que redefine o padrão de conforto e qualidade. Agende a sua visita e conheça o Baltar 676, o seu novo lar onde a modernidade encontra o equilíbrio perfeito.
AMI: 19806
Ref. Externa: PG-PG-A-798
Id: 1587396
Inicie sessão para guardar este imóvel e aceder à sua lista de favoritos em qualquer dispositivo.
337.500 €
3 Quartos
3 WCs
Área bruta : 188 m²
Apresentamos um exclusivo apartamento T3, inserido no moderno Empreendimento Baltar 676, um projeto residencial que combina design contemporâneo, funcionalidade e qualidade de construção em pleno Baltar - Paredes. Com linhas arquitetónicas elegantes e acabamentos de elevado padrão, este apartamento foi concebido para proporcionar conforto, luminosidade e bem-estar, num ambiente urbano tranquilo e de fácil acesso. O Baltar 676 representa um novo conceito de habitar, pensado para quem procura espaço, praticidade e modernidade num só lugar. Localização Privilegiada Localizado numa das zonas mais centrais e procuradas de Baltar, o empreendimento beneficia de excelentes acessos às principais vias que ligam Paredes, Penafiel e o Porto. A envolvente é marcada pela presença de comércio local, escolas, serviços, cafés e espaços verdes, proporcionando um estilo de vida equilibrado entre a tranquilidade residencial e a conveniência urbana. Viver aqui é desfrutar de um ambiente seguro e acolhedor, ideal para famílias que valorizam qualidade de vida e proximidade a tudo o que é essencial. Composição do Apartamento Este apartamento T3 distingue-se pela sua organização funcional e pela luminosidade natural que invade todas as divisões. A disposição em open space entre a sala e a cozinha confere fluidez ao espaço e promove um ambiente moderno e acolhedor. O imóvel é composto por: Três quartos, sendo um deles uma suíte completa, com casa de banho privativa e roupeiros embutidos; Duas casas de banho adicionais, com acabamentos contemporâneos, louças suspensas, móveis de apoio e materiais de elevada qualidade; Sala e cozinha integradas em open space, favorecendo a convivência e a funcionalidade do dia a dia; Varanda ampla, que prolonga a área social e proporciona luz natural e ligação ao exterior. O apartamento inclui ainda 2 lugares de garagem e arrecadação, garantindo segurança, comodidade e organização. A cozinha está totalmente equipada, combinando design e eficiência com eletrodomésticos de gama superior: placa de indução, forno, micro-ondas, exaustor, máquina de lavar louça e frigorífico combinado. A integração com a sala de estar cria um ambiente dinâmico e elegante, ideal para partilhar momentos em família ou receber convidados. Conforto e Eficiência O apartamento oferece máximo conforto e eficiência energética, contando com: Ar condicionado; Bomba de calor; Estores elétricos; Isolamentos térmicos e acústicos de qualidade superior, garantindo um ambiente confortável durante todo o ano. Comodidades e Áreas Comuns Inserido num edifício moderno e seguro, o Baltar 676 dispõe de: Garagem fechada; Arrecadação individual; Elevador moderno; Acessos cómodos e áreas comuns organizadas. Cada detalhe foi cuidadosamente pensado para garantir segurança, praticidade e bem-estar a todos os residentes. Um Novo Estilo de Vida em Baltar - Paredes O Baltar 676 é mais do que um edifício - é um conceito de habitação moderna e funcional, adaptado às exigências do quotidiano. Com espaços amplos, acabamentos premium e uma localização estratégica, este T3 é a escolha perfeita para quem procura um lar confortável, elegante e de elevado valor duradouro. Descubra o prazer de viver em Baltar - Paredes, num apartamento que une design, qualidade e conforto em perfeita harmonia. Agende a sua visita e venha conhecer o Baltar 676, o novo marco de habitação contemporânea na região.
AMI: 19806
Ref. Externa: PG-PG-A-808
Id: 1587395
Inicie sessão para guardar este imóvel e aceder à sua lista de favoritos em qualquer dispositivo.
329.500 €
3 Quartos
3 WCs
Área bruta : 199 m²
Apresentamos um exclusivo apartamento T3, inserido no moderno Empreendimento Baltar 676, um projeto residencial que combina design contemporâneo, funcionalidade e qualidade de construção em pleno Baltar - Paredes. Com linhas arquitetónicas elegantes e acabamentos de elevado padrão, este apartamento foi concebido para proporcionar conforto, luminosidade e bem-estar, num ambiente urbano tranquilo e de fácil acesso. O Baltar 676 representa um novo conceito de habitar, pensado para quem procura espaço, praticidade e modernidade num só lugar. Localização Privilegiada Localizado numa das zonas mais centrais e procuradas de Baltar, o empreendimento beneficia de excelentes acessos às principais vias que ligam Paredes, Penafiel e o Porto. A envolvente é marcada pela presença de comércio local, escolas, serviços, cafés e espaços verdes, proporcionando um estilo de vida equilibrado entre a tranquilidade residencial e a conveniência urbana. Viver aqui é desfrutar de um ambiente seguro e acolhedor, ideal para famílias que valorizam qualidade de vida e proximidade a tudo o que é essencial. Composição do Apartamento Este apartamento T3 distingue-se pela sua organização funcional e pela luminosidade natural que invade todas as divisões. A disposição em open space entre a sala e a cozinha confere fluidez ao espaço e promove um ambiente moderno e acolhedor. O imóvel é composto por: Três quartos, sendo um deles uma suíte completa, com casa de banho privativa e roupeiros embutidos; Duas casas de banho adicionais, com acabamentos contemporâneos, louças suspensas, móveis de apoio e materiais de elevada qualidade; Sala e cozinha integradas em open space, favorecendo a convivência e a funcionalidade do dia a dia; Varanda ampla, que prolonga a área social e proporciona luz natural e ligação ao exterior. O apartamento inclui ainda 2 lugares de garagem e arrecadação, garantindo segurança, comodidade e organização. A cozinha está totalmente equipada, combinando design e eficiência com eletrodomésticos de gama superior: placa de indução, forno, micro-ondas, exaustor, máquina de lavar louça e frigorífico combinado. A integração com a sala de estar cria um ambiente dinâmico e elegante, ideal para partilhar momentos em família ou receber convidados. Conforto e Eficiência O apartamento oferece máximo conforto e eficiência energética, contando com: Ar condicionado; Bomba de calor; Estores elétricos; Isolamentos térmicos e acústicos de qualidade superior, garantindo um ambiente confortável durante todo o ano. Comodidades e Áreas Comuns Inserido num edifício moderno e seguro, o Baltar 676 dispõe de: Garagem fechada; Arrecadação individual; Elevador moderno; Acessos cómodos e áreas comuns organizadas. Cada detalhe foi cuidadosamente pensado para garantir segurança, praticidade e bem-estar a todos os residentes. Um Novo Estilo de Vida em Baltar - Paredes O Baltar 676 é mais do que um edifício - é um conceito de habitação moderna e funcional, adaptado às exigências do quotidiano. Com espaços amplos, acabamentos premium e uma localização estratégica, este T3 é a escolha perfeita para quem procura um lar confortável, elegante e de elevado valor duradouro. Descubra o prazer de viver em Baltar - Paredes, num apartamento que une design, qualidade e conforto em perfeita harmonia. Agende a sua visita e venha conhecer o Baltar 676, o novo marco de habitação contemporânea na região.
AMI: 19806
Ref. Externa: PG-PG-A-809
Id: 1587394
Inicie sessão para guardar este imóvel e aceder à sua lista de favoritos em qualquer dispositivo.
333.500 €
3 Quartos
3 WCs
Área bruta : 187 m²
Apresentamos um exclusivo apartamento T3, inserido no moderno Empreendimento Baltar 676, um projeto residencial que combina design contemporâneo, funcionalidade e qualidade de construção em pleno Baltar - Paredes. Com linhas arquitetónicas elegantes e acabamentos de elevado padrão, este apartamento foi concebido para proporcionar conforto, luminosidade e bem-estar, num ambiente urbano tranquilo e de fácil acesso. O Baltar 676 representa um novo conceito de habitar, pensado para quem procura espaço, praticidade e modernidade num só lugar. Localização Privilegiada Localizado numa das zonas mais centrais e procuradas de Baltar, o empreendimento beneficia de excelentes acessos às principais vias que ligam Paredes, Penafiel e o Porto. A envolvente é marcada pela presença de comércio local, escolas, serviços, cafés e espaços verdes, proporcionando um estilo de vida equilibrado entre a tranquilidade residencial e a conveniência urbana. Viver aqui é desfrutar de um ambiente seguro e acolhedor, ideal para famílias que valorizam qualidade de vida e proximidade a tudo o que é essencial. Composição do Apartamento Este apartamento T3 distingue-se pela sua organização funcional e pela luminosidade natural que invade todas as divisões. A disposição em open space entre a sala e a cozinha confere fluidez ao espaço e promove um ambiente moderno e acolhedor. O imóvel é composto por: Três quartos, sendo um deles uma suíte completa, com casa de banho privativa e roupeiros embutidos; Duas casas de banho adicionais, com acabamentos contemporâneos, louças suspensas, móveis de apoio e materiais de elevada qualidade; Sala e cozinha integradas em open space, favorecendo a convivência e a funcionalidade do dia a dia; Varanda ampla, que prolonga a área social e proporciona luz natural e ligação ao exterior. O apartamento inclui ainda 2 lugares de garagem e arrecadação, garantindo segurança, comodidade e organização. A cozinha está totalmente equipada, combinando design e eficiência com eletrodomésticos de gama superior: placa de indução, forno, micro-ondas, exaustor, máquina de lavar louça e frigorífico combinado. A integração com a sala de estar cria um ambiente dinâmico e elegante, ideal para partilhar momentos em família ou receber convidados. Conforto e Eficiência O apartamento oferece máximo conforto e eficiência energética, contando com: Ar condicionado; Bomba de calor; Estores elétricos; Isolamentos térmicos e acústicos de qualidade superior, garantindo um ambiente confortável durante todo o ano. Comodidades e Áreas Comuns Inserido num edifício moderno e seguro, o Baltar 676 dispõe de: Garagem fechada; Arrecadação individual; Elevador moderno; Acessos cómodos e áreas comuns organizadas. Cada detalhe foi cuidadosamente pensado para garantir segurança, praticidade e bem-estar a todos os residentes. Um Novo Estilo de Vida em Baltar - Paredes O Baltar 676 é mais do que um edifício - é um conceito de habitação moderna e funcional, adaptado às exigências do quotidiano. Com espaços amplos, acabamentos premium e uma localização estratégica, este T3 é a escolha perfeita para quem procura um lar confortável, elegante e de elevado valor duradouro. Descubra o prazer de viver em Baltar - Paredes, num apartamento que une design, qualidade e conforto em perfeita harmonia. Agende a sua visita e venha conhecer o Baltar 676, o novo marco de habitação contemporânea na região.
AMI: 19806
Ref. Externa: PG-PG-A-803
Id: 1587393
Inicie sessão para guardar este imóvel e aceder à sua lista de favoritos em qualquer dispositivo.
329.500 €
3 Quartos
3 WCs
Área bruta : 198 m²
Apresentamos um exclusivo apartamento T3, inserido no moderno Empreendimento Baltar 676, um projeto residencial que combina design contemporâneo, funcionalidade e qualidade de construção em pleno Baltar - Paredes. Com linhas arquitetónicas elegantes e acabamentos de elevado padrão, este apartamento foi concebido para proporcionar conforto, luminosidade e bem-estar, num ambiente urbano tranquilo e de fácil acesso. O Baltar 676 representa um novo conceito de habitar, pensado para quem procura espaço, praticidade e modernidade num só lugar. Localização Privilegiada Localizado numa das zonas mais centrais e procuradas de Baltar, o empreendimento beneficia de excelentes acessos às principais vias que ligam Paredes, Penafiel e o Porto. A envolvente é marcada pela presença de comércio local, escolas, serviços, cafés e espaços verdes, proporcionando um estilo de vida equilibrado entre a tranquilidade residencial e a conveniência urbana. Viver aqui é desfrutar de um ambiente seguro e acolhedor, ideal para famílias que valorizam qualidade de vida e proximidade a tudo o que é essencial. Composição do Apartamento Este apartamento T3 distingue-se pela sua organização funcional e pela luminosidade natural que invade todas as divisões. A disposição em open space entre a sala e a cozinha confere fluidez ao espaço e promove um ambiente moderno e acolhedor. O imóvel é composto por: Três quartos, sendo um deles uma suíte completa, com casa de banho privativa e roupeiros embutidos; Duas casas de banho adicionais, com acabamentos contemporâneos, louças suspensas, móveis de apoio e materiais de elevada qualidade; Sala e cozinha integradas em open space, favorecendo a convivência e a funcionalidade do dia a dia; Varanda ampla, que prolonga a área social e proporciona luz natural e ligação ao exterior. O apartamento inclui ainda 2 lugares de garagem e arrecadação, garantindo segurança, comodidade e organização. A cozinha está totalmente equipada, combinando design e eficiência com eletrodomésticos de gama superior: placa de indução, forno, micro-ondas, exaustor, máquina de lavar louça e frigorífico combinado. A integração com a sala de estar cria um ambiente dinâmico e elegante, ideal para partilhar momentos em família ou receber convidados. Conforto e Eficiência O apartamento oferece máximo conforto e eficiência energética, contando com: Ar condicionado; Bomba de calor; Estores elétricos; Isolamentos térmicos e acústicos de qualidade superior, garantindo um ambiente confortável durante todo o ano. Comodidades e Áreas Comuns Inserido num edifício moderno e seguro, o Baltar 676 dispõe de: Garagem fechada; Arrecadação individual; Elevador moderno; Acessos cómodos e áreas comuns organizadas. Cada detalhe foi cuidadosamente pensado para garantir segurança, praticidade e bem-estar a todos os residentes. Um Novo Estilo de Vida em Baltar - Paredes O Baltar 676 é mais do que um edifício - é um conceito de habitação moderna e funcional, adaptado às exigências do quotidiano. Com espaços amplos, acabamentos premium e uma localização estratégica, este T3 é a escolha perfeita para quem procura um lar confortável, elegante e de elevado valor duradouro. Descubra o prazer de viver em Baltar - Paredes, num apartamento que une design, qualidade e conforto em perfeita harmonia. Agende a sua visita e venha conhecer o Baltar 676, o novo marco de habitação contemporânea na região.
AMI: 19806
Ref. Externa: PG-PG-A-804
Id: 1587392
Inicie sessão para guardar este imóvel e aceder à sua lista de favoritos em qualquer dispositivo.
327.500 €
3 Quartos
3 WCs
Área bruta : 198 m²
Apresentamos um exclusivo apartamento T3, inserido no moderno Empreendimento Baltar 676, um projeto residencial que combina design contemporâneo, funcionalidade e qualidade de construção em pleno Baltar - Paredes. Com linhas arquitetónicas elegantes e acabamentos de elevado padrão, este apartamento foi concebido para proporcionar conforto, luminosidade e bem-estar, num ambiente urbano tranquilo e de fácil acesso. O Baltar 676 representa um novo conceito de habitar, pensado para quem procura espaço, praticidade e modernidade num só lugar. Localização Privilegiada Localizado numa das zonas mais centrais e procuradas de Baltar, o empreendimento beneficia de excelentes acessos às principais vias que ligam Paredes, Penafiel e o Porto. A envolvente é marcada pela presença de comércio local, escolas, serviços, cafés e espaços verdes, proporcionando um estilo de vida equilibrado entre a tranquilidade residencial e a conveniência urbana. Viver aqui é desfrutar de um ambiente seguro e acolhedor, ideal para famílias que valorizam qualidade de vida e proximidade a tudo o que é essencial. Composição do Apartamento Este apartamento T3 distingue-se pela sua organização funcional e pela luminosidade natural que invade todas as divisões. A disposição em open space entre a sala e a cozinha confere fluidez ao espaço e promove um ambiente moderno e acolhedor. O imóvel é composto por: Três quartos, sendo um deles uma suíte completa, com casa de banho privativa e roupeiros embutidos; Duas casas de banho adicionais, com acabamentos contemporâneos, louças suspensas, móveis de apoio e materiais de elevada qualidade; Sala e cozinha integradas em open space, favorecendo a convivência e a funcionalidade do dia a dia; Varanda ampla, que prolonga a área social e proporciona luz natural e ligação ao exterior. O apartamento inclui ainda 2 lugares de garagem e arrecadação, garantindo segurança, comodidade e organização. A cozinha está totalmente equipada, combinando design e eficiência com eletrodomésticos de gama superior: placa de indução, forno, micro-ondas, exaustor, máquina de lavar louça e frigorífico combinado. A integração com a sala de estar cria um ambiente dinâmico e elegante, ideal para partilhar momentos em família ou receber convidados. Conforto e Eficiência O apartamento oferece máximo conforto e eficiência energética, contando com: Ar condicionado; Bomba de calor; Estores elétricos; Isolamentos térmicos e acústicos de qualidade superior, garantindo um ambiente confortável durante todo o ano. Comodidades e Áreas Comuns Inserido num edifício moderno e seguro, o Baltar 676 dispõe de: Garagem fechada; Arrecadação individual; Elevador moderno; Acessos cómodos e áreas comuns organizadas. Cada detalhe foi cuidadosamente pensado para garantir segurança, praticidade e bem-estar a todos os residentes. Um Novo Estilo de Vida em Baltar - Paredes O Baltar 676 é mais do que um edifício - é um conceito de habitação moderna e funcional, adaptado às exigências do quotidiano. Com espaços amplos, acabamentos premium e uma localização estratégica, este T3 é a escolha perfeita para quem procura um lar confortável, elegante e de elevado valor duradouro. Descubra o prazer de viver em Baltar - Paredes, num apartamento que une design, qualidade e conforto em perfeita harmonia. Agende a sua visita e venha conhecer o Baltar 676, o novo marco de habitação contemporânea na região.
AMI: 19806
Ref. Externa: PG-PG-A-805
Id: 1587391
Inicie sessão para guardar este imóvel e aceder à sua lista de favoritos em qualquer dispositivo.
337.500 €
3 Quartos
3 WCs
Área bruta : 192 m²
Apresentamos um exclusivo apartamento T3, inserido no moderno Empreendimento Baltar 676, um projeto residencial que combina design contemporâneo, funcionalidade e qualidade de construção em pleno Baltar - Paredes. Com linhas arquitetónicas elegantes e acabamentos de elevado padrão, este apartamento foi concebido para proporcionar conforto, luminosidade e bem-estar, num ambiente urbano tranquilo e de fácil acesso. O Baltar 676 representa um novo conceito de habitar, pensado para quem procura espaço, praticidade e modernidade num só lugar. Localização Privilegiada Localizado numa das zonas mais centrais e procuradas de Baltar, o empreendimento beneficia de excelentes acessos às principais vias que ligam Paredes, Penafiel e o Porto. A envolvente é marcada pela presença de comércio local, escolas, serviços, cafés e espaços verdes, proporcionando um estilo de vida equilibrado entre a tranquilidade residencial e a conveniência urbana. Viver aqui é desfrutar de um ambiente seguro e acolhedor, ideal para famílias que valorizam qualidade de vida e proximidade a tudo o que é essencial. Composição do Apartamento Este apartamento T3 distingue-se pela sua organização funcional e pela luminosidade natural que invade todas as divisões. A disposição em open space entre a sala e a cozinha confere fluidez ao espaço e promove um ambiente moderno e acolhedor. O imóvel é composto por: Três quartos, sendo um deles uma suíte completa, com casa de banho privativa e roupeiros embutidos; Duas casas de banho adicionais, com acabamentos contemporâneos, louças suspensas, móveis de apoio e materiais de elevada qualidade; Sala e cozinha integradas em open space, favorecendo a convivência e a funcionalidade do dia a dia; Varanda ampla, que prolonga a área social e proporciona luz natural e ligação ao exterior. O apartamento inclui ainda 2 lugares de garagem e arrecadação, garantindo segurança, comodidade e organização. A cozinha está totalmente equipada, combinando design e eficiência com eletrodomésticos de gama superior: placa de indução, forno, micro-ondas, exaustor, máquina de lavar louça e frigorífico combinado. A integração com a sala de estar cria um ambiente dinâmico e elegante, ideal para partilhar momentos em família ou receber convidados. Conforto e Eficiência O apartamento oferece máximo conforto e eficiência energética, contando com: Ar condicionado; Bomba de calor; Estores elétricos; Isolamentos térmicos e acústicos de qualidade superior, garantindo um ambiente confortável durante todo o ano. Comodidades e Áreas Comuns Inserido num edifício moderno e seguro, o Baltar 676 dispõe de: Garagem fechada; Arrecadação individual; Elevador moderno; Acessos cómodos e áreas comuns organizadas. Cada detalhe foi cuidadosamente pensado para garantir segurança, praticidade e bem-estar a todos os residentes. Um Novo Estilo de Vida em Baltar - Paredes O Baltar 676 é mais do que um edifício - é um conceito de habitação moderna e funcional, adaptado às exigências do quotidiano. Com espaços amplos, acabamentos premium e uma localização estratégica, este T3 é a escolha perfeita para quem procura um lar confortável, elegante e de elevado valor duradouro. Descubra o prazer de viver em Baltar - Paredes, num apartamento que une design, qualidade e conforto em perfeita harmonia. Agende a sua visita e venha conhecer o Baltar 676, o novo marco de habitação contemporânea na região.
AMI: 19806
Ref. Externa: PG-PG-A-806
Id: 1587390
Inicie sessão para guardar este imóvel e aceder à sua lista de favoritos em qualquer dispositivo.
329.500 €
3 Quartos
3 WCs
Área bruta : 201 m²
Apresentamos um exclusivo apartamento T3, inserido no moderno Empreendimento Baltar 676, um projeto residencial que combina design contemporâneo, funcionalidade e qualidade de construção em pleno Baltar - Paredes. Com linhas arquitetónicas elegantes e acabamentos de elevado padrão, este apartamento foi concebido para proporcionar conforto, luminosidade e bem-estar, num ambiente urbano tranquilo e de fácil acesso. O Baltar 676 representa um novo conceito de habitar, pensado para quem procura espaço, praticidade e modernidade num só lugar. Localização Privilegiada Localizado numa das zonas mais centrais e procuradas de Baltar, o empreendimento beneficia de excelentes acessos às principais vias que ligam Paredes, Penafiel e o Porto. A envolvente é marcada pela presença de comércio local, escolas, serviços, cafés e espaços verdes, proporcionando um estilo de vida equilibrado entre a tranquilidade residencial e a conveniência urbana. Viver aqui é desfrutar de um ambiente seguro e acolhedor, ideal para famílias que valorizam qualidade de vida e proximidade a tudo o que é essencial. Composição do Apartamento Este apartamento T3 distingue-se pela sua organização funcional e pela luminosidade natural que invade todas as divisões. A disposição em open space entre a sala e a cozinha confere fluidez ao espaço e promove um ambiente moderno e acolhedor. O imóvel é composto por: Três quartos, sendo um deles uma suíte completa, com casa de banho privativa e roupeiros embutidos; Duas casas de banho adicionais, com acabamentos contemporâneos, louças suspensas, móveis de apoio e materiais de elevada qualidade; Sala e cozinha integradas em open space, favorecendo a convivência e a funcionalidade do dia a dia; Varanda ampla, que prolonga a área social e proporciona luz natural e ligação ao exterior. O apartamento inclui ainda 2 lugares de garagem e arrecadação, garantindo segurança, comodidade e organização. A cozinha está totalmente equipada, combinando design e eficiência com eletrodomésticos de gama superior: placa de indução, forno, micro-ondas, exaustor, máquina de lavar louça e frigorífico combinado. A integração com a sala de estar cria um ambiente dinâmico e elegante, ideal para partilhar momentos em família ou receber convidados. Conforto e Eficiência O apartamento oferece máximo conforto e eficiência energética, contando com: Ar condicionado; Bomba de calor; Estores elétricos; Isolamentos térmicos e acústicos de qualidade superior, garantindo um ambiente confortável durante todo o ano. Comodidades e Áreas Comuns Inserido num edifício moderno e seguro, o Baltar 676 dispõe de: Garagem fechada; Arrecadação individual; Elevador moderno; Acessos cómodos e áreas comuns organizadas. Cada detalhe foi cuidadosamente pensado para garantir segurança, praticidade e bem-estar a todos os residentes. Um Novo Estilo de Vida em Baltar - Paredes O Baltar 676 é mais do que um edifício - é um conceito de habitação moderna e funcional, adaptado às exigências do quotidiano. Com espaços amplos, acabamentos premium e uma localização estratégica, este T3 é a escolha perfeita para quem procura um lar confortável, elegante e de elevado valor duradouro. Descubra o prazer de viver em Baltar - Paredes, num apartamento que une design, qualidade e conforto em perfeita harmonia. Agende a sua visita e venha conhecer o Baltar 676, o novo marco de habitação contemporânea na região.
AMI: 19806
Ref. Externa: PG-PG-A-799
Id: 1587389
Inicie sessão para guardar este imóvel e aceder à sua lista de favoritos em qualquer dispositivo.
326.500 €
3 Quartos
3 WCs
Área bruta : 188 m²
Apresentamos um exclusivo apartamento T3, inserido no moderno Empreendimento Baltar 676, um projeto residencial que combina design contemporâneo, funcionalidade e qualidade de construção em pleno Baltar - Paredes. Com linhas arquitetónicas elegantes e acabamentos de elevado padrão, este apartamento foi concebido para proporcionar conforto, luminosidade e bem-estar, num ambiente urbano tranquilo e de fácil acesso. O Baltar 676 representa um novo conceito de habitar, pensado para quem procura espaço, praticidade e modernidade num só lugar. Localização Privilegiada Localizado numa das zonas mais centrais e procuradas de Baltar, o empreendimento beneficia de excelentes acessos às principais vias que ligam Paredes, Penafiel e o Porto. A envolvente é marcada pela presença de comércio local, escolas, serviços, cafés e espaços verdes, proporcionando um estilo de vida equilibrado entre a tranquilidade residencial e a conveniência urbana. Viver aqui é desfrutar de um ambiente seguro e acolhedor, ideal para famílias que valorizam qualidade de vida e proximidade a tudo o que é essencial. Composição do Apartamento Este apartamento T3 distingue-se pela sua organização funcional e pela luminosidade natural que invade todas as divisões. A disposição em open space entre a sala e a cozinha confere fluidez ao espaço e promove um ambiente moderno e acolhedor. O imóvel é composto por: Três quartos, sendo um deles uma suíte completa, com casa de banho privativa e roupeiros embutidos; Duas casas de banho adicionais, com acabamentos contemporâneos, louças suspensas, móveis de apoio e materiais de elevada qualidade; Sala e cozinha integradas em open space, favorecendo a convivência e a funcionalidade do dia a dia; Varanda ampla, que prolonga a área social e proporciona luz natural e ligação ao exterior. O apartamento inclui ainda 2 lugares de garagem e arrecadação, garantindo segurança, comodidade e organização. A cozinha está totalmente equipada, combinando design e eficiência com eletrodomésticos de gama superior: placa de indução, forno, micro-ondas, exaustor, máquina de lavar louça e frigorífico combinado. A integração com a sala de estar cria um ambiente dinâmico e elegante, ideal para partilhar momentos em família ou receber convidados. Conforto e Eficiência O apartamento oferece máximo conforto e eficiência energética, contando com: Ar condicionado; Bomba de calor; Estores elétricos; Isolamentos térmicos e acústicos de qualidade superior, garantindo um ambiente confortável durante todo o ano. Comodidades e Áreas Comuns Inserido num edifício moderno e seguro, o Baltar 676 dispõe de: Garagem fechada; Arrecadação individual; Elevador moderno; Acessos cómodos e áreas comuns organizadas. Cada detalhe foi cuidadosamente pensado para garantir segurança, praticidade e bem-estar a todos os residentes. Um Novo Estilo de Vida em Baltar - Paredes O Baltar 676 é mais do que um edifício - é um conceito de habitação moderna e funcional, adaptado às exigências do quotidiano. Com espaços amplos, acabamentos premium e uma localização estratégica, este T3 é a escolha perfeita para quem procura um lar confortável, elegante e de elevado valor duradouro. Descubra o prazer de viver em Baltar - Paredes, num apartamento que une design, qualidade e conforto em perfeita harmonia. Agende a sua visita e venha conhecer o Baltar 676, o novo marco de habitação contemporânea na região.
AMI: 19806
Ref. Externa: PG-PG-A-801
Id: 1587388
Inicie sessão para guardar este imóvel e aceder à sua lista de favoritos em qualquer dispositivo.
319.500 €
3 Quartos
3 WCs
Área bruta : 198 m²
Apresentamos um exclusivo apartamento T3, inserido no moderno Empreendimento Baltar 676, um projeto residencial que combina design contemporâneo, funcionalidade e qualidade de construção em pleno Baltar - Paredes. Com linhas arquitetónicas elegantes e acabamentos de elevado padrão, este apartamento foi concebido para proporcionar conforto, luminosidade e bem-estar, num ambiente urbano tranquilo e de fácil acesso. O Baltar 676 representa um novo conceito de habitar, pensado para quem procura espaço, praticidade e modernidade num só lugar. Localização Privilegiada Localizado numa das zonas mais centrais e procuradas de Baltar, o empreendimento beneficia de excelentes acessos às principais vias que ligam Paredes, Penafiel e o Porto. A envolvente é marcada pela presença de comércio local, escolas, serviços, cafés e espaços verdes, proporcionando um estilo de vida equilibrado entre a tranquilidade residencial e a conveniência urbana. Viver aqui é desfrutar de um ambiente seguro e acolhedor, ideal para famílias que valorizam qualidade de vida e proximidade a tudo o que é essencial. Composição do Apartamento Este apartamento T3 distingue-se pela sua organização funcional e pela luminosidade natural que invade todas as divisões. A disposição em open space entre a sala e a cozinha confere fluidez ao espaço e promove um ambiente moderno e acolhedor. O imóvel é composto por: Três quartos, sendo um deles uma suíte completa, com casa de banho privativa e roupeiros embutidos; Duas casas de banho adicionais, com acabamentos contemporâneos, louças suspensas, móveis de apoio e materiais de elevada qualidade; Sala e cozinha integradas em open space, favorecendo a convivência e a funcionalidade do dia a dia; Varanda ampla, que prolonga a área social e proporciona luz natural e ligação ao exterior. O apartamento inclui ainda 2 lugares de garagem e arrecadação, garantindo segurança, comodidade e organização. A cozinha está totalmente equipada, combinando design e eficiência com eletrodomésticos de gama superior: placa de indução, forno, micro-ondas, exaustor, máquina de lavar louça e frigorífico combinado. A integração com a sala de estar cria um ambiente dinâmico e elegante, ideal para partilhar momentos em família ou receber convidados. Conforto e Eficiência O apartamento oferece máximo conforto e eficiência energética, contando com: Ar condicionado; Bomba de calor; Estores elétricos; Isolamentos térmicos e acústicos de qualidade superior, garantindo um ambiente confortável durante todo o ano. Comodidades e Áreas Comuns Inserido num edifício moderno e seguro, o Baltar 676 dispõe de: Garagem fechada; Arrecadação individual; Elevador moderno; Acessos cómodos e áreas comuns organizadas. Cada detalhe foi cuidadosamente pensado para garantir segurança, praticidade e bem-estar a todos os residentes. Um Novo Estilo de Vida em Baltar - Paredes O Baltar 676 é mais do que um edifício - é um conceito de habitação moderna e funcional, adaptado às exigências do quotidiano. Com espaços amplos, acabamentos premium e uma localização estratégica, este T3 é a escolha perfeita para quem procura um lar confortável, elegante e de elevado valor duradouro. Descubra o prazer de viver em Baltar - Paredes, num apartamento que une design, qualidade e conforto em perfeita harmonia. Agende a sua visita e venha conhecer o Baltar 676, o novo marco de habitação contemporânea na região.
AMI: 19806
Ref. Externa: PG-PG-A-800
Id: 1587387
Inicie sessão para guardar este imóvel e aceder à sua lista de favoritos em qualquer dispositivo.
319.500 €
3 Quartos
3 WCs
Área bruta : 219 m²
Apresentamos um exclusivo apartamento T3, inserido no moderno Empreendimento Baltar 676, um projeto residencial que combina design contemporâneo, funcionalidade e qualidade de construção em pleno Baltar - Paredes. Com linhas arquitetónicas elegantes e acabamentos de elevado padrão, este apartamento foi concebido para proporcionar conforto, luminosidade e bem-estar, num ambiente urbano tranquilo e de fácil acesso. O Baltar 676 representa um novo conceito de habitar, pensado para quem procura espaço, praticidade e modernidade num só lugar. Localização Privilegiada Localizado numa das zonas mais centrais e procuradas de Baltar, o empreendimento beneficia de excelentes acessos às principais vias que ligam Paredes, Penafiel e o Porto. A envolvente é marcada pela presença de comércio local, escolas, serviços, cafés e espaços verdes, proporcionando um estilo de vida equilibrado entre a tranquilidade residencial e a conveniência urbana. Viver aqui é desfrutar de um ambiente seguro e acolhedor, ideal para famílias que valorizam qualidade de vida e proximidade a tudo o que é essencial. Composição do Apartamento Este apartamento T3 distingue-se pela sua organização funcional e pela luminosidade natural que invade todas as divisões. A disposição em open space entre a sala e a cozinha confere fluidez ao espaço e promove um ambiente moderno e acolhedor. O imóvel é composto por: Três quartos, sendo um deles uma suíte completa, com casa de banho privativa e roupeiros embutidos; Duas casas de banho adicionais, com acabamentos contemporâneos, louças suspensas, móveis de apoio e materiais de elevada qualidade; Sala e cozinha integradas em open space, favorecendo a convivência e a funcionalidade do dia a dia; Varanda ampla, que prolonga a área social e proporciona luz natural e ligação ao exterior. O apartamento inclui ainda 2 lugares de garagem e arrecadação, garantindo segurança, comodidade e organização. A cozinha está totalmente equipada, combinando design e eficiência com eletrodomésticos de gama superior: placa de indução, forno, micro-ondas, exaustor, máquina de lavar louça e frigorífico combinado. A integração com a sala de estar cria um ambiente dinâmico e elegante, ideal para partilhar momentos em família ou receber convidados. Conforto e Eficiência O apartamento oferece máximo conforto e eficiência energética, contando com: Ar condicionado; Bomba de calor; Estores elétricos; Isolamentos térmicos e acústicos de qualidade superior, garantindo um ambiente confortável durante todo o ano. Comodidades e Áreas Comuns Inserido num edifício moderno e seguro, o Baltar 676 dispõe de: Garagem fechada; Arrecadação individual; Elevador moderno; Acessos cómodos e áreas comuns organizadas. Cada detalhe foi cuidadosamente pensado para garantir segurança, praticidade e bem-estar a todos os residentes. Um Novo Estilo de Vida em Baltar - Paredes O Baltar 676 é mais do que um edifício - é um conceito de habitação moderna e funcional, adaptado às exigências do quotidiano. Com espaços amplos, acabamentos premium e uma localização estratégica, este T3 é a escolha perfeita para quem procura um lar confortável, elegante e de elevado valor duradouro. Descubra o prazer de viver em Baltar - Paredes, num apartamento que une design, qualidade e conforto em perfeita harmonia. Agende a sua visita e venha conhecer o Baltar 676, o novo marco de habitação contemporânea na região.
AMI: 19806
Ref. Externa: PG-PG-A-797
Id: 1587386
Inicie sessão para guardar este imóvel e aceder à sua lista de favoritos em qualquer dispositivo.
Sob consulta
3 Quartos
2 WCs
Área útil : 144 m²
oportunidade de um excelente investimento
AMI: 6244
Ref. Externa: APA_702
Id: 1579815
Inicie sessão para guardar este imóvel e aceder à sua lista de favoritos em qualquer dispositivo.
530.000 €
3 Quartos
3 WCs
Área bruta : 269 m²
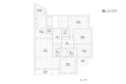
Apresentamos esta moradia de 2008, situada na prestigiada Urbanização do Oural, em Paredes. Com um equilíbrio perfeito entre o interior acolhedor e um espaço exterior generoso, esta é a casa onde as memórias são criadas. Com uma área de construção de 270m² inserida num lote de 421m², o imóvel destaca-se pela qualidade dos materiais: - Sala ampla com recuperador de calor e elegância garantida pelo soalho em madeira em todo o pavimento. - Garagem fechada com capacidade para 2 carros. - Um logradouro espaçoso, ideal para churrascos em família, jantares ao ar livre ou para as crianças brincarem em segurança. Viva com a tranquilidade que a sua família merece, a poucos minutos do centro de Paredes e com rápidos acessos ao Porto. Será a sua próxima casa? Venha visitar!
AMI: 8366
Ref. Externa: M2054
Id: 1578062
Inicie sessão para guardar este imóvel e aceder à sua lista de favoritos em qualquer dispositivo.
Estes agentes são especialistas nesta zona:
Inicie sessão para ocultar este imóvel das suas pesquisas e manter a sua lista de resultados organizada.
Guardar favoritos
Este imóvel foi guardados nos seus favoritos com sucesso.
Para poder guardar pesquisa deverá ter a sua sessão iniciada.
Caso não tenha uma conta, deverá criar uma.
A sua pesquisa foi guardada com sucesso!
© Copyright 2023 | CASACERTA. All rights reserved
Este site utiliza cookies. Ao navegar no site estará a consentir a sua utilização.
Para mais informações sobre os cookies pode consultar a
política de privacidade.