Filtros
0 · 26 resultados565.000 €
3 Quartos
3 WCs
Área bruta : 216 m²
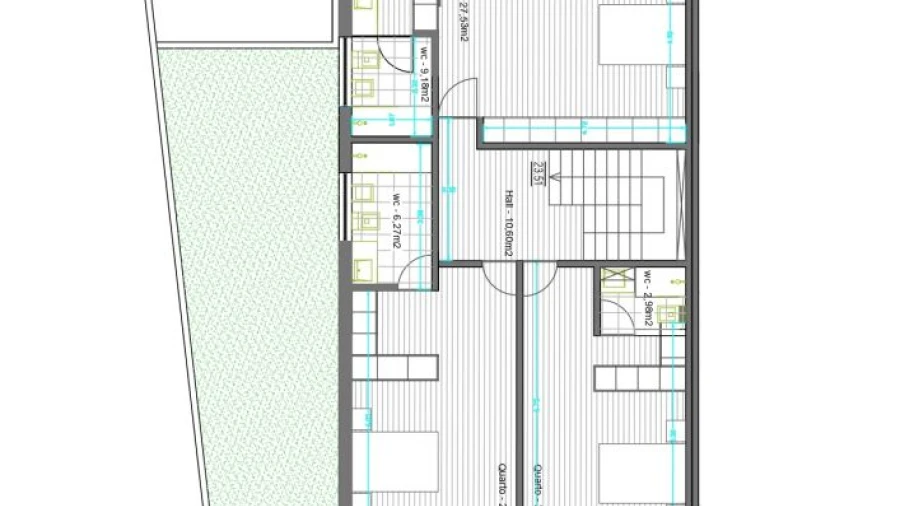
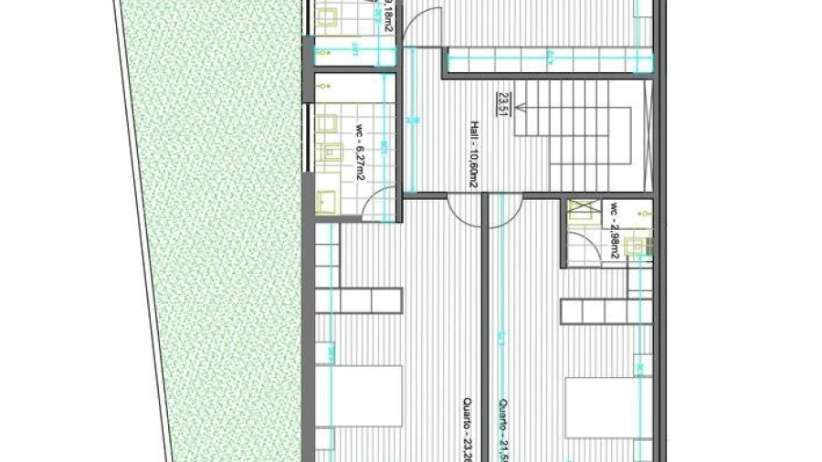
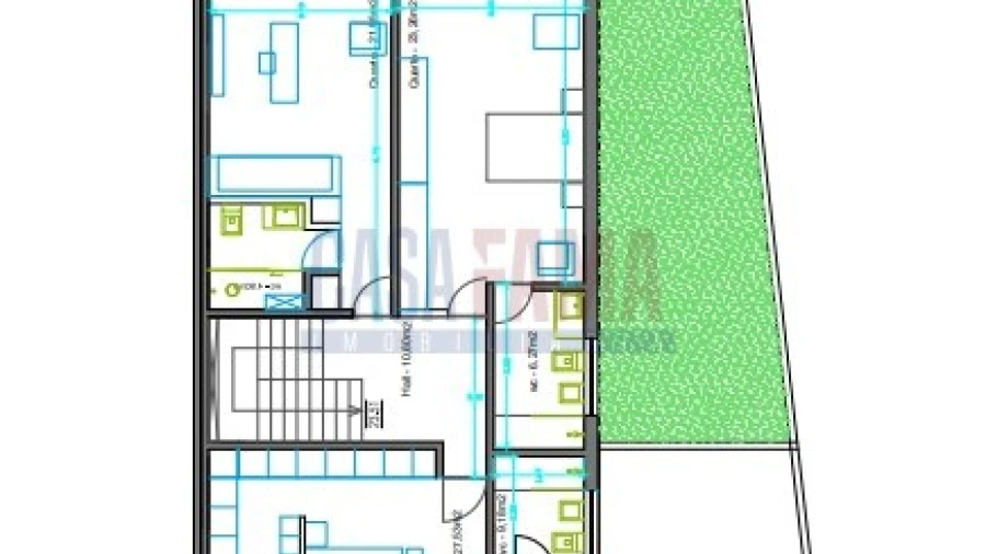
Apresentamos esta excelente moradia T3 situada em Vila Chã, ideal para quem procura conforto, modernidade e qualidade de vida.. . A zona social destaca-se pelo seu conceito open space, integrando harmoniosamente a sala de estar, sala de jantar e cozinha, proporcionando um ambiente amplo e luminoso. . A cozinha, totalmente equipada e mobilada, conta com uma elegante ilha, perfeita para momentos de convívio e funcionalidade no dia a dia.. . Na área privada, a moradia dispõe de dois quartos com roupeiros embutidos, ambos com acesso a varanda, apoiados por uma casa de banho completa. . A suíte oferece um espaço exclusivo, com closet, casa de banho privativa e acesso direto a um agradável terraço.. . Conta ainda com uma casa de banho de serviço, garantindo maior comodidade.. . No exterior, poderá desfrutar de um jardim com relva sintética, de fácil manutenção, ideal para momentos de lazer.. . A moradia está equipada com diversas comodidades e soluções modernas, como pré-instalação de ar condicionado, bomba de calor com painéis solares, estores elétricos, vídeo porteiro, portão automático e recuperador de calor na sala. Dispõe ainda de pré-instalação de cortinas elétricas.. . Inclui também garagem fechada, proporcionando segurança e praticidade.. . Uma oportunidade única para viver com qualidade, numa localização tranquila e próxima do mar.. . Não perca esta oportunidade e agende já a sua visita!. M/692
AMI: 4423
Ref. Externa: M_692/12319
Id: 1877740
Inicie sessão para guardar este imóvel e aceder à sua lista de favoritos em qualquer dispositivo.
550.000 €
3 Quartos
3 WCs
Área bruta : 216 m²
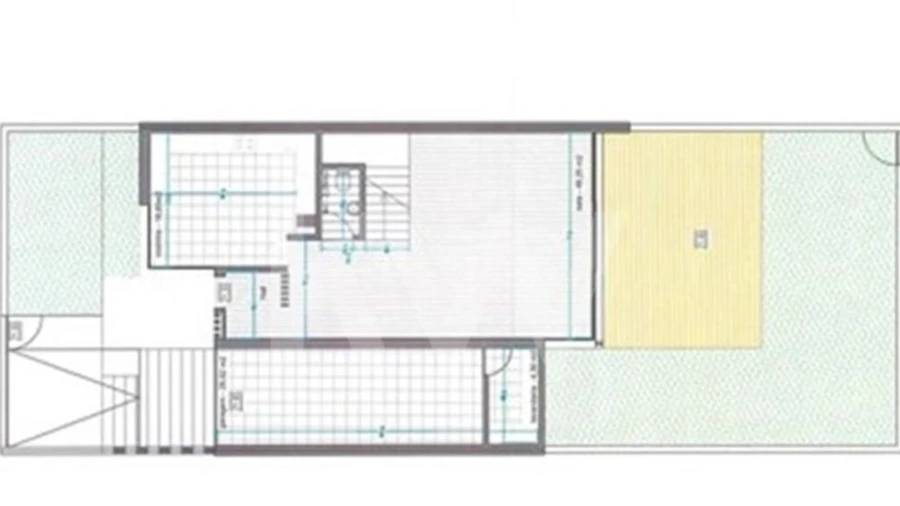
Apresentamos esta excelente moradia T3 junto ao Outlet, ideal para quem procura conforto, funcionalidade e espaços pensados para o convívio em família. No piso térreo, encontra uma sala ampla e luminosa, perfeita para momentos de descanso e lazer, um WC completo e uma cozinha totalmente mobilada e equipada, pronta a responder às necessidades do dia a dia. No exterior, destaca-se um agradável terraço com zona de churrasqueira, ideal para refeições ao ar livre, complementado por um anexo que oferece espaço adicional de arrumação ou apoio. No primeiro piso, a área privada dispõe de três quartos com roupeiros embutidos, sendo um deles uma suíte com closet, garantindo maior conforto e privacidade. A moradia conta ainda com aproveitamento de sótão, transformado num acolhedor salão de jogos, perfeito para momentos de convívio com família e amigos. Completa-se com garagem para um carro. Uma oportunidade a não perder para quem valoriza espaço, comodidade e qualidade de vida. Oportunidades como esta não ficam disponíveis durante muito tempo, por isso, agenda já uma visita ! Este imóvel, encontra-se angariado em regime de exclusividade, partilhamos em 50% da comissão, com todas as agencias com licença AMI válida. A CASA DA PORTELA Imobiliária – É uma empresa de mediação imobiliária e Intermediação de Crédito criada em 2013. Os seus sócios fundadores possuem um sólido conhecimento acumulado desde 1994 sobre o mercado imobiliário, mantendo-se atentos às suas tendências e evolução, e com uma Intermediação de Crédito registado no Banco de Portugal com o nº 0004889. A empresa começou por centrar-se na região do Grande Porto, conseguindo, desde o início, um grande volume de transações. O sucesso do modelo de negócio fez com que a marca Casa da Portela imobiliária chegasse em 2022 a Vila Nova de Famalicão. A Casa da Portela imobiliária pretende valorizar o trabalho dos consultores e prestar um serviço de excelência aos seus clientes, proporcionando um serviço de qualidade e tranquilidade, de forma a realizar bons negócios, garantindo a satisfação dos nossos clientes e parceiros. Para atingir esse propósito, dispomos de uma equipa multidisciplinar de profissionais qualificados, com vasta experiência em mediação imobiliária que nos permite apresentar e sugerir as melhores alternativas para os seus objetivos de venda, de arrendamento, ou de investimento imobiliário. Possuímos uma rede de contatos privilegiada que nos permite potenciar a divulgação, a gestão e a concretização de negócio do seu imóvel em vários formatos. 3 Pilares fundamentais da Casa da Portela: Missão A nossa missão é orientar os nossos objetivos excecionais (financeiros, humanos e sociais) na nossa organização e uni-los aos nossos não menos excecionais clientes, atendendo sempre às suas necessidades, desejos e expectativas. A Casa da Portela imobiliária nasceu para que fosse possível prestar um acompanhamento e apoio contínuos, explicação e esclarecimento de dúvidas, sobre todo o processo de compra, venda ou arrendamento de imóveis em Portugal. A concretização de tudo isto faz com que a nossa máxima ambição seja sermos os melhores no mercado imobiliário. Visão A nossa visão é sermos a empresa de referência no mercado imobiliário, assim como sermos reconhecidos como a melhor opção para os nossos clientes. Para isso, fazemos sempre por manter um espírito inovador e de liderança que nos levará ao reconhecimento pela nossa excelência no mercado. Valores Os nossos valores são sempre o conjunto das nossas atitudes e crenças, que envolvem todas as pessoas da organização, para que, em uníssono, consigamos atingir os resultados de excelência a que nos propomos sempre que são baseados na Qualidade, Profissionalismo, Responsabilidade, Respeito e Inovação.
AMI: 10340
Ref. Externa: 1128691
Id: 1863807
Inicie sessão para guardar este imóvel e aceder à sua lista de favoritos em qualquer dispositivo.
257.000 €
2 Quartos
2 WCs
Área bruta : 192 m²
Apartamento T2 localizado no primeiro andar, em Vila Chã, que se destaca pelas suas áreas amplas, excelente luminosidade e versatilidade dos espaços.. . A zona social integra harmoniosamente a sala de estar e de jantar, criando um ambiente acolhedor e ideal para momentos de convívio. . A cozinha encontra-se totalmente equipada, oferecendo praticidade e funcionalidade no dia a dia.. . Um dos grandes destaques deste imóvel é o salão de dimensões generosas, um espaço multifuncional que permite facilmente a criação de uma área adicional, seja para escritório, sala de lazer ou até um quarto extra.. . No exterior, dispõe de um agradável terraço, perfeito para desfrutar de refeições ao ar livre ou momentos de descanso.. . A área privada é composta por dois quartos, ambos com roupeiros embutidos, garantindo excelente arrumação.. O imóvel conta ainda com duas casas de banho completas: uma equipada com duche e outra com banheira, proporcionando maior conforto e conveniência.. . Inclui lugar de garagem, assegurando comodidade e segurança.. . Uma excelente oportunidade para quem valoriza espaço, conforto e flexibilidade, numa localização tranquila e próxima do mar.. . Agende já a sua visita! . M/690
AMI: 4423
Ref. Externa: M_690/12319
Id: 1774290
Inicie sessão para guardar este imóvel e aceder à sua lista de favoritos em qualquer dispositivo.
560.000 €
4 Quartos
3 WCs
Área bruta : 336 m²
Excepcional Moradia V4 próximo da praia de Mindelo. Esta moradia esta inserida numa zona residencial de moradias, o seu amplo jardim envolvente e o sossego da zona, em que esta rodeada fazem dela uma referência. Se procura uma Moradia diferenciada, com um amplo jardim e com muita luz natural, esta será certamente a sua escolha acertada! O Cheiro das árvores que a rodeiam e o Mar da zona balnear de Árvore e Vila Chã ali tão perto convidam a uns dias bem passados em família ou com amigos na sua nova residência. Possibilidade de construção de piscina, pois o lote em que está inserida tem espaço suficiente para a realização da mesma. Agende visita á sua Nova Habitação!!
AMI: 15121
Ref. Externa: 0330
Id: 1771274
Inicie sessão para guardar este imóvel e aceder à sua lista de favoritos em qualquer dispositivo.
499.000 €
3 Quartos
3 WCs
Área bruta : 212 m²
Moradia T3 com garagem, painéis solares e excelente localização perto da praia Moradia T3 situada em Vila Chã, a apenas 1 km do Outlet e a 1,5 km da praia, com ótimos acessos à A28, EN14 e metro — ideal para quem procura tranquilidade sem abdicar da proximidade a tudo. O imóvel destaca-se pela sua excelente organização de espaços e abundante arrumação, proporcionando conforto e funcionalidade no dia a dia. Conta com: * 3 casas de banho (2 completas) * Sala acolhedora com recuperador de calor * Aspiração central * Sistema de alarme e câmaras de vigilância Na vertente energética, dispõe de: * Painel solar para aquecimento de águas * 4 painéis fotovoltaicos Garagem fechada com preparação para carregamento de veículos elétricos (carregador não incluído). As cortinas estão incluídas no valor. Possibilidade de venda mobilada, mediante negociação. Uma excelente oportunidade para habitação própria ou investimento, numa localização cada vez mais valorizada. Não perca esta oportunidade, agende já sua visita. Estamos a sua espera!
AMI: 18175
Ref. Externa: LM0401
Id: 1771007
Inicie sessão para guardar este imóvel e aceder à sua lista de favoritos em qualquer dispositivo.
585.000 €
4 Quartos
3 WCs
Área bruta : 260 m²
Moradia T4 Junto ao Outlet em Vila Chã, Vila do Conde Apresentamos esta moradia T4, de arquitetura contemporânea, em início de construção, situada em Vila Chã. Uma excelente oportunidade para quem valoriza conforto, modernidade e uma localização privilegiada, aliando tranquilidade à conveniência do quotidiano. Implantada num lote com 250 m² e com uma área bruta de construção de 245 m², esta habitação foi cuidadosamente concebida para proporcionar uma vivência harmoniosa, equilibrando na perfeição as zonas sociais e privadas. Localizada numa zona calma e de excelência, beneficia da proximidade ao outlet, comércio, serviços, escolas e transportes, bem como de rápidos acessos às principais vias rodoviárias, facilitando a mobilidade no dia a dia. Distribuída por dois pisos, apresenta uma organização funcional e intuitiva: no piso térreo desenvolvem-se as áreas sociais, ideais para convívio e lazer, e ainda um quarto, enquanto o piso superior é reservado à zona privada, garantindo maior conforto e privacidade. A moradia destaca-se ainda pela sua excelente exposição solar, permitindo a entrada abundante de luz natural ao longo de todo o dia e valorizando cada espaço interior. Características e Acabamentos Zona Social: Hall de entrada e sala com pavimento em soalho vinílico, complementados por tetos falsos com iluminação embutida, proporcionando um ambiente moderno e acolhedor. Cozinha: Cozinha contemporânea com pavimento em soalho vinílico e paredes entre móveis revestidas a Silestone/Compac. Equipada com armários em melamina, tampos em Silestone/Compac e eletrodomésticos das marcas Balay e Bosch (exceto frigorífico). Instalações Sanitárias (1º andar): Casas de banho com pavimento e paredes em material cerâmico, equipadas com louças sanitárias brancas da Roca e móveis de lavatório funcionais. Quartos: Quartos amplos com pavimento em soalho vinílico, tetos falsos com iluminação embutida e roupeiros embutidos, garantindo conforto e organização. Acabamentos Interiores: Carpintaria interior em lacado branco. Equipado com ar condicionado e pré-instalação de sistema de alarme. Outros Destaques: - Paredes em bloco térmico com sistema de capoto, garantindo elevado desempenho térmico - Caixilharia em alumínio com vidro duplo - Estores elétricos - Bomba de calor para aquecimento de águas sanitárias - Sistema de aspiração central - Lavandaria independente Exterior: No exterior, dispõe de um agradável jardim e terraço privativo, perfeitos para momentos de lazer, refeições ao ar livre ou simplesmente para relaxar em ambiente tranquilo. Uma habitação nova, elegante e pensada ao detalhe para proporcionar qualidade de vida, conforto e bem-estar. Contacte-nos para mais informações e agende já a sua visita! Algumas imagens foram criadas com recurso a Inteligência Artificial para fins ilustrativos. ----------------------------------------------------------------------------------------------------- 4-Bedroom House near the Outlet | Vila Chã We present this contemporary 4-bedroom house, currently under construction, located in Vila Chã. An excellent opportunity for those who value comfort, modernity, and a privileged location, combining tranquility with everyday convenience. Situated on a 250 m² plot with a gross construction area of 245 m², this house has been carefully designed to provide a harmonious living experience, perfectly balancing social and private areas. Located in a quiet and excellent area, it benefits from its proximity to the outlet, shops, services, schools, and transport, as well as quick access to the main highways, facilitating daily mobility. Distributed over two floors, it features a functional and intuitive layout: the ground floor houses the social areas, ideal for socializing and leisure, and also includes a bedroom, while the upper floor is reserved for the private area, ensuring greater comfort and privacy. The house also stands out for its excellent sun exposure, allowing abundant natural light throughout the day and enhancing each interior space. Features and Finishes Social Area: Entrance hall and living room with vinyl flooring, complemented by ceilings with recessed lighting, providing a modern and cozy atmosphere. Kitchen: Contemporary kitchen with vinyl flooring and walls between cabinets covered in Silestone/Compac. Equipped with melamine cabinets, Silestone/Compac countertops, and Balay and Bosch appliances (except refrigerator). Sanitary Facilities (1st floor): Bathrooms with ceramic tile flooring and walls, equipped with white Roca sanitary ware and functional vanity units. Bedrooms: Spacious bedrooms with vinyl flooring, ceilings with recessed lighting, and built-in wardrobes, ensuring comfort and organization. Interior Finishes: Interior carpentry in white lacquer. Equipped with air conditioning and pre-installation for an alarm system. Other Highlights: Thermal block walls with external thermal insulation composite system (ETICS), guaranteeing high thermal performance Aluminum window frames with double glazing Electric blinds Heat pump for domestic hot water heating Central vacuum system Independent laundry room Exterior Outdoors, it has a pleasant garden and private terrace, perfect for leisure moments, al fresco dining, or simply relaxing in a tranquil environment. A new, elegant home, thoughtfully designed down to the last detail to provide quality of life, comfort, and well-being. Contact us for more information and schedule your visit today! ----------------------------------------------------------------------------------------------------- Beatriz Imobiliária - AMI 5921 Com mais de 20 anos de experiência, dispomos de um vasto conhecimento do mercado imobiliário da região, com especial foco em Vila do Conde e Póvoa de Varzim. Em todos os negócios deixamos uma ligação de amizade e satisfação, mas também um sentimento de confiança e transparência, além do sentimento familiar e pessoal que não se explica, sente-se. Somos naturais de Vila do Conde e Póvoa de Varzim, por isso, sabemos bem qual o tipo de vizinhança que melhor se enquadra na sua família e no tipo de investimento que pretende realizar. Como intermediários oficiais de crédito, estamos a par das condições e requisitos necessários à obtenção do melhor crédito habitação possível. Encarregamo-nos de todo o processo burocrático à realização da compra/venda, tudo, para que se preocupe apenas com uma coisa: Quando quer começar as mudanças? _ Beatriz Real Estate - AMI 5921 With more than 20 years of experience, we have a vast knowledge of the real estate market in the region, with special focus on Vila do Conde and Póvoa de Varzim. In every deal we leave a bond of friendship and satisfaction, but also a feeling of trust and transparency, besides the familiar and personal feeling that is not explained, it is felt. We are native of Vila do Conde and Póvoa de Varzim, so we know very well what kind of neighborhood best fits your family and the type of investment you want to make. As official credit intermediaries, we are aware of the conditions and requirements necessary to obtain the best possible housing loan. We take care of all the bureaucratic paperwork leading up to the purchase/sale, everything, so that you only have one thing to worry about: When would you like to start the moving? _ Beatriz Inmobiliaria - AMI 5921 Con más de 20 años de experiencia, tenemos un amplio conocimiento del mercado inmobiliario de la región, con especial atención a Vila do Conde y Póvoa de Varzim. En cada trato dejamos un vínculo de amistad y satisfacción, pero también un sentimiento de confianza y transparencia, además del sentimiento familiar y personal que no se explica, se siente. Somos nativos de Vila do Conde y Póvoa de Varzim, por lo que sabemos bien qué tipo de barrio se adapta mejor a su familia y al tipo de inversión que desea realizar. Como intermediarios oficiales de crédito, conocemos las condiciones y requisitos necesarios para obtener el mejor préstamo hipotecario posible. Nos encargamos de todo el proceso burocrático hasta la realización de la compra/venta, todo, para que usted sólo se preocupe de una cosa: ¿Cuándo quieres comenzar con la mudanza? _ Beatriz Immobilier - AMI 5921 Avec plus de 20 ans d'expérience, nous avons une connaissance approfondie du marché immobilier de la région, avec un accent particulier sur Vila do Conde et Póvoa de Varzim. Dans chaque affaire, nous laissons un lien d'amitié et de satisfaction, mais aussi un sentiment de confiance et de transparence, en plus du sentiment familial et personnel qui ne s'explique pas, il se ressent. Nous sommes originaires de Vila do Conde et de Póvoa de Varzim, et nous savons donc très bien quel type de quartier convient le mieux à votre famille et au type d'investissement que vous souhaitez réaliser. En tant qu'intermédiaires officiels du crédit, nous connaissons les conditions et les exigences nécessaires pour obtenir le meilleur prêt immobilier possible. Nous nous occupons de toute la procédure bureaucratique jusqu'à la réalisation de l'achat/vente, tout, afin que vous ne vous préoccupiez que d'une seule chose : Quand voulez-vous commencer à déménager ? _ Beatriz Immobilienbüro- AMI 5921 Mit mehr als 20 Jahren Erfahrung verfügen wir über ein umfangreiches Wissen über den Immobilienmarkt in der Region, mit besonderem Schwerpunkt auf Vila do Conde und Póvoa de Varzim. Bei jedem Geschäft hinterlassen wir ein Band der Freundschaft und Zufriedenheit, aber auch ein Gefühl des Vertrauens und der Transparenz, zusätzlich zu dem familiären und persönlichen Gefühl, das nicht erklärt wird, sondern gefühlt wird. Da wir aus Vila do Conde und Póvoa de Varzim stammen, wissen wir genau, welche Art von Nachbarschaft am besten zu Ihrer Familie und der Art der Investition passt, die Sie tätigen möchten. Als offizieller Kreditvermittler kennen wir die Bedingungen und Voraussetzungen, die notwendig sind, um den bestmöglichen Immobilienkredit zu erhalten. Wir kümmern uns um alle bürokratischen Abläufe bis hin zur Abwicklung des Kaufs/Verkaufs, alles, damit Sie sich nur um eine Sache kümmern müssen: Wann wollen Sie mit dem Umzug beginnen?
AMI: 5921
Ref. Externa: vc/6274
Id: 1759288
Inicie sessão para guardar este imóvel e aceder à sua lista de favoritos em qualquer dispositivo.
360.000 €
3 Quartos
Área bruta : 173 m²
Moradia T3+1 localizada em Vila Chã, uma das zonas mais tranquilas e aprazíveis de Vila do Conde e a poucos metros da praia. Moradia de três frentes e dois pisos, inserida num terreno de 270 m², esta propriedade oferece: Rés do chão: - Sala de jantar e sala de estar; - Cozinha com despensa; - Casa de banho completa; - Quarto/escritório 1º Piso: - Sala de estar com lareira - Três Quartos - Casa de banho completa No exterior conta ainda com um anexo com uma zona de churrasqueira, apoiada de uma casa de banho de serviço. Garagem fechada para 2 carros. Excelente exposição solar norte/nascente/sul. A proximidade ao litoral proporciona oportunidades para desfrutar da natureza e do mar, enquanto os bons acessos tornam a deslocação fácil e rápida. Esta moradia é uma excelente opção tanto para habitação própria como para investimento.
AMI: 20479
Ref. Externa: PRED-668
Id: 1625224
Inicie sessão para guardar este imóvel e aceder à sua lista de favoritos em qualquer dispositivo.
650.000 €
5 Quartos
2 WCs
Área bruta : 248 m²
Viver o mar todos os dias — Moradia V5 na Avenida dos Banhos, Vila Chã Imagine acordar com o som do mar, sair de casa e estar diretamente na praia. Esta moradia V5, situada na Avenida dos Banhos, em Vila Chã – Vila do Conde, oferece uma localização verdadeiramente rara: primeira linha de mar, numa rua sem saída, onde a tranquilidade, a privacidade e o silêncio são parte do quotidiano. Construída em 1989, esta casa reflete a solidez de uma construção tradicional, com áreas generosas, excelente exposição solar e uma envolvente que convida a viver com calma e qualidade de vida. Implantada num terreno de 532 m², com 248 m² de área de construção, desenvolve-se em Rés do Chão e 1.º andar, com uma distribuição funcional e confortável. No Rés do Chão, encontram-se as amplas salas de estar e jantar, ideais para momentos em família, com vista mar. A cozinha tem acesso direto ao jardim e pátio exterior, perfeitos para refeições ao ar livre. Dispõe ainda de despensa, arrumos e acesso interior direto à garagem e um WC completo. No 1.º andar, a moradia conta com 5 quartos, hall de entrada com acesso pelo interior e exterior, 1 WC completo e duas entradas independentes, conferindo versatilidade e privacidade. Destaques que tornam este imóvel único: * Primeira linha de mar * Acesso direto à praia e aos passadiços * Avenida dos Banhos * Rua sem saída – zona extremamente tranquila * Vista mar permanente * Jardim e espaços exteriores * Vila Chã – uma das zonas mais calmas e autênticas de Vila do Conde Uma moradia para quem procura mais do que uma casa — procura um estilo de vida, onde o mar é vizinho e a tranquilidade é um privilégio diário. Exclusivo ImoArt Contacto: Andreia Pinto Coelho
AMI: 17999
Ref. Externa: 90/2026
Id: 1569305
Inicie sessão para guardar este imóvel e aceder à sua lista de favoritos em qualquer dispositivo.
474.500 €
4 Quartos
Área bruta : 176 m²
Moradia T4 junto ao mar em Vila Chã – conforto, natureza e qualidade de vidaExcelente oportunidade para viver junto ao mar!Esta moradia T4 combina conforto, espaço e uma localização privilegiada, a apenas 1 minuto a pé da praia, ideal para quem procura qualidade de vida e tranquilidade sem abdicar da proximidade de todos os serviços.Principais características: 4 quartos amplos, sendo 2 em suite com casa de banho privativa 3 casas de banho completas Escritório, perfeito para trabalho remoto Cozinha com possibilidade de open space, adaptável a um estilo moderno e funcional Sala espaçosa e luminosa, ideal para momentos em família Quintal generoso, com churrasqueira, forno a lenha e poço Garagem fechada para 2 viaturas Varanda Possibilidade de construir piscinaZona envolvente:Inserida numa zona calma e residencial, esta moradia encontra-se a poucos metros da praia e próxima de comércio local, escolas, restaurantes e serviços essenciais.O local ideal para quem procura viver num ambiente sereno, com a vantagem de ter o mar literalmente à porta.Perfeita para famílias, profissionais ou como casa de férias.Não perca esta oportunidade única de viver com o mar aos seus pés.Agende já a sua visita e venha conhecer a sua nova casa!FRACÇÃO EXACTACom uma história de sucesso, a Fracção Exacta foi fundada em 2008 e hoje é uma das principais redes imobiliárias em Portugal. Com mais de 20 lojas espalhadas pelo Distrito do Porto, Aveiro, Braga, Lisboa, Algarve e Ilha da Madeira, e uma equipa de mais de 200 colaboradores, estamos presentes em todo o país para atender às necessidades dos nossos clientes.A nossa filosofia de trabalho é baseada no profissionalismo e no compromisso com a excelência. Cada membro da nossa equipa é dedicado, competente e está sempre focado em encontrar as melhores soluções para os nossos clientes. Acreditamos que só através do rigor e da competência é possível oferecer um serviço de qualidade e superar as expectativas dos nossos clientes.A nossa visão é ser a maior rede imobiliária em Portugal, 100% portuguesa. Queremos oferecer as melhores condições tanto para os compradores como para os vendedores, criando parcerias duradouras e beneficiando todos os envolvidos no processo de compra e venda de imóveis. Além disso, valorizamos os nossos colaboradores e garantimos as melhores condições para que se destaquem no mercado imobiliário.Outro ponto importante é que somos um Intermediário de Crédito aprovado pelo Banco de Portugal, o que nos permite oferecer aos nossos clientes condições de financiamento especiais. Assumimos a responsabilidade de tratar de toda a documentação necessária de forma gratuita, para que os nossos clientes possam desfrutar de uma experiência tranquila e sem preocupações.Na Fracção Exacta, comprometemo-nos em oferecer um serviço de excelência, baseado em valores como integridade, transparência e dedicação. Estamos focados em tornar o processo de compra e venda de imóveis mais simples e eficiente, para que os nossos clientes possam alcançar os seus objetivos de forma rápida e segura.Se procura um parceiro de confiança para as suas necessidades imobiliárias, venha conhecer a Fracção Exacta. Estamos prontos para o ajudar a encontrar a sua casa de sonho, vender a sua propriedade ou qualquer outra questão relacionada com o mercado imobiliário. Conte connosco para fazer a diferença na sua vida imobiliária.
AMI: 8866
Ref. Externa: 25.10/044
Id: 1523659
Inicie sessão para guardar este imóvel e aceder à sua lista de favoritos em qualquer dispositivo.
275.000 €
3 Quartos
2 WCs
Área bruta : 98 m²
Identificação do imóvel: ZMPT583444Apresento-vos este apartamento T3 situado na Travessa do Sol, em Vila Chã.O apartamento tem três frentes, o que garante uma excelente exposição solar e uma sensação de bem-estar em todas as divisões.A sala é acolhedora, com recuperador de calor com acesso a varanda.A cozinha já não é de origem foi renovada e está em bom estado, com uma zona de refeições muito prática e acesso direto à lavandaria.Principais detalhes do apartamento:- Tipologia T3, com áreas bem distribuídas;- Três frentes, o que garante muita luminosidade;- Sala com recuperador de calor;- Cozinha renovada, com zona de refeições;- Varandas na sala e quarto;- Lavandaria independente e fechada;- 1.º andar sem elevador, em edifício calmo e familiar;- Garagem box no exterior do edificio;O apartamento situa-se numa zona muito tranquila de Vila Chã, mas próxima de tudo o que é importante para o dia a dia:- Praia de Vila Chã – a apenas 3 minutos de carro ou 12 minutos a pé- Escola de Vila Chã – a 2 minutos- Farmácia e minimercado – a menos de 5 minutos a pé- Acesso à A28 – a 5 minutos, com ligação direta a Vila do Conde e ao PortoSe procuras um apartamento com boas áreas, varandas, recuperador de calor e boa envolvência, este pode ser o teu novo lar em Vila Chã. 3 razões para comprar com a Zome+ acompanhamentoCom uma preparação e experiência única no mercado imobiliário, os consultores Zome põem toda a sua dedicação em dar-lhe o melhor acompanhamento, orientando-o com a máxima confiança, na direção certa das suas necessidades e ambições.Daqui para a frente, vamos criar uma relação próxima e escutar com atenção as suas expectativas, porque a nossa prioridade é a sua felicidade! Porque é importante que sinta que está acompanhado, e que estamos consigo sempre.+ simplesOs consultores Zome têm uma formação única no mercado, ancorada na partilha de experiência prática entre profissionais e fortalecida pelo conhecimento de neurociência aplicada que lhes permite simplificar e tornar mais eficaz a sua experiência imobiliária.Deixe para trás os pesadelos burocráticos porque na Zome encontra o apoio total de uma equipa experiente e multidisciplinar que lhe dá suporte prático em todos os aspetos fundamentais, para que a sua experiência imobiliária supere as expectativas.+ felizO nosso maior valor é entregar-lhe felicidade!Liberte-se de preocupações e ganhe o tempo de qualidade que necessita para se dedicar ao que lhe faz mais feliz.Agimos diariamente para trazer mais valor à sua vida com o aconselhamento fiável de que precisa para, juntos, conseguirmos atingir os melhores resultados.Com a Zome nunca vai estar perdido ou desacompanhado e encontrará algo que não tem preço: a sua máxima tranquilidade!É assim que se vai sentir ao longo de toda a experiência: Tranquilo, seguro, confortável e... FELIZ!Notas:1. Caso seja um consultor imobiliário, este imóvel está disponível para partilha de negócio. Não hesite em apresentar aos seus clientes compradores e fale connosco para agendar a sua visita.2. Para maior facilidade na identificação deste imóvel, por favor, refira o respetivo ID ZMPT ou o respetivo agente que lhe tenha enviado a sugestão.
AMI: 17432
Ref. Externa: ZMPT583444
Id: 1507512
Inicie sessão para guardar este imóvel e aceder à sua lista de favoritos em qualquer dispositivo.
Profissionais que conhecem esta zona a fundo — contacte-os para uma avaliação personalizada.
545.000 €
5 Quartos
3 WCs
Área bruta : 196 m²
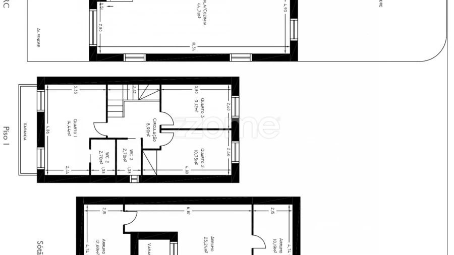
Identificação do imóvel: ZMPT583323Moradia T4+1, 3 frentes, em lote de 355m2, localizada em Vila Chã - Vila do Conde, com as seguintes características:- ABP: 196,00 m2- ABC: 229,00 m2- Lote: 355 m2- Moradia geminada de 2 pisos- 3 frentes: nascente/poente/norte- Garagem fechada exterior e anexo- Piso 0: Hall de entrada, sala de estar voltada a poente, escritório com luz direta, corredor, casa de banho completa, despensa e cozinha.- Piso 1: Hall dos quartos, casa de banho completa de apoio aos 3 quartos e suite com varanda voltada a poente.Moradia localizada em Vila Chã - Vila do Conde - a 100m da praia e passadiço marítimo. Inserida em lote de 355m2 com vista mar em zona residencial de habitações unifamiliares.LOCALIZAÇÃO- 2 minutos a pé da praia da Laderça, passadiço marítimo e Bar Laderça- á distância de 1000 metros de restaurantes, cafés, confeitarias e bares de praia- a 700 metros da Farmácia Fátima- a 2.5 km do Outlet Vila do Conde e Continente- a 2.5 km da A28- a 4 km da Zona Industrial da Varziela- a 8 km de Vila do Conde- a 15 km do Aeroporto Francisco Sá Carneiro- a 20 km do Porto de Leixões- a 23 km do Porto- a 2.5 km - Estação de Metro Outlet- a 3 km - Estação de Metro Mindelo- a 700 metros - Escola Básica do 1º ciclo e Jardim de Infância do FachoEntre em contacto para mais informações sobre esta moradia T4+1 com vista mar inserida em lote com 355 m2 em Vila Chã - Vila do Conde á distância de 2 minutos a pé da praia.Nota: para maior facilidade na identificação deste imóvel, por favor, refira o respetivo ID. Em caso de agendamento de visita, faça-se acompanhar de um documento de identificação.3 razões para comprar com a Zome+ acompanhamentoCom uma preparação e experiência única no mercado imobiliário, os consultores Zome põem toda a sua dedicação em dar-lhe o melhor acompanhamento, orientando-o com a máxima confiança, na direção certa das suas necessidades e ambições.Daqui para a frente, vamos criar uma relação próxima e escutar com atenção as suas expectativas, porque a nossa prioridade é a sua felicidade! Porque é importante que sinta que está acompanhado, e que estamos consigo sempre.+ simplesOs consultores Zome têm uma formação única no mercado, ancorada na partilha de experiência prática entre profissionais e fortalecida pelo conhecimento de neurociência aplicada que lhes permite simplificar e tornar mais eficaz a sua experiência imobiliária.Deixe para trás os pesadelos burocráticos porque na Zome encontra o apoio total de uma equipa experiente e multidisciplinar que lhe dá suporte prático em todos os aspetos fundamentais, para que a sua experiência imobiliária supere as expectativas.+ felizO nosso maior valor é entregar-lhe felicidade!Liberte-se de preocupações e ganhe o tempo de qualidade que necessita para se dedicar ao que lhe faz mais feliz.Agimos diariamente para trazer mais valor à sua vida com o aconselhamento fiável de que precisa para, juntos, conseguirmos atingir os melhores resultados.Com a Zome nunca vai estar perdido ou desacompanhado e encontrará algo que não tem preço: a sua máxima tranquilidade!É assim que se vai sentir ao longo de toda a experiência: Tranquilo, seguro, confortável e... FELIZ!Notas:1. Caso seja um consultor imobiliário, este imóvel está disponível para partilha de negócio. Não hesite em apresentar aos seus clientes compradores e fale connosco para agendar a sua visita.2. Para maior facilidade na identificação deste imóvel, por favor, refira o respetivo ID ZMPT ou o respetivo agente que lhe tenha enviado a sugestão.
AMI: 17432
Ref. Externa: ZMPT583323
Id: 1501796
Inicie sessão para guardar este imóvel e aceder à sua lista de favoritos em qualquer dispositivo.
545.000 €
3 Quartos
3 WCs
Área bruta : 239 m²
Moradia T3 em Mindelo Próxima da Praia e Inserida em Zona Residencial de Excelência Apresentamos uma moradia V3 localizada numa das áreas mais exclusivas de Mindelo, a escassos minutos da praia e integrada num ambiente calmo e familiar. Com áreas amplas, excelente entrada de luz natural e uma relação fluida com o exterior, esta propriedade oferece o equilíbrio perfeito entre conforto, privacidade e conveniência. A sua localização privilegiada permite desfrutar da tranquilidade de um cenário costeiro, garantindo simultaneamente acesso rápido a comércio, serviços e às principais vias de comunicação. Espaços Interiores e Exteriores Sala ampla Zona social com excelentes dimensões, ideal para convívio e momentos em família. Cozinha com acesso ao exterior Funcionalidade aliada à praticidade do acesso direto ao terraço, promovendo uma experiência contínua entre o interior e o exterior. 3 quartos confortáveis Inclui uma suite com varanda e casa de banho privada. Todos os quartos oferecem boa luminosidade e soluções de arrumação. Espaço exterior acolhedor Pátio ideal para refeições ao ar livre, lazer e relaxamento. Garagem e zona de arrumos Estacionamento privativo e espaço adicional para armazenamento. Áreas e Características Área Total: 240 m² Área Privativa: 220 m² Área Útil: 202 m² Terreno: 360 m² Localização e Pontos de Interesse Próxima da Praia de Mindelo Um convite diário para caminhadas, atividades ao ar livre e relaxamento junto ao mar. Comércio e serviços a poucos minutos: Pingo Doce Mindelo Restaurantes, cafés e pastelarias Farmácia e comércio tradicional Outros serviços essenciais Acessos e transportes: Ligação rápida à A28 (Porto Viana do Castelo) Paragens de autocarro próximas A 510 min do centro de Vila do Conde Fácil acesso ao metro via estações próximas (por automóvel) Escolas e equipamentos públicos Servida por diversos estabelecimentos de ensino e espaços desportivos na zona envolvente. Uma Excelente Oportunidade Uma moradia que reúne a proximidade ao mar, o conforto moderno e a qualidade de vida numa zona residencial de grande valorização. Ideal para quem procura tranquilidade, bem-estar e um lar funcional a poucos passos da praia. Acompanhamento Completo e Profissional no Processo de Aquisição Na Invest 351, asseguramos um acompanhamento total e dedicado durante todo o processo de aquisição do seu imóvel, desde o primeiro contacto até à escritura e mesmo após a conclusão da compra. Financiamento com as Melhores Propostas do Mercado Trabalhamos com o nosso parceiro de Intermediação de Crédito, devidamente autorizado pelo Banco de Portugal, para lhe oferecer as melhores condições de financiamento para o Crédito à Habitação, de acordo com as suas necessidades e objetivos. Mediação Imobiliária Nacional e Internacional Especializamo-nos na intermediação de operações de compra e venda de imóveis tanto no mercado nacional quanto internacional, onde a discrição, a confidencialidade e a segurança são a nossa prioridade. Para além do acesso privilegiado ao mercado português, contamos com uma vasta rede de investidores internacionais que procuram as oportunidades únicas que Portugal oferece. Invest in your dreams Invest351
AMI: 19960
Ref. Externa: PO-0011 - Moradia T3 em Mindelo
Id: 1490980
Inicie sessão para guardar este imóvel e aceder à sua lista de favoritos em qualquer dispositivo.
740.000 €
3 Quartos
4 WCs
Área bruta : 440 m²
ÚLTIMA moradia T3, em construção, para comprar em Vila Chã, Vila do Conde, Porto. Condomínio Residencial com piscina, composto por 11 moradias T3, com amplas áreas e com uma arquitetura contemporânea, que interpretam na perfeição a ideia de um modo de vida tranquilo assente no conforto e bem-estar. O Empreendimento foi pensado para facilitar o dia-a-dia e permitir o desfrutar da habitação. Compartimentos amplos e bem orientados, sem corredores ou outros espaços exíguos e com favorecimento da luz natural. A arquitetura é minimalista e os destaques foram realizados em materiais nobres e com a presença e temperatura certas para que se sinta sempre em casa. Esta última moradia tem uma área útil de 250 m2, varanda de 16m2, garagem de 31m2 e ainda um jardim de 142m2, com exposição solar nascente/poente/sul. Para além disto pode usufruir de uma piscina para adultos, outra para crianças e um parque infantil, que fazem parte do condomínio. A tecnologia está ao serviço para garantir o melhor conforto térmico e acústico em simbiose com as soluções mais sustentáveis. As casas beneficiarão de sistemas de bombas de calor e painéis solares com a melhor eficiência energética, aquecimento/arrefecimento por piso radiante em todas as divisões, sistema de ventilação mecânica controlada e sistemas de domótica e iluminação LED. A natureza será privilegiada nos locais de circulação exteriores com a escolha de materiais permeáveis para diminuir o impacto da construção no solo. As casas serão dotadas de materiais naturais sempre que possível e de materiais sintéticos de longa durabilidade sempre que necessário, com métodos de produção sustentáveis e de menor impacto. As soluções de maior exposição ao desgaste do tempo foram pensadas para conferir a maior resistência por forma a reduzir o impacto das operações de manutenção e conservação. O consumo de energia é uma inevitabilidade, mas escolhemos faze-lo da forma mais sustentável. A adoção de soluções que consomem energia da forma mais eficiente e de fontes renováveis, aliada ao máximo cuidado na conservação da mesma, com a adoção de materiais isolantes que impedem o seu desperdício, procuram garantir o menor impacte ecológico. A qualidade foi uma prioridade na conceção do empreendimento. Conclusão da obra previsto para final de Agosto de 2025. Com o Porto a 20 min., Vila do Conde a 10 min., o aeroporto Francisco Sá Carneiro a 15 min. e a poucos minutos de diversas marinas, o Empreendimento Rosa Chá Villas, situado junto às praias de Mindelo e Vila Chã (450 metros), é o local perfeito para a sua família. Um excelente destino de férias e uma fantástica habitação permanente. Os quilómetros de praias fantásticas de todas as naturezas, a Reserva Ornitológica de Mindelo (380 ha), a Ecovia do Litoral Sul (8,6 km) e as românticas cidades de Porto e o seu vale do Douro Vinhateiro, Matosinhos, Vila do Conde e Póvoa de Varzim são locais ideais para relaxar, praticar desporto ou partir à descoberta. Plano de pagamento: 30% CPCV 10% reforço de sinal 60% na escritura Ligue agora e marque a sua visita! OBS: as imagens são meramente ilustrativas, podendo não fazer referência ao imóvel em questão. Nota para Consultores Imobiliários: Este imóvel está disponível para partilha de negócio. Se tiver clientes interessados, entre em contato connosco para agendar uma visita. AMI: 13781 Entreparedes Real Estate - Profissionalismo e Dedicação ao seu Serviço A Entreparedes Real Estate é uma referência no mercado de Venda e Administração de Imóveis, reconhecida pelo seu compromisso com a seriedade, o respeito e a ética na prestação de serviços imobiliários. Nossa equipe é composta por profissionais experientes e multilíngues, que oferecem um atendimento personalizado e focado nas necessidades de cada cliente. Trabalhamos incessantemente para proporcionar a máxima satisfação aos nossos clientes, seja na compra, venda ou administração de imóveis. Diferenciais da Entreparedes: - Tecnologia de Ponta: Usamos as ferramentas mais modernas para garantir uma divulgação ampla e eficaz dos imóveis. - Gestão Completa: Cuidamos de todo o processo, desde a negociação inicial até o pós-venda, assegurando uma experiência tranquila e bem-sucedida. - Foco na Rentabilidade: Visamos proporcionar o melhor retorno aos nossos clientes, sempre com o foco na qualidade e na valorização dos ativos imobiliários. Na Entreparedes, um cliente satisfeito é nossa maior conquista. Estamos aqui para tornar sua experiência imobiliária simples, segura e gratificante.
AMI: 13781
Ref. Externa: CAS_2295_K
Id: 1461070
Inicie sessão para guardar este imóvel e aceder à sua lista de favoritos em qualquer dispositivo.
365.000 €
3 Quartos
2 WCs
Área bruta : 132 m²
Exclusivo Apartamento T3 Mobilado com Vista Maravilhosa para o Mar em Vila Chã, Vila do Conde. Viva ao Ritmo do Mar e do Luxo! Descrição: Imagine acordar todos os dias com vistas deslumbrantes sobre o oceano, numa casa pensada para proporcionar conforto e elegância. Este luxuoso apartamento T3, completamente mobilado e localizado numa das zonas mais prestigiadas de Vila Chã, é o refúgio perfeito para quem valoriza uma vida com qualidade superior. Características Principais que fazem deste apartamento uma escolha irresistível: • Vista Panorâmica para o Mar Relaxe e aproveite uma paisagem inesquecível com vista para o mar, onde o horizonte se encontra com o oceano. • Terraço e Varanda com Exposição Solar Ideal Um terraço espaçoso voltado a nascente e sul, perfeito para desfrutar do sol durante todo o dia, e uma varanda a poente, ideal para ver o pôr-do-sol ao final do dia. • Cozinha Totalmente Equipada Cozinha moderna e prática, equipada para proporcionar uma experiência culinária de excelência. • Quartos Confortáveis e Elegantemente Mobilados Três quartos mobilados com atenção ao detalhe e conforto, incluindo uma suíte com closet e casa de banho privada. • Casas de Banho com luz natural e renovadas com materiais de primeira qualidade. Com acabamentos modernos e renovados, perfeitas para desfrutar do máximo de conforto e funcionalidade. • Estacionamento e Arrecadação Seguros Box fechada na cave que oferece comodidade e segurança para os seus bens. ?Localização Privilegiada na Praia da Congreira Situado perto da charmosa Praia da Congreira, este apartamento combina o encanto da vida à beira-mar com a conveniência da cidade. Está próximo de escolas, do prestigiado Outlet de Vila do Conde e com acesso fácil a transportes públicos, tornando-o ideal para quem deseja um estilo de vida com o melhor dos dois mundos. Este imóvel mobilado e pronto a habitar é uma oportunidade única para quem procura elegância, conforto e uma localização excepcional. ? Contacte-nos para agendar a sua visita e deixe-se encantar por este imóvel excecional. Aqui, o seu novo lar à beira-mar espera por si! Outros Detalhes Importantes: • Exterior: Parqueamento; Terraço/Deck; Vídeo Porteiro • Interior: Hall de entrada; Casa de Banho na Suíte; Closet; Roupeiros embutidos; Lavandaria • Características Gerais: Remodelado; Portão elétrico • Orientação: Nascente, Sul, Poente • Equipamento: Frigorífico incluído • Vistas: Vista mar excecional • Adicionais: Box (1 lugar); Varanda; Cozinha equipada; Suíte
AMI: 11829
Ref. Externa: 1202-3165
Id: 1426523
Inicie sessão para guardar este imóvel e aceder à sua lista de favoritos em qualquer dispositivo.
740.000 €
3 Quartos
4 WCs
Área bruta : 238 m²
Moradia T3 Nova em Condomínio com Piscina e Vista Mar em Vila Chá, Vila do Conde, Porto Moradia nova, minimalista, junto à praia de vila chá, vila do conde, num condomínio constituído por 11 moradias, que proporciona conforto e comodidade com jardim, piscina de adultos e outra para crianças, parque infantil e garagem para dois carros.Para além da elevada qualidade de construção e acabamentos, estas moradias estão numa localização de excelência, a escassos metros da praia de vila chá, a 20 minutos do Porto, a 15 do aeroporto e 10 de Vila do Conde. Composta por dois pisos: Res do Chão- Sala; - Cozinha com ilha, mobilada e equipada com placa, forno, exaustor e microondas; - Lavandaria; - WC de serviço; - Garagem para 2 carros e jardim. 1º Piso - Hall; - 3 Suítes todas com varanda e vista mar; Outros: Climatização- Quente/Frio por piso radiante associado a bomba de calor monobloco com termostato.Aquecimento de água por bomba de calor com reservatório de 300L. Sistema fotovoltaico de produção de energia elétrica para consumo próprio. Pré instalação de rede para tomada de carregamento elétrico para automóvel. Data prevista de entrega em Junho de 2025. Os acabamentos são todos em materiais de alta qualidade, se pretendem mapa de acabamentos não hesite em entrar em contato! Não perca mais tempo e agende visita a fim de garantir a sua moradia de sonho! PORQUÊ COMPRAR COM A KELLER WILLIAMS?Nós gostamos de ajudar os compradores a encontrar a sua casa de sonho! É por isso que trabalhamos com cada cliente individual, dedicando o tempo necessário para entender o seu estilo de vida, necessidades e desejos. Somos especialistas em trabalhar com as pessoas que estão a comprar uma casa e gostaríamos de lhe mostrar de que forma podemos comprar a sua casa.QUANDO ESCOLHE A KELLER WILLIAMS, OBTÉM:Um agente imobiliário profissional e conhecedor do mercadoUm aliado comprometido em negociar no seu interesseOs sistemas e ferramentas necessárias para agilizar a compra da sua casaO apoio de uma empresa de confiançaCOMPROMETEMOS-NOS A AJUDÁ-LO NA COMPRA DA SUA CASA ATRAVÉS DE:Visualização das casas com antecedênciaManter a informação sobre novas casas no mercadoAjudar a pesquisar na webInformação sobre outras casas vendidas e por que valoresTrabalhar até encontrar outras casas vendidas e por que valores Trabalhar até encontrar a casa dos seus sonhosApresentação das melhores soluções financeiras para aquisição do imóvelApoio no processo de financiamento (se requerido) Apoio na avaliação do imóvel Apoio na marcação e realização do CPCVApoio e presença na marcação e realização da escritura de compra e venda.NA KELLER WILLIAMS, conta com mais de 2.000 profissionais especializados, agradece aos clientes a confiança demonstrada no nosso trabalho, o que nos permite ser hoje uma referência Nacional.Ao seu dispor, dedicando todo o dia de trabalho para lhe prestar um serviço de excelência! Estou à sua total disposição para ajudar. Características: Características Exteriores - Condomínio Fechado; Jardim; Parqueamento; Piscina exterior; Terraço/Deck; Porta blindada; Video Porteiro; Andar baixo; Common Areas; Características Interiores - Hall de entrada; Pavimento Radiante; Electrodomésticos embutidos; Casa de Banho da Suite; Closet; Roupeiros; Lavandaria; Cozinha Americana; Deck; Características Gerais - Primeiro Proprietário; Despensa; Portão eléctrico; Outros Equipamentos - Serviço de internet; Sistema de Segurança; Painéis Solares; Micro-ondas; Vistas - Vista jardim; Vista campo; Outras características - Garagem; Varanda; Garagem para 2 Carros; Cozinha Equipada; Suite; Moradia;
AMI: 23524
Ref. Externa: 1214-3376
Id: 1425855
Inicie sessão para guardar este imóvel e aceder à sua lista de favoritos em qualquer dispositivo.
575.000 €
3 Quartos
2 WCs
Área bruta : 226 m²
MORADIA T3 com garagem, junto à praia, em Vila Chã, Vila do Conde Localização e envolvente: Localização em zona habitacional calma. Fácil acesso/distribuição automóvel e pedonal. Na envolvente existe oferta de serviços (cafés, padarias, supermercados...). A 500m da praia. Principais características: - 2 pisos - 3 frentes (orientação poente/sul/norte) - garagem fechada - a 500m da praia Zona social (Piso 0): - átrio de entrada - cozinha (23,97m2) equipada com forno (BOSCH), placa (SIEMENS), exaustor (BOSCH), frigorífico (SAMSUNG), com despensa e acesso direto ao exterior - despensa (3,33m2) - instalação sanitária de serviço (2,81m2) com sanita e lavatório - sala comum (42,75m2) com lareira com recuperador de calor - escadaria de acesso ao piso superior Zona privada (Piso 1): - átrio de distribuição dos quartos - instalação sanitária (8,95m2) de apoio aos quartos com sanita, lavatório e banheira de hidromassagem - quarto (13,00m2) com armários embutidos - quarto (13,00m2) com armários embutidos - suite (19,50m2) com armários embutidos, quarto de vestir (3,45m2) e instalação sanitária (6,20m2) com sanita, lavatório e banheira de hidromassagem, com acesso a uma varanda - varanda Outras características e valências: - zona social com pavimento em cerâmico retificado - caixilharias em alumínio com vidros duplos - zona privada com pavimento em soalho flutuante - instalações sanitárias do piso 1 com iluminação e ventilação natural - tetos falsos com focos embutidos - estores elétricos - aspiração central - aquecimento central - intercomunicador - alarme Pontos de interesse: - a 500m da praia de Laderça - a 500m de um café/bar - a 550m da Praia do Pinhal - a 550m de um restaurante (Dunas) - a 750m do Parque de Campismo de Vila Chã - a 1,2km de um minimercado - a 1,2km de uma peixaria - a 1,2km do Clube Atlântico (bar/discoteca) - a 1,2km da Praia de Mindelo - a 1,3km de uma confeitaria - a 2,1km do Vila do Conde Fashion Outlet Transportes e acessos: - a 2,7km do metro (Estação do Mindelo) - a 2,8km da EN13 - a 3,0km do metro (Estação Fashion Outlet) - a 3,6km da A28 - a 12,1km do Aeroporto Francisco de Sá Carneiro - a 18,6km do Terminal de Cruzeiros do Porto de Leixões Áreas (conforme a Caderneta Predial Urbana): - Área total do terreno: 231,00 m2 - Área de implantação do edifício: 122,00 m2 - Área bruta de construção: 226,00 m2 - Área bruta dependente: 18,00 m2 - Área bruta privativa: 208,00 m2 Outros valores: - valor do IMI: apróx: 665,00€ (anual) Nota: para maior facilidade na identificação deste imóvel, por favor, refira o respectivo ID. Em caso de agendamento de visita, faça-se acompanhar de um documento de identificação. Muito obrigado! ***** ;ID RE/MAX: 126401038-247
AMI: 7772
Ref. Externa: 126401038-247
Id: 1382726
Inicie sessão para guardar este imóvel e aceder à sua lista de favoritos em qualquer dispositivo.
740.000 €
3 Quartos
4 WCs
Área bruta : 284 m²
Moradia V3 em fase de construção, em Vila Chã. Estará inserida num condomínio fechado com logradouro e piscina comuns e irá dispor de acabamentos de elevada qualidade. Será constituída por sala ampla, cozinha equipada, lavandaria, três suites com roupeiros embutidos mais uma casa de banho, duas varandas e garagem fechada para dois carros. Poderá usufruir de comodidades como: - janelas com caixilharia em alumínio, vidros duplos e estores elétricos; - bomba de calor; - piso radiante com termostato para regulação da temperatura; - painéis solares; - pré-instalação de rede para tomada de carregamento elétrico para automóvel; - vídeo porteiro; - pré-instalação de alarme; - sistema de domótica; E muito mais... Marque já a sua visita presencial ou virtual! Ref.: EX02883 Visite-nos, somos a solução que procura! A Exímios é uma empresa especializada em mediação imobiliária, com profissionais altamente qualificados e experientes. A nossa prioridade é prestar um serviço de qualidade e de oferta variada. Queremos crescer como empresa, e isso só é possível através de uma postura séria que privilegie a relação com o cliente. Não há dois clientes iguais, nem uma solução rápida para os problemas. Por isso, ouvimos, analisamos e depois apresentamos propostas que acrescentem valor. Prestamos um acompanhamento constante em todo o processo de compra ou venda do seu imóvel. Sabemos que é importante mantê-lo/a informado, pois as decisões tomadas podem mudar a sua vida. Estamos preparados para atender todas as necessidades dos nossos clientes.
AMI: 12903
Ref. Externa: EX02883 (Rosa Chá)
Id: 1356584
Inicie sessão para guardar este imóvel e aceder à sua lista de favoritos em qualquer dispositivo.
450.000 €
3 Quartos
2 WCs
Área bruta : 244 m²
✨ Penthouse T3 com Terraço e Vista Mar – Vila Chã, Vila do Conde ✨ Imagine viver a apenas 450 metros da praia, num espaço onde o conforto, a tranquilidade e a proximidade ao mar se encontram em perfeita harmonia. Esta magnífica penthouse T3 oferece: ✅ Vista mar deslumbrante. ✅ Áreas amplas e luminosas, com excelente exposição solar nascente/sul/poente ✅ Terraço ideal para relaxar e receber amigos ✅ Garagem fechada para 1 carro Com uma localização privilegiada, é a escolha perfeita para quem procura qualidade de vida junto ao mar. Nota: Imóvel está neste Momento com contrato de arrendamento por 24 meses. Excelente investimento para quem procura um investimento seguro . �� Contacte para mais informações ou para agendar a sua visita! A MILLION GROUP surge da união de sinergias, da complementaridade e experiência dos seus fundadores. Que iniciaram a sua colaboração sob a matriz de uma marca internacional e decidem criar um novo conceito para o setor imobiliário. Sentiram os desafios com uma perspetiva mais universal e flexível na abordagem do mercado imobiliário, e a criação da marca MILLION GROUP vem responder a todas as necessidades. Era preciso dar corpo a uma filosofia e uma forma de estar no mercado, nova e diferenciadora. Os nossos valores CONFIANÇA, PROXIMIDADE, MATURIDADE, UNIVERSALIDADE. CONFIANÇA – Conquistada interna e externamente pelo rigor e a lealdade na relação que estabelecemos com os nossos Consultores, Parceiros, Clientes e Amigos. PROXIMIDADE – Uma relação sincera, com acompanhamento, apoio e disponibilidade permanente. MATURIDADE – Um património de experiência e conhecimento no mercado imobiliário. UNIVERSALIDADE – Baseada numa presença abrangente em todos os segmentos de mercado, a profissionalizar os nossos consultores com foco na satisfação dos nossos clientes. O que fazemos "Concretizamos sonhos" Uma verdadeira síntese emocional do que fazemos todos os dias. Conciliamos compradores e vendedores, promovemos negócios e apoiamos a sua concretização.
AMI: 22034
Ref. Externa: MG01763
Id: 1280771
Inicie sessão para guardar este imóvel e aceder à sua lista de favoritos em qualquer dispositivo.
445.000 €
3 Quartos
2 WCs
Área bruta : 121 m²
?️ Fantástico Apartamento T3 com Vista Mar em Vila Chã, Vila do Conde em fase final de Renovação total. Descubra este maravilhoso apartamento T3, com excelentes vistas para o mar e localizado a poucos passos da praia, numa das zonas mais tranquilas e procuradas de Vila Chã. Inserido em condomínio fechado, oferece total segurança e privacidade. Conta com piscina para momentos de lazer, cozinha totalmente equipada, varanda perfeita para relaxar e uma garagem fechada para 2 carros. Apesar de não ter elevador, destaca-se pela funcionalidade, conforto e proximidade do mar, tornando-se ideal para habitação própria, férias ou investimento. ✨ Principais vantagens: ✔️ Vista mar deslumbrante ✔️ Condomínio fechado com piscina ✔️ Cozinha equipada e varanda ✔️ Garagem fechada para 2 viaturas ✔️ Localização privilegiada, perto da praia A MILLION GROUP surge da união de sinergias, da complementaridade e experiência dos seus fundadores. Que iniciaram a sua colaboração sob a matriz de uma marca internacional e decidem criar um novo conceito para o setor imobiliário. Sentiram os desafios com uma perspetiva mais universal e flexível na abordagem do mercado imobiliário, e a criação da marca MILLION GROUP vem responder a todas as necessidades. Era preciso dar corpo a uma filosofia e uma forma de estar no mercado, nova e diferenciadora. Os nossos valores CONFIANÇA, PROXIMIDADE, MATURIDADE, UNIVERSALIDADE. CONFIANÇA – Conquistada interna e externamente pelo rigor e a lealdade na relação que estabelecemos com os nossos Consultores, Parceiros, Clientes e Amigos. PROXIMIDADE – Uma relação sincera, com acompanhamento, apoio e disponibilidade permanente. MATURIDADE – Um património de experiência e conhecimento no mercado imobiliário. UNIVERSALIDADE – Baseada numa presença abrangente em todos os segmentos de mercado, a profissionalizar os nossos consultores com foco na satisfação dos nossos clientes. O que fazemos "Concretizamos sonhos" Uma verdadeira síntese emocional do que fazemos todos os dias. Conciliamos compradores e vendedores, promovemos negócios e apoiamos a sua concretização.
AMI: 22034
Ref. Externa: MG01762
Id: 1279156
Inicie sessão para guardar este imóvel e aceder à sua lista de favoritos em qualquer dispositivo.
380.000 €
4 Quartos
2 WCs
Área bruta : 106 m²
Identificação do imóvel: ZMPT578034Moradia T4 com terraço, em Vila-Chã, Vila do Conde, Porto, com as seguintes características:• Área de 156 m2.• Dois pisos• O interior é composto por:• Piso 0: hall de entrada, sala com lareira, cozinha, 2 quartos, casa de banho de serviço.• Piso 1: hall, 2 quartos, uma salinha e uma casa de banho completa.• Garagem exterior com capacidade.• Arrumos e lavandaria.• Poço e terraço• Facilidade extra de estacionamento nas redondezas da moradia.Esta moradia encontra-se numa localização privilegiada, perto da praia, perto do Outlet de Vila de Conde e perto de escolas, farmácia e supermercados.Bons acessos e transportes (metro e Autocarro). Tendo a EN13 e a A28 a menos de 3 minutos.A moradia dispõe de boas áreas e organização bastante funcional, com espaços caracterizados pela presença constante de luz natural e muito bom isolamento térmico.• Certificado energético CEsta pode ser a sua próxima casa!Contacte-nos para obter mais informações acerca desta moradia T4 perto da praia em Vila Chã, com comércio e serviços muito próximos. Temos todo o gosto em ajudara concretizar este investimento.Nota: para maior facilidade na identificação deste imóvel, por favor, refira o respetivo ID. Em casode agendamento de visita, faça-se acompanhar de um documento de identificação.Palavras-chaveT4 Moradia Vila Chã Terraço Garagem Praia3 razões para comprar com a Zome+ acompanhamentoCom uma preparação e experiência única no mercado imobiliário, os consultores Zome põem toda a sua dedicação em dar-lhe o melhor acompanhamento, orientando-o com a máxima confiança, na direção certa das suas necessidades e ambições.Daqui para a frente, vamos criar uma relação próxima e escutar com atenção as suas expectativas, porque a nossa prioridade é a sua felicidade! Porque é importante que sinta que está acompanhado, e que estamos consigo sempre.+ simplesOs consultores Zome têm uma formação única no mercado, ancorada na partilha de experiência prática entre profissionais e fortalecida pelo conhecimento de neurociência aplicada que lhes permite simplificar e tornar mais eficaz a sua experiência imobiliária.Deixe para trás os pesadelos burocráticos porque na Zome encontra o apoio total de uma equipa experiente e multidisciplinar que lhe dá suporte prático em todos os aspetos fundamentais, para que a sua experiência imobiliária supere as expectativas.+ felizO nosso maior valor é entregar-lhe felicidade!Liberte-se de preocupações e ganhe o tempo de qualidade que necessita para se dedicar ao que lhe faz mais feliz.Agimos diariamente para trazer mais valor à sua vida com o aconselhamento fiável de que precisa para, juntos, conseguirmos atingir os melhores resultados.Com a Zome nunca vai estar perdido ou desacompanhado e encontrará algo que não tem preço: a sua máxima tranquilidade!É assim que se vai sentir ao longo de toda a experiência: Tranquilo, seguro, confortável e... FELIZ!Notas:1. Caso seja um consultor imobiliário, este imóvel está disponível para partilha de negócio. Não hesite em apresentar aos seus clientes compradores e fale connosco para agendar a sua visita.2. Para maior facilidade na identificação deste imóvel, por favor, refira o respetivo ID ZMPT ou o respetivo agente que lhe tenha enviado a sugestão.
AMI: 17432
Ref. Externa: ZMPT578034
Id: 1243515
Inicie sessão para guardar este imóvel e aceder à sua lista de favoritos em qualquer dispositivo.
© Copyright 2023 | CASACERTA. All rights reserved
Guardar favoritos
Este imóvel foi guardados nos seus favoritos com sucesso.
Para poder guardar pesquisa deverá ter a sua sessão iniciada.
Caso não tenha uma conta, deverá criar uma.
A sua pesquisa foi guardada com sucesso!
Este site utiliza cookies. Ao navegar no site estará a consentir a sua utilização.
Para mais informações sobre os cookies pode consultar a
política de privacidade.