Lista
Comprar
Arrendar
93.000 €
3 Quartos
2 WCs
Área bruta : 122 m²
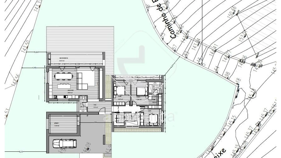
Identificação do imóvel: ZMPT586835Num enquadramento de rara beleza natural, nasce esta exclusiva moradia T3, atualmente em fase de construção, disponível para comercialização no estado em que se encontra, na tranquila freguesia de Bravães, em Ponte da Barca.Inserida na Rua da Roda, esta propriedade nasce da reabilitação de uma antiga ruína, combinando o charme rústico com um projeto moderno já aprovado.O alvará de construção encontra-se pronto a ser levantado, garantindo total segurança e celeridade na continuidade da obra.Pensada para proporcionar conforto, funcionalidade e integração com a paisagem envolvente, esta moradia oferece uma oportunidade única de personalização, permitindo ao futuro proprietário concluir o projeto ao seu gosto, sem abdicar de uma base sólida e licenciada.O grande destaque vai para as suas vistas absolutamente deslumbrantes sobre a envolvente natural, onde o verde dominante e a tranquilidade criam um ambiente de exclusividade e bem-estar incomparáveis.Apesar do seu caráter reservado, a propriedade beneficia de uma localização estratégica, com excelentes acessos e proximidade às principais vias, nomeadamente à A28, permitindo uma ligação rápida a diversos pontos de interesse:- Ponte da Barca: a cerca de 5 minutos- Ponte de Lima: aproximadamente 15 minutos- Viana do Castelo: cerca de 30 minutos- Aeroporto Francisco Sá Carneiro: aproximadamente 50–55 minutosUma proposta distinta para quem valoriza autenticidade, privacidade e potencial de valorização, num cenário natural ímpar do Alto Minho.3 razões para comprar com a Zome+ acompanhamentoCom uma preparação e experiência única no mercado imobiliário, os consultores Zome põem toda a sua dedicação em dar-lhe o melhor acompanhamento, orientando-o com a máxima confiança, na direção certa das suas necessidades e ambições.Daqui para a frente, vamos criar uma relação próxima e escutar com atenção as suas expectativas, porque a nossa prioridade é a sua felicidade! Porque é importante que sinta que está acompanhado, e que estamos consigo sempre.+ simplesOs consultores Zome têm uma formação única no mercado, ancorada na partilha de experiência prática entre profissionais e fortalecida pelo conhecimento de neurociência aplicada que lhes permite simplificar e tornar mais eficaz a sua experiência imobiliária.Deixe para trás os pesadelos burocráticos porque na Zome encontra o apoio total de uma equipa experiente e multidisciplinar que lhe dá suporte prático em todos os aspetos fundamentais, para que a sua experiência imobiliária supere as expectativas.+ felizO nosso maior valor é entregar-lhe felicidade!Liberte-se de preocupações e ganhe o tempo de qualidade que necessita para se dedicar ao que lhe faz mais feliz.Agimos diariamente para trazer mais valor à sua vida com o aconselhamento fiável de que precisa para, juntos, conseguirmos atingir os melhores resultados.Com a Zome nunca vai estar perdido ou desacompanhado e encontrará algo que não tem preço: a sua máxima tranquilidade!É assim que se vai sentir ao longo de toda a experiência: Tranquilo, seguro, confortável e... FELIZ!Notas:1. Caso seja um consultor imobiliário, este imóvel está disponível para partilha de negócio. Não hesite em apresentar aos seus clientes compradores e fale connosco para agendar a sua visita.2. Para maior facilidade na identificação deste imóvel, por favor, refira o respetivo ID ZMPT ou o respetivo agente que lhe tenha enviado a sugestão.
AMI: 8174
Ref. Externa: ZMPT586835
Id: 1718050
Inicie sessão para guardar este imóvel e aceder à sua lista de favoritos em qualquer dispositivo.
340.000 €
3 Quartos
Área bruta : 160 m²
EXCLUSIVIDADE FNAI - Fábio Neves A maior e mais internacional agência do Alto Minho Moradia T3 em Bravães - Ponte da Barca Se procura uma casa confortável, rodeada pela natureza e pronta a habitar, esta pode ser a sua próxima casa! Localização: Bravães, zona tranquila e com bons acessos, a poucos minutos do centro de Ponte da Barca. Tipologia: T3 (com 1 suíte) Área útil: 115 m² Terreno: 1.100 m² Ano: 2023 Estado: Excelente Certificação energética: B Destaques: Mobilada e equipada Painéis solares Vistas para a serra Garagem aberta Zona de arrumos Ambiente sossegado, ideal para viver ou descansar Porque somos diferentes? Os nossos valores são Honestidade, Confiança, Verdade, Escuta, Paixão. Temos um serviço de apoio à construção, restauro e arquitetura para os nossos clientes. Falamos 13 línguas. Temos todos os serviços que são necessários de A-Z para que o cliente não se preocupe com mais nada. Também estamos no estrangeiro.
AMI: 21279
Ref. Externa: AVV-017-004
Id: 1478231
Inicie sessão para guardar este imóvel e aceder à sua lista de favoritos em qualquer dispositivo.
549.000 €
3 Quartos
3 WCs
Área bruta : 220 m²
Um projeto diferenciado irá ser edificado num local onde as vistas panorâmicas servem de pano de fundo e a exposição solar nos brinda o dia inteiro. Situada em Bravães, a 8 minutos do centro de Ponte da Barca, 20 de Viana do Castelo e 30 minutos de Braga, com a ligação do nó da A28 a menos de 10 minutos. Esta moradia de estilo moderno está dividida em 2 zonas: uma área social e outra privativa unidas pela entrada Principal. Uma moradia de estilo arrojado, tipologia T3, com mais uma divisão multifuncional que pode servir de quarto, escritório, ou arrumos. Três quartos um deles suite, com mais dois quartos apoiados por uma casa de banho completa, a casa terá ainda uma terceira casa de banho de serviço e apoio à área social. A área social composta por cozinha moderna e funcional, em comunicação com a sala, onde a luz natural e o quadro paisagístico da envolvente farão deste local, o local ideal para momentos em família e com os amigos. Varandas em todas as divisões, acessíveis por grandes caixilharias de alumínio com vidro duplo. Acabamentos modernos em harmonia com o desenho arquitetónico, no exterior, a propriedade permitirá ainda fazer uma piscina (opcional - não contemplada no orçamento). Comprar a casa na fase de construção, permite ainda adaptar ao seu gosto pessoal, o que será também uma vantagem - na Arcobarca, encontrará um profissional disponível para lhe apresentar este projeto. Bravães é uma das 23 freguesias do concelho de Ponte da Barca localizada na margem esquerda do Rio Lima, aqui encontra-se uma das mais antigas referências da arquitetura românica: o Mosteiro de Bravães. Bravães é uma freguesia com uma população de cerca de 600 habitantes. Uma freguesia dinâmica, principalmente no que se refere a atividades que recriam as mais antigas tradições do Alto Minho, promovendo por altura da Páscoa a recriação de “A Mui Dolorosa Paixão de Nosso Senhor Jesus Cristo"; e por altura das colheitas a recriação da "desfolhada minhota", recuperou ainda uma tradição extinta de produção das antigas "Gaitas de Foles" e possui o seu próprio grupo de gaiteiros que animam tantas romarias. A conclusão da obra e a entrega da chave está prevista para finais de 2026/inicio de 2027. Permita-se ver o seu sonho a nascer!!
AMI: 8178
Ref. Externa: AV6275
Id: 1193358
Inicie sessão para guardar este imóvel e aceder à sua lista de favoritos em qualquer dispositivo.
275.000 €
5 Quartos
Área bruta : 325 m²
Descubra esta moradia cheia de carácter e comodidade, situada a meros 5 minutos do vibrante centro de Ponte da Barca. Esta propriedade única é perfeita para quem procura a paz do campo com fácil acesso às comodidades urbanas, e dispõe de: - Piso Térreo: Um quarto acolhedor e uma sala/cozinha em open space, ideal para desfrutar de momentos em família. - Primeiro Andar: Sala espaçosa, cozinha totalmente equipada e 2 quartos confortáveis. - Sótão: Dois quartos adicionais e uma vasta área multiusos, perfeita para uma sala de lazer ou escritório. - Exterior: Jardim encantador com churrasqueira, poço de água e uma horta pronta a cultivar os seus vegetais favoritos. Uma oportunidade imperdível de viver num ambiente tranquilo e acolhedor. Marque já a sua visita!
AMI: 8178
Ref. Externa: AV5872
Id: 757966
Inicie sessão para guardar este imóvel e aceder à sua lista de favoritos em qualquer dispositivo.
Estes agentes são especialistas nesta zona:
Inicie sessão para ocultar este imóvel das suas pesquisas e manter a sua lista de resultados organizada.
© Copyright 2023 | CASACERTA. All rights reserved
Guardar favoritos
Este imóvel foi guardados nos seus favoritos com sucesso.
Para poder guardar pesquisa deverá ter a sua sessão iniciada.
Caso não tenha uma conta, deverá criar uma.
A sua pesquisa foi guardada com sucesso!
Este site utiliza cookies. Ao navegar no site estará a consentir a sua utilização.
Para mais informações sobre os cookies pode consultar a
política de privacidade.