Lista
Comprar
Arrendar
250.000 €
2 WCs
Área útil : 115 m²
Situado na Rua D. António Castro Meireles, n.º 109, este imóvel com 115 m² de área bruta privativa apresenta um enorme potencial de rentabilidade e adaptação. Atualmente com afetação a serviços, pode ser facilmente transformado num apartamento moderno ou numa residência estudantil com capacidade até 10 quartos. O espaço, amplo e versátil, permite a criação de zonas comuns confortáveis, como cozinha partilhada, lavandaria e sala de convívio, oferecendo uma excelente solução para arrendamento estudantil ou coliving. ? Localização: Ermesinde – junto a transportes, comércio e serviços ?️ Afectação atual: Serviços (com possibilidade de alteração para habitação) ? Área bruta privativa: 115 m² ? Potencial: até 10 quartos ? Ideal para investidores que procuram uma opção de alta rentabilidade num mercado em constante valorização. Edifício com elevador, boas áreas comuns e inserido numa zona consolidada e de grande procura. Uma oportunidade rara para converter e rentabilizar num dos polos urbanos mais dinâmicos de Valongo.
AMI: 16876
Ref. Externa: 11106
Id: 1460966
Inicie sessão para guardar este imóvel e aceder à sua lista de favoritos em qualquer dispositivo.
390.000 €
Área bruta : 705 m²
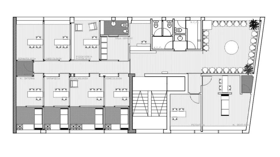
Escritório com 705m² em Condomínio Privado - Valongo Possibilidade de arrendamento parcial, adaptado às necessidades da sua empresa. Excelente oportunidade para empresas que procuram espaço, funcionalidade e localização estratégica! Este escritório está situado ao nível do rés-do-chão, inserido num condomínio privado em Valongo, e oferece 705m² de área útil, ideal para negócios em crescimento ou entidades que necessitem de instalações amplas e bem equipadas. Características principais: Receção ampla e funcional 20 salas/gabinetes, todas com ar condicionado Pavimentos em madeira e granito, que conferem elegância e durabilidade Copa equipada e bar de apoio para os colaboradores 3 casas de banho Lugar de garagem privativo Estacionamento exterior com vários lugares disponíveis Potencial de utilização: Perfeito para sede de empresa, escritórios partilhados, startups em expansão ou entidades públicas/municipais prestadoras de serviços. Localização privilegiada: Situado em Valongo, com acesso rápido à autoestrada e apenas a 10 minutos do centro do Porto, este imóvel garante uma localização estratégica com excelentes acessibilidades para clientes, parceiros e colaboradores. Se procura o espaço ideal para impulsionar o seu negócio, não perca esta oportunidade. Agende já a sua visita! REF: OFI_557
AMI: 2795
Ref. Externa: OFI_557
Id: 1414335
Inicie sessão para guardar este imóvel e aceder à sua lista de favoritos em qualquer dispositivo.
165.000 €
Área bruta : 119 m²
Escritório em Ermesinde, Valongo com 2 lugares de estacionamentoApresentamos este escritório com 81 m² de área bruta privativa e 38 m² de área dependente, localizado no 3.º andar de um edifício em regime de propriedade horizontal, na Rua Professor Correia de Sá Ermesinde (Valongo).Inserido num prédio de 8 pisos, este imóvel encontra-se afeto a serviços, sendo ideal para instalação de empresas, consultórios ou centros de negócios.Características principais: Área bruta privativa: 81 m² Área bruta dependente: 38 m² 2 Lugares de estacionamento Ar condicionado Localização estratégica, junto à Rua da Comital, em zona com grande movimento e excelente acessibilidade Inserido em edifício de referência em ErmesindeEste escritório oferece condições ideais para empresas que procuram amplitude, visibilidade e fácil acesso, numa das zonas mais dinâmicas e centrais de Valongo.Referência: ASP25087Com este imóvel recebe a garantia de um ambiente elegante e contemporâneo, onde o conforto está em primeiro plano.Por sermos intermediários de crédito devidamente autorizados pelo Banco de Portugal (Reg. 2736) fazemos a gestão de todo o seu processo de financiamento, sempre com as melhores soluções de mercado.Porquê escolher a AS ImobiliáriaCom mais de 14 anos no ramo imobiliário e milhares de famílias felizes, dispomos de 8 agências estrategicamente localizadas, para o servir com proximidade, corresponder à suas expectativas e ajudá-lo a adquirir a sua casa de sonho. Compromisso, Competência e Confiança são os nossos valores que entregamos aos nossos Clientes na hora de comprar, arrendar ou vender o seu imóvel.A nossa prioridade é a sua Felicidade!Especialistas imobiliários em Vizela; Guimarães; Taipas; Felgueiras; Lousada; Santo Tirso; Barcelos; S. João da Madeira; Porto; Lisboa; Braga.
AMI: 13249
Ref. Externa: ASP25087
Id: 1365349
Inicie sessão para guardar este imóvel e aceder à sua lista de favoritos em qualquer dispositivo.
280.000 €
Área bruta : 241 m²
Escritório em Ermesinde, Valongo com 4 lugares de estacionamentoApresentamos este escritório com 151 m² de área bruta privativa e 90 m² de área dependente, localizado no 3.º andar de um edifício em regime de propriedade horizontal, na Rua Professor Correia de Sá Ermesinde (Valongo).Inserido num prédio de 8 pisos, este imóvel encontra-se afeto a serviços, sendo ideal para instalação de empresas, consultórios ou centros de negócios.Características principais: Área bruta privativa: 151 m² Área bruta dependente: 90 m² 4 Lugares de estacionamento Ar Condicionado Localização estratégica, junto à Rua da Comital, em zona com grande movimento e excelente acessibilidade Inserido em edifício de referência em ErmesindeEste escritório oferece condições ideais para empresas que procuram amplitude, visibilidade e fácil acesso, numa das zonas mais dinâmicas e centrais de Valongo.Referência: ASP25086Com este imóvel recebe a garantia de um ambiente elegante e contemporâneo, onde o conforto está em primeiro plano.Por sermos intermediários de crédito devidamente autorizados pelo Banco de Portugal (Reg. 2736) fazemos a gestão de todo o seu processo de financiamento, sempre com as melhores soluções de mercado.Porquê escolher a AS ImobiliáriaCom mais de 14 anos no ramo imobiliário e milhares de famílias felizes, dispomos de 8 agências estrategicamente localizadas, para o servir com proximidade, corresponder à suas expectativas e ajudá-lo a adquirir a sua casa de sonho. Compromisso, Competência e Confiança são os nossos valores que entregamos aos nossos Clientes na hora de comprar, arrendar ou vender o seu imóvel.A nossa prioridade é a sua Felicidade!Especialistas imobiliários em Vizela; Guimarães; Taipas; Felgueiras; Lousada; Santo Tirso; Barcelos; S. João da Madeira; Porto; Lisboa; Braga.
AMI: 13249
Ref. Externa: ASP25086
Id: 1365348
Inicie sessão para guardar este imóvel e aceder à sua lista de favoritos em qualquer dispositivo.
Estes agentes são especialistas nesta zona:
Inicie sessão para ocultar este imóvel das suas pesquisas e manter a sua lista de resultados organizada.
Guardar favoritos
Este imóvel foi guardados nos seus favoritos com sucesso.
Para poder guardar pesquisa deverá ter a sua sessão iniciada.
Caso não tenha uma conta, deverá criar uma.
A sua pesquisa foi guardada com sucesso!
© Copyright 2023 | CASACERTA. All rights reserved
Este site utiliza cookies. Ao navegar no site estará a consentir a sua utilização.
Para mais informações sobre os cookies pode consultar a
política de privacidade.