Lista
Comprar
Arrendar
160.000 €
0 Quartos
0 WCs
Área bruta : 264 m²
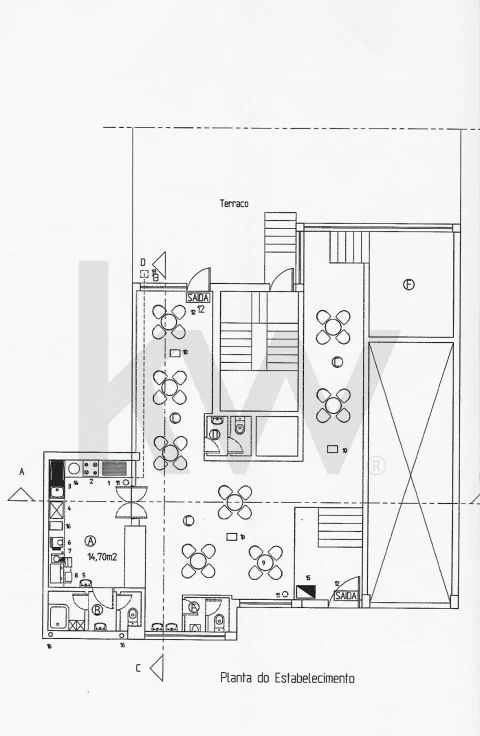
? Loja Térrea com Cave e Espaço Exterior Apresento-lhe um imóvel versátil e com enorme potencial,ideal para investidores que procuram transformar espaços comerciais emhabitação ou a exploração do comércio. ? Características Principais Área total interior: 264 m² Rés do Chão: 132 m² Cave: 132 m² Espaço Inserido num lote de 480 m² , tendo uma excelente área bruta de construção de 264 m² , conta ainda com um espaço exterior. Zona A 2 minutos a pé do Jardim Infantilda Associação do Centro Social de Escapães; A 1 minutos a pé do Parque de lazer do Eleito Local; A 1 minuto a pé da Unidade de Cuidados Continuados Dr. Manuel Neves; A 3 minutos a pé do centro de dia; A 1 minuto a pé do posto dos CTT ? LocalizaçãoSituado em Escapães, pertencendo ao concelho de Santa Maria da FeiraEste imóvel encontra-se a 2.6 Km do Hospital São Sebatião (Santa Maria da feira) e a 3 km de São João da Madeira.A 331 m da Estação do Vouguinha de Escapães.A 4 km do acesso à A1 e A47. ? Potencial de Transformação Com uma tipologia ampla e flexível, este imóvel é perfeitopara: Criação de uma moradia térrea (sujeito a viabilidade e licenciamento) Espaço comercial com excelente área de apoio ? Porquê investir? Excelente relação área/preço Espaço exterior que contém poço Potencial de valorização elevado Se procura um projeto com futuro, este é o imóvel ideal parasi. Este imóvel terá de ser vendido ao abrigo do Simplex, uma vez que não dispõe de Licença de Utilização. Entre em contacto para mais informações ou agendamento devisita. ;ID RE/MAX: 124881312-3
AMI: 7772
Ref. Externa: 124881312-3
Id: 1498737
Inicie sessão para guardar este imóvel e aceder à sua lista de favoritos em qualquer dispositivo.
95.000 €
Área bruta : 75 m²
Loja com cerca de 76 m², situada no Suil Park Shopping, um centro comercial de referência em Lourosa (São João de Ver, Santa Maria da Feira). Localizada numa antiga fábrica de lacticínios com arquitetura preservada, esta galeria distingue-se pelo seu ambiente moderno, fresco e revitalizado, atraindo diariamente residentes e visitantes. Localização privilegiada, com excelente exposição e inserida numa zona com elevado fluxo de pessoas, impulsionada recentemente pela abertura do ginásio Fitness Up (com cerca de 2.000 m² e um investimento de 1,2 milhões de euros), que tem gerado movimento constante e uma clientela fiel. O centro tem vindo a consolidar um novo perfil comercial, com a abertura de novos espaços de estética, cabeleireiros e serviços, reforçando a atratividade para quem procura bem-estar, conveniência e comércio de proximidade. Características e Infraestruturas: Casa de banho comum do centro comercial disponível para clientes e lojistas Estacionamento fácil nas imediações Acessibilidade garantida, próximo de paragens de autocarro e apeadeiro de comboio Ambiente climatizado e zonas comuns modernas Inserido em zona residencial e empresarial consolidada Potencial de Investimento: Excelente oportunidade para negócios de retalho, serviços ou escritório Elevada visibilidade e frequência diária Rentabilidade anual estimada superior a 10% Ideal para investidores que procuram retorno de curto a médio prazo Agende já a sua visita! Descubra como este espaço pode impulsionar o seu negócio ou representar um investimento sólido, beneficiando de todo o potencial do Suil Park Shopping.
AMI: 23524
Ref. Externa: KWPT-018465
Id: 1432166
Inicie sessão para guardar este imóvel e aceder à sua lista de favoritos em qualquer dispositivo.
3 WCs
Área bruta : 71 m²
Estabelecimento comercial com excelente localização, mesmo no centro de S.M. Lamas perto do Parque, Igreja, USF, farmacias, padaria, bancos e com estacionamento em frente á porta ! O imovel é constituido por: - sala principal com balcão ; - Despensa; - 3 casas de banho Esta Loja está preparada para Gelataria e Café e é vendida com todo o recheio, no entanto necessita de algumas obras de remodelação. Com bastante Potencial para ser transformada num T2 tendo em conta de dispõe de 2 frentes e muita luz, sendo que tem 2 vitrines na frente da Loja e janelas nas traseiras da loja. Se procura uma loja central para abrir o seu negocio ou quer Investir num Potencial T2, não procure mais! Ligue já e Agende a sua visita! Condominio: 12,40€/mensal
AMI: 21331
Ref. Externa: KWPT-022257
Id: 1430530
Inicie sessão para guardar este imóvel e aceder à sua lista de favoritos em qualquer dispositivo.
129.500 €
4 WCs
Área bruta : 126 m²
Apresentamos uma excelente oportunidade para quem deseja investir em um negócio consolidado e com potencial de crescimento! Este café / snack bar está localizado em uma área movimentada a 1,5 Km da Zona Industrial LUSOPARK, com grande fluxo de pessoas, ideal para atrair clientes locais e trabalhadores da zona industrial. O espaço conta com uma decoração acolhedora e moderna, equipado com balcão de atendimento, área de preparo, cozinha completa, mesas e cadeiras para os clientes, além de 4 casas de banho. A infraestrutura inclui equipamentos de alta qualidade, como: - Forno. - Fogão - Arcas frigorificas ( 3 portas ) - Máquina de café. - Sistema informático. - Micro-ondas. - Vitrines exposição. - 2 máquinas de lavar louça e copos. - Outros utensílios essenciais para o funcionamento diário. O espaço conta com capacidade para aproximadamente 113 lugares sentados, proporcionando um ambiente acolhedor e bem distribuído para receber grupos de clientes. Além disso, o Café, dispõe de duas frentes de entrada, facilitando o fluxo de pessoas e a circulação, além da possibilidade da esplanada no jardim do Prédio, ideal para aproveitar os dias de sol e ampliar a área de atendimento ao ar livre. O negócio já possui uma clientela fiel e uma reputação sólida na região, oferecendo uma variedade de cafés, lanches, salgados, doces e bebidas. É uma excelente oportunidade para quem deseja atuar no setor de alimentação, com um ponto estratégico e um espaço pronto para continuar crescendo. Se desejar mais informações ou agendar uma visita, estou à disposição para ajudar!
AMI: 21331
Ref. Externa: KWPT-016074
Id: 1430529
Inicie sessão para guardar este imóvel e aceder à sua lista de favoritos em qualquer dispositivo.
700.000 €
6 WCs
Área bruta : 749 m²
Pavilhão Industrial em Fiães – Pronto para Atividades Imóvel recente (2019), em excelente estado de conservação, ideal para empresas que procuram um espaço funcional e moderno. Conta com uma área total coberta de aproximadamente 749 m², distribuída por 170 m² de escritórios, 370 m² no piso 0 e 185 m² no piso -1, além de um logradouro de 600 m². Dispõe de balneários equipados, instalações elétricas e de iluminação em pleno funcionamento, acessos amplos para viaturas pesadas e possibilidade de ampliação da área coberta até 600 m² adicionais. Localizado numa zona industrial consolidada, com bons acessos à EN223 e à A32, é uma excelente oportunidade para empresas que valorizam condições modernas, localização estratégica e versatilidade de uso.
AMI: 12927
Ref. Externa: 0801F
Id: 1411791
Inicie sessão para guardar este imóvel e aceder à sua lista de favoritos em qualquer dispositivo.
1 WCs
Área útil : 154 m²
Loja em Santa Maria de Lamas Espaço comercial com 154,50m², localizado ao nível do rés do chão de um prédio habitacional, na Rua Trás da Lagoinha, em zona tranquila e de fácil acesso. O imóvel conta com boa montra, dois w.c. e um espaço interior amplo, que permite diversas configurações. Localiza-se numa zona com facilidade de estacionamento, ideal para clientes e visitantes. Com afetação para comércio, é uma excelente oportunidade para quem procura instalar o seu negócio ou investir num espaço versátil e bem localizado. Certificação Energética: C
AMI: 9083
Ref. Externa: ESP_5319
Id: 1402632
Inicie sessão para guardar este imóvel e aceder à sua lista de favoritos em qualquer dispositivo.
2 WCs
Área bruta : 154 m²
Loja (188 m2) com montra para a rua, no rés do chão dum prédio habitacional, localizada em Santa Maria de Lamas, Santa Maria da Feira. Atualmente, a loja tem afetação de comércio, mas será também uma excelente opção para transformar numa habitação, ao abrigo do SIMPLEX URBANÍSTICO de Janeiro de 2024, num imóvel que tem 2 casas de banho e sistema de ventilação. Se optar pelo desenvolvimento de atividade comercial, atividade de restauração, de serviços, de centro logístico, ou até se importar a ideia já usada com frequência nos Países Baixos, de criar uma loja de compra e venda de vestuário e calçado usado, a forte densidade populacional da zona, garantirão o sucesso do seu negócio. Santa Maria de Lamas, está inserida no concelho de Santa Maria da Feira e de freguesias envolventes como Mozelos, Nogueira da Regedoura, Lourosa, São João de Ver, Espinho, entre outras, apresentam um poder per capita muito superior à média nacional, o que confere a esta população capacidade de consumo acima da média, pelo que é também uma excelente opção para investimento comercial. Gaiphedra Imobiliária - Comprar um imóvel connosco é uma etapa tranquila e segura! Acompanhamos em todo o processo até ao momento da escritura, inclusive no momento de financiamento. Se tem dúvidas quanto à compra de um imóvel, não hesite em contactar-nos. 30 anos de experiência na atividade imobiliária.
AMI: 6338
Ref. Externa: AV110 (2)
Id: 1392239
Inicie sessão para guardar este imóvel e aceder à sua lista de favoritos em qualquer dispositivo.
3 WCs
Área bruta : 290 m²
Vende-se loja com grande área em Canedo. Localiza-se à face da Estrada Nacional 223 e dista cerca de 4 Km do centro de Canedo. É composta por 1 espaço amplo para comércio no r/chão e armazém e sanitários na cave. Visite esta excelente oportunidade! Sabia que somos Intermediários de Crédito? Estamos aqui para o ajudar em todo o processo de financiamento, desde a simulação até á aprovação. Quer comprar casa? Trocar? Investir? Transferir o crédito? Fale conosco e trate de tudo num só lugar, com confiança, simplicidade e sem complicações. Imo2007 - Mediação Imobiliária, Lda, intermediário de crédito vinculado registado junto do Banco de Portugal com o N.º 0001317. Autorizado para a apresentação ou proposta de contratos de crédito a consumidores e assistência a consumidores, mediante a realização de atos preparatórios ou de outros trabalhos de gestão pré-contratual relativamente a contratos de crédito que não tenham sido por si apresentados ou propostos. Autorizado a prestar serviços de consultoria. Mutuantes: Novo Banco, S.A., Caixa Geral de Depósitos, S.A., Banco Santander Totta, S.A., Bankinter, S.A. - Sucursal em Portugal, Union de Créditos Inmobiliarios, S.A. Estamos contactáveis através das nossas redes sociais (FACEBOOK e INSTAGRAM: /imobiliariaimo2007), do nosso site ou do nosso número de telemóvel - chamada para a rede móvel nacional - e também por WHATSAPP! A concretizar sonhos desde 2007! Ref. interna: 3906A
AMI: 7774
Ref. Externa: 3906B
Id: 1381305
Inicie sessão para guardar este imóvel e aceder à sua lista de favoritos em qualquer dispositivo.
1 WCs
Área útil : 121 m²
Loja em Santa Maria da Feira Localização privilegiada: Situada na Av. Dr. Belchior Cardoso da Costa, a poucos metros da Câmara Municipal e do centro histórico de Santa Maria da Feira. Zona mista, residencial e comercial, com alguns terrenos agrícolas envolventes. Descrição do imóvel: A fração B insere-se num prédio urbano em propriedade horizontal, com 5 pisos (cave, rés do chão e 3 andares), destinado a habitação e comércio, composto por 19 frações autónomas. A loja ocupa o rés do chão e a cave, com acesso direto a partir da rua. Área bruta privativa: 121,44 m² • Espaço amplo e versátil • 2 Instalações sanitárias • Montra na fachada do edifício, garantindo ótima visibilidade e exposição ao nível do arruamento • Cave acessível por escadas interiores • Certificação Energética: C Nota: O imóvel encontra-se atualmente arrendado, assegurando rentabilidade imediata com valor justo de mercado. Excelente oportunidade de investimento no coração da cidade!
AMI: 9083
Ref. Externa: ESP_5316
Id: 1380092
Inicie sessão para guardar este imóvel e aceder à sua lista de favoritos em qualquer dispositivo.
15.720 €
1 WCs
Área útil : 44 m²
Loja na Galeria Comercial Chafariz – Lourosa, Santa Maria da Feira Fração “N”, localizada na Galeria Comercial Chafariz, em Lourosa — Santa Maria da Feira. O espaço dispõe de uma área bruta privativa de 44 m², sendo adequado para arrumos, arquivo, apoio logístico ou pequenos negócios que não necessitem de exposição direta ao exterior. Características: • Inserida em galeria comercial • Isenção da Certificação Energética Excelente oportunidade a um valor acessível. Contacte-nos para mais informações ou para agendar visita.
AMI: 9083
Ref. Externa: ESP_5315
Id: 1378406
Inicie sessão para guardar este imóvel e aceder à sua lista de favoritos em qualquer dispositivo.
2 WCs
Área bruta : 155 m²
Loja localizada junto ao centro de Santa Maria da Feira, próximo à Câmara Municipal e da Biblioteca de Santa Maria da Feira. Na zona central dum dos concelhos mais dinâmicos: -Feira Medieval -Do Perlim -da Cerveja Artesanal -do Mercadinho de Natal -das Artes em Itinerância -da Noite do Circo -do Fora dos Eixos -Ciclo de órgãos em tubo -Festa das Fogaceiras -da Semana Santa e do -Imaginarius iniciativas que alavancam o comércio e o intercâmbio não só da população local, mas de um milhão de pessoas que se deslocam à cidade , ou não fosse Santa Maria da Feira uma das cidades com melhor ranking de desempenho financeiro a nivel nacional. Este estabelecimento comercial, é constituído por 2 pisos: Piso voltado para a rua: 2 portas de entrada, 2 casas de banho, sala ampla dividida. Piso inferior voltado para o condomínio: escritório com casa de banho ou garagem. Pé-direito médio entre os 3,02 e os 3,79 m2 Neste estabelecimento comercial poder-se-á instalar atividades de serviços, pastelaria, panificação, geladaria, restauração e bebidas. Esta é uma zona com grande afluxo de clientes, por se encontrar no centro da cidade e onde estão os bancos, finanças, hospital, tribunal, conservatória. A sua localização permite ainda aproveitar a Viagem Medieval, o Festival de teatro de rua (Imaginarius) e o Perlim (Parque Temático do Natal) que todos os anos levam milhares de visitantes à cidade. Este espaço é igualmente uma excelente opção para reconversão do espaço comercial em apartamento, num concelho de grande procura e pouca oferta. Gaiphedra Imobiliária - Comprar um imóvel connosco é uma etapa tranquila e segura! Acompanhamos em todo o processo até ao momento da escritura, inclusive no momento de financiamento. Se tem dúvidas quanto à compra de um imóvel, não hesite em contactar-nos. 30 anos de experiência na atividade imobiliária.
AMI: 6338
Ref. Externa: AV102 (L)
Id: 1360671
Inicie sessão para guardar este imóvel e aceder à sua lista de favoritos em qualquer dispositivo.
150.000 €
Área bruta : 230 m²
Imóvel para reabilitação total (reconstrução integral), poderá ser utilizado como habitação própria permanente ou poderá contemplar um área comercial e habitação. O Prédio de r/c e dois pisos está implantado num terreno com acessibilidade por duas ruas, uma delas é mesmo frente à igreja matriz de Paços de Brandão...
AMI: 15121
Ref. Externa: 0481
Id: 1300889
Inicie sessão para guardar este imóvel e aceder à sua lista de favoritos em qualquer dispositivo.
2 WCs
Área bruta : 69 m²
Loja para venda em zona central (Cruz) em Santa Maria da Feira - Oportunidade única! Apresentamos esta excelente loja com cerca de 70m2, localizada no rés do chão de um prédio em Santa Maria da Feira. A loja tem um montra grande, permitindo a entrada de luz natural, proporcionando um ambiente agradável e confortável para qualquer tipo de negócio ou utilização. Atualmente funciona como café, (com esplanada) em pleno funcionamento com contrato de arrendamento. Imóvel conta com duas casas de banho. A zona envolvente apresenta espaço com estacionamento gratuito, localizada junto de variado comércio e habitação. Vamos agendar visita? A Equipa MUDDA CASTELO, trabalha com toda a paixão, para prestar o melhor serviço a todos os clientes. A Mudda, preza o trabalho em equipa, partilha e estamos em constante evolução. Para nós, é importante o contato e o cuidado com os clientes. Privamos um acompanhamento exclusivo, onde apresentamos várias soluções. Mais que vender casas, MUDDAMOS VIDAS!
AMI: 21110
Ref. Externa: MUDDA.1475.21110
Id: 1297567
Inicie sessão para guardar este imóvel e aceder à sua lista de favoritos em qualquer dispositivo.
149.000 €
2 WCs
Área útil : 107 m²
FAÇA CONNOSCO O MELHOR NEGÓCIO Loja com 107m2 em Paços de Brandão Condições especiais de leasing com spreads diferenciados. Tratamos do seu processo de crédito, sem burocracias apresentando as melhores soluções para cada cliente. Intermediário de crédito certificado pelo Banco de Portugal com o nº 0001802. Ajudamos com todo o processo! Entre em contacto connosco ou deixe-nos os seus dados e entraremos em contacto assim que possível! EA66711
AMI: 8989
Ref. Externa: EA66711
Id: 1238070
Inicie sessão para guardar este imóvel e aceder à sua lista de favoritos em qualquer dispositivo.
1 WCs
Área bruta : 180 m²
Loja com montra para a rua, localizada em Santa Maria de Lamas, Santa Maria da Feira. Atualmente, a loja tem afetação de comércio e insere-se no rés do chão, dum prédio com várias habitações. O imóvel tem 1 casa de banho e sistema de ventilação, o que facilita a sua transformação em habitação, ao abrigo do SIMPLEX URBANÍSTICO de Janeiro de 2024., numa localidade de aumento constante de população e que não encontra oferta residencial; Santa Maria de Lamas, inserida no concelho de Santa Maria da Feira e de freguesias envolventes como Mozelos, Nogueira da Regedoura, Lourosa, São João de Ver, Espinho, entre outras, apresentam um poder per capita muito superior à média nacional, o que confere a esta população capacidade de consumo acima da média, pelo que é também uma excelente opção para investimento comercial. Gaiphedra Imobiliária - Comprar um imóvel connosco é uma etapa tranquila e segura! Acompanhamos em todo o processo até ao momento da escritura, inclusive no momento de financiamento. Se tem dúvidas quanto à compra de um imóvel, não hesite em contactar-nos. 30 anos de experiência na atividade imobiliária.
AMI: 6338
Ref. Externa: AV110
Id: 1237309
Inicie sessão para guardar este imóvel e aceder à sua lista de favoritos em qualquer dispositivo.
100.000 €
2 WCs
Área de terreno : 82 m²
Loja com frente/vitrine, para a rua, bastante generosa, com duas entradas separadas. Com localização de excelência e ao nível do rés-do-chão de um prédio habitacional, a loja encontra-se rodeada de todo o tipo de serviços e comércio, assim como excecionais acessibilidades a VN Gaia /Porto, centro de SM Feira, EN1, A1, A29 e A32. Com cerca de 80m2 de área bruta e muita luz natural, encontra-se em excelente estado de conservação. Apresenta pé direito bastante alto, o que permite a colocação de tetos falsos ou até um mezanino. Conta ainda com 2 WC's distintos, assim como um arrumos fechado, com cerca de 3m2, na zona das garagens. Agende já a sua visita, Chave Nova de Santa Maria da Feira
AMI: 7142
Ref. Externa: SMF/02954
Id: 1236454
Inicie sessão para guardar este imóvel e aceder à sua lista de favoritos em qualquer dispositivo.
695.000 €
Área bruta : 780 m²
NOTA IMPORTANTE: ao preço anunciado, ACRESCE IVA à taxa legal em vigor. Armazém para Atividade Industrial – Localização Estratégica em Zona Industrial. Situado na zona industrial e próximo dos acessos à autoestrada e à estrada nacional. Uma boa opção para o seu negócio, seja para produção ou armazém, com uma ótima localização e acessibilidade. Caraterísticas: - Pé direito: 8m, proporcionando ótima capacidade de armazenamento vertical. - Área terreno: 2.260m2 - Área coberta: 740m2 - Área laboral: 560m2 - Área social 200m2 - Área comercial 80m2 - Licença industrial: tipo 3 Possui escritórios e uma ampla sala de descanso. Dá para fazer mais um Pavilhão de cerca 600m2. Nota: Encontra-se arrendado até outubro 2025. Possibilidade de arrendamento no valor de 4.000€ (IRC incluído). Pede-se 2 Rendas de entrada (sob consulta). Entre em contato para mais informações e agende uma visita!
AMI: 18137
Ref. Externa: mo569
Id: 1224487
Inicie sessão para guardar este imóvel e aceder à sua lista de favoritos em qualquer dispositivo.
86.000 €
Área bruta : 37 m²
Espaço comercial inserido no rés do chão de um prédio em Santa Maria de Lamas. Estabelecimento comercial composto por Hall, Espaço Amplo e um Gabinete no rés-do-chão, com cave dividida por um espaço amplo, corredor, dois arrumos e duas casas de banho. Está localizada numa zona periférica de Santa Maria da Feira, próximo do centro da freguesia de Santa Maria de Lamas, com proximidade de algumas zonas de comércio e de serviços locais. Somos Intermediários de Crédito, autorizados pelo Banco de Portugal, tratamos de todo o processo de financiamento bancário.
AMI: 9966
Ref. Externa: 7963
Id: 1223345
Inicie sessão para guardar este imóvel e aceder à sua lista de favoritos em qualquer dispositivo.
Área bruta : 74 m²
Espaço comercial inserido no rés do chão de um prédio em Santa Maria de Lamas. Estabelecimento comercial resultante da união de duas frações, um rés-do-chão e uma cave com 106m2, as frentes deste imóvel correspondem respetivamente à Rua da Mata e ao interior da Galeria Comercial . Somos Intermediários de Crédito, autorizados pelo Banco de Portugal, tratamos de todo o processo de financiamento bancário.
AMI: 9966
Ref. Externa: 7962
Id: 1223344
Inicie sessão para guardar este imóvel e aceder à sua lista de favoritos em qualquer dispositivo.
106.000 €
1 WCs
Área bruta : 54 m²
Loja bem localizada perto da estrada nacional 1 e do SUIL PARK em São João de ver. A loja está totalmente equipada para cabeleireiro e estética. Conta com ar condicionado, sofá, TV, máquina registadora. Será vendida com todo o mobiliário e equipamento. Tem excelentes acabamentos, o chão, paredes e teto estão em estado excelente estado de conservação assim como todo o equipamento e mobiliário da loja. O imóvel conta ainda com um WC, com base de duche e resguardo, assim como zona de despensa. Vamos marcar visita? Marque já visita para conhecer moradia dos seus sonhos! Não perca a oportunidade de viver num espaço que combina qualidade de vida e praticidade. Venha visitar e encante-se! A Equipa Mudda Castelo, trabalha com toda a paixão, para prestar o melhor serviço a todos os clientes. A Mudda, preza o trabalho em equipa, partilha e estamos em constante evolução. Para nós, é importante o contato e o cuidado com os clientes. Privamos um acompanhamento exclusivo, onde apresentamos várias soluções. Mais que vender Casas, MUDDAMOS VIDAS!
AMI: 21110
Ref. Externa: MUDDA.1461.21110
Id: 1199771
Inicie sessão para guardar este imóvel e aceder à sua lista de favoritos em qualquer dispositivo.
Estes agentes são especialistas nesta zona:
Inicie sessão para ocultar este imóvel das suas pesquisas e manter a sua lista de resultados organizada.
Guardar favoritos
Este imóvel foi guardados nos seus favoritos com sucesso.
Para poder guardar pesquisa deverá ter a sua sessão iniciada.
Caso não tenha uma conta, deverá criar uma.
A sua pesquisa foi guardada com sucesso!
© Copyright 2023 | CASACERTA. All rights reserved
Este site utiliza cookies. Ao navegar no site estará a consentir a sua utilização.
Para mais informações sobre os cookies pode consultar a
política de privacidade.