Filtros
0 · 9 resultados20.000.000 €
Área bruta : 13995 m²
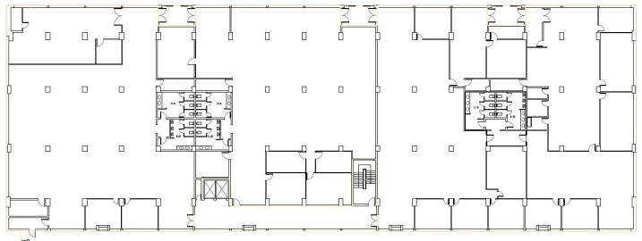
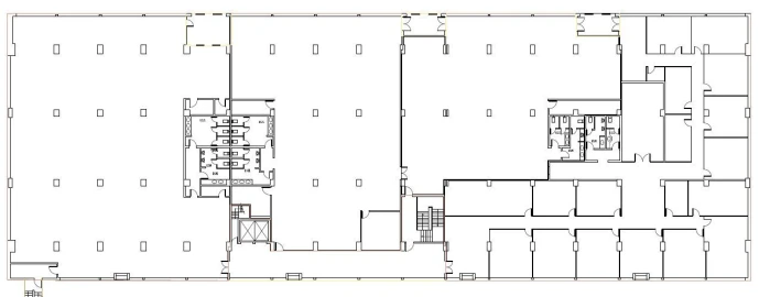
Armazém para venda em CARNAXIDE Composto por 2 Edificios distintos. Edificio I, com 5.310m2 de área bruta de construção, composto por 2 pisos Compõe-se por dois pisos: o piso 2 (nível superior de acesso principal) e o piso 1, este último com características de semi-enterrado. A organização do espaço interno distribui-se por diversos compartimentos ao nível do piso 2 (acesso principal), e liga-se ao Edifício II através de uma passagem aérea, que funciona como ligação funcional entre ambos os volumes. O Piso 2, tem o acesso principal ao edifício, área de receção, gabinetes, instalações sanitárias e zonas de armazém/arquivo. O Piso 1, áreas destinadas a armazém/arquivo, incluindo instalações sanitárias, áreas da funções de manutenção, posto de transformação e casa das máquinas. Edificio II, com 8.685m2 de área bruta de construção, composto por 3 pisos, sendo conectado ao Edifício I ao nível do piso 2 através de uma passagem aérea, enquanto os restantes acessos são realizados por via exterior. A construção apresenta-se em bom estado de conservação, tanto a nível do exterior quanto no interior. Piso 0: Destinado a armazém/arquivo, incluindo instalações sanitárias, zonas de apoio administrativo e técnico, e arrumos. Zona de instalações técnicas, constituída por sala de grupo de geradores, sala de UPS, sala de baterias, posto de transformação, áreas de radiadores, central de bombeamento, depósitos de água e combustível, entre outros. Piso 1: Destinadas a armazém/arquivo, incluindo instalações sanitárias, zonas de apoio administrativo e técnico, e arrumos. Piso 2: Central de processamento de dados com salas de servidores, armazém/arquivo, zonas técnicas, central de segurança e arrumos 72 lugares de estacionamentos (70 ligeiros e 2 pesados) Zona industrial consolidada. Bons acessos a todas as vias rápidas. Venha conhecer, contacte-nos. Aguardamos por si.
AMI: 1283
Ref. Externa: NGI2026-0001
Id: 1798319
Inicie sessão para guardar este imóvel e aceder à sua lista de favoritos em qualquer dispositivo.
470.000 €
2 WCs
Área de terreno : 263 m²
Loja com 264 m², com garagem em Queijas, Oeiras Trata-se de uma loja nova, com 2 pisos, um com muita luz natural. Dotada de excelentes acabamentos, esta loja dispõe de climatização oculta (quente/frio), saída de fumos, isolamento térmico e acústico entre pisos e paredes. As janelas são de vidros duplos e as caixilharias são de alumínio Termo lacado. O espaço conta ainda com 2 casas de banho. A garagem, onde 1 dos lugares é atribuído à loja, está equipada com sistema de deteção de monóxido de carbono e de deteção de incêndio. Outra característica notável é a sua a localização. Com efeito, encontra-se numa zona residencial, no rés-de-chão de um edifício de 17 habitações, com comércio local e serviços nas imediações. O acesso à A5 é feito em 2 minutos de carro e fica a meia distância entre Cascais e Lisboa. A 5 min de carro alcança-se a Marginal com o seu paredão e as suas diversas praias. A 264sq.m. shop, with a garage in Queijas, Oeiras This shop has two storeys, one whith plenty of natural light The finishes are excellent: it has a hidden air conditioning system (hot/cold), smoke ventilation, both thermal and acoustic insulation for floors and walls. The windows are double-glassed and have thermo-lacquered aluminium frames. The space has yet 2 bathrooms. There’s 1 parking plot in the garage which is equipped with a carbon-monoxide detector system and also fire detector. Other remarkable feature is the location of this shop. It’s in a residential area, on the ground-floor of a building with 17 apartments, some local commerce and services in the vicinities. It takes a 2mns’ drive to the highway A5, about midway between Cascais and Lisbon. A 5mns’ drive will take you to the Marginal with its promenade and various beaches. Magasin de 264m² avec garage à Queijas, Oeiras Ce magasin se trouve sur 2 étages et un profite de beaucoup de lumière naturelle. Les finitions sont excellentes : il y a un système dissimulé de climatisation (air chaud/air froid), sortie de fumée, système d’isolation thermal et acoustique pour le sol, plafond et parois. Les fenêtres ont double-vitrage et les cadres sont en aluminium laqué. L’espace a aussi 2 salles de bain. Il y a une place de parking au garage qui est équipé d’un détecteur de monoxyde de carbone, ainsi que d’un détecteur d’incendie. Autre point fort, sa localisation : ce magasin se trouve dans une zone résidentielle, au rez-de-chaussée d’un immeuble de 17 appartements, il y a du commerce local et divers services de proximité. L’autoroute A5 est à 2mn de route, à mi-chemin entre Cascais et Lisbonne. A 5mn de route se trouve la Marginal avec sa promenade et diverses plages.
AMI: 9100
Ref. Externa: CL023n20
Id: 1794659
Inicie sessão para guardar este imóvel e aceder à sua lista de favoritos em qualquer dispositivo.
500.000 €
2 WCs
Área de terreno : 285 m²
Loja com 286 m², com garagem em Queijas, Oeiras Trata-se de uma loja nova, com 2 pisos, ambos com luz natural. Dotada de excelentes acabamentos, esta loja dispõe de climatização oculta (quente/frio), saída de fumos, isolamento térmico e acústico entre pisos e paredes. As janelas são de vidros duplos e as caixilharias são de alumínio Termo lacado. O espaço conta ainda com 2 casas de banho. A garagem, onde 1 dos lugares é atribuído à loja, está equipada com sistema de deteção de monóxido de carbono e de deteção de incêndio. Outra característica notável é a sua a localização. Com efeito, encontra-se numa zona residencial, no rés-de-chão de um edifício de 17 habitações, com comércio local e serviços nas imediações. O acesso à A5 é feito em 2 minutos de carro e fica a meia distância entre Cascais e Lisboa. A 5 min de carro alcança-se a Marginal com o seu paredão e as suas diversas praias. A 286sq.m. shop, with a garage in Queijas, Oeiras This shop has two storeys which capture plenty of natural light. The finishes are excellent: it has a hidden air conditioning system (hot/cold), smoke ventilation, both thermal and acoustic insulation for floors and walls. The windows are double-glassed and have thermo-lacquered aluminium frames. The space has yet 2 bathrooms. There’s 1 parking plot in the garage which is equipped with a carbon-monoxide detector system and also fire detector. Other remarkable feature is the location of this shop. It’s in a residential area, on the ground-floor of a building with 17 apartments, some local commerce and services in the vicinities. It takes a 2mns’ drive to the highway A5, about midway between Cascais and Lisbon. A 5mns’ drive will take you to the Marginal with its promenade and various beaches. Magasin de 286m² avec garage à Queijas, Oeiras Ce magasin se trouve sur 2 étages et profite de beaucoup de lumière naturelle. Les finitions sont excellentes : il y a un système dissimulé de climatisation (air chaud/air froid), sortie de fumée, système d’isolation thermal et acoustique pour le sol, plafond et parois. Les fenêtres ont double-vitrage et les cadres sont en aluminium laqué. L’espace a aussi 2 salles de bain. Il y a une place de parking au garage qui est équipé d’un détecteur de monoxyde de carbone, ainsi que d’un détecteur d’incendie. Autre point fort, sa localisation : ce magasin se trouve dans une zone résidentielle, au rez-de-chaussée d’un immeuble de 17 appartements, il y a du commerce local et divers services de proximité. L’autoroute A5 est à 2mn de route, à mi-chemin entre Cascais et Lisbonne. A 5mn de route se trouve la Marginal avec sa promenade et diverses plages.
AMI: 9100
Ref. Externa: CL023l20
Id: 1794661
Inicie sessão para guardar este imóvel e aceder à sua lista de favoritos em qualquer dispositivo.
515.000 €
2 WCs
Área de terreno : 298 m²
Loja com 299 m², com garagem em Queijas, Oeiras Trata-se de uma loja nova, com 2 pisos, um com muita luz natural. Dotada de excelentes acabamentos, esta loja dispõe de climatização oculta (quente/frio), sáida de fumos, isolamento térmico e acústico entre pisos e paredes. As janelas são de vidros duplos e as caixilharias são de alumínio Termo lacado. O espaço conta ainda com 2 casas de banho. A garagem, onde 1 dos lugares é atribuído à loja, está equipada com sistema de deteção de monóxido de carbono e de deteção de incêndio. Outra característica notável é a sua a localização. Com efeito, encontra-se numa zona residencial, no rés-de-chão de um edifício de 17 habitações, com comércio local e serviços nas imediações. O acesso à A5 é feito em 2 minutos de carro e fica a meia distância entre Cascais e Lisboa. A 5 min de carro alcança-se a Marginal com o seu paredão e as suas diversas praias. A 299sq.m. shop, with a garage in Queijas, Oeiras This shop has two storeys, one whith plenty of natural light The finishes are excellent: it has a hidden air conditioning system (hot/cold), smoke ventilation, both thermal and acoustic insulation for floors and walls. The windows are double-glassed and have thermo-lacquered aluminium frames. The space has yet 2 bathrooms. There’s 1 parking plot in the garage which is equipped with a carbon-monoxide detector system and also fire detector. Other remarkable feature is the location of this shop. It’s in a residential area, on the ground-floor of a building with 17 apartments, some local commerce and services in the vicinities. It takes a 2mns’ drive to the highway A5, about midway between Cascais and Lisbon. A 5mns’ drive will take you to the Marginal with its promenade and various beaches. Magasin de 299m² avec garage à Queijas, Oeiras Ce magasin se trouve sur 2 étages et un profite de beaucoup de lumière naturelle. Les finitions sont excellentes : il y a un système dissimulé de climatisation (air chaud/air froid), sortie de fumée, système d’isolation thermal et acoustique pour le sol, plafond et parois. Les fenêtres ont double-vitrage et les cadres sont en aluminium laqué. L’espace a aussi 2 salles de bain. Il y a une place de parking au garage qui est équipé d’un détecteur de monoxyde de carbone, ainsi que d’un détecteur d’incendie. Autre point fort, sa localisation : ce magasin se trouve dans une zone résidentielle, au rez-de-chaussée d’un immeuble de 17 appartements, il y a du commerce local et divers services de proximité. L’autoroute A5 est à 2mn de route, à mi-chemin entre Cascais et Lisbonne. A 5mn de route se trouve la Marginal avec sa promenade et diverses plages.
AMI: 9100
Ref. Externa: CL023m20
Id: 1794662
Inicie sessão para guardar este imóvel e aceder à sua lista de favoritos em qualquer dispositivo.
300.000 €
Área bruta : 70 m²
Invista Onde o Crescimento Está a Acontecer – Loja no Alto da Montanha, CarnaxideInvestidores e empreendedores atentos ao mercado sabem: as melhores oportunidades surgem nas zonas em expansão.Apresento-lhe uma Loja inserida em empreendimento novo no Alto da Montanha, em Carnaxide, uma das áreas residenciais com maior crescimento na linha Lisboa/Oeiras.Localização estratégica:✔ A apenas 2 minutos do centro de Carnaxide✔ A 3 minutos do Alegro Alfragide✔ Excelentes acessibilidades rodoviárias (A5, CRIL, IC19)✔ Inserida numa zona habitacional moderna e em forte valorizaçãoEsta loja foi pensada para potenciar rentabilidade e funcionalidade:56 m² de área útil70 m² de área bruta2 lugares de estacionamentoAcesso direto e exclusivo da loja aos estacionamentos e arrecadaçãoArrecadação privativaEste detalhe do acesso direto é um verdadeiro diferencial competitivo — ideal para negócios que valorizem logística facilitada, stock próprio ou maior comodidade para a equipa.A envolvente residencial assegura fluxo constante de potenciais clientes, tornando-a perfeita para:Clínicas ou gabinetes especializadosServiços de proximidadeEspaços de estética ou bem-estarEscritório premiumInvestimento para arrendamento comercialNum mercado onde a escassez de produto novo é uma realidade, ativos comerciais em empreendimentos recentes oferecem maior atratividade para arrendamento e menor necessidade de manutenção nos primeiros anos.A combinação entre:Localização estratégicaCrescimento demográficoProximidade a um grande polo comercialEstacionamento exclusivoZona em franca expansãocria o cenário ideal para:✔ Rentabilidade estável✔ Valorização futura✔ Segurança patrimonialÁrea útil: 56m2Valor unitário: 5.357€/m2CE: CÉ o tipo de ativo que investidores experientes procuram antes de o mercado consolidar totalmente a zona.Se procura um espaço com potencial sólido de rentabilidade ou pretende instalar o seu negócio numa zona com crescimento garantido, este é o momento de avançar.Oportunidades em zonas emergentes não permanecem disponíveis por muito tempo.Vamos falar?Alexandra Silva +351 937 240 [email protected] este e outros imóveis em:Escadinhas da Cidade, Mediação Imobiliária, LdaLicença AMI 23557.https://www.escadinhasdacidade.pt/
AMI: 23557
Ref. Externa: TRI-041-26-AS
Id: 1653734
Inicie sessão para guardar este imóvel e aceder à sua lista de favoritos em qualquer dispositivo.
Profissionais que conhecem esta zona a fundo — contacte-os para uma avaliação personalizada.
515.000 €
2 WCs
Área bruta : 298 m²
Procura o local perfeito para lançar ou expandir o seu negócio? Apresentamos esta fantástica loja, totalmente a estrear, situada numa zona residencial consolidada, que oferece o equilíbrio ideal entre tranquilidade e movimento. O grande destaque deste imóvel é a sua excelente montra, que proporciona uma visibilidade ímpar e capta a atenção de quem passa na rua, garantindo máxima exposição para a sua marca. Com uma área generosa de 285,90 m² no total, o espaço está inteligentemente dividido por dois pisos, oferecendo uma versatilidade incrível para o seu projeto. Características Principais: Área Bruta Total: 285,90 m² + arrecadação + 1 lugar de garagem Piso R/C (Nível da Rua): 123,30 m² — Ideal para a área de vendas, atendimento ao público ou showroom. Piso Cave: 162,60 m² — Um espaço amplo que beneficia de luz natural, perfeito para escritório, back-office, armazém ou área de trabalho complementar. Arrecadação: 12,5 m2 1 lugar de garagem WCs: 2 instalações sanitárias (Homem/Senhora). Conforto: Equipado com Ar Condicionado e pavimento em mosaico. Estado: A estrear. Versatilidade e Localização Este espaço está licenciado para todos os ramos de atividade, exceto restauração, abrindo um leque de possibilidades para clínicas, escritórios, lojas de retalho, serviços e muito mais. A localização é um dos seus pontos fortes, estando próximo de: Rede de transportes públicos Comércio tradicional, Bancos e Farmácias Escolas e outros serviços essenciais Beneficia ainda de ótimos acessos às principais vias rodoviárias, como a A5, a Marginal, e uma ligação rápida ao centro da Cidade de Lisboa. Não perca esta oportunidade única de estabelecer o seu negócio num espaço novo e com enorme potencial. Agende já a sua visita!
AMI: 11160
Ref. Externa: KWPT-024133
Id: 1458411
Inicie sessão para guardar este imóvel e aceder à sua lista de favoritos em qualquer dispositivo.
12.500.000 €
7 WCs
Área bruta : 9181 m²
Prédio de Escritórios - Venda ou Arrendamento - Oeiras Venda €12.500.000,00 Arrendamento €90.000,00 Condomínio Mensal €9.181,00 O imóvel está localizado na zona da Linda-a-Pastora, sendo uma área essencialmente residencial de moradias e edifícios de baixa altura, edifícios de escritórios e algum comércio de rua; A zona também é conhecida pelo complexo Centro Desportivo Nacional do Jamor, que visa disponibilizar espaço e apoiar a realização de atividades ar livre, para a população de todas as classes etárias, pela Cidade do Futebol e Campo de Golfe, estando os equipamentos apenas a 5 minutos do imóvel. Proximidade ao mar; Proximidade ao Passeio Marítimo de Oeiras; Proximidade a diversas áreas comerciais: Oeiras Parque (+- 10 minutos); Alegro Alfragide (+- 10 minutos) Espaço de Refeitório Piso 0 - 47 Lugares Estacionamento Interior Logradouro - 48 Lugares Estacionamento Exterior (com uso alternativo para 67 lugares de estacionamento interior) EN Office Building - Sale or Lease - Oeiras Sale €12,500,000.00 Lease €90,000.00 Monthly Condo €9,181.00 The property is located in the Linda-a-Pastora area, being an area essentially residential housing and low-rise buildings, office buildings and some trade; The area is also known for the Centro Desportivo Nacional do Jamor complex, which aims to provide space and support outdoor activities for the population of all age groups, by Cidade do Futebol and Campo de Golfe, with equipment just 5 minutes from the property. Proximity to the sea; Proximity to Passeio Marítimo de Oeiras; Proximity to several commercial areas: Oeiras Parque (+- 10 minutes); Alegro Alfragide (+- 10 minutes) Cafeteria Floor 0 - 47 Indoor Parking Spaces Patio - 48 Outdoor Parking Spaces (with alternative use for 67 indoor parking spaces) FR Immeuble de bureaux - Vente ou location - Oeiras Vente 12 500 000,00 € Location 90 000,00 € Condo mensuel 9 181,00 € La propriété est située dans la zone de Linda-a-Pastora, étant une zone essentiellement logements résidentiels et immeubles de faible hauteur, immeubles de bureaux et certains commerces de rue; La région est également connue pour le complexe Centro Desportivo Nacional do Jamor, qui vise à fournir de l'espace et soutenir les activités de plein air pour la population de tous groupes d'âge, par Cidade do Futebol et Campo de Golfe, avec équipement à seulement 5 minutes de la propriété.
AMI: 7391
Ref. Externa: 22-IV-0112
Id: 1314527
Inicie sessão para guardar este imóvel e aceder à sua lista de favoritos em qualquer dispositivo.
975.000 €
4 WCs
Área útil : 384 m²
Espaço Comercial à Venda | 384 m² | Centro Cívico de Carnaxide | Investimento Sólido Loja com 384 m², localizado no Centro Cívico de Carnaxide, uma das zonas empresariais mais consolidadas e procuradas da Grande Lisboa. Imóvel inserido numa área com forte dinâmica empresarial, comércio, restauração e estacionamento público, com excelentes acessos a Lisboa (A5, IC19 e CRIL). Destaques do Imóvel ✔ Localização estratégica e elevada procura ✔ Área ampla e versátil (384 m²) ✔ Ideal para escritório, clínica, formação ou coworking ✔ Boa visibilidade e fluxo diário ✔ Potencial de valorização e arrendamento Características Técnicas • Piso 1 • Elevador desde o piso 0 • Entrada de serviço independente • Instalações sanitárias • Balneário e cacifos • Quadro elétrico 25A • Infraestrutura preparada para: Ar-condicionado Copa Rede informática Imóvel adequado para: Arrendamento a empresas e profissionais Conversão em coworking ou serviços partilhados Ocupação por única entidade ou adaptação a múltiplos espaços Zona com procura consistente por espaços comerciais e empresariais, garantindo liquidez e estabilidade no investimento. iad Portugal | Consultoria Imobiliária Especializada AMI: 11220 Acompanhamo-lo em todo o processo com transparência, estratégia e conhecimento de mercado. #ref: 135483
AMI: 11220
Ref. Externa: 135483
Id: 1045160
Inicie sessão para guardar este imóvel e aceder à sua lista de favoritos em qualquer dispositivo.
515.000 €
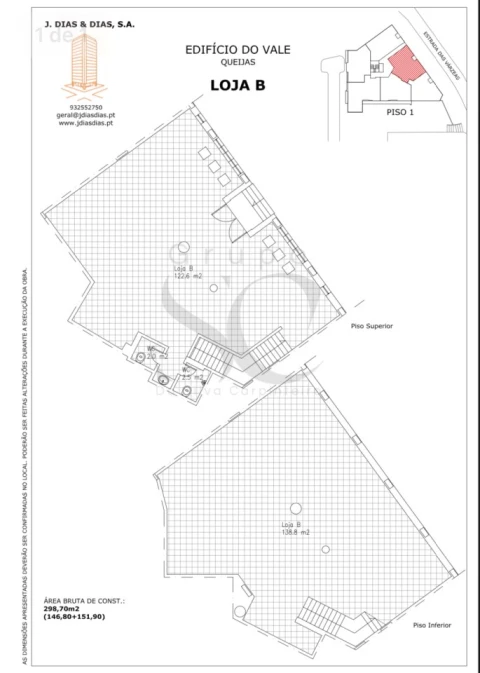
Área bruta : 299 m²
Loja ampla e com dois pisos para venda no empreendimento Edifício do Vale. Com acesso direto através da rua, esta loja conta com um espaço de 123m2, com 5 frentes envidraçadas e duas casas-de-banho, no piso térreo. Através de escadas, acedemos ao piso inferior, onde encontramos um outro espaço com mais 139 m2. No total, os dois espaços somam uma área total de 299 m2. Esta loja possui extracção de fumos e dispõe ainda de um lugar de garagem. Bons acessos, a apenas 15 minutos do centro de Lisboa e a 15 minutos de Cascais.
AMI: 16804
Ref. Externa: 0956
Id: 964613
Inicie sessão para guardar este imóvel e aceder à sua lista de favoritos em qualquer dispositivo.
© Copyright 2023 | CASACERTA. All rights reserved
Guardar favoritos
Este imóvel foi guardados nos seus favoritos com sucesso.
Para poder guardar pesquisa deverá ter a sua sessão iniciada.
Caso não tenha uma conta, deverá criar uma.
A sua pesquisa foi guardada com sucesso!
Este site utiliza cookies. Ao navegar no site estará a consentir a sua utilização.
Para mais informações sobre os cookies pode consultar a
política de privacidade.