Lista
Comprar
Arrendar
Área útil : 300 m²
ESTABELECIMENTO DE UNIDADE INDUSTRIAL . Trespasse de estabelecimento industrial em pleno funcionamento, . Equipamento e instalações em ótimo estado de funcionamento, . Autorização para produção, transformação e comercialização, . Licenciamentos para a atividade, . Marca Regista, . Carteira de clientes ativa, . Produção e distribuição em crescimento, . Quadro de pessoal especializado, . Negócio sem passivo, apenas ativos identificados, 1. Atividades Desenvolvidas O estabelecimento encontra-se destinado às seguintes atividades industriais registadas: - Fabricação de produtos à base de carne - Pastelaria - Fabricação de bolachas, biscoitos, tostas e pastelaria de conservação - Fabricação de doces, compotas, geleias e marmelada 2. Acreditações e Licenciamento O estabelecimento possui as seguintes autorizações e títulos de exploração: - Alvará de Autorização de Unidade Industrial n.º 36/22 - Título de Exploração Industrial n.º 11/N/2022, com Marca de Identificação “PT N3617 CE”, de Tipologia Tipo 1 3. Localização O estabelecimento encontra-se localizado em: Rua dos Vales, n.º 13 – 5000-233 Vila Real Freguesia de Lordelo, Concelho e Distrito de Vila Real. 4. Características do Estabelecimento O estabelecimento situa-se ao nível do rés-do-chão, apresentando: - Área bruta de construção: 300,00 m² - Área exterior de parqueamento: aproximadamente 275,00 m² 5. Áreas Funcionais do Estabelecimento O estabelecimento dispõe das seguintes áreas operacionais: a) Área de receção de matérias-primas b) Área de armazenamento de farinhas c) Área de armazenagem de produtos alimentares não perecíveis d) Área de armazenagem de matérias-primas refrigeradas e) Área de preparação de massas f) Área de confeção e preparação g) Área de produção e finalização Área Climatizada h) Área de ultracongelação e zona de conservação de produto acabado não embalado i) Área de receção e armazenamento de embalagens j) Área de embalamento e zona de conservação de produto acabado embalado l) Área de cargas e descargas 6. Áreas de Apoio O estabelecimento dispõe ainda das seguintes áreas de apoio: a) Corredor de circulação, com acesso direto ao exterior e ligação aos vestiários e instalações sanitárias b) Escritório de apoio ao estabelecimento, com acesso ao cais de cargas e descargas c) Zona de receção e armazenamento de produtos de higienização d) Zona de lavagem de utensílios 7. Portas - A porta interior entre o corredor de circulação e a área de embalamento é uma porta vaivém de duas folhas. - As restantes portas interiores são portas metálicas, lisas, de cor branca, não absorventes e de fácil higienização. 8. Ventilação Todas as áreas do estabelecimento que não possuem janelas para o exterior encontram-se equipadas com sistemas de ventilação mecânica (forçada), garantindo a adequada exaustão de cheiros, fumos e vapores, assegurando assim as condições higiossanitárias exigidas. 9. Instalação Elétrica A instalação elétrica do estabelecimento cumpre as regras técnicas das instalações elétricas previstas na legislação em vigor. 10. Máquinas e Equipamentos - A listagem completa das máquinas e equipamentos instalados encontram-se sob consulta. 11. Clientes - Carteira de clientes de âmbito nacional e internacional encontram-se sob consulta #ref: 158684
AMI: 11220
Ref. Externa: 158684
Id: 1680638
Inicie sessão para guardar este imóvel e aceder à sua lista de favoritos em qualquer dispositivo.
4 WCs
Área útil : 181 m²
Café totalmente equipado | 181 m² | Excelente localização em Vila Real. Com Localização na Rua Poeta Alberto Miranda n.º 39 em Vila Real. Oportunidade para iniciar ou expandir o seu negócio de restauração em Vila Real. Estabelecimento com 181 m², totalmente preparado para atividade de café, pastelaria ou padaria, permitindo iniciar funcionamento de imediato. Localizado numa zona residencial com elevada densidade populacional, com movimento diário garantido. Situa-se a apenas 1 minuto do Parque de Campismo de Vila Real, do Pavilhão Gimnodesportivo e do Agrupamento de Escolas Diogo Cão, garantindo fluxo constante de clientes. Principais características: •Espaço com 181 m² •Totalmente equipado para café/pastelaria/padaria •Balcões e diversos equipamentos incluídos •Arcas frigoríficas e equipamentos de apoio •Esplanada exterior •WC masculino e feminino para clientes •Balneários com WC para funcionários Valor da Renda Mensal; 625,00€. Valor do Trespasse: 6.500,00€ (inclui também lista de equipamentos em anexo, mobiliário interior, mobiliário de esplanada). Excelente oportunidade para quem pretende lançar um novo conceito de restauração ou continuar atividade existente numa localização com forte potencial. Para mais informações ou visita, entre em contacto. Apoio Profissional: Rui Almeida, o Seu Consultor iad O meu nome é Rui Almeida, e sou o Consultor Imobiliário iad e estou aqui para garantir que a sua transação é segura e transparente. Ao trabalhar com a iad, a maior rede de consultores independentes em Portugal, beneficia de: Acompanhamento Transparente: Um serviço focado nas suas necessidades, desde a primeira visita até à assinatura do contrato. Máxima Visibilidade: A força de uma rede internacional para lhe garantir as melhores condições de investimento. Segurança e Profissionalismo: Conhecimento aprofundado do mercado local para que tome a decisão certa. Entre em contacto comigo hoje e agende a sua visita a esta fantástica oportunidade de negócio! #ref: 158660
AMI: 11220
Ref. Externa: 158660
Id: 1678403
Inicie sessão para guardar este imóvel e aceder à sua lista de favoritos em qualquer dispositivo.
2 Quartos
Área bruta : 220 m²
Prédio a 5km de Vila Real, junto á famosa estrada nacional nº 2. No r/chão tem uma loja preparada para comércio de restaurante ou café com cozinha equipada e esplanada e no 1º andar tem a parte habitacional a precisar de ser reabilitada. De salientar que no rés/chão, aonde se encontra a parte comercial, está em estado de laboração, precisando apenas de pequenas intervenções.
AMI: 9223
Ref. Externa: 5028
Id: 1653642
Inicie sessão para guardar este imóvel e aceder à sua lista de favoritos em qualquer dispositivo.
1 WCs
Área bruta : 135 m²
Loja na Avenida Aureliano Barrigas, Vila Real, com duas frentes (Nascente/ Poente) | Descrição | Loja de rés do chão, com varanda (Nascente) e montra (Poente), casa de banho, acessibilidades para pessoas com mobilidade reduzida e dois lugares de estacionamento na cave do prédio; | Configuração | De momento a loja está dividida (com as divisórias em gesso cartonado) em 2 gabinetes (um com luz natural - frente com varanda, e outro sem), e receção com muita luz natural (montra) | Zona Envolvente | Ampla Oferta de Serviços, Centro de Saúde, Escola, Estacionamento, Estacionamento Público, Excelentes Acessos, Ginásio, Piscinas, Posto de Combustível, Transportes Públicos, Vista para Cidade | Ano de construção | 2003 | Cota do condomínio | Aproximadamente 100€ Anuais
AMI: 14033
Ref. Externa: BOT_1126
Id: 1645348
Inicie sessão para guardar este imóvel e aceder à sua lista de favoritos em qualquer dispositivo.
2 WCs
Área útil : 380 m²
Se procura um espaço comercial com caráter, localização privilegiada e potencial para qualquer tipo de negócio, esta é a escolha certa. Situada no centro histórico de Vila Real, esta loja oferece a combinação perfeita entre tradição, movimento e visibilidade. Com excelente montra, boa luminosidade natural e inserida numa zona de grande circulação pedonal e turística, é ideal para quem quer destacar a sua marca num dos pontos mais emblemáticos da cidade. O espaço apresenta-se versátil, pronto a adaptar-se a comércio, serviços, boutique, galeria ou conceito inovador. A proximidade de cafés, restaurantes, comércio local e pontos culturais garante um fluxo constante de clientes e visitantes. Invista num local com história, charme e futuro. A sua próxima grande oportunidade está aqui no centro onde tudo acontece. Disponível para venda ou para arrendamento.
AMI: 13351
Ref. Externa: BOT_1445
Id: 1635441
Inicie sessão para guardar este imóvel e aceder à sua lista de favoritos em qualquer dispositivo.
3 WCs
Área bruta : 772 m²
Loja com 770 m2 de Área Bruta Privativa, Junto ao Mercado Municipal em Vila Real | Descrição | Espaço Licenciado para, Comércio e ou Serviços, Loja de Cave (com Luz Natural e 396 m2 de Área Bruta) e Rés do Chão (com 375 m2 de Área Bruta) com 3 Casas de Banho, Espaço Exterior de 17 m2 e Acessibilidades para Pessoas com Mobilidade Reduzida; | Nota | Com Pedido de Informação Prévia (PIP) Aprovado pela Câmara Municipal de Vila Real para Alteração da Fachada Principal; Loja Inserida numa propriedade horizontal com um total de duas frações: - Cave e Rés do Chão | Fração A: Loja para Comércio e ou Serviços; - 1º Andar e Águas Furtadas | Fração B: Andar de Moradia T5 com Terraço e Quintal/ Jardim; | Zona Envolvente | Zona Comercial, Vista para Cidade, Transportes Públicos, Praça Táxis, Mercado, Hipermercado, Ginásio, Farmácia, Excelentes Acessos, Estacionamento Público, Espaços Verdes, Escola, Comércio Tradicional, Centro de Saúde, Centro da Cidade, Centro Comercial, Bombeiros, Banco, Ampla Oferta de Serviços
AMI: 14033
Ref. Externa: BOT_80
Id: 1629365
Inicie sessão para guardar este imóvel e aceder à sua lista de favoritos em qualquer dispositivo.
2 WCs
Área útil : 160 m²
Espaço de 160m2 com Duas Salas Amplas e Entradas Independentes - Uma Destinada a Atividades Lúdicas (Bilhar | 4 Mesas) - Uma Destinada a Comércio (Café) Facilidade de Estacionamento | Com Luz Natural | Exploração Imediata | Nota | - Somos a informar que, ao Abrigo do Simplex Urbanístico (Decreto-Lei n.º 10/2024) foi ELIMINADA a necessidade de autorização da assembleia de condóminos para a alteração do uso (por exemplo, de comércio para HABITAÇÃO) de frações autónomas para o uso de HABITAÇÃO, desde que seja aprovado pela Câmara Municipal.
AMI: 14033
Ref. Externa: BOT_857
Id: 1629357
Inicie sessão para guardar este imóvel e aceder à sua lista de favoritos em qualquer dispositivo.
1 WCs
Área bruta : 277 m²
Espaço Amplo (No Piso -1 com 277m2) com Muita Luz Natural (Nas Três Frentes com Exposição Solar: Sul/Poente/Norte), Ótima Visibilidade, Perto do Centro de Saúde nº 1 e Junto a Uma Rotunda das Principais Artérias da Cidade de Vila Real. Ano de Construção: 1997 | Nota | - Somos a informar que, ao Abrigo do Simplex Urbanístico (Decreto-Lei n.º 10/2024) foi ELIMINADA a necessidade de autorização da assembleia de condóminos para a alteração do uso (por exemplo, de comércio para HABITAÇÃO) de frações autónomas para o uso de HABITAÇÃO, desde que seja aprovado pela Câmara Municipal.
AMI: 14033
Ref. Externa: BOT_724
Id: 1629350
Inicie sessão para guardar este imóvel e aceder à sua lista de favoritos em qualquer dispositivo.
Área bruta : 296 m²
Este esplêndido imóvel, localizado no coração da cidade de Vila Real, destaca-se pela sua ampla e bem iluminada loja. O interior é caracterizado por um espaço generoso que permite uma disposição flexível para diversos tipos de comércio ou serviços. O exterior do edifício apresenta uma fachada elegante que se harmoniza perfeitamente com os demais imóveis circundantes. A entrada principal é convidativa e proporciona fácil acessibilidade a todos os visitantes; mais ainda, as grandes janelas oferecem visibilidade acionista dos produtos expostos na vitrine à medida que atraem passantes curiosos. O imóvel beneficia não só da proximidade a várias artérias comerciais movimentadas como também à rede pública de transportes locais eficiente. Este ponto privilegiado garante grande afluência diária devido ao fluxo constante de pessoas nesta área dinâmica repleta de estabelecimentos complementares como cafés tradicionais e lojas diversificadas oferecendo tudo desde moda até artigos artesanais, inerentes á rica história desta bela cidade transmontana e capital de distrito. Descrição: Loja com 200m2 de área bruta com terraço nas traseiras da loja. Loja encontra-se ainda em estado bruto.
AMI: 9223
Ref. Externa: 5026
Id: 1566445
Inicie sessão para guardar este imóvel e aceder à sua lista de favoritos em qualquer dispositivo.
10 Quartos
4 WCs
Área bruta : 300 m²
Prédio no centro histórico de Vila Real. Implantado num terreno com 100m2. Constituído por r/c, 1º piso, 2º piso e 3º piso recuado. O imóvel encontra-se desabitado e em mau estado de conservação. Este imóvel encontra-se em Zona de Reabilitação Urbana (ARU). Para mais informações, entre em contacto. A Casa Capital é uma empresa criada no ano de 2003. Tem como missão vender aos seus proprietários um serviço de qualidade e excelência que acrescenta valor à transação. Tem como visão um padrão de seriedade na prestação de serviços imobiliários, procura realizar bons negócios com eficiência, proporcionando assim, tranquilidade aos seus clientes. Tem como valores a ética, respeito e honestidade. Só é bom para o agente se for bom para o cliente.
AMI: 9223
Ref. Externa: 6006
Id: 1566434
Inicie sessão para guardar este imóvel e aceder à sua lista de favoritos em qualquer dispositivo.
Área bruta : 70 m²
Loja situada próxima da igreja da Nossa Senhora da Conceição, com boas áreas, já funcionou um cabeleireiro.
AMI: 9223
Ref. Externa: 3001
Id: 1566420
Inicie sessão para guardar este imóvel e aceder à sua lista de favoritos em qualquer dispositivo.
Área bruta : 279 m²
LOJA CENTRAL . GRANDE MONTRA. ZONA COMERCIAL. POSSIBILIDADE DE PERMUTA.
AMI: 9223
Ref. Externa: 5007
Id: 1566381
Inicie sessão para guardar este imóvel e aceder à sua lista de favoritos em qualquer dispositivo.
Área bruta : 140 m²
Loja com boas áreas, 2 andares, 2 entradas. Lugar de garagem
AMI: 9223
Ref. Externa: CP324
Id: 1566377
Inicie sessão para guardar este imóvel e aceder à sua lista de favoritos em qualquer dispositivo.
3 WCs
Área bruta : 600 m²
Muito bem localizado, sem servido de serviços, transportes e facilidade de estacionamento. Boa oportunidade de negócio. No valor para venda estão considerados os dois armazéns de 400 m2 e o de 200 m2, num total de 600m2.
AMI: 9223
Ref. Externa: CP128
Id: 1566369
Inicie sessão para guardar este imóvel e aceder à sua lista de favoritos em qualquer dispositivo.
Área bruta : 1225 m²
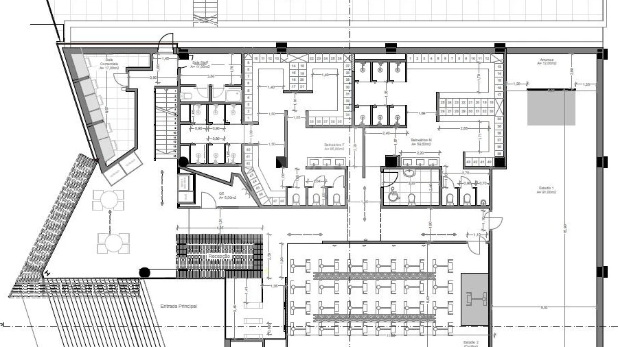
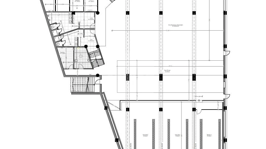
Prédio em propriedade total, destinado a comércio e serviços, composto por 5 pisos (cave, r/c, 1º, 2º e 3º andares). A Cave destina-se a zona de arquivo, compartimentos técnicos e posto de transformação; o r/c é composto por hall, sala/espaço amplo com balcão de atendimento, vestiários, sanitários, gabinete e áreas técnicas; o 1º andar por um espaço em open-space, gabinetes, 2 sanitários, arrumos, terraço, varanda e áreas técnicas, o 2º andar por espaço amplo, sanitários e bar; o 3º andar por espaço amplo destinado a zonas técnicas. As comunicações são efetuadas através de duas caixas de escadas, existindo também um elevador. Encontramo-nos perante um edifício de relativo destaque, de arquitetura nobre, com boa exposição comercial, no centro da cidade de Vila Real, capital de concelho e distrito. Edifico localizado em pleno centro histórico de Vila Real, zona onde se pratica o comércio tradicional. O edifício localiza-se próximo dos principais equipamentos cívicos da cidade, nomeadamente PSP, Proteção Civil, Tribunal, Câmara Municipal, CTT e várias dependências bancárias. O imóvel apresenta-se em bom estado de conservação tendo sofrido obras de remodelação/conservação interior e exterior ao longo dos anos.
AMI: 9223
Ref. Externa: CP213
Id: 1566366
Inicie sessão para guardar este imóvel e aceder à sua lista de favoritos em qualquer dispositivo.
Área bruta : 250 m²
Venda de negócio de cosmética e escola de cabeleireiro e barbeiro ( a escola tem exclusivo nos distritos de Vila Real e Bragança). Pode vender em separado: - Cosmética: 140.000,00€ que inclui carteira de clientes, stock e imobilizado ( avaliação de contabilista: carteira de clientes 50.000,00€, stock 60.000,00€ e imobilizado 50.000,00€) - Escola: 90.000,00€ ( exclusivo nos distritos de Vila Real e Bragança, os formadores são pagos à hora tem 1 barbeiro e 1 cabeleireira) A renda da loja são 1.550,00€, (a dividir pelos 2 espaços dá 775,00€ cada, sendo que a parte da escola tem 2 gabinetes de estética arrendados por 300,00€), tem 1 contador geral e 1 que conta o consumo. Volume de vendas: - Ano 2024: 168.804,00€; - Ano 2023: 183.266,00€ período de covid: - Ano 2022: 169.500,00€ - Ano 2021: 158.576,00€ - Ano 2020: 156.222,00€ antes do covid - Ano 2019: 192.225,00€
AMI: 9223
Ref. Externa: 3004
Id: 1564507
Inicie sessão para guardar este imóvel e aceder à sua lista de favoritos em qualquer dispositivo.
1 WCs
Área útil : 85 m²
Espaço comercial constituído por 3 salas, 1 WC e 1 despensa. Excelente localização com estacionamento fácil.
AMI: 13973
Ref. Externa: K796
Id: 938801
Inicie sessão para guardar este imóvel e aceder à sua lista de favoritos em qualquer dispositivo.
2 WCs
Área bruta : 160 m²
Loja situada numa zona de grande passagem com grande montra e de ótima visibilidade. 3 salas com ar condicionado 2 casas de banho. possibilidade de permuta. Dê asas à sua criatividade e voe longe no seu negócio DOMUS3000 - A Sua Parceira de Confiança no Mercado Imobiliário Quer comprar, mas primeiro tem de vender? A DOMUS3000 pode ajudar. Comprar com a DOMUS3000 é comprar com uma empresa de capitais totalmente portugueses. É COMPROMISSO, É SEGURANÇA! No mercado desde 2008, a nossa reputação precede-nos. Ao escolher a DOMUS3000 como parceira, vai perceber que: - Terá uma empresa dedicada em encontrar o melhor negócio para si; - Terá o apoio na procura de parceiros financeiros que lhe encontrarão a solução mais adequada; - Terá em cada consultor imobiliário DOMUS3000 uma pessoa ativa e devidamente formada para as diversas funções. Pois os consultores DOMUS3000 trabalham em regime full-time, o que lhes permite ter um conhecimento aprofundado da sua área de atuação e a capacidade de encontrar soluções que se adequem às suas necessidades; - Terá uma equipa que tratará de cada processo com o máximo cuidado e atenção, como se tratasse do seu primeiro! Nada pode falhar nesta parceria e como tal todos os cuidados são poucos. CONFIANÇA. Vamos comunicar muito! Vamos entender o que procura! Vamos, esforçamo-nos para perceber as suas expectativas! Vamos estar sempre ao seu lado! BUROCRACIA: Deixe as preocupações connosco! A equipa DOMUS3000 trata de tudo por si. Temos um departamento jurídico, e pessoas dedicadas e focadas na gestão de toda a documentação. Todos os processos são meticulosamente estudados para que o dia da escritura seja um dia de TRANQUILIDADE! Para mais informações, não hesite em contactar-nos. Visite-nos ou entre em contato com a nossa equipa de vendas. Estamos ansiosos para trabalhar consigo!
AMI: 13351
Ref. Externa: APA_697
Id: 898843
Inicie sessão para guardar este imóvel e aceder à sua lista de favoritos em qualquer dispositivo.
Área bruta : 2800 m²
| Descrição | Imóvel em Vila Real com Rendimento Anual Bruto Superior a 7% Este espaço, localizado entre o Nosso Shopping e o Largo da Estação na Cidade de Vila Real, foi renovado em 2019 e arrendado no mesmo ano, por € 2.400/ mês (atualmente a renda é superior a 2.700€/ mês) com contrato de arrendamento de 15 anos. Tem de área útil de 1700 m2 e de área bruta de 2800 m2 e 60 lugares de estacionamento na cave do prédio para apoio à respetiva atividade. | Zona Envolvente | Áreas de Lazer Infantil, Banco, Biblioteca, Centro Comercial, Escola, Farmácia, Ginásio, Hipermercado, Hospital, Posto de Combustível, Transportes Públicos, Zona Comercial Infraestruturas: Acesso Mobilidade Reduzida | Notas | - Por questões de privacidade dos atuais arrendatários, não estamos autorizados a publicar fotos, nem do interior nem do exterior do imóvel. - Somos a informar que, ao Abrigo do Simplex Urbanístico (Decreto-Lei n.º 10/2024) foi ELIMINADA a necessidade de autorização da assembleia de condóminos para a alteração do uso (por exemplo, de comércio para HABITAÇÃO) de frações autónomas para o uso de HABITAÇÃO, desde que seja aprovado pela Câmara Municipal. | Imóvel em Regime de Exclusividade | 1. Caso seja um consultor imobiliário, este imóvel está disponível para partilha de negócio. Não hesite em apresentar aos seus clientes compradores e fale conosco para agendar a sua visita. 2. Para maior facilidade na identificação deste imóvel, por favor, refira a respetiva referência BOT_349.
AMI: 14033
Ref. Externa: BOT_349
Id: 857205
Inicie sessão para guardar este imóvel e aceder à sua lista de favoritos em qualquer dispositivo.
2 WCs
Área bruta : 205 m²
Espaço comercial de 205m2 (loja 119m2 | terraço 86m2) | Vila Real com facilidade de estacionamento (público e gratuito). | Imóvel arrendado | Com rendimento Anual Bruto de: 4,4 % Com três frentes (uma delas cega) e muita luz natural, imóvel comercial ao nível do rés do chão, para Comércio, Serviços ou Restauração ao Circuito Internacional de Vila Real | Nota | - Somos a informar que, ao Abrigo do Simplex Urbanístico (Decreto-Lei n.º 10/2024) foi ELIMINADA a necessidade de autorização da assembleia de condóminos para a alteração do uso (por exemplo, de comércio para HABITAÇÃO) de frações autónomas para o uso de HABITAÇÃO, desde que seja aprovado pela Câmara Municipal. Zona Envolvente: Zona Comercial, Vista para Cidade, Posto de Combustível, Orientação Solar(Nascente/Poente), Hipermercado, Transportes Públicos, Excelentes Acessos, Estacionamento Público, Estacionamento, Ampla Oferta de Serviços, Faz esquina - À compra deste imóvel, poder-se-á juntar a compra de uma loja contígua, no mesmo prédio (loja 119m2 | terraço 57m2): Preço sob consulta. IMÓVEL EM REGIME DE EXCLUSIVIDADE. 1. Caso seja um consultor imobiliário, este imóvel está disponível para partilha de negócio. Não hesite em apresentar aos seus clientes compradores e fale connosco para agendar a sua visita. 2. Para maior facilidade na identificação deste imóvel, por favor, refira a respetiva referência, BOT_723
AMI: 14033
Ref. Externa: BOT_723
Id: 857196
Inicie sessão para guardar este imóvel e aceder à sua lista de favoritos em qualquer dispositivo.
Este agente é especialista nesta zona:
Inicie sessão para ocultar este imóvel das suas pesquisas e manter a sua lista de resultados organizada.
© Copyright 2023 | CASACERTA. All rights reserved
Guardar favoritos
Este imóvel foi guardados nos seus favoritos com sucesso.
Para poder guardar pesquisa deverá ter a sua sessão iniciada.
Caso não tenha uma conta, deverá criar uma.
A sua pesquisa foi guardada com sucesso!
Este site utiliza cookies. Ao navegar no site estará a consentir a sua utilização.
Para mais informações sobre os cookies pode consultar a
política de privacidade.