Lista
Comprar
Arrendar
2 Quartos
2 WCs
Área bruta : 130 m²
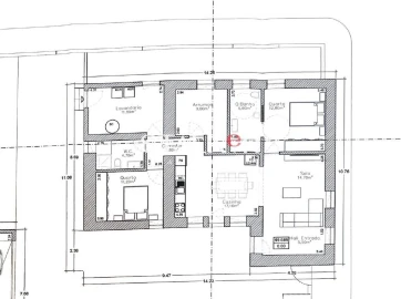
Moradia T2 térrea renovada em Lobão, com espaço exterior Esta moradia está localizada na Rua da Alegria, em Lobão, numa zona residencial tranquila e com bons acessos à A32 e à A1. Localizada perto de escolas, comércio local e serviços, garantindo praticidade no dia a dia. Casa principal: 2 quartos Casa de banho Pré-instalação de cozinha Anexo: Cozinha moderna em open space com a sala 2 quartos 1 casa de banho com acesso pelo exterior Excelente espaço exterior com zona para estacionamento e zona de jardim perfeita para momentos de convívio em família. Uma excelente oportunidade para quem pretende viver numa moradia renovada, em zona calma, mas com rápida ligação a Santa Maria da Feira, Gaia e Porto. Localização: 1km de farmácia e parque infantil 1,1 km mini mercado 1km de banco e comercio local 1,1km da Escola Básica de 2º e 3º Ciclo 1,4 km passadiços rio uima 2,2 km de ginásio 3,4 km do intermarche 4,5km do continente 7km da A32/A1 Aproveite esta oportunidade e agende já a sua visita!_______________________________________________ Renovated 2-bedroom single-story house in Lobão, with outdoor space This renovated 2-bedroom single-story house is located on Rua da Alegria, in Lobão, in a quiet residential area with good access to the A32 and A1 motorways. Located close to schools, local shops and services, ensuring practicality in everyday life. Main house: 2 bedrooms Bathroom Pre-installation for kitchen Annex: Modern open-plan kitchen with living room 2 bedrooms 1 bathroom with exterior access Excellent outdoor space with parking area and garden area perfect for family gatherings. An excellent opportunity for those who want to live in a renovated house, in a quiet area, but with quick access to Santa Maria da Feira, Gaia and Porto. Location: 1km from the Pharmacy 1.1km from the Primary School (2nd and 3rd Cycle) 7km from the A32/A1 highway 4.5km from the Continente supermarket in Canedo Take advantage of this opportunity and schedule your visit now! _______________________________________________ Maison de plain-pied rénovée de 2 chambres à Lobão, avec espace extérieur Cette maison de plain-pied rénovée de 2 chambres est située Rua da Alegria, à Lobão, dans un quartier résidentiel calme, à proximité des autoroutes A32 et A1. Situé à proximité des écoles, des commerces et des services, elle offre un confort de vie optimal. Maison principale : 2 chambres Salle de bain Pré-installation pour cuisine Annexe : Cuisine américaine moderne ouverte sur séjour 2 chambres 1 salle de bain avec accès extérieur Bel espace extérieur avec parking et jardin, idéal pour les réunions de famille. Une excellente opportunité pour ceux qui souhaitent vivre dans une maison rénovée, dans un quartier calme, tout en bénéficiant d'un accès rapide à Santa Maria da Feira, Gaia et Porto. Situation : À 1 km de la pharmacie À 1,1 km de l’école primaire (CE1 et CE2) À 7 km de l’autoroute A32/A1 À 4,5 km du supermarché Continente de Canedo Profitez-en et planifiez votre visite dès maintenant ! ;ID RE/MAX: 120931669-20
AMI: 7772
Ref. Externa: 120931669-20
Id: 1649323
Inicie sessão para guardar este imóvel e aceder à sua lista de favoritos em qualquer dispositivo.
3 Quartos
3 WCs
Área bruta : 170 m²
Descubra o prazer de viver numa destas 3 exclusivas moradias em banda, Com acabamentos pensados para o seu bem-estar, estas casas oferecem o espaço e a luz que a sua família merece. Destaques do Imóvel: - Conceito Open Space: Sala e cozinha integradas, criando um ambiente amplo e fluido, ideal para momentos de convívio. - Três Quartos de Excelência: Inclui 2 suítes privativas, garantindo o máximo conforto. Uma das suítes beneficia ainda de um terraço privativo — o seu refúgio pessoal ao final do dia. - Luz Natural: Com uma excelente exposição solar, a casa é banhada por luz natural durante todo o dia. - Funcionalidade: Garagem fechada para segurança do seu veículo e uma lavandaria independente. - Exterior: Terreno privativo para criar o seu jardim ou zona de lazer. Não perca a oportunidade de estrear um lar onde cada detalhe foi planeado para a sua qualidade de vida. 3 moradias disponíveis: Moradia 1: 365 000€ Moradia 2: 375 000€ Moradia 3: 370 000€
AMI: 18137
Ref. Externa: mo641 (2)
Id: 1558050
Inicie sessão para guardar este imóvel e aceder à sua lista de favoritos em qualquer dispositivo.
3 Quartos
3 WCs
Área bruta : 170 m²
Descubra o prazer de viver numa destas 3 exclusivas moradias em banda, Com acabamentos pensados para o seu bem-estar, estas casas oferecem o espaço e a luz que a sua família merece. Destaques do Imóvel: - Conceito Open Space: Sala e cozinha integradas, criando um ambiente amplo e fluido, ideal para momentos de convívio. - Três Quartos de Excelência: Inclui 2 suítes privativas, garantindo o máximo conforto. Uma das suítes beneficia ainda de um terraço privativo — o seu refúgio pessoal ao final do dia. - Luz Natural: Com uma excelente exposição solar, a casa é banhada por luz natural durante todo o dia. - Funcionalidade: Garagem fechada para segurança do seu veículo e uma lavandaria independente. - Exterior: Terreno privativo para criar o seu jardim ou zona de lazer. Não perca a oportunidade de estrear um lar onde cada detalhe foi planeado para a sua qualidade de vida. 3 moradias disponíveis: Moradia 1: 365 000€ Moradia 2: 375 000€ Moradia 3: 370 000€
AMI: 18137
Ref. Externa: mo641
Id: 1558049
Inicie sessão para guardar este imóvel e aceder à sua lista de favoritos em qualquer dispositivo.
3 Quartos
3 WCs
Área bruta : 198 m²
Apresentamos uma excelente oportunidade para quem procura um imóvel versátil, com enorme potencial de valorização e rentabilidade! Este conjunto de 3 moradias independentes ,está implantado num terreno com 408m2, localizado na freguesia de Lobão, no concelho de Santa Maria da Feira, numa zona tranquila e com bons acessos às principais vias. - Composição do conjunto: -- Moradia T1 – Perfeita para habitação individual ou arrendamento, com ABP de 46,20m2 (situação atual arrendada) -- Moradia T1+1 – Ideal para pequeno núcleo familiar, com espaço extra para escritório ou quarto, com ABP 55,75m2 (situação atual arrendada). -- Moradia T2 – Confortável e funcional, com áreas generosas. Com ABP de 98,40m2 (arrendada, até julho 2026) Nota:Todas as moradia dispõem de um espaço independende de lavandaria e arrumo Estas moradias oferecem múltiplas possibilidades: ✔️ Habitação própria com espaço para familiares próximos; ✔️ Investimento seguro, com possibilidade de arrendamento de cada unidade em separado; ✔️ Rendimento passivo estável, numa zona com procura crescente. ?Localização privilegiada: A poucos minutos do centro de Santa Maria da Feira; Proximidade de escolas, comércio, serviços e transportes; Acesso rápido à A32 e A1, facilitando a ligação ao Porto, Espinho e São João da Madeira. ? Um produto raro no mercado, com um excelente equilíbrio entre preço, localização e potencial de retorno. Não perca esta oportunidade! Entre em contacto para mais informações ou agende já a sua visita. _____ Stalker RE_____ Na Stalker Real Estate, encontre mais do que uma casa — encontre o seu lugar. Um espaço com alma, onde cada decisão tem intenção, e cada detalhe é perseguido com olhos de futuro. Somos movidos pela curiosidade estratégica, pela visão fora do comum e por uma obsessão saudável em descobrir o que ainda ninguém viu. Exploramos o invisível, antecipamos oportunidades e nunca paramos onde os outros ficam. O nosso nome pode surpreender — e é isso mesmo que queremos: despertar. Porque no mercado imobiliário, quem se destaca é quem vai além do esperado. Aqui, cada cliente é único, cada imóvel é uma peça rara e cada transação, uma experiência cuidada com precisão, transparência e propósito. Dos investimentos às casas personalizadas, abrimos portas para um futuro moldado à sua medida. Inovamos no processo, quebramos padrões antigos e construímos consigo, passo a passo, conquistas com significado. Se procura mais do que uma experiência imobiliária — se procura uma jornada com visão, estratégia e emoção — então já sabe por onde começar. Stalker Real Estate. Um passo à frente, sempre. Vamos construir juntos? Não procuramos casas. Revelamos possibilidades." Na Stalker Real Estate, encontre mais do que uma casa — encontre o seu lugar. Um espaço com alma, onde cada decisão tem intenção, e cada detalhe é perseguido com olhos de futuro. Somos movidos pela curiosidade estratégica, pela visão fora do comum e por uma obsessão saudável em descobrir o que ainda ninguém viu. Exploramos o invisível, antecipamos oportunidades e nunca paramos onde os outros ficam. O nosso nome pode surpreender — e é isso mesmo que queremos: despertar. Porque no mercado imobiliário, quem se destaca é quem vai além do esperado. Aqui, cada cliente é único, cada imóvel é uma peça rara e cada transação, uma experiência cuidada com precisão, transparência e propósito. Dos investimentos às casas personalizadas, abrimos portas para um futuro moldado à sua medida. Inovamos no processo, quebramos padrões antigos e construímos consigo, passo a passo, conquistas com significado. Se procura mais do que uma experiência imobiliária — se procura uma jornada com visão, estratégia e emoção — então já sabe por onde começar. Stalker Real Estate. Um passo à frente, sempre. Vamos construir juntos?
AMI: 22706
Ref. Externa: 11302
Id: 1542511
Inicie sessão para guardar este imóvel e aceder à sua lista de favoritos em qualquer dispositivo.
1 WCs
Área bruta : 383 m²
✨ Excelente Oportunidade de Negócio em Gião – Santa Maria da Feira ✨ Apresentamos este imóvel único, construído com a versatilidade de habitação e negócio, inserido num generoso lote de 700 m². ? Rés do chão: espaço amplo com 189,62 m², já com historial de atividade comercial, complementado por casa de banho de serviço. ? 1.º andar: com 201,62 m², encontra-se totalmente inacabado, permitindo ao futuro proprietário moldar o espaço ao seu gosto e necessidades. ? Sótão: graças ao excelente pé direito, pode também ser aproveitado e integrado num projeto habitacional. ➡️ Pelas suas dimensões e características, este imóvel revela-se ideal para investimento, com potencial para a criação de: 4 apartamentos T2 (2 no rés do chão e 2 no piso superior) Ou até 5 apartamentos, considerando o aproveitamento do sótão. Importa salientar que a adaptação em apartamentos carece de parecer técnico e aprovação das entidades competentes. ? Outro ponto forte é a possibilidade de entradas independentes para cada piso, valorizando ainda mais a viabilidade do projeto. ? Seja para transformar em habitação, arrendamento ou projeto misto, esta é uma oportunidade imperdível de rentabilidade e valorização. ? Não perca tempo: agende já a sua visita e seja o(a) primeiro(a) a conhecer este imóvel de enorme potencial!!! Nota: Não se encontra disponível qualquer documento que ateste que para o presente imóvel foi emitida licença de utilização, que o mesmo está isento de tal certificação ou foi apresentado qualquer recibo de pagamento das taxas legalmente devidas, pelo que o imóvel pode não dispor dos títulos urbanísticos necessários para a utilização e/ou construção. -- ✨ Excellent Business Opportunity in Gião – Santa Maria da Feira ✨We present this unique property, built with the versatility of both residential and commercial use, located on a generous 700 m² lot.? Ground floor: spacious 189.62 m², already with a history of commercial activity, complemented by a guest bathroom.? First floor: 201.62 m², completely unfinished, allowing the future owner to customize the space to their taste and needs.? Attic: thanks to its excellent ceiling height, it can also be utilized and integrated into a residential project. ➡️ Due to its size and features, this property is ideal for investment, with the potential to create:4 two-bedroom apartments (2 on the ground floor and 2 on the upper floor)Or up to 5 apartments, considering the use of the attic.It's important to note that the conversion into apartments requires a technical report and approval from the appropriate authorities.? Another strong point is the possibility of independent entrances for each floor, further enhancing the project's viability.? Whether for conversion into a home, rental, or mixed-use project, this is an unmissable opportunity for profitability and appreciation.? Don't waste time: schedule your visit now and be the first to see this property with enormous potential!!!Note: There is no document available certifying that a usage license has been issued for this property, that it is exempt from such certification, or that any receipt for payment of the legally due fees has been presented, therefore the property may not have the necessary urban development titles for use and/or construction. -- ✨ Excellente opportunité commerciale à Gião – Santa Maria da Feira ✨Nous vous présentons cette propriété unique, conçue pour une utilisation polyvalente à la fois résidentielle et commerciale, située sur un généreux terrain de 700 m².? Rez-de-chaussée : spacieux 189,62 m², déjà occupé par une activité commerciale, agrémenté d'une salle de bains pour invités.? Premier étage : 201,62 m², entièrement non aménagé, permettant au futur propriétaire de personnaliser l'espace selon ses goûts et ses besoins.? Combles : grâce à leur excellente hauteur sous plafond, ils peuvent également être aménagés et intégrés à un projet résidentiel. ➡️ De par sa superficie et ses caractéristiques, cette propriété est idéale pour un investissement, avec la possibilité de créer :4 appartements T3 (2 au rez-de-chaussée et 2 à l'étage)Ou jusqu'à 5 appartements, compte tenu de l'aménagement des combles.Il est important de noter que la transformation en appartements nécessite un rapport technique et l'approbation des autorités compétentes.? Un autre atout est la possibilité d'entrées indépendantes pour chaque étage, ce qui renforce la viabilité du projet.? Que ce soit pour une transformation en habitation, en location ou en projet mixte, c'est une opportunité incontournable de rentabilité et de plus-value.? Ne perdez pas de temps : planifiez votre visite dès maintenant et soyez parmi les premiers à découvrir cette propriété au potentiel énorme !Remarque : Il n'existe aucun document disponible certifiant qu'un permis d'utilisation a été délivré pour cette propriété, qu'elle est exemptée d'une telle certification, ou qu'un reçu de paiement des frais légalement dus a été présenté, par conséquent la propriété peut ne pas avoir les titres d'urbanisme nécessaires à l'utilisation et/ou à la construction. ;ID RE/MAX: 124881284-37
AMI: 7772
Ref. Externa: 124881284-37
Id: 1531271
Inicie sessão para guardar este imóvel e aceder à sua lista de favoritos em qualquer dispositivo.
3 Quartos
Área bruta : 290 m²
Moradia T3 em Banda — Construção Nova em Lobão, Santa Maria da FeiraApresentamos esta magnífica moradia T3 em banda, inserida num novo empreendimento de oito habitações, projetadas com um estilo moderno, acabamentos de qualidade e todo o conforto que uma família moderna procura.Ao entrar, é recebido por um hall espaçoso que dá destaque à escada em madeira maciça com guarda de vidro, um verdadeiro ponto de elegância logo à entrada.A zona social, em open space, integra sala de estar, sala de jantar e cozinha, com luz natural abundante graças às amplas portas de correr.A cozinha moderna destaca-se pelo design elegante, com ilha central, tampo em granito preto e eletrodomésticos embutidos (forno, micro-ondas, placa, exaustor, máquina de lavar loiça e frigorífico).No rés-do-chão encontra ainda uma casa de banho de serviço e uma zona de arrumos.No piso superior, encontram-se três quartos espaçosos, todos com varandas privativas e muita luz natural. A suíte principal dispõe de casa de banho privativa, enquanto os outros dois quartos partilham uma casa de banho completa.Toda a casa está equipada com ar condicionado, estores elétricos e sistema de alarme, garantindo conforto e segurança.Na cave, encontra uma garagem ampla e revestida, com espaço para dois carros e zona de arrumos.O exterior oferece um pequeno jardim privativo, ideal para momentos de lazer ou convívio.Um imóvel pensado para quem valoriza o design contemporâneo, o conforto e a qualidade construtiva.Referência: ASV25181Por sermos intermediários de crédito devidamente autorizados pelo Banco de Portugal (Reg. 2736) fazemos a gestão de todo o seu processo de financiamento, sempre com as melhores soluções de mercado.Porquê escolher a AS Imobiliária?Com mais de 16 anos no ramo imobiliário e milhares de famílias felizes, dispomos de 6 agências estrategicamente localizadas, para o servir com proximidade, corresponder à suas expectativas e ajudá-lo a adquirir a sua casa de sonho. Compromisso, Competência e Confiança são os nossos valores que entregamos aos nossos Clientes na hora de comprar, arrendar ou vender o seu imóvel.A nossa prioridade é a sua Felicidade!Especialistas imobiliários em Vizela ; Guimarães ; Felgueiras ; Lousada ; Santo Tirso ; Barcelos ; Porto ; Braga ; Trofa
AMI: 13249
Ref. Externa: ASV25181
Id: 1486999
Inicie sessão para guardar este imóvel e aceder à sua lista de favoritos em qualquer dispositivo.
3 Quartos
Área bruta : 290 m²
Moradia T3 de LUXO | com Varandas, Garagem, Jardim 3 quartos (1 SUITE), roupeiros embutidos, Arrumos, Ar condicionado, estores elétricos e sistema de alarme | em Santa Maria da Feira.Apresentamos esta magnífica moradia T3 em banda, inserida num novo empreendimento de oito habitações em Lobão, Santa Maria da Feira, projetadas com um estilo moderno, acabamentos de qualidade e todo o conforto que uma família moderna procura.Ao entrar, é recebido por um hall espaçoso que dá destaque à escada em madeira maciça com guarda de vidro, um verdadeiro ponto de elegância logo à entrada.A zona social, em open space, integra sala de estar, sala de jantar e cozinha, com luz natural abundante graças às amplas portas de correr.A cozinha moderna destaca-se pelo design elegante, com ilha central, tampo em granito preto e eletrodomésticos embutidos (forno, micro-ondas, placa, exaustor, máquina de lavar loiça e frigorífico).No rés-do-chão encontra ainda uma casa de banho de serviço e uma zona de arrumos.No piso superior, encontram-se três quartos espaçosos, todos com varandas privativas e muita luz natural. A suíte principal dispõe de casa de banho privativa, enquanto os outros dois quartos partilham uma casa de banho completa.Toda a casa está equipada com ar condicionado, estores elétricos e sistema de alarme, garantindo conforto e segurança.Na cave, encontra uma garagem ampla e revestida, com espaço para dois carros e zona de arrumos.O exterior oferece um pequeno jardim privativo, ideal para momentos de lazer ou convívio.Um imóvel pensado para quem valoriza o design contemporâneo, o conforto e a qualidade construtiva.Referência: ASV25180Por sermos intermediários de crédito devidamente autorizados pelo Banco de Portugal (Reg. 2736) fazemos a gestão de todo o seu processo de financiamento, sempre com as melhores soluções de mercado.Porquê escolher a AS Imobiliária?Com mais de 16 anos no ramo imobiliário e milhares de famílias felizes, dispomos de 6 agências estrategicamente localizadas, para o servir com proximidade, corresponder à suas expectativas e ajudá-lo a adquirir a sua casa de sonho. Compromisso, Competência e Confiança são os nossos valores que entregamos aos nossos Clientes na hora de comprar, arrendar ou vender o seu imóvel.A nossa prioridade é a sua Felicidade!Especialistas imobiliários em Vizela ; Guimarães ; Felgueiras ; Lousada ; Santo Tirso ; Barcelos ; Porto ; Braga ; Trofa
AMI: 13249
Ref. Externa: ASV25180
Id: 1486996
Inicie sessão para guardar este imóvel e aceder à sua lista de favoritos em qualquer dispositivo.
3 Quartos
3 WCs
Área bruta : 300 m²
Descubra esta Casa Semi-Geminada em Lobão: Um Refúgio Familiar Encantador Localização: Situada em Lobão, esta encantadora casa semi-geminada oferece um refúgio tranquilo para a sua família, invadida por uma atmosfera acolhedora e cercada pela beleza natural da região. Características Principais: - Área Total: 192m2 - Terreno: 275m2 - Número de Quartos: 3 - Número de Casas de Banho: 3 - Cozinha Equipada: Não Equipada - Garagem: Sim, para 1 carro - Jardim: Sim - Varandas: 2 - Terraço: 1 - Condição Geral: Boa - Ano de Construção: 2005 Distribuição Interna: - 3 Quartos Acolhedores: Quartos espaçosos ideais para o descanso. - 3 Casas de Banho: Cada membro da família terá o seu próprio espaço. - Cozinha Convidativa: Espaço para criar refeições em família. - Sala de Estar Luminosa: Ideal para momentos de convívio e relaxamento. - Varandas e Terraço: Espaços para desfrutar de ar fresco e vistas pitorescas. Amenidades e Segurança: - Conforto: TV a cabo, ventilação mecânica. - Sistema de Aquecimento: Aquecimento individual. - Segurança: Alarme de segurança instalado. Áreas Exteriores: - Jardim Encantador: Espaço para atividades ao ar livre e momentos de lazer. - Garagem: Estacionamento seguro para o seu veículo. - Terraço e Varandas: Locais perfeitos para desfrutar do ar livre. Pontos de Interesse Próximos: - Mercados: Apenas a 2 km de distância. - Escolas: Proximidade conveniente para a educação dos seus filhos. - Farmácia: A apenas 1 km de distância. - Autoestrada: Fácil acesso a apenas 2 km. Esta casa semi-geminada em Lobão é o lar perfeito para quem procura um ambiente sereno e familiar. Agende já a sua visita e faça desta casa o seu novo lar! #ref: 750414
AMI: 11220
Ref. Externa: 750414
Id: 1467223
Inicie sessão para guardar este imóvel e aceder à sua lista de favoritos em qualquer dispositivo.
4 Quartos
Área bruta : 329 m²
EXCLUSIVO FANTÁSTICO NEGÓCIO - MORADIA V4 com piscina | Lobão PREÇO: 510.000 EUROS Área Útil: 244 m² Área Bruta: 329 m² CE: A+ Moradia Geminada V4 em Lobão Constituída por Rés-do-Chão e 1ºandar RÉS-DO-CHÃO: -Hall de entrada com boa área -Cozinha equipada com eletrodomésticos e espaçosa, com muita arrumação, banca em pedra angola com península -1 Wc de serviço e apoio à zona social, sendo o wc completo -Sala de jantar e de estar com boa área -Escritório ou quarto com roupeiro embutido Excelentes áreas 1 Andar: -3 quartos espaçosos, sendo todos eles suites -Roupeiros embutidos com bastante arrumação -Chão em flutuante -1 WC um em cada suite Características Importantes: -Chão em flutuante -Excelente exposição solar -Espaço exterior bastante agradável -Lavandaria fechada -Painéis Solares - Painéis fotovoltaicos -Pré-instalação de Aspiração central -Estores elétricos -Iluminação em led -Ar-condicionado -Garagem fechada para 2 a 3 carros -Portões Automáticos -Pré-instalação de Alarme -Vídeo Porteiro Zona de churrasqueira Piscina com cobertura automatica Espaço exterior bastante agradável Zona sossegada -Caixilharia Corte Térmico -Vidros duplos -Aquecimento central ligado ao recuperador de calor -Recuperador de calor Casa Revestida a Capoto Perto de todos os serviços, bancos, supermercados, padarias, restaurantes. Bons acessos. PREÇO CAMPANHA: 510.000 EUROS * Tratamos do Seu Financiamento * Sábio Êxito Credit | Intermediário de Crédito sob o número 0002152 facebook. com/sabioexitocredit Marque a Sua Visita Virgílio Silva (custo de chamada para a rede móvel nacional) O Seu Sonho Começa Aqui!...
AMI: 9745
Ref. Externa: 4338
Id: 1442653
Inicie sessão para guardar este imóvel e aceder à sua lista de favoritos em qualquer dispositivo.
4 Quartos
8 WCs
Área bruta : 732 m²
Esta magnífica propriedade, construída em 2017, está estrategicamente situada num lote de terreno com 11.841 m2, a 15 minutos da vibrante cidade do Porto, no concelho de Santa Maria da Feira. Fica assim integrada na Área Metropolitana do Porto e no Distrito de Aveiro, sendo um refúgio perfeito para quem procura uma vida de luxo numa zona montanhosa exuberante. Aqui, a elegância encontra a serenidade da natureza.Nesta propriedade de arquitetura moderna, destaca-se a paisagem, proporcionando uma experiência visual única. O ambiente calmo e tranquilizante é acentuado pelo sistema de videovigilância, oferecendo uma sensação de segurança inigualável. A casa, edificada sobre uma caixa de ar em betão armado com isolamento acústico, proporciona uma experiência única de privacidade e conforto. A presença de um mezanino em suíte, concebida para acessibilidade a pessoas com mobilidade reduzida, adiciona um toque inclusivo e sofisticado. A cozinha em open space, harmoniosamente integrada à área de estar, revela-se um convite ao convívio, com uma dupla lareira que aquece ambos os espaços. O terraço de 60 m2, com acesso à cozinha, representa um convite irresistível a momentos de relaxamento ao ar livre. O primeiro andar revela um espaço íntimo, composto por três suítes com closet, cada uma com um tema de cor distinto, conferindo personalidade única a cada ambiente. A propriedade está equipada com ar condicionado central, eletrodomésticos de última geração, sistema de rega proveniente de poço. A garagem com capacidade para 4 carros, a casa das máquinas e a lavandaria acrescentam conforto e funcionalidade. Ao explorar os encantos do exterior, encontra a piscina aquecida, situada num deck elegante, churrasqueira e passadiço para momentos de diversão e convívio. Para os entusiastas do lazer pode encontrar nas imediações o Cine Teatro António Lamoso que proporciona cultura e entretenimento. A proximidade a prestigiadas escolas, garante uma educação de qualidade. Além disso, as facilidades de acesso a autoestradas ampliam o conforto. Esta propriedade é mais do que uma casa, é um testemunho de requinte e bom gosto, onde a modernidade se funde harmoniosamente com a natureza. Cada detalhe foi cuidadosamente pensado para oferecer uma experiência de vida única. O jardim, a montanha e o vale que rodeiam a propriedade acrescentam um toque de magia ao quotidiano. Permita-se viver assim. Características: Características Exteriores - Barbeque; Jardim; Parqueamento; Piscina exterior; Terraço/Deck; Porta blindada; Vídeo Porteiro; Sistema de rega; Características Interiores - Hall de entrada; Lareira; Mobilado; Pavimento Radiante; Eletrodomésticos embutidos; Casa de Banho da Suíte; Closet; Roupeiros; Quarto de hóspedes em anexo; Lavandaria; Cozinha Americana; Tecnologia Smart Home; Deck; Características Gerais - Primeiro Proprietário; Orientação - Nascente; Norte; Sul; Poente; Outros Equipamentos - Serviço de internet; Aquecimento central; Sistema de Segurança; Alarme de segurança; Painéis Solares; Depósito de água; Máquina de lavar louça; Secador de roupa; Frigorífico; Micro-ondas; Máquina de lavar roupa; Vistas - Vista lago; Vista montanha; Vista jardim; Vista campo; Outras características - Garagem; Varanda; Cozinha Equipada; Arrecadação; Suíte; Moradia; Acesso apropriado a pessoas com mobilidade reduzida; Ar Condicionado;
AMI: 21331
Ref. Externa: 2001009-383
Id: 1427970
Inicie sessão para guardar este imóvel e aceder à sua lista de favoritos em qualquer dispositivo.
3 Quartos
2 WCs
Área bruta : 187 m²
Com uma área útil de 97,2m² e uma garagem espaçosa de 47,5m², esta casa combina funcionalidade e elegância em cada detalhe. O seu layout moderno privilegia a convivência e a luminosidade, com cozinha e sala em open space, criando um ambiente acolhedor e harmonioso. Apresentamos esta encantadora moradia térrea T3, situada na freguesia de Lobão, no concelho de Santa Maria da Feira — uma zona tranquila e residencial, perfeita para quem procura conforto e qualidade de vida. Dispõe de três quartos, sendo um deles suíte, e duas casas de banho completas. Toda a moradia encontra-se totalmente mobilada e equipada, com uma decoração cuidada e contemporânea, pronta a habitar. No exterior, poderá desfrutar de um amplo pátio ideal para momentos ao ar livre, e de um agradável jardim que confere à casa um toque de serenidade e bem-estar. ? Uma moradia pensada para quem valoriza conforto, estética e praticidade — tudo num só piso. ? Agende a sua visita e deixe-se encantar por esta casa que reúne o melhor da vida moderna e da tranquilidade do campo. Não procuramos casas. Revelamos possibilidades." Na Stalker Real Estate, encontre mais do que uma casa — encontre o seu lugar. Um espaço com alma, onde cada decisão tem intenção, e cada detalhe é perseguido com olhos de futuro. Somos movidos pela curiosidade estratégica, pela visão fora do comum e por uma obsessão saudável em descobrir o que ainda ninguém viu. Exploramos o invisível, antecipamos oportunidades e nunca paramos onde os outros ficam. O nosso nome pode surpreender — e é isso mesmo que queremos: despertar. Porque no mercado imobiliário, quem se destaca é quem vai além do esperado. Aqui, cada cliente é único, cada imóvel é uma peça rara e cada transação, uma experiência cuidada com precisão, transparência e propósito. Dos investimentos às casas personalizadas, abrimos portas para um futuro moldado à sua medida. Inovamos no processo, quebramos padrões antigos e construímos consigo, passo a passo, conquistas com significado. Se procura mais do que uma experiência imobiliária — se procura uma jornada com visão, estratégia e emoção — então já sabe por onde começar. Stalker Real Estate. Um passo à frente, sempre. Vamos construir juntos?
AMI: 22706
Ref. Externa: 11162
Id: 1402761
Inicie sessão para guardar este imóvel e aceder à sua lista de favoritos em qualquer dispositivo.
3 Quartos
3 WCs
Área bruta : 280 m²
Moradia de Alta Qualidade em Lobão, Santa Maria da Feira Referencia Interna - smf_P250902 Apresentamos duas moradias de excelência, inseridas numa zona tranquila e de fácil acesso, em Lobão, Santa Maria da Feira. Estas habitações destacam-se pelo design contemporâneo, pelos acabamentos de primeira qualidade e por um planeamento arquitectónico pensado ao detalhe para oferecer o máximo de conforto, funcionalidade e bem-estar à sua família. Disponível 2 opções, moradia de 2 frentes por 440.000€ e moradia de 3 frentes por 450.000€ - ambas representam um investimento seguro e inteligente, combinando estética moderna com eficiência energética e praticidade no dia a dia. O rés-do-chão foi concebido como o verdadeiro centro social da casa, integrando uma sala ampla, repleta de luz natural, e uma cozinha totalmente equipada com electrodomésticos de elevada qualidade, pronta para inspirar momentos de convívio e gastronomia. Este piso oferece ainda um acesso directo ao jardim privado, um espaço generoso e versátil que convida ao lazer ao ar livre, perfeito para refeições em família, brincadeiras ou simplesmente para desfrutar da tranquilidade. No piso superior encontra-se a zona privada, com quartos bem distribuídos, desenhados para garantir descanso e privacidade. As casas de banho apresentam um estilo contemporâneo, combinando linhas limpas com materiais sofisticados, louças suspensas e pormenores elegantes que elevam a experiência de conforto. Cada detalhe foi cuidadosamente escolhido para assegurar qualidade e durabilidade: desde os estores eléctricos à climatização garantida por ar-condicionado e bomba de calor, até ao isolamento térmico com capoto, que assegura eficiência energética e poupança. A excelente exposição solar potencia a luminosidade natural, tornando os espaços ainda mais acolhedores e agradáveis. A localização estratégica é outro ponto forte: em Lobão, numa zona calma mas com ligações rápidas a Santa Maria da Feira, Espinho, Gaia e Porto. Esta proximidade garante fácil acesso a comércio, serviços, escolas e vias rápidas, sem comprometer a serenidade de viver numa moradia independente. Não perca a oportunidade de viver numa moradia que alia sofisticação, funcionalidade e uma localização privilegiada. Contacte-nos para mais informações ou agende já a sua visita. Tratamos do financiamento sem qualquer custo! Certificado energético: A+ Área: 155 m2 Valor: 440.000€ Ref: smf_P250902 Marque já a sua visita!! Teremos todo o gosto em ajudar a escolher seu imóvel.
AMI: 14839
Ref. Externa: smf_P250902
Id: 1376601
Inicie sessão para guardar este imóvel e aceder à sua lista de favoritos em qualquer dispositivo.
3 Quartos
3 WCs
Área bruta : 260 m²
Moradia T3+1 Moderna com 3 Frentes e Excelente Exposição Solar em Lobão - Santa Maria da Feira 3 Frentes 450.000€ 2 Frentes 440.000€ Apresentamos esta moderna moradia T3+1 de três frentes, distribuída por três pisos, localizada numa zona tranquila e residencial da freguesia de Lobão, no concelho de Santa Maria da Feira. Com uma excelente exposição solar e acabamentos de elevada qualidade, esta propriedade oferece o equilíbrio perfeito entre conforto, funcionalidade e estética contemporânea. Piso Rés-do-chão: Hall de entrada acolhedor que dá acesso à zona social; Sala comum ampla com 38 m², com ligação direta ao jardim exterior; Cozinha espaçosa com ilha central, totalmente mobilada e equipada com eletrodomésticos Balay; Despensa/lavandaria funcional; Varanda orientada a poente, ideal para desfrutar do pôr do sol; WC de serviço de apoio à zona social. 1º Piso: 2 quartos com roupeiros embutidos e acesso a uma varanda comum; WC completo com banheira de apoio aos quartos; Suite principal com WC privativo (base de duche) e acesso a um terraço privativo. Cave: Garagem para duas viaturas com excelente área de circulação; Compartimento versátil, ideal para escritório, quarto adicional ou arrumos. Características e Equipamentos: Ar-condicionado nas principais divisões; Aspiração central; Tetos falsos com focos embutidos; Estores elétricos; Caixilharia em alumínio com corte térmico e vidros duplos; Painéis solares e bomba de calor, contribuindo para uma elevada eficiência energética. Exterior Logradouro com cerca de 90 m²; Jardins envolventes em toda a volta da casa, proporcionando um ambiente calmo e agradável. Esta é a casa ideal para quem procura qualidade de vida, proximidade à natureza e conforto moderno num só lugar. Marque já a sua visita e venha descobrir todos os detalhes desta fantástica moradia! Visite esta excelente oportunidade! Sabia que somos Intermediários de Crédito? Estamos aqui para o ajudar em todo o processo de financiamento, desde a simulação até á aprovação. Quer comprar casa? Trocar? Investir? Transferir o crédito? Fale conosco e trate de tudo num só lugar, com confiança, simplicidade e sem complicações. Imo2007 - Mediação Imobiliária, Lda, intermediário de crédito vinculado registado junto do Banco de Portugal com o N.º 0001317. Autorizado para a apresentação ou proposta de contratos de crédito a consumidores e assistência a consumidores, mediante a realização de atos preparatórios ou de outros trabalhos de gestão pré-contratual relativamente a contratos de crédito que não tenham sido por si apresentados ou propostos. Autorizado a prestar serviços de consultoria. Mutuantes: Novo Banco, S.A., Caixa Geral de Depósitos, S.A., Banco Santander Totta, S.A., Bankinter, S.A. - Sucursal em Portugal, Union de Créditos Inmobiliarios, S.A. Estamos contactáveis através das nossas redes sociais (FACEBOOK e INSTAGRAM: /imobiliariaimo2007), do nosso site ou do nosso número de telemóvel - chamada para a rede móvel nacional - e também por WHATSAPP! A concretizar sonhos desde 2007! Ref. interna: 2597A
AMI: 7774
Ref. Externa: 2597A
Id: 1370226
Inicie sessão para guardar este imóvel e aceder à sua lista de favoritos em qualquer dispositivo.
3 Quartos
3 WCs
Área bruta : 260 m²
Moradia NOVA de Alta Qualidade em Lobão, Santa Maria da Feira Disponíveis duas moradias: 2 frentes: 440 000€ 3 frentes: 450 000€ Esta magnífica moradia está localizada em Lobão, Santa Maria da Feira, onde o conforto, a qualidade e o bom gosto se unem num só espaço. Construída com acabamentos de excelência e um design moderno e funcional, esta casa foi pensada para proporcionar o máximo bem-estar à sua família. Com áreas generosas e um layout inteligente, todos os espaços foram cuidadosamente projetados para oferecer conforto e fluidez. No rés-do-chão encontramos a área social, com cozinha totalmente equipada e no piso superior os quartos. As casas de banho destacam-se pelo estilo moderno e funcional, com materiais de qualidade, louças suspensas e detalhes elegantes. A excelente exposição solar garante luminosidade natural ao longo do dia, criando um ambiente acolhedor e harmonioso. - Caraterísticas: Estores eléctricos Ar-condicionado Bomba de calor Isolamento exterior em capoto O exterior conta com um jardim privado amplo. A localização estratégica permite chegar rapidamente a Santa Maria da Feira, Espinho, Gaia ou Porto. Entre em contato conosco hoje mesmo para agendar uma visita e conhecer melhor esta moradia!
AMI: 18137
Ref. Externa: mo596
Id: 1367985
Inicie sessão para guardar este imóvel e aceder à sua lista de favoritos em qualquer dispositivo.
3 Quartos
1 WCs
Área bruta : 87 m²
Moradia T3 Térrea em Lobão – Oportunidade a não perder! Apresentamos esta moradia térrea T3, situada na tranquila e agradável zona de Lobão. Em estado habitável, esta casa é uma excelente base para quem procura um imóvel com potencial de valorização. Com algumas obras de modernização, transforma-se facilmente num lar acolhedor e funcional, ideal para habitação própria ou investimento. Destaques do imóvel: - Tipologia T3 - Moradia térrea - Estado habitável - Possui poço - Excelente espaço exterior, ideal para jardim, lazer ou zona de convívio. Localização calma, com bons acessos. NOTA: Escritura ao abrigo do programa Simplex, pelo que, não dispõe de Licença de Utilização. Se procura um imóvel com boa relação qualidade/preço e potencial para se tornar numa casa de sonho, esta é a oportunidade certa. Entre em contacto para mais informações ou agendar a sua visita!
AMI: 18137
Ref. Externa: mo589
Id: 1358308
Inicie sessão para guardar este imóvel e aceder à sua lista de favoritos em qualquer dispositivo.
4 Quartos
Área bruta : 400 m²
FANTÁSTICO NEGÓCIO - MORADIA V4 NOVA | Lobão com Piscina PREÇO: 5200000 EUROS Área Útil: 300 m² Área Bruta: 396 m² CE: A+ Moradia Geminada V4 em Lobão Constituída por Rés-do-Chão e 1ºandar e Cave RÉS-DO-CHÃO: Hall de entrada com boa área -Cozinha equipada com eletrodomésticos e espaçosa, com muita arrumação, banca em pedra angola -1 Wc de serviço e apoio à zona social e a um quarto sendo o wc completo -Sala de jantar e de estar com boa área -Escritório ou quarto Excelentes áreas 1 Andar: -3 quartos espaçosos, sendo todos eles suites -Roupeiros embutidos com bastante arrumação -Chão em flutuante -3 WC um em cada suite Características Importantes: -Chão em flutuante -Excelente exposição solar -Espaço exterior bastante agradável -Lavandaria fechada -Painéis Solares -Pré-instalação de Aspiração central -Estores elétricos -Iluminação em led -Ar-condicionado -Garagem fechada para 2 a 3 carros -Portões Automáticos -Pré-instalação de Alarme -Vídeo Porteiro -Zona de churrasqueira -Espaço exterior bastante agradável -Zona sossegada -Caixilharia Corte Térmico -Vidros duplos -Aquecimento central ligado ao recuperador de calor -Recuperador de calor -Casa Revestida a Capoto Perto de todos os serviços, bancos, supermercados, padarias, restaurantes. Bons acessos. PREÇO CAMPANHA: 520000 EUROS * Tratamos do Seu Financiamento * Sábio Êxito Credit | Intermediário de Crédito sob o número 0002152 facebook. com/sabioexitocredit Marque a Sua Visita Virgílio Silva 913 155 616 (custo de chamada para a rede móvel nacional) O Seu Sonho Começa Aqui!...
AMI: 9745
Ref. Externa: 4327
Id: 1355100
Inicie sessão para guardar este imóvel e aceder à sua lista de favoritos em qualquer dispositivo.
4 Quartos
4 WCs
Área bruta : 260 m²
Fantástica moradia com piscina em Lobão, Santa Maria da Feira. Com um design contemporâneo e linhas modernas, esta moradia foi cuidadosamente pensada para oferecer o máximo de conforto, funcionalidade e sofisticação. Ideal para famílias que procuram aliar tranquilidade, espaço exterior e proximidade a serviços e acessos. O terreno conta com uma área de 650m2. Composta por: - Hall de entrada generoso; - Cozinha equipada em "open-space" com a sala de estar; - 3 suítes e 1 quarto; - Garagem fechada com capacidade para 2 viaturas; - O exterior dispõe de um amplo terraço, jardim, churrasqueira e piscina. Características: Painéis solares instalados; Estores elétricos; Caixilharia em Alumínio com corte térmico; Videoporteiro a cores; Vidros duplos e de baixa emissão; Revestimento térmico exterior em capoto; Aspiração Central; Lareira com recuperador de calor ligada aos radiadores; Aquecimento central a gás e a lenha ou pelets; Portões automatizados; Pré-instalação A/C; Sistema de videovigilância. Não perca esta oportunidade de investimento em um imóvel de qualidade e com uma localização privilegiada.
AMI: 18137
Ref. Externa: mo564
Id: 1209060
Inicie sessão para guardar este imóvel e aceder à sua lista de favoritos em qualquer dispositivo.
4 Quartos
Área bruta : 303 m²
Moradia T4, semi-nova e praticamente sem uso, localizada em Lobão, muito próxima da Corga. Com uma excelente exposição solar e áreas amplas, esta casa combina conforto, modernidade e qualidade de construção.Distribui-se por dois pisos – rés-do-chão e primeiro andar – e é vendida totalmente mobilada (com mobiliário da "Interdesign") e equipada.ExteriorGaragem fechada para dois carrosArrumosLavandariaCasa das máquinasChurrasqueiraCasa de banho de apoioRés-do-chãoSala e cozinha em open space, criando um ambiente amplo e funcionalQuarto com roupeiro embutidoCasa de banho completaPrimeiro andarTrês quartos, todos com varanda, incluindo uma master suiteA moradia destaca-se pelas suas áreas generosas e abundante luz natural, proporcionando um ambiente acolhedor e sofisticado. Características GeraisIsolamento térmico das fachadas com sistema capoto e pinturaPorta de segurança com vídeo porteiroInstalação telefónica e fichas de TV em todos os quartos e salaTetos em pladur, pintados, com iluminação LED (hidrófugo nas instalações sanitárias)Varandas com resguardo em vidro laminado e pavimento em granitoPavimentos flutuantes, acabamento carvalhoMaterial cerâmico retificado nos banhos (pavimentos e paredes)Carpintaria em madeira de carvalhoMóveis de cozinha em MDF hidrófugo, com acabamento em termolaminado alto brilhoTampo da cozinha em pedra natural “Negro Angola”Cozinha totalmente equipada com eletrodomésticosCasas de banho com móveis e louças sanitárias suspensasCaixilharia em alumínio termolacado, com rutura térmica, vidro duplo e estores elétricos térmicosPainel solar e bomba de calor para maior eficiência energéticaPortões exteriores automatizadosGás canalizado e caldeiraAspiração centralPré-instalação de ar condicionadoAlarme, videovigilância e sistema de domóticaUma excelente oportunidade para quem procura uma moradia moderna, bem equipada e pronta a habitar.A Esfera DomusA Esfera Domus é uma empresa de mediação Imobiliária que se dedica à mediação da compra e venda de imóveis, com a licença AMI nº 20139 e à intermediação de crédito, com a licença do Banco de Portugal nº 7137.Somos uma empresa 100% portuguesa, com modelo de funcionamento independente, não franchisado e sediada no concelho de Gaia, distrito do Porto.Somos uma equipa com longa experiência no mercado imobiliário e assumimos saudavelmente a nossa aspiração de crescimento, assente em compromissos de longo prazo.Preferimos a boa prestação de serviços à fácil promoção de um nome, o dedicado cumprimento das metas de eficácia ao invés da exploração de uma marca e, finalmente, preferimos as pessoas antes de um nome.Queremos deixar junto de quem nos relacionamos, uma imagem de rigor profissional e de estrito cumprimento das regras deontológicas.Entre na nossa “Esfera” !
AMI: 20139
Ref. Externa: ED001/25
Id: 1101176
Inicie sessão para guardar este imóvel e aceder à sua lista de favoritos em qualquer dispositivo.
3 Quartos
3 WCs
Área bruta : 220 m²
Moradia Unifamiliar Isolada V3 - Lobão, Sta. Maria da Feira Moradia isolada V3 em projeto de arquitetura para construção, inserida em gaveto de estrada nacional com municipal em Lobão - Sta. Maria da Feira. Rés do chão: Composto por hall de entrada, 3 quartos, sendo um deles suíte (wc privado), wc geral e alpendre coberto para 2 viaturas. Andar: Composto por cozinha e sala em open space, wc e acesso a terraço com barbecue. Características: Painéis solares térmicos com termossifão de 300 litros; Terraço executado com guarda de vidro; Alumínio com rutura térmica e vidro duplo guardian sun; Isolamento de fachada ETICS (capoto) com EPS 80mm; Coberturas Isoladas com isolamento térmico XPS 80mm; Barbecue; Cobertura da entrada pedonal em vidro; Portões em alumínio; Pré-instalação de painéis fotovoltaicos; Pré-instalação de vídeo vigilância; Pré-instalação de automatismo no portão de acesso de viatura; Pré-instalação de ar condicionado; Pavimentos em flutuante de vinil; Pré-instalação de blackouts elétricos; Pré-instalação de alarme; Pré-instalação de aspiração central; Mobiliário de cozinha à escolha do cliente; Wc's equipados com móveis e louças sanitárias; Recuperador de calor; Roupeiros embutidos; Divisória isoladas térmica/acústica com lã mineral; Paredes e tetos em gesso cartonado 'Pladur' BA 15 e BA12 hidrófugo da Knauf. Acessibilidades: Localização central com excelentes acessibilidades. A 5 min do Intermaché e Continente de Canedo A 10 min do Mercadona e do Lidl em Lourosa A 3 min do centro da Vila A 4 min do nó da autoestrada A32 Possibilidade de aquisição de apenas do terreno ou do terreno com a moradia integralmente construída chave na mão. Lote de Terreno: 541 m2 Área Útil: 155 m2 Área de Terraço: 30 m2 Área de Alpendre Coberto: 35 m2 Tipologia: V3 Localização Lobão Preço 356 000,00€ Visite esta excelente oportunidade. Sabia que somos Intermediários de Crédito? Estamos aqui para o ajudar em todo o processo de financiamento, desde a simulação até á aprovação. Quer comprar casa? Trocar? Investir? Transferir o crédito? Fale conosco e trate de tudo num só lugar, com confiança, simplicidade e sem complicações. Imo2007 - Mediação Imobiliária, Lda, intermediário de crédito vinculado registado junto do Banco de Portugal com o N.º 0001317. Autorizado para a apresentação ou proposta de contratos de credito a consumidores e assistência a consumidores, mediante a realização de atos preparatórios ou de outros trabalhos de gestão pré-contratual relativamente a contratos de credito que não tenham sido por si apresentados ou propostos. Autorizado a prestar serviços de consultoria. Mutuantes: Novo Banco, S.A., Caixa Geral de Depósitos, S.A., Banco Santander Totta, S.A., Bankinter, S.A. - Sucursal em Portugal, Union de Créditos Inmobiliarios, S.A. Estamos contactáveis através das nossas redes sociais (FACEBOOK e INSTAGRAM: /imobiliariaimo2007), do nosso site ou do nosso número de telemóvel - chamada para a rede móvel nacional - e também por WHATSAPP! A concretizar sonhos desde 2007! Referencia 2307A
AMI: 7774
Ref. Externa: 2307A
Id: 873126
Inicie sessão para guardar este imóvel e aceder à sua lista de favoritos em qualquer dispositivo.
Área útil : 155 m²
Moradia isolada V3 em projeto de arquitetura para construção, inserida em gaveto de estrada nacional com municipal em Lobão - Sta. Maria da Feira. Rés do chão: Composto por hall de entrada, 3 quartos, sendo um deles suíte (wc privado), wc geral e alpendre coberto para 2 viaturas. Andar: Composto por cozinha e sala em open space, wc e acesso a terraço com barbecue. Características: Painéis solares térmicos com termossifão de 300 litros; Terraço executado com guarda de vidro; Alumínio com rutura térmica e vidro duplo guardian sun; Isolamento de fachada ETICS (capoto) com EPS 80mm; Coberturas Isoladas com isolamento térmico XPS 80mm; Barbecue; Cobertura da entrada pedonal em vidro; Portões em alumínio; Pré-instalação de painéis fotovoltaicos; Pré-instalação de vídeo vigilância; Pré-instalação de automatismo no portão de acesso de viatura; Pré-instalação de ar condicionado; Pavimentos em flutuante de vinil; Pré-instalação de blackouts elétricos; Pré-instalação de alarme; Pré-instalação de aspiração central; Mobiliário de cozinha à escolha do cliente; Wc's equipados com móveis e louças sanitárias; Recuperador de calor; Roupeiros embutidos; Divisória isoladas térmica/acústica com lã mineral; Paredes e tetos em gesso cartonado 'Pladur' BA 15 e BA12 hidrófugo da Knauf. Acessibilidades: Localização central com excelentes acessibilidades. A 5 min do Intermaché e Continente de Canedo A 10 min do Mercadona e do Lidl em Lourosa A 3 min do centro da Vila A 4 min do nó da autoestrada A32 Área de Terraço: 30 m2 Área de Alpendre Coberto: 35 m2 Tipologia: V3 Localização Lobão Preço 356 000,00€ Possibilidade de aquisição apenas do terreno
AMI: 18939
Ref. Externa: MHI263
Id: 851698
Inicie sessão para guardar este imóvel e aceder à sua lista de favoritos em qualquer dispositivo.
Estes agentes são especialistas nesta zona:
Inicie sessão para ocultar este imóvel das suas pesquisas e manter a sua lista de resultados organizada.
Guardar favoritos
Este imóvel foi guardados nos seus favoritos com sucesso.
Para poder guardar pesquisa deverá ter a sua sessão iniciada.
Caso não tenha uma conta, deverá criar uma.
A sua pesquisa foi guardada com sucesso!
© Copyright 2023 | CASACERTA. All rights reserved
Este site utiliza cookies. Ao navegar no site estará a consentir a sua utilização.
Para mais informações sobre os cookies pode consultar a
política de privacidade.