Lista
Comprar
Arrendar
380.000 €
3 Quartos
3 WCs
Área útil : 180 m²
Moradia T3 a poucos minutos do centro de Barcelos Inserida numa zona residencial tranquila e exclusiva, a apenas 5 km do centro de Barcelos, esta moradia T3 de linhas contemporâneas combina elegância, conforto e elevada qualidade construtiva, proporcionando um estilo de vida distinto. O design moderno destaca-se pela harmonia dos espaços e pela excelente luminosidade natural. A cozinha em open space, totalmente integrada com a sala de estar e jantar, encontra-se equipada com placa, forno e exaustor, criando um ambiente sofisticado e funcional. A ampla sala oferece acesso direto ao jardim privativo, ideal para momentos de lazer, convívio e relaxamento ao ar livre. A área privada é composta por três quartos com varanda, todos eles pensados ao detalhe, sendo um uma elegante suíte, que garante máxima privacidade e conforto. A moradia dispõe ainda de três casas de banho, com acabamentos modernos e de elevada qualidade. A garagem fechada para três viaturas, complementada por uma prática zona de lavandaria, alia comodidade e organização ao quotidiano. Pensada para oferecer eficiência e bem-estar, a moradia está equipada com: Bomba de calor Painéis solares Pré-instalação de ar condicionado Pré-instalação de Sistema de vide vigilância Com 260 m² de área bruta e 180 m² de área útil, este imóvel representa uma oportunidade única para quem procura uma residência moderna, sofisticada e energeticamente eficiente, num ambiente de total tranquilidade. Possibilidade de permuta. ✨ Um espaço onde o design contemporâneo encontra o conforto absoluto. ✨ Siga-nos nas nossas redes sociais! WEBSITE: https://www.lardesonho.pt/barcelos/ FACEBOOK: https://www.facebook.com/lardesonhobarcelospagina INSTAGRAM: https://www.instagram.com/lardesonhobarcelos/ YOUTUBE: https://www.youtube.com/@lardesonhobarcelos2733 A história de sucesso da rede imobiliária LardeSonho deve-se a um serviço de excelência, personalizado para cada cliente, marcado por três premissas- SATISFAÇÃO- RECOMENDAÇÃO-FIDELIZAÇÃO. É a Maior Rede Imobiliária 100% Nacional tendo 24 agências distribuídas por todo o país com mais de 400 Consultores, o que garante uma presença forte junto de potenciais compradores e investidores. A Rede Imobiliária LardeSonho tem como ferramentas uma equipa de profissionais dinâmicos, motivados, com uma vasta experiência; uma carteira de imóveis aos preços mais competitivos do mercado; uma atitude proactiva que se carateriza por inúmeras iniciativas de marketing, campanhas, eventos publicitários, promovendo e divulgando com sucesso a sua carteira de imóveis em cada localidade onde tem Agência. Aliados a parcerias com instituições bancárias, gabinetes de arquitetura, empresas de construção, marketing e publicidade, a rede Imobiliária LardeSonho ajuda os seus clientes a encontrar a solução adequada às suas necessidades. ---- 3-bedroom house just a few minutes from the centre of Barcelos Located in a quiet and exclusive residential area, just 5 km from the centre of Barcelos, this contemporary 3-bedroom house combines elegance, comfort and high-quality construction, offering a distinctive lifestyle. The modern design stands out for the harmony of the spaces and the excellent natural light. The open-plan kitchen, fully integrated with the living and dining room, is equipped with a hob, oven and extractor fan, creating a sophisticated and functional environment. The large living room offers direct access to the private garden, ideal for leisure, socialising and relaxing outdoors. The private area consists of three bedrooms with balconies, all designed with attention to detail, one of which is an elegant en-suite, ensuring maximum privacy and comfort. The villa also has three bathrooms with modern, high-quality finishes. The closed garage for three cars, complemented by a practical laundry area, combines convenience and organisation for everyday life. Designed to offer efficiency and well-being, the house is equipped with: Heat pump Solar panels Pre-installation of air conditioning Pre-installation of video surveillance system With 260 m² of gross area and 180 m² of usable area, this property represents a unique opportunity for those looking for a modern, sophisticated and energy-efficient residence in a totally peaceful environment. ✨ A space where contemporary design meets absolute comfort. ✨ Follow us on our social networks! WEBSITE: https://www.lardesonho.pt/barcelos/ FACEBOOK: https://www.facebook.com/lardesonhobarcelospagina INSTAGRAM: https://www.instagram.com/lardesonhobarcelos/ YOUTUBE: https://www.youtube.com/@lardesonhobarcelos2733 The success story of the LardeSonho real estate network is due to a service of excellence, personalized for each client, marked by three premises - SATISFACTION - RECOMMENDATION - RELEASE. It is the largest 100% national real estate network, with 24 branches throughout the country and more than 400 consultants, guaranteeing a strong presence among potential buyers and investors. The LardeSonho Real Estate Network has as its tools a team of dynamic, motivated professionals with vast experience; a portfolio of properties at the most competitive prices on the market; a proactive attitude that is characterized by numerous marketing initiatives, campaigns, advertising events, successfully promoting and publicizing its portfolio of properties in each location where it has an Agency. Combined with partnerships with banks, architectural offices, construction, marketing and advertising companies, the LardeSonho Real Estate network helps its clients find the right solution for their needs.
AMI: 17319
Ref. Externa: 265-M-02145
Id: 1647944
Inicie sessão para guardar este imóvel e aceder à sua lista de favoritos em qualquer dispositivo.
370.000 €
3 Quartos
3 WCs
Área útil : 180 m²
Moradia T3 a poucos minutos do centro de Barcelos Inserida numa zona residencial tranquila e exclusiva, a apenas 5 km do centro de Barcelos, esta moradia T3 de linhas contemporâneas combina elegância, conforto e elevada qualidade construtiva, proporcionando um estilo de vida distinto. O design moderno destaca-se pela harmonia dos espaços e pela excelente luminosidade natural. A cozinha em open space, totalmente integrada com a sala de estar e jantar, encontra-se equipada com placa, forno e exaustor, criando um ambiente sofisticado e funcional. A ampla sala oferece acesso direto ao jardim privativo, ideal para momentos de lazer, convívio e relaxamento ao ar livre. A área privada é composta por três quartos com varanda, todos eles pensados ao detalhe, sendo um uma elegante suíte, que garante máxima privacidade e conforto. A moradia dispõe ainda de três casas de banho, com acabamentos modernos e de elevada qualidade. A garagem fechada para três viaturas, complementada por uma prática zona de lavandaria, alia comodidade e organização ao quotidiano. Pensada para oferecer eficiência e bem-estar, a moradia está equipada com: Bomba de calor Painéis solares Pré-instalação de ar condicionado Pré-instalação de Sistema de vide vigilância Com 260 m² de área bruta e 180 m² de área útil, este imóvel representa uma oportunidade única para quem procura uma residência moderna, sofisticada e energeticamente eficiente, num ambiente de total tranquilidade. Possibilidade de permuta. ✨ Um espaço onde o design contemporâneo encontra o conforto absoluto. ✨ Siga-nos nas nossas redes sociais! WEBSITE: https://www.lardesonho.pt/barcelos/ FACEBOOK: https://www.facebook.com/lardesonhobarcelospagina INSTAGRAM: https://www.instagram.com/lardesonhobarcelos/ YOUTUBE: https://www.youtube.com/@lardesonhobarcelos2733 A história de sucesso da rede imobiliária LardeSonho deve-se a um serviço de excelência, personalizado para cada cliente, marcado por três premissas- SATISFAÇÃO- RECOMENDAÇÃO-FIDELIZAÇÃO. É a Maior Rede Imobiliária 100% Nacional tendo 24 agências distribuídas por todo o país com mais de 400 Consultores, o que garante uma presença forte junto de potenciais compradores e investidores. A Rede Imobiliária LardeSonho tem como ferramentas uma equipa de profissionais dinâmicos, motivados, com uma vasta experiência; uma carteira de imóveis aos preços mais competitivos do mercado; uma atitude proactiva que se carateriza por inúmeras iniciativas de marketing, campanhas, eventos publicitários, promovendo e divulgando com sucesso a sua carteira de imóveis em cada localidade onde tem Agência. Aliados a parcerias com instituições bancárias, gabinetes de arquitetura, empresas de construção, marketing e publicidade, a rede Imobiliária LardeSonho ajuda os seus clientes a encontrar a solução adequada às suas necessidades. ---- 3-bedroom house just a few minutes from the centre of Barcelos Located in a quiet and exclusive residential area, just 5 km from the centre of Barcelos, this contemporary 3-bedroom house combines elegance, comfort and high-quality construction, offering a distinctive lifestyle. The modern design stands out for the harmony of the spaces and the excellent natural light. The open-plan kitchen, fully integrated with the living and dining room, is equipped with a hob, oven and extractor fan, creating a sophisticated and functional environment. The large living room offers direct access to the private garden, ideal for leisure, socialising and relaxing outdoors. The private area consists of three bedrooms with balconies, all designed with attention to detail, one of which is an elegant en-suite, ensuring maximum privacy and comfort. The villa also has three bathrooms with modern, high-quality finishes. The closed garage for three cars, complemented by a practical laundry area, combines convenience and organisation for everyday life. Designed to offer efficiency and well-being, the house is equipped with: Heat pump Solar panels Pre-installation of air conditioning Pre-installation of video surveillance system With 260 m² of gross area and 180 m² of usable area, this property represents a unique opportunity for those looking for a modern, sophisticated and energy-efficient residence in a totally peaceful environment. ✨ A space where contemporary design meets absolute comfort. ✨ Follow us on our social networks! WEBSITE: https://www.lardesonho.pt/barcelos/ FACEBOOK: https://www.facebook.com/lardesonhobarcelospagina INSTAGRAM: https://www.instagram.com/lardesonhobarcelos/ YOUTUBE: https://www.youtube.com/@lardesonhobarcelos2733 The success story of the LardeSonho real estate network is due to a service of excellence, personalized for each client, marked by three premises - SATISFACTION - RECOMMENDATION - RELEASE. It is the largest 100% national real estate network, with 24 branches throughout the country and more than 400 consultants, guaranteeing a strong presence among potential buyers and investors. The LardeSonho Real Estate Network has as its tools a team of dynamic, motivated professionals with vast experience; a portfolio of properties at the most competitive prices on the market; a proactive attitude that is characterized by numerous marketing initiatives, campaigns, advertising events, successfully promoting and publicizing its portfolio of properties in each location where it has an Agency. Combined with partnerships with banks, architectural offices, construction, marketing and advertising companies, the LardeSonho Real Estate network helps its clients find the right solution for their needs.
AMI: 17319
Ref. Externa: 265-M-02147
Id: 1647942
Inicie sessão para guardar este imóvel e aceder à sua lista de favoritos em qualquer dispositivo.
370.000 €
3 Quartos
3 WCs
Área útil : 151 m²
Moradia T3 a poucos minutos do centro de Barcelos Inserida numa zona residencial tranquila e exclusiva, a apenas 5 km do centro de Barcelos, esta moradia T3 de linhas contemporâneas combina elegância, conforto e elevada qualidade construtiva, proporcionando um estilo de vida distinto. O design moderno destaca-se pela harmonia dos espaços e pela excelente luminosidade natural. A cozinha em open space, totalmente integrada com a sala de estar e jantar, encontra-se equipada com placa, forno e exaustor, criando um ambiente sofisticado e funcional. A ampla sala oferece acesso direto ao jardim privativo, ideal para momentos de lazer, convívio e relaxamento ao ar livre. A área privada é composta por três quartos com varanda, todos eles pensados ao detalhe, sendo um uma elegante suíte, que garante máxima privacidade e conforto. A moradia dispõe ainda de três casas de banho, com acabamentos modernos e de elevada qualidade. A garagem fechada para três viaturas, complementada por uma prática zona de lavandaria, alia comodidade e organização ao quotidiano. Pensada para oferecer eficiência e bem-estar, a moradia está equipada com: Bomba de calor Painéis solares Pré-instalação de ar condicionado Pré-instalação de Sistema de vide vigilância Com 260 m² de área bruta e 180 m² de área útil, este imóvel representa uma oportunidade única para quem procura uma residência moderna, sofisticada e energeticamente eficiente, num ambiente de total tranquilidade. Possibilidade de permuta. ✨ Um espaço onde o design contemporâneo encontra o conforto absoluto. ✨ Siga-nos nas nossas redes sociais! WEBSITE: https://www.lardesonho.pt/barcelos/ FACEBOOK: https://www.facebook.com/lardesonhobarcelospagina INSTAGRAM: https://www.instagram.com/lardesonhobarcelos/ YOUTUBE: https://www.youtube.com/@lardesonhobarcelos2733 A história de sucesso da rede imobiliária LardeSonho deve-se a um serviço de excelência, personalizado para cada cliente, marcado por três premissas- SATISFAÇÃO- RECOMENDAÇÃO-FIDELIZAÇÃO. É a Maior Rede Imobiliária 100% Nacional tendo 24 agências distribuídas por todo o país com mais de 400 Consultores, o que garante uma presença forte junto de potenciais compradores e investidores. A Rede Imobiliária LardeSonho tem como ferramentas uma equipa de profissionais dinâmicos, motivados, com uma vasta experiência; uma carteira de imóveis aos preços mais competitivos do mercado; uma atitude proactiva que se carateriza por inúmeras iniciativas de marketing, campanhas, eventos publicitários, promovendo e divulgando com sucesso a sua carteira de imóveis em cada localidade onde tem Agência. Aliados a parcerias com instituições bancárias, gabinetes de arquitetura, empresas de construção, marketing e publicidade, a rede Imobiliária LardeSonho ajuda os seus clientes a encontrar a solução adequada às suas necessidades. ---- 3-bedroom house just a few minutes from the centre of Barcelos Located in a quiet and exclusive residential area, just 5 km from the centre of Barcelos, this contemporary 3-bedroom house combines elegance, comfort and high-quality construction, offering a distinctive lifestyle. The modern design stands out for the harmony of the spaces and the excellent natural light. The open-plan kitchen, fully integrated with the living and dining room, is equipped with a hob, oven and extractor fan, creating a sophisticated and functional environment. The large living room offers direct access to the private garden, ideal for leisure, socialising and relaxing outdoors. The private area consists of three bedrooms with balconies, all designed with attention to detail, one of which is an elegant en-suite, ensuring maximum privacy and comfort. The villa also has three bathrooms with modern, high-quality finishes. The closed garage for three cars, complemented by a practical laundry area, combines convenience and organisation for everyday life. Designed to offer efficiency and well-being, the house is equipped with: Heat pump Solar panels Pre-installation of air conditioning Pre-installation of video surveillance system With 260 m² of gross area and 180 m² of usable area, this property represents a unique opportunity for those looking for a modern, sophisticated and energy-efficient residence in a totally peaceful environment. ✨ A space where contemporary design meets absolute comfort. ✨ Follow us on our social networks! WEBSITE: https://www.lardesonho.pt/barcelos/ FACEBOOK: https://www.facebook.com/lardesonhobarcelospagina INSTAGRAM: https://www.instagram.com/lardesonhobarcelos/ YOUTUBE: https://www.youtube.com/@lardesonhobarcelos2733 The success story of the LardeSonho real estate network is due to a service of excellence, personalized for each client, marked by three premises - SATISFACTION - RECOMMENDATION - RELEASE. It is the largest 100% national real estate network, with 24 branches throughout the country and more than 400 consultants, guaranteeing a strong presence among potential buyers and investors. The LardeSonho Real Estate Network has as its tools a team of dynamic, motivated professionals with vast experience; a portfolio of properties at the most competitive prices on the market; a proactive attitude that is characterized by numerous marketing initiatives, campaigns, advertising events, successfully promoting and publicizing its portfolio of properties in each location where it has an Agency. Combined with partnerships with banks, architectural offices, construction, marketing and advertising companies, the LardeSonho Real Estate network helps its clients find the right solution for their needs.
AMI: 17319
Ref. Externa: 265-M-02149
Id: 1647940
Inicie sessão para guardar este imóvel e aceder à sua lista de favoritos em qualquer dispositivo.
485.000 €
3 Quartos
3 WCs
Área bruta : 308 m²
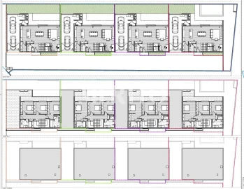
Última moradia Oportunidade Única em Abade Neiva - Barcelos! Sonha com uma vida de conforto, luxo e tranquilidade? Apresentamos as Moradias T3 que combinam design moderno com acabamentos de excelência, inseridas num condomínio fechado exclusivo em Abade Neiva, Barcelos. Porquê escolher uma destas moradias? Acabamentos de Luxo: Cada detalhe foi pensado para oferecer o máximo requinte e durabilidade. Conforto e Eficiência: Equipadas com ar condicionado, painéis solares, vidros duplos e aspiração central para o seu bem-estar e poupança energética. Localização Privilegiada: Desfrute de uma excelente exposição solar e da conveniência de estar a apenas cinco minutos da cidade de Barcelos, com fácil acesso a todas as comodidades. Qualidade Superior: Construídas com materiais de alta qualidade, garantindo a robustez e a longevidade do seu novo lar. Estas moradias são perfeitas para quem procura exclusividade, segurança e um estilo de vida elevado. Não perca esta oportunidade de viver na casa dos seus sonhos! Entre em contacto para mais informações ou agende já a sua visita. ----------------------------------------------------------------------------------------------------------------------- De que forma e com que meios a Barcelcasa Imobiliária lhe presta o melhor serviço superando as suas expectativas? - Orienta o comprador a identificar e negociar o imóvel que melhor se adequa à sua necessidade e capacidade financeira. - Profundo conhecimento do mercado imobiliário local. - A Barcelcasa tem conhecimento completo sobre a situação dos imóveis e está mandatado pelos proprietários para os representar. - Fornece ao comprador o máximo de informação sobre os imóveis, não ocultando qualquer informação relevante. - Apoia e orienta na obtenção de financiamento bancário através do seu serviço de Intermediação de Crédito, com as melhores condições que o mercado lhe pode oferecer. (Intermediários de crédito vinculado registados no Banco de Portugal com o nº 0001237) - Acompanha e orienta na concretização do negócio desde as visitas aos imóveis até à escritura e registo. - Experiência de 24 anos no mercado imobiliário em Barcelos. - Profissionais com largos anos de experiência e com formação contínua. - Proporciona o melhor preço. - Assegura a rapidez e segurança no negócio. Com um padrão de seriedade na prestação de serviços imobiliários, procura realizar bons negócios com eficiência, proporcionando assim, tranquilidade aos seus clientes.
AMI: 4734
Ref. Externa: 259/24
Id: 1632837
Inicie sessão para guardar este imóvel e aceder à sua lista de favoritos em qualquer dispositivo.
400.000 €
4 Quartos
4 WCs
Área bruta : 400 m²
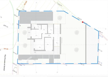
Moradia T4 em zona calma, excelente localização, exposição solar e vistas panorâmicas. Área do lote: 620m2. Área bruta de construção: 400m2. Área bruta privativa: 240m2. Área bruta dependente: 160m2. Painéis solares. Aquecimento central. Anexo com lavandaria. Logradouro.
AMI: 4734
Ref. Externa: Mor. T4 Abade Neiva
Id: 1632786
Inicie sessão para guardar este imóvel e aceder à sua lista de favoritos em qualquer dispositivo.
485.000 €
3 Quartos
3 WCs
Área útil : 340 m²
Moradia V3 Nova. Arquitetura Moderna com Acabamentos de Excelente Qualidade. Cozinha com Ilha e Equipada com Eletrodomésticos Bosch. Roupeiros Embutidos. Open Space. Lareira com recuperador de Calor. Caixilharias em Alumínio. Estores Elétricos. Isolamento Térmico e Acústico. Bomba de Calor de 300 Litros. Climatização por Conduta. Pré Instalação de Painéis Solares. Garagem para 2 Carros com Portão Automático. Jardim com Churrasqueira. Excelente Exposição Solar. Muito Bons Acessos. VISITE! Descubras as melhores oportunidades do mercado imobiliário em Barcelos com a factorvalor - Imobiliária! Se está à procura de um parceiro confiável para mediar a compra, venda, trespasse ou arrendamento do seu imóvel, a factorvalor - Imobiliária é a escolha certa! Situados no coração da cidade de Barcelos, na Rua Cândido da Cunha, Edf. Barcelense, nº 260, somos especialistas no mercado imobiliário, temos uma vasta carteira de clientes e imóveis e estamos aqui para lhe oferecer um serviço de excelência. Por que escolher a factorvalor - Imobiliária? - Equipa dedicada e qualificada, composta por profissionais experientes e emprenhados no trabalho que fazem, prontos para ouvir as suas necessidades e orientá-lo nas melhores decisões. - Variedade de opções, seja um apartamento, uma moradia, um terreno para construção, um espaço comercial, um terreno agrícola, uma loja, escritório, pavilhão industrial, armazém, uma quinta, um prédio, ou até mesmo uma casa rústica ou para restauro, temos uma ampla seleção de imóveis que vão ao encontro às suas preferências e estilo de vida. -Condições atrativas, oferecemos as melhores oportunidades do mercado imobiliário em Barcelos, garantindo que encontra o imóvel ideal para si. Consulte a nossa página web e descubra a nossa seleção exclusiva de imóveis em Barcelos, com as mais recentes novidades e oportunidades imperdíveis no mercado. Se pretende comprar, vender, trespassar ou arrendar, a factorvalor - Imobiliária está pronta para o ajudar em cada passo do processo. Entre em contato connosco e transforme o seu sonho em realidade. Com a factorvalor - Imobiliária, estará um passo mais perto de encontrar o imóvel perfeito.
AMI: 8713
Ref. Externa: 272M001037
Id: 1624719
Inicie sessão para guardar este imóvel e aceder à sua lista de favoritos em qualquer dispositivo.
550.000 €
Área bruta : 404 m²
Moradia individual T3 em construção na Encosta do Sardoal - Abade Neiva - Barcelos. Área bruta de construção: 404m2. Inserida em lote de 545m2. Vistas panorâmicas. A poucos minutos da cidade. ----------------------------------------------------------------------------------------------------------------------- De que forma e com que meios a Barcelcasa Imobiliária lhe presta o melhor serviço superando as suas expectativas? - Orienta o comprador a identificar e negociar o imóvel que melhor se adequa à sua necessidade e capacidade financeira. - Profundo conhecimento do mercado imobiliário local. - A Barcelcasa tem conhecimento completo sobre a situação dos imóveis e está mandatado pelos proprietários para os representar. - Fornece ao comprador o máximo de informação sobre os imóveis, não ocultando qualquer informação relevante. - Apoia e orienta na obtenção de financiamento bancário através do seu serviço de Intermediação de Crédito, com as melhores condições que o mercado lhe pode oferecer. (Intermediários de crédito vinculado registados no Banco de Portugal com o nº 0001237) - Acompanha e orienta na concretização do negócio desde as visitas aos imóveis até à escritura e registo. - Experiência de 20 anos no mercado imobiliário em Barcelos. - Profissionais com largos anos de experiência e com formação contínua. - Proporciona o melhor preço. - Assegura a rapidez e segurança no negócio. Com um padrão de seriedade na prestação de serviços imobiliários, procura realizar bons negócios com eficiência, proporcionando assim, tranquilidade aos seus clientes.
AMI: 4734
Ref. Externa: 119/23
Id: 1444830
Inicie sessão para guardar este imóvel e aceder à sua lista de favoritos em qualquer dispositivo.
395.000 €
4 Quartos
Área bruta : 400 m²
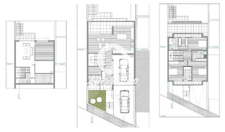
Moradia Individual em Abade de Neiva - Barcelos Moradia T4 em Abade de Neiva, Barcelos — Espaço, Conforto e Vista Deslumbrante Áreas: - Área total do terreno: 620 m² - Área de implantação: 160 m² - Área bruta de construção: 400 m² - Área bruta privativa: 240 m² - Área bruta dependente: 160 m² Localizada em Abade de Neiva, uma das freguesias mais procuradas do concelho de Barcelos, esta moradia destaca-se pela excelente exposição solar, tranquilidade envolvente e proximidade de serviços essenciais. Com bons acessos e uma construção sólida, é o lar ideal para quem procura qualidade de vida, espaço e conforto. ? Distribuição dos Espaços Rés do chão: Ampla garagem para 3 automóveis; Escritório funcional; WC de serviço; Arrecadação. Piso 0: Hall de entrada acolhedor; Sala de jantar luminosa; Cozinha com acesso direto ao exterior; WC completo; Quarto; Suíte; Arrecadação. Piso 1: Hall de circulação com acesso a um terraço com vistas deslumbrantes; Sala de estar ampla e confortável; Dois quartos, um deles com varanda e com ótima exposição solar; WC completo. - Exterior Quintal com árvores de fruto e jardim muito cuidado, ideais para convívio e lazer; - Churrasqueira; - Logradouro de acesso ao estacionamento; - Aquecimento central; - Painéis solares. - Vista desafogada e ambiente calmo, perfeito para quem aprecia o sossego e o contacto com a natureza. ? Localização e Acessos A poucos minutos do centro de Barcelos e da EN103, com ligação direta à A11 (Braga – Esposende); Escolas, supermercados, centro de saúde e serviços públicos a menos de 5 minutos; Paragem de autocarro próxima e estação de comboios de Barcelos a cerca de 7 minutos; Hospital de Barcelos a 10 minutos; Braga a 25 minutos, Viana do Castelo a 30 minutos, Porto a 45 minutos; Praias do Litoral Norte (Esposende, Ofir, Apúlia) a cerca de 25 minutos; Gerês a aproximadamente 1 hora; Aeroporto do Porto (Francisco Sá Carneiro) a 40 minutos. Com uma localização estratégica e uma envolvência tranquila, esta moradia oferece o equilíbrio ideal entre o ambiente rural e a proximidade urbana. Perfeita para famílias que procuram espaço, conforto e qualidade de vida, num dos concelhos mais acolhedores do Minho. ? Marque já a sua visita e venha descobrir a sua nova casa em Abade de Neiva, Barcelos!
AMI: 23524
Ref. Externa: KWPT-023392
Id: 1443095
Inicie sessão para guardar este imóvel e aceder à sua lista de favoritos em qualquer dispositivo.
445.000 €
3 Quartos
3 WCs
Área bruta : 300 m²
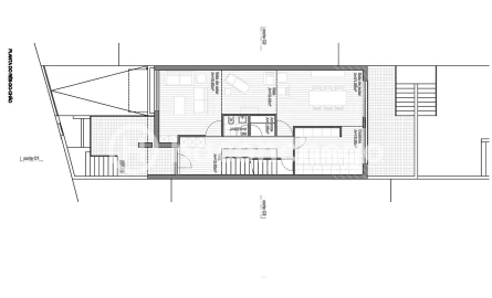
Esta moradia em banda de tipologia T3 destaca-se pelas suas áreas generosas e pelo cuidado nos acabamentos, que ainda podem ser escolhidos pelo futuro proprietário. Com três quartos, incluindo um com closet e todos com roupeiros embutidos, oferece o espaço e a organização que qualquer família deseja. Possui três casas de banho, garantindo funcionalidade e conforto no dia a dia. A cozinha é equipada com móveis e tem uma prática copa, ideal para refeições descontraídas. A sala de estar e a sala de jantar estão unificadas num ambiente acolhedor com recuperador de calor, perfeito para momentos de convívio e relaxamento. No exterior, conta com garagem e um logradouro com excelente exposição solar e uma paisagem encantadora, que proporciona bem-estar e tranquilidade. Para além disso, é possível agendar uma visita para consultar o caderno de encargos e as plantas detalhadas do imóvel. Aproveite esta oportunidade para transformar esta casa no seu novo lar.
AMI: 10931
Ref. Externa: 001802
Id: 1424843
Inicie sessão para guardar este imóvel e aceder à sua lista de favoritos em qualquer dispositivo.
736.000 €
4 Quartos
5 WCs
Área útil : 594 m²
Moradia Exclusiva em Abade de Neiva – Barcelos, Norte de Portugal; Arquitectura Contemporânea | Piscina Privada | 594 m² de Conforto Total! Descubra esta sofisticada moradia individual situada numa das zonas residenciais mais tranquilas e valorizadas de Barcelos, no coração do Minho, uma das regiões mais autênticas e encantadoras do norte de Portugal. A apenas 3 minutos do centro da cidade, esta propriedade é o refúgio perfeito entre o campo, a cidade e o mar. Com uma generosa área de construção de 594 m², distribuída por três pisos, esta moradia oferece espaços amplos, design moderno e acabamentos de elevada qualidade. Está equipada com estrutura preparada para elevador, ideal para famílias de todas as idades ou para quem valoriza acessibilidade. Distribuição do Imóvel; Cave: Garagem espaçosa com 90 m², com capacidade para 5 viaturas; Zona de arrumos com 40 m²; Rés-do-chão: - Hall de entrada com roupeiro embutido; - WC de serviço; - Cozinha moderna com 25 m², totalmente equipada; - Lavandaria com 15 m² e acesso a varanda; Sala de jantar com 65 m², em open space; Sala de estar com 85 m², acesso ao jardim e à piscina privativa, com vistas desafogadas sobre a paisagem envolvente. Primeiro Andar: - 4 quartos suítes; - Roupeiros embutidos em madeira de sucupira; - Casas de banho com design contemporâneo e loiças suspensas; - Master suite com closet, casa de banho com banheira e base de duche, e ligação a um amplo terraço privado de 60 m²; Equipamentos e Confortos Modernos: - Caixilharia em alumínio termolacado com vidro duplo e sistema oscilo-batente; - Estores elétricos; - Painéis solares e termoacumulador; - Pré-instalação de aquecimento central a gás; - Ar condicionado; - Vídeo porteiro, alarme e pré-instalação de som ambiente; Viva no Coração do Minho! - A localização é simplesmente privilegiada: - A 15 minutos da costa atlântica e das praias do litoral Norte (Esposende, Ofir, Apúlia); - Próxima das cidades de Braga, Viana do Castelo e Porto e Aeroporto; - Inserida numa região conhecida pela sua gastronomia rica, vinhos verdes, paisagens naturais, rios e serras; - Excelente qualidade de vida, segurança, tranquilidade e beleza natural... ✨ Ideal para residência permanente, casa de férias ou investimento imobiliário. Se procura espaço, conforto, privacidade e qualidade num dos locais mais bonitos de Portugal, esta é a sua oportunidade!!! Agende já a sua visita e deixe-se encantar por esta moradia única no Minho! #ref: 146208
AMI: 11220
Ref. Externa: 146208
Id: 1288913
Inicie sessão para guardar este imóvel e aceder à sua lista de favoritos em qualquer dispositivo.
504.000 €
4 Quartos
2 WCs
Área útil : 375 m²
Moradia T4 de gaveto em fase final de construção – Abade de Neiva, Barcelos; Apresentamos-lhe esta excelente moradia unifamiliar de 3 pisos, situada em Abade de Neiva, numa zona residencial calma e com ótimos acessos, ideal para quem procura conforto, tranquilidade e proximidade à cidade. - A apenas 5 minutos do centro de Barcelos, 20 minutos de Braga e das praias da região, e a 50 minutos do Aeroporto do Porto, esta moradia oferece uma localização estratégica, com acesso fácil a diversos serviços essenciais, escolas, comércio e transportes públicos. - Com uma excelente exposição solar e vistas desafogadas, esta casa foi pensada para proporcionar funcionalidade, bem-estar e espaço para toda a família. Distribuição do imóvel: Piso -1 (cave): - Ampla garagem com capacidade para 5 viaturas Zona de arrumos Rés-do-chão: - Cozinha e sala em formato open space, com áreas generosas e luz natural abundante; Despensa; Casa de banho de serviço; Piso superior: 4 quartos, sendo 2 em suite, todos com boa luminosidade e áreas confortáveis; Casa de banho completa com base de duche; - No exterior, conta com um espaço de lazer com potencial para instalação de piscina e criação de jardim, ideal para desfrutar de momentos em família ou com amigos. - Esta moradia combina modernidade, espaço e localização privilegiada, oferecendo o ambiente ideal para quem procura viver com qualidade, próximo da cidade mas longe do ruído do dia a dia. A oportunidade perfeita para criar o seu novo lar! Aguardamos o seu contacto. Marque já a sua visita! #ref: 145965
AMI: 11220
Ref. Externa: 145965
Id: 1282353
Inicie sessão para guardar este imóvel e aceder à sua lista de favoritos em qualquer dispositivo.
350.000 €
4 Quartos
Área útil : 300 m²
Moradia T4 para venda em Vilar Monte BarcelosMoradia em bom estado de conservação, com uma área bruta de cerca de 300m2, dividida em 4 pisos.Com um total de três casas de banho, uma delas suíte, a moradia tem ainda uma cozinha equipada e garagem para 2 carros com portão automático e jardim privativo perfeito para desfrutar ao ar livre.A casa está equipada com ar condicionado, aspiração central, caixilharia de alumínio com vidros duplos.A moradia também conta com alarme e videoporteiro para maior segurança.Os quartos e sala com pavimento em soalho de madeira, roupeiros embutidos, varandas, e um espaço do último piso que pode desfrutar como sala cinema ou escritório com dois espaçosos terraços.Com vistas desafogadas e áreas verdes, esta casa é perfeita para quem procura um ambiente tranquilo e natural.Localizada a cerca de 10 minutos do centro da cidade de Barcelos onde tem disponível todos os serviços primários, escolas, transportes públicos, supermercados, hospitais, comércio e serviços, esta moradia é ideal para quem procura conforto e conveniência. A moradia está arrendada
AMI: 20371
Ref. Externa: 2421BCL
Id: 1246901
Inicie sessão para guardar este imóvel e aceder à sua lista de favoritos em qualquer dispositivo.
756.000 €
4 Quartos
5 WCs
Área útil : 338 m²
Moradia individual de design moderno e acabamentos de qualidade! Conta com uma área total de construção de 594 m2, composta por 3 pisos e está equipada com caixa para instalação de elevador. Localizada apenas a 3 minutos do centro da cidade de Barcelos, situado em zona habitacional prestigiada. Na cave apresenta uma garagem ampla, com 67m2, capacidade para aparcar 4 carros e ainda área para arrumos com 35m2. Ao nível do rés-do-chão, temos um hall de entrada amplo, com roupeiro embutido, um wc de serviço, cozinha com 25 m2, mobilada e equipada, lavandaria com 14 m2 e cesso a uma ampla varanda. Ainda uma sala de jantar com 64 m2 ampla em opensapce para a sala de estar com 84 m2, vistas fantasticas e acesso ao jardim com piscina. No primeiro andar dispõe de quatro quatros, suíte, com roupeiros embutidos em madeira sucupira e casas de banho com loiças suspensas. O quarto principal contem um closet e no wc uma banheira e uma base de duche, com acesso a um excelente terraço com 60 m2. O imóvel ficará equipado com caixilharia em alumínio termo lacado, com sistema de abertura oscilo-batente e de abrir, com vidro duplo, painéis solares, termoacumulador solar, estores elétricos, video porteiro, ar condicionado, pré instalação de aquecimento central a gás, alarme e pré-instalação de som ambiente. Apresenta espaços ao ar livre perfeitos para relaxar e viver com a qualidade de vida que merece! Venha conhecer a moradia dos seus sonhos! Siga-nos nas nossas redes sociais! WEBSITE: https://www.lardesonho.pt/barcelos/ FACEBOOK: https://www.facebook.com/lardesonhobarcelospagina INSTAGRAM: https://www.instagram.com/lardesonhobarcelos/ YOUTUBE: https://www.youtube.com/@lardesonhobarcelos2733 A história de sucesso da rede imobiliária LardeSonho deve-se a um serviço de excelência, personalizado para cada cliente, marcado por três premissas- SATISFAÇÃO- RECOMENDAÇÃO-FIDELIZAÇÃO. É a Maior Rede Imobiliária 100% Nacional tendo 24 agências distribuídas por todo o país com mais de 400 Consultores, o que garante uma presença forte junto de potenciais compradores e investidores. A Rede Imobiliária LardeSonho tem como ferramentas uma equipa de profissionais dinâmicos, motivados, com uma vasta experiência; uma carteira de imóveis aos preços mais competitivos do mercado; uma atitude proactiva que se carateriza por inúmeras iniciativas de marketing, campanhas, eventos publicitários, promovendo e divulgando com sucesso a sua carteira de imóveis em cada localidade onde tem Agência. Aliados a parcerias com instituições bancárias, gabinetes de arquitetura, empresas de construção, marketing e publicidade, a rede Imobiliária LardeSonho ajuda os seus clientes a encontrar a solução adequada às suas necessidades. --- Detached villa with a modern design and quality finishes! It has a total construction area of 594 m2, consists of 3 floors and is equipped with a box for installing a lift. Located just 5 minutes from Barcelos city centre, in a prestigious residential area. The basement has a large 67m2 garage with capacity for 4 cars and a 35m2 storage area. On the ground floor, there is a large entrance hall with a built-in wardrobe, a guest toilet, a 25 m2 furnished and equipped kitchen, a 14 m2 laundry room and access to a large balcony. There is also a large dining room with 64 m2 opening onto the living room with 84 m2, fantastic views and access to the garden with swimming pool. On the first floor there are four en-suite bedrooms with built-in wardrobes in sucupira wood and bathrooms with wall-hung crockery. The master bedroom has a walk-in wardrobe and the bathroom has a bath and shower tray, with access to an excellent 60 m2 terrace. The property will be equipped with thermo-lacquered aluminium frames, with oscillating and opening systems, double glazing, solar panels, solar water heater, electric shutters, video intercom, air conditioning, pre-installation of gas central heating, alarm and pre-installation of surround sound. It features outdoor spaces perfect for relaxing and living with the quality of life you deserve! Come and see the home of your dreams! Follow us on our social networks! WEBSITE: https://www.lardesonho.pt/barcelos/ FACEBOOK: https://www.facebook.com/lardesonhobarcelospagina INSTAGRAM: https://www.instagram.com/lardesonhobarcelos/ YOUTUBE: https://www.youtube.com/@lardesonhobarcelos2733 The success story of the LardeSonho real estate network is due to an excellent service, personalized for each client, marked by three premises - SATISFACTION - RECOMMENDATION - LOYALTY. It is the Largest 100% National Real Estate Network with 24 agencies distributed throughout the country with more than 400 Consultants, which guarantees a strong presence among potential buyers and investors. The LardeSonho Real Estate Network has as its tools a team of dynamic, motivated professionals with extensive experience; a portfolio of properties at the most competitive prices on the market; a proactive attitude that is characterized by numerous marketing initiatives, campaigns, advertising events, successfully promoting and publicizing its property portfolio in each location where it has an Agency. Allied to partnerships with banking institutions, architectural offices, construction, marketing and advertising companies, the LardeSonho Real Estate network helps its customers to find the solution that suits their needs.
AMI: 17319
Ref. Externa: 265-M-01404
Id: 1109642
Inicie sessão para guardar este imóvel e aceder à sua lista de favoritos em qualquer dispositivo.
475.000 €
3 Quartos
3 WCs
Área bruta : 308 m²
Moradias T3 novas, 2 pisos (R/C + 1ºAndar) com acabamentos de luxo, inseridas num condomínio fechado e localizadas a cerca de 2 minutos do centro de Barcelos, bons acessos e excelente exposição solar. ALGUMAS CARACTERÍSTICAS: - Eletrodomésticos da marca BOSCH, frigorífico americano e exaustor embutido no teto; - Mobiliário de cozinha e portas interiores lacadas a branco; - Recuperador de calor; - Zona exterior de lazer com churrasqueira; - Pré-instalação para painéis solares de produção de AQS. A pré-instalação inclui suportes na cobertura para os painéis solares; - Bomba de calor e ventilo convectores de encastrar a água; - Sistema de intercomunicação e vídeo porteiro; - Pré-instalação para cortinas de abertura automática; - Domótica interior e exterior; - Garagem fechada para 2 automóveis. Áreas brutas: Desde 308m2 Áreas úteis: Desde 220m2 Certificação Energética: A Não perca esta oportunidade, fale comigo! Ricardo Macedo 969841670 (Chamada para rede móvel nacional) TROP IMOBILIÁRIA
AMI: 15809
Ref. Externa: TROP00167
Id: 933165
Inicie sessão para guardar este imóvel e aceder à sua lista de favoritos em qualquer dispositivo.
485.000 €
3 Quartos
Área bruta : 308 m²
Moradia T3T3 com acabamentos de luxo!Moradia T3 em condomínio fechado com entrada individual a 5 minutos de Barcelos, com uma arquitetura moderna, sustentável e umas vistas deslumbrantes.Com um design moderno e elegante, este condomínio é o local perfeito para desfrutar de momentos de tranquilidade e beleza natural.Os espaçosos quartos e áreas comuns proporcionam conforto e funcionalidade, enquanto as vistas panorâmicas irão certamente cativar qualquer pessoa. Grandes áreas interiores com acabamentos de excelência.Paredes exteriores com pedra da região grampeada e capoto de 80mm.Caixilharia alumínio da Cortizo com rutura térmica.Estores automatizados de alumínio térmico.Cozinha totalmente equipada com eletrodomésticos da marca Bosch.Sala de estar ampla com recuperador de calor.Quartos com armários embutidos.Quarto suite com closet.Wc`s com louças suspensas.Bomba de calor para aquecimento de águas sanitárias.Bomba de calor e ventiloconvectores de encastrar com a libertação de ar quente/frio através de plenos embutidos no teto falso.Domótica interior e exterior.Estacionamento para 2 automóveis.---- Venha Conhecer ----
AMI: 20371
Ref. Externa: 2347BCL
Id: 839484
Inicie sessão para guardar este imóvel e aceder à sua lista de favoritos em qualquer dispositivo.
485.000 €
4 Quartos
3 WCs
Área bruta : 215 m²
Identificação do imóvel: ZMPT569062Moradia T3+1 a estrear em Abade de Neiva, BarcelosLOCALIZAÇÃO E ENVOLVENTELocalizada na R. de Santo Amaro, na freguesia de Abade de Neiva, concelho de Barcelos. Zona predominantemente residencial, com comércio, serviços e equipamentos próximos.PONTOS DE INTERESSE- 500m da Junta de Freguesia de Abade de Neiva- 550m da Escola Básica de 1.º CEB de Abade de Neiva- 750m do Supermercado FloraTRANSPORTES E ACESSOS- 300m da N103- 3km do Centro de Barcelos- 57km do Aeroporto Francisco Sá Carneiro3 razões para comprar com a Zome+ acompanhamentoCom uma preparação e experiência única no mercado imobiliário, os consultores Zome põem toda a sua dedicação em dar-lhe o melhor acompanhamento, orientando-o com a máxima confiança, na direção certa das suas necessidades e ambições.Daqui para a frente, vamos criar uma relação próxima e escutar com atenção as suas expectativas, porque a nossa prioridade é a sua felicidade! Porque é importante que sinta que está acompanhado, e que estamos consigo sempre.+ simplesOs consultores Zome têm uma formação única no mercado, ancorada na partilha de experiência prática entre profissionais e fortalecida pelo conhecimento de neurociência aplicada que lhes permite simplificar e tornar mais eficaz a sua experiência imobiliária.Deixe para trás os pesadelos burocráticos porque na Zome encontra o apoio total de uma equipa experiente e multidisciplinar que lhe dá suporte prático em todos os aspetos fundamentais, para que a sua experiência imobiliária supere as expectativas.+ felizO nosso maior valor é entregar-lhe felicidade!Liberte-se de preocupações e ganhe o tempo de qualidade que necessita para se dedicar ao que lhe faz mais feliz.Agimos diariamente para trazer mais valor à sua vida com o aconselhamento fiável de que precisa para, juntos, conseguirmos atingir os melhores resultados.Com a Zome nunca vai estar perdido ou desacompanhado e encontrará algo que não tem preço: a sua máxima tranquilidade!É assim que se vai sentir ao longo de toda a experiência: Tranquilo, seguro, confortável e... FELIZ!Notas:1. Caso seja um consultor imobiliário, este imóvel está disponível para partilha de negócio. Não hesite em apresentar aos seus clientes compradores e fale connosco para agendar a sua visita.2. Para maior facilidade na identificação deste imóvel, por favor, refira o respetivo ID ZMPT ou o respetivo agente que lhe tenha enviado a sugestão.
AMI: 17432
Ref. Externa: ZMPT569062
Id: 820721
Inicie sessão para guardar este imóvel e aceder à sua lista de favoritos em qualquer dispositivo.
565.000 €
4 Quartos
3 WCs
Área útil : 200 m²
Moradia em Construção com cerca de 375 m2 de área bruta de cosntrução. Encontra-se inserida num lote de terreno com 420 m2, com ótima exposição solar e excelentes acessos. É constituída por 3 pisos, cave, rés do chão e 1º andar. Possui 4 quartos, sendo dois suite, roupeiros embutidos, tetos falsos com focos; sala ampla e bem iluminada; cozinha equipada com placa, forno, frigorifico combinado, exaustor, máquina de lavar loiça e despensa; 4 casas de banho; varandas amplas e lavandaria. Garagem fechada para 3 carros, com 100m2 e portão automático. Na sua climatização e conforto encontra aquecimento central, ar condicionado, aquecimento de água a painel solar, aspiração central, vidros duplos, caixilharia dupla, estores elétricos, alarme e vídeo porteiro. No exterior possui amplo logradouro e jardim com piscina. Siga-nos nas nossas redes sociais! WEBSITE: https://www.lardesonho.pt/barcelos/ FACEBOOK: https://www.facebook.com/lardesonhobarcelospagina INSTAGRAM: https://www.instagram.com/lardesonhobarcelos/ YOUTUBE: https://www.youtube.com/@lardesonhobarcelos2733 A história de sucesso da rede imobiliária LardeSonho deve-se a um serviço de excelência, personalizado para cada cliente, marcado por três premissas- SATISFAÇÃO- RECOMENDAÇÃO-FIDELIZAÇÃO. É a Maior Rede Imobiliária 100% Nacional tendo 24 agências distribuídas por todo o país com mais de 400 Consultores, o que garante uma presença forte junto de potenciais compradores e investidores. A Rede Imobiliária LardeSonho tem como ferramentas uma equipa de profissionais dinâmicos, motivados, com uma vasta experiência; uma carteira de imóveis aos preços mais competitivos do mercado; uma atitude proactiva que se carateriza por inúmeras iniciativas de marketing, campanhas, eventos publicitários, promovendo e divulgando com sucesso a sua carteira de imóveis em cada localidade onde tem Agência. Aliados a parcerias com instituições bancárias, gabinetes de arquitetura, empresas de construção, marketing e publicidade, a rede Imobiliária LardeSonho ajuda os seus clientes a encontrar a solução adequada às suas necessidades. --- House under construction with around 375 m2 of gross construction area. It is set in a 420 m2 plot of land, with excellent sun exposure and excellent access. It consists of 3 floors, basement, ground floor and 1st floor. It has 4 bedrooms, two of which are en-suite, built-in wardrobes, false ceilings with spotlights; a large, well-lit living room; a kitchen equipped with a hob, oven, combined fridge-freezer, extractor fan, dishwasher and pantry; 4 bathrooms; large balconies and a laundry room. Closed garage for 3 cars, with 100m2 and automatic gate. For climate control and comfort, there is central heating, air conditioning, solar panel water heating, central vacuum, double glazing, double frames, electric shutters, alarm and video intercom. Outside there is a large patio and garden with swimming pool. Follow us on our social networks! WEBSITE: https://www.lardesonho.pt/barcelos/ FACEBOOK: https://www.facebook.com/lardesonhobarcelospagina INSTAGRAM: https://www.instagram.com/lardesonhobarcelos/ YOUTUBE: https://www.youtube.com/@lardesonhobarcelos2733 The success story of the LardeSonho real estate network is due to an excellent service, personalized for each client, marked by three premises - SATISFACTION - RECOMMENDATION - LOYALTY. It is the Largest 100% National Real Estate Network with 24 agencies distributed throughout the country with more than 400 Consultants, which guarantees a strong presence among potential buyers and investors. The LardeSonho Real Estate Network has as its tools a team of dynamic, motivated professionals with extensive experience; a portfolio of properties at the most competitive prices on the market; a proactive attitude that is characterized by numerous marketing initiatives, campaigns, advertising events, successfully promoting and publicizing its property portfolio in each location where it has an Agency. Allied to partnerships with banking institutions, architectural offices, construction, marketing and advertising companies, the LardeSonho Real Estate network helps its customers to find the solution that suits their needs.
AMI: 17319
Ref. Externa: 265-M-01236
Id: 791317
Inicie sessão para guardar este imóvel e aceder à sua lista de favoritos em qualquer dispositivo.
505.000 €
3 Quartos
3 WCs
Área útil : 308 m²
Moradia T3 com Piscina, com acabamentos de luxo!! Procura o lugar perfeito para a sua moradia de sonho? Descubra estas magníficas moradias T3, com suite e com uma magnífica sala em formato de open space, com mais de 60 m2. Situadas em Abade de Neiva, Barcelos, num condomínio fechado com apenas 4 unidades, onde o conforto e a exclusividade se unem para criar um ambiente verdadeiramente especial. Abade de Neiva é uma das freguesias mais próximas de Barcelos, oferecendo-lhe uma localização privilegiada numa zona super tranquila, com vistas deslumbrantes e uma exposição solar excecional. Imagine-se a desfrutar de momentos de serenidade enquanto contempla as paisagens deslumbrantes que o rodeiam. Cada uma destas moradias foi cuidadosamente projetada para proporcionar o máximo conforto e comodidade aos seus residentes. Construídas com materiais de alta qualidade e atenção aos detalhes, estas moradias oferecem um estilo de vida contemporâneo e sofisticado. As características do caderno de encargos garantem o mais alto padrão de qualidade em cada detalhe: Alumínio e Guardas: Caixilharia exterior em alumínio lacado com vidro duplo de alta qualidade e estores automatizados. As guardas interiores das escadas são em vidro, conferindo um toque de modernidade e elegância. Eletricidade, Intercomunicação e TV: Luminárias de baixo consumo LED, aparelhagem elétrica de primeira qualidade, sistema de intercomunicação e vídeo porteiro, pré-instalação para cortinas de abertura automática e domótica interior e exterior. Água Quente Sanitária: Utilização de bomba de calor Daikin dedicada para aquecimento das águas sanitárias, garantindo eficiência energética e conforto. Pré-instalação para painéis solares. Climatização: Climatização assegurada com bomba de calor e ventiloconvectores de encastrar a água, proporcionando conforto térmico em todas as divisões. Carpintaria Geral: Portas de entrada de alta segurança, armários roupeiros com acabamento de qualidade, portas interiores elegantes e escadas interiores revestidas a madeira de carvalho. Cozinha e Lavandaria: Cozinhas totalmente equipadas com eletrodomésticos Bosch, mobiliário de alta qualidade e pavimento cerâmico. Sala de Estar: Pavimento em flutuante de qualidade, teto falso em gesso cartonado com focos de embutir e recuperador de calor para o máximo conforto. Arranjos Exteriores: Jardins privativos com relva, zona de lazer com churrasqueira em granito regional e muros separadores em betão à vista. Estas moradias oferecem o equilíbrio perfeito entre luxo e funcionalidade, proporcionando-lhe o ambiente ideal para criar memórias inesquecíveis com a sua família e amigos. Venha mergulhar, nesta magnífica Moradia!! Não perca esta oportunidade de adquirir a casa dos seus sonhos!! Agende já a sua visita e deixe-se encantar pelo que estas moradias têm para oferecer! #ref: 118458
AMI: 11220
Ref. Externa: 118458
Id: 691405
Inicie sessão para guardar este imóvel e aceder à sua lista de favoritos em qualquer dispositivo.
475.000 €
3 Quartos
3 WCs
Área útil : 163 m²
Moradias T3 com acabamentos de luxo!! Procura o lugar perfeito para a sua moradia de sonho? Descubra estas magníficas moradias T3, com suite e com uma magnífica sala com mais de 60 m2, situadas em Abade de Neiva, Barcelos, num condomínio fechado com apenas 4 unidades, onde o conforto e a exclusividade se unem para criar um ambiente verdadeiramente especial. Abade de Neiva é uma das freguesias mais próximas de Barcelos, oferecendo-lhe uma localização privilegiada numa zona super tranquila, com vistas deslumbrantes e uma exposição solar excecional. Imagine-se a desfrutar de momentos de serenidade enquanto contempla as paisagens deslumbrantes que o rodeiam. Cada uma destas moradias foi cuidadosamente projetada para proporcionar o máximo conforto e comodidade aos seus residentes. Construídas com materiais de alta qualidade e atenção aos detalhes, estas moradias oferecem um estilo de vida contemporâneo e sofisticado. As características do caderno de encargos garantem o mais alto padrão de qualidade em cada detalhe: Alumínio e Guardas: Caixilharia exterior em alumínio lacado com vidro duplo de alta qualidade e estores automatizados. As guardas interiores das escadas são em vidro, conferindo um toque de modernidade e elegância. Eletricidade, Intercomunicação e TV: Luminárias de baixo consumo LED, aparelhagem elétrica de primeira qualidade, sistema de intercomunicação e vídeo porteiro, pré-instalação para cortinas de abertura automática e domótica interior e exterior. Água Quente Sanitária: Utilização de bomba de calor Daikin dedicada para aquecimento das águas sanitárias, garantindo eficiência energética e conforto. Pré-instalação para painéis solares. Climatização: Climatização assegurada com bomba de calor e ventiloconvectores de encastrar a água, proporcionando conforto térmico em todas as divisões. Carpintaria Geral: Portas de entrada de alta segurança, armários roupeiros com acabamento de qualidade, portas interiores elegantes e escadas interiores revestidas a madeira de carvalho. Cozinha e Lavandaria: Cozinhas totalmente equipadas com eletrodomésticos Bosch, mobiliário de alta qualidade e pavimento cerâmico. Sala de Estar: Pavimento em flutuante de qualidade, teto falso em gesso cartonado com focos de embutir e recuperador de calor para o máximo conforto. Arranjos Exteriores: Jardins privativos com relva, zona de lazer com churrasqueira em granito regional e muros separadores em betão à vista. Estas moradias oferecem o equilíbrio perfeito entre luxo e funcionalidade, proporcionando-lhe o ambiente ideal para criar memórias inesquecíveis com a sua família e amigos. Não perca esta oportunidade de adquirir a casa dos seus sonhos!! Agende já a sua visita e deixe-se encantar pelo que estas moradias têm para oferecer! #ref: 118456
AMI: 11220
Ref. Externa: 118456
Id: 691402
Inicie sessão para guardar este imóvel e aceder à sua lista de favoritos em qualquer dispositivo.
475.000 €
3 Quartos
3 WCs
Área útil : 308 m²
Moradias T3 com acabamentos de luxo!! Procura o lugar perfeito para a sua moradia de sonho? Descubra estas magníficas moradias T3, com suite e com uma magnífica sala com mais de 60 m2, situadas em Abade de Neiva, Barcelos, num condomínio fechado com apenas 4 unidades, onde o conforto e a exclusividade se unem para criar um ambiente verdadeiramente especial. Abade de Neiva é uma das freguesias mais próximas de Barcelos, oferecendo-lhe uma localização privilegiada numa zona super tranquila, com vistas deslumbrantes e uma exposição solar excecional. Imagine-se a desfrutar de momentos de serenidade enquanto contempla as paisagens deslumbrantes que o rodeiam. Cada uma destas moradias foi cuidadosamente projetada para proporcionar o máximo conforto e comodidade aos seus residentes. Construídas com materiais de alta qualidade e atenção aos detalhes, estas moradias oferecem um estilo de vida contemporâneo e sofisticado. As características do caderno de encargos garantem o mais alto padrão de qualidade em cada detalhe: Alumínio e Guardas: Caixilharia exterior em alumínio lacado com vidro duplo de alta qualidade e estores automatizados. As guardas interiores das escadas são em vidro, conferindo um toque de modernidade e elegância. Eletricidade, Intercomunicação e TV: Luminárias de baixo consumo LED, aparelhagem elétrica de primeira qualidade, sistema de intercomunicação e vídeo porteiro, pré-instalação para cortinas de abertura automática e domótica interior e exterior. Água Quente Sanitária: Utilização de bomba de calor Daikin dedicada para aquecimento das águas sanitárias, garantindo eficiência energética e conforto. Pré-instalação para painéis solares. Climatização: Climatização assegurada com bomba de calor e ventiloconvectores de encastrar a água, proporcionando conforto térmico em todas as divisões. Carpintaria Geral: Portas de entrada de alta segurança, armários roupeiros com acabamento de qualidade, portas interiores elegantes e escadas interiores revestidas a madeira de carvalho. Cozinha e Lavandaria: Cozinhas totalmente equipadas com eletrodomésticos Bosch, mobiliário de alta qualidade e pavimento cerâmico. Sala de Estar: Pavimento em flutuante de qualidade, teto falso em gesso cartonado com focos de embutir e recuperador de calor para o máximo conforto. Arranjos Exteriores: Jardins privativos com relva, zona de lazer com churrasqueira em granito regional e muros separadores em betão à vista. Estas moradias oferecem o equilíbrio perfeito entre luxo e funcionalidade, proporcionando-lhe o ambiente ideal para criar memórias inesquecíveis com a sua família e amigos. Não perca esta oportunidade de adquirir a casa dos seus sonhos!! Agende já a sua visita e deixe-se encantar pelo que estas moradias têm para oferecer! #ref: 115543
AMI: 11220
Ref. Externa: 115543
Id: 662535
Inicie sessão para guardar este imóvel e aceder à sua lista de favoritos em qualquer dispositivo.
Estes agentes são especialistas nesta zona:
Inicie sessão para ocultar este imóvel das suas pesquisas e manter a sua lista de resultados organizada.
Guardar favoritos
Este imóvel foi guardados nos seus favoritos com sucesso.
Para poder guardar pesquisa deverá ter a sua sessão iniciada.
Caso não tenha uma conta, deverá criar uma.
A sua pesquisa foi guardada com sucesso!
© Copyright 2023 | CASACERTA. All rights reserved
Este site utiliza cookies. Ao navegar no site estará a consentir a sua utilização.
Para mais informações sobre os cookies pode consultar a
política de privacidade.