Lista
Comprar
Arrendar
3 Quartos
3 WCs
Área bruta : 246 m²
MORADIA T3 NOVA - ANTAS Cozinha equipada e mobilada em open space lavandaria, Sala com recuperador de calor, Ar condicionado Suite com varanda, Quartos com Roupeiros embutidos 3 wc´s com loiças suspensas e chuveiros embutidos Tetos falsos Estores elétricos em alumínio Bomba de calor Caixilharia em alumínio com vidro duplo com rutura térmica Pré instalação para painéis solares Pré instalação para video-vigilância Portões automáticos Garagem para 4 carros
AMI: 9558
Ref. Externa: 1079
Id: 1505595
Inicie sessão para guardar este imóvel e aceder à sua lista de favoritos em qualquer dispositivo.
3 Quartos
2 WCs
Área bruta : 235 m²
Moradia em Condomínio Fechado - 3 Quartos | Localização Privilegiada Moradia em excelente estado, situada em condomínio fechado e tranquilo, perto do Parque da Cidade e da entrada principal da cidade. Características do imóvel: ️ 3 quartos ️ Casa de banho completa ️ Cozinha totalmente equipada: máquina de lavar loiça, frigorífico, placa, forno e micro-ondas ️ Garagem para 2 carros ️ Sotão amplo, ideal para arrumos ou aproveitamento adicional ️ Condomínio: apenas 22€ / mês Localização de grande conveniência, com acesso rápido a serviços, comércio e vias de entrada/saída da cidade. Ideal para famílias que procuram conforto, segurança e boa localização. 'CasaFama Famalicão e Póvoa' Triplo-s , Investments, Unipessoal, lda AMI12339
AMI: 12339
Ref. Externa: CF-395-3376
Id: 1477923
Inicie sessão para guardar este imóvel e aceder à sua lista de favoritos em qualquer dispositivo.
3 Quartos
3 WCs
Área bruta : 242 m²
Natura Village é um empreendimento exclusivo composto por 18 moradias T3, situado em Abade de Vermoim, Vila Nova de Famalicão. Com uma localização privilegiada, a apenas 1 km dos acessos às autoestradas A3 e A7 e a 4 km do centro da cidade, este projeto oferece uma combinação perfeita entre tranquilidade e proximidade urbana. As moradias destacam-se pela excelente exposição solar e pela harmonia entre a natureza envolvente e a arquitetura moderna. Equipamentos e acabamentos de qualidade: - Caixilharias em alumínio com rutura térmica e vidros duplos - Estores exteriores motorizados em alumínio, com isolamento térmico - Clarabóias estrategicamente posicionadas para maximizar a entrada de luz natural - Sistema de ar condicionado multi-split - Bomba de calor de 250 litros para águas quentes sanitárias - Cozinhas totalmente equipadas com placa vitrocerâmica, forno, exaustor, micro-ondas e frigorífico O Natura Village é a escolha ideal para quem procura conforto, qualidade de vida e um ambiente em perfeita sintonia com a natureza.
AMI: 8366
Ref. Externa: 3540_M2
Id: 1474060
Inicie sessão para guardar este imóvel e aceder à sua lista de favoritos em qualquer dispositivo.
3 Quartos
3 WCs
Área bruta : 209 m²
O Abbas Village é um novo empreendimento residencial que surge em Abade de Vermoim, Vila Nova de Famalicão, concebido para quem valoriza o conforto, a qualidade e uma localização privilegiada. Composto por 6 moradias em banda de tipologia T3, todas com três suites, este projeto distingue-se pelo design contemporâneo e pelos acabamentos de elevada qualidade, garantindo bem-estar e funcionalidade em cada espaço. A sua localização é um dos grandes trunfos: situa-se a menos de 1 km dos acessos às autoestradas A3 e A7. Encontra-se também a pouco mais de 1 km do Parque da Devesa e a apenas dois 2 km's do centro da cidade. Dispõem de caixilharia em alumínio com rutura de ponte térmica e vidros duplos com caixa de ar, proporcionando um isolamento de elevada qualidade, reforçado por sistemas de proteção solar e térmica. Cada habitação está equipada com uma bomba de calor de 280 litros para o aquecimento das águas sanitárias e com ar condicionado na zona social e nas três suites. As cozinhas apresentam-se totalmente equipadas com eletrodomésticos modernos, como micro-ondas, forno, placa, exaustor, máquina de lavar loiça e frigorífico combinado. As garagens incluem ainda ponto de carregamento elétrico. O Abbas Village representa uma nova forma de viver em Famalicão: um espaço onde o conforto, a modernidade e a conveniência se encontram num ambiente tranquilo e próximo de tudo o que é essencial.
AMI: 8366
Ref. Externa: 3564_4
Id: 1449578
Inicie sessão para guardar este imóvel e aceder à sua lista de favoritos em qualquer dispositivo.
3 Quartos
3 WCs
Área bruta : 209 m²
O Abbas Village é um novo empreendimento residencial que surge em Abade de Vermoim, Vila Nova de Famalicão, concebido para quem valoriza o conforto, a qualidade e uma localização privilegiada. Composto por 6 moradias em banda de tipologia T3, todas com três suites, este projeto distingue-se pelo design contemporâneo e pelos acabamentos de elevada qualidade, garantindo bem-estar e funcionalidade em cada espaço. A sua localização é um dos grandes trunfos: situa-se a menos de 1 km dos acessos às autoestradas A3 e A7. Encontra-se também a pouco mais de 1 km do Parque da Devesa e a apenas dois 2 km's do centro da cidade. Dispõem de caixilharia em alumínio com rutura de ponte térmica e vidros duplos com caixa de ar, proporcionando um isolamento de elevada qualidade, reforçado por sistemas de proteção solar e térmica. Cada habitação está equipada com uma bomba de calor de 280 litros para o aquecimento das águas sanitárias e com ar condicionado na zona social e nas três suites. As cozinhas apresentam-se totalmente equipadas com eletrodomésticos modernos, como micro-ondas, forno, placa, exaustor, máquina de lavar loiça e frigorífico combinado. As garagens incluem ainda ponto de carregamento elétrico. O Abbas Village representa uma nova forma de viver em Famalicão: um espaço onde o conforto, a modernidade e a conveniência se encontram num ambiente tranquilo e próximo de tudo o que é essencial.
AMI: 8366
Ref. Externa: 3564_6
Id: 1449577
Inicie sessão para guardar este imóvel e aceder à sua lista de favoritos em qualquer dispositivo.
3 Quartos
3 WCs
Área bruta : 209 m²
O Abbas Village é um novo empreendimento residencial que surge em Abade de Vermoim, Vila Nova de Famalicão, concebido para quem valoriza o conforto, a qualidade e uma localização privilegiada. Composto por 6 moradias em banda de tipologia T3, todas com três suites, este projeto distingue-se pelo design contemporâneo e pelos acabamentos de elevada qualidade, garantindo bem-estar e funcionalidade em cada espaço. A sua localização é um dos grandes trunfos: situa-se a menos de 1 km dos acessos às autoestradas A3 e A7. Encontra-se também a pouco mais de 1 km do Parque da Devesa e a apenas dois 2 km's do centro da cidade. Dispõem de caixilharia em alumínio com rutura de ponte térmica e vidros duplos com caixa de ar, proporcionando um isolamento de elevada qualidade, reforçado por sistemas de proteção solar e térmica. Cada habitação está equipada com uma bomba de calor de 280 litros para o aquecimento das águas sanitárias e com ar condicionado na zona social e nas três suites. As cozinhas apresentam-se totalmente equipadas com eletrodomésticos modernos, como micro-ondas, forno, placa, exaustor, máquina de lavar loiça e frigorífico combinado. As garagens incluem ainda ponto de carregamento elétrico. O Abbas Village representa uma nova forma de viver em Famalicão: um espaço onde o conforto, a modernidade e a conveniência se encontram num ambiente tranquilo e próximo de tudo o que é essencial.
AMI: 8366
Ref. Externa: 3564_5
Id: 1449576
Inicie sessão para guardar este imóvel e aceder à sua lista de favoritos em qualquer dispositivo.
3 Quartos
4 WCs
Área bruta : 170 m²
Moradia exclusiva onde localização e conforto se encontram ✅ 3 suítes elegantes, oferecendo privacidade e comodidade; ✅ Escritório moderno, ideal para home office ou estudos; ✅ Garagem fechada para maior praticidade e segurança; ✅ Piscina privativa, transformando o lar em um refúgio de bem-estar; ✅ Moradia muito bem localizada. Condomínio fechado com ambiente sofisticado e reservado. O Grupo Mérito Invest foi fundado no ano 2000 e desde logo procurou cimentar uma posição de solidez, competência e credibilidade junto dos mais diversos atores do mercado imobiliário, nomeadamente através de uma equipa que, desde logo, se compôs por profissionais com competência técnica e experiência. Atento à responsabilidade de prestar um serviço de excelente qualidade, foi pelo Grupo Mérito Invest definida uma nova estratégia de crescimento geográfica, que levou à abertura de novas lojas nas cidades de Barcelos, Guimarães, Vila do Conde, Vila Nova de Famalicão, Porto e Póvoa do Varzim, contando com cerca de 40 consultores e uma carteira de imóveis alargada e diversificada. Sempre "de portas abertas para fazer bons negócios", o Grupo Mérito Invest rege-se por um conjunto de princípios e valores que se têm revelado fatores de sucesso no setor imobiliário: sigilo profissional sobre factos e documentos, elevado sentido de responsabilidade, dever de informação e defesa intransigente dos interesses de todos os seus clientes. A experiência, a credibilidade e a competência do Grupo Mérito Invest, são reconhecidas tanto pelos promotores imobiliários como pelos compradores (sejam Particulares, Empresas ou Investidores). Só assim é possível estabelecer relações fortes com instituições públicas e privadas e com as restantes mediadoras. Aguardamos a sua visita em qualquer uma das nossas sete lojas do Grupo Mérito Invest… porque o nosso Mérito é Investir em Si.
AMI: 4760
Ref. Externa: MIF -0393
Id: 1412034
Inicie sessão para guardar este imóvel e aceder à sua lista de favoritos em qualquer dispositivo.
3 Quartos
3 WCs
Área útil : 285 m²
MORADIA 3 NOVA - ANTAS A 500 metros da A3 e A7, Arquitetura contemporânea, com excelente luz natural, com acabamentos e materiais nobres que acrescentam elementos de sofisticação e bem estar, Cozinha totalmente equipada, sala ampla c/ 55m2, Suite c/ closet, Quartos c/ roupeiros embutidos, Tetos falsos com iluminação LED, Caixilharia em alumínio de corte térmico, com vidro duplo, Estores térmicos e elétricos, que garantem uma elevada eficiência térmica. Painéis Solares, Portões automáticos. Possibilidade de escolher materiais. Pronta até final do Ano.
AMI: 9558
Ref. Externa: 1110
Id: 1409899
Inicie sessão para guardar este imóvel e aceder à sua lista de favoritos em qualquer dispositivo.
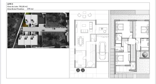
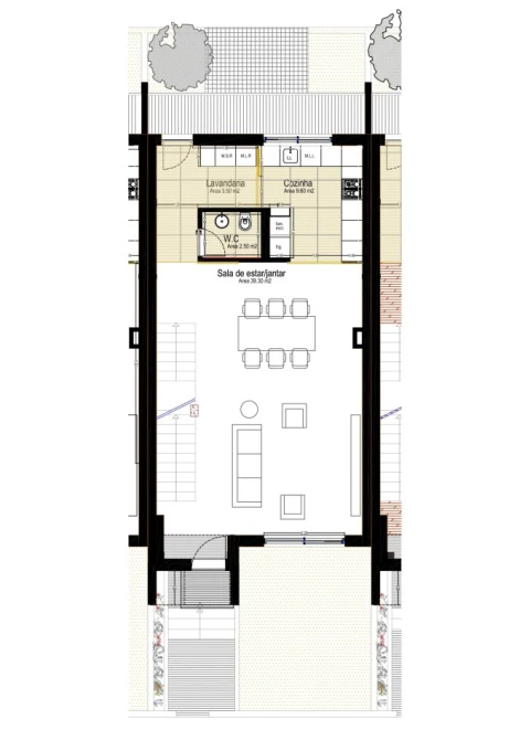
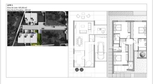
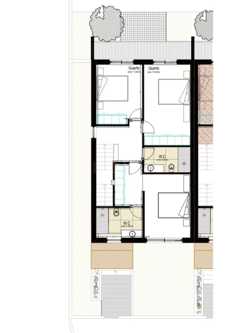
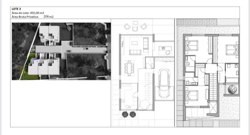
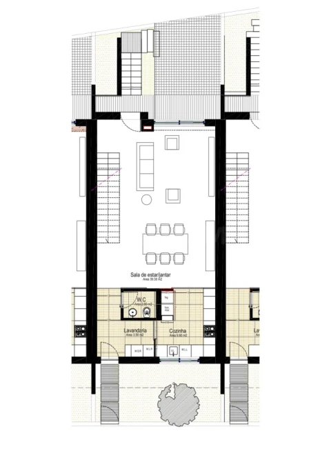
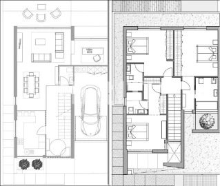
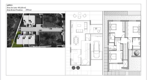
3 Quartos
Área bruta : 206 m²
Moradia T3+1, com piscina, no Empreendimento Five Essence, em AntasApresentamos o Five Essence, um empreendimento exclusivo composto por 5 moradias localizadas em S. Tiago de Antas, numa zona residencial tranquila e com localização privilegiada, a apenas 500 metros do Parque da Devesa e a 1 km do centro da cidade.Estas moradias distinguem-se pela qualidade excecional dos materiais e acabamentos, aliados a um design moderno e funcional que privilegia o conforto e a eficiência energética.A cozinha, com móveis lacados e totalmente equipada com eletrodomésticos "Bosch", reflete elegância e praticidade. O conforto é reforçado pelos estores em alumínio termolacado com motorização, sistema de ar condicionado, e bomba de calor de 300 litros para aquecimento de águas.Cada moradia dispõe de três quartos em suite, proporcionando privacidade e bem-estar a todos os residentes. As fachadas em capoto de 6 cm, com pormenores em ripado tubular e acabamentos em granito, conferem um caráter contemporâneo e distinto ao conjunto arquitetónico.As louças sanitárias suspensas da marca "Roca" e a pré-instalação de aspiração central são apenas alguns dos detalhes que refletem o cuidado e a atenção presentes em cada espaço.A conclusão da obra está prevista para meados de 2027.Esta é uma oportunidade única para quem procura uma habitação moderna, elegante e com localização premium.
AMI: 7954
Ref. Externa: FH354
Id: 1397391
Inicie sessão para guardar este imóvel e aceder à sua lista de favoritos em qualquer dispositivo.
3 Quartos
Área bruta : 206 m²
Moradia T3+1, no Empreendimento Five Essence, em AntasApresentamos o Five Essence, um empreendimento exclusivo composto por 5 moradias localizadas em S. Tiago de Antas, numa zona residencial tranquila e com localização privilegiada, a apenas 500 metros do Parque da Devesa e a 1 km do centro da cidade.Estas moradias distinguem-se pela qualidade excecional dos materiais e acabamentos, aliados a um design moderno e funcional que privilegia o conforto e a eficiência energética.A cozinha, com móveis lacados e totalmente equipada com eletrodomésticos "Bosch", reflete elegância e praticidade. O conforto é reforçado pelos estores em alumínio termolacado com motorização, sistema de ar condicionado, e bomba de calor de 300 litros para aquecimento de águas.Cada moradia dispõe de três quartos em suite, proporcionando privacidade e bem-estar a todos os residentes. As fachadas em capoto de 6 cm, com pormenores em ripado tubular e acabamentos em granito, conferem um caráter contemporâneo e distinto ao conjunto arquitetónico.As louças sanitárias suspensas da marca "Roca" e a pré-instalação de aspiração central são apenas alguns dos detalhes que refletem o cuidado e a atenção presentes em cada espaço.A conclusão da obra está prevista para meados de 2027.Esta é uma oportunidade única para quem procura uma habitação moderna, elegante e com localização premium.
AMI: 7954
Ref. Externa: FH352
Id: 1397392
Inicie sessão para guardar este imóvel e aceder à sua lista de favoritos em qualquer dispositivo.
3 Quartos
Área bruta : 206 m²
Moradia T3+1, no Empreendimento Five Essence, em AntasApresentamos o Five Essence, um empreendimento exclusivo composto por 5 moradias localizadas em S. Tiago de Antas, numa zona residencial tranquila e com localização privilegiada, a apenas 500 metros do Parque da Devesa e a 1 km do centro da cidade.Estas moradias distinguem-se pela qualidade excecional dos materiais e acabamentos, aliados a um design moderno e funcional que privilegia o conforto e a eficiência energética.A cozinha, com móveis lacados e totalmente equipada com eletrodomésticos "Bosch", reflete elegância e praticidade. O conforto é reforçado pelos estores em alumínio termolacado com motorização, sistema de ar condicionado, e bomba de calor de 300 litros para aquecimento de águas.Cada moradia dispõe de três quartos em suite, proporcionando privacidade e bem-estar a todos os residentes. As fachadas em capoto de 6 cm, com pormenores em ripado tubular e acabamentos em granito, conferem um caráter contemporâneo e distinto ao conjunto arquitetónico.As louças sanitárias suspensas da marca "Roca" e a pré-instalação de aspiração central são apenas alguns dos detalhes que refletem o cuidado e a atenção presentes em cada espaço.A conclusão da obra está prevista para meados de 2027.Esta é uma oportunidade única para quem procura uma habitação moderna, elegante e com localização premium.
AMI: 7954
Ref. Externa: FH353
Id: 1397390
Inicie sessão para guardar este imóvel e aceder à sua lista de favoritos em qualquer dispositivo.
3 Quartos
Área bruta : 206 m²
Moradia T3+1, com piscina, no Empreendimento Five Essence, em AntasApresentamos o Five Essence, um empreendimento exclusivo composto por 5 moradias localizadas em S. Tiago de Antas, numa zona residencial tranquila e com localização privilegiada, a apenas 500 metros do Parque da Devesa e a 1 km do centro da cidade.Estas moradias distinguem-se pela qualidade excecional dos materiais e acabamentos, aliados a um design moderno e funcional que privilegia o conforto e a eficiência energética.A cozinha, com móveis lacados e totalmente equipada com eletrodomésticos "Bosch", reflete elegância e praticidade. O conforto é reforçado pelos estores em alumínio termolacado com motorização, sistema de ar condicionado, e bomba de calor de 300 litros para aquecimento de águas.Cada moradia dispõe de três quartos em suite, proporcionando privacidade e bem-estar a todos os residentes. As fachadas em capoto de 6 cm, com pormenores em ripado tubular e acabamentos em granito, conferem um caráter contemporâneo e distinto ao conjunto arquitetónico.As louças sanitárias suspensas da marca "Roca" e a pré-instalação de aspiração central são apenas alguns dos detalhes que refletem o cuidado e a atenção presentes em cada espaço.A conclusão da obra está prevista para meados de 2027.Esta é uma oportunidade única para quem procura uma habitação moderna, elegante e com localização premium.
AMI: 7954
Ref. Externa: FH355
Id: 1397389
Inicie sessão para guardar este imóvel e aceder à sua lista de favoritos em qualquer dispositivo.
3 Quartos
Área bruta : 206 m²
Moradia T3+1, no Empreendimento Five Essence, em AntasApresentamos o Five Essence, um empreendimento exclusivo composto por 5 moradias localizadas em S. Tiago de Antas, numa zona residencial tranquila e com localização privilegiada, a apenas 500 metros do Parque da Devesa e a 1 km do centro da cidade.Estas moradias distinguem-se pela qualidade excecional dos materiais e acabamentos, aliados a um design moderno e funcional que privilegia o conforto e a eficiência energética.A cozinha, com móveis lacados e totalmente equipada com eletrodomésticos "Bosch", reflete elegância e praticidade. O conforto é reforçado pelos estores em alumínio termolacado com motorização, sistema de ar condicionado, e bomba de calor de 300 litros para aquecimento de águas.Cada moradia dispõe de três quartos em suite, proporcionando privacidade e bem-estar a todos os residentes. As fachadas em capoto de 6 cm, com pormenores em ripado tubular e acabamentos em granito, conferem um caráter contemporâneo e distinto ao conjunto arquitetónico.As louças sanitárias suspensas da marca "Roca" e a pré-instalação de aspiração central são apenas alguns dos detalhes que refletem o cuidado e a atenção presentes em cada espaço.A conclusão da obra está prevista para meados de 2027.Esta é uma oportunidade única para quem procura uma habitação moderna, elegante e com localização premium.
AMI: 7954
Ref. Externa: FH351
Id: 1397388
Inicie sessão para guardar este imóvel e aceder à sua lista de favoritos em qualquer dispositivo.
3 Quartos
2 WCs
Área útil : 124 m²
Descubra o equilíbrio e o conforto moderno nesta moradia. A localização é um trunfo absoluto. A apenas poucos passos de casa, tem acesso a padarias, cafés e uma seleção de restaurantes renomados, onde pode saborear a deliciosa gastronomia local. Para as famílias, a proximidade a várias instituições de ensino de qualidade é um benefício inestimável, com creches e escolas a uma curta caminhada de casa. O interior é funcional e acolhedor, com uma cozinha equipada, ar condicionado e roupeiros embutidos para uma organização simplificada. Uma oportunidade única para viver com conforto no coração de uma comunidade vibrante. Não perca a oportunidade . Venha descobrir a sua próxima casa em Famalicão. Para mais informações, contacte-nos!! Comprarcasa Guimarães Concretizamos os seus sonhos! Rede Imobiliária da APEMIP | Famagui - Mediação Imobiliária, Lda | APEMIP: 5130 AMI: 10736 Com o firme objetivo de satisfação do cliente a Comprarcasa Guimarães dispõe de 2 lojas para o atender: Pevidém e Guimarães. Tem ao seu dispor Consultores Imobiliários e um Departamento Processual especializados, com formação contínua, para lhe prestar o melhor atendimento e serviço, acompanhando-o em todo o processo da Mediação Imobiliária. Formamos uma Equipa que trabalha em prol do cliente e das suas necessidades. Este é um momento importante da sua vida, seja na compra, venda, trespasse ou arrendamento de qualquer imóvel e nós temos as pessoas, os meios e o conhecimento para o acompanhar! A Comprarcasa Guimarães está autorizada pelo Banco de Portugal para exercer funções de Intermediária de Crédito Vinculado. Assim dispomos de pessoas e meios para o ajudar na contratação segura do seu crédito à habitação. INTERMEDIÁRIO DE CRÉDITO REGISTADO NO BANCO DE PORTUGAL Nº 0000858. Defendendo o superior interesse dos seus clientes, levamos ao expoente máximo a frase que melhor nos caracteriza - A Imobiliária que cuida de Si!
AMI: 10736
Ref. Externa: 336/M/01920
Id: 1397231
Inicie sessão para guardar este imóvel e aceder à sua lista de favoritos em qualquer dispositivo.
3 Quartos
3 WCs
Área bruta : 245 m²
Natura Village é um empreendimento exclusivo composto por 18 moradias T3, situado em Abade de Vermoim, Vila Nova de Famalicão. Com uma localização privilegiada, a apenas 1 km dos acessos às autoestradas A3 e A7 e a 4 km do centro da cidade, este projeto oferece uma combinação perfeita entre tranquilidade e proximidade urbana. As moradias destacam-se pela excelente exposição solar e pela harmonia entre a natureza envolvente e a arquitetura moderna. Equipamentos e acabamentos de qualidade: - Caixilharias em alumínio com rutura térmica e vidros duplos - Estores exteriores motorizados em alumínio, com isolamento térmico - Clarabóias estrategicamente posicionadas para maximizar a entrada de luz natural - Sistema de ar condicionado multi-split - Bomba de calor de 250 litros para águas quentes sanitárias - Cozinhas totalmente equipadas com placa vitrocerâmica, forno, exaustor, micro-ondas e frigorífico O Natura Village é a escolha ideal para quem procura conforto, qualidade de vida e um ambiente em perfeita sintonia com a natureza.
AMI: 8366
Ref. Externa: 3540_M9
Id: 1386451
Inicie sessão para guardar este imóvel e aceder à sua lista de favoritos em qualquer dispositivo.
3 Quartos
3 WCs
Área bruta : 246 m²
Natura Village é um empreendimento exclusivo composto por 18 moradias T3, situado em Abade de Vermoim, Vila Nova de Famalicão. Com uma localização privilegiada, a apenas 1 km dos acessos às autoestradas A3 e A7 e a 4 km do centro da cidade, este projeto oferece uma combinação perfeita entre tranquilidade e proximidade urbana. As moradias destacam-se pela excelente exposição solar e pela harmonia entre a natureza envolvente e a arquitetura moderna. Equipamentos e acabamentos de qualidade: - Caixilharias em alumínio com rutura térmica e vidros duplos - Estores exteriores motorizados em alumínio, com isolamento térmico - Clarabóias estrategicamente posicionadas para maximizar a entrada de luz natural - Sistema de ar condicionado multi-split - Bomba de calor de 250 litros para águas quentes sanitárias - Cozinhas totalmente equipadas com placa vitrocerâmica, forno, exaustor, micro-ondas e frigorífico O Natura Village é a escolha ideal para quem procura conforto, qualidade de vida e um ambiente em perfeita sintonia com a natureza.
AMI: 8366
Ref. Externa: 3540_M1
Id: 1386450
Inicie sessão para guardar este imóvel e aceder à sua lista de favoritos em qualquer dispositivo.
3 Quartos
3 WCs
Área bruta : 239 m²
Natura Village é um empreendimento exclusivo composto por 18 moradias T3, situado em Abade de Vermoim, Vila Nova de Famalicão. Com uma localização privilegiada, a apenas 1 km dos acessos às autoestradas A3 e A7 e a 4 km do centro da cidade, este projeto oferece uma combinação perfeita entre tranquilidade e proximidade urbana. As moradias destacam-se pela excelente exposição solar e pela harmonia entre a natureza envolvente e a arquitetura moderna. Equipamentos e acabamentos de qualidade: - Caixilharias em alumínio com rutura térmica e vidros duplos - Estores exteriores motorizados em alumínio, com isolamento térmico - Clarabóias estrategicamente posicionadas para maximizar a entrada de luz natural - Sistema de ar condicionado multi-split - Bomba de calor de 250 litros para águas quentes sanitárias - Cozinhas totalmente equipadas com placa vitrocerâmica, forno, exaustor, micro-ondas e frigorífico O Natura Village é a escolha ideal para quem procura conforto, qualidade de vida e um ambiente em perfeita sintonia com a natureza.
AMI: 8366
Ref. Externa: 3540_M11
Id: 1386446
Inicie sessão para guardar este imóvel e aceder à sua lista de favoritos em qualquer dispositivo.
3 Quartos
4 WCs
Área bruta : 205 m²
CONDOMINIO FECHADO ANTAS Este condomínio fechado a 5 min do centro da cidade foi pensado para oferecer o equilíbrio perfeito entre design moderno, conforto e eficiência energética, privilegiando materiais de alta qualidade e soluções técnicas de topo. Arquitetura e Exterior Fachadas elegantes em bloco térmico, com isolamento capoto e detalhes em granito e ripado tubular. Caixilharias em alumínio com rutura térmica (RAL 7016) e varandas com guardas em vidro laminado, garantindo luz natural e sofisticação. Coberturas totalmente impermeabilizadas e isoladas, assegurando máxima durabilidade e conforto térmico. Pavimentos exteriores em cerâmico imitação deck, ideais para áreas sociais ao ar livre. Interiores com Detalhe e Conforto Pavimento em soalho flutuante AC5, resistente e elegante, nas áreas principais. Revestimentos em pedra natural nas casas de banho e cerâmica premium em cozinha e lavandaria. Tetos falsos com isolamento acústico, criando ambientes mais silenciosos e aconchegantes. Hall de entrada com painéis lacados, reforçando o toque de exclusividade. Carpintarias e Arrumação Inteligente Portas lacadas de linhas lisas e modernas. Roupeiros embutidos com acabamentos sofisticados, interiores funcionais em melamina linho e sistema soft-close. Cozinhas e Lavandarias Equipadas Móveis em lacado branco mate com interiores em melamina de alta resistência. Bancadas em pedra natural, unindo beleza e durabilidade. Equipadas com eletrodomésticos Bosch de última geração: placa de indução, forno, micro-ondas, frigorífico combinado, exaustor e máquina de lavar loiça. Lavandarias totalmente integradas e funcionais. Casas de Banho de Design Louças sanitárias da Roca e torneiras da Bruma, símbolos de qualidade e estilo. Espelhos com iluminação integrada para maior conforto diário. Tecnologia e Conforto Estores elétricos em alumínio termolacado. Sistema de ar condicionado em todas as divisões principais. Pré-instalação de aspiração central. Bomba de calor de 300L, garantindo eficiência energética na produção de água quente. Aqui, cada detalhe foi cuidadosamente pensado para proporcionar uma experiência única de bem-estar, funcionalidade e sofisticação. Realty ONE Group
AMI: 8815
Ref. Externa: ONE0011234-200
Id: 1381181
Inicie sessão para guardar este imóvel e aceder à sua lista de favoritos em qualquer dispositivo.
3 Quartos
4 WCs
Área bruta : 205 m²
CONDOMINIO FECHADO ANTAS Este condomínio fechado a 5 min do centro da cidade foi pensado para oferecer o equilíbrio perfeito entre design moderno, conforto e eficiência energética, privilegiando materiais de alta qualidade e soluções técnicas de topo. Arquitetura e Exterior Fachadas elegantes em bloco térmico, com isolamento capoto e detalhes em granito e ripado tubular. Caixilharias em alumínio com rutura térmica (RAL 7016) e varandas com guardas em vidro laminado, garantindo luz natural e sofisticação. Coberturas totalmente impermeabilizadas e isoladas, assegurando máxima durabilidade e conforto térmico. Pavimentos exteriores em cerâmico imitação deck, ideais para áreas sociais ao ar livre. Interiores com Detalhe e Conforto Pavimento em soalho flutuante AC5, resistente e elegante, nas áreas principais. Revestimentos em pedra natural nas casas de banho e cerâmica premium em cozinha e lavandaria. Tetos falsos com isolamento acústico, criando ambientes mais silenciosos e aconchegantes. Hall de entrada com painéis lacados, reforçando o toque de exclusividade. Carpintarias e Arrumação Inteligente Portas lacadas de linhas lisas e modernas. Roupeiros embutidos com acabamentos sofisticados, interiores funcionais em melamina linho e sistema soft-close. Cozinhas e Lavandarias Equipadas Móveis em lacado branco mate com interiores em melamina de alta resistência. Bancadas em pedra natural, unindo beleza e durabilidade. Equipadas com eletrodomésticos Bosch de última geração: placa de indução, forno, micro-ondas, frigorífico combinado, exaustor e máquina de lavar loiça. Lavandarias totalmente integradas e funcionais. Casas de Banho de Design Louças sanitárias da Roca e torneiras da Bruma, símbolos de qualidade e estilo. Espelhos com iluminação integrada para maior conforto diário. Tecnologia e Conforto Estores elétricos em alumínio termolacado. Sistema de ar condicionado em todas as divisões principais. Pré-instalação de aspiração central. Bomba de calor de 300L, garantindo eficiência energética na produção de água quente. Aqui, cada detalhe foi cuidadosamente pensado para proporcionar uma experiência única de bem-estar, funcionalidade e sofisticação. Realty ONE Group
AMI: 8815
Ref. Externa: ONE0011234-198
Id: 1381164
Inicie sessão para guardar este imóvel e aceder à sua lista de favoritos em qualquer dispositivo.
3 Quartos
4 WCs
Área bruta : 205 m²
CONDOMINIO FECHADO ANTAS Este condomínio fechado a 5 min do centro da cidade e a 2 min da entrada da auto-estrada foi pensado para oferecer o equilíbrio perfeito entre design moderno, conforto e eficiência energética, privilegiando materiais de alta qualidade e soluções técnicas de topo. Arquitetura e Exterior Fachadas elegantes em bloco térmico, com isolamento capoto e detalhes em granito e ripado tubular. Caixilharias em alumínio com rutura térmica (RAL 7016) e varandas com guardas em vidro laminado, garantindo luz natural e sofisticação. Coberturas totalmente impermeabilizadas e isoladas, assegurando máxima durabilidade e conforto térmico. Pavimentos exteriores em cerâmico imitação deck, ideais para áreas sociais ao ar livre. Interiores com Detalhe e Conforto Pavimento em soalho flutuante AC5, resistente e elegante, nas áreas principais. Revestimentos em pedra natural nas casas de banho e cerâmica premium em cozinha e lavandaria. Tetos falsos com isolamento acústico, criando ambientes mais silenciosos e aconchegantes. Hall de entrada com painéis lacados, reforçando o toque de exclusividade. Carpintarias e Arrumação Inteligente Portas lacadas de linhas lisas e modernas. Roupeiros embutidos com acabamentos sofisticados, interiores funcionais em melamina linho e sistema soft-close. Cozinhas e Lavandarias Equipadas Móveis em lacado branco mate com interiores em melamina de alta resistência. Bancadas em pedra natural, unindo beleza e durabilidade. Equipadas com eletrodomésticos Bosch de última geração: placa de indução, forno, micro-ondas, frigorífico combinado, exaustor e máquina de lavar loiça. Lavandarias totalmente integradas e funcionais. Casas de Banho de Design Louças sanitárias da Roca e torneiras da Bruma, símbolos de qualidade e estilo. Espelhos com iluminação integrada para maior conforto diário. Tecnologia e Conforto Estores elétricos em alumínio termolacado. Sistema de ar condicionado em todas as divisões principais. Pré-instalação de aspiração central. Bomba de calor de 300L, garantindo eficiência energética na produção de água quente. Aqui, cada detalhe foi cuidadosamente pensado para proporcionar uma experiência única de bem-estar, funcionalidade e sofisticação. Realty ONE Group
AMI: 8815
Ref. Externa: ONE0011234-196
Id: 1381147
Inicie sessão para guardar este imóvel e aceder à sua lista de favoritos em qualquer dispositivo.
Estes agentes são especialistas nesta zona:
Inicie sessão para ocultar este imóvel das suas pesquisas e manter a sua lista de resultados organizada.
Guardar favoritos
Este imóvel foi guardados nos seus favoritos com sucesso.
Para poder guardar pesquisa deverá ter a sua sessão iniciada.
Caso não tenha uma conta, deverá criar uma.
A sua pesquisa foi guardada com sucesso!
© Copyright 2023 | CASACERTA. All rights reserved
Este site utiliza cookies. Ao navegar no site estará a consentir a sua utilização.
Para mais informações sobre os cookies pode consultar a
política de privacidade.