Filtros
0 · 17 resultados195.000 €
2 Quartos
2 WCs
Área bruta : 272 m²
Esta moradia com 3 divisões, apresenta um interior elegante e contemporâneo, proporcionando um ambiente acolhedor e funcional. Ao entrar, somos recebidos por uma ampla sala de estar que se destaca pela luminosidade natural proveniente das grandes janelas. A cozinha é equipada com eletrodomésticos modernos e móveis planejados, oferecendo tanto praticidade quanto agradabilidade estética para momentos em família ou entre amigos. Os quartos são espaçosos; casa compostas por duas casas de banho igualmente bem disposta. No exterior da propriedade encontramos áreas comuns encantadoras que favorecem a convivência social. O jardim circundante exibe paisagismo cuidadoso, ideal para desfrutar do ar livre nos dias ensolarados ou organizar convívios ao fim do dia no terraço adjacente à sala – perfeito para refeições alfresco ou simplesmente relaxar numa atmosfera tranquila. Além disso, dispõe ainda de espaço dedicado ao estacionamento que assegura comodidade aos residentes e visitantes. Situada num bairro calmo mas dinâmico da cidade, esta moradia beneficia-se da proximidade com serviços essenciais como supermercados, escolas e transportes públicos eficientes. As ruas arborizadas criam um ambiente sereno propício a famílias sem abrir mão do acesso conveniente às principais artérias urbanas onde se desenrola a vida citadina vibrante. Este imóvel singular não apenas reflecte qualidade nas suas características estruturais como também convida à criação de memórias duradouras na sua nova fase residencial! Combinando conforto moderno e localização estratégica num só produto habitacional oferece assim todo o potencial necessário para transformar cada momento depois dos afazeres diários numa verdadeira experiência gratificante dentro deste lar excecional. Descrição criada por Inteligência Artificial
AMI: 7284
Ref. Externa: 26042
Id: 1812538
Inicie sessão para guardar este imóvel e aceder à sua lista de favoritos em qualquer dispositivo.
Sob consulta
3 Quartos
3 WCs
Área útil : 165 m²
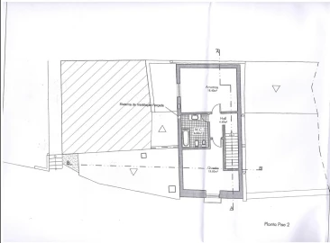
Moradia com 3 pisos,Três Quartos,Duas salas. Res do chão, sala entrada social, 1º piso tem outra sala.Duas Cozinhas, uma no res do chão, rustica, ou cozinha de inverno com lareira de pedra. 1º piso cozinha com moveis em madeira e balcão de granito.Despensa ou lavanderia com canalização feita para ligação de máquinas. Varanda, Arrumos, logradouro com acesso exterior para colocação de churrasqueira.Três casas de banho, uma social no res do chão.Janelas com portadas interiores para corte de luz solar.Área total do terreno: 114m²Área de implantação do edifício: 105m²Área bruta de construção: 272m²Área bruta dependente: 107m²Área bruta privativa: 164m²Moradia a precisar de uma atualização.Venha VisitarJosé Marques
AMI: 22503
Ref. Externa: PD-059800
Id: 1799973
Inicie sessão para guardar este imóvel e aceder à sua lista de favoritos em qualquer dispositivo.
195.000 €
3 Quartos
3 WCs
Área útil : 165 m²
Moradia com 3 pisos,Três Quartos,Duas salas. Res do chão, sala entrada social, 1º piso tem outra sala.Duas Cozinhas, uma no res do chão, rustica, ou cozinha de inverno com lareira de pedra. 1º piso cozinha com moveis em madeira e balcão de granito.Despensa ou lavanderia com canalização feita para ligação de máquinas. Varanda, Arrumos, logradouro com acesso exterior para colocação de churrasqueira.Três casas de banho, uma social no res do chão.Janelas com portadas interiores para corte de luz solar.Área total do terreno: 114m²Área de implantação do edifício: 105m²Área bruta de construção: 272m²Área bruta dependente: 107m²Área bruta privativa: 164m²Moradia a precisar de uma atualização.Venha VisitarFátima Ramalho
AMI: 22503
Ref. Externa: PD-059779
Id: 1799856
Inicie sessão para guardar este imóvel e aceder à sua lista de favoritos em qualquer dispositivo.
Sob consulta
3 Quartos
3 WCs
Área bruta : 272 m²
Moradia com 3 pisos, Três Quartos, Duas salas. Res do chão, sala entrada social,1º piso tem outra sala.Duas Cozinhas, uma no res do chão, rustica, ou cozinha de inverno com lareira de pedra. 1º piso cozinha com moveis em madeira e balcão de granito. Despensa ou lavanderia com canalização feita para ligação de máquinas. Varanda, Arrumos, logradouro com acesso exterior para colocação de churrasqueira.Três casas de banho , uma social no res do chão .Janelas com portadas interiores para corte de luz solar.Área total do terreno: 114 m² Área de implantação do edifício: 105m² Área bruta de construção:272m² Área bruta dependente: 107 m² Área bruta privativa: 164 m² Moradia a precisar de uma atualização.Venha VisitarJosé Marques915 191 367Predimed Imobiliária, Mediação Imobiliária, Lda.Avenida Brasil 43, 12º Andar, 1700-062 LisboaLicença AMI nº 22503Pessoa Coletiva nº 517 239 345Seguro Responsabilidade Civil: Nº de Apólice RC65379424 Fidelidade Características: Banheira;Esquentador;Gás Botija;Isolamento Térmico;Janelas duplas;Lareira;Poliban;Porteiro;Vidros Duplos
AMI: 13558
Ref. Externa: 059800
Id: 1784024
Inicie sessão para guardar este imóvel e aceder à sua lista de favoritos em qualquer dispositivo.
195.000 €
3 Quartos
3 WCs
Área bruta : 272 m²
Moradia com 3 pisos, Três Quartos, Duas salas. Res do chão, sala entrada social,1º piso tem outra sala.Duas Cozinhas, uma no res do chão, rustica, ou cozinha de inverno com lareira de pedra. 1º piso cozinha com moveis em madeira e balcão de granito. Despensa ou lavanderia com canalização feita para ligação de máquinas. Varanda, Arrumos, logradouro com acesso exterior para colocação de churrasqueira.Três casas de banho , uma social no res do chão .Janelas com portadas interiores para corte de luz solar.Área total do terreno: 114 m² Área de implantação do edifício: 105m² Área bruta de construção:272m² Área bruta dependente: 107 m² Área bruta privativa: 164 m² Moradia a precisar de uma atualização.Venha VisitarFátima RamalhoPredimed Imobiliária, Mediação Imobiliária, Lda.Avenida Brasil 43, 12º Andar, 1700-062 LisboaLicença AMI nº 22503Pessoa Coletiva nº 517 239 345Seguro Responsabilidade Civil: Nº de Apólice RC65379424 Fidelidade Características: Banheira;Esquentador;Gás Botija;Isolamento Térmico;Janelas duplas;Lareira;Poliban;Porteiro;Vidros Duplos
AMI: 13558
Ref. Externa: 059779
Id: 1784006
Inicie sessão para guardar este imóvel e aceder à sua lista de favoritos em qualquer dispositivo.
195.000 €
5 Quartos
3 WCs
Área bruta : 272 m²
Moradia T5 com 3 casas de banho e garagemSe procura a paz autêntica do interior de Portugal, esta é a oportunidade ideal. Localizada na acolhedora aldeia da Orca, no concelho do Fundão, esta moradia espera por uma nova vida. Embora necessite de limpeza e obras de melhoramento, a sua estrutura sólida e localização privilegiada representam o ponto de partida perfeito para criar a sua habitação permanente ou um refúgio estratégico de fim de semana.Moradia com 3 pisos, 2 Quartos, 1 Sala, 1 Cozinha, 1 Despensa, Varanda, Arrumos, 2 WcsÁrea total do terreno: 114,0000m²Área de implantação do edifício: 105,00m²Área bruta de construção: 272,20m²Área bruta dependente: 107,65m²Área bruta privativa: 164,55m²A Orca destaca-se por ser uma aldeia autossuficiente e muito tranquila, onde terá todos os serviços essenciais à disposição desde comércio local a serviços de saúde sem prescindir do silêncio e da segurança que apenas o contexto rural oferece.Com excelentes acessos ao Fundão, Covilhã e Castelo Branco, este imóvel permite-lhe combinar o isolamento regenerador com a conveniência da vida moderna.Venha descobrir esta magnifica propriedade numa das aldeias mais belas da Beira Baixa.Marque já a sua visita!
AMI: 17184
Ref. Externa: SF-SAFTI:007997
Id: 1733919
Inicie sessão para guardar este imóvel e aceder à sua lista de favoritos em qualquer dispositivo.
42.500 €
3 Quartos
1 WCs
Área bruta : 98 m²
Moradia para recuperar, localizada em Orca, no concelho do Fundão. Esta propriedade beneficia de vistas sobre a aldeia e bons acessos, tornando-se uma oportunidade atrativa tanto para investimento próprio como para rentabilização, em alojamento local ou arrendamento. O imóvel dispõe de anexos, que permitem ampliar a área útil ou criar espaços complementares, adaptando-se a diferentes projetos. Inserida numa zona tranquila, é ideal para quem procura desenvolver um projeto de turismo rural ou criar uma habitação própria."Excluído do SCE, ao abrigo da alínea g) do nº 2 do artigo 18º do Decreto-Lei nº 101-D/2020, de 7 de dezembro"CaracterísticasGeralCave, Vão de Telhado/SótãoNº Frentes: 2Nº Pisos: 2ÁguaCompanhiaEdifícioTipo Empreendimento: HabitaçãoVistasCidadeZonaAcessos: BonsCentralidade: Distante Cidade
AMI: 6863
Ref. Externa: EC-255260003
Id: 1733508
Inicie sessão para guardar este imóvel e aceder à sua lista de favoritos em qualquer dispositivo.
19.500 €
2 Quartos
2 WCs
Área bruta : 56 m²
Moradia de pedra para recuperar, localizada na aldeia de Orca, concelho do Fundão. Distribuída por dois pisos, apresenta grande potencial tanto para habitação própria como para investimento e rentabilização.Beneficia de bons acessos, boa exposição solar e vistas agradáveis sobre a aldeia, estando inserida num ambiente tranquilo e típico da região.CaracterísticasGeralNº Frentes: 3EdifícioHall de Entrada - Paredes: Pedra NaturalTipo Empreendimento: HabitaçãoVistasCidadeZonaAcessos: BonsCentralidade: Distante CidadeProximidade: Jardins, Padaria, Supermercado
AMI: 6863
Ref. Externa: EC-255260014
Id: 1733503
Inicie sessão para guardar este imóvel e aceder à sua lista de favoritos em qualquer dispositivo.
50.000 €
3 Quartos
2 WCs
Área bruta : 90 m²
Moradia T3, localizada na Orca, concelho do Fundão. Com enorme potencial de renovação está distribuída por dois pisos, oferece áreas amplas e uma estrutura sólida com paredes em pedra, garantindo charme e autenticidade. Situada junto à estrada principal, beneficia de uma excelente localização, ótima exposição solar e acessos privilegiados. Ideal para transformar num refúgio de sonho ou num projeto de investimento com elevado potencial.CaracterísticasGeralNº Frentes: 2Nº Pisos: 2Vão de Telhado/SótãoÁguaCompanhiaEdifícioHall de Entrada - Pavimento: Pedra NaturalRevestimento Exterior: Pedra NaturalTipo Empreendimento: HabitaçãoVistasCidadeZonaAcessos: Bons, Transportes Púb.Centralidade: Periferia CidadeProximidade: Escolas, Farmácia, Jardins, Jardins Infância, Padaria, Serviços Públicos, Supermercado
AMI: 6863
Ref. Externa: EC-255250036
Id: 1733476
Inicie sessão para guardar este imóvel e aceder à sua lista de favoritos em qualquer dispositivo.
Profissionais que conhecem esta zona a fundo — contacte-os para uma avaliação personalizada.
195.000 €
2 Quartos
1 WCs
Área útil : 164 m²
Moradia de tipologia T2, distribuída por três pisos, localizada na tranquila e acolhedora aldeia da Orca, no concelho do Fundão. Trata-se de uma construção tradicional em pedra, que preserva o charme rústico característico da região, ideal para quem procura autenticidade, conforto e ligação à natureza.O imóvel desenvolve-se em três pisos bem definidos, oferecendo uma organização funcional dos espaços e diversas possibilidades de aproveitamento. A solidez da construção em pedra garante um excelente isolamento térmico e acústico, mantendo a casa fresca no verão e acolhedora no inverno. A moradia apresenta uma estrutura robusta, típica das casas beirãs, sendo uma excelente base tanto para habitação própria como para projeto de turismo rural ou casa de férias.Inserida numa zona calma, com bons acessos e ambiente familiar, esta moradia beneficia da proximidade a serviços essenciais, ao Fundão e às paisagens naturais da Beira Interior. A envolvente proporciona qualidade de vida, tranquilidade e contacto direto com a natureza, sem abdicar da conveniência.Uma oportunidade única para quem valoriza casas em pedra, história, tradição e o potencial de criar um espaço à sua medida, seja para viver, investir ou simplesmente desfrutar de momentos de descanso no interior de Portugal.
AMI: 22503
Ref. Externa: PD-058179
Id: 1723554
Inicie sessão para guardar este imóvel e aceder à sua lista de favoritos em qualquer dispositivo.
195.000 €
2 Quartos
3 WCs
Área bruta : 272 m²
Veja a vida por outro Prisma!! Apresenta-se esta acolhedora moradia T2 situada na tranquila localidade da Orca, ideal para quem procura qualidade de vida, sossego e proximidade com a natureza. A habitação de rés do chão, primeiro e segundo andar, na realidade é composta por garagem, logradouro, cozinha, sala, casa de banho de serviço e anexo nó rés do chão, quarto com varanda, casa de banho completa, sala e cozinha com lareira, despensa e marquise no primeiro andar e dois quartos e casa de banho completa no segundo andar. A moradia oferece um ambiente acolhedor, sendo perfeita tanto para residência permanente como para casa de férias ou investimento. Localizada numa zona calma e com bons acessos, permite desfrutar da serenidade da aldeia sem abdicar da proximidade a serviços essenciais nas localidades próximas. Características principais: Três Quartos Duas Salas Duas Cozinhas Três Casas de banho Ambiente tranquilo e típico de aldeia Bons acessos Se procura uma casa numa zona sossegada, com charme e potencial, esta poderá ser a oportunidade ideal. A informação disponibilizada, embora precisa é informativa, pelo que não pode ser considerada vinculativa, e poderá ser sujeita a alterações. A sua PONTO PRISMA dispõe de uma equipa especializada para o acompanhar em todo o seu processo de venda. * Somos Intermediários de Crédito Certificados pelo Banco de Portugal com o n.º 0003514 Estamos ao dispor para o auxiliar GRATUITAMENTE em todo o processo de crédito à habitação. Marque hoje a sua reunião connosco. *
AMI: 9296
Ref. Externa: PP4711
Id: 1692553
Inicie sessão para guardar este imóvel e aceder à sua lista de favoritos em qualquer dispositivo.
195.000 €
5 Quartos
Área bruta : 272 m²
Aqui tens uma proposta de descrição focada no potencial do imóvel e na qualidade de vida da região:O Refúgio Perfeito na Aldeia da Orca Se procura a paz autêntica do interior de Portugal, esta é a oportunidade ideal. Localizada na acolhedora aldeia da Orca, no concelho do Fundão, esta moradia espera por uma nova vida. Embora necessite de limpeza e obras de melhoramento, a sua estrutura sólida e localização privilegiada representam o ponto de partida perfeito para criar a sua habitação permanente ou um refúgio estratégico de fim de semana.Moradia com 3 pisos, 2 Quartos, 1 Sala, 1 Cozinha, 1 Despensa, Varanda, Arrumos , 2 Wcs Área total do terreno: 114,0000 m2Área de implantação do edifício: 105,00 m2Área bruta de construção:272,20 m2Área bruta dependente: 107,65 m2Área bruta privativa: 164,55 m2A Orca destaca-se por ser uma aldeia autossuficiente e muito tranquila, onde terá todos os serviços essenciais à disposição — desde comércio local a serviços de saúde — sem prescindir do silêncio e da segurança que apenas o contexto rural oferece. Com excelentes acessos e a curta distância do Fundão e de Castelo Branco, este imóvel permite-lhe combinar o isolamento regenerador com a conveniência da vida moderna. Deixe-se encantar pela luz desta região e transforme este espaço no projeto dos seus sonhos. Venha descobrir o potencial escondido nesta propriedade e sinta o pulsar de uma das aldeias mais autênticas da Beira Baixa.Agende já, venha conhecer connosco a moradia com que sempre sonhou!A LING como entidade autorizada pelo Banco de Portugal, licença n.º 00721, para o exercício de Intermediária de Crédito Vinculado, trata do seu processo de crédito bancário, de uma forma gratuita, apresentando sem burocracias as melhores soluções para as necessidades de cada cliente.Este anúncio foi publicado por rotina informática, a sua informação, ainda que precisa, não dispensa a sua confirmação, não será vinculativa, e todos os dados necessitam de confirmação junto da LING.#lingteam#sobonsnegocios
AMI: 11433
Ref. Externa: 223182
Id: 1627404
Inicie sessão para guardar este imóvel e aceder à sua lista de favoritos em qualquer dispositivo.
195.000 €
2 Quartos
1 WCs
Área bruta : 272 m²
Moradia de tipologia T2, distribuída por três pisos, localizada na tranquila e acolhedora aldeia da Orca, no concelho do Fundão. Trata-se de uma construção tradicional em pedra, que preserva o charme rústico característico da região, ideal para quem procura autenticidade, conforto e ligação à natureza.O imóvel desenvolve-se em três pisos bem definidos, oferecendo uma organização funcional dos espaços e diversas possibilidades de aproveitamento. A solidez da construção em pedra garante um excelente isolamento térmico e acústico, mantendo a casa fresca no verão e acolhedora no inverno. A moradia apresenta uma estrutura robusta, típica das casas beirãs, sendo uma excelente base tanto para habitação própria como para projeto de turismo rural ou casa de férias.Inserida numa zona calma, com bons acessos e ambiente familiar, esta moradia beneficia da proximidade a serviços essenciais, ao Fundão e às paisagens naturais da Beira Interior. A envolvente proporciona qualidade de vida, tranquilidade e contacto direto com a natureza, sem abdicar da conveniência.Uma oportunidade única para quem valoriza casas em pedra, história, tradição e o potencial de criar um espaço à sua medida, seja para viver, investir ou simplesmente desfrutar de momentos de descanso no interior de Portugal.Predimed Imobiliária, Mediação Imobiliária, Lda.Avenida Brasil 43, 12º Andar, 1700-062 LisboaLicença AMI nº 22503Pessoa Coletiva nº 517 239 345Seguro Responsabilidade Civil: Nº de Apólice RC65379424 Fidelidade
AMI: 13558
Ref. Externa: 058179
Id: 1608652
Inicie sessão para guardar este imóvel e aceder à sua lista de favoritos em qualquer dispositivo.
225.000 €
3 Quartos
4 WCs
Área bruta : 259 m²
Excelente oportunidade de investimento no coração da Orca (Fundão), com localização central e grande potencial de rentabilidade. ? R/C – Espaço Comercial (Bar/Snack Bar) - Alvará de utilização para comércio. - Antigo “Café Central”, um dos mais movimentados da aldeia. - Sala de atendimento ampla. - Cozinha equipada em inox com fritadeiras, fogão industrial, forno e sistema de extração. - Casas de banho para homens e mulheres. - Arrumos espaçosos. - Esplanada de grandes dimensões privada para o negócio. ? 1.º Andar – Apartamento T3 - Áreas generosas e boa exposição solar. - 3 Quartos com roupeiros embutidos de grandes dimensões. - Sala/Cozinha ampla com lareira equipada com forno, placa a gás e exaustor. - Casa de banho de grandes dimensões com banheira. ✅ Destaques adicionais: Prédio em propriedade total, com entradas independentes para cada piso. Multibanco à porta. Excelente oportunidade para quem procura um espaço comercial com habitação própria ou para investimento em rendimento.
AMI: 23524
Ref. Externa: KWPT-025582
Id: 1517312
Inicie sessão para guardar este imóvel e aceder à sua lista de favoritos em qualquer dispositivo.
66.500 €
2 Quartos
1 WCs
Área útil : 60 m²
Veja a vida por outro PRISMA! Excelente moradia com terraço e garagem composta por: - Cozinha - Sala - WC - 2 quartos - Garagem - Terraço - Sótão amplo, com excelente aproveitamento. Destacamos neste imóvel: - Magnifica exposição solar, - Terraço com vista desafogada, - Sótão em vigas de cimento e com possibilidade de fazer divisões adicionais, - Garagem com entrada direta na casa. Localização: - A Orca, no concelho do Fundão, é o destino ideal para quem valoriza qualidade de vida, autenticidade e conforto: Com uma forte herança histórica e cultural, a Orca encanta pela sua Igreja Matriz de São Francisco, pela Capela de Nossa Senhora da Oliveira, junto à qual se ergue uma oliveira milenar com mais de 2 000 anos, e pela ponte romana sobre a Ribeira do Taveira, -Além da beleza e tranquilidade, a Orca dispõe de bons acessos às principais cidades: 15 minutos do Fundão, 20 minutos de Castelo Branco, 25 minutos da Covilhã,, E a cerca de 2h30 de Lisboa. -O acesso é facilitado pela A23 – Autoestrada da Beira Interior, sem portagens, que liga a região rapidamente ao resto do país. Esta é uma oportunidade única para viver ou investir numa zona tranquila, com boa acessibilidade e grande potencial de valorização. Contate-nos agora mesmo e marque a sua visita. A informação disponibilizada, embora precisa é informativa, pelo que não pode ser considerada vinculativa, e poderá ser sujeita a alterações. A sua PONTO PRISMA dispõe de uma equipa especializada para o acompanhar em todo o seu processo de venda. * Somos Intermediários de Crédito Certificados pelo Banco de Portugal com o n.º 0003514 Estamos ao dispor para o auxiliar GRATUITAMENTE em todo o processo de crédito à habitação. Marque hoje a sua reunião conosco. *
AMI: 9296
Ref. Externa: PP4648
Id: 1438932
Inicie sessão para guardar este imóvel e aceder à sua lista de favoritos em qualquer dispositivo.
19.000 €
Área bruta : 50 m²
Orca, Fundão, Castelo Branco Terreno com cerca de 50 m2 na malha urbana da aldeia da Orca, concelho do Fundão, distrito de Castelo Branco-Com potencial de construção habitacional ou para garagem.-Neste terreno já esteve implantada uma moradia.-O terreno mantém as paredes exteriores em pedra, venha ver o potencial desta propriedade.Este anúncio foi publicado por rotina informática, a sua informação, ainda que precisa, não dispensa a sua confirmação, não será vinculativa, e todos os dados necessitam de confirmação junto da LING.LING, é a imobiliária que o acompanha em todo o processo de compra e venda de todo o tipo de imóveis em Castelo Branco e Penamacor.
AMI: 11433
Ref. Externa: 222665
Id: 899205
Inicie sessão para guardar este imóvel e aceder à sua lista de favoritos em qualquer dispositivo.
15.000 €
2 Quartos
Área útil : 40 m²
Casa antiga em pedra para recuperar, em aldeia calma e atrativa.
AMI: 9296
Ref. Externa: PP3663
Id: 217287
Inicie sessão para guardar este imóvel e aceder à sua lista de favoritos em qualquer dispositivo.
© Copyright 2023 | CASACERTA. All rights reserved
Guardar favoritos
Este imóvel foi guardados nos seus favoritos com sucesso.
Para poder guardar pesquisa deverá ter a sua sessão iniciada.
Caso não tenha uma conta, deverá criar uma.
A sua pesquisa foi guardada com sucesso!
Este site utiliza cookies. Ao navegar no site estará a consentir a sua utilização.
Para mais informações sobre os cookies pode consultar a
política de privacidade.