Lista
Comprar
Arrendar
5 Quartos
3 WCs
Área útil : 176 m²
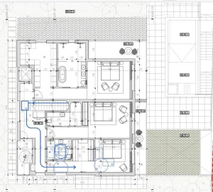
Moradia Independente T3+T2 com Vista Mar - Boa Vista, Funchal Apresentamos esta encantadora moradia independente localizada na prestigiada freguesia de Santa Maria Maior, na zona tranquila e procurada da Boa Vista, Funchal. Com uma localização privilegiada a apenas 2 minutos do centro da cidade, esta propriedade oferece o equilíbrio perfeito entre comodidade urbana e serenidade insular. Características principais: Tipologia T3 + T2, distribuída em dois pisos com entradas independentes Área total de terreno: 365 m² Área de construção: 176 m² Rés-do-chão com 4 divisões e primeiro andar com 7 divisões Dois lugares de estacionamento privativo Deslumbrante vista para o mar Potencial para rentabilidade ou ideal para famílias numerosas A moradia está dividida em duas unidades habitacionais independentes, ambas prontas a habitar. Embora possa beneficiar de algumas obras de modernização, apresenta uma excelente estrutura e grande potencial de valorização. Situada numa das zonas mais procuradas do Funchal, esta propriedade destaca-se pela beleza natural envolvente e pela proximidade a todos os serviços essenciais. A Ilha da Madeira é conhecida pela sua paisagem exuberante, clima ameno e qualidade de vida e esta moradia é uma oportunidade única para desfrutar de tudo isso. Seja para investimento, habitação própria ou para acolher várias gerações da mesma família, esta moradia é uma escolha acertada.
AMI: 20589
Ref. Externa: JS03-M059
Id: 1696372
Inicie sessão para guardar este imóvel e aceder à sua lista de favoritos em qualquer dispositivo.
2.000.000 €
4 Quartos
5 WCs
Área bruta : 265 m²
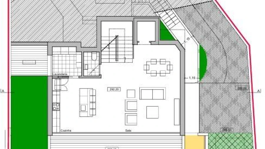
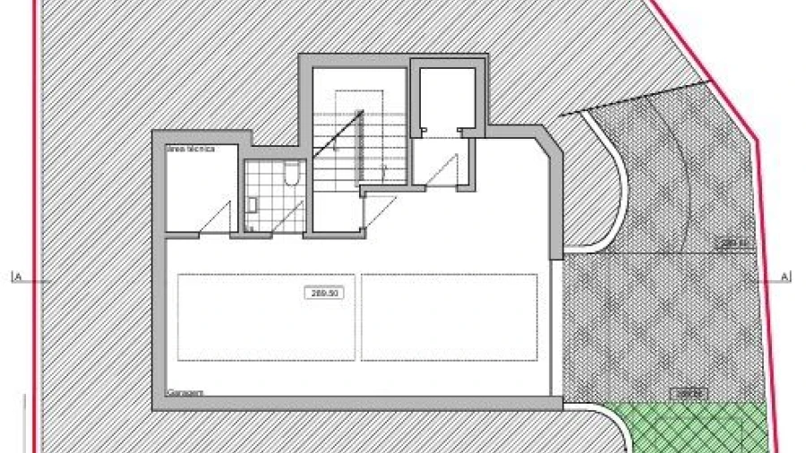
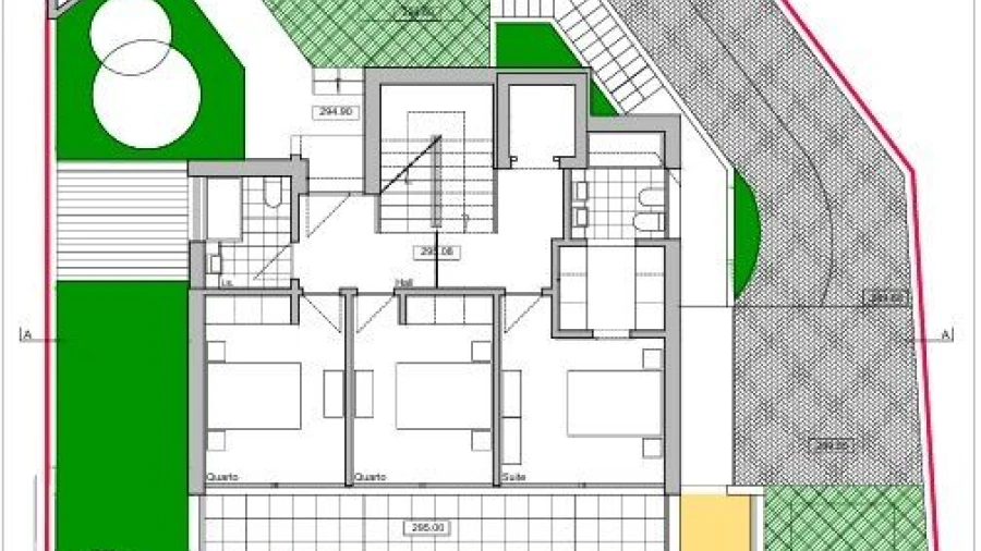
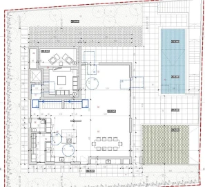
✔ 4 suítes | Piscina aquecida | Vista mar panorâmica | Ar-condicionado | Painéis solares | Terreno de 960 m² Estores elétricos | Estacionamento para 6 viaturas Moradia contemporânea situada numa das zonas residenciais mais prestigiadas do Funchal, com excelente exposição solar, amplos espaços exteriores e uma vista deslumbrante sobre o oceano. Apresentamos esta exclusiva propriedade localizada em São Gonçalo, uma zona residencial muito valorizada do Funchal, reconhecida pela sua tranquilidade, privacidade e pelas magníficas vistas sobre o Atlântico. A propriedade desenvolve-se num lote de 960 m², oferecendo amplos espaços exteriores, excelente exposição solar e um ambiente de grande privacidade. A moradia dispõe de 265 m² de área de construção, distribuídos por dois pisos mais cave, onde se encontra a zona técnica e um espaço destinado a ginásio. A arquitetura foi cuidadosamente pensada para proporcionar conforto, funcionalidade e uma ligação harmoniosa entre os espaços interiores e exteriores. No piso principal encontram-se duas suítes espaçosas com acesso direto à varanda, uma delas com closet, proporcionando conforto, privacidade e excelente luminosidade natural. Neste piso localizam-se também a sala de jantar, a cozinha totalmente equipada com bancada em pedra natural e um lavabo social. Num elegante desnível arquitetónico desenvolve-se a ampla sala de estar, marcada por generosos vãos envidraçados que permitem a entrada abundante de luz natural e criam uma ligação fluida ao terraço e à zona da piscina. Neste piso encontra-se ainda uma terceira suíte com acesso direto ao terraço, ideal para desfrutar da vista e da excelente exposição solar. A propriedade conta ainda com uma quarta suíte, reforçando o conforto e a funcionalidade da moradia, ideal para família ou para receber convidados. O exterior foi pensado para aproveitar plenamente o clima ameno da Madeira. A propriedade dispõe de uma agradável zona de lazer com piscina, área de refeições ao ar livre equipada com cozinha exterior e barbecue, bem como casa de banho de apoio à piscina. No exterior encontram-se ainda lavandaria e áreas de arrumos, reforçando a funcionalidade da propriedade. O jardim bem cuidado complementa o ambiente de tranquilidade e privacidade. A propriedade dispõe ainda de estacionamento para duas viaturas. Características em destaque • Vista panorâmica sobre o oceano • Piscina aquecida • Ar-condicionado • Painéis solares • Estores elétricos • Cozinha com bancadas em pedra natural • Casas de banho revestidas em pedra natural • Amplos vãos envidraçados e excelente luminosidade natural • Cozinha exterior e barbecue • Jardim e amplas áreas exteriores
AMI: 13132
Ref. Externa: KWPT-028163
Id: 1692707
Inicie sessão para guardar este imóvel e aceder à sua lista de favoritos em qualquer dispositivo.
4 Quartos
5 WCs
Área útil : 271 m²
Apresentamos uma moradia T4 de luxo absolutamente diferenciadora, localizada numa das zonas residenciais mais prestigiadas do Funchal, com vista panorâmica deslumbrante sobre o Oceano Atlântico e o porto. Uma propriedade pensada para um público exigente, que valoriza exclusividade, design contemporâneo e um estilo de vida verdadeiramente superior. Esta residência destaca-se pela sua arquitetura moderna, linhas elegantes e materiais de elevada qualidade, combinando betão armado, revestimentos contemporâneos e detalhes premium que garantem durabilidade, sofisticação e baixa manutenção. Cada elemento foi cuidadosamente concebido para criar uma casa intemporal, onde estética e funcionalidade convivem em perfeita harmonia. Vendida totalmente mobilada, a moradia apresenta uma seleção criteriosa de peças que complementam a arquitetura e elevam o nível de requinte. Os interiores revelam equilíbrio, conforto e bom gosto, permitindo que o futuro proprietário desfrute de um imóvel pronto a habitar, sem necessidade de qualquer adaptação. Distribuída por dois pisos independentes, oferece versatilidade e privacidade, ideal para famílias multigeracionais, para quem recebe convidados com frequência ou para quem pretende explorar uma vertente de investimento de alto padrão. No rés-do-chão, a ampla cozinha em open space integra-se naturalmente com as áreas de estar e jantar, criando um ambiente fluido e luminoso. A zona de entretenimento inclui sala de jogos com área de bar, um quarto, casa de banho social e lavandaria funcional. No exterior, a experiência eleva-se a outro nível: piscina privada com generosa dimensão, zona lounge com lareira, espaço de churrasco totalmente equipado, jardim paisagístico, áreas técnicas e garagem coberta para duas viaturas. O piso superior oferece três suítes elegantes, todas com roupeiros embutidos e varandas privativas com vistas abertas sobre o mar e a cidade. Uma das suítes dispõe de um espaçoso closet. Este piso inclui ainda uma cozinha moderna com ilha, sala ampla e luminosa, casa de banho social e zona exterior ideal para refeições ao ar livre, sempre com o Atlântico como cenário. No topo da moradia, um terraço exclusivo acessível através de clarabóia automática proporciona um verdadeiro refúgio privado, com vistas incomparáveis sobre o Funchal, o oceano e o porto — um espaço pensado para momentos únicos ao pôr do sol. A casa integra soluções de elevada eficiência energética e tecnologia de ponta, incluindo painéis solares, ar c
AMI: 9318
Ref. Externa: C0216-03305
Id: 1692460
Inicie sessão para guardar este imóvel e aceder à sua lista de favoritos em qualquer dispositivo.
710.000 €
6 Quartos
Área bruta : 185 m²
MORADIA T4 NO FUNCHALOnde a centralidade encontra a serenidade.No coração do Funchal, existe um lugar onde é possível viver perto de tudo, sem abdicar de nada.Esta moradia T4 foi pensada para quem valoriza privacidade, espaço e qualidade de vida. Aqui, acorda com luz natural abundante, desfruta de áreas amplas acima da média e sente a tranquilidade de estar resguardado da confusão quotidiana, mesmo estando a poucos minutos de todos os serviços e comércio. Um Refúgio Para a Sua FamíliaImagine os seus filhos a brincar livremente no quintal, em total segurança.Os seus animais com espaço para correr, almoços demorados ao fim de semana na zona de barbecue, rodeado de família e amigos.O exterior generoso permite estacionar facilmente várias viaturas, além de contar com garagem coberta para duas viaturas.Aqui, cada espaço foi pensado para viver e não apenas habitar, conforto com consciência.A moradia oferece boa eficiência energética, equipada com, painéis fotovoltaicos e painel solar térmico, uma escolha inteligente que alia conforto, sustentabilidade e redução de custos energéticos. Privacidade com VersatilidadeO piso inferior dispõe de entrada independente, abrindo portas a múltiplas possibilidades, um espaço autónomo para receber hóspedes, criar um estúdio, instalar escritório privado ou até rentabilizar em arrendamento ou alojamento local, tudo isto sem comprometer a privacidade da casa principal.Dispõe ainda de Ginásio, Lavandaria, áreas amplas e versáteis, mais do que uma casa, um estilo de vida, uma propriedade distinta, onde a vida acontece com mais calma, mais espaço e mais significado.HOMES WITH LOVEAMI-18172
AMI: 18172
Ref. Externa: JT026
Id: 1690678
Inicie sessão para guardar este imóvel e aceder à sua lista de favoritos em qualquer dispositivo.
1.100.000 €
4 Quartos
Área bruta : 0 m²
Moradia T3+1 no Funchal - Ilha da MadeiraMoradia de 3 quartos + escritório, com um design requintado em condomínio fechado, seguro e bem cuidado, dentro do prestigiado Palheiro Nature Estate.Oferecendo vistas panorâmicas sobre o Funchal e o Oceano Atlântico, a propriedade combina privacidade, conforto e acesso a uma das zonas residenciais mais procuradas da Madeira.Ao entrar pela porta principal de madeira maciça, você é recebido por um hall de entrada acolhedor. À esquerda, encontra-se a suíte principal, que oferece: banheiro privativo, armários embutidos, planta espaçosa e vistas deslumbrantes para o oceano e a Baía do Funchal.Do lado oposto do hall de entrada, uma pequena escada leva aos dois quartos de hóspedes, ambos com: armários embutidos, banheiro social compartilhado e belas vistas para o sul, com vista para o mar e a baía.Descendo a escada de pedra, a casa se abre para uma área de estar iluminada, criando uma sensação de espaço e luminosidade.Este andar inclui uma ampla sala de estar com janelas francesas que emolduram vistas panorâmicas do oceano, lareira a lenha, depósito, um cômodo multiuso adicional, ideal como escritório, estúdio ou sala de hobbies, e um banheiro social com chuveiro.Da sala de estar, você acessa a cozinha/sala de jantar, que acomoda confortavelmente uma mesa de jantar para 8 pessoas. A cozinha está em ótimas condições e equipada com eletrodomésticos Bosch, geladeira com freezer embutida, lava-louças embutida e máquina de lavar roupa.Portas francesas se abrem para um charmoso terraço coberto de buganvílias, perfeito para refeições ao ar livre e para apreciar a vista para o mar.Degraus do terraço levam ao jardim privativo da propriedade, que oferece vistas deslumbrantes do oceano e do Funchal, além de acesso a um amplo depósito sob a casa.Outras características incluem:- Condomínio privado;- 3 quartos + escritório/estúdio de arte;- Vistas deslumbrantes para o oceano e a Baía do Funchal a partir de vários níveis;- Aquecimento de piso em toda a casa- Cozinha totalmente equipada com eletrodomésticos Bosch;- Lareira a lenha;- Jardim privativo com paisagismo;- 1 vaga de garagem coberta + amplo estacionamento para visitantes no local.- Campo de golfe Palheiro, um spa de luxo e vistas panorâmicas.Esta propriedade é ideal para quem procura um estilo de vida tranquilo e sofisticado, com fácil acesso ao centro do Funchal.A propriedade fica a uma curta distância de carro do centro do Funchal, oferecendo o equilíbrio perfeito entre tranquilidade e conveniência.Quer esteja à procura de uma residência permanente, uma casa de férias ou um imóvel para investimento, esta moradia representa uma oportunidade excecional no próspero mercado imobiliário da Madeira.
AMI: 9327
Ref. Externa: VP56_T3+1
Id: 1690652
Inicie sessão para guardar este imóvel e aceder à sua lista de favoritos em qualquer dispositivo.
3 Quartos
3 WCs
Área bruta : 285 m²
Localizada na Rua Cidade de New Bedford, no prestigiado concelho do Funchal, a Villa Faial encontra-se atualmente em fase de construção, com conclusão prevista para 2027. Um projeto exclusivo que combina arquitetura contemporânea, funcionalidade e uma vivência sofisticada, pensado para quem procura qualidade superior e conforto absoluto. Distribuída por dois pisos, esta moradia foi desenhada para maximizar a luz natural e criar uma ligação fluida entre os espaços interiores e exteriores. No piso térreo, destaca-se a ampla zona social em conceito open space, onde a cozinha e a sala se integram harmoniosamente, proporcionando um ambiente moderno, elegante e ideal para receber. Este piso conta ainda com garagem privativa, lavandaria e despensa, assegurando total funcionalidade no dia a dia. No piso superior, encontram-se três suítes generosas, concebidas para oferecer máxima privacidade e conforto, com áreas equilibradas e excelente exposição solar. No exterior, a piscina privada convida a momentos de lazer e descontração, enquadrada por um ambiente que privilegia tranquilidade e vistas amplas, refletindo o estilo de vida único da Madeira. A Villa Faial representa uma oportunidade rara de adquirir uma residência nova, com acabamentos de qualidade e arquitetura distinta, numa das localizações mais desejadas do Funchal — um investimento seguro num estilo de vida exclusivo.
AMI: 13132
Ref. Externa: KWPT-029102
Id: 1690490
Inicie sessão para guardar este imóvel e aceder à sua lista de favoritos em qualquer dispositivo.
4 Quartos
5 WCs
Área bruta : 646 m²
Apresentamos esta exclusiva moradia unifamiliar T4+1 com vista deslumbrante sobre a Baía do Funchal, implantada num generoso lote de 920 m2. Com arquitetura contemporânea característica dos anos 70, esta propriedade distingue-se pela sua amplitude, funcionalidade e localização privilegiada.. . Distribuída por três pisos, a moradia oferece espaços amplos e bem organizados. No piso térreo encontra-se uma confortável sala de estar, sala de jantar, escritório, sala de televisão, sala de café, cozinha espaçosa, despensa e instalações sanitárias. Neste piso existe ainda um anexo de apoio composto por dois arrumos, copa, lavandaria e área de apoio ao jardim.. . No primeiro piso localiza-se a suíte principal, que dispõe de casa de banho privativa e de uma ampla varanda com uma magnífica vista panorâmica sobre a baía do Funchal. Este piso conta ainda com três quartos adicionais e uma casa de banho comum, garantindo conforto e privacidade para toda a família.. . O piso inferior inclui uma garagem com capacidade para três viaturas, zona de arrumos, instalações sanitárias e um apartamento totalmente independente composto por sala, quarto e casa de banho, ideal para hóspedes ou potencial rendimento adicional.. . A propriedade dispõe ainda de elegantes áreas ajardinadas que oferecem a possibilidade de construção de uma ampla piscina, criando um espaço perfeito para lazer, convívio e momentos ao ar livre. Com uma área bruta de 646 m2 e classe energética D, esta moradia encontra-se em bom estado de conservação e representa uma excelente oportunidade para quem procura espaço, conforto e uma vista única sobre a cidade do Funchal.. . Informação disponibilizada, embora considerada precisa, é meramente informativa e poderá estar sujeita a alterações, não tendo caráter vinculativo.
AMI: 20576
Ref. Externa: DRS_HH_0008/12758
Id: 1689957
Inicie sessão para guardar este imóvel e aceder à sua lista de favoritos em qualquer dispositivo.
3 Quartos
3 WCs
Área bruta : 165 m²
Descubra esta moradia moderna, recém-construída, onde o estilo contemporâneo se alia à luz natural e ao conforto, oferecendo também um excelente potencial de investimento. Localizada no Funchal, esta propriedade permite acordar com a luz suave do Atlântico a iluminar os interiores, desfrutar do pequeno-almoço no jardim privado e passear pelas ruas históricas da cidade, terminando o dia com um pôr do sol deslumbrante visto da varanda.. . A casa possui três quartos luminosos, incluindo uma suíte master com varanda e vista para o mar, três casas de banho, sala de estar e jantar em conceito aberto voltada a sul, cozinha equipada com eletrodomésticos de alta gama, lavandaria separada e um espaço de leitura com janelas panorâmicas. Totalmente mobilada com design elegante, oferece conforto e sofisticação em cada detalhe.. . O exterior é igualmente impressionante, com jardim frontal estilo lounge e jardim traseiro privado perfeito para churrascos e refeições ao ar livre. Conta ainda com dois lugares de estacionamento privativos numa rua residencial calma e central. Construída em 2023 com materiais sustentáveis, a moradia inclui janelas duplas, painéis solares e pré-instalação para ar condicionado, garantindo eficiência energética e qualidade de vida.. . Melhorias adicionais, como mobiliário de design, roupeiros embutidos, estores verticais, iluminação interior e exterior, equipamentos de cozinha premium e loiças sanitárias de alta qualidade, elevam ainda mais o nível de conforto e valorização da propriedade. Esta é uma oportunidade única para quem procura um lar ensolarado, um refúgio inspirador para trabalhar remotamente ou um investimento sólido na Madeira.. . Agende a sua visita e descubra o equilíbrio perfeito entre estilo de vida, design e investimento neste refúgio atlântico.
AMI: 20576
Ref. Externa: DRS_HH_0007/12758
Id: 1689954
Inicie sessão para guardar este imóvel e aceder à sua lista de favoritos em qualquer dispositivo.
3 Quartos
7 WCs
Área bruta : 350 m²
Moradia tradicional em excelente estado de conservação, localizada numa zona residencial tranquila, próxima do centro do Funchal. Distribuída por três pisos, esta propriedade destaca-se pelas suas áreas generosas, funcionalidade e por um terraço visitável com vista panorâmica de 360º, ideal para desfrutar da paisagem envolvente.. . No piso térreo encontra-se o hall de entrada, um escritório, sala de estar, cozinha com despensa, casa de banho social e uma sala de jantar com lareira, criando um ambiente confortável e acolhedor para o dia a dia. O primeiro piso é composto por um hall de distribuição, três suites, uma casa de banho social e três varandas que proporcionam boa luminosidade natural e ligação ao exterior.. . Na cave existe uma garagem com capacidade para três viaturas no interior e ainda dois lugares de estacionamento no logradouro exterior. Este piso inclui também um amplo salão de festas com lareira e casa de banho, ideal para momentos de convívio.. . No topo da moradia encontra-se um terraço acessível com vista panorâmica, bem como um quarto ou zona de arrumos com casa de banho, oferecendo versatilidade adicional ao imóvel. No exterior, a propriedade dispõe de um logradouro ajardinado com piscina, perfeito para momentos de lazer e relaxamento, e ainda um canil.. . Uma excelente oportunidade para quem procura uma moradia espaçosa, bem localizada e com ótimos espaços de lazer. Marque já a sua visita.
AMI: 20576
Ref. Externa: DRS_HH_0004/12758
Id: 1689952
Inicie sessão para guardar este imóvel e aceder à sua lista de favoritos em qualquer dispositivo.
3 Quartos
4 WCs
Área bruta : 250 m²
Situada nas zonas elevadas do centro do Funchal, esta moradia contemporânea beneficia de uma posição dominante com vista panorâmica sobre o oceano Atlântico, a cidade do Funchal e a paisagem envolvente. O projeto apresenta uma arquitetura moderna de linhas elegantes, privilegiando espaços amplos, abundante luz natural e uma forte ligação entre interior e exterior. Grandes superfícies envidraçadas permitem tirar pleno partido da vista mar e da luminosidade característica da Madeira. A moradia foi concebida para um estilo de vida confortável e contemporâneo, com três quartos e áreas sociais generosas que se prolongam naturalmente para os espaços exteriores. No exterior, uma piscina privada e zonas de lazer orientadas para o oceano criam um ambiente ideal para relaxar, receber convidados e desfrutar do clima ameno da ilha ao longo de todo o ano. Localizada a poucos minutos do centro do Funchal, a propriedade combina tranquilidade, vistas abertas e proximidade às principais comodidades da cidade. A construção encontra-se atualmente em desenvolvimento, com conclusão prevista para 2028. Uma moradia moderna com vista mar numa das localizações residenciais mais valorizadas do Funchal.
AMI: 13972
Ref. Externa: HAB_572
Id: 1689837
Inicie sessão para guardar este imóvel e aceder à sua lista de favoritos em qualquer dispositivo.
5 Quartos
2 WCs
Área bruta : 176 m²
Duas moradias pelo preço de uma! Uma excelente oportunidade para habitação própria ou investimento com rentabilidade imediata Apresentamos esta excelente oportunidade localizada no Beco do Lombo da Boa Vista, entrada particular, nº 5 e 6. Trata-se de um imóvel composto por duas moradias independentes, ideal tanto para habitação própria como para investimento com potencial de rentabilização. A moradia principal é um T3 com 7 divisões, oferecendo áreas amplas e boa luminosidade , graças à orientação a sul. Dispõe ainda de estacionamento para 2 carros, garantindo maior comodidade no dia-a-dia. A segunda moradia de tipologia T2 com 4 divisões, contando também com um pequeno quintal. Este espaço encontra-se pronto para arrendar, sendo uma excelente opção para gerar rendimento imediato. O imóvel está inserido num lote de 365 m², com 176 m² de área bruta, e encontra-se em bom estado de conservação. Características principais: Duas moradias independentes no mesmo lote Moradia principal T3 com 7 divisões Segunda moradia T2 com 4 divisões e pequeno quintal Estacionamento para 2 carros 176 m² de área bruta Lote com 365 m² Orientação Sul Segunda mão / bom estado 1 casa de banho 1 piso Certificado energético: Classe D Ideal para habitação própria com possibilidade de rendimento, investimento ou mesmo para duas famílias que pretendam viver próximas com total independência
AMI: 12689
Ref. Externa: MORJP003
Id: 1688335
Inicie sessão para guardar este imóvel e aceder à sua lista de favoritos em qualquer dispositivo.
1.100.000 €
3 Quartos
3 WCs
Área bruta : 203 m²
Vista para o Mar Condomínio Particular Pronto para Mudança Situada dentro do exclusivo Palheiro Nature Estate, esta casa lindamente cuidada oferece uma rara combinação de tranquilidade, beleza natural e vida refinada. Esta vila bem cuidada de 3 quartos + 1 oferece vistas panorâmicas sobre a Baía de Funchal e o Oceano Atlântico. Localizada em um condomínio particular a apenas 10 minutos do centro de Funchal, esta casa combina tranquilidade, conveniência e alta qualidade de vida, ideal como residência permanente, casa de férias ou imóvel de investimento. A própria propriedade é uma das áreas residenciais mais procuradas da Madeira um ambiente privado e seguro, cercado por jardins exuberantes, árvores centenárias e vistas panorâmicas sobre a baía de Funchal e o Oceano Atlântico. A vila inclui uma garagem privada, com amplo estacionamento adicional disponível dentro da vila. Um ponto de ônibus fica a aproximadamente 10 minutos a pé, proporcionando fácil acesso a lojas locais e rotas diretas para Funchal. Por dentro, a casa é cuidadosamente organizada para apoiar tanto o conforto diário quanto o entretenimento descontraído. Cada espaço foi cuidadosamente mantido, proporcionando uma experiência pronta para se mudar que mantém o charme e o calor de um lar muito amado. Seja usada como residência principal, retiro de férias ou propriedade para investimento, ela apresenta um equilíbrio atraente entre localização, estilo de vida e valor a longo prazo. Construída em 2008 e pertencente aos vendedores atuais desde a conclusão, a propriedade foi cuidadosamente cuidada e está em excelente estado. O exterior recebeu uma repintura completa no final de 2025, e o interior mantém seu charme original com: piso de azulejos de terracota em todo o espaço, aquecimento por piso em todos os cômodos, tetos abobadados com iluminação LED, ar-condicionado pré-instalado e sistema de segurança, interiores luminosos e arejados e vista para o mar desobstruída de vários andares. Ao entrar pela porta de madeira sólida, você é recebido por um hall de entrada acolhedor. À esquerda está a suíte principal do quarto, com: banheiro privativo, armários embutidos, layout espaçoso, vistas deslumbrantes para o oceano e a Baía de Funchal. Do lado oposto do hall de entrada, uma escada curta leva aos dois quartos de hóspedes, ambos com: armários embutidos, banheiro compartilhado de hóspedes, belas vistas voltadas para o sul do mar e da baía. Descendo a escada de pedra, a casa se abre para uma área de estar iluminada, criando uma sensação de espaço e arejamento. Este andar inclui uma grande sala de estar com janelas francesas que emolduram vista para o oceano sem interrupções, lareira a lenha, depósito, um cômodo multiuso adicional, ideal como escritório, estúdio ou sala de hobby, e um chuveiro adicional para hóspedes. Da sala, você entra na cozinha-diner, acomodando confortavelmente uma mesa de jantar para 8 pessoas. A cozinha está em ótimo estado e equipada com eletrodomésticos Bosch, geladeira, freezer embutidos, lava-louças e máquina de lavar embutidas. Portas francesas dão para um charmoso terraço coberto de buganvílias, perfeito para jantar dentro e ao ar livre e para apreciar a vista do mar. Escadas do terraço levam ao jardim paisagístico privado da propriedade, oferecendo vistas panorâmicas sobre o oceano e Funchal, além de acesso a um grande depósito sob a casa. Principais Recursos 3 quartos + escritório/sala de estúdio de arte Vista forte para o oceano e a Baía de Funchal de múltiplos níveis Condomínio particular na Vila de Palheiro 1 garagem + amplo estacionamento para hóspedes no local Aquecimento de piso em toda a área Eletrodomésticos de cozinha Bosch Lareira a lenha Jardim particular paisagístico Próximo ao ponto de ônibus, lojas e centro de Funchal Excelente potencial de aluguel Características da propriedade Repintura profissional completa concluída no ano passado, dando à casa um acabamento moderno e nítido. Interiores claros e arejados com luz natural excelente. Layout bem mantido, projetado para conforto e facilidade no dia a dia. Em condições de mudança prontas, perfeitas para ocupação imediata ou uso para aluguel. Ambiente tranquilo e privado dentro de uma propriedade prestigiosa. Destaques do Palheiro Nature Estate Comunidade residencial privada e fechada, conhecida pela paz, privacidade e ambiente natural. Jardins e trilhas para caminhada lindamente conservadas, ideais para passeios matinais ou tardes tranquilas ao ar livre. Proximidade ao Palheiro Golf, um dos principais campos da Madeira com vistas panorâmicas para o oceano. Fácil acesso ao Palheiro Spa, oferecendo excelentes instalações de bem-estar, tratamentos e um refúgio relaxante dentro da propriedade. Posição elevada com vista para o Funchal, proporcionando uma sensação de isolamento enquanto permanece bem conectada. Benefícios de Localização A apenas 1012 minutos do centro de Funchal, com acesso rápido a restaurantes, lojas e atrações culturais. Conexões rodoviárias convenientes para o aeroporto e as principais rotas da ilha. Cercado pela natureza, mas próximo aos itens essenciais do dia a dia, incluindo supermercados, cafés e serviços locais. Se tiver alguma dúvida, fique à vontade para entrar em contato e nos enviar sua solicitação. Não perca agende sua visita hoje mesmo.
AMI: 9458
Ref. Externa: V56
Id: 1688150
Inicie sessão para guardar este imóvel e aceder à sua lista de favoritos em qualquer dispositivo.
550.000 €
3 Quartos
3 WCs
Área bruta : 150 m²
-------------------------------------- **** CRYPTO ACCEPTED **** ** LEGALISED BY NOTARY ** * find out more - contact us * -------------------------------------- Moradia T3 + Sótão com Vista Deslumbrante sobre o Funchal e o Mar. Descubra esta encantadora moradia isolada situada na zona de São Roque, numa localização privilegiada que combina tranquilidade, privacidade e excelentes acessos ao centro do Funchal. Inserida numa rua sem saída que serve apenas três moradias, esta propriedade oferece um ambiente raro de silêncio e qualidade de vida, ideal para quem procura viver longe do ruído urbano, sem abdicar da proximidade à cidade. A casa beneficia de uma excelente exposição solar, o que se traduz em grande luminosidade natural e uma temperatura ambiente muito agradável ao longo de todo o dia. Distribuída por dois pisos e sótão habitável, esta moradia foi pensada para proporcionar conforto, espaço e funcionalidade. No piso térreo, encontra-se uma sala ampla e acolhedora, perfeita para momentos em família, uma cozinha espaçosa com despensa e uma casa de banho de serviço. No primeiro piso, a área privada da casa dispõe de uma confortável suite, com casa de banho privativa equipada com banheira de hidromassagem e duche, além de dois quartos adicionais e uma casa de banho de apoio. O sótão habitável acrescenta ainda mais versatilidade à moradia, oferecendo amplas áreas e arrumos e acesso a uma varanda com uma vista verdadeiramente soberba. No exterior, a casa revela outro dos seus grandes atrativos: amplos espaços exteriores pavimentados e ajardinados, ideais para lazer e convívio. Destaca-se ainda uma zona coberta com churrasqueira, perfeita para momentos com família e amigos, complementada por zona de lavandaria com acesso direto ao exterior. A propriedade conta também com abrigo automóvel para duas viaturas. Uma casa que reúne espaço, privacidade, vistas e excelente localização, perfeita para quem procura viver com conforto numa das zonas tranquilas do Funchal. Paulo Vieira (+351) 918 726 057 Chamada para a rede móvel nacional
AMI: 10701
Ref. Externa: 12057-PV
Id: 1688139
Inicie sessão para guardar este imóvel e aceder à sua lista de favoritos em qualquer dispositivo.
1.800.000 €
3 Quartos
4 WCs
Área bruta : 750 m²
Esta sofisticada Moradia Térrea com área total de 750 m2 vista fantástica sobre o Oceano Atlântico. Situado numa localização privilegiada na zona de Boa Nova no Funchal. Projetada para se integrar harmoniosamente na paisagem, a arquitetura combina materiais e linhas contemporâneas, garantindo um equilíbrio perfeito entre o design e conforto. A presenta áreas generosas, acabamentos contemporâneos e um layout funcional composto por três quartos (todos em suíte), sala ampla e cozinha moderna. O grande destaque é o terraço com uma vista fantástica , acompanhado por uma piscina exclusiva, perfeita para aproveitar o clima ameno da ilha, relaxar ao final do dia ou acolher convidados num ambiente verdadeiramente privilegiado. A cozinha está completamente equipada com eletrodomésticos , incluindo frigorífico combinado, placa de indução, exaustor, forno, micro-ondas, máquina de lavar louça e máquina de lavar roupa. Garagem fechada.
AMI: 20706
Ref. Externa: 17A/2026
Id: 1688076
Inicie sessão para guardar este imóvel e aceder à sua lista de favoritos em qualquer dispositivo.
230.000 €
3 Quartos
Área útil : 96 m²
✨ Uma oportunidade que não aparece todos os dias. Na Terra Chã, em Santo António, encontra esta moradia geminada inserida num lote de 400 m², numa das zonas mais valorizadas e procuradas da freguesia. Com vista desafogada e um ambiente tranquilo, é o lugar perfeito para viver com qualidade e criar a moradia dos seus sonhos. Tudo perto de si: farmácias, igreja, supermercados e vários serviços, e apenas a 5 minutos da via rápida. ? Mais do que uma casa… um investimento seguro numa localização que faz a diferença. Uma oportunidade perfeita para quem quer deixar a sua marca no mercado imobiliário, seja para rendimento ou revenda. Se é investidor e procura algo realmente aliciante… telefone-me. Esta oportunidade pode ser sua. ?✨ A MILLION GROUP surge da união de sinergias, da complementaridade e experiência dos seus fundadores. Que iniciaram a sua colaboração sob a matriz de uma marca internacional e decidem criar um novo conceito para o setor imobiliário. Sentiram os desafios com uma perspetiva mais universal e flexível na abordagem do mercado imobiliário, e a criação da marca MILLION GROUP vem responder a todas as necessidades. Era preciso dar corpo a uma filosofia e uma forma de estar no mercado, nova e diferenciadora. Os nossos valores CONFIANÇA, PROXIMIDADE, MATURIDADE, UNIVERSALIDADE. CONFIANÇA – Conquistada interna e externamente pelo rigor e a lealdade na relação que estabelecemos com os nossos Consultores, Parceiros, Clientes e Amigos. PROXIMIDADE – Uma relação sincera, com acompanhamento, apoio e disponibilidade permanente. MATURIDADE – Um património de experiência e conhecimento no mercado imobiliário. UNIVERSALIDADE – Baseada numa presença abrangente em todos os segmentos de mercado, a profissionalizar os nossos consultores com foco na satisfação dos nossos clientes. O que fazemos "Concretizamos sonhos" Uma verdadeira síntese emocional do que fazemos todos os dias. Conciliamos compradores e vendedores, promovemos negócios e apoiamos a sua concretização. A MILLION GROUP surge da união de sinergias, da complementaridade e experiência dos seus fundadores. Que iniciaram a sua colaboração sob a matriz de uma marca internacional e decidem criar um novo conceito para o setor imobiliário. Sentiram os desafios com uma perspetiva mais universal e flexível na abordagem do mercado imobiliário, e a criação da marca MILLION GROUP vem responder a todas as necessidades. Era preciso dar corpo a uma filosofia e uma forma de estar no mercado, nova e diferenciadora. Os nossos valores CONFIANÇA, PROXIMIDADE, MATURIDADE, UNIVERSALIDADE. CONFIANÇA – Conquistada interna e externamente pelo rigor e a lealdade na relação que estabelecemos com os nossos Consultores, Parceiros, Clientes e Amigos. PROXIMIDADE – Uma relação sincera, com acompanhamento, apoio e disponibilidade permanente. MATURIDADE – Um património de experiência e conhecimento no mercado imobiliário. UNIVERSALIDADE – Baseada numa presença abrangente em todos os segmentos de mercado, a profissionalizar os nossos consultores com foco na satisfação dos nossos clientes. O que fazemos "Concretizamos sonhos" Uma verdadeira síntese emocional do que fazemos todos os dias. Conciliamos compradores e vendedores, promovemos negócios e apoiamos a sua concretização.
AMI: 22034
Ref. Externa: MGM00675
Id: 1685875
Inicie sessão para guardar este imóvel e aceder à sua lista de favoritos em qualquer dispositivo.
230.000 €
3 Quartos
Área útil : 91 m²
✨ Uma oportunidade que não aparece todos os dias. Na Terra Chã, em Santo António, encontra esta moradia geminada inserida num lote de 400 m², numa das zonas mais valorizadas e procuradas da freguesia. Com vista desafogada e um ambiente tranquilo, é o lugar perfeito para viver com qualidade e criar a moradia dos seus sonhos. Tudo perto de si: farmácias, igreja, supermercados e vários serviços, e apenas a 5 minutos da via rápida. ? Mais do que uma casa… um investimento seguro numa localização que faz a diferença. Uma oportunidade perfeita para quem quer deixar a sua marca no mercado imobiliário, seja para rendimento ou revenda. Se é investidor e procura algo realmente aliciante… telefone-me. Esta oportunidade pode ser sua. ?✨ A MILLION GROUP surge da união de sinergias, da complementaridade e experiência dos seus fundadores. Que iniciaram a sua colaboração sob a matriz de uma marca internacional e decidem criar um novo conceito para o setor imobiliário. Sentiram os desafios com uma perspetiva mais universal e flexível na abordagem do mercado imobiliário, e a criação da marca MILLION GROUP vem responder a todas as necessidades. Era preciso dar corpo a uma filosofia e uma forma de estar no mercado, nova e diferenciadora. Os nossos valores CONFIANÇA, PROXIMIDADE, MATURIDADE, UNIVERSALIDADE. CONFIANÇA – Conquistada interna e externamente pelo rigor e a lealdade na relação que estabelecemos com os nossos Consultores, Parceiros, Clientes e Amigos. PROXIMIDADE – Uma relação sincera, com acompanhamento, apoio e disponibilidade permanente. MATURIDADE – Um património de experiência e conhecimento no mercado imobiliário. UNIVERSALIDADE – Baseada numa presença abrangente em todos os segmentos de mercado, a profissionalizar os nossos consultores com foco na satisfação dos nossos clientes. O que fazemos "Concretizamos sonhos" Uma verdadeira síntese emocional do que fazemos todos os dias. Conciliamos compradores e vendedores, promovemos negócios e apoiamos a sua concretização.
AMI: 22034
Ref. Externa: MGM00674
Id: 1685857
Inicie sessão para guardar este imóvel e aceder à sua lista de favoritos em qualquer dispositivo.
850.000 €
3 Quartos
3 WCs
Área bruta : 307 m²
Apresentamos esta excelente moradia T3 totalmente mobilada, localizada na tranquila zona de São Roque, no Funchal, com uma fantástica vista sobre o oceano.. . A propriedade destaca-se pelo conforto, espaço e pela ligação privilegiada à natureza, proporcionando um ambiente ideal para quem procura qualidade de vida. São Roque é uma zona muito apreciada pela sua tranquilidade, paisagens naturais e proximidade ao centro do Funchal, permitindo desfrutar de um ambiente calmo sem abdicar da conveniência da cidade.. . A moradia dispõe de uma ampla garagem com capacidade para quatro viaturas, oferecendo não apenas comodidade para famílias com vários carros, mas também espaço adicional para arrumação, hobbies ou outras atividades.. . A vista mar é um dos grandes destaques da propriedade, criando um cenário único que convida ao relaxamento e a momentos de contemplação. Despertar todos os dias com este panorama é um verdadeiro privilégio.. . Esta é uma oportunidade ideal para quem procura uma casa confortável, funcional e com uma localização privilegiada na ilha da Madeira.. . Agende a sua visita e venha descobrir esta propriedade.
AMI: 20576
Ref. Externa: DRS_HH_0005/12758
Id: 1685730
Inicie sessão para guardar este imóvel e aceder à sua lista de favoritos em qualquer dispositivo.
2.400.000 €
3 Quartos
5 WCs
Área bruta : 688 m²
Apresentamos esta extraordinária moradia de alto padrão, localizada na prestigiada zona de Santo António, no Funchal. Com 687m2 de área construída, a propriedade combina requinte, conforto e vistas de tirar o fôlego, oferecendo uma experiência de vida única.. . A casa dispõe de 3 suítes sofisticadas, 2 delas com closet, e 5 casas de banho modernas, todas com acabamentos de elevada qualidade. As áreas sociais, incluindo sala de estar e sala de jantar, são amplas e luminosas, decoradas com elegância. Os tetos com fitas LED COB e o soalho em carvalho multicamada acrescentam um toque de sofisticação e conforto.. . O sistema de climatização VMC com duplo fluxo garante um ambiente térmico agradável e ventilação eficiente. A cozinha é totalmente equipada com eletrodomésticos Miele e integra uma funcional lavanderia.. . Para lazer, a moradia conta com piscina, jacuzzi com 3 injetores e churrasqueira moderna, perfeita para momentos de convívio. A garagem de 234m2 inclui casa de banho, arrecadação e acesso a elevador elétrico OTIS com porta corta-fogo.. . O terraço superior oferece vistas impressionantes, enquanto os painéis solares com 20 módulos e baterias de 12.000W asseguram eficiência energética e carregamento de veículos elétricos.. . Construída com materiais de excelência e lote de 579m2, esta propriedade é a combinação perfeita de luxo, segurança e conforto no coração do Funchal.
AMI: 20576
Ref. Externa: DRS_HH_0003/12758
Id: 1685729
Inicie sessão para guardar este imóvel e aceder à sua lista de favoritos em qualquer dispositivo.
230.000 €
1 Quartos
Área bruta : 96 m²
Procura um projeto para criar a casa dos seus sonhos? Esta é a oportunidade ideal! Moradia T1 geminada em ruína, com grande potencial de recuperação, localizada numa rua sem saída, garantindo tranquilidade e privacidade, mas perto de todos os serviços essenciais. A imagem exterior contempla as duas moradias geminadas, as quais são vendidas em separado ou em conjunto, mas cada uma com o preço de 230 mil euros. A moradia tem terreno à frente, dando possibilidade de realizar espaço de estacionamento e zona de lazer. Distribuição do imóvel: Rés-do-chão: Sala Cozinha 1º Andar: 1 Quarto Casa de Banho Corredor Sala ou outro quarto como preferir Ideal para habitação própria, casa de fim de semana ou investimento. Desfrute da tranquilidade de uma zona calma, longe da confusão da cidade, mas com comércio, serviços e acessos nas proximidades. Uma excelente oportunidade para quem valoriza localização e potencial de valorização! Para mais informações ou agendar visita, entre em contacto.
AMI: 12570
Ref. Externa: HH_2767MD26
Id: 1680770
Inicie sessão para guardar este imóvel e aceder à sua lista de favoritos em qualquer dispositivo.
230.000 €
2 Quartos
Área bruta : 91 m²
Procura um projeto para criar a casa dos seus sonhos? Esta é a oportunidade ideal! Moradia T2 geminada em ruína, com grande potencial de recuperação, localizada numa rua sem saída, garantindo tranquilidade e privacidade, mas perto de todos os serviços essenciais. A imagem exterior contempla as duas moradias geminadas, as quais são vendidas em separado ou em conjunto, mas cada uma com o preço de 230 mil euros. A moradia possui terreno à frente para poder idealizar espaço de estacionamento e lazer na sua propriedade. Distribuição do imóvel: Rés-do-chão: Sala Cozinha Casa de Banho 1º Andar com acesso exterior Sala Quarto Casa de Banho Pequena cozinha Corredor Ideal para habitação própria, casa de fim de semana ou investimento. Desfrute da tranquilidade de uma zona calma, longe da confusão da cidade, mas com comércio, serviços e acessos nas proximidades. Uma excelente oportunidade para quem valoriza localização e potencial de valorização! Para mais informações ou agendar visita, entre em contacto.
AMI: 12570
Ref. Externa: HH_2768MD26
Id: 1680769
Inicie sessão para guardar este imóvel e aceder à sua lista de favoritos em qualquer dispositivo.
Estes agentes são especialistas nesta zona:
Inicie sessão para ocultar este imóvel das suas pesquisas e manter a sua lista de resultados organizada.
© Copyright 2023 | CASACERTA. All rights reserved
Guardar favoritos
Este imóvel foi guardados nos seus favoritos com sucesso.
Para poder guardar pesquisa deverá ter a sua sessão iniciada.
Caso não tenha uma conta, deverá criar uma.
A sua pesquisa foi guardada com sucesso!
Este site utiliza cookies. Ao navegar no site estará a consentir a sua utilização.
Para mais informações sobre os cookies pode consultar a
política de privacidade.