Lista
Comprar
Arrendar
3 Quartos
Área bruta : 113 m²
Apresentamos esta ampla moradia T3 de dois pisos, situada no lugar da Ribeira do Nabo, na freguesia da Urzelina, uma das zonas mais procuradas e valorizadas da ilha de São Jorge.Construída em alvenaria de pedra típica da ilha, a propriedade foi totalmente reconstruída respeitando a traça regional das habitações açorianas, preservando o charme e a autenticidade da arquitetura tradicional, aliada ao conforto moderno.No piso superior, encontra uma cozinha e sala em conceito open space, que proporciona luminosidade e um ambiente acolhedor, duas casas de banho e dois quartos de cama. Do pátio deste piso, é possível deslumbrar-se com a vista para o mar e para a vizinha ilha do Pico, um cenário único que valoriza ainda mais esta propriedade.O rés do chão oferece um espaço adicional, composto por um quarto de cama, sala e kitchenette em open space e uma casa de banho, ideal para alojar visitas, criar uma área independente para familiares ou até rentabilizar como alojamento local.No exterior, a moradia dispõe de uma zona de convívio equipada com cozinha e churrasqueira, perfeita para reunir família e amigos, além de um duche, uma casa de banho de apoio e uma lavandaria, proporcionando total comodidade para momentos ao ar livre.Combinando tradição, funcionalidade, vistas deslumbrantes e excelente aproveitamento dos espaços, esta moradia é uma oportunidade única para quem procura uma casa de caráter, pronta a habitar e com grande potencial de lazer e rentabilidade na ilha de São Jorge.Agende já a sua visita e venha conhecer esta oportunidade exclusiva!Predimed Imobiliária, Mediação Imobiliária, Lda.Avenida Brasil 43, 12º Andar, 1700-062 LisboaLicença AMI nº 22503Pessoa Coletiva nº 517 239 345Seguro Responsabilidade Civil: Nº de Apólice RC65379424 Fidelidade Características: Anexos;Estacionamento Ar-Livre;Muro;Telheiro;Terraço;Terraço Coberto;Vedação;Churrasqueira;Varanda;Internet fibra;Barbecue;Cozinha equipada;Fogão Eléctrico;Frigorífico;Kitchenette;Lençóis e Toalhas;Ligação Wi-Fi;Máquina de Lavar Roupa;Microondas;Poliban;Portão Manual;Termoacumulador;Vidros Duplos;Aeroporto;Escola;Espaços Verdes;Farmácia;Mercado;Orientação Solar;Vista para Campo;Vista para Mar;Vista para Montanha;Água;Animais Permitidos;Equipamento de Cozinha;Iluminação Pública;Internet Disponível;Luz;Telefone;TV por Cabo Disponível
AMI: 13558
Ref. Externa: 055383
Id: 1383806
Inicie sessão para guardar este imóvel e aceder à sua lista de favoritos em qualquer dispositivo.
1 Quartos
1 WCs
Área bruta : 110 m²
Oportunidade única de investimento na freguesia da Urzelina, uma das zonas mais procuradas da ilha de São Jorge, Açores. Esta propriedade apresenta-se como um excelente projeto de reabilitação, ideal para criar a sua casa de sonho ou desenvolver uma unidade de turismo rural.A habitação distribui-se em dois pisos: no piso superior, encontram-se uma cozinha, uma casa de banho e um quarto de cama. O piso inferior é atualmente destinado a zona de arrumos, oferecendo múltiplas possibilidades de aproveitamento e reorganização do espaço.No exterior, a propriedade dispõe de um amplo quintal com cerca de 1.000 m², perfeito para jardim, horta, área de lazer ou até para futuras expansões da área habitacional, sempre respeitando as características típicas da região.Inserida numa zona tranquila, mas com bons acessos, esta propriedade alia privacidade, espaço e potencial, sendo uma oportunidade imperdível para quem valoriza a autenticidade e a beleza natural dos Açores.Predimed Imobiliária, Mediação Imobiliária, Lda.Avenida Brasil 43, 12º Andar, 1700-062 LisboaLicença AMI nº 22503Pessoa Coletiva nº 517 239 345Seguro Responsabilidade Civil: Nº de Apólice RC65379424 Fidelidade Características: Estacionamento Ar-Livre;Muro;Internet fibra;Horta-Jardim;Aeroporto;Escola;Espaços Verdes;Farmácia;Mercado;Orientação Solar;Terreno;Vista para Campo;Vista para Jardim;Vista para Mar;Vista para Montanha;Água;Animais Permitidos;Iluminação Pública;Internet Disponível;Luz;Telefone
AMI: 13558
Ref. Externa: 054884
Id: 1354242
Inicie sessão para guardar este imóvel e aceder à sua lista de favoritos em qualquer dispositivo.
2 Quartos
1 WCs
Área útil : 40 m²
Está à procura de um imóvel com a sua construção já iniciada e já preparado a desenvolver um projeto seu numa zona balnear e com um excelente terreno frutícola no seu espaço envolvente?? Tenho um excelente espaço para si na procurada zona da Urzelina! A construção desta moradia foi iniciada há cerca de dez anos e para que se confirme o seu espaço a habitar só faltam os normais acabamentos... Aqui, neste ponto, cada um tem os seus gostos e preferências próprios de um local que será seu e o frequentará regularmente e deverá encher os seus olhos de satisfação. Temos neste espaço uma sólida construção que não teve a sua continuidade por os seus proprietários terem noutro espaço a sua habitação principal e aqui só virem passar uns momentos de convívio e diversão com os amigos, numas jantaradas e almoços de convívio. Os proprietários desta moradia aproveitam o facto dela ficar numa excelente zona de cultivo de frutas para terem uma grande diversidade de frutos típicos da região, como a laranja, a tangerina, a mandarina, as nêsperas entre outros frutos como as tão típicas e produtivas videiras na Urzelina. QUEM SOMOS NÓS (IAD)? A iad (imobiliária ao domicílio) é uma rede de consultores imobiliários independentes assente num modelo plenamente inovador que vem romper com o conceito tradicional de agência imobiliária. O que procura o cliente do século XXI quando decide comprar, arrendar ou vender um imóvel? Procura um serviço completo, descomplicado e competitivo. É isso que lhe propomos na iad. Não temos lojas, os nossos consultores vão ao seu encontro, tendo acesso à mais recente formação do setor e a uma plataforma de ferramentas exclusivas que lhes permite prestar-lhe o melhor serviço onde quer que esteja. Damos aos nossos consultores a flexibilidade e a autonomia necessárias para lhe garantir um acompanhamento personalizado na concretização do seu projeto, seja ele de comprar, arrendar ou vender um imóvel. Na iad encontra um consultor imobiliário à sua medida. Com o serviço da IAD terá toda a disponibilidade do seu representante para recuperar a casa em todas as ações necessárias para reparação e obras na mesma. Caso não esteja a viver na ilha ou mesmo na ilha, mas ocupado, encarregamo-nos deste tipo de situações para o conforto do cliente. #ref: 145964
AMI: 11220
Ref. Externa: 145964
Id: 1282419
Inicie sessão para guardar este imóvel e aceder à sua lista de favoritos em qualquer dispositivo.
3 Quartos
2 WCs
Área bruta : 305 m²
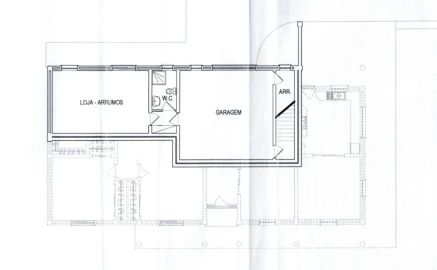
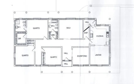
Apresentamos uma distinta propriedade localizada na pitoresca freguesia da Urzelina, na belíssima ilha de São Jorge, Açores. Esta moradia de dois pisos, com 305 m² de área bruta de construção, está implantada num generoso lote de 3.758 m², oferecendo conforto, funcionalidade e um ambiente natural verdadeiramente privilegiado.No rés do chão, encontra-se a zona social principal, desenvolvida em conceito open space, que integra harmoniosamente a cozinha e a sala de estar, criando um ambiente moderno, acolhedor e funcional. Este piso dispõe ainda de uma sala de jantar independente, ideal para ocasiões especiais, uma casa de banho completa, uma lavandaria, um quarto de cama e uma garagem fechada com capacidade para dois veículos.O piso superior acolhe os restantes dois quartos de cama, uma segunda casa de banho e uma sala de estar adicional, que oferece um espaço confortável e reservado para momentos de relaxamento, leitura ou convívio mais íntimo — com excelente luminosidade natural e vistas desafogadas sobre o exterior da propriedade.No exterior, a moradia é envolvida por um amplo jardim paisagístico, ideal para lazer ao ar livre, e por um extenso terreno com árvores de fruto, que permite usufruir de uma vivência rural tranquila e com grande potencial de aproveitamento.Esta é uma oportunidade única para quem procura uma residência de qualidade superior nos Açores — seja como habitação permanente, casa de férias ou investimento imobiliário diferenciado. A localização tranquila, aliada à amplitude dos espaços e à envolvente natural, fazem desta propriedade uma escolha verdadeiramente exclusiva.Predimed Imobiliária, Mediação Imobiliária, Lda.Avenida Brasil 43, 12º Andar, 1700-062 LisboaLicença AMI nº 22503Pessoa Coletiva nº 517 239 345Seguro Responsabilidade Civil: Nº de Apólice RC65379424 Fidelidade Características: Acesso para Deficientes;Estacionamento Ar-Livre;Garagem;Jardim;Muro;Terraço;Parqueamento;Churrasqueira;Varanda;Despensa;Internet fibra;Horta-Jardim;Banheira;Banheira com Hidromassagem;Barbecue;Combinado;Cozinha equipada;Exaustor;Fogão;Frigorífico;Gás Botija;Ligação Wi-Fi;Máquina de Lavar Roupa;Microondas;Mobilado;Poliban;Roupeiros;Termoacumulador;Aeroporto;Árvores de Frutos;Espaços Verdes;Mercado;Orientação Solar;Terreno;Vista para Jardim;Vista para Mar;Vista para Montanha;Animais Permitidos;Equipamento de Cozinha;Iluminação Pública;Internet Disponível;Luz
AMI: 13558
Ref. Externa: 053453
Id: 1257475
Inicie sessão para guardar este imóvel e aceder à sua lista de favoritos em qualquer dispositivo.
4 Quartos
3 WCs
Área bruta : 350 m²
**Moradia Independente na Ribeira do Nabo, Urzelina**Descobre o teu refúgio perfeito na encantadora freguesia da Urzelina! Esta magnífica moradia independente oferece uma combinação única de conforto e beleza natural. Com 400 m² de área bruta, a casa dispõe de quatro quartos espaçosos, incluindo uma suíte elegante, ideal para proporcionar o máximo de conforto e privacidade. A cozinha moderna e a sala de estar acolhedora são perfeitas para momentos em família.A propriedade destaca-se pela sua localização privilegiada, oferecendo uma vista deslumbrante para as ilhas do Pico e do Faial. O extenso quintal de 6000 m² inclui um jardim amplo, piscina refrescante e uma área de churrasqueira, ideal para desfrutar dos dias ensolarados. A garagem espaçosa e a arrecadação oferecem soluções práticas de armazenamento.Construída em 2001 e em bom estado, esta moradia está orientada a sul, garantindo luz natural abundante. A proximidade à vila das Velas, ao aeroporto e à paragem de autocarro torna esta localização ainda mais conveniente. Não percas a oportunidade de viver num cenário paradisíaco com todas as comodidades modernas!Certificação Energética: Dispensado da indicação da classe energética aquando da publicação para venda ou locação, ao abrigo do artigo 4.º do Decreto Legislativo Regional n.º4/2016/A, de 2 de Fevereiro.Predimed Imobiliária, Mediação Imobiliária, Lda.Avenida Brasil 43, 12º Andar, 1700-062 LisboaLicença AMI nº 22503Pessoa Coletiva nº 517 239 345Seguro Responsabilidade Civil: Nº de Apólice RC65379424 Fidelidade
AMI: 13558
Ref. Externa: 043669
Id: 661145
Inicie sessão para guardar este imóvel e aceder à sua lista de favoritos em qualquer dispositivo.
Este agente é especialista nesta zona:
Inicie sessão para ocultar este imóvel das suas pesquisas e manter a sua lista de resultados organizada.
Guardar favoritos
Este imóvel foi guardados nos seus favoritos com sucesso.
Para poder guardar pesquisa deverá ter a sua sessão iniciada.
Caso não tenha uma conta, deverá criar uma.
A sua pesquisa foi guardada com sucesso!
© Copyright 2023 | CASACERTA. All rights reserved
Este site utiliza cookies. Ao navegar no site estará a consentir a sua utilização.
Para mais informações sobre os cookies pode consultar a
política de privacidade.