Filtros
0 · 12 resultados4 Quartos
4 WCs
Área bruta : 318 m²
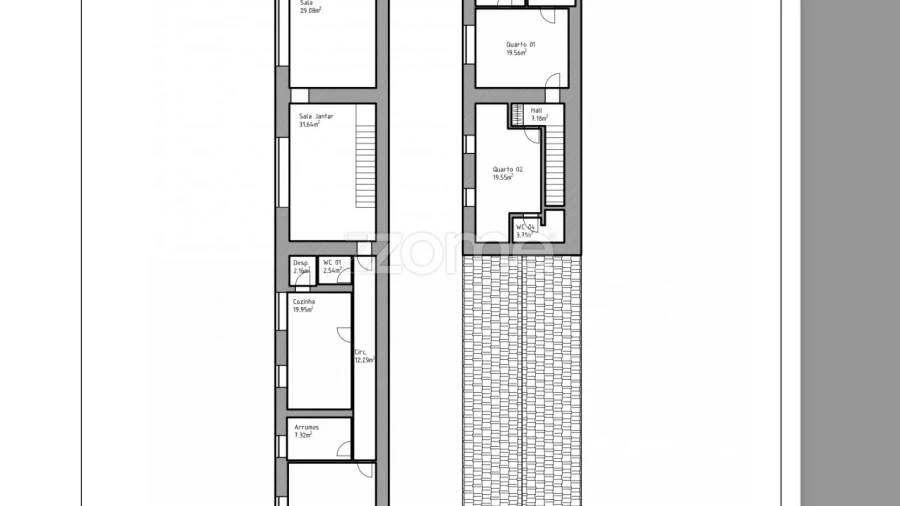
Apresentamos uma excelente moradia T4 situada em Vila Nova da Telha, a apenas 200 metros da estação de metro do Lidador. Com três frentes e uma área bruta de construção de 318 m², esta propriedade destacase pela localização privilegiada, próxima do Aeroporto, escolas, comércio, serviços e de um centro comercial. A moradia distribui-se por três pisos cave, résdochão e primeiro andar oferecendo uma organização funcional e amplos espaços. Características principais -Exterior e garagem Garagem com capacidade para dois carros Espaço exterior para estacionamento adicional de dois a três veículos Lavandaria, anexos, pátio e jardim -Résdochão Cozinha totalmente equipada (máquina de lavar louça, frigorífico, fogão, forno micro-ondas), todos os equipamentos em estado de novo Sala de estar e sala de jantar Hall de entrada Casa de banho com poliban -Primeiro andar Quatro quartos, incluindo uma suite Casa de banho completa de grandes dimensões para apoio aos restantes quartos Roupeiros embutidos em todos os quartos -Cave Ampla área multiusos Casa de banho adicional A moradia está equipada com ar condicionado, garantindo conforto durante todo o ano. Trata-se de uma oportunidade única para quem procura uma casa pronta a habitar, com excelentes áreas e inserida numa das zonas mais valorizadas de Vila Nova da Telha. ------------------------------------------------------------------------------------------------------------------------- We present a spacious 4bedroom villa for sale in Vila Nova da Telha, just 200 meters from the Lidador metro station. With three fronts and a total construction area of 318 m², this property stands out for its privileged location, close to the Airport, schools, shops, services, and a shopping center. The house is distributed across three floors basement, ground floor, and first floor offering generous areas and a functional layout. Main Features Exterior and Garage Garage for two cars Additional outdoor parking space for two to three vehicles Laundry room, annexes, patio, and garden Ground Floor Fully equipped kitchen (dishwasher, refrigerator, stove, microwave oven), all appliances in likenew condition Living room and dining room Entrance hall Bathroom with shower First Floor Four bedrooms, including one suite Large full bathroom supporting the remaining bedrooms Builtin wardrobes in all bedrooms Basement Large multipurpose area Additional bathroom The property is equipped with air conditioning, ensuring yearround comfort. This is an excellent opportunity for those seeking a moveinready home in one of the most desirable areas of Vila Nova da Telha.
AMI: 11100
Ref. Externa: 2500
Id: 1819901
Inicie sessão para guardar este imóvel e aceder à sua lista de favoritos em qualquer dispositivo.
3 Quartos
Área bruta : 250 m²
CONSTRUÇÃO NOVA ( Modular ) T3 Vila Nova da Telha, Maia Localizada em frente ao METRO do LIDADOR. 1 PISO Hall entrada; 1WC serviço; Sala de estar generosa; Cozinha equipada; zona lavandaria; 2PISO Hall generoso; 3 quartos; 1 suíte; 2WC’s completos; varandas em todos os quartos, roupeiros embutidos; EQUIPAMENTOS. cozinha totalmente equipada; vidros duplos; pré instalação AC em todas as divisões; painel solar aquecimento de águas; salamandra; estores elétricos; tomada exterior carro elétrico; alpendre exterior para 2 carros; garantia de construção.
AMI: 18833
Ref. Externa: DSVNGDOUROCS51
Id: 1796222
Inicie sessão para guardar este imóvel e aceder à sua lista de favoritos em qualquer dispositivo.
1.100.000 €
4 Quartos
3 WCs
Área útil : 167 m²
??????? ?????????? ???? ???? ???? ?? ????? Modernidade, conforto, inovação, charme, elegância, são algumas das qualidades que pode encontrar nesta moradia de linhas modernas disponível para venda. Ideal para quem procura um lugar calmo e sossegado, sem movimento citadino, mas que não deixa de ser central. É um projeto de arquitetura que foi desenvolvido pela Big Arquitetos, sediada no Porto. Lote de terreno 518m2. Moradia composta por dois pisos. R/C - área social: - Cozinha e Sala em OpenSpace com acesso direto ao exterior onde se encontra a piscina e uma área de lazer; - 1 escritório (com closet pensado para caso necessário transformar num quarto); - 1 Casa de Banho completa; - Lavandaria; - Garagem para 2 carros; No 1•piso: - 1 suite com closet; - 1 suite; - 1 quarto; - Todos os quartos têm acesso a varandas com dimensões muito boas; A moradia está toda murada, o espaço envolvente é circundante a toda a volta da moradia. Local sossegado e de moradias, muito próximo a transportes públicos. Localização: Rua António Costa e Silva, Vila Nova da Telha, Maia
AMI: 8780
Ref. Externa: 07
Id: 1778005
Inicie sessão para guardar este imóvel e aceder à sua lista de favoritos em qualquer dispositivo.
4 Quartos
7 WCs
Área bruta : 441 m²
Moradia próxima ao Aeroporto e estação de metro de Moreira da Maia. Fantástica moradia de quatro suites, grande salão na cave com WC e recuperador de calor. Áreas generosas e espaços open space são uma das mais valias desta espetacular moradia. Uma construção de referência e acabamentos do mais alto padrão, fazem desta habitação um espaço para viver com a qualidade que Vc merece!! Na área circundante desta habitação poderá encontrar os mais variados serviços e comércio assim como o Metro e transportes públicos. Proximidade ao Aeroporto e óptimos acessos as vias como a N13, N107, A41, IC24, IC1, A28 . Agende a sua visita e surpreenda-se com esta que será certamente a moradia que sempre sonhou para viver!! Fantastic villa with four suites, large lounge in the basement with WC and stove. Generous areas and open space are one of the assets of this spectacular villa. A construction of reference and finishes of the highest standard, make this house a place to live with the quality you deserve !!
AMI: 15121
Ref. Externa: 0525
Id: 1771339
Inicie sessão para guardar este imóvel e aceder à sua lista de favoritos em qualquer dispositivo.
4 Quartos
2 WCs
Área bruta : 234 m²
Identificação do imóvel: ZMPT587326Distribuída por três pisos, esta moradia oferece uma organização prática e equilibrada.Cave:Open space com múltiplas possibilidades de utilização - já equipada com balcão de bar ideal para criar uma zona de convívio, lazer ou até um espaço de entretenimento.Piso 0:CozinhaSalaCasa de banho completaMarquiseLigação ao exteriorA área social desenvolve-se de forma fluida, com cozinha, sala, WC completo e ligação direta ao exterior, criando uma relação natural entre o interior e o espaço exterior, perfeita para momentos em família ou com amigos.Piso 1:4 QuartosCasa de banho completaO piso superior é dedicado à zona privada, com 4 quartos e um WC completo, garantindo conforto e privacidade para toda a família.Exterior:Garagem para 2 carrosLogradouro com churrasqueira e forno a lenhaPequeno terreno para cultivoNo exterior, a moradia destaca-se pela sua versatilidade: garagem para 2 carros, churrasqueira, forno a lenha e um pequeno terreno de cultivo, ideal para quem valoriza momentos ao ar livre, seja em lazer ou numa vertente mais prática. Uma solução completa para quem procura espaço, conforto e qualidade de vida.Localizada em Vila Nova da Telha, esta moradia beneficia de excelentes acessos às principais vias rodoviárias, permitindo ligações rápidas à Maia, Matosinhos e Porto. Conta ainda com proximidade a transportes públicos, incluindo metro e autocarros. Na envolvente, dispõe de serviços essenciais como supermercados, farmácias, comércio local e escolas, garantindo total conveniência no dia a dia.3 razões para comprar com a Zome+ acompanhamentoCom uma preparação e experiência única no mercado imobiliário, os consultores Zome põem toda a sua dedicação em dar-lhe o melhor acompanhamento, orientando-o com a máxima confiança, na direção certa das suas necessidades e ambições.Daqui para a frente, vamos criar uma relação próxima e escutar com atenção as suas expectativas, porque a nossa prioridade é a sua felicidade! Porque é importante que sinta que está acompanhado, e que estamos consigo sempre.+ simplesOs consultores Zome têm uma formação única no mercado, ancorada na partilha de experiência prática entre profissionais e fortalecida pelo conhecimento de neurociência aplicada que lhes permite simplificar e tornar mais eficaz a sua experiência imobiliária.Deixe para trás os pesadelos burocráticos porque na Zome encontra o apoio total de uma equipa experiente e multidisciplinar que lhe dá suporte prático em todos os aspetos fundamentais, para que a sua experiência imobiliária supere as expectativas.+ felizO nosso maior valor é entregar-lhe felicidade!Liberte-se de preocupações e ganhe o tempo de qualidade que necessita para se dedicar ao que lhe faz mais feliz.Agimos diariamente para trazer mais valor à sua vida com o aconselhamento fiável de que precisa para, juntos, conseguirmos atingir os melhores resultados.Com a Zome nunca vai estar perdido ou desacompanhado e encontrará algo que não tem preço: a sua máxima tranquilidade!É assim que se vai sentir ao longo de toda a experiência: Tranquilo, seguro, confortável e... FELIZ!Notas:1. Caso seja um consultor imobiliário, este imóvel está disponível para partilha de negócio. Não hesite em apresentar aos seus clientes compradores e fale connosco para agendar a sua visita.2. Para maior facilidade na identificação deste imóvel, por favor, refira o respetivo ID ZMPT ou o respetivo agente que lhe tenha enviado a sugestão.
AMI: 17432
Ref. Externa: ZMPT587326
Id: 1768533
Inicie sessão para guardar este imóvel e aceder à sua lista de favoritos em qualquer dispositivo.
3 Quartos
2 WCs
Área bruta : 177 m²
MORADIA T3 COM SUITE E GARAGEM FECHADA (BOX), NA MAIA Localização e envolvente: Localização em zona habitacional unifamiliar, calma, na Urbanização do Lidador, Vila Nova da Telha, Maia. Fácil acesso/distribuição automóvel e pedonal. Próximo de escolas, metro e principais acessos. Principais características: - 2 pisos - 3 frentes (orientação solar nascente/sul/poente) - suite - garagem fechada (box) HABITAÇÃO Piso 0 (Zona social): - átrio de entrada (10,50m2) - instalação sanitária de serviço (2,00m2) com sanita e lavatório com móvel inferior - cozinha (10,00m2) equipada com forno (WHIRLPOOL), placa (WHIRLPOOL), microondas (WHIRLPOOL), exaustor, máquina de lavar louça (WHIRLPOOL) e frigorífico (SAMSUNG), com acesso ao logradouro - sala comum (34,00m2) com lareira, com acesso ao logradouro Piso 1 Zona privada: - átrio de distribuição - instalação sanitária (4,20m2) de apoio aos quartos com sanita, bidé, lavatório com móvel inferior e poliban - quarto (12,00m2) com armário embutido - quarto (12,00m2) com armário embutido - suite (15,00m2) com armário embutido e instalação sanitária (4,60m2) com sanita, bidé, lavatório com móvel inferior e banheira Outras características e valências: - zona social com pavimento cerâmico - zona privada com pavimento em soalho flutuante - instalações sanitárias com pavimento e revestimento cerâmico - instalação sanitária de apoio aos quartos com iluminação e ventilação natural - instalação sanitária da suite com iluminação e ventilação natural - caixilharias em alumínio duplas com vidros simples - videoporteiro Pontos de interesse: - a 88m da Escola Básica do Lidador - a 230m de uma farmácia - a 850m do ALDI - a 900m do Parque de Quires - a 950m do Intermarché - a 950m do Mira Maia Shopping - a 1,1km da Escola Básica e Secundária Dr. Vieira de Carvalho - a 1,2km do Pavilhão Municipal de Moreira da Maia - a 1,1km de uma abastecedora de combustíveis - a 1,1km do Mercadona - a 1,2km do LIDL - a 1,3km do Pingo Doce - a 1,3km do Mosteiro de Moreira - a 1,3km do Parque Urbano de Moreira - a 1,3km a Unidade de Saúde Familiar de Pedras Rubras Transportes e acessos: - a 120m da paragem de autocarros (STCP) - a 700m do metro (Estação – Pedras Rubras) - a 900m do metro (Estação – Lidador) - a 1,3km da N13 - a 2,3km do Aeroporto Francisco Sá Carneiro - a 2,4km da A41 - a 4,7km da N14 - a 4,8km da VRI - a 7,0km da A4 - a 7,5km da A28 - a 9,5km da A3 - a 10,5km da VCI Áreas (de acordo com a Caderneta Predial Urbana): - Área total do terreno: 231,00 m2 - Área de implantação do edifício: 111,00 m2 - Área bruta de construção: 177,00 m2 - Área bruta dependente: 45,00 m2 - Área bruta privativa: 132,00 m2 Outros valores: - IMI: 310,00€ (anual) Nota: para maior facilidade na identificação deste imóvel, por favor, refira o respectivo ID. Em caso de agendamento de visita, faça-se acompanhar de um documento de identificação. Muito obrigado! ***** ;ID RE/MAX: 126401038-248
AMI: 7772
Ref. Externa: 126401038-248
Id: 1595307
Inicie sessão para guardar este imóvel e aceder à sua lista de favoritos em qualquer dispositivo.
Profissionais que conhecem esta zona a fundo — contacte-os para uma avaliação personalizada.
4 Quartos
4 WCs
Área bruta : 185 m²
Identificação do imóvel: ZMPT583859Excelente moradia T4, com 271.45m2 (187.75m2 área privativa+85.70m2 área dependente), localizada em Vila Nova da Telha – Maia, Urbanização Lidador, inserida numa zona residencial calma, com óptima acessibilidade e proximidade a todo o tipo de serviços.A moradia dispõe de três frentes, garantindo excelente exposição solar e luminosidade natural em todas as divisões. Com áreas amplas e bem distribuídas, é ideal para quem procura conforto, funcionalidade e qualidade de vida.Conta com 4 wc´s (duas suites), proporcionando maior privacidade e comodidade, bem como quartos espaçosos e zonas sociais agradáveis. Está equipada com lareira e aquecimento central, assegurando conforto térmico durante todo o ano.Aspiração central.Inclui ainda garagem box com 44m2, oferecendo segurança no estacionamento e espaço adicional para arrumação.A moradia é distribuída da seguinte forma:Piso -1: Garagem box 44m2Piso 0: Entrada, sala, cozinha, wc, terraço, lavandariaPiso 1: 4 Quartos (2Suites)+ 1 WcLocalização e envolvente: Metro a cerca de 7 minutos a pé Escolas a aproximadamente 5 minutos a pé Escola Básica de 1º CEB /JI do Lidador4 minutos da Escola Básica e Secundária Dr. Vieira de Carvalho Comércio e serviços (supermercados, farmácias, restauração) a curta distância pedonal5 minutos dos Supermercados: Mercadona, Lidl, Pingo Doce3 minutos do Supermercado Intermarche4 minutos do Centro Comercial "Mira Maia" Bons acessos às principais vias rodoviárias e 6 minutos ao Aeroporto Francisco Sá CarneiroUma excelente oportunidade para habitação própria ou investimento, numa zona em crescente valorização.3 razões para comprar com a Zome+ acompanhamentoCom uma preparação e experiência única no mercado imobiliário, os consultores Zome põem toda a sua dedicação em dar-lhe o melhor acompanhamento, orientando-o com a máxima confiança, na direção certa das suas necessidades e ambições.Daqui para a frente, vamos criar uma relação próxima e escutar com atenção as suas expectativas, porque a nossa prioridade é a sua felicidade! Porque é importante que sinta que está acompanhado, e que estamos consigo sempre.+ simplesOs consultores Zome têm uma formação única no mercado, ancorada na partilha de experiência prática entre profissionais e fortalecida pelo conhecimento de neurociência aplicada que lhes permite simplificar e tornar mais eficaz a sua experiência imobiliária.Deixe para trás os pesadelos burocráticos porque na Zome encontra o apoio total de uma equipa experiente e multidisciplinar que lhe dá suporte prático em todos os aspetos fundamentais, para que a sua experiência imobiliária supere as expectativas.+ felizO nosso maior valor é entregar-lhe felicidade!Liberte-se de preocupações e ganhe o tempo de qualidade que necessita para se dedicar ao que lhe faz mais feliz.Agimos diariamente para trazer mais valor à sua vida com o aconselhamento fiável de que precisa para, juntos, conseguirmos atingir os melhores resultados.Com a Zome nunca vai estar perdido ou desacompanhado e encontrará algo que não tem preço: a sua máxima tranquilidade!É assim que se vai sentir ao longo de toda a experiência: Tranquilo, seguro, confortável e... FELIZ!Notas:1. Caso seja um consultor imobiliário, este imóvel está disponível para partilha de negócio. Não hesite em apresentar aos seus clientes compradores e fale connosco para agendar a sua visita.2. Para maior facilidade na identificação deste imóvel, por favor, refira o respetivo ID ZMPT ou o respetivo agente que lhe tenha enviado a sugestão.
AMI: 17432
Ref. Externa: ZMPT583859
Id: 1567765
Inicie sessão para guardar este imóvel e aceder à sua lista de favoritos em qualquer dispositivo.
1.100.000 €
4 Quartos
3 WCs
Área bruta : 279 m²
Moradia T4 localizada na cidade movimentada da Maia. Com 4 quartos e 3 casas de banho, esta propriedade bem concebida e nova está agora disponível para venda. Com uma área total de 518m2 de terreno e 279,8m2 de área bruta, esta vila moderna oferece um ambiente espaçoso e confortável para a sua família. Construída em 2025, esta propriedade está equipada com uma piscina privada, garagem, jardim bem cuidado e ar condicionado por conduta. Os armários embutidos, vidros duplos e estores elétricos são apenas algumas das comodidades oferecidas nesta elegante moradia. Além disso, a orientação solar sul proporciona uma abundância de luz natural, enquanto a lareira fechada mantém o ambiente acolhedor durante os meses mais frios. Localizada numa zona tranquila, mas central, esta propriedade beneficia de uma localização conveniente, com fácil acesso a uma variedade de comodidades. A proximidade do aeroporto, praia, lojas, restaurantes, hospitais e transportes públicos torna esta propriedade ideal para aqueles que procuram conveniência e estilo de vida ativo. Ao explorar os arredores, descobrirá uma infinidade de opções à sua porta. Desde parques encantadores e escolas locais até farmácias e restaurantes populares, Maia oferece uma variedade de opções para todos os gostos. Com uma vasta gama de comodidades a uma curta distância, esta moradia é o local perfeito para aqueles que procuram uma vida urbana com um toque de tranquilidade. Não perca a oportunidade de possuir esta incrível propriedade numa das cidades mais dinâmicas do norte de Portugal. Marque já a sua visita e faça desta vila o seu novo lar.
AMI: 14355
Ref. Externa: MM118P/25MAI/PS
Id: 1507262
Inicie sessão para guardar este imóvel e aceder à sua lista de favoritos em qualquer dispositivo.
4 Quartos
7 WCs
Área bruta : 441 m²
Moradia V4 nova com: - 04 suítes; - Todos os quartos com varanda; - WC de serviço; - sala com recuperador de calor; - piso flutuante especial com madeira; - toda a carpintaria da casa em madeira lacada; - isolamento térmico e acústico; - revestimento externo em capoto; - aspiração central; - caixilharia de alumínio com vidros duplos; - pré-instalação de ar condicionado; - pré-instalação de painel solar; - estores eléctricos; - cave com 110m2 e WC, recuperador de calor e acessos interno e externo; - anexos no logradouro com wc; - lavandaria; - churrasqueira; - garagem fechada para 02 carros; - todas as dependências com luz directa; - portas até o tecto com fechaduras magnéticas; - exposição solar nascente/sul/poente Zona com estação de metro, comércio e serviços a poucos minutos do aeroporto.
AMI: 15121
Ref. Externa: VV_0525
Id: 1301004
Inicie sessão para guardar este imóvel e aceder à sua lista de favoritos em qualquer dispositivo.
1.200.000 €
3 Quartos
4 WCs
Área bruta : 196 m²
Identificação do imóvel: ZMPT576213Moradia distribuída por 2 pisos, inserida num terreno de 1300m², com piscina e uma segunda moradia senhorial para reabilitar, oferecendo imenso potencial e privacidade.Moradia Principal- Rés-do-chão:- Hall de entrada- Sala de estar ampla e luminosa- Sala de jantar- 2 casas de banho de serviço- Cozinha totalmente equipada e mobilada com ilha (inclui placa, forno, exaustor, frigorífico combinado emáquina de lavar a loiça)- Lavandaria- Quarto> Todas as divisões com acesso direto ao jardim.1º Andar:- Master suíte com casa de banho completa e closet;- Segunda suíte com casa de banho privativa (base de duche);- Garagem fechada para 2 carros:No mesmo terreno temos uma moradia Senhorial para reabilitar construção anterior a 1951, com:- 3 pisos- 4 frentes- Excelente exposição solar- Potencial para reabilitação para habitação, alojamento local ou outro projeto personalizado;Este imóvel é ideal para quem procura viver com qualidade, privacidade, espaço e possibilidade de investimento futuro.Distâncias aproximadas- Aeroporto Francisco Sá Carneiro (OPO): cerca de 6 km, aproximadamente 10 minutos de carro.- A28 (autoestrada): aproximadamente 3 km até ao nó de Perafita, que liga à A28, facilitando o acesso ao litoral norte e ao interior.- Centro da Maia: cerca de 5 km, cerca de 10 minutos de carro.- Via de Cintura Interna (VCI): aproximadamente 8 km, com acesso rápido através da A41 ou A28.3 razões para comprar com a Zome+ acompanhamentoCom uma preparação e experiência única no mercado imobiliário, os consultores Zome põem toda a sua dedicação em dar-lhe o melhor acompanhamento, orientando-o com a máxima confiança, na direção certa das suas necessidades e ambições.Daqui para a frente, vamos criar uma relação próxima e escutar com atenção as suas expectativas, porque a nossa prioridade é a sua felicidade! Porque é importante que sinta que está acompanhado, e que estamos consigo sempre.+ simplesOs consultores Zome têm uma formação única no mercado, ancorada na partilha de experiência prática entre profissionais e fortalecida pelo conhecimento de neurociência aplicada que lhes permite simplificar e tornar mais eficaz a sua experiência imobiliária.Deixe para trás os pesadelos burocráticos porque na Zome encontra o apoio total de uma equipa experiente e multidisciplinar que lhe dá suporte prático em todos os aspetos fundamentais, para que a sua experiência imobiliária supere as expectativas.+ felizO nosso maior valor é entregar-lhe felicidade!Liberte-se de preocupações e ganhe o tempo de qualidade que necessita para se dedicar ao que lhe faz mais feliz.Agimos diariamente para trazer mais valor à sua vida com o aconselhamento fiável de que precisa para, juntos, conseguirmos atingir os melhores resultados.Com a Zome nunca vai estar perdido ou desacompanhado e encontrará algo que não tem preço: a sua máxima tranquilidade!É assim que se vai sentir ao longo de toda a experiência: Tranquilo, seguro, confortável e... FELIZ!Notas:1. Caso seja um consultor imobiliário, este imóvel está disponível para partilha de negócio. Não hesite em apresentar aos seus clientes compradores e fale connosco para agendar a sua visita.2. Para maior facilidade na identificação deste imóvel, por favor, refira o respetivo ID ZMPT ou o respetivo agente que lhe tenha enviado a sugestão.
AMI: 17432
Ref. Externa: ZMPT576213
Id: 1171535
Inicie sessão para guardar este imóvel e aceder à sua lista de favoritos em qualquer dispositivo.
4 Quartos
Área bruta : 360 m²
Moradia T3+1 Nova a 3 minutos do metroMoradia inserida num lote de 420m2 de terreno com 3 frentes e com entrada por 2 ruas distintas. - 1 escritório/quarto no R/C- Cozinha e sala em Open Space com jardim de inverno- WC completo- 3 suites com closet- Varanda nos quartos- Alpendre- Possibilidade de Piscina- Zona ajardinada- Garagem para 4 carros- Lavandaria- ArrumosAs moradias estão perto de comércio, serviços e transportes mais concretamente:- a 500m (3min a pé) do metro- a 200m do Intermarché- a 500m de escolas e creches nas proximidades- a 250m do autocarro- a 1,5km do aeroporto e todas a vias de acesso a autoestradasJC LEÃO ImobiliáriaGarra, Determinação e SoluçãoConsigo desde 2010Compramos, Vendemos, Ajudamos a Financiar o seu Imóvel.Intermediário de Crédito aprovado pelo Banco de Portugal.Nota: as imagens que constam deste anúncio são meramente ilustrativas
AMI: 9075
Ref. Externa: A220045
Id: 890459
Inicie sessão para guardar este imóvel e aceder à sua lista de favoritos em qualquer dispositivo.
3 Quartos
3 WCs
Área bruta : 144 m²
Identificação do imóvel: ZMPT567764VISITA VIRTUAL: Pode visitar esta moradia sem sair do conforto de sua casa. Procure a visita virtual disponível neste anúncio e conheça a sua futura casa!Se procura…- Moradia térrea- Amplo espaço exterior- Conforto- Tranquilidade- Proximidade a escolas e serviços- Acessos fáceis a principais vias rodoviárias...AQUI ENCONTRA!Esta é a casa de sonho que procura há tanto tempo!Esta encantadora moradia térrea, localizada na tranquila freguesia de Vila Nova da Telha, no concelho da Maia, oferece um espaço acolhedor e confortável para viver.Com uma distribuição funcional, a casa inclui uma sala comum espaçosa e com acesso ao jardim, uma cozinha mobilada e equipada, três quartos espaçosos (um é suite), um vestíbulo, uma despensa, um logradouro e jardim perfeitos para momentos de lazer ao ar livre.A moradia está situada numa área residencial calma, proporcionando um ambiente de vida sereno e agradável.Próximo de todas as comodidades necessárias, incluindo escolas, supermercados, e serviços de saúde, esta localização é ideal para famílias e para aqueles que procuram a conveniência da vida suburbana com fácil acesso à cidade do Porto.Moradia T3 com 617 m² de terreno, na Rua da Caralinda nº 30, em Vila Nova da Telha, Maia, com as seguintes características:- Área útil de 144 m²- Térrea- Amplo espaço exterior- Distribuição funcional e muita luminosidade- Caixilharia oscilo-batente em PVC com vidros duplos e corte térmicoO interior é composto por:- Hall de entrada- Sala comum ampla e luminosa, com acesso ao jardim- Cozinha mobilada e equipada, com despensa e acesso ao logradouro- 3 quartos espaçosos (um é suite)- 2 casas de banho completas + 1 casa de banho nos arrumosExterior:- Jardim amplo- Logradouro- Anexos destinados a garagem, lavandaria e arrumos, com casa de banho- Espaço de parqueamento- Terraço de logradouro com área generosaEsta moradia encontra-se numa localização privilegiada, onde pode encontrar todo o tipo de comércio, serviços e hipermercados, perto de transportes públicos e com acessos próximos à VRI, A41, Via Norte, Nac. 13, Nac. 107 e A28.Na envolvente, é também possível usufruir de:- Jardim público- Feira semanal- Escolas, desde o pré-escolar, 1º ciclo, ensino secundário e profissionalA moradia dispõe de boas áreas e uma organização funcional, com espaços caracterizados pela presença constante de luz natural.DESCRIÇÃO DAS DIVISÕES INTERIORES:- Hall de entrada: Espaçoso e acolhedor.- Sala comum: Ampla, com muita luz natural.- Cozinha: Mobilada e equipada, com acesso à despensa.- Quartos: 3 quartos com excelente iluminação e roupeiros embutidos (um deles é suite)- Casas de banho: 2 casas de banho espaçosas e completas + 1 casa de banho nos arrumosMATERIAIS E DETALHES TÉCNICOS:- Janelas oscilo-batentes com caixilharia de PVC e vidros duplos com corte térmico- Pavimentos cerâmicos- Cozinha equipada com forno, placa mista (gás e elétrica), exaustor, frigorífico e máquina de lavar-louça- Aquecimento de águas sanitárias através de caldeira a gás- Ar condicionado na sala e na suite- Pré-instalação de aquecimento centralELEMENTOS MATRICIAIS E LEGAIS:- Área bruta privativa: 144,00 m²- Área bruta dependente: 60,00 m²- Área total do terreno: 617,00 m²- Ano de inscrição na matriz: 1995- Valor patrimonial atual: €99.703,45- Certificado energético:INFORMAÇÕES ADICIONAIS:- Obras previstas: Não- IMI: €353,95 (anual)PONTOS DE INTERESSE E DISTÂNCIAS:ENSINO:- Escola básica 1º CEB/JI da Prozela – 170 m- Escola básica 1º CEB/JI do Lidador – 2,2 km- Escola básica e secundária Dr. Vieira de Carvalho – 1,6 kmTRANSPORTES PÚBLICOS:- Paragem de autocarro STCP (linhas 133; 602) – 1,3 km- Estação de metro Pedras Rubras (linha B) – 1,8 km- Estação de Metro Botica (linha E) - 2,0 km- Estação de metro do Lidador (linha B) – 2,3 km- Estação de metro de Verdes (linhas E e B) - 2,3 km- Estação de metro Aeroporto (linha E) - 2,7 kmSERVIÇOS:- Bombeiros Voluntários de Moreira – 1,4 km- Junta da freguesia de Vila Nova da Telha – 1,8 km- CTT – 1,8 km- Aeroporto - 1,6 km- USF Pedras Rubras - 3,5 kmHIPERMERCADOS:- Hipermercado ALDI - 1,2 km- Hipermercado Intermarché - 1,5 km- Hipermercado Modelo-Continente - 2,7 km- Hipermercado Lidl - 3,0 kmESPAÇOS PÚBLICOS:- Parque de Quires - 3,0 km- Parque Infantil - 2,3 km- Parque de cães - 2,6 kmFARMÁCIAS:- Farmácia Nacional – 1,3 km- Farmácia Gramaxo – 1,6 kmEIXOS RODOVIÁRIOS:- Estrada nacional 13 – 2,5 km- Estrada nacional 107 – 1,7 km- VRI – 1,6 km- A 41 – 3,0 kmEsta pode ser a sua próxima casa!Contacte-nos para obter mais informações sobre esta moradia T3 térrea com 617 m² de terreno em Vila Nova da Telha, Maia, com comércio e serviços muito próximos.Temos todo o gosto em ajudar a concretizar este investimento.Nota 1: para maior facilidade na identificação deste imóvel, por favor, refira o respetivo ID.Nota 2: Em caso de agendamento de visita, faça-se acompanhar de um documento de identificação.Nota 3: Este imóvel, tal como todos os outros publicitados pela Zome encontra-se disponível para partilha de negócio com qualquer colega ou agência imobiliária com licença AMI e estabelecimento aberto ao público, por isso não hesite em apresentar esta fantástica moradia aos seus clientes!3 razões para comprar com a Zome+ acompanhamentoCom uma preparação e experiência única no mercado imobiliário, os consultores Zome põem toda a sua dedicação em dar-lhe o melhor acompanhamento, orientando-o com a máxima confiança, na direção certa das suas necessidades e ambições.Daqui para a frente, vamos criar uma relação próxima e escutar com atenção as suas expectativas, porque a nossa prioridade é a sua felicidade! Porque é importante que sinta que está acompanhado, e que estamos consigo sempre.+ simplesOs consultores Zome têm uma formação única no mercado, ancorada na partilha de experiência prática entre profissionais e fortalecida pelo conhecimento de neurociência aplicada que lhes permite simplificar e tornar mais eficaz a sua experiência imobiliária.Deixe para trás os pesadelos burocráticos porque na Zome encontra o apoio total de uma equipa experiente e multidisciplinar que lhe dá suporte prático em todos os aspetos fundamentais, para que a sua experiência imobiliária supere as expectativas.+ felizO nosso maior valor é entregar-lhe felicidade!Liberte-se de preocupações e ganhe o tempo de qualidade que necessita para se dedicar ao que lhe faz mais feliz.Agimos diariamente para trazer mais valor à sua vida com o aconselhamento fiável de que precisa para, juntos, conseguirmos atingir os melhores resultados.Com a Zome nunca vai estar perdido ou desacompanhado e encontrará algo que não tem preço: a sua máxima tranquilidade!É assim que se vai sentir ao longo de toda a experiência: Tranquilo, seguro, confortável e... FELIZ!Notas:1. Caso seja um consultor imobiliário, este imóvel está disponível para partilha de negócio. Não hesite em apresentar aos seus clientes compradores e fale connosco para agendar a sua visita.2. Para maior facilidade na identificação deste imóvel, por favor, refira o respetivo ID ZMPT ou o respetivo agente que lhe tenha enviado a sugestão.
AMI: 17432
Ref. Externa: ZMPT567764
Id: 777216
Inicie sessão para guardar este imóvel e aceder à sua lista de favoritos em qualquer dispositivo.
© Copyright 2023 | CASACERTA. All rights reserved
Guardar favoritos
Este imóvel foi guardados nos seus favoritos com sucesso.
Para poder guardar pesquisa deverá ter a sua sessão iniciada.
Caso não tenha uma conta, deverá criar uma.
A sua pesquisa foi guardada com sucesso!
Este site utiliza cookies. Ao navegar no site estará a consentir a sua utilização.
Para mais informações sobre os cookies pode consultar a
política de privacidade.