Lista
Comprar
Arrendar
25.000 €
Área útil : 54 m²
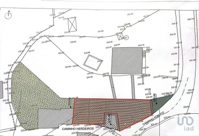
Moradia em Pedra para Reconstrução com Projeto Aprovado – Freguesia de Grade, Arcos de Valdevez Preço: 25.000€ Localização: Freguesia de Grade, Arcos de Valdevez, Alto Minho, Portugal Apresentamos esta moradia em estado de ruína, com estrutura em pedra de excelente qualidade, localizada na freguesia de Grade, uma zona rural tranquila e acolhedora, mas com a proximidade da vila de Arcos de Valdevez. O imóvel encontra-se inserido em um terreno com 500m², e está associado a um projeto aprovado para reconstrução, proporcionando uma excelente oportunidade de investimento. Características da Propriedade: - Área do terreno: 500m² - Estrutura em pedra: A ruína é composta por pedras de boa qualidade, que podem ser reaproveitadas para a construção de uma nova moradia - Projeto aprovado: O projeto para reconstrução está já aprovado, permitindo iniciar os trabalhos de imediato - Localização: Situada em uma zona rural e tranquila, a apenas alguns minutos de Arcos de Valdevez, oferecendo a paz do campo com a conveniência da cidade Vantagens da Propriedade: - Pedras de boa qualidade: A estrutura em pedra oferece um grande potencial para ser reaproveitada, dando um charme único à nova construção - Projeto aprovado: Com o projeto de reconstrução aprovado, poderá começar a obra sem demora, adaptando a moradia às suas necessidades e gostos pessoais - Terreno de 500m²: Espaço suficiente para criar um jardim, terraço ou até uma área de lazer - Acessos e infraestruturas: O imóvel está localizado em rua alcatroada, com água e energia elétrica, o que facilita e torna mais acessível a reconstrução - Proximidade a Arcos de Valdevez: Uma excelente localização para quem deseja viver no campo, mas com fácil acesso à cidade, onde encontrará serviços, comércio, escolas e outros pontos de interesse Porque investir nesta propriedade? Este é o imóvel ideal para quem procura um projeto de reconstrução, com a possibilidade de criar uma casa única, com a personalidade e o charme da arquitetura tradicional em pedra, mas adaptada às necessidades modernas. Com o projeto aprovado, poderá começar imediatamente a construção da casa dos seus sonhos. Agende a sua visita! Não perca a oportunidade de conhecer esta moradia em ruína com enorme potencial. Entre em contacto para mais informações ou para agendar uma visita. Contactos: Telefone: +351 968080382 Email: [email protected] #ref: 140126
AMI: 11220
Ref. Externa: 140126
Id: 1139445
Inicie sessão para guardar este imóvel e aceder à sua lista de favoritos em qualquer dispositivo.
35.000 €
1 Quartos
1 WCs
Área útil : 110 m²
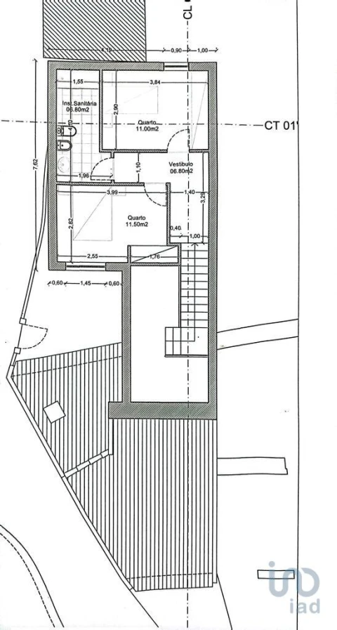
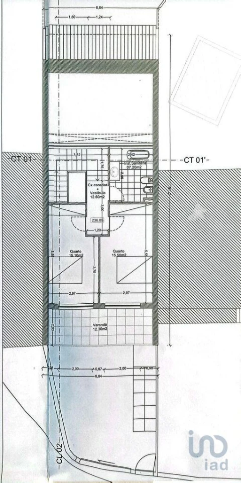
Casa para Reconstruir na Freguesia de Grade, Arcos de Valdevez – Potencial para Criar a Sua Casa de Sonho! Preço: 35.000,00€ Localização: Freguesia de Grade, Arcos de Valdevez, Alto Minho, Portugal Apresentamos esta casa antiga para reconstrução na freguesia de Grade, em Arcos de Valdevez, uma excelente oportunidade para quem deseja investir em um projeto de reconstrução e criar uma moradia personalizada, com a beleza e o charme da paisagem tradicional. Características da Propriedade: - Área do terreno: 282 m2 - Casa para reconstruir: Estrutura existente com grande potencial para renovação - Espaço exterior: Área ampla, ideal para jardim, pátio ou outras opções de lazer - Localização: Situada em zona tranquila e rural, mas a apenas 5 minutos de Arcos de Valdevez, com fácil acesso às principais vias Vantagens da Propriedade: - Potencial de valorização: Ao renovar esta casa, terá uma propriedade única, com características típicas da região, e a possibilidade de torná-la num verdadeiro refúgio, adaptado às suas necessidades - Espaço exterior generoso, ideal para criar um jardim, terraço ou até para instalar uma piscina - Localização tranquila: Perfeita para quem deseja viver em um ambiente calmo e rural, mas com a proximidade à vila de Arcos de Valdevez, onde encontrará todos os serviços e infraestruturas necessárias - Oportunidade de personalização: Reconstruir a casa de acordo com os seus gostos e necessidades, criando um espaço totalmente adaptado a si Porque investir nesta propriedade? Este é o imóvel ideal para quem deseja transformar um projeto em realidade. Com uma excelente localização e grande potencial de valorização, poderá reconstruir uma casa com história e dotá-la de todas as características modernas que procura. Aproveite a chance de criar o lar dos seus sonhos em um local tranquilo, rodeado pela beleza natural da região. Agende a sua visita! Não perca a oportunidade de conhecer esta casa com grande potencial para reconstrução. Entre em contacto connosco para mais informações ou para agendar uma visita. Contactos: Telefone: +351 968080382 Email: [email protected] #ref: 138773
AMI: 11220
Ref. Externa: 138773
Id: 1118262
Inicie sessão para guardar este imóvel e aceder à sua lista de favoritos em qualquer dispositivo.
55.000 €
2 Quartos
1 WCs
Área bruta : 219 m²
Moradia em pedra para restauro, com anexo também em pedra referente a uma antiga adega com lagar . Composta por 2 artigos urbanos (casas de habitação) e um artigo rustico (terreno), a propriedade goza de uma excelente localização e exposição solar: (Nascente/Sul/Poente). A propriedade encontra-se praticamente vedada, a estrutura das construções está em bom estado. Entre o centro da vila de Arcos de Valdevez e a vila de Soajo, a freguesia de Grade (atualmente União de Freguesias de Grade e Carralcova), possui ainda um património cultural e edificado de grande interesse publico, como sendo exemplos: casas da Torre de Faro, do Casal, do Convento e Capela da Senhora da Piedade. A freguesia de Grade, conta ainda com acesso privilegiado e de curta distância a pontos de interesse como a Porta do Mezio e o seu centro de interpretação e museu, o santuário de Nª Srª da Peneda, aos trilhos e cascatas, os Espigueiros do Soajo e muito mais. Com todas as propriedades para transformar o espaço na sua residência permanente, é ainda uma excelente opção para habitação secundária, mas também um enorme potencial para alojamento turístico. Na Arcobarca. encontrará um profissional disponível, marque a sua visita!
AMI: 8178
Ref. Externa: AV4632
Id: 983687
Inicie sessão para guardar este imóvel e aceder à sua lista de favoritos em qualquer dispositivo.
47.500 €
2 Quartos
Área bruta : 166 m²
Moradia Rústica em Pedra para Restauro, com Belas Vistas sobre Serras e Campos. Está à procura de um refúgio no meio rural, rodeado de natureza e paisagens deslumbrantes? Temos a oferta ideal para si! Apresentamos uma encantadora Moradia Rústica em Pedra, localizada numa aldeia pitoresca, perfeita para os amantes da tranquilidade e serenidade. Esta moradia, pronta para ser restaurada conforme a sua visão, está inserida num cenário idílico, com vistas panorâmicas sobre as serras e campos circundantes. Imagine acordar todas as manhãs ao som dos pássaros e contemplar o nascer do sol sobre as montanhas - uma experiência verdadeiramente revigorante. Ao adquirir esta propriedade, terá ainda a oportunidade de desfrutar de um magnífico espigueiro, um elemento tradicional da cultura local que acrescenta charme e autenticidade ao ambiente. Ideal para guardar os seus utensílios agrícolas ou como espaço de lazer ao ar livre, este espigueiro é uma verdadeira mais-valia. Além disso, esta propriedade acompanha um amplo terreno, permitindo-lhe explorar diversas atividades ao ar livre, como jardinagem, cultivo de vegetais ou até mesmo a criação de um espaço de recreio para a família. As possibilidades são infinitas! Localizada numa aldeia no meio rural, beneficiará de toda a serenidade e qualidade de vida que este ambiente proporciona. Estará a uma distância de +/- 11km do centro de Arcos de Valdevez onde tem todas as comodidades necessárias, como supermercados, restaurantes e serviços públicos. Assim, terá o melhor dos dois mundos - tranquilidade e conveniência. Não perca esta oportunidade única de adquirir uma moradia rústica em pedra, com belas vistas sobre serras e campos, inserida numa aldeia no meio rural, complementada por um encantador espigueiro e terreno. Contacte-nos hoje mesmo para marcar a sua visita e deixe-se encantar por esta autêntica joia no campo.
AMI: 8178
Ref. Externa: AV5852
Id: 622475
Inicie sessão para guardar este imóvel e aceder à sua lista de favoritos em qualquer dispositivo.
27.000 €
1 Quartos
Área bruta : 52 m²
Na freguesia de Grade em Arcos de Valdevez, a 7km do centro da vila situa-se esta bela casa rústica de dois pisos em pedra granito, para recuperar. A dimensão e disposição do lote, permite a criação de lugar para estacionamento privativo. Dotada de bons acessos por estrada alcatroada e com excelentes vistas panorâmicas. Imóvel ideal para quem procura uma casa para fins de semana ou férias numa localização de fácil acesso, onde prevalece o sossego, o campo e a paisagem. Excelente também para investimento de turismo. A uma hora de distância dos aeroportos e das grandes metrópoles Porto e Vigo. Procura comprar uma casa, investir no Alto Minho? Não perca a oportunidade e seja o próximo a disfrutar das coisas boas que esta região tem para lhe oferecer. Venha conhecer. Caso necessite, na Arcobarca estamos disponíveis para o ajudar com o processo de financiamento bancário, pois somos intermediários de crédito autorizados pelo Banco de Portugal. "Excluído do SCE, ao abrigo da alínea g) do nº 2 do artigo 18º do Decreto-Lei nº 101-D/2020, de 7 de dezembro"
AMI: 8178
Ref. Externa: AV5466
Id: 291434
Inicie sessão para guardar este imóvel e aceder à sua lista de favoritos em qualquer dispositivo.
Este agente é especialista nesta zona:
Inicie sessão para ocultar este imóvel das suas pesquisas e manter a sua lista de resultados organizada.
Guardar favoritos
Este imóvel foi guardados nos seus favoritos com sucesso.
Para poder guardar pesquisa deverá ter a sua sessão iniciada.
Caso não tenha uma conta, deverá criar uma.
A sua pesquisa foi guardada com sucesso!
© Copyright 2023 | CASACERTA. All rights reserved
Este site utiliza cookies. Ao navegar no site estará a consentir a sua utilização.
Para mais informações sobre os cookies pode consultar a
política de privacidade.