Lista
Comprar
Arrendar
7.500.000 €
26 Quartos
26 WCs
Área bruta : 3474 m²
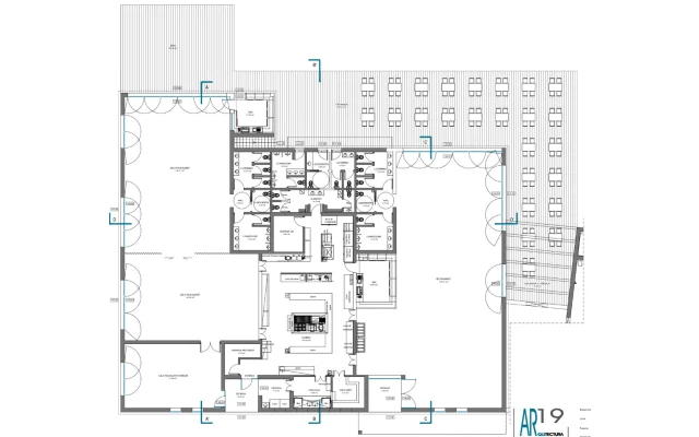
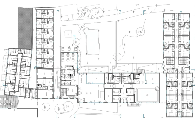
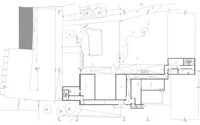
Excelente oportunidade de investimento no coração do Algarve, em Santa Luzia, Tavira, com localização privilegiada em primeira linha de água, vistas desafogadas sobre a Ria Formosa e elevado potencial turístico.O imóvel conta com uma área total de 3.474,0m², área de implantação de 652,08m² e área total de construção de 1.016,54m², dispondo de projeto aprovado para Hotel, cuidadosamente pensado para um conceito diferenciador de conforto, exclusividade e integração com a paisagem natural.Projeto aprovado contempla:26 suites, distribuídas da seguinte forma:12 suites júnior com cerca de 32m²14 suites premium com terraço privativo, roof-top e piscina privadaZona de bar e restaurantePiscina exterior e jardim com vistas diretas para a Ria FormosaEstacionamentoArquitetura contemporânea, pensada para valorizar a luz natural e a envolventeEste projeto combina sofisticação, tranquilidade e uma localização única.Sobre a vila de Santa LuziaDe natureza piscatória, esta freguesia vive, também, da aposta no turismo, com alojamento, restaurantes e praias de qualidade. Designada como a 'capital do polvo', Santa Luzia proporciona a todos os seus visitantes verdadeiros momentos de harmonia e bem-estar.Aprecie a vida desta vila e as artes de pesca que convivem num ambiente de harmonia com o turismo e a hospitalidade dos santaluzienses.Casas do Sotavento é uma empresa familiar, reconhecida no país e no estrangeiro, por clientes, colaboradores, investidores, pela qualidade das nossas acções e dos nossos projecto. A nossa missão é de proporcionar uma experiência fácil e tranquila. A nossa preocupação, tratar toda a gente como gostaríamos de ser tratados.
AMI: 17215
Ref. Externa: PR-CS-HOT-94222
Id: 1732639
Inicie sessão para guardar este imóvel e aceder à sua lista de favoritos em qualquer dispositivo.
7.500.000 €
26 Quartos
26 WCs
Área bruta : 1016 m²
Excelente oportunidade de investimento no coração do Algarve, em Santa Luzia, Tavira, com localização privilegiada em primeira linha de água, vistas desafogadas sobre a Ria Formosa e elevado potencial turístico.O imóvel conta com uma área total de 3.474,0m², área de implantação de 652,08m² e área total de construção de 1.016,54m², dispondo de projeto aprovado para Hotel, cuidadosamente pensado para um conceito diferenciador de conforto, exclusividade e integração com a paisagem natural.Projeto aprovado contempla:26 suites, distribuídas da seguinte forma:12 suites júnior com cerca de 32m²14 suites premium com terraço privativo, roof-top e piscina privadaZona de bar e restaurantePiscina exterior e jardim com vistas diretas para a Ria FormosaEstacionamentoArquitetura contemporânea, pensada para valorizar a luz natural e a envolventeEste projeto combina sofisticação, tranquilidade e uma localização única.Sobre a vila de Santa LuziaDe natureza piscatória, esta freguesia vive, também, da aposta no turismo, com alojamento, restaurantes e praias de qualidade. Designada como a 'capital do polvo', Santa Luzia proporciona a todos os seus visitantes verdadeiros momentos de harmonia e bem-estar.Aprecie a vida desta vila e as artes de pesca que convivem num ambiente de harmonia com o turismo e a hospitalidade dos santaluzienses.Casas do Sotavento é uma empresa familiar, reconhecida no país e no estrangeiro, por clientes, colaboradores, investidores, pela qualidade das nossas acções e dos nossos projecto. A nossa missão é de proporcionar uma experiência fácil e tranquila. A nossa preocupação, tratar toda a gente como gostaríamos de ser tratados.
AMI: 17215
Ref. Externa: SU-CS-HOT-94222
Id: 1727969
Inicie sessão para guardar este imóvel e aceder à sua lista de favoritos em qualquer dispositivo.
11 WCs
Área bruta : 1200 m²
Localizada em Bernardinheiro, Tavira, esta distinta casa de campo representa uma oportunidade sólida de investimento no segmento de turismo rural e alojamento de charme, numa das zonas mais procuradas do Sotavento Algarvio. Implantada num terreno com 1.200 m² e com 468 m² de área privativa, a propriedade foi concebida para proporcionar conforto, privacidade e uma experiência diferenciadora aos seus hóspedes. Características Principais 10 quartos em suite, todos com saída direta para o exterior, garantindo independência e contacto direto com a envolvente natural Ar condicionado em todas as divisões Cozinha profissional totalmente equipada, preparada para operação turística ou realização de eventos Lavandaria funcional, essencial para gestão eficiente da unidade 1 quarto e casa de banho de uso exclusivo para os proprietários, permitindo permanência no local com total autonomia Zona exterior ampla e harmoniosa Piscina, inserida num ambiente tranquilo e reservado A configuração da propriedade permite uma gestão versátil e otimizada, seja para exploração como Turismo Rural, Guest House, Boutique Guesthouse, Retreat ou unidade para eventos exclusivos. Desempenho e Reputação O imóvel apresenta classificação de excelência nos principais portais de reservas, refletindo elevados níveis de satisfação e reconhecimento do mercado — um ativo estratégico para continuidade imediata da exploração. Potencial de Investimento Produto consolidado no mercado turístico Localização estratégica, próxima de Tavira e das praias da Ria Formosa Forte procura na região durante grande parte do ano Estrutura preparada para operação imediata Possibilidade de incremento de receitas através de eventos, retiros temáticos ou posicionamento premium Trata-se de um investimento com potencial de rentabilidade atrativa e valorização sustentada, numa das regiões mais estáveis e procuradas do Algarve. Para informação adicional sobre desempenho financeiro e agendamento de visita, contacte. A CASA DA PORTELA Imobiliária – É uma empresa de mediação imobiliária e Intermediação de Crédito criada em 2013. Os seus sócios fundadores possuem um sólido conhecimento acumulado desde 1994 sobre o mercado imobiliário, mantendo-se atentos às suas tendências e evolução, e com uma Intermediação de Crédito registado no Banco de Portugal com o nº 0004889. A empresa começou por centrar-se na região do Grande Porto, conseguindo, desde o início, um grande volume de transações. O sucesso do modelo de negócio fez com que a marca Casa da Portela imobiliária chegasse em 2022 a Vila Nova de Famalicão. A Casa da Portela imobiliária pretende valorizar o trabalho dos consultores e prestar um serviço de excelência aos seus clientes, proporcionando um serviço de qualidade e tranquilidade, de forma a realizar bons negócios, garantindo a satisfação dos nossos clientes e parceiros. Para atingir esse propósito, dispomos de uma equipa multidisciplinar de profissionais qualificados, com vasta experiência em mediação imobiliária que nos permite apresentar e sugerir as melhores alternativas para os seus objetivos de venda, de arrendamento, ou de investimento imobiliário. Possuímos uma rede de contatos privilegiada que nos permite potenciar a divulgação, a gestão e a concretização de negócio do seu imóvel em vários formatos. 3 Pilares fundamentais da Casa da Portela: Missão A nossa missão é orientar os nossos objetivos excecionais (financeiros, humanos e sociais) na nossa organização e uni-los aos nossos não menos excecionais clientes, atendendo sempre às suas necessidades, desejos e expectativas. A Casa da Portela imobiliária nasceu para que fosse possível prestar um acompanhamento e apoio contínuos, explicação e esclarecimento de dúvidas, sobre todo o processo de compra, venda ou arrendamento de imóveis em Portugal. A concretização de tudo isto faz com que a nossa máxima ambição seja sermos os melhores no mercado imobiliário. Visão A nossa visão é sermos a empresa de referência no mercado imobiliário, assim como sermos reconhecidos como a melhor opção para os nossos clientes. Para isso, fazemos sempre por manter um espírito inovador e de liderança que nos levará ao reconhecimento pela nossa excelência no mercado. Valores Os nossos valores são sempre o conjunto das nossas atitudes e crenças, que envolvem todas as pessoas da organização, para que, em uníssono, consigamos atingir os resultados de excelência a que nos propomos sempre que são baseados na Qualidade, Profissionalismo, Responsabilidade, Respeito e Inovação
AMI: 10340
Ref. Externa: 1122231
Id: 1647597
Inicie sessão para guardar este imóvel e aceder à sua lista de favoritos em qualquer dispositivo.
32 Quartos
20 WCs
Área bruta : 1350 m²
Complexo Turístico composto por 9 Villas e 9 Apartamentos (5 T1 + 3 T2 + 1 T3 + 9 V2), num total de 1.350 m2 construídos. O imóvel possui 3.880 m2 de capacidade construtiva adicional. As moradias e os apartamentos são residenciais, estando a funcionar como alojamento local. Os espaços comuns são compostos por zonas ajardinadas, piscina, campos de ténis e serviços de apoio. Excelente oportunidade de investimento, podendo optar entre manter os imóveis em exploração ou vender as unidades. O Monte dos Avós Village localiza-se a escassos passos do Parque Natural da Ria Formosa, a 4 minutos de carro de Colina Verde Golf, a 25 km de Marina de Faro e a 4 km de Praia Fuseta. Contacte-nos para mais informações e visita!
AMI: 10931
Ref. Externa: RES_3126
Id: 1624012
Inicie sessão para guardar este imóvel e aceder à sua lista de favoritos em qualquer dispositivo.
3 Quartos
3 WCs
Área útil : 190 m²
Situada na pitoresca frente ribeirinha de Tavira, esta notável propriedade de três pisos combina um estilo de vida elegante com uma oportunidade comercial de destaque. Com vista para o tranquilo Rio Gilão, a moradia goza de uma localização privilegiada no coração do centro histórico de Tavira a poucos passos da ponte romana, dos cafés à beira-rio e do ferry para a Ilha de Tavira. Com uma rara dupla funcionalidade, é ideal para quem procura uma habitação com potencial de rendimento ou um investimento versátil numa das mais encantadoras vilas costeiras do Algarve. O rés-do-chão apresenta um acolhedor e convidativo espaço comercial, actualmente em funcionamento como um café boutique. Inclui uma kitchenette equipada, zona de estar interior e exterior, duas casas de banho e uma prática arrecadação. A sua disposição e localização privilegiada tornam-no perfeito para vários tipos de negócio seja um bistrô, loja de design, bar de vinhos ou outro tipo de restauração. A zona exterior oferece um ambiente ribeirinho encantador, onde é possível desfrutar do movimento e da atmosfera vibrante do centro histórico de Tavira. Os pisos superiores integram um apartamento duplex privado com três quartos e entrada independente. O primeiro piso dispõe de dois quartos em suite com roupeiros embutidos e varandas, enquanto o piso superior oferece mais um quarto em suite, uma luminosa sala de estar e cozinha em open space, e uma varanda espaçosa com vistas deslumbrantes sobre o Rio Gilão. Detalhes tradicionais como paredes em pedra, portas altas em madeira e azulejos pintados à mão combinam harmoniosamente com acabamentos modernos, criando um ambiente acolhedor e intemporal. Esta propriedade à beira-rio oferece uma versatilidade excecional, aliando conforto residencial e valor comercial numa das localizações mais exclusivas de Tavira. Ideal como residência permanente, casa de férias ou investimento para arrendamento, representa uma oportunidade rara de possuir um pedaço do charme ribeirinho de Tavira. As características e equipamentos mencionados estão sujeitos a acordo e verificação entre o vendedor e o comprador Classe Energética: C - Localização ribeirinha privilegiada no centro histórico de Tavira - Propriedade de três andares com uso misto comercial e residencial - Apartamento de 2 andares privado com três suites - Sala de estar e cozinha em open space com terraço e vista rio - Espaço comercial no rés-do-chão com kitchenette equipada - Layout flexível adequado para loja, galeria ou negócio de hospitalidade - A curta distância da ponte romana e do ferry para a Ilha de Tavira - Mistura elegante de elementos tradicionais e acabamentos modernos - Ar condicionado, vidros duplos e painéis solares - Ideal para residência, negócio de lifestyle ou investimento de longo prazo
AMI: 9767
Ref. Externa: FC046TVBU*P
Id: 1456541
Inicie sessão para guardar este imóvel e aceder à sua lista de favoritos em qualquer dispositivo.
1 WCs
Área bruta : 20 m²
No coração de uma zona tranquila e bem localizada, nasce este novo empreendimento composto por 7 apartamentos e 1 loja no rés-do-chão. A loja, com 19,92 m² de área bruta de construção, oferece a versatilidade perfeita para quem procura um espaço funcional e prático. Pode ser transformada num escritório de serviços, ideal para advogado, solicitador, associação de condóminos ou qualquer outra atividade que valorize a proximidade e a comodidade de estar integrado num edifício residencial moderno. Com linhas contemporâneas e uma envolvente serena, este projeto alia a conveniência de viver perto de tudo ao conforto de um espaço pensado para responder às necessidades do dia a dia. Uma oportunidade única de investir num espaço multifuncional em Tavira seja para viver ou para trabalhar. A conclusão da obra está prevista para o final do verão de 2026 o momento certo para começar a planear a sua nova vida em Tavira. ️ Visite o nosso site e descubra todos os imóveis que temos para si. Marque já a sua visita e comece hoje mesmo a desenhar o seu futuro.
AMI: 12288
Ref. Externa: SPMA0609-587_A
Id: 1381163
Inicie sessão para guardar este imóvel e aceder à sua lista de favoritos em qualquer dispositivo.
1 WCs
Área útil : 15 m²
Loja / Espaço Comercial em Tavira São Pedro / Quinta do Caracol Este espaço comercial de 15 m² encontra-se em fase de construção numa das zonas mais valorizadas e procuradas de Tavira a urbanização Quinta do Caracol / São Pedro. Com linhas modernas e integradas num edifício de design contemporâneo, a loja é ideal para quem procura um espaço compacto para desenvolver um pequeno negócio, showroom, escritório ou gabinete de atendimento. Principais características: 15 m² de área útil Inserida em edifício novo com conclusão prevista para verão de 2026 Grande visibilidade, em zona residencial consolidada e com crescente procura Facilidade de estacionamento na envolvente Destaques que valorizam o espaço: Edifício com certificação energética A Estrutura moderna, com acabamentos de qualidade Ar condicionado Excelente exposição solar e luminosidade natural Localização Quinta do Caracol / São Pedro Situada numa zona tranquila e residencial, muito próxima do centro de Tavira, da Ria Formosa e de todos os serviços essenciais: supermercados, escolas, farmácia, estação ferroviária e restaurantes típicos. Conclusão da obra prevista para verão de 2026. Uma oportunidade única para estabelecer o seu negócio num dos bairros mais promissores de Tavira, unindo modernidade, acessibilidade e qualidade.
AMI: 25290
Ref. Externa: LTH129
Id: 1348838
Inicie sessão para guardar este imóvel e aceder à sua lista de favoritos em qualquer dispositivo.
2 WCs
Área bruta : 140 m²
Restaurante para venda em Tavira, perto do centro histórico. Completamente equipado e mobilado. A area interior é constituída por um amplo salão principal, com uma zona de bar, uma cozinha espaçosa e funcional, 2 casas de banho e um espaço para arrumos. A área exterior tem um Logradouro próprio com 42 m2 e uma amplo pátio adicional (esplanada sob licença camarária), num espaço muito acolhedor e charmoso, com muita privacidade. Bom potencial para remodelação e para criar um espaço amplo com boa distribuição e muito funcional. O Imóvel encontra-se em excelente estado de conservação e mantém o seu funcionamento há 30 anos, com referências de excelência. Excelente oportunidade.
AMI: 19651
Ref. Externa: RES_261
Id: 1257425
Inicie sessão para guardar este imóvel e aceder à sua lista de favoritos em qualquer dispositivo.
9 Quartos
Área bruta : 562 m²
Hotel de charme, localizado no centro da cidade, perto de todos os serviços. Casa centenária, composto por 9 quartos, todas com casa de banho privativo. Existem dois salões, um para refeições, e outro com lareira para convívio. Oferece um bar e uma cozinha, um terraço para pequenos almoços, e ainda outro terraço amplo no topo do edifício com vista sobre a cidade. Ainda no exterior, existe um logradouro com uma pequena piscina. Todas as divisões têm piso radiante, ar condicionado, luzes de ambiente e musica central.
AMI: 19651
Ref. Externa: POS_109
Id: 1046091
Inicie sessão para guardar este imóvel e aceder à sua lista de favoritos em qualquer dispositivo.
Área de terreno : 21 m²
Apresenta-se para venda esta espaçosa garagem de 21 m2 situada nas proximidades do centro desportivo e da piscina pública no coração de Tavira, no Sotavento Algarvio. Esta propriedade, construída em 2006, está impecavelmente mantida e possui portões manuais, bem como ligações de água e eletricidade. TAVIRA Situada em ambos os lados do sinuoso Rio Gilão e carinhosamente conhecida como "A Veneza do Algarve", Tavira é sem dúvida a cidade mais charmosa do Algarve. A antiga ponte romana, as ruínas de um castelo no topo de uma colina e umas surpreendentes 37 igrejas, com as mais antigas datando da Idade Média, estão entre muitas das atracções históricas de Tavira. Uma sedutora colecção de restaurantes, cafés, bares e lojas faz dela o destino português perfeito para explorar os alcances orientais do Algarve. Tavira é ideal para passear e explorar a cidade antiga com as suas muitas ruas de paralelepípedos, jardins verdes escondidos e praças arborizadas. Há um pequeno porto de pesca activo e um mercado moderno, com Tavira a ser também o ponto de partida para as deslumbrantes e virgens praias da Ilha de Tavira. PRAIAS Existem várias praias excelentes perto de Tavira. A costa nesta zona é óptima para longos passeios à beira-mar e para banhos, uma vez que as suas águas são mais quentes do que em qualquer outro lugar do Algarve. Ilha de Cabanas: Esta é uma ilha em frente à cidade de Cabanas de Tavira, com uma espetacular praia longa e estreita. A areia é branca e a ilha parece o paraíso. Ótimo para longas caminhadas na praia. Ilha de Tavira: É famosa por ser uma das melhores praias perto de Tavira. A praia é bastante arenosa e a areia é quase branca. A ilha de Tavira estende-se por cerca de 11 quilómetros e fica apenas a 3 quilómetros a sul da cidade de Tavira. Há restaurantes e a praia também possui uma Bandeira Azul, mostrando a qualidade da praia. É um ótimo destino para uma viagem de um dia. Praia do Barril: Acessível a pé ou de comboio, esta praia é conhecida pelo seu bizarro cemitério de âncoras com mais de 100 âncoras em frente à praia. As âncoras eram da comunidade piscatória do atum, que desapareceu quando o atum rabilho se deslocou para outras águas. A praia em si é muito grande e também incrivelmente bonita. RESTAURANTES Existem muitos restaurantes com os melhores lugares em Tavira. Se você gosta de comida, você não vai se decepcionar aqui. Da culinária local à alta gastronomia, você pode encontrar tudo na área. O QUE VER EM TAVIRA Praça da República, Ponte Romana, Jardim do Coreto, Mercado da Ribeira, Mercado municipal, Igreja da Misericórdia, Torre de Tavira (Cámara Obscura), Castelo de Tavira, Igreja de Santa Maria do Castelo, Igreja de Santiago, Centro de Ciência, Museu Islâmico, Tavira d'Artes, Pego do Inferno, Ria Formosa O QUE PODE FAZER EM TAVIRA Caminhadas, passeios de bicicleta, observação de aves, fotografia, cursos culinários, degustação de vinhos, trekking, passeios históricos, viagens de pesca, passeios de barco, esportes aquáticos, golfe, tênis, natação, patinação, etc. COMPASS PROPERTY SALES Somos uma empresa imobiliária totalmente licenciada (AMI 17591) com uma equipa muito experiente e com um vasto conhecimento local, focando-nos na venda de imóveis predominantemente em Tavira e arredores e no Sotavento Algarvio. A empresa foi criada para oferecer a todos os nossos compradores e vendedores de imóveis, um serviço altamente profissional, amigável e acessível, garantindo um processo de vendas suave e sem problemas. Contacte-nos ou visite-nos agora para conversar com mais detalhes sobre a melhor forma de o ajudar a encontrar a propriedade perfeita no belo Algarve. O escritório principal da Compass Property Sales, com amplo estacionamento no exterior, está localizado no lado oeste de Tavira, apenas a 300 metros da rotunda da Vela.
AMI: 17591
Ref. Externa: G-HEN
Id: 989628
Inicie sessão para guardar este imóvel e aceder à sua lista de favoritos em qualquer dispositivo.
270.000 €
2 WCs
Área bruta : 97 m²
ESPAÇO COMERCIAL RESTAURANTE EM SANTA LUZIA Restaurante em funcionamento, arrendado de momento. Possibilidade de continuar com ou sem o inquilino. Localizado a poucos metros da marginal em Santa Luzia, com cave com a área de 50m2 e Restaurante com 97m2. Para mais informações, contacte-nos! COMMERCIAL SPACE - RESTAURANT IN SANTA LUZIA Restaurant in operation, currently leased. Possibility to continue with or without the tenant. Located a few meters from the waterfront in Santa Luzia, with a basement with an area of 50sqm and a restaurant with 97sqm. For more information, contact us! ESPACE COMMERCIAL - RESTAURANT À SANTA LUZIA Restaurant en activité, actuellement loué. Possibilité de continuer avec ou sans le locataire. Situé à quelques mètres du front de mer à Santa Luzia, avec un sous-sol d'une superficie de 50m2 et un restaurant de 97m2. Pour plus d'informations, contactez-nous !
AMI: 11721
Ref. Externa: 3261
Id: 778747
Inicie sessão para guardar este imóvel e aceder à sua lista de favoritos em qualquer dispositivo.
28 Quartos
Área bruta : 0 m²
10 Moradias T2 6 Apartamentos T1 1 Apartamento T3 com camas individuais e de casal; Sala, Cozinha e WC; TV Satélite, Wifi gratuito, Pátios com churrasco; cadeiras e mesas de jardim; Estão completamente equipados e mobilados, incluindo roupas; Tem estacionamento com sombra, piscina, court de ténis e matraquilhos.
AMI: 6110
Ref. Externa: HOT_11063
Id: 583561
Inicie sessão para guardar este imóvel e aceder à sua lista de favoritos em qualquer dispositivo.
10 Quartos
11 WCs
Área útil : 468 m²
Um hotel contemporâneo de 10 quartos verdadeiramente impressionante e bem equipado em um ambiente rural tranquilo, com foco em proporcionar um alto nível de conforto e conveniência aos hóspedes. As comodidades, localização e recursos de acessibilidade tornam esta propriedade atraente tanto para turistas quanto para quem procura um retiro relaxante. As principais características deste hotel incluem: Quartos: 10 quartos bem mobiliados, cada um com banheiro privativo, ar condicionado, TV, frigobar e acesso direto ao jardim. As janelas com vidros duplos e isolamento acústico garantem uma estadia tranquila para os hóspedes. Renovação e Eficiência Energética: A recente renovação e a inclusão de painéis solares para aquecimento de água demonstram um compromisso com a eficiência energética e a sustentabilidade. Áreas comuns: Os hóspedes podem desfrutar de uma área de estar compartilhada com assentos confortáveis, lareira e TV a cabo. O ar condicionado está disponível em todas as áreas, garantindo um ambiente agradável. Cozinha e Lavanderia: A cozinha e a copa equipadas industrialmente, bem como a lavanderia, proporcionam praticidade e comodidade tanto para hóspedes quanto para funcionários. Acessibilidade: A propriedade foi projetada para acomodar pessoas com mobilidade reduzida, garantindo inclusão e uma estadia confortável para uma ampla gama de hóspedes. Localização: Situado a apenas 5 minutos de Tavira, uma cidade popular, e a uma distância razoável de carro de Espanha e do Aeroporto de Faro, a localização é conveniente para os hóspedes que procuram explorar a área. O fato de o hotel estar sendo vendido totalmente equipado e mobiliado é uma vantagem significativa para os potenciais compradores, tornando-se uma oportunidade de investimento chave na mão. Tavira é uma cidade encantadora, muitas vezes considerada a verdadeira joia do Sotavento Algarvio, às vezes chamada de "Veneza do Algarve". Situado entre o aeroporto internacional de Faro e a fronteira espanhola, este destino encantador proporciona uma atmosfera tranquila e convidativa para os visitantes e é reconhecido como um dos principais pontos turísticos para famílias no sul de Portugal. A cidade possui algumas das praias mais famosas da costa algarvia, incluindo a Praia do Barril, famosa por seu distinto trem, cemitério de âncoras e águas cristalinas, além das praias de Terra Estreita e Cabanas. Não perca a pitoresca Ilha de Tavira. Além disso, o Parque Natural da Ria Formosa é um local de visita obrigatória, conhecido pelas suas salinas que produzem alguns dos melhores sals e flores de sal do mundo. O parque também abriga várias espécies de pássaros, incluindo bandos de flamingos e aves pernaltas, atraídos pelo ambiente rico em sal. Explorar Tavira é uma aventura em si, com suas ruas históricas, castelo medieval e 24 igrejas esperando para serem descobertas. A vila está convenientemente localizada a apenas 10 minutos dos campos de golfe da Ria e Benamor e a 15 minutos do Clube de Golfe Monte Rei. O Aeroporto Internacional de Faro fica a 30 minutos de carro e a Espanha fica a apenas 20 minutos. Com uma população de cerca de 24.000 habitantes, Tavira tem uma vibrante comunidade de expatriados, com muitos residentes do Reino Unido, França, Itália, Suécia, Holanda, Bélgica, Alemanha, América, Canadá e Irlanda, desfrutando de casas permanentes e de férias neste local deslumbrante. Por que investir e morar em Portugal? sétimo. País mais seguro do mundo Índice Global da Paz 2023; Uma das melhores redes de autoestradas do mundo; Portugal considerado o melhor destino turístico da Europa em 2022, pelo dia 5. tempo nos últimos 6 anos (WTA); Lisboa, o melhor destino Metropolitano à Beira-Mar do mundo em 2022 (WTA); Ilha da Madeira, o melhor destino insular do mundo em 2022 (WTA); Algarve tendo um hotel escolhido com o prémio de Melhor Resort de Lifestyle 2022 (WTA); Porto eleito como o melhor destino de cidade do mundo em 2022 (WTA) Temperatura média às 12h, no verão: 25º C e no inverno: 16º C; Considerado o 7º. Melhor país do mundo em qualidade de vida 2022 (InterNations); Portugal é 4º. Melhor país do mundo onde os expatriados se sentem mais em casa em 2022 (Internations); Dieta Mediterrânica, classificada como Património Mundial pela Unesco; O melhor peixe do mundo, segundo Ferran Adriá, Chef "El Bulli"; Possui 1 das 25 praias mais bonitas do World Tripadvisor 2022; Tem 3 vinhos portugueses entre os 12 melhores do mundo em 2022 (Forbes); Aproveite esta oportunidade e marque já a sua visita ou peça informações adicionais!
AMI: 16353
Ref. Externa: ITH1220
Id: 410226
Inicie sessão para guardar este imóvel e aceder à sua lista de favoritos em qualquer dispositivo.
Este agente é especialista nesta zona:
Inicie sessão para ocultar este imóvel das suas pesquisas e manter a sua lista de resultados organizada.
© Copyright 2023 | CASACERTA. All rights reserved
Guardar favoritos
Este imóvel foi guardados nos seus favoritos com sucesso.
Para poder guardar pesquisa deverá ter a sua sessão iniciada.
Caso não tenha uma conta, deverá criar uma.
A sua pesquisa foi guardada com sucesso!
Este site utiliza cookies. Ao navegar no site estará a consentir a sua utilização.
Para mais informações sobre os cookies pode consultar a
política de privacidade.