Filtros
0 · 1 resultados1.449.000 €
12 Quartos
12 WCs
Área bruta : 800 m²
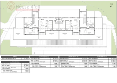
Hotel com 12 apartamentos para reconstrução na Lagoa de Óbidos, a poucos passos da magnifica praia da Foz do Arelho. Inserido numa propriedade de 6.000m2 e uma área de construção de 2000m2, divide-se em três pisos distintos capazes de criar espaços verdadeiramente únicos com vistas deslumbrantes sobre a lagoa. O piso térreo destina-se a sala de refeições, área de lazer e serviços, proporcionando ambientes acolhedores. Os pisos superiores, com os seus 12 apartamentos de tipologia T1 e T2, oferecem aos seus ocupantes o privilégio de desfrutar de um pequeno almoço no amplo terraço com a vista única que a Lagoa proporciona. O espaço exterior dispõe de piscina, fantástico jardim onde os hóspedes podem efetuar o seu passeio matinal, uma pequena moradia e estacionamento. Excelente investimento face à sua localização privilegiada, tornando-se num destino apelativo para os turistas que procuram tranquilidade, conforto e a proximidade da praia num ambiente único. Com a possibilidade de reconstrução personalizada, dispõe de projeto aprovado pela Câmara Municipal de Caldas da Rainha, com licença de construção a levantamento. Não perca esta oportunidade única de investimento num verdadeiro Oásis que a região proporciona a apenas 1 hora do Aeroporto de Lisboa. Marque já a sua visita!
AMI: 10595
Ref. Externa: HOT_1151
Id: 896134
Inicie sessão para guardar este imóvel e aceder à sua lista de favoritos em qualquer dispositivo.
© Copyright 2023 | CASACERTA. All rights reserved
Guardar favoritos
Este imóvel foi guardados nos seus favoritos com sucesso.
Para poder guardar pesquisa deverá ter a sua sessão iniciada.
Caso não tenha uma conta, deverá criar uma.
A sua pesquisa foi guardada com sucesso!
Este site utiliza cookies. Ao navegar no site estará a consentir a sua utilização.
Para mais informações sobre os cookies pode consultar a
política de privacidade.