Lista
Comprar
Arrendar
50.000 €
Área útil : 105 m²
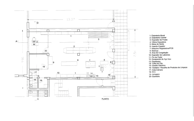
Oportunidade de negócio: Creperia e gelataria a funcionar há mais de 8 anos no CENTRO DE ERMESINDE. (Na rua principal ao lado do banco Milenium e outros negócios como: sapataria, ourivesaria). Escolas, paragem, negocios, a 100 metros da loja. Oferecem formação de 2 meses e projeto final para incluir BRUNCH/PASTELARIA no serviço. (Incluindo menu já finalizado) Motivo da venda desfazimento da sociedade Para mais informações entre em contacto.
AMI: 5072
Ref. Externa: GEL_2508
Id: 1515338
Inicie sessão para guardar este imóvel e aceder à sua lista de favoritos em qualquer dispositivo.
27.000 €
Área útil : 44 m²
Loja destinada a comércio, composta por uma sala ampla, em galeria comercial com montra com de 6m. A loja encontra-se equipada com sistema de Ar condicionado e localizada no rés-do-chão de um edifício de 15 pisos destinado a habitação e comércio. Localiza-se numa zona urbana consolidada, predominantemente residencial, cuja envolvente se caracteriza, maioritariamente, por edifícios de habitação multifamiliar e terrenos. A oferta de comércio, serviços e equipamentos é boa, com destaque para a proximidade a estabelecimentos de ensino. A oferta de transportes públicos é boa, incluindo autocarros e comboio. Os acessos às vias rodoviárias são bons, com fácil acesso à A4. Loja arrendada com rentabilidade de 7,1% brutos, condomínio de 43,80 e fim de contrato em Fevereiro de 2026.
AMI: 21880
Ref. Externa: 117/25
Id: 1393598
Inicie sessão para guardar este imóvel e aceder à sua lista de favoritos em qualquer dispositivo.
125.000 €
Área bruta : 83 m²
Bem-vindo a este novo empreendimento na cidade de Valongo, onde a história e a tranquilidade se encontram com a modernidade. Aqui vai encontrar soluções arquitetónicas inteligentes, que valorizam o espaço e a funcionalidade, aliadas a acabamentos de elevada qualidade, que conjugam modernidade, durabilidade e estética. Magnífico espaço para comércio neste novo empreendimento, início de obra em 2026 e conclusão prevista em 2028. Apenas duas frações disponíveis a 125.000! O que podemos destacar? - Áreas generosas: 62.19 m² de área útil / 83 m² total (Fração 0E área bruta privativa + área bruta dependente) ou 67.77 m² de área útil/89 m² de área total (Fração 0F área bruta privativa + área bruta dependente)! - Estacionamento privativo + garagem com portão automático, 14m², equipada com ponto de carregamento elétrico. - Classe energética B - Segurança reforçada: vídeo porteiro, estores elétricos, portaria eletrónica. - Elevador elétrico (Schneider ou equivalente). - Isolamento de excelência: caixilharia em alumínio com corte térmico, vidros duplos e estores termo-laçados. Localização Privilegiada: a 4 minutos de transportes públicos, próximo de escolas, jardins de infância e comércio local, com espaços verdes: Jardim do Calvário e Parque da Cidade para lazer e convívio ao ar livre. Uma gastronomia variada, com restaurantes de referência e lojas de conveniência a poucos minutos. Agende já a sua visita e venha conhecer o local onde fará, certamente, vários negócios de sucesso! Sofia Lucas | +351 910030453 | [email protected] DS Private Braga Labmarl, Lda Lic. AMI 18810 Rua Gabriel Pereira de Castro n.3 Loja J, 4700-385 Braga
AMI: 18810
Ref. Externa: DSPBRAGASL8
Id: 1386591
Inicie sessão para guardar este imóvel e aceder à sua lista de favoritos em qualquer dispositivo.
125.000 €
1 WCs
Área bruta : 69 m²
Loja comercial com 69 m2 de area , localizada num empreendimento de luxo em VALONGO Possui uma garagem com 14m2 Inicio da construção 2025 Previsão de conclusão da obra para 2027 . Condições para reserva do imóvel : Nota : A informação aqui prestada , ainda que precisa , requer confirmação antes do fecho do negócio e não pode ser utilizada de forma vinculativa ComprarCasa Viana do Castelo A sua imobiliária de confiança em Viana do Castelo ComprarCasa Viana do Castelo é uma agência imobiliária que se distingue pela sua abordagem personalizada, onde a confiança, a transparência e o compromisso com os nossos clientes estão sempre em primeiro lugar. Sob a gestão da experiente Ana Fernandes, esta imobiliária oferece soluções completas para quem deseja comprar, vender ou arrendar imóveis na encantadora região de Viana do Castelo. Com uma vasta experiência no mercado local, a ComprarCasa Viana do Castelo é especializada em imóveis que atendem aos mais diversos perfis e necessidades. Seja para quem procura a casa dos seus sonhos, um investimento seguro ou uma solução para arrendar, a nossa equipa está preparada para encontrar a melhor opção, com o acompanhamento e apoio necessários a cada etapa do processo. A Ana Fernandes, enquanto gestora, assume um papel de liderança dedicado a assegurar que cada cliente seja tratado com a máxima atenção e respeito, proporcionando um serviço eficaz e personalizado, onde o seu interesse é sempre a nossa prioridade. A nossa missão é simplificar o processo imobiliário e torná-lo uma experiência positiva, desde a primeira consulta até à conclusão do negócio. Com uma vasta rede de contactos e uma compreensão profunda do mercado de Viana do Castelo, garantimos que cada transação seja realizada com segurança, rapidez e sem surpresas. Se está à procura de uma imobiliária de confiança para comprar, vender ou arrendar o seu imóvel, a ComprarCasa Viana do Castelo é a sua escolha certa. Entre em contacto connosco pelo número e deixe-nos ajudá-lo a encontrar o que procura.
AMI: 24923
Ref. Externa: 401/A/00184
Id: 1226594
Inicie sessão para guardar este imóvel e aceder à sua lista de favoritos em qualquer dispositivo.
125.000 €
1 WCs
Área bruta : 75 m²
Loja comercial com75 m2 de area , localizada num empreendimento de luxo em VALONGO Possui uma garagem com 14M2 Inicio da construção 2025 Previsão de conclusão da obra para 2027 . Condições para reserva do imóvel : Nota : A informação aqui prestada , ainda que precisa , requer confirmação antes do fecho do negócio e não pode ser utilizada de forma vinculativa ComprarCasa Viana do Castelo A sua imobiliária de confiança em Viana do Castelo ComprarCasa Viana do Castelo é uma agência imobiliária que se distingue pela sua abordagem personalizada, onde a confiança, a transparência e o compromisso com os nossos clientes estão sempre em primeiro lugar. Sob a gestão da experiente Ana Fernandes, esta imobiliária oferece soluções completas para quem deseja comprar, vender ou arrendar imóveis na encantadora região de Viana do Castelo. Com uma vasta experiência no mercado local, a ComprarCasa Viana do Castelo é especializada em imóveis que atendem aos mais diversos perfis e necessidades. Seja para quem procura a casa dos seus sonhos, um investimento seguro ou uma solução para arrendar, a nossa equipa está preparada para encontrar a melhor opção, com o acompanhamento e apoio necessários a cada etapa do processo. A Ana Fernandes, enquanto gestora, assume um papel de liderança dedicado a assegurar que cada cliente seja tratado com a máxima atenção e respeito, proporcionando um serviço eficaz e personalizado, onde o seu interesse é sempre a nossa prioridade. A nossa missão é simplificar o processo imobiliário e torná-lo uma experiência positiva, desde a primeira consulta até à conclusão do negócio. Com uma vasta rede de contactos e uma compreensão profunda do mercado de Viana do Castelo, garantimos que cada transação seja realizada com segurança, rapidez e sem surpresas. Se está à procura de uma imobiliária de confiança para comprar, vender ou arrendar o seu imóvel, a ComprarCasa Viana do Castelo é a sua escolha certa. Entre em contacto connosco pelo número e deixe-nos ajudá-lo a encontrar o que procura.
AMI: 24923
Ref. Externa: 401/A/00183
Id: 1226593
Inicie sessão para guardar este imóvel e aceder à sua lista de favoritos em qualquer dispositivo.
125.000 €
1 WCs
Área bruta : 89 m²
Construção moderna com acabamentos de qualidade e estrutura resistente. . Espaço comercial situado em edifício recente, com características construtivas pensadas para garantir durabilidade, eficiência e segurança. Excelente oportunidade para instalar o seu negócio numa zona em crescimento.. . – Estrutura em betão armado e betão aparente, com guarda das varandas incluída. – Fachada em painel sanduíche com acabamento em alumínio, com isolamento térmico e acústico em lã de rocha. – Paredes interiores com divisórias em gesso cartonado e lã de rocha no interior. – Cobertura plana, isolada termicamente e com acabamento em painel sanduíche. – Garagem com pavimento em betão com acabamento a hélice e paredes pintadas. – Porta de segurança corta-fogo, conforme projeto. – Vídeo porteiro com teclado numérico e código de acesso personalizado (tipo BPT ou equivalente). – Infraestrutura elétrica e telefónica completa, com iluminação exterior e ponto de carregamento para veículo elétrico. – Instalação para gás natural certificada. – Sistema de segurança contra incêndios. – Garagem. . Também disponível:. Loja | Área útil: 69,1m2 | Área Total: 83 m2| VALOR: 125 000€.
AMI: 25367
Ref. Externa: VIJT009/12817
Id: 1224571
Inicie sessão para guardar este imóvel e aceder à sua lista de favoritos em qualquer dispositivo.
93.000 €
0 Quartos
0 WCs
Área bruta : 0 m²
TRESPASSE VENDA CONFEITARIA PÃO QUENTE, EM ERMESINDE Esta é uma oportunidade única para adquirir, completamenteequipado e pronto para operar. Localizado na movimentada, Avª João de Deus, e apenas a 5minutos da entrada na A4, uma das áreas mais vibrante da cidade, inserido emzona de habitação, comércio e serviços. Esta CONFEITARIA PÃO QUENTE, é uma excelente opção para empreendedoresque procurem expandir os seus negócios ou para quem deseja iniciar no mercado. Está em pleno funcionamento, com equipamento, louça e stock. Sala com lotação de 50 lugares sentados, 2 WC para clientes.Vestiário, para funcionarios. Inclui um lugar de garagem. Dispõe de todas as licenças necessárias para a atividade. Espaço comercial com cliente fidelizada, este estabelecimentooferece um grande potencial de crescimento e rentabilidade para o novoproprietário. O espaço tem 90m2, com muita Luz natural, ar condicionado, aproveite estaoportunidade única de investir num negócio completo e equipado, com explanada,numa das melhores localizações da cidade. Valor da Renda atual 400,00 Euros, também tem a opção da compra da Loja. Entre em contato, para agendar uma visita e conhecer de pertotodas as possibilidades, que esta Confeitaria e Pão Quente, lhe pode oferecer. ;ID RE/MAX: 125411207-3
AMI: 7772
Ref. Externa: 125411207-3
Id: 1126378
Inicie sessão para guardar este imóvel e aceder à sua lista de favoritos em qualquer dispositivo.
310.000 €
2 WCs
Área bruta : 84 m²
Espaço comercial destinado a Confeitaria, Café e Snack-Bar em Ermesinde. Oportunidade de negócio para compra/trespasse ou arrendamento com promessa de compra/trespasse. Imovel totalmente equipado e em pleno funcionamento desde 1993, com carteira de clientes e volume de negócios sustentavel e localização previligiada. Não perca a oportunidade e marque a sua visita.
AMI: 10179
Ref. Externa: DSPFRAS101
Id: 1101121
Inicie sessão para guardar este imóvel e aceder à sua lista de favoritos em qualquer dispositivo.
8.500.000 €
Área útil : 12748 m²
Residencial sénior implantada em cerca de 20.000 m2, com 67 apartamentos T1 e 36 suites As instalações contemplam 1 sala de cinema, 1 ginásio, 1 court de tenis, 1 biblioteca, 1 zona de restauração, 1 vasta área de esplanada e jardim, 1 circuito de manutenção exterior, 1 piscina coberta. Os 3 edifícios tem área bruta privativa de 7.258 m2 O edifício 2 e 3 onde se encontram os T1 têm 179 estacionamentos Necessita de obras
AMI: 1563
Ref. Externa: ptm4425
Id: 1061022
Inicie sessão para guardar este imóvel e aceder à sua lista de favoritos em qualquer dispositivo.
135.000 €
Área útil : 100 m²
Snack Bar café, / Pastelaria com refeições em pleno funcionamento na Avenida João de Deus Ermesinde. É vendido devoluto. Há possibilidade dar continuidade com o inquilino que se encontra neste momento na exploração, mediante negociação de novo contrato de arrendamento. Tem lugar de garagem. Casas de banho e esplanada.
AMI: 23882
Ref. Externa: PBESSAMR588
Id: 872548
Inicie sessão para guardar este imóvel e aceder à sua lista de favoritos em qualquer dispositivo.
317.000 €
Área bruta : 594 m²
Pão Quente/ Pastelaria/ Cafeteria à Venda em Ermesinde - Valongo.Estabelecimento Tradicional em Zona habitacional, Industrial e residencial, em Ermesinde, com excepcional fluxo de carros e pessoas. Equipado e Capacitado para grande procura de fabrico, venda, revenda e entrega de pão, pastelaria, confeitaria e venda de refeições, para Trespasse com Cessão de Quotas.Estabelecimento com exímia conservação tanto na parte de atendimento ao público, como também nas partes de indústria e confecção. Conta com magníficas instalações, super amplas, arejadas, iluminadas naturalmente e bem decoradas e distribuídas.Possui esplanada ampla, elevada e com belas vistas.Na porta do estabelecimento e junto ao edifício encontra-se parqueamento, o que contribui para uma ótima carteira de clientes.O Estabelecimento possui 2 Áreas de Negócios:- Venda Balcão:Excelente Fluxo Diário de Vendas no Balcão, com uma Faturação Média Mensal de (*)€- Jogos Da Santa Casa:Agente OFICIAL DOS JOGOS DA SANTA CASA, o que Garante uma Rentabilidade Anual que ronda o valor de (*)€, tendo um Plafond Semanal de (*)€.Não Possui Qualquer Tipo de Contrato com Fornecedores, sendo que uma Marca de Renome em Café já fez uma oferta de 35.000€ para realizar um possível contrato.Todo o imobilizado da indústria, como também da parte comercial, está livre de qualquer ônus ou encargos e fazem parte do negócio.Obs: * As Informações Ocultas Serão Divulgadas Oportunamente e Pessoalmente.Investir em uma cessão de quotas torna-se um excelente negócio pois:- Custo dos equipamentos já incluído no preço, instalados e em pleno funcionamento.Acrescido de:- Poupança de tempo, pois já está a adquirir um negócio estabelecido e em pleno funcionamento;- Presença de clientes habituais;- Relacionamentos comerciais com fornecedores;- Negócio com provas de sucesso;- Usufruto da localização e do bom nome do estabelecimento criado e cultivado há anos.Ótima oportunidade de negócio.As frações têm licença para Restauração e Bebidas.O imóvel conta ainda com:- Porta de Acesso em Vidro e Alumínio;- Divisórias Internas em Vidro e Alumínio;- Porta Automática;- Ar Condicionado;- Persianas rolô em todas as portas;- Sistema de vídeovigilância e vigilância remota 24h;- Alarme automático com controlo via App;- Sistema de Combate e Prevenção contra incêndios;- Ótima Iluminação Natural.- 7 vagas para estacionamento.- Elevadores.Mais sobre localização e acessos:O imóvel está localizado em uma importante Zona Industrial e Comercial dos arredores do Porto, onde pode encontrar nas Proximidades vastas opções de Comércios e Serviços, tais como: Bancos, Cafés, Supermercados, Farmácias, Bombas de Combustíveis, Hotéis, Fast Food, Restaurantes e Loja do Cidadão entre Outros.- Locais, Distância e tempo em minutos de carro:Staples: 1,0 Km;Loja do Cidadão: 2,9 Km (6 min);CTT: 3,3 Km (7 min);Worten: 2,8 Km (6 min);Rádio Popular: 2,7 Km (6 min).Mercadona: 2,6 Km (6 min);Continente: 2,8 Km (6 min);LIDL: 3,1 Km (7 min);Intermarché: 3,4 Km (8 min).Maia Shopping: 5,0 Km (11 min);NorteShopping: 17,1 Km (19 min).Aeroporto Internacional Francisco Sá Carneiro: 15,8 Km (13 min).Marque já a sua visita!Todos os nossos imóveis se encontram em regime de partilha.
AMI: 22190
Ref. Externa: ST01-742
Id: 778348
Inicie sessão para guardar este imóvel e aceder à sua lista de favoritos em qualquer dispositivo.
85.000 €
Área bruta : 70 m²
Loja comercial para investidores em Ermesinde muito bem localizado. Com uma área bruta de 70m2. Servido com Wc serviço. Dois arrumos. Uma frente de loja com uma boa montra. Rua com algumas lojas comercias como também com transportes públicos por perto. Também existe a possibilidade de arrendamento com opção de compra. A licença de alvará permite restauração, comércio e serviços. Loja arrendada com um contrato de 5 anos e com uma boa taxa de rentabilidade. Não perca esta oportunidade de fazer um excelente investimento. Possibilidade de arrendamento pelo valor mensal de 600,00 euros.
AMI: 9631
Ref. Externa: SHNcmb392
Id: 716673
Inicie sessão para guardar este imóvel e aceder à sua lista de favoritos em qualquer dispositivo.
37.500 €
Área de terreno : 30 m²
GARAGEM BOX, com 30m2, no centro de Ermesinde. Principais características: - Luz Solar Direta - Paredes totalmente revestidas a azulejo - Chão revestido com cerâmica - Caixa de saída p/ Águas - Instalação elétrica Inserida em prédio só 6 condóminos. Entrada com comando.
AMI: 7142
Ref. Externa: RT/02536
Id: 689824
Inicie sessão para guardar este imóvel e aceder à sua lista de favoritos em qualquer dispositivo.
100.000 €
Área bruta : 70 m²
Trespasse Café Snack-Bar com salão de jogos. Estabelecimento em pleno funcionamento com clientela fidelizada. Totalmente equipado e remodelado. Perto de transportes e estação de comboiosMarque já a sua visita!A FRONTAL distingue-se pela amplitude no serviço de qualidade prestado ao cliente e encara sempre os desafios com rigor e frontalidade.Segmento Residencial - conta com uma vasta equipa de comerciais, dinâmica e ambiciosa que tem por missão prestar um serviço de excelência, alicerçada numa vasta experiência do mercado, respeitando os mais elevados padrões de ética, descrição e integridade, contribuindo assim para o crescimento da marca e da satisfação dos seus clientes.Apoiados por um departamento autónomo, trata de todos os processos administrativos e de financiamento acompanhando o cliente até á escritura.Através da sua rede de Sucursais, Know-How, Dinâmica e Inovação Comercial, apoiada em ferramentas de Marketing, a Frontal responde eficazmente aos desafios que os seus clientes e parceiros possam lançar.Segmento Empresarial - concentra-se na oferta de soluções diferenciadas a empresas e a clientes empresariais que procuram um produto dotado de um alto grau de especificidade.Segmento Empreendimentos – tem o seu foco especializado na comercialização de Empreendimentos, contemplando um Serviço Global de Venda, apoiado numa Estratégia de Marketing e Estudo de Mercado, definindo um posicionamento claro e ajustado à dinâmica da oferta e da procura tendo como foco superar as suas expectativas.
AMI: 9590
Ref. Externa: L-06/10833
Id: 401933
Inicie sessão para guardar este imóvel e aceder à sua lista de favoritos em qualquer dispositivo.
120.000 €
1 WCs
Área bruta : 95 m²
Loja para comércio com 95 m2 em Alfena Inserida em zona residencial, com comercio envolvente. É composta por: -Loja principal; -Escritório; -Arrumos; -WC; Situada em local de excelência de comércio diversificado, ao lado dos correios, farmácia, talho, ourivesaria, pastelaria de fabrico próprio, cabeleireiro situada na avenida principal onde existe muito estacionamento sem parquímetro. Imóvel para: VENDA 335/N/01578 - 120.000 ARRENDAMENTO 335/N/01580 - 650 Venha conhecer nos, teremos todos o prazer para esclarecer as suas questões bem como abrir as nossas portas ao seu investimento. ComprarCasa, Onde as Histórias Acabam Bem! Política da Qualidade ComprarCasa ComprarCasa tem como compromisso prestar um serviço de excelência aos diversos intervenientes no sector da mediação imobiliária, disponibilizando para tal as melhores ferramentas que possibilitam potenciar o negócio imobiliário. A política de qualidade da Rede ComprarCasa proporciona um marco de referência ao estabelecer e rever periodicamente os objetivos da Rede e ao garantir o cumprimento dos requisitos da norma, Legislação, Regulamentação, Sistema da Qualidade implementado e outros requisitos aplicáveis à atividade. ComprarCasa, Where Stories End Well! BuyHouse Quality Policy ComprarCasa is committed to providing an excellent service to the various players in the real estate mediation sector, providing for this the best tools that make it possible to enhance the real estate business. The quality policy of the CompraCasa Network provides a benchmark by establishing and periodically reviewing the Network's objectives and ensuring compliance with the requirements of the standard, Legislation, Regulations, the implemented Quality System and other requirements applicable to the activity.
AMI: 10037
Ref. Externa: 335/N/01578
Id: 286115
Inicie sessão para guardar este imóvel e aceder à sua lista de favoritos em qualquer dispositivo.
Estes agentes são especialistas nesta zona:
Inicie sessão para ocultar este imóvel das suas pesquisas e manter a sua lista de resultados organizada.
Guardar favoritos
Este imóvel foi guardados nos seus favoritos com sucesso.
Para poder guardar pesquisa deverá ter a sua sessão iniciada.
Caso não tenha uma conta, deverá criar uma.
A sua pesquisa foi guardada com sucesso!
© Copyright 2023 | CASACERTA. All rights reserved
Este site utiliza cookies. Ao navegar no site estará a consentir a sua utilização.
Para mais informações sobre os cookies pode consultar a
política de privacidade.