Lista
Comprar
Arrendar
132.000 €
Área bruta : 370 m²
BAIXA DE PREÇO! Antes: 135.600€ | AGORA 132.000€ Apresentamos um imóvel com história e um potencial imobiliário extraordinário, localizado em Anadia (Águeda). Conhecido por ter acolhido as famosas caves e a emblemática discoteca 'Fora D'Horas', este edifício de rés-do-chão e 1.º andar oferece uma estrutura robusta e áreas generosas para qualquer tipo de investimento. Potencial 'Simplex': Transforme em Habitação (não dispensa a consulta e autorização da Câmara local) Ao abrigo do novo Simplex Urbanístico (DL 10/2024), este imóvel é o candidato ideal para conversão em habitação. Com 370 m² de área bruta, as possibilidades são infinitas: - Lofts Industriais: Aproveite o pé-direito elevado e o mezanino para criar apartamentos de design único. - Moradia Independente: Uma residência de luxo com terraço privativo e áreas sociais amplas. - Alojamento Local / Guest House: Dada a proximidade ao Hipódromo da Bairrada e às caves vinícolas. Distribuição e Áreas: - Área Total do Terreno: 310 m² | Área de Implantação: 185 m² - Área Bruta de Construção: 370 m² PISO 0 (Rés-do-Chão): - Receção e salão amplo com 2 balcões de bar. - Mezanino (aproveitando o pé-direito alto). - Instalações sanitárias e zonas de arrumos. PISO 1: - Cozinha industrial e salão secundário. - Instalações sanitárias. - Terraço de Cobertura: Um espaço exterior privativo com enorme potencial para zona de lazer ou rooftop. Descrição em documentação: 'Edifício de rés do chão e 1º andar a comércio e indústria de vinhos tendo no rés do chão um compartimento destinado a lavagem de garrafas, compartimento para engarrafamento e gasificação, compartimento para rotulagem e embalagem, compartimento para sala de exposição e lavabos, e o 1º andar com quatro compartimentos para escritórios e armazém de matérias primas, dependência com um compressor e ainda cave para envelhecimento de vinhos.' Múltiplas Vertentes de Negócio: Além do potencial para transformar em habitação, a afetação atual enquadra-se em 'armazém e atividade industrial' tendo sido o último licenciamento para 'restaurante no 1º andar', podendo o espaço dar origens a atividades como (a título de exemplo): - Restauração e Eventos: Espaço ideal para casamentos, danceteria ou restaurante temático. - Bem-Estar: Ginásio de grandes dimensões ou um Spa com sauna e jacuzzi. - Empresarial: Coworking criativo ou sede de empresa com armazém logístico. Localização Estratégica: Situado no coração da região demarcada da Bairrada, próximo de referências como: - Caves Arcos do Rei e Hipódromo da Bairrada. - Malaposta (1,5 km) e Mealhada (9 km). - Excelentes acessos: Águeda (19 km), Aveiro (30 km) e Coimbra. Invista com Segurança - Gaiphedra Imobiliária Na Gaiphedra, simplificamos o processo. Com mais de 30 anos de experiência, apoiamos a sua visão em toda a fase do processo de compra. Nota: As novas regras do Simplex facilitam a reconversão de espaços comerciais em habitacionais, dispensando licenças para obras interiores e agilizando prazos camarários. Venha descobrir o potencial deste espaço único. Agende a sua visita!
AMI: 6338
Ref. Externa: AV385
Id: 1631422
Inicie sessão para guardar este imóvel e aceder à sua lista de favoritos em qualquer dispositivo.
775.000 €
Área bruta : 3776 m²
Prédio no centro de Anadia para venda em lote com 3776 m2.Para recuperar e investir em construção em altura.Palacete e dependências com vasto jardim e enorme frente numa das principais artérias de Anadia.Venha conhecer esta oportunidade de investimento única no coração da cidade e faça a sua proposta.
AMI: 9635
Ref. Externa: MEATM3197
Id: 1355569
Inicie sessão para guardar este imóvel e aceder à sua lista de favoritos em qualquer dispositivo.
790.000 €
Área bruta : 904 m²
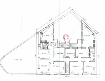
Descubra este espaço encantador, ideal para quem procura um refúgio com charme vintage e uma envolvência natural de cortar a respiração. Localizado numa zona privilegiada, este imóvel destaca-se pelas suas características únicas: Ambiente vintage e acolhedor, perfeito para habitação, negócio ou lazer. Vistas desafogadas, proporcionando tranquilidade e uma ligação harmoniosa com a natureza. Zona verde envolvente, ideal para momentos de relaxamento ou atividades ao ar livre. Amplo terraço, perfeito para refeições ao pôr do sol, convívios ou apenas para desfrutar do ambiente sereno. Com uma atmosfera que combina história e conforto, este espaço é uma excelente oportunidade para quem valoriza detalhes únicos e um estilo de vida descontraído. Seja para viver, criar um negócio de sucesso ou um espaço de lazer inesquecível, esta propriedade adapta-se às suas necessidades. Não perca a oportunidade de adquirir este imóvel singular! Contacte-nos já para mais informações ou para agendar uma visita. A Realty One Group, é a marca que mais cresce nos Estados Unidos, com mais de 17 anos, e quase 1.000 lojas e 20.000 colaboradores em 16 países, estando já aberto em Portugal, Espanha, Itália e em breve em França e Alemanha. O presidente da Realty One Group é o Vinnie Tracey, que foi presidente durante 40 anos de uma das marcas líderes mundiais, e é hoje é o Líder da Realty One Group, que com toda sua experiência esta a tornar a Realty One Group, uma das marcas Líderes nos Estados Unidos, e que já alguns anos, se espalhar para todo mundo. Motivos para escolher a ONE AS PESSOAS PRIMEIRO.. Contamos com vários anos, com vários agentes premiados. -Os consultores têm formação de alto nível nacional e internacional, como os melhores formadores nacionais e internacionais, em todas vertentes do negócio, e de forma gratuita para o pode ajudar com mais eficiência. “Enquanto usufrui dos prazeres da sua vida, compre e venda o seu imóvel de forma rápida e segura...” ONE house, ONE dream, ONE life (style)
AMI: 24497
Ref. Externa: ONE171580-1
Id: 1024590
Inicie sessão para guardar este imóvel e aceder à sua lista de favoritos em qualquer dispositivo.
295.000 €
Área bruta : 373 m²
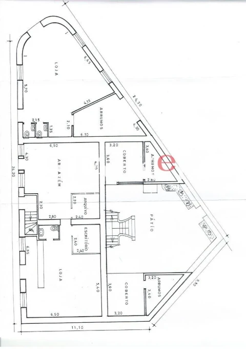
Prédio urbano de uso misto, comercial e habitacional, inserido na zona nobre da cidade , composto por: - Bar/cafetaria, totalmente equipado, em funcionamento , com pátio/jardim no interior e esplanada no exterior, decorado com excelente bom gosto, onde os diferentes estilos se cruzam de forma harmoniosa, situado no rés do chão, e com licença para comércio, serviços e restauração. - Dois apartamentos T2 com mais de 100m2 cada um, localizados no primeiro andar, compostos por dois quartos, cozinha, wc completo e sala, sendo que um deles tem um fantástico terraço com mais de 40m2. O Município de Anadia, inserido em pleno centro da Região da Bairrada, caracteriza-se pela diversidade cultural que oferece a quem visita. Anadia é uma cidade portuguesa pertencente ao distrito de Aveiro, situando-se aproximadamente a meio caminho entre as cidades de Aveiro e Coimbra. Situado na Região Demarcada dos Vinhos da Bairrada, o município de Anadia está muito ligado à produção de vinho, possuindo a Estação Vitivinícola da Bairrada e o Museu do Vinho. A mancha vitícola, produtora dos famosos vinhos e espumantes, que atravessa a freguesia de Paredes do Bairro, é uma das paisagens mais bonitas que se pode apreciar no concelho de Anadia. Anadia dispõe de um vasto conjunto de equipamentos sociais, sobretudo na área desportiva, onde se destaca o complexo desportivo de Anadia e Velódromo Nacional — Centro de Alto Rendimento de Sangalhos. O complexo desportivo de Anadia é composto por piscinas, 3 courts de ténis, campo sintético de futebol de 7, campo sintético de futebol de 11, e um multi-desportivo onde já se realizou a final da taça de Portugal de basquetebol. Dispõe, também, de uma biblioteca e Cine-Teatro. O termalismo é uma das principais atrações turísticas de Anadia. As termas da Curia têm um parque, que para além do Hotel, possui um lago artificial, diversas pontes, campos de jogos e casa de chá. Aquae Curiva era o nome conhecido ao tempo da ocupação da Península Ibérica pelos romanos, que conheciam as nascentes e as exploravam. Hoje em dia, oferecem aos habitantes e visitantes do município a tradição termal aliada ao conforto e à tecnologia moderna, satisfazendo as exigências do aquista durante todo o ano, tanto para uma cura termal como para férias relaxantes. Já as termas do Vale da Mó são conhecidas pela qualidade das suas águas, ricas em ferro e magnésio, o que as tornam únicas na Europa. (Informação retirada do site do Município de Anadia e Wikipédia ) _____ STALKER re ____ A distinção "STALKER " se destacará e atrairá aqueles que procuram uma experiência imobiliária recompensadora e excecional. A Stalker RE tem uma equipa que está sempre um passo à frente, que trabalha incansavelmente para alcançar os resultados. Com uma abordagem inovadora e empolgante no setor, encapsulamos a jornada do cliente, revelando um mundo de possibilidades, ao mesmo tempo que transmitimos a mensagem de comprometimento e sucesso.
AMI: 22706
Ref. Externa: 1158
Id: 967085
Inicie sessão para guardar este imóvel e aceder à sua lista de favoritos em qualquer dispositivo.
Estes agentes são especialistas nesta zona:
Inicie sessão para ocultar este imóvel das suas pesquisas e manter a sua lista de resultados organizada.
© Copyright 2023 | CASACERTA. All rights reserved
Guardar favoritos
Este imóvel foi guardados nos seus favoritos com sucesso.
Para poder guardar pesquisa deverá ter a sua sessão iniciada.
Caso não tenha uma conta, deverá criar uma.
A sua pesquisa foi guardada com sucesso!
Este site utiliza cookies. Ao navegar no site estará a consentir a sua utilização.
Para mais informações sobre os cookies pode consultar a
política de privacidade.