Lista
Comprar
Arrendar
1.600.000 €
Área bruta : 1610 m²
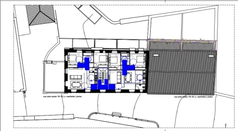
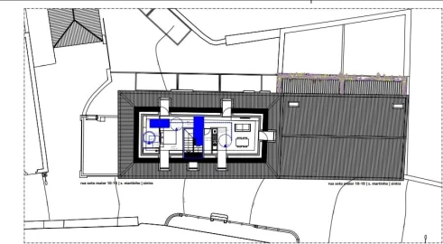
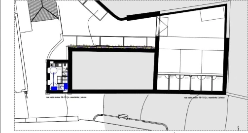
Prédio para Reabilitação com Projeto Aprovado para ConstruçãoSobre o ImóvelPrédio para reabilitação com 11 apartamentos.Inclui 7 lugares de estacionamento cobertos e 5 descobertos.Zonas verdes comuns e jardins privados, proporcionando um ambiente agradável e tranquilo.Projeto prevê a restauração e ampliação dos edifícios existentes, mantendo as fachadas de alvenaria de pedra e incorporando elementos modernos para maior funcionalidade e conforto.Último piso contará com uma varanda com pérgula, criando um espaço ao ar livre harmonioso.O terreno incluirá uma cobertura de duas águas simples, respeitando a estética tradicional.Apartamentos variam entre 4 T1 e 7 T2, com áreas entre 41m² e 155m², distribuídos por quatro andares acima do solo.Sobre o BairroLocalizado no coração do centro histórico de Sintra, uma das zonas mais emblemáticas e procuradas de Portugal.Situado numa zona rodeada por montanhas, proporcionando vistas incríveis e um ambiente único.Próximo de patrimónios históricos, restaurantes, comércio local e atrações turísticas.Excelente localização para habitação própria, exploração turística ou arrendamento.Esta é uma oportunidade unica de investir numa das melhores e mais históricas zonas de Portugal. Contacte-nos para agendar a sua visita!
AMI: 18638
Ref. Externa: CB17-0072
Id: 1598444
Inicie sessão para guardar este imóvel e aceder à sua lista de favoritos em qualquer dispositivo.
1.350.000 €
4 WCs
Área bruta : 883 m²
Excelente oportunidade de investimento!Vende-se Palacete em plena zona histórica de São Pedro de Sintra, com área útil 864m2, dividido por 17 assoalhadas em estilo clássico. O edificio foi construido em 1951, onde ocupa todo um quarteirão com 5 números de porta. Dois deles para habitação e 3 para comércio, onde ainda funciona em um café / restaurante e logradouro com 40m2, armazém e garagem para uns 4 carros.O imóvel é vendido sem inquilinos. Este prédio é para reconstrução. com enorme potencial para investimento turístico, como um pequeno hotel de charme ou dividi-lo em 5 a 6 apartamentos.A localização é privilegiada, situada na encosta da luxuriante Serra, em São Pedro de Sintra, sendo considerado um dos locais mais bonitos de Portugal. Perto de Palácios, Casas Senhoriais e Jardins Exóticos. O edifício fica a alguns minutos do Parque Nacional de Sintra, do Castelo dos Mouros, construído durante o período de dominação árabe, do Palácio da Pena construído por D. Fernando II, no século XIX, bem como do Palácio da Vila do século XI durante o domínio exclusivo na Península Ibérica. Este imóvel também fica próximo ao litoral, onde pode encontrar as melhores praias, como a Praia do Guincho, Praia das Maças, Praia Grande, etc. São Pedro é conhecido pelo seu comércio, pelas velharias e antiguidades, e pela proximidade com o centro histórico Património Cultural da Humanidade de Sintra, que, com um crescente número de visitantes, tem sabido manter as suas tradições e beleza patrimonial. A localidade exibe ainda uma orgulhosa Igreja Paroquial, consagrada a São Pedro, sendo uma das primeiras paróquias portuguesas, juntamente com três outras que D. Afonso Henriques construiu em Sintra, depois da tomada definitiva da Vila aos mouros, em 1147.Muito célebre é a Feira de São Pedro que se realiza todos os segundos e quartos domingos de cada mês no Largo D. Fernando II. Fica a 1 minuto onde está localizado este casarão. Esta é uma feira que origens remontam ao século XII, onde se encontra de tudo um pouco, sendo provavelmente a maior feira do concelho de Sintra.Lisboa fica uns escasso 30 minutos bem como o aeroporto internacional e uns 20 minutos as praias mais bonitas da Costa do Estoril, Praia Grande e Guincho. Características: Características Gerais - Para remodelar; Orientação - Nascente; Norte; Sul; Poente; Outras características - Garagem; Moradia;
AMI: 16107
Ref. Externa: 1218-312
Id: 1432522
Inicie sessão para guardar este imóvel e aceder à sua lista de favoritos em qualquer dispositivo.
1.890.000 €
Área bruta : 727 m²
Este edifício em Sintra oferece uma excelente oportunidade para desenvolvimento, com diversas vantagens tanto pela localização quanto pelas possibilidades de aproveitamento do projeto. Com 1411 m² de área bruta de construção e inserido em um terreno de 690 m², o imóvel já conta com um projeto aprovado que permite a criação de uma unidade hoteleira de 4 esrelas ou outro conceito dentro do ramo com 34 unidades. Características principais: - Localização privilegiada: Situado no centro de Sintra, a apenas 5 minutos a pé do centro da vila, com fácil acesso a comércio, restaurantes, lojas e serviços. A região é conhecida pelo seu charme, e o projeto visa valorizar ainda mais as características únicas do local. - Acesso rápido a importantes centros: A 15 minutos de carro das escolas internacionais TASIS e CAISL, do shopping CascaiShopping e do centro de Cascais, e a 40 minutos de Lisboa e do Aeroporto Humberto Delgado. - Valorização com a reconstrução: Parte do trabalho de reconstrução já foi iniciado, preservando o charme original da região, o que pode aumentar ainda mais o valor do imóvel, ao unir a modernização com a estética tradicional de Sintra. Com essas características, este imóvel pode atender a diversos conceitos de negócios, desde o setor hoteleiro até empreendimentos residenciais ou mistos. A proximidade com a vila de Sintra e outros centros urbanos é um diferencial importante para quem busca um projeto de sucesso nesta região.
AMI: 7183
Ref. Externa: KWPT-008079
Id: 1431803
Inicie sessão para guardar este imóvel e aceder à sua lista de favoritos em qualquer dispositivo.
Sob consulta
Área bruta : 1251 m²
Oportunidade de aquisição de prédio habitacional no Cacém, composto por 14 apartamentos (tipologias T2 e T3), duas garagens e elevador. Localizado junto à principal avenida da freguesia, numa zona com elevada procura e acessibilidade, o edifício encontra-se a poucos minutos da estação de comboio e do centro comercial. O prédio está atualmente 100% arrendado, com contratos recentes e, na sua maioria, sem renovação. Imóvel em bom estado, com custos mensais de manutenção e limpeza de apenas 250/mês. Gera um rendimento mensal de 11.400. Contacte-nos para mais informações ou agendamento de visita.
AMI: 23920
Ref. Externa: PRIV-032
Id: 1204119
Inicie sessão para guardar este imóvel e aceder à sua lista de favoritos em qualquer dispositivo.
989.000 €
10 Quartos
7 WCs
Área bruta : 510 m²
À venda: um prédio notável situado no coração do Magoito, Sintra, que oferece uma combinação única de charme histórico e potencial moderno. Este imóvel, implantado num lote de 921 m², possui uma área bruta de construção de 590 m² e está dividido em 6 frações em regime de propriedade total, tornando-se uma oportunidade de investimento excecional no concelho de Sintra, classificado como Património Mundial pela UNESCO. Este edifício histórico destaca-se pelas suas características originais excecionalmente bem preservadas, mantidas com cuidado e enriquecidas ao longo do tempo com melhorias e manutenções regulares. Com a possibilidade de criar até 17 quartos individuais, oferece versatilidade para uso residencial ou até mesmo para um projeto de Boutique Hotel. O imóvel dispõe atualmente de 6 frações, contando com 10 quartos, 6 casas de banho, garagem, estacionamento e um agradável jardim. Distribuído por três pisos, o layout é o seguinte: Rés-do-chão (R/C): Dois apartamentos T1, cada um com logradouro junto à cozinha e salas amplas de 49 m² e 66 m². Primeiro piso: Dois apartamentos T2 com salas espaçosas e marquisesm com 65m² e 62m². Segundo piso (águas furtadas): Dois pequenos apartamentos T2 no espaço convertido do sótão, com uma altura de pé direito de 1,90 metros, com 38m² e 25m². No exterior, o imóvel inclui um anexo/garagem de 95m² com pé direito duplo, proporcionando potencial adicional. Localizado no centro do Magoito, uma vila tranquila mas bem conectada em Sintra, este prédio combina o encanto de uma construção histórica com a praticidade da vida moderna. Seja como residência familiar, propriedade para arrendamento de várias unidades ou um empreendimento comercial único, esta é uma descoberta rara numa das regiões mais queridas de Portugal, rodeada por beleza natural e significado cultural.
AMI: 11721
Ref. Externa: HMBK4482
Id: 1102434
Inicie sessão para guardar este imóvel e aceder à sua lista de favoritos em qualquer dispositivo.
749.500 €
6 Quartos
6 WCs
Área bruta : 360 m²
Edifício Histórico em Sintra Oportunidade Única de Investimento No coração da zona nobre de Sintra, este charmoso edifício antigo com 6 apartamentos de um quarto é uma verdadeira joia que combina tradição e modernidade. A poucos passos do Paço da Vila e a 10 minutos da estação de comboios, esta propriedade oferece uma localização privilegiada e incomparável. Uma Combinação de História e Conforto Moderno Preservando o encanto da arquitetura clássica, o prédio mantém as características originais que definem a autenticidade do local, como portas e portadas em madeira maciça pintadas de branco. Ao mesmo tempo, as infraestruturas essenciais eletricidade, canalização, esgotos, rede de TV e climatização foram recentemente renovadas, garantindo comodidade e eficiência para os futuros moradores ou hóspedes. Versatilidade e Potencial Este imóvel representa uma oportunidade excepcional para investidores, seja para exploração turística (tem licença de AL) ou arrendamento de longa duração. A localização estratégica atrai tanto residentes locais quanto turistas, proporcionando uma taxa de ocupação elevada ao longo de todo o ano. Viver o Melhor de Sintra Morar ou investir aqui significa estar cercado pela rica história, cultura e beleza natural de Sintra, um Patrimônio Mundial da UNESCO. A proximidade de palácios, jardins e charmosos cafés torna este edifício uma escolha ideal para quem deseja vivenciar o melhor que a vila tem a oferecer. Não perca a oportunidade de fazer parte da história de Sintra com este imóvel singular. EN: Historic Building in Sintra A Unique Investment Opportunity Located in the heart of Sintra's prestigious district, this charming historic building with six one-bedroom apartments is a true gem, blending tradition and modernity. Just steps away from Paço da Vila and a 10-minute walk from the train station, this property boasts an unparalleled and highly sought-after location. A Blend of History and Modern Comfort While preserving the charm of classical architecture, the building retains its original features that reflect the authenticity of the area, such as solid white-painted wooden doors and shutters. At the same time, essential infrastructures including electricity, plumbing, sewage, TV network, and climate control have been recently upgraded, ensuring comfort and efficiency for future residents or guests. Versatility and Potential This property offers an exceptional opportunity for investors, whether for tourist rentals (licensed as a local accommodation, or AL) or long-term leases. Its strategic location attracts both local residents and tourists, ensuring high occupancy rates throughout the year. Experience the Best of Sintra Living or investing here means being immersed in the rich history, culture, and natural beauty of Sintra, a UNESCO World Heritage Site. Surrounded by palaces, gardens, and charming cafés, this building is the ideal choice for anyone wishing to enjoy the very best the town has to offer. Don't miss the chance to own a piece of Sintra's history with this unique property. Schedule your visit today!
AMI: 1
Ref. Externa: 140125
Id: 1026284
Inicie sessão para guardar este imóvel e aceder à sua lista de favoritos em qualquer dispositivo.
1.600.000 €
Área bruta : 1216 m²
Este projeto é um exemplo de como arquitetura contemporânea e valorização do patrimônio podem coexistir, promovendo uma Sintra funcional e integrada sem perder seu encanto histórico. Projeto de Requalificação no Centro Histórico de Sintra A intervenção prevê o restauro e ampliação dos edifícios existentes, com a preservação das fachadas de alvenaria de pedra e a inserção de novos elementos modernos que irão otimizar a funcionalidade e melhorar a qualidade de vida dos futuros moradores. No piso superior, será adicionada uma varanda com pérgula, oferecendo um espaço ao ar livre integrado ao ambiente, enquanto no piso térreo será criada uma cobertura de duas águas simples, respeitando a arquitetura tradicional. Localizado no coração do centro histórico de Sintra, este projeto envolve três edifícios voltados para a Rua Soto Maior, com um logradouro situado na parte posterior. A proposta contempla a transformação e ampliação dos imóveis, criando um edifício residencial coletivo que combina história e modernidade. **Conceito e Intervenção** O projeto divide-se em dois tipos de intervenção: - **Reabilitação Profunda**: Atualização do interior dos edifícios com materiais e tecnologias modernas, preservando sua essência histórica. - **Métodos Tradicionais**: Emprego de técnicas clássicas para garantir harmonia estética e cultural com a paisagem de Sintra. O antigo edifício das cavalariças será transformado em um espaço habitacional composto por duas frações, integrando-se ao conjunto de forma funcional e respeitosa com sua história. **Integração Urbana** Os edifícios conectam-se de maneira fluida à Rua Soto Maior e ao logradouro posterior, acessado por uma rua lateral. O logradouro será reorganizado como um pequeno pátio, otimizando o uso dos espaços e separando funções, com foco na valorização do uso habitacional em regime de propriedade horizontal. **Restauro e Conservação**: Preservação das fachadas principais, empenas e alinhamento da fachada posterior no rés-do-chão. Técnicas e materiais tradicionais serão utilizados para manter a identidade histórica e cultural. - **Reconstrução e Adaptação**: Ampliação do antigo edifício térreo das cavalariças, incluindo a criação de um piso em cave para estacionamento e arrecadações. A fachada principal será mantida, reforçando o equilíbrio entre o novo e o tradicional. A entrada para a cave, onde será instalado o estacionamento, será feita a partir do logradouro, permitindo um acesso direto e prático, sem comprometer a estética e a fluidez do espaço urbano. A utilização de técnicas modernas em combinação com métodos tradicionais visa criar um ambiente harmônico, respeitando o legado arquitetônico da cidade e promovendo um desenvolvimento sustentável e inovador para as futuras gerações. O projeto desenvolve-se em três núcleos distintos, demarcando-se claramente dois tipos de intervenção: uma de reabilitação profunda no seu interior, com introdução de novos materiais e tecnologias modernas, e outra utilizando as técnicas e os métodos tradicionais. O edifício será composto por 11 apartamentos com tipologias T0, T1 e T2. 2 apartamentos T0 2 apartamentos T1 7 apartamentos T2 Cada unidade foi projetada para maximizar a luz natural e a ventilação, criando ambientes amplos e agradáveis, com foco no bem-estar dos moradores. Além disso, o projeto incorpora soluções sustentáveis, como o uso de materiais ecológicos e tecnologias de eficiência energética, alinhando-se às tendências de habitação moderna e responsável.
AMI: 1032
Ref. Externa: CB01-0571
Id: 1017638
Inicie sessão para guardar este imóvel e aceder à sua lista de favoritos em qualquer dispositivo.
1.100.000 €
12 Quartos
8 WCs
Área bruta : 580 m²
Identificação do imóvel: ZMPT559408Localizado na Av dos Bombeiros Voluntários na Agualva, este prédio é uma jóia rara no mercado imobiliário, representando uma oportunidade de investimento excepcional.A propriedade é composta por seis apartamentos, quatro dos quais foram recentemente renovados, evidenciando um compromisso com a modernidade e conforto.Além disso, inclui uma loja dupla, ampliando o seu potencial de rendimento.A infraestrutura do prédio foi significativamente melhorada, com a instalação de uma nova coluna de água e a renovação do telhado com tinta impermeável, garantindo assim uma manutenção reduzida e a durabilidade da propriedade.Estas atualizações destacam o cuidado e a atenção aos detalhes, aumentando o seu apelo tanto para inquilinos quanto para investidores.Estrategicamente localizado próximo de escolas e do encantador Jardim da Quinta da Fidalga, este prédio beneficia de uma localização privilegiada que promove um estilo de vida equilibrado e acessível.Esta proximidade com instituições educacionais e espaços verdes é particularmente atraente para famílias, aumentando a demanda pelos apartamentos e, consequentemente, o potencial de rentabilidade do investimento.Do ponto de vista financeiro, a propriedade gera um rendimento mensal robusto de 4.650,00 €, ou seja, 55.800,00 € anuais. Com a maioria dos contratos de arrendamento sendo novos e renováveis anualmente, existe a flexibilidade para ajustar as rendas de acordo com as tendências do mercado, maximizando o retorno sobre o investimento. A loja, com um contrato de seis anos, oferece uma fonte de renda estável e de longo prazo, complementando os rendimentos dos apartamentos.Esta oferta inclui material visual detalhado, como fotos e vídeos de um dos apartamentos renovados, demonstrando o alto padrão de qualidade alcançado.Embora o certificado energético tenha sido emitido antes das renovações, o potencial para melhorias na eficiência energética apresenta uma oportunidade adicional para aumentar o valor da propriedade.Para investidores à procura de uma propriedade com características distintas, localização estratégica e alto potencial de rendimento, este prédio na Av dos Bombeiros Voluntários na Agualva é uma opção incomparável. Oferece não apenas um retorno financeiro atraente mas também um investimento em qualidade de vida, posicionando-se como uma escolha privilegiada no mercado imobiliário.Porquê comprar com a Zome?Nós gostamos de ajudar os compradores encontrar a sua casa de sonho! É por isso que trabalhamos com cada cliente individualmente, dedicando o tempo necessário para entender o seu estilo de vida, necessidades e desejos. Somos especialistas em trabalhar com pessoas que estão a comprar uma casa e gostaríamos de lhe mostrar de que forma poderá comprar a sua casa.Quando escolhe a Zome obtém:- Um agente imobiliário com a melhor formação do mercado- Visualização das casas com antecedência- Informação sobre novas casas no mercado- Informação sobre outras casas vendidas e por que valores- Apresentação das melhores soluções financeiras para aquisição do imóvel- Apoio no processo de financiamento (se requerido)- Presença na avaliação do imóvel- Apoio na marcação e realização do CPCV (Contrato Promessa Compra e Venda)- Apoio na marcação e realização da escritura pública de compra e venda3 razões para comprar com a Zome+ AcompanhamentoCom uma preparação e experiência única no mercado imobiliário, os consultores Zome põem toda a sua dedicação em dar-lhe o melhor acompanhamento, orientando-o com a máxima confiança, na direção certa das suas necessidades e ambições. Daqui para a frente, vamos criar uma relação próxima e escutar com atenção as sua s expectativas, porque a nossa prioridade é a sua felicidade! Porque é importante que sinta que está acompanhado, e que estamos consigo sempre.+ SimplesOs consultores Zome têm uma formação única no mercado, ancorada na partilha de experiência prática entre profissionais e fortalecida pelo conhecimento de neuro-ciência aplicada que lhes permite simplificar e tornar mais eficaz a sua experiência imobiliária. Deixe para trás os pesadelos burocráticos porque na Zome encontra o apoio total de uma equipa experiente e multidisciplinar que lhe dá suporte prático em todos os aspectos fundamentais, para que a sua experiência imobiliária supere as expectativas.+ FelizO nosso maior valor é entregar-lhe felicidade!Liberte-se de preocupações e ganhe o tempo de qualidade que necessita para se dedicar ao que lhe faz mais feliz. Agimos diariamente para trazer mais valor à sua vida com o aconselhamento fiável de que precisa para, juntos, conseguirmos atingir os melhores resultados. Com a Zome nunca vai estar perdido ou desacompanhado e encontrará algo que não tem preço: a sua máxima tranquilidade! É assim que se vai sentir ao longo de toda a experiência:Tranquilo, seguro, confortável e... FELIZ!Notas:1. Caso seja um consultor imobiliário, este imóvel está disponível para partilha de negócio. Não hesite em apresentar aos seus clientes compradores e fale connosco para agendar a sua visita.2. Para maior facilidade na identificação deste imóvel, por favor, refira o respetivo ID ZMPT.
AMI: 4662
Ref. Externa: ZMPT559408
Id: 538150
Inicie sessão para guardar este imóvel e aceder à sua lista de favoritos em qualquer dispositivo.
Estes agentes são especialistas nesta zona:
Inicie sessão para ocultar este imóvel das suas pesquisas e manter a sua lista de resultados organizada.
© Copyright 2023 | CASACERTA. All rights reserved
Guardar favoritos
Este imóvel foi guardados nos seus favoritos com sucesso.
Para poder guardar pesquisa deverá ter a sua sessão iniciada.
Caso não tenha uma conta, deverá criar uma.
A sua pesquisa foi guardada com sucesso!
Este site utiliza cookies. Ao navegar no site estará a consentir a sua utilização.
Para mais informações sobre os cookies pode consultar a
política de privacidade.