ArrowRightBlue

Provesende, Gouvães Douro, S.Cristóvão Douro

1 Prédios para Venda - Provesende, Gouvães Douro, S.Cristóvão Douro, Sabrosa

Lista

Lista

mapa

9 WCs

Área útil : 269 m²

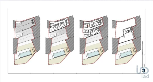
Projeto Aprovado para Turismo em Espaço Rural – Provesende, Douro Uma oportunidade única no coração do Douro Vinhateiro (Património Mundial da UNESCO) Apresentamos um projeto aprovado pela Câmara Municipal para a reabilitação, ampliação e alteração de um edifício histórico na pitoresca aldeia de Provesende, destinado a Turismo em Espaço Rural – Casas de Campo. Todos os projetos de especialidade já foram entregues, garantindo um processo rápido para avançar para obra. Trata-se de uma oportunidade rara para quem procura investir no turismo de charme, num dos destinos mais procurados de Portugal. ✨ Destaques do investimento: • ✔ Projeto de Arquitetura já aprovado • ✔ Projetos de especialidade entregues dentro do prazo • ✔ Integração de piscina e estacionamento • ✔ Forte potencial de rentabilidade no setor turístico em expansão • ✔ Localização privilegiada numa aldeia histórica do Douro Vinhateiro-UNESCO Localização • Aldeia de Provesende, uma das mais emblemáticas do Douro • Região classificada pela UNESCO, com elevado fluxo de turismo nacional e internacional • Zona em crescente valorização imobiliária e turística Projeto Arquitetónico (em imagens) Plantas • Distribuição funcional dos espaços por piso, otimizando conforto e experiência do hóspede • Piscina integrada no espaço exterior, com estacionamento previsto Alçados e Corte *Fachada principal preservando a traça histórica • Soluções arquitetónicas modernas, em perfeita harmonia com o contexto rural Implantação / Localização * Inserção do edifício no coração de Provesende, rodeado por vinhas e património. Contacto Não perca esta oportunidade de investir num negócio sólido, com projeto aprovado e pronto a arrancar. Contacte-nos para mais informações e agende já uma reunião de apresentação do projeto. #ref: 148561

AMI: 11220

Ref. Externa: 148561

Id: 1373182

Este agente é especialista nesta zona:

Clicky