Filtros
0 · 2 resultados120.000 €
Área útil : 36 m²
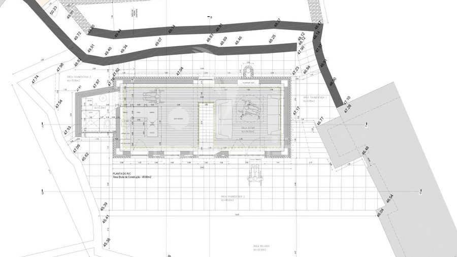
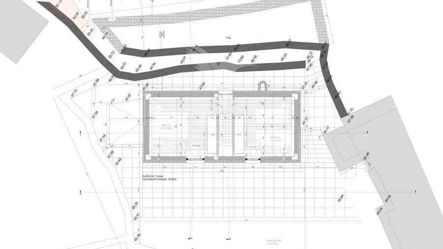
Ruinas, Para Venda, na Candelária com projeto de construção aprovado.Terreno com 254 m² localizado na freguesia da Candelária, concelho da Madalena, na Ilha do Pico, constituído por duas ruínas e com projeto de construção já aprovado para duas moradias independentes. Esta é uma excelente oportunidade de investimento, permitindo a construção de duas habitações com utilização flexível, seja para habitação própria e arrendamento, ou para exploração em alojamento local, numa zona com crescente procura turística. O projeto contempla uma moradia principal com cerca de 44,92 m², uma segunda moradia com aproximadamente 30,23 m² e uma área complementar de cerca de 32,63 m², com uma arquitetura pensada para se integrar na paisagem típica da ilha, incluindo espaços exteriores agradáveis e acessos independentes. Situado numa zona tranquila, o imóvel beneficia de proximidade a mercearias e pequeno comércio local, bem como a trilhos pedestres ideais para lazer e contacto com a natureza, encontrando-se ainda a cerca de 5 minutos de carro de restaurantes, farmácia e zona balnear. Trata-se de uma solução ideal tanto para investidores como para quem procura uma segunda habitação nos Açores com potencial de rendimento, destacando-se pelo facto de já possuir projeto aprovado, o que permite avançar de imediato com a construção e reduzir significativamente o tempo e a burocracia do processo.Marque já a sua visitia!Predimed Imobiliária, Mediação Imobiliária, Lda.Avenida Brasil 43, 12º Andar, 1700-062 LisboaLicença AMI nº 22503Pessoa Coletiva nº 517 239 345Seguro Responsabilidade Civil: Nº de Apólice RC65379424 Fidelidade
AMI: 13558
Ref. Externa: 059030
Id: 1694811
Inicie sessão para guardar este imóvel e aceder à sua lista de favoritos em qualquer dispositivo.
Profissionais que conhecem esta zona a fundo — contacte-os para uma avaliação personalizada.
98.500 €
2 Quartos
Área bruta : 92 m²
Procura um refúgio no coração da magnífica Ilha do Pico? Esta é a sua oportunidade!Inserida num lote de 223m², esta ruína situa-se na freguesia de São Caetano, concelho da Madalena, oferecendo um ambiente tranquilo e envolvente natural única.A propriedade conta já com um projeto de arquitetura aprovado, que prevê a criação de uma moradia moderna e funcional:Piso térreo: Espaço social com sala de estar e jantar, cozinha e WC.Piso superior: Dois quartos de casal, proporcionando total privacidade e conforto.Além disso, os quartos contarão com claraboias panorâmicas Velux, totalmente controláveis remotamente. Com ligação à internet, o sistema inteligente ajusta automaticamente temperatura, ventilação e obscurecimento, garantindo o máximo conforto.Ideal para quem procura sossego e qualidade de vida, num local de grande beleza natural.Predimed Imobiliária, Mediação Imobiliária, Lda.Avenida Brasil 43, 12º Andar, 1700-062 LisboaLicença AMI nº 22503Pessoa Coletiva nº 517 239 345Seguro Responsabilidade Civil: Nº de Apólice RC65379424 Fidelidade
AMI: 13558
Ref. Externa: 051022
Id: 1118950
Inicie sessão para guardar este imóvel e aceder à sua lista de favoritos em qualquer dispositivo.
© Copyright 2023 | CASACERTA. All rights reserved
Guardar favoritos
Este imóvel foi guardados nos seus favoritos com sucesso.
Para poder guardar pesquisa deverá ter a sua sessão iniciada.
Caso não tenha uma conta, deverá criar uma.
A sua pesquisa foi guardada com sucesso!
Este site utiliza cookies. Ao navegar no site estará a consentir a sua utilização.
Para mais informações sobre os cookies pode consultar a
política de privacidade.