Área de terreno : 100000 m²

100 000m2 com Vinha e Olival, no Douro. Portugal, Sabrosa, Douro. Propriedade de 10ha. Cuidada, situada em Sabrosa, região do Douro, vende-se com 60 000m2 de vinha e 1 600 oliveiras em produção. PROPRIEDADE de ENCOSTA, vinha de 12 anos, castas tradicionais, a produzir quantidade de uvas equivalente a 70 pipas de vinho, sendo 20 pipas para BENEFÍCIO de VINHO do PORTO. Produz 4 000 litros de azeite. Não possui adega. Dispõe de armazém moderno de 200m2. Em região com excesso de natureza, de solo xistoso, de prodigiosas paisagens, microclima, exposição a sul e poente, acesso típicos. A 7km do Pinhão e rio Douro, a 1 hora do Porto. JPP tem experiência e saber em vendas a compradores ingleses e franceses e pode guiá-lo pormenorizadamente e em confiança durante todo o processo de visita e compra. Preço de venda com tratores e equipamentos agrícolas: 750.000€ (negociável). Referência 9742. Fotos de Inverno.

AMI: 445

Ref. Externa: 9742_T

Id: 1077891

Área bruta : 4280 m²

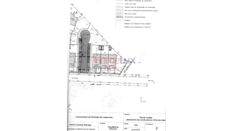
Excelente localização, centro de São Martinho, 10 min de Vila Real. Atributos: terreno rústico Acesso Pavimentado, Árvores de Fruto, Asfaltado, Iluminação Pública, Ligação a rede de água, Ligação a rede de saneamento, Ligação a rede elétrica, Vista de cidade, terreno grande no centro da vila Aceita permuta. junto a estrada nº 322-2 em direção a Igreja Matriz São Martinho de Anta terreno para construção já com Projeto aprovado para urbanização pela camara municipal Sabrosa. Marque já uma Visita. ami: 13867

AMI: 13867

Ref. Externa: HL0929

Id: 623059

Área de terreno : 3500 m²

Ruína para restaurar em terreno de 3.500m2 com oliveiras. Portugal, Douro, Sabrosa. Ruína situada em encosta, integrada em pequeno olival com 130 árvores, a produzir 200 litros de azeite, em paisagem verdejante de sonho. Ruína com cerca de 110m2 para recuperar integralmente e terreno rústico de 3.500m2 em aldeia típica, tranquila, isolado, no Douro, em Sabrosa, vende-se. Local com eletricidade, internet, água canalizada e saneamento. A 10 minutos do rio Douro. JPP tem experiência e saber em vendas a compradores ingleses e franceses e pode guiá-lo pormenorizadamente e em confiança durante todo o processo de visita e compra. Preço de venda: 99.000€. Referência 9267. Imagens do local, da região e do rio Douro.

AMI: 445

Ref. Externa: 9267_T

Id: 476320

Área de terreno : 29000 m²

29.000m2 de terreno rústico p/ plantações novas. Portugal, Sabrosa, Douro. Vende-se, em Provesende, Sabrosa, Vila Real, terreno adequado para plantação nova de Vinha, Olival, Amendoal ou outras culturas. Terreno de encosta, com bom acesso a estrada nacional, em região vinhateira, sem culturas e sem edificação. A 10 min. de carro do centro de Sabrosa e a 15 min. do rio Douro. JPP tem experiência e saber em vendas a compradores ingleses e franceses e pode guiá-lo pormenorizadamente e em confiança durante todo o processo de visita e compra. Preço de venda: 58.000€. Referência 9266. Imagens da região.

AMI: 445

Ref. Externa: 9266_T

Id: 476316

Clicky