ArrowRightBlue

Landim

1 Terrenos Comércio / Armazém para Venda - Landim, Vila Nova de Famalicão

Lista

Lista

mapa

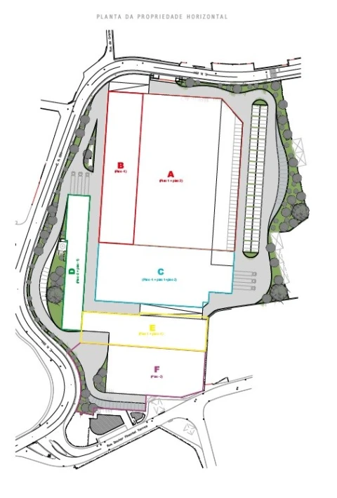
Área bruta : 2010 m²

Terreno Industrial localizado em Avidos - Vila Nova de Famalicão, a 3Km da saída da auto-estrada (A3 e A7), destinado a armazém e atividade industrial. Com capacidade para uma implantação de 2010 m2, o terreno é dotado de excelente visibilidade para a estrada nacional 206 que liga o concelho de Vila Nova de Famalicão ao município Santo Tirso. O terreno apresenta-se com excelentes capacidades construtivas, praticamente plano e possibilitando ainda um logradouro frontal com de 1160m2 Venha conhecer...

AMI: 8366

Ref. Externa: 3299-3

Id: 807929

Este agente é especialista nesta zona:

Clicky