Lista
Comprar
Arrendar
Área de terreno : 2352 m²
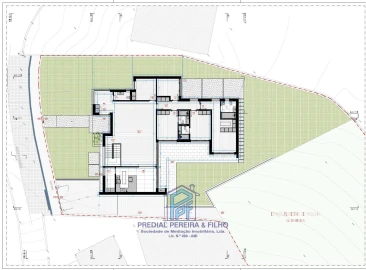
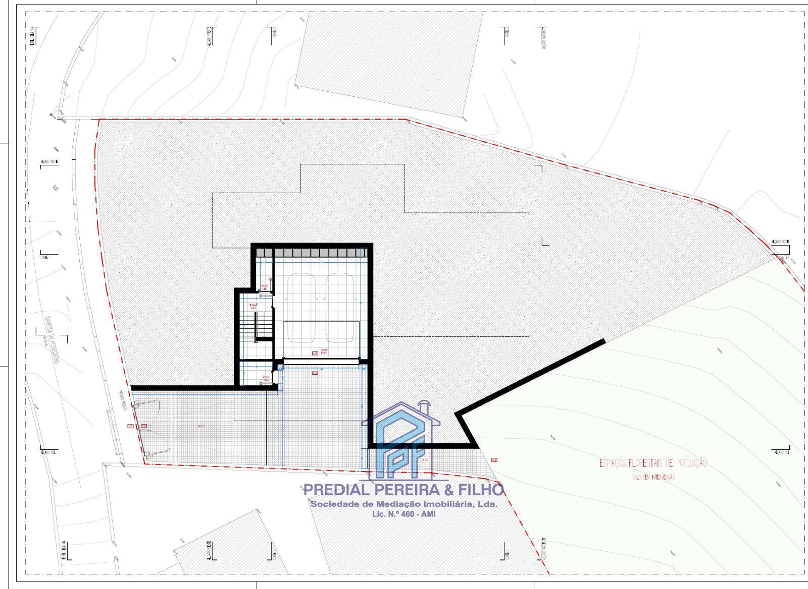
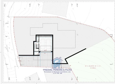
Gondomar / Melres Terreno com a área total de 2.352,35m2, com projeto aprovado para uma moradia de 4 frentes, composta de 2 pisos, com a área de construção de 335,90m2, a ser implantada na parte frontal do terreno com 761,91m2 (Espaços Residencias Tipo II- PDM) A restante área de 1.590,44m2, com aptidão agrícola e florestal, nos termos do Plano Diretor Municipal (PDM). A sua localização em ambiente natural, a qualidade do solo e o enquadramento legal tornam-no ideal para diversos tipos de uso produtivo e sustentável, oferecendo um excelente equilíbrio entre tranquilidade, produção sustentável e proximidade com a natureza. Utilizações Legais Permitidas: 1. Exploração Agrícola • Cultivo de culturas anuais e permanentes: cereais, legumes, vinha, olival, árvores de fruto. • Instalação de sistemas de rega e técnicas agrícolas modernas. • Possibilidade de criação de hortas biológicas ou agricultura regenerativa. 2. Exploração Florestal • Plantação e gestão de espécies florestais legalmente permitidas (pinheiro bravo, sobreiro, castanheiro, entre outros). • Atividade silvícola com potencial para comercialização de madeira e cortiça. • Projetos de reflorestação com incentivos públicos disponíveis. 3. Construções e Infraestruturas de Apoio • Construção de infraestruturas de apoio à atividade agrícola ou florestal, como: • Armazéns para armazenamento de equipamentos e produtos. • Estufas, depósitos de água, abrigos para animais ou maquinaria. • Cercas, portões e caminhos internos. • Todas as construções devem ser licenciadas pela Câmara Municipal, com base no uso rural do terreno. 4. Outros Usos Complementares • Apicultura: colocação de colmeias para produção de mel e derivados. • Pastoreio extensivo: criação de gado em regime livre. • Turismo em espaço rural: possível mediante projeto aprovado, como: • Casas de campo, glamping, ecoturismo ou agroturismo. • Sujeito a avaliação do impacto ambiental e aprovação camarária. Informações Adicionais • O terreno pode ser elegível para apoios e fundos europeus no âmbito da agricultura, silvicultura ou turismo rural. • Qualquer intervenção deve seguir as normas do Regime Jurídico da Urbanização e Edificação (RJUE) e respetiva legislação municipal. Ideal para investidores, agricultores, produtores florestais ou empreendedores rurais, que pretendem aliar a sua residencia à sua actividade empresarial ou profissional num só lugar. Este terreno oferece um excelente equilíbrio entre tranquilidade, produção sustentável e proximidade com a natureza. Distâncias (aproximadas): Gondomar Centro: 15-20 min Porto (Campanhã): 25-30 min Acesso à A41: 10-15 min Acesso à A32: 15-20 min Para mais informações e marcação de visitas, contacte-nos PREDIAL PEREIRA & FILHO – SOC. MED. IMOB., LDA. Lic. n. º 460-AMI “A Merecer a sua Confiança, desde 1989”.
AMI: 460
Ref. Externa: TE0156 i
Id: 1266268
Inicie sessão para guardar este imóvel e aceder à sua lista de favoritos em qualquer dispositivo.
Área de terreno : 2352 m²
Gondomar / Melres Terreno com a área total de 2.352,35m2, com projeto aprovado para uma moradia de 4 frentes, composta de 2 pisos, com a área de construção de 335,90m2, a ser implantada na parte frontal do terreno com 761,91m2 (Espaços Residencias Tipo II- PDM) A restante área de 1.590,44m2, com aptidão agrícola e florestal, nos termos do Plano Diretor Municipal (PDM). A sua localização em ambiente natural, a qualidade do solo e o enquadramento legal tornam-no ideal para diversos tipos de uso produtivo e sustentável, oferecendo um excelente equilíbrio entre tranquilidade, produção sustentável e proximidade com a natureza. Utilizações Legais Permitidas: 1. Exploração Agrícola • Cultivo de culturas anuais e permanentes: cereais, legumes, vinha, olival, árvores de fruto. • Instalação de sistemas de rega e técnicas agrícolas modernas. • Possibilidade de criação de hortas biológicas ou agricultura regenerativa. 2. Exploração Florestal • Plantação e gestão de espécies florestais legalmente permitidas (pinheiro bravo, sobreiro, castanheiro, entre outros). • Atividade silvícola com potencial para comercialização de madeira e cortiça. • Projetos de reflorestação com incentivos públicos disponíveis. 3. Construções e Infraestruturas de Apoio • Construção de infraestruturas de apoio à atividade agrícola ou florestal, como: • Armazéns para armazenamento de equipamentos e produtos. • Estufas, depósitos de água, abrigos para animais ou maquinaria. • Cercas, portões e caminhos internos. • Todas as construções devem ser licenciadas pela Câmara Municipal, com base no uso rural do terreno. 4. Outros Usos Complementares • Apicultura: colocação de colmeias para produção de mel e derivados. • Pastoreio extensivo: criação de gado em regime livre. • Turismo em espaço rural: possível mediante projeto aprovado, como: • Casas de campo, glamping, ecoturismo ou agroturismo. • Sujeito a avaliação do impacto ambiental e aprovação camarária. Informações Adicionais • O terreno pode ser elegível para apoios e fundos europeus no âmbito da agricultura, silvicultura ou turismo rural. • Qualquer intervenção deve seguir as normas do Regime Jurídico da Urbanização e Edificação (RJUE) e respetiva legislação municipal. Ideal para investidores, agricultores, produtores florestais ou empreendedores rurais, que pretendem aliar a sua residencia à sua actividade empresarial ou profissional num só lugar. Este terreno oferece um excelente equilíbrio entre tranquilidade, produção sustentável e proximidade com a natureza. Distâncias (aproximadas): Gondomar Centro: 15-20 min Porto (Campanhã): 25-30 min Acesso à A41: 10-15 min Acesso à A32: 15-20 min Para mais informações e marcação de visitas, contacte-nos PREDIAL PEREIRA & FILHO – SOC. MED. IMOB., LDA. Lic. n. º 460-AMI “A Merecer a sua Confiança, desde 1989”.
AMI: 460
Ref. Externa: TE0156
Id: 1188293
Inicie sessão para guardar este imóvel e aceder à sua lista de favoritos em qualquer dispositivo.
Área de terreno : 4850 m²
Terreno com PIP Aprovado para 3 Moradias em São Pedro da Cova – Fânzeres, Gondomar Este lote de 4.850m² situa-se em uma zona tranquila e bem servida de São Pedro da Cova, ideal para a construção de 3 moradias unifamiliares em banda, conforme PIP aprovado. Com uma área edificável de 1.440m², o terreno está classificado como Solo Urbanizado – Espaços Residenciais Tipo II no PDM de Gondomar. Características do Terreno: •Área Total: 4.850m² •Área Bruta de Construção Permitida: 1.440m² •Área por Habitação: 480m² (aproximadamente) •Índice de Utilização: 0,8 •Altura Máxima: 12m (3 pisos: Rés do Chão, 1º andar e 2º andar) Inicie aqui o seu novo projeto para um novo lar para a sua família, nesta urbanização privilegiada sem trafego, na Rua das Regadas. Aqui poderá viver irá proporcionar tranquilidade, ao mesmo tempo em que estar próximo de várias comodidades e serviços essenciais, como: » 200m da Escola Básica EB 2.3 de São Pedro da Cova » 500m do Hipermercado Pingo Doce » 650m da Junta de Freguesia de São Pedro da Cova » 750m da Igreja Matriz de São Pedro da Cova » 1 km Unidade de saúde local; e ainda » acesso facilitado às principais vias e auto estradas A41/A3 e A4; » inserido em um ambiente residencial sossegado, ideal para famílias que procuram qualidade de vida; » zona com infraestruturas completas; Este terreno representa uma excelente oportunidade de investimento para quem deseja construir 3 moradias modernas e confortáveis em um local estratégico de Gondomar. Para saber mais sobre este terreno contate ainda hoje. Hugo Santos - PROMAG PROMAG Portugal, a Escolha Inteligente! Caso necessite, na PROMAG podemos ajudá-lo com o seu financiamento bancário de forma rápida e segura, juntamente com os nossos vários parceiros de crédito.
AMI: 21552
Ref. Externa: PROMAG#193
Id: 997724
Inicie sessão para guardar este imóvel e aceder à sua lista de favoritos em qualquer dispositivo.
Área de terreno : 14000 m²
Terreno com 14000m2 de terreno misto de urbano e rustico pertencente ao Lugar da Bulha, com capacidade construtiva Localizado em Jovim - Gondomar, na Rua da Touta, a cerca de 3 minutos do IC29, a propriedade fica a 15 minutos do centro do Porto, a 18 minutos do Centro de Vila Nova de Gaia, a 19 minutos do Aeroporto Francisco Sá Carneiro e a 23 minutos do centro de Matosinhos. Benvindo à VILA LUSA, uma marca registada da Forma Régia – Mediação Imobiliária Unipessoal, Lda. Somos uma empresa de Mediação Imobiliária com sede em Matosinhos, mas com imóveis e comerciais por todo o país, embora em maior força no Grande Porto, Alto Douro e Viseu. Possuímos para venda ou arrendamento todo o tipo de imóveis, em que as origens tanto podem ser o particular, como empresas promotoras, ou as mais diversas entidades financeiras e/ou bancos, alguns dos quais trabalham connosco em estreita relação há longos anos. Fiel ao slogan “Imobiliário com Alma”, o nosso objetivo número um será servir sempre bem o cliente, com o melhor preço, e garantia de satisfação. Com estes critérios pretendemos fazer de cada cliente um amigo fiel, e a nossa melhor publicidade no mercado. As nossas apresentações de produto na internet procuram ser simples e objetivas. A quase totalidade dos visitantes, procuram o espaço certo, no local mais adequado, e com o melhor preço. Ao descomplicar pretendemos a simplicidade, e com isso angariar mais visitas, satisfazer mais clientes, e no final receber a recompensa da sua satisfação. Atingido esse objetivo sem dúvida seremos referência, e estaremos realizados. Nascida como Forma Régia em 2007, em 2012 adotou a Marca VILA LUSA, iniciando aí um perfil de expansão, ao reunir alguns dos melhores profissionais do mercado, com muitos anos de experiência, provas dadas, e uma credibilidade fora do comum, como principais regras para representarem a Marca, obviamente coordenados e coadjuvados por esta nova gerência com mais de 30 anos de atividade no sector. É com estes predicados que nos apresentamos, e que esperamos fazer de si Mais Um Cliente Satisfeito, que certamente nos recomendará. Construímos relações. Estamos no Imobiliário com Alma Não hesite, contacte-nos! Ponha-nos à prova e verá a diferença!
AMI: 7917
Ref. Externa: 807241052
Id: 786408
Inicie sessão para guardar este imóvel e aceder à sua lista de favoritos em qualquer dispositivo.
Área de terreno : 794 m²
Terreno em Baguim do Monte com 794m2 . Este Terreno dá para Construção de Moradia com Garagem, R/c, 1ºAndar e 2ºAndar . Zona de Moradias muito Bonitas . Fica no centro de Baguim . Muito próximo de Escolas e Infantários, comércio, Hipermercados, Transportes Públicos, Metro, Centro de Saúde, Centro Comercial Parque Nascente, Hospital de São João . Aqui pode realizar o seu projeto de vida, da forma como o idealizou, um Imóvel à sua disposição . Temos uma equipa multidisciplinar à sua disposição para tornar este seu sonho em realidade, de forma fácil e breve . Somos Parceiros oficiais do Banco de Portugal, podemos desta forma apresentar-lhe as melhores hipóteses para o seu caso, seja o seu primeiro crédito, ou caso já tenha outros também . Não deixe escapar esta oportunidade de transformar em realidade o que vem a idealizar até agora ! Estamos ao seu dispor para todas as questões que veja necessárias ! Entre em contacto connosco . Estamos cada vez mais perto de si, agora também com lojas em Gondomar e Baguim do Monte ! Vamos levar o Imobiliário com Alma mais Além ! A sua satisfação é o nosso combustível para o sucesso !
AMI: 7917
Ref. Externa: 807231018
Id: 512834
Inicie sessão para guardar este imóvel e aceder à sua lista de favoritos em qualquer dispositivo.
Área de terreno : 30000 m²
Area de 30000m2, com possibilidade de construçao numa parte do terreno, mais ao menos 1 hectarTem um moinho, furo, mina e deposito de agua com 650m3. Paineis solaresPoderá, tambem ser para , turismo rural com colocaçao de bengalows.https://www.youtube.com/embed/hK1Ed1FhPmgFRACÇÃO EXACTAFundada em 2008, hoje contamos com uma rede imobiliária de 18 lojas no Distrito do Porto e mais de 140 colaboradores.A nossa atividade é pautada pelo brio e profissionalismo por isso encontrará em cada profissional da Fracção Exacta, rigor, competência e uma atitude focada permanentemente, na busca das melhores soluções.Temos como Visão ser a maior rede imobiliária, 100% Portuguesa a atuar em Portugal, oferecendo as melhores condições aos compradores, vendedores e colaboradores.Intermediário de Crédito aprovado pelo Banco de Portugal com especiais condições de financiamento.Tratamos de toda a documentação sem custos.Partilhamos os nossos imóveis.Junte-se a nós!
AMI: 8866
Ref. Externa: 22.0/207
Id: 320954
Inicie sessão para guardar este imóvel e aceder à sua lista de favoritos em qualquer dispositivo.
Área de terreno : 19940 m²
Terreno com 19.940m2 de área em S. Pedro da Cova com 2 entradas excelente para construção de condomínio fechado de moradias, podendo ter corte ténis/campo jogos e piscina. Também apto a construção de Armazéns. Possui água de mina com poço. Excelente oportunidade para construtores ou outro tipo de investidores.
AMI: 7142
Ref. Externa: AR/01255
Id: 193553
Inicie sessão para guardar este imóvel e aceder à sua lista de favoritos em qualquer dispositivo.
Área de terreno : 5180 m²
Terreno rústico com 5180m2, localizado numa zona nobre de Jovim, na Quinta das Luzes, a 100m do Rio Douro. Já teve projecto aprovado para a construção de 16 moradias, que poderá ser transformado em urbano. Devido à sua localização e desenho geográfico poderá ser feita uma construção em condómino fechado. A poucos Quilómetros da Marina do Freixo e da ligação com a VCI e A1, tem também perto a escola Naval Infante D. Henrique, assim como a algumas praias fluviais, fica relativamente perto do centro de Gondomar. Com todas as condições para a construção de um empreendimento de luxo. O reconhecimento global do mercado ajuda-nos a fortalecer a nossa posição como marca de mediação imobiliária Chave Nova, com o maior sucesso a nível local. Seja bem-vindo. As equipas que integramos são fortemente focadas e especializadas na sua área de localização, de forma a ajudá-lo a tomar sempre uma decisão informada sobre a compra ou venda do seu imóvel. Definidos na CONFIANÇA, orientados para a EXCELÊNCIA e valorizados pelo MÉRITO, faz da Chave Nova uma indiscutível referência Nacional para quem investe no mercado imobiliário em Portugal. PORQUÊ COMPRAR COM A CHAVE NOVA? Participar no sonho das pessoas é a nossa paixão! É por isso que trabalhamos com cada cliente de forma personalizada, dedicando o tempo necessário para entender o que é para ele a sua casa de sonho. Somos especialistas em trabalhar com pessoas que estão a comprar a sua casa e gostaríamos de lhe mostrar a melhor forma de o fazer. QUANDO ESCOLHE A CHAVE NOVA, OBTÉM: • Um agente imobiliário profissional e conhecedor do mercado • Um aliado comprometido em negociar no seu interesse • Os sistemas e ferramentas necessárias para agilizar a compra da sua casa • O apoio de uma empresa de confiança. COMPROMETEMO-NOS A AJUDÁ-LO NA COMPRA DA SUA CASA ATRAVÉS DE: • Visualização das casas com antecedência • Manter informado sobre novas casas no mercado • Ajudar a pesquisar casas na web • Informação sobre outras casas vendidas e por que valores • Trabalhar até encontrar a casa dos seus sonhos • Apresentação das melhores soluções financeiras para aquisição do imóvel • Apoio no processo de financiamento (se requerido) • Presença na avaliação do imóvel • Apoio na marcação e realização do CPCV (Contrato Promessa Compra e Venda) • Apoio na marcação e realização da escritura pública de compra e venda. Sendo a seriedade e honestidade o nosso lema, estamos sempre à distancia de um click, para que possa visitar os nossos imóveis o mais comodamente possível. A nossa maior referência, são os nossos clientes, a sua satisfação, é o nosso objetivo primordial. O nosso empenho e esforço traduz-se em sólidos conhecimentos, utilizados na análise de mercado de todo o tipo de imóveis, para assim entender os desejos, motivações e necessidades de todos os nossos clientes. Para além deste imóvel, dispomos de mais imóveis que de certeza encaixam naquilo que pretende. Para todas as informações que desejar, estamos ao seu inteiro dispor CHAVE NOVA ARRÁBIDA www.chavenova.com Praceta Henrique Moreira, 12 4400-346 Vila Nova de Gaia Tel. 22 091 18 00
AMI: 7142
Ref. Externa: AR/02877
Id: 149859
Inicie sessão para guardar este imóvel e aceder à sua lista de favoritos em qualquer dispositivo.
Área de terreno : 960 m²
Se procura uma zona maravilhosa , tranquila e muito perto da Cidade para viver então este terreno é o ideal para si. Lote de terreno para construção de moradia, com 960m2 , inserido numa paisagem natural mas perto dos acessos rápidos ao Porto , Gondomar etc.. Tem projeto para construção de Prédio com rés do chão e mais 2 andares . Para além deste imóvel, dispomos de mais imóveis que de certeza encaixam naquilo que pretende. Para mais informações sobre este ou outro imóvel e marcações de visita, contacte-nos: Marque já sua visita.
AMI: 7142
Ref. Externa: OD/01194
Id: 148953
Inicie sessão para guardar este imóvel e aceder à sua lista de favoritos em qualquer dispositivo.
810.000 €
Área de terreno : 3600 m²
Terreno para Construção Armazém com 3600 m2, Misto no centro de Rio Tinto (Sistelo), com as seguintes características: - Área de Implantação 642,20 m2 - Área de Construção 642,20 m2 + 145,00 m2 = 787,20 m2 - Construção de Armazém/Pavilhão p/ Indústria c/ um piso: 640,20 m2 Armazém + 145,00 m2 Escritórios Projeto em aprovação para construção de lar 3ª idade. Marque visita ao local e conheça o projeto de viabilidade construtiva. Localização: Rua de Sistelo, Rio Tinto - Gondomar Contacto - 967042898/968927238 (Chamada para a rede fixa ou móvel de acordo com o seu tarifário em Portugal) [email protected]/[email protected]
AMI: 1833
Ref. Externa: 160040
Id: 131864
Inicie sessão para guardar este imóvel e aceder à sua lista de favoritos em qualquer dispositivo.
Estes agentes são especialistas nesta zona:
Inicie sessão para ocultar este imóvel das suas pesquisas e manter a sua lista de resultados organizada.
Guardar favoritos
Este imóvel foi guardados nos seus favoritos com sucesso.
Para poder guardar pesquisa deverá ter a sua sessão iniciada.
Caso não tenha uma conta, deverá criar uma.
A sua pesquisa foi guardada com sucesso!
© Copyright 2023 | CASACERTA. All rights reserved
Este site utiliza cookies. Ao navegar no site estará a consentir a sua utilização.
Para mais informações sobre os cookies pode consultar a
política de privacidade.