Excelente oportunidade para investimento / construção em altura numa zona com grande valorização
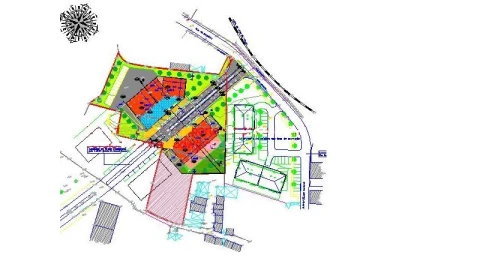
Vendo terreno para construção com 5700 m2 - com possibilidade de negociar o acrescento de mais cerca de 1000 m2 - com Pedido de Informação Prévia aprovado para 37 fogos, mas com possibilidade de alterar para mais de 50 fogos (pela substituição de parte dos 23 fogos de tipologia T3 previstos, por fogos das tipologias T2 e T1).
O terreno é "espaço urbano de categoria A" e situa-se numa zona plana e agradável, contígua à rotunda (a construir) na Rua do Reguinho e que será o principal acesso ao Parque da Cidade (o qual será iniciado dentro de alguns meses).
Faculto relatório de avaliação do terreno feito por técnico credenciado, que conclui pelo valor de venda do terreno! Este relatório parte do pressuposto da construção de 37 fogos mas, repito, é possível a alteração para mais de 50 fogos, pelo que o valor de venda está subavaliado.
Valor: 369.000 euros!
Entrego levantamentos topográficos e documentação relativa ao PIP aos interessados.
Este site utiliza cookies. Ao navegar no site estará a consentir a sua utilização. Para mais informações sobre os cookies pode consultar a
política de privacidade.