Lista
Comprar
Arrendar
Área de terreno : 807 m²
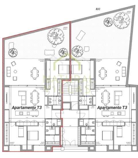
Construção de 28 apartamentos de LUXO com Vista Mar. Lote destinado a construção de edifício habitacional até 28 apartamentos, mais dois pisos de cave para estacionamentos em BOX. Área total de terreno de 807m2 e área total de construção de 3.057m2. Luxuosos apartamentos projetados com divisões amplas e varandas espaçosas. No piso térreo prevê-se a construção de um apartamento em estilo moradia com piscina privativa aquecida. Para mais informação entre sobre o projeto entre em contacto. Localizado no melhor tecido urbano de Loulé, em uma área que oferece um abrangente leque de infraestruturas públicas e privadas, garantindo um ambiente residencial consolidado e confortável. Nas proximidades de centros culturais vibrantes e a curta distância de empreendimentos de luxo e turísticos como Vilamoura, Vale do Lobo e Quinta do Lago. Não perca esta oportunidade! Projeto residencial de alto padrão em uma das áreas mais desejadas do Algarve. Marque já a sua visita através do nosso website! (Visite a seção vídeos para ficar a saber como o fazer!) Para mais informações não hesite em contactar. 'A SUA CASA NO ALGARVE'
AMI: 8923
Ref. Externa: LOT_2258_VEND
Id: 1752338
Inicie sessão para guardar este imóvel e aceder à sua lista de favoritos em qualquer dispositivo.
Área de terreno : 4067 m²
Tiago | Menezes _/0.0.3.5.1_9.1.8_3.4.5_7.4.6/_ (custo de chamada para rede móvel nacional) ? [email protected] Licença AMI: 7772 Excelente oportunidade de investimento na Marina de Albufeira, Algarve! Zona em franco crescimento quer imobiliário e turístico! Lote urbano destinado a construção de apartamentos turísticos, em habitação multifamiliar. O edificado será compostos de 5 pisos acima da cota da soleira e 1 piso abaixo. A área máx. de construção da habitação é de 6420m2, e o numero máximo de fogos será de 85. Estimaram-se fogos de tipologia T1 com 1 lugar de estacionamento cada. Área da cave estimada em 2125m2. Área terreno - 4.067m2 ---------------------------------------------------------------------------------------------- Tiago | Menezes _0.0.35.1_9.1.8_3.4.5_7.4.6. (Call cost to national mobile network) ? [email protected] AMI License: 7772 Excellent investment opportunity in Albufeira Marina, Algarve! Area experiencing strong growth in both real estate and tourism! Urban plot intended for the construction of tourist apartments, in multi-family housing. The building will consist of 5 floors above ground level and 1 floor below. The maximum construction area of the dwelling is 6420m2, and the maximum number of units will be 85. Estimated units will be T1 type with 1 parking space each. Estimated basement area: 2125m2. Land area - 4,067m2 ----------------------------------------------------------------------------------------------- Tiago | Menezes _0.0.3.5.1_9.1.8_3.4.5_7.4.6. (Coût d'un appel vers un réseau mobile national) ? [email protected] Numéro de licence AMI : 7772 Excellente opportunité d'investissement à Albufeira Marina, en Algarve ! Secteur en forte croissance, tant sur le plan immobilier que touristique ! Terrain urbain destiné à la construction d'appartements touristiques, au sein d'un immeuble collectif. L'immeuble comprendra 5 étages hors sol et 1 sous-sol. La surface constructible maximale est de 6 420 m² et le nombre maximal d'appartements est de 85. Les appartements seront de type T1 avec une place de parking chacun. Surface du sous-sol estimée : 2 125 m². Superficie du terrain : 4 067 m²
AMI: 7772
Ref. Externa: T-30396
Id: 1713025
Inicie sessão para guardar este imóvel e aceder à sua lista de favoritos em qualquer dispositivo.
Área de terreno : 2477 m²
Tiago | Menezes _/0-0-3-5-1_/9-1-8_3-4-5_7-4-6/_ (custo de chamada para rede móvel nacional) ? [email protected] Licença AMI: 7772 Excelente oportunidade de investimento na Marina de Albufeira, Algarve! Zona em franco crescimento quer imobiliário e turístico! Lote urbano destinado a construção de apartamentos turísticos, em habitação multifamiliar. O edificado será compostos de 3 pisos acima da cota da soleira e 1 piso abaixo. A área máx. de construção da habitação é de 3430m2, e o numero máximo de fogos será de 48. Estimaram-se 34 fogos de tipologia T1 (70m2) com 1 lugar de estacionamento cada e 7 fogos T1 com 2 lug.de estaciona. Área da cave estimada em 1200m2. Área terreno - 2.477m2 Área de implantação: 2352 m2 ---------------------------------------------------------------------------------------------- Tiago | Menezes _00351_918_345_746 (call cost to national mobile network) ? [email protected] AMI License: 7772 Excellent investment opportunity in Albufeira Marina, Algarve! Experiencing rapid growth in real estate and tourism! Urban lot designated for the construction of tourist apartments in a multi-family housing development. The building will consist of 3 floors above the threshold and 1 floor below. The maximum construction area of the house is 3,430 m2, and the maximum number of apartments will be 48. The estimated number of apartments is 34 one-bedroom apartments (70 m2) with one parking space each and 7 one-bedroom apartments with two parking spaces. The estimated basement area is 1,200 m2. Land area - 2,477 m2 Building area: 2,352 m2 ----------------------------------------------------------------------------------------------- Tiago | Menezes _0-0-3-5-1_9-1-8_3-4-5_7-4-6_ (Coût d'un appel vers le réseau mobile national) ? [email protected] Licence AMI : 7772 Excellente opportunité d'investissement à la marina d'Albufeira, en Algarve ! Un secteur en pleine croissance, tant dans l'immobilier que dans le tourisme ! Terrain urbain destiné à la construction d'appartements touristiques dans un complexe résidentiel. Le bâtiment comprendra 3 étages au-dessus du seuil et un étage en dessous. La surface constructible maximale est de 3 430 m², et le nombre maximal d'appartements est de 48. Le nombre d'appartements est estimé à 34 appartements T2 (70 m²) avec une place de parking chacun et 7 appartements T2 avec deux places de parking. La surface du sous-sol est estimée à 1 200 m². Superficie du terrain : 2 477 m² Superficie du bâtiment : 2 352 m²
AMI: 7772
Ref. Externa: T-30397
Id: 1713024
Inicie sessão para guardar este imóvel e aceder à sua lista de favoritos em qualquer dispositivo.
Área de terreno : 15636 m²
Tiago | Menezes _/0.0.3.5.1_9.1.8_3.4.5_7.4.6/_ (custo de chamada para rede móvel nacional) ? [email protected] Licença AMI: 7772 Excelente oportunidade de investimento na Marina de Albufeira, Algarve! Zona em franco crescimento quer imobiliário e turístico! Lote urbano destinado a construção de apartamentos turísticos, em habitação multifamiliar. O edificado será compostos de 2+M pisos acima da cota da soleira e 1 piso abaixo. A área máximo de construção da habitação é de 2857 m2, a área máximo de construção do comércio é de 200 m2. Totalizando no máximo 34 fracções. Área implantação: 2.857,00 m² Área Terreno - 15.636 m2 ------------------------------------------------------------------------------------------------ Tiago | Menezes _00351_918_345_746 (Call cost to national mobile network) ? [email protected] AMI License: 7772 Excellent investment opportunity in Albufeira Marina, Algarve! Experiencing rapid growth in real estate and tourism! Urban lot designated for the construction of tourist apartments in a multi-family housing development. The building will consist of 2+ million floors above the threshold and 1 floor below. The maximum construction area for the house is 2,857 m², and the maximum construction area for the commercial space is 200 m². This totals a maximum of 34 units. Building area: 2,857.00 m² Land area: 15,636 m² --------------------------------------------------------------------------------------------- Tiago | Menezes _00351_918_345_746 (Coût d'un appel vers un réseau mobile national) ? [email protected] Licence AMI : 7772 Excellente opportunité d'investissement à la marina d'Albufeira, en Algarve ! Un secteur immobilier et touristique en pleine croissance ! Terrain urbain destiné à la construction d'appartements touristiques dans un complexe résidentiel. Le bâtiment comprendra plus de 2 millions d'étages au-dessus du seuil et un étage en dessous. La surface constructible maximale pour la maison est de 2 857 m², et celle pour le local commercial est de 200 m². Soit un total de 34 unités. Superficie du bâtiment : 2 857,00 m² Superficie du terrain : 15 636 m²
AMI: 7772
Ref. Externa: T-30398
Id: 1713023
Inicie sessão para guardar este imóvel e aceder à sua lista de favoritos em qualquer dispositivo.
Área de terreno : 10897 m²
Tiago | Menezes _00351_918_345_746_ (custo de chamada para rede móvel nacional) ? [email protected] Licença AMI: 7772 Excelente oportunidade de investimento na Marina de Albufeira, Algarve! Zona em franco crescimento quer imobiliário e turístico! Lote de terreno inserido em loteamento (alvará nº 2/19) para construção de Hotel. Possibilidade de construção de 8 pisos acima da cota de soleira e 3 em cave, para 250 quartos (Hotel), com estacionamento em cave. Área terreno: 10.897,00 m² Área implantação: 8.517,00 m² Área construção: 17.100,00 m² _______________________________________________________________________ Excellent investment opportunity in Albufeira Marina, Algarve! A rapidly growing area for real estate and tourism! Plot of land within a subdivision (permit no. 2/19) for hotel construction. Possibility of building 8 floors above ground level and 3 below ground, for 250 rooms (hotel), with underground parking. Land area: 10,897.00 m² Building area: 8,517.00 m² Construction area: 17,100.00 m² --------------------------------------------------------------------------------------------- Tiago | Menezes _00351_918_345_746_ (Coût d'un appel vers un réseau mobile national) ? [email protected] Licence AMI : 7772 Excellente opportunité d'investissement à la marina d'Albufeira, en Algarve ! Zone en pleine expansion, tant pour l'immobilier que pour le tourisme ! Terrain situé dans un lotissement (permis n° 2/19) pour la construction d'un hôtel. Possibilité de construire 8 étages au-dessus du sol et 3 étages en sous-sol, pour 250 chambres (hôtel), avec parking souterrain. Superficie du terrain : 10 897,00 m² Superficie du bâtiment : 8 517,00 m² Superficie de construction : 17 100,00 m²
AMI: 7772
Ref. Externa: T-30401
Id: 1713022
Inicie sessão para guardar este imóvel e aceder à sua lista de favoritos em qualquer dispositivo.
Área de terreno : 6494 m²
Tiago | Menezes _/0-0-3-5-1_/9-1-8_3-4-5_7-4-6/_ (custo de chamada para rede móvel nacional) ? [email protected] Licença AMI: 7772 Excelente oportunidade de investimento na Marina de Albufeira, Algarve! Zona em franco crescimento quer imobiliário e turístico! Lote urbano destinado a construção de um hotel composto por no máximo 160 quartos e um mínimo de 80 lugares de estacionamento. O edificado será compostos por um máx. de 6 pisos acima da cota da soleira e 2 pisos abaixo. Estimaram-se 160 quartos e 160 lugares de estacionamento. Área da cave estimada em 4160m2. Área terreno: 6.494,00 m² Área implantação: 6.100,00 m² Área construção: 9.580,00 m² ------------------------------------------------------------------------------------------------ Excellent investment opportunity in Albufeira Marina, Algarve! A rapidly growing area for real estate and tourism! Urban lot designated for the construction of a hotel with a maximum of 160 rooms and a minimum of 80 parking spaces. The building will have a maximum of 6 floors above the threshold and 2 floors below. An estimated 160 rooms and 160 parking spaces are available. The basement area is estimated at 4,160 m². Land area: 6,494.00 m² Building area: 6,100.00 m² Construction area: 9,580.00 m² --------------------------------------------------------------------------------------------- Tiago | Menezes _0-0-3-5-1_9-1-8_3-4-5_7-4-6_ (Coût d'un appel vers le réseau mobile national) ? [email protected] Licence AMI : 7772 Excellente opportunité d'investissement à la marina d'Albufeira, en Algarve ! Un secteur en pleine croissance, tant dans l'immobilier que dans le tourisme ! Terrain urbain destiné à la construction d'un hôtel de 160 chambres maximum et de 80 places de parking minimum. Le bâtiment comptera 6 étages maximum au-dessus du seuil et 2 étages en dessous. 160 chambres et 160 places de parking ont été estimées. La surface du sous-sol est estimée à 4 160 m². Superficie du terrain : 6 494,00 m² Superficie du bâtiment : 6 100,00 m² Superficie de construction : 9 580,00 m²
AMI: 7772
Ref. Externa: T-30399
Id: 1713021
Inicie sessão para guardar este imóvel e aceder à sua lista de favoritos em qualquer dispositivo.
Área de terreno : 7899 m²
Tiago | Menezes _ 00351_918_345_746_ (custo de chamada para rede móvel nacional) ? [email protected] Licença AMI: 7772 Excelente oportunidade de investimento na Marina de Albufeira, Algarve! Zona em franco crescimento quer imobiliário e turístico! Lote de terreno inserido em loteamento (alvará nº 2/19) para construção urbana, com uso múltiplo. Possibilidade de construção de 6 pisos acima da cota de soleira e 2 em cave, para 110 fogos destinados a apartamentos turísticos, com estacionamento privativo. Área terreno: 7.899,00 m² Área implantação: 3.570,00 m² Área construção: 8.529,00 m² ---------------------------------------------------------------------------------------------- Excellent investment opportunity in Albufeira Marina, Algarve! A rapidly growing area for real estate and tourism! Plot of land located in a subdivision (permit no. 2/19) for urban development with multiple uses. Possibility of building 6 floors above ground level and 2 floors below ground level, for 110 apartments for tourist apartments, with private parking. Plot area: 7,899.00 m² Building area: 3,570.00 m² Construction area: 8,529.00 m² ---------------------------------------------------------------------------------------------- Tiago | Menezes _ 00351_918_345_746_ (Coût d'un appel vers un réseau mobile national) ? [email protected] Licence AMI : 7772 Excellente opportunité d'investissement à la marina d'Albufeira, en Algarve ! Zone en pleine expansion, tant pour l'immobilier que pour le tourisme ! Terrain situé dans un lotissement (permis n° 2/19) pour un développement urbain à usages multiples. Possibilité de construire 6 étages au-dessus du sol et 2 étages en sous-sol, pour 110 appartements touristiques, avec parking privé. Superficie du terrain : 7 899,00 m² Superficie du bâtiment : 3 570,00 m² Superficie de construction : 8 529,00 m²
AMI: 7772
Ref. Externa: T-30400
Id: 1713020
Inicie sessão para guardar este imóvel e aceder à sua lista de favoritos em qualquer dispositivo.
Área de terreno : 1758 m²
Temos o prazer de apresentar uma oportunidade excecional para adquirir um terreno para construção com projeto, com mais de 1.758 m², e com projeto já aprovado. Este terreno privilegiado está idealmente situado na prestigiada zona de Monte Nicklaus, dentro do conceituado Monte Rei Golf & Country Club, um local muito procurado no Algarve, Portugal. O terreno oferece vistas panorâmicas de cortar a respiração, oferecendo um ambiente sereno e tranquilo, além de estar convenientemente próximo da magnífica praia de Manta Rota, conhecida pela sua beleza natural e areias douradas. Para aqueles que procuram o encanto das cidades tradicionais portuguesas, as vibrantes e históricas cidades de Tavira e Vila Real de Santo António oferecem um equilíbrio perfeito entre o isolamento e o fácil acesso às comodidades locais e às atrações culturais. Este terreno apresenta uma oportunidade extraordinária para quem procura construir a casa dos seus sonhos numa das zonas mais cobiçadas do Algarve, combinando beleza natural, vida de luxo e uma localização invejável. O Monte Rei Golf & Country Club é um empreendimento exclusivo de classe mundial situado na paisagem deslumbrante do Algarve Oriental, Portugal. Reconhecido pelo seu ambiente luxuoso, este prestigiado resort oferece uma combinação incomparável de beleza natural, elegância e comodidades excecionais. No coração de Monte Rei encontra-se o famoso campo de golfe Jack Nicklaus Signature, um dos melhores da Europa, conhecido pelo seu design desafiante e arredores de cortar a respiração. O campo, situado numa extensa propriedade de 400 hectares, oferece vistas panorâmicas para as montanhas circundantes e para o Oceano Atlântico, proporcionando uma experiência de golfe verdadeiramente excepcional. Para além do campo de golfe, o Monte Rei oferece uma variedade de instalações premium, incluindo restaurantes de alto padrão, serviços de spa e villas privadas, tudo concebido para oferecer o máximo conforto e privacidade. O resort foi concebido para se misturar perfeitamente com o seu ambiente natural, garantindo que os residentes e visitantes desfrutem da tranquilidade da paisagem campestre do Algarve, estando apenas a uma curta distância de carro das praias imaculadas e das cidades vibrantes da região. Monte Rei é mais do que um simples resort de golfe, é um destino de estilo de vida requintado, perfeito para quem procura luxo, paz e exclusividade num dos locais mais apetecíveis de Portugal. O Aeroporto Internacional de Faro fica apenas a 40 a 45 minutos de carro.
AMI: 8576
Ref. Externa: GAP-10191-0289
Id: 1694510
Inicie sessão para guardar este imóvel e aceder à sua lista de favoritos em qualquer dispositivo.
Área de terreno : 1758 m²
Temos o prazer de apresentar uma oportunidade excecional para adquirir um terreno para construção com projeto, com mais de 1.758 m², e com projeto já aprovado. Este terreno privilegiado está idealmente situado na prestigiada zona de Monte Nicklaus, dentro do conceituado Monte Rei Golf & Country Club, um local muito procurado no Algarve, Portugal. O terreno oferece vistas panorâmicas de cortar a respiração, oferecendo um ambiente sereno e tranquilo, além de estar convenientemente próximo da magnífica praia de Manta Rota, conhecida pela sua beleza natural e areias douradas. Para aqueles que procuram o encanto das cidades tradicionais portuguesas, as vibrantes e históricas cidades de Tavira e Vila Real de Santo António oferecem um equilíbrio perfeito entre o isolamento e o fácil acesso às comodidades locais e às atrações culturais. Este terreno apresenta uma oportunidade extraordinária para quem procura construir a casa dos seus sonhos numa das zonas mais cobiçadas do Algarve, combinando beleza natural, vida de luxo e uma localização invejável. O Monte Rei Golf & Country Club é um empreendimento exclusivo de classe mundial situado na paisagem deslumbrante do Algarve Oriental, Portugal. Reconhecido pelo seu ambiente luxuoso, este prestigiado resort oferece uma combinação incomparável de beleza natural, elegância e comodidades excecionais. No coração de Monte Rei encontra-se o famoso campo de golfe Jack Nicklaus Signature, um dos melhores da Europa, conhecido pelo seu design desafiante e arredores de cortar a respiração. O campo, situado numa extensa propriedade de 400 hectares, oferece vistas panorâmicas para as montanhas circundantes e para o Oceano Atlântico, proporcionando uma experiência de golfe verdadeiramente excepcional. Para além do campo de golfe, o Monte Rei oferece uma variedade de instalações premium, incluindo restaurantes de alto padrão, serviços de spa e villas privadas, tudo concebido para oferecer o máximo conforto e privacidade. O resort foi concebido para se misturar perfeitamente com o seu ambiente natural, garantindo que os residentes e visitantes desfrutem da tranquilidade da paisagem campestre do Algarve, estando apenas a uma curta distância de carro das praias imaculadas e das cidades vibrantes da região. Monte Rei é mais do que um simples resort de golfe, é um destino de estilo de vida requintado, perfeito para quem procura luxo, paz e exclusividade num dos locais mais apetecíveis de Portugal. O Aeroporto Internacional de Faro fica apenas a 40 a 45 minutos de carro. A Xtophe Properties é membro da Chestertons Global Network. Com o nosso conhecimento local e atuando no mercado imobiliário português desde 2013, oferecemos imóveis exclusivos e focamo-nos na excelência todos os dias. Trabalhamos com a máxima dedicação para conectar os clientes com imóveis que vão ao encontro das suas expectativas, seja para viver, investir ou expandir o seu negócio. Contamos com uma equipa profissional de especialistas imobiliários que falam várias línguas, incluindo português, inglês, francês e espanhol, e temos como objetivo oferecer a melhor experiência aos nossos clientes.
AMI: 19669
Ref. Externa: P_TE1525CA
Id: 1692976
Inicie sessão para guardar este imóvel e aceder à sua lista de favoritos em qualquer dispositivo.
Área de terreno : 350 m²
Sem Descrição
Id: 1683995
Inicie sessão para guardar este imóvel e aceder à sua lista de favoritos em qualquer dispositivo.
1.600.000 €
Área de terreno : 2498 m²
Descobre este magnífico terreno em Portimão, perfeito para quem procura um investimento seguro e rentável. Com um projeto já aprovado para a construção de 40 apartamentos, este espaço oferece uma oportunidade única de desenvolvimento imobiliário numa das zonas mais tranquilas da cidade. O projeto inclui 24 apartamentos T2 e 16 T1, ideais para atrair uma vasta gama de residentes. A localização é simplesmente imbatível: perto de uma grande zona comercial e de vários serviços essenciais, garantindo comodidade e fácil acesso. Além disso, a proximidade a uma das principais entradas de Portimão assegura excelentes ligações rodoviárias. Com uma superfície total de 2 498 m² e uma área edificável de 870 m², este terreno urbano é a escolha perfeita para quem deseja investir num prédio em altura. Não percas esta oportunidade de fazer parte do crescimento de Portimão! REFª LT-5586
AMI: 9205
Ref. Externa: LT-5586
Id: 1657024
Inicie sessão para guardar este imóvel e aceder à sua lista de favoritos em qualquer dispositivo.
Área de terreno : 970 m²
Fantástico terreno com licença de construção aprovada para uma moradia de quatro quartos. Localizado numa zona tranquila e de fácil acesso, este terreno em São Brás de Alportel representa uma oportunidade excecional para quem pretende construir a casa dos seus sonhos no coração do Algarve. O terreno beneficia de uma licença de construção aprovada para uma moradia isolada de quatro quartos, concebida para proporcionar conforto, privacidade e uma excelente qualidade de vida. A propriedade beneficia de uma excelente exposição solar e de vistas desafogadas sobre a paisagem envolvente, oferecendo um ambiente tranquilo, mantendo-se ao mesmo tempo a curta distância do centro de São Brás de Alportel, onde se encontram todas as comodidades, lojas e restaurantes. O projeto aprovado prevê uma moradia contemporânea e funcional, distribuída por dois pisos, com interiores espaçosos, uma sala de estar em open space, uma suite principal com varanda privativa e generosos espaços exteriores, perfeitos para desfrutar do clima ameno da região. A possibilidade de incluir uma piscina e um jardim privado aumenta ainda mais o encanto e a exclusividade deste terreno. Com serviços essenciais como água, eletricidade e esgotos disponíveis nas proximidades, o terreno oferece tudo o que é necessário para iniciar imediatamente o processo de licenciamento e construção. Localização: São Brás de Alportel é uma cidade encantadora e tradicional situada no interior do Algarve, no sul de Portugal, no distrito de Faro. Aninhada entre colinas ondulantes e bosques de sobreiros, oferece belas vistas tanto para a serra como para a costa. A cidade é conhecida pela sua atmosfera tranquila, casas caiadas de branco, ruas calcetadas e forte sentido de comunidade, o que a torna uma alternativa encantadora aos resorts costeiros mais movimentados. Historicamente, São Brás de Alportel foi um dos principais centros da indústria da cortiça em Portugal, e ainda se podem observar vestígios dessa época na paisagem circundante e nas antigas fábricas. Hoje, evoluiu para um destino tranquilo onde os visitantes podem experienciar a autêntica cultura algarvia, a arquitetura tradicional e um ritmo de vida descontraído. Os amantes da gastronomia encontrarão várias excelentes opções de restauração na zona. Um dos mais populares é o Restaurante Ysconderijo, elogiado pela sua cozinha criativa que combina ingredientes portugueses com sabores internacionais num ambiente elegante e descontraído. Outro local muito apreciado por locais e visitantes é o Sabores do Campo, um restaurante acolhedor que serve pratos tradicionais portugueses elaborados com ingredientes frescos e sazonais, oferecendo um sabor autêntico da região. São Brás de Alportel está convenientemente localizado a cerca de 25 minutos de carro do Aeroporto Internacional de Faro, sendo uma escapadela fácil e tranquila no Algarve.
AMI: 19669
Ref. Externa: P_TE426CA
Id: 1638056
Inicie sessão para guardar este imóvel e aceder à sua lista de favoritos em qualquer dispositivo.
750.000 €
Área de terreno : 380 m²
Lote de terreno destinado a construção de um prédio situado na Bemposta, em Portimão. Vendido com projeto de arquitetura aprovado A entrada do prédio será realizada por uma rampa orgânica envolvido pelos jardins. Os alçados foram concebidos de maneira a ter agradáveis varandas circulares, envolvidas pelos canteiros e guardas metálicas para proporcionar mais luminosidade às habitações. Com uma área de implantação de 238 m2 e uma área de construção de 1562 m2, o prédio será distribuído em 6 pisos acima do solo, com 1 loja, 7 apartamentos de tipologia T2 e 4 de tipologia T3. A cave do prédio é destinada à garagens e arrecadações. Na cobertura poderão ser colocados painéis solares e uma piscina de uso privativo dos dois apartamentos do último piso. Entre em contacto comigo para mais informações REFª LT-5174 Plot of land intended for the construction of a building located in Bemposta, in Portimão. Sold with approved architectural design The entrance to the building will be through an organic ramp surrounded by the gardens. The elevations were designed to have pleasant circular balconies, surrounded by flowerbeds and metal guards to provide more light to the dwellings. With an implantation area of 238 m2 and a construction area of 1562 m2, the building will be distributed on 6 floors above ground, with 1 store, 7 T2 apartments and 4 T3 apartments. The basement of the building is intended for garages and storage rooms. Solar panels and a swimming pool can be placed on the roof for the private use of the two rooftop apartments. Please contact me for more information REF. LT-5174 Terrain destiné à la construction d'un bâtiment situé à Bemposta, à Portimão. Vendu avec une conception architecturale approuvée L'entrée du bâtiment se fera par une rampe organique entourée des jardins. Les élévations ont été conçues pour avoir d'agréables balcons circulaires, entourés de parterres de fleurs et de gardes métalliques pour apporter plus de lumière aux logements. D'une surface d'implantation de 238 m2 et d'une surface de construction de 1562 m2, le bâtiment sera réparti sur 6 étages hors sol, avec 1 magasin, 7 appartements T2 et 4 appartements T3. Le sous-sol de l'immeuble est destiné aux garages et aux débarras. Des panneaux solaires et une piscine peuvent être placés sur le toit pour l'usage privé des deux appartements sur le toit. N'hésitez pas à me contacter pour plus d'informations RÉF. LT-5174
AMI: 9205
Ref. Externa: LT-5175
Id: 1636054
Inicie sessão para guardar este imóvel e aceder à sua lista de favoritos em qualquer dispositivo.
350.000 €
Área de terreno : 367 m²
Apresentamos uma excelente oportunidade para investidores e promotores imobiliários: vários lotes para construção em Portimão, localizados numa zona residencial tranquila, com fácil acesso a escolas, cafés, restaurantes e transportes públicos. Alguns dos lotes já contam com projetos aprovados, prontos a iniciar construção de prédios habitacionais de várias tipologias. Ideal para desenvolvimento urbano com elevado potencial de rentabilidade. Lista de Lotes Disponíveis: Lote C2 - 30 fogos - 900.000€ Lote C4 - 37 fogos - 1.480.000€ (com projeto aprovado) Lote C5 - 23 fogos - 920.000€ (com projeto aprovado) Lote C14 - 30 fogos - 1.050.000€ Lote C15 - 58 fogos - 2.030.000€ Lote C20 - 24 fogos - 840.000€ Lote C 47 - 10 fogos - 350 000€ Com localização privilegiada no concelho de Portimão, estes terrenos oferecem o equilíbrio perfeito entre tranquilidade e acessibilidade urbana. Oportunidade de investimento única numa das regiões mais procuradas do Algarve! Ref- 5140
AMI: 9205
Ref. Externa: LT-5140
Id: 1636016
Inicie sessão para guardar este imóvel e aceder à sua lista de favoritos em qualquer dispositivo.
400.000 €
Área de terreno : 361 m²
Edifício afeto a serviços para demolir e reconstruir implementado num lote de terreno com a área total de 361m2. Viabilidade de construção de edifício habitacional composto por cave,rés-do-chão,pprimeiro e segundo andar,com oito fogos para habitação e duas lojas.de acordo com o projeto existente na Camara Municipal. O imóvel está inserido na Área de Requalificação Urbana(ARU). O prédio localiza-se no centro da cidade, junto de todo o tipo de comércio, serviços escolas e transportes públicos. Agende a sua visita ! REFª LT-5978
AMI: 9205
Ref. Externa: LT_7159
Id: 1636001
Inicie sessão para guardar este imóvel e aceder à sua lista de favoritos em qualquer dispositivo.
Área de terreno : 941 m²
Este terreno tem a possibilidade no dia seguinte à escritura começar a construção. Existe projeto e licença de construção ativa, lote para construção de 941m2, junto à estrada EN269-1, Vale de Margem, Pêra. Para edifício com 5 frações (2 apartamentos T2 e 3 apartamentos T1), piscina, estacionamento e jardim exterior. A área de construção em dois pisos é de cerca de 500 m2. Localiza-se a cerca de 2 minutos de Alcantarilha e a 5 minutos de Armação de Pêra. Como a obra não está iniciada, o futuro proprietário pode decidir executar o projeto já aprovado, ou iniciar outro projeto que esteja mais de acordo com os seus interesses. Em zona calma e verdejante, perfeita para viver ou passar férias, situa-se em frente aos aldeamentos turísticos 'Arrancada Village' e 'Arrancada', muito perto do 'Amendoeiras Golf Resort', e também a 5 minutos de um acesso à Via do Infante. Opção de venda: Comprar com a construção executada, mediante Contrato de Promessa de Compra e Venda que inclua plano de faseamento de pagamentos até final da construção e escritura (valor de venda: 1 380 000€). REFª LT-67O7
AMI: 9205
Ref. Externa: LT-6707
Id: 1635998
Inicie sessão para guardar este imóvel e aceder à sua lista de favoritos em qualquer dispositivo.
Área de terreno : 9540 m²
Terreno com fantástica vista mar, com PIP (Pedido de informação prévia) aprovado para construção de 29 moradias (26 T3, 2 T4 e 1 T2), cada uma delas com piscina privativa. Excelente investimento imobiliario e de retorno garantido. PIP é um processo de aprovação preliminar para projetos de construção, que é concedido antes da aprovação final de construção. Isso significa que, embora haja uma aprovação preliminar para o projeto, ainda pode haver requisitos adicionais a serem cumpridos antes que a construção possa realmente começar. Situado no Cerro de Aguia, zona elevada com vista para o mar, localizado a oeste da cidade de Albufeira, na região do Algarve, em Portugal. É uma área popular entre os turistas devido à sua vista deslumbrante do mar, proximidade às praias de São Rafael, do Castelo ou da Galé e à Marina de Albufeira. A Marina de Albufeira, localizada na costa sul de Portugal, é uma marina moderna e bem protegida que oferece uma variedade de atividades e experiências náuticas para visitantes e moradores locais. Está situada numa baía protegida, o que significa que é um local seguro para qulaquer tipo de embarcação. Além de oferecer serviços para barcos e iates, a Marina de Albufeira possui uma ampla gama de espaços lúdicos, como lojas, bares, restaurantes e cafés, proporcionando uma experiência agradável para quem a visita. Existem também muitas opções de atividades náuticas disponíveis, como passeios de barco, pesca, mergulho, windsurf, jet ski, entre outras.
AMI: 4506
Ref. Externa: LV-36 (PR-237)
Id: 1624290
Inicie sessão para guardar este imóvel e aceder à sua lista de favoritos em qualquer dispositivo.
Área de terreno : 5496 m²
Portugal, Algarve, Faro, Albufeira lote de terreno para construção, no centro do empreendimento da Marina de Albufeira, perto das praias da Galé, S. Rafael e Castelo. Lote de terreno para construção de apartamentos localizado no centro do empreendimento da Marina de Albufeira, construção 4 000m2 de área habitacional, edificio 4 pisos (3 acima solo e 1 cave). Excelente localização para fins turísticos.
AMI: 4506
Ref. Externa: LV-1040 (PR-021)
Id: 1624285
Inicie sessão para guardar este imóvel e aceder à sua lista de favoritos em qualquer dispositivo.
6.200.000 €
Área de terreno : 30000 m²
Turismo Rural. Hotel 95 quartos. Projeto Aprovado. Ferragudo, Algarve, Portugal. Terreno, projetos, aprovação, vende-se no Algarve, Ferragudo. Áreas: Terreno cerca 30.000m2; Área de construção 4.000m2 + Estacionamento 2.400m2. A breves minutos de várias praias. Sem vista mar. JPP tem experiência e saber em vendas a compradores ingleses e franceses e pode guiá-lo pormenorizadamente e em confiança durante todo o processo de visita e compra. Preço de venda com projetos: 6.200.000€. Ref. 9939. Imagens do Algarve.
AMI: 445
Ref. Externa: 9939_H
Id: 1585475
Inicie sessão para guardar este imóvel e aceder à sua lista de favoritos em qualquer dispositivo.
3.100.000 €
Área de terreno : 15000 m²
Hotel Turismo em Espaço Rural aprovado p/ construção. Portugal, Algarve, Lagoa. Lote de Terreno 15.000m2, urbano/rústico, vende-se com projetos aprovados para construção de Hotel de Turismo em Espaço Rural. Previsto: 48 quartos; Área de construção 2.000m2; Cave 800m2. Todos os projetos para edificação aprovados. A 5 min. de carro de várias praias e a 15 min. a pé. Localização tranquila, resguardada, de ambiente rural e praiano. Sem vista mar. JPP tem experiência e saber em vendas a compradores ingleses e franceses e pode guiá-lo pormenorizadamente e em confiança durante todo o processo de visita e compra. Preço de venda (Terreno + projetos aprovados): 3.100.000€. Referência 9937. Imagens do Algarve e da região.
AMI: 445
Ref. Externa: 9937_H
Id: 1585471
Inicie sessão para guardar este imóvel e aceder à sua lista de favoritos em qualquer dispositivo.
Este agente é especialista nesta zona:
Inicie sessão para ocultar este imóvel das suas pesquisas e manter a sua lista de resultados organizada.
© Copyright 2023 | CASACERTA. All rights reserved
Guardar favoritos
Este imóvel foi guardados nos seus favoritos com sucesso.
Para poder guardar pesquisa deverá ter a sua sessão iniciada.
Caso não tenha uma conta, deverá criar uma.
A sua pesquisa foi guardada com sucesso!
Este site utiliza cookies. Ao navegar no site estará a consentir a sua utilização.
Para mais informações sobre os cookies pode consultar a
política de privacidade.