ArrowRightBlue

São Brás de Alportel

Área de terreno : 970 m²

Fantástico terreno com licença de construção aprovada para uma moradia de quatro quartos. Localizado numa zona tranquila e de fácil acesso, este terreno em São Brás de Alportel representa uma oportunidade excecional para quem pretende construir a casa dos seus sonhos no coração do Algarve. O terreno beneficia de uma licença de construção aprovada para uma moradia isolada de quatro quartos, concebida para proporcionar conforto, privacidade e uma excelente qualidade de vida. A propriedade beneficia de uma excelente exposição solar e de vistas desafogadas sobre a paisagem envolvente, oferecendo um ambiente tranquilo, mantendo-se ao mesmo tempo a curta distância do centro de São Brás de Alportel, onde se encontram todas as comodidades, lojas e restaurantes. O projeto aprovado prevê uma moradia contemporânea e funcional, distribuída por dois pisos, com interiores espaçosos, uma sala de estar em open space, uma suite principal com varanda privativa e generosos espaços exteriores, perfeitos para desfrutar do clima ameno da região. A possibilidade de incluir uma piscina e um jardim privado aumenta ainda mais o encanto e a exclusividade deste terreno. Com serviços essenciais como água, eletricidade e esgotos disponíveis nas proximidades, o terreno oferece tudo o que é necessário para iniciar imediatamente o processo de licenciamento e construção. Localização: São Brás de Alportel é uma cidade encantadora e tradicional situada no interior do Algarve, no sul de Portugal, no distrito de Faro. Aninhada entre colinas ondulantes e bosques de sobreiros, oferece belas vistas tanto para a serra como para a costa. A cidade é conhecida pela sua atmosfera tranquila, casas caiadas de branco, ruas calcetadas e forte sentido de comunidade, o que a torna uma alternativa encantadora aos resorts costeiros mais movimentados. Historicamente, São Brás de Alportel foi um dos principais centros da indústria da cortiça em Portugal, e ainda se podem observar vestígios dessa época na paisagem circundante e nas antigas fábricas. Hoje, evoluiu para um destino tranquilo onde os visitantes podem experienciar a autêntica cultura algarvia, a arquitetura tradicional e um ritmo de vida descontraído. Os amantes da gastronomia encontrarão várias excelentes opções de restauração na zona. Um dos mais populares é o Restaurante Ysconderijo, elogiado pela sua cozinha criativa que combina ingredientes portugueses com sabores internacionais num ambiente elegante e descontraído. Outro local muito apreciado por locais e visitantes é o Sabores do Campo, um restaurante acolhedor que serve pratos tradicionais portugueses elaborados com ingredientes frescos e sazonais, oferecendo um sabor autêntico da região. São Brás de Alportel está convenientemente localizado a cerca de 25 minutos de carro do Aeroporto Internacional de Faro, sendo uma escapadela fácil e tranquila no Algarve.

AMI: 19669

Ref. Externa: P_TE426CA

Id: 1638056

3 Quartos

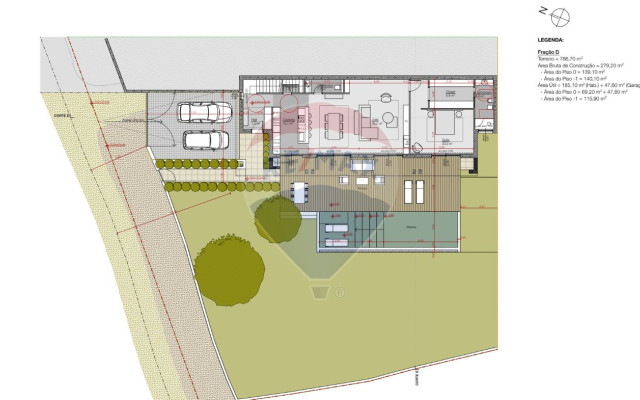
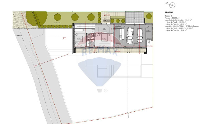
Área de terreno : 787 m²

Projeto Chave na mão - Moradia de Luxo a 1 100 000 € Grande oportunidade de adquirir um projeto chave na mão para a construção de uma moradia de 3 quartos com piscina infinita, nas colinas a norte de São Brás de Alportel. Situada numa zona calma, mas apenas a 5 minutos de carro de lojas, restaurantes, bares, posto de saúde internacional e escolas. As escolas internacionais ficam a cerca de 20 a 25 minutos de carro, assim como as praias, golfs e o aeroporto de Faro. Qualidade de construção e baixo consumo energético são as principais características desta casa moderna. Construidas com um sistema revolucionário de blocos isolantes e muros em betão armados, piso e telhado de isolamento de alta qualidade (térmico e acústico) para fornecer uma temperatura ambiente constante e confortável durante todo o dia. O projeto vem com uma cozinha totalmente mobilada e equipada. Poderá contar com 3 quartos em suite, sendo a suite principal no rés de chão. A zona social está virada para o terraço e piscina. A nível de equipamento pode contar com piso radiante com agua( calor e frio ), pré-instalação de ar condicionado, paneis solares, caixilharia de alumínio com corte térmico e proteção solar, cozinha de luxo, e casas de banho com Wc suspenso e loiças de marca conceituada. No exterior, jardim construido com árvores e relvas, rega automática, e uma piscina com pré-instalação de aquecimento. A construção será concluída em finais de 2024. Certificado Energético A Sistema VMC Double Flue Piso radiante Turnkey Project - Luxury House at €1,100,000 Great opportunity to acquire a turnkey project for the construction of a 3 bedroom villa with infinite swimming pool, in the hills north of São Brás de Alportel. Located in a quiet area, but only 5 minutes by car from shops, restaurants, bars, international health center and schools. The international schools are about 20 to 25 minutes by car, as well as the beaches, golf courses and Faro airport. Quality of construction and low energy consumption are the main features of this modern house. Built with a revolutionary system of insulating blocks and walls in reinforced concrete, floor and roof with high quality insulation (thermal and acoustic) to provide a constant and comfortable room temperature throughout the day. The project comes with a fully furnished and equipped kitchen. You can count on 3 bedrooms en suite, the main suite on the ground floor. The social area faces the terrace and pool. In terms of equipment, you can count on underfloor heating with water (heat and cold), pre-installation of air conditioning, solar panels, aluminum frames with thermal cut and solar protection, luxury kitchen, and bathrooms with suspended Wc and crockery. Reputable brand. Outside, garden built with trees and grass, automatic irrigation, and a swimming pool with pre-heating installation. Construction will be completed end 2024. Energy Rating: A System VMC Double Flue Heated floor Clé en main - Maison Contemporaine de luxe - 1.100.000 € Belle opportunité d'acquérir un projet clé en main pour la construction d'une villa de 3 chambres avec piscine infinite, dans les collines au nord de São Brás de Alportel. Situé dans un quartier calme, mais à seulement 5 minutes en voiture des commerces, restaurants, bars, centre de santé international et écoles. Les écoles internationales sont à environ 20 à 25 minutes en voiture, ainsi que les plages, les terrains de golf et l'aéroport de Faro. Qualité de construction et faible consommation d'énergie sont les principales caractéristiques de cette maison moderne. Construit avec un système révolutionnaire de blocs isolants et de murs en béton armé, sol et toit avec une isolation de haute qualité (thermique et acoustique) pour fournir une température ambiante constante et confortable tout au long de la journée. Le projet est livré avec une cuisine entièrement meublée et équipée. Vous pouvez compter sur 3 chambres en suite, la suite principale au rez-de-chaussée. L'espace social fait face à la terrasse et à la piscine. Au niveau des équipements, vous pourrez compter sur un plancher chauffant avec eau (chaud et froid), pré-installation de la climatisation, panneaux solaires, châssis aluminium avec coupe thermique et protection solaire, cuisine de luxe, et salles de bains avec Wc suspendu et vaisselle de bonne réputation. Marque. A l'extérieur, jardin arboré et gazonné, arrosage automatique et piscine avec installation de préchauffage. La construction sera achevée fin 2024. Contactez-nous pour plus d'informations. Performance Énergétique: A System VMC Double Flue Heated floor;ID RE/MAX: 122261418-12

AMI: 7433

Ref. Externa: 122261418-12

Id: 461796

Área de terreno : 1360 m²

Lote de terreno bem localizado com área total de 1360 mts ! Zona muito calma e a poucos Kms do centro de S. Bràs de Alportel ! Bons acessos ! Marque já a sua visita ! ;ID RE/MAX: 122261405-1147

AMI: 7433

Ref. Externa: 122261405-1147

Id: 461681

0 Quartos

Terreno rústico para venda Tereno rústico para venda, situdo na zona  da Barracha, em são Bás de Alportel. Este terreno está muito bem localizado e muito bem tratado.  Se procura um terreno para cultura, este pode ser o seu terreno e neste momento, tem alfarrobeiras, amendoeiras e oliveiras. Agende a sua visita e não perca esta oportunidade!   ---------------------------------------------------------------------------------------------------------------------------------------------------------   Rustic land for sale Rustic land for sale, situated in the Barracha area, in São Bás de Alportel. This land is very well located and very well cared for. If you are looking for a plot of land for cultivation, this could be your land. It has carob, almond and olive trees. Schedule your visit and don't miss this opportunity!;ID RE/MAX: 124711088-13

AMI: 7433

Ref. Externa: 124711088-13

Id: 461550

Este agente é especialista nesta zona:

Clicky