ArrowRightBlue

Caldas da Rainha

Área de terreno : 222 m²

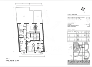
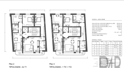
Excelente oportunidade no centro das Caldas da Rainha! Lote com 222 m² de área total, com Área Bruta de Construção de 640,45 m², permitindo a edificação de até 3 pisos. Dados do Projeto / Potencial de Construção Área do Piso 0 (implantação): 190,45 m² Áreas dos Pisos 1, 2 e 3 (total): 450 m² Área Bruta de Terraços: 75 m² Área de Varandas: 8,65 m² Número de Fogos/Unidades: 6 Lugares de Estacionamento: 6 Localizado em Santo Onofre, uma das zonas mais centrais e valorizadas da cidade, junto a comércio, escolas, serviços, transportes, hospital e vias rápidas. Perfeito para investidores ou construtores que procuram um terreno com excelente rentabilidade e forte procura residencial. Preço: 130.000 €

AMI: 10312

Ref. Externa: LM1099T

Id: 1498802

Área de terreno : 379 m²

Lote de terreno para construção com 379m2 | Nadadouro, Caldas da Rainha Área de construção permitida: - Área de implantação 130m2 - Área de construção 230m2 Possui fácil acesso a todas as infraestruturas essenciais, como água, eletricidade e esgotos. Além disso, o terreno conta ainda com um furo de água. Inserido numa zona envolvente residencial, o que o torna perfeito para quem procura construir a sua casa de sonho num local tranquilo e com uma localização privilegiada entre a cidade de Caldas da Rainha e a praia da Foz do Arelho (Lagoa de Óbidos). A apenas 6 minutos dos acessos à autoestrada A8, que o colocam a menos de 1h de Lisboa. É uma região em constante desenvolvimento que garante valorização do seu investimento. Não perca a oportunidade de adquirir este terreno e construir a casa que sempre sonhou! *As informações disponibilizadas são de cariz meramente informativo, não vinculativo, não dispensando a consulta da mediadora. Contacte-nos para mais informações e agendar a sua visita. Tel.: +351 968 490 331 (chamada para a rede móvel nacional) E-mail: [email protected]

AMI: 22278

Ref. Externa: crainha/T/00033

Id: 770720

Estes agentes são especialistas nesta zona:

Clicky