Filtros
0 · 2 resultadosÁrea de terreno : 2014 m²
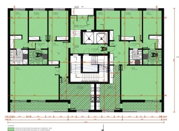
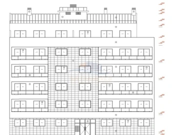
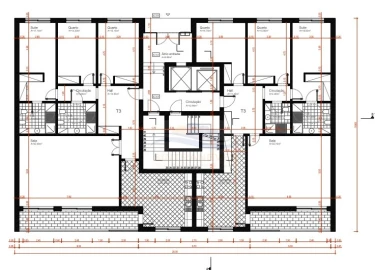
VENDIDO - Terreno para Construção de prédio no centro urbano de Alverca. O projeto desenvolvido virtualmente e apresentado nas imagens contempla: 19 Apartamentos, 34 Estacionamentos e 3 Lojas, distribuídos por 6 pisos. Piso -2: 22 Estacionamentos; Piso -1: 3 Lojas, 12 Estacionamentos e Sala de condomínio; Pisos superiores: 1 T1, 6 T2, 8 T3 e 4 T4; O adquirente pode apreciar o projeto existente e propô-lo ao Município ou propor alterações que considere de interesse. Para mais informações: 91 727 67 25 A MOVITUDO IMOBILIÁRIA, uma casa simpática. Há 28 anos dedicada a si na: • Mediação Imobiliária; • Intermediação de Crédito e • Mediação de Obras. Na MEDIAÇÃO IMOBILIÁRIA encontramos as melhores soluções e asseguramos um acompanhamento personalizado ao longo de todo o seu processo de: • Compra, venda ou arrendamento; • Investimento em imóveis da banca; • Imóveis de Oportunidade e • Imóveis de luxo ou golden visa. Na INTERMEDIAÇÃO DE CRÉDITO garantimos as melhores soluções do mercado ao nível do: • Crédito Habitação e • Crédito Hipotecário, para particulares e empresas. Na MEDIAÇÃO DE OBRAS apresentamos as melhores soluções face a padrões de qualidade que sempre nos pautaram. • Orçamentação Gratuita e • Um serviço personalizado de Chave na Mão. Na hora de comprar, vender ou arrendar o seu imóvel, lembre-se de si. Fale com MOVITUDO IMOBILIÁRIA. PORQUÊ COMPRAR COM A MOVITUDO? Diga-nos o que procura e iremos ajudá-lo(a). • FOCO no cliente; • DEDICAÇÃO na procura do imóvel ideal para si; • ORIENTAÇÃO para as suas necessidades; • RESPEITO pelos seus interesses; • INFORMAÇÃO de qualidade ao seu dispor; • ACOMPANHAMENTO em todas as fases do processo; • CONSULTORES ESPECIALISTAS em acompanhamento de compradores; • APOIO nas burocracias e • EXPERIÊNCIA comprovada desde 1992. PORQUÊ VENDER ou ARRENDAR COM A MOVITUDO? Basta contactar-nos e iremos ajudá-lo(a). • RESULTADOS comprovados; • EFICÁCIA na transação de imóveis; • CONHECIMENTO profundo do mercado imobiliário; • ORIENTAÇÃO para as suas necessidades; • PARTILHA com entidades de Licença AMI válida; • FOCO na prestação do melhor serviço e • EXPERIÊNCIA vasta e multidisciplinar.
AMI: 1804
Ref. Externa: 10223452V1
Id: 1803360
Inicie sessão para guardar este imóvel e aceder à sua lista de favoritos em qualquer dispositivo.
Profissionais que conhecem esta zona a fundo — contacte-os para uma avaliação personalizada.
Área útil : 375 m²
Com vista para o Tejo Terreno à venda com projecto aprovado para Prédio com 12 fogos. Constituído por: - Área do Lote: 375m2; - Área de implantação: 375m2; - Área de construção de habitação: 2.377m2; - Número de Pisos: 6 Pisos + 2 Caves; - Número de Lugares de estacionamento: 18; - 12 Fogos: - 8 Apartamentos T3; - 4 Apartamentos T4. - Prédios com Acessibilidade de Cadeirantes e Pessoas com necessidades especiais. Com projecto aprovado e licença a pagamento. ''Os projetos dos lotes 2/3, 6,7,9,10,11,12 e 13, planta síntese e quadro dos lotes com tudo aprovado para a construção. Preço 50.000€ por fogo. A Urbanização é na primeira rua, é a Rua dos Cravos, Bom Sucesso, Alverca do Ribatejo.''
AMI: 15673
Ref. Externa: AP13.078
Id: 794877
Inicie sessão para guardar este imóvel e aceder à sua lista de favoritos em qualquer dispositivo.
© Copyright 2023 | CASACERTA. All rights reserved
Guardar favoritos
Este imóvel foi guardados nos seus favoritos com sucesso.
Para poder guardar pesquisa deverá ter a sua sessão iniciada.
Caso não tenha uma conta, deverá criar uma.
A sua pesquisa foi guardada com sucesso!
Este site utiliza cookies. Ao navegar no site estará a consentir a sua utilização.
Para mais informações sobre os cookies pode consultar a
política de privacidade.