Lista
Comprar
Arrendar
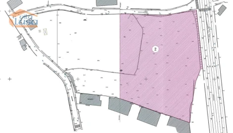
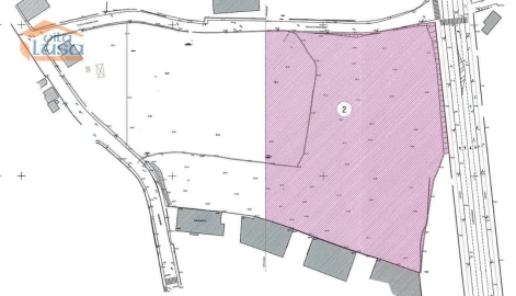
Área de terreno : 312 m²
Terreno para construção de moradia (Cave, Rch e 1ºandar) Área total: 312m2 ; Área de implantação do edifício: 91m2 ; área bruta de construção: 182m2 Coordenada X: 164.622 ; coordenada Y: 466.066 Zona de moradias muito tranquila e muito perto da IC29
Id: 1386443
Inicie sessão para guardar este imóvel e aceder à sua lista de favoritos em qualquer dispositivo.
Área de terreno : 745 m²
Rio Tinto / Próx. Metro Carreira Lote de terreno para construção em altura, com viabilidade de construção de um edifício de habitacional, com cércea de cave, r/c e 3 andares, com a capacidade construtiva de 18 fogos (tipo T1, T2 e T3 e cave destinada a garagem) Com a área de implantação de 444 m² e uma área total de construção de 1.776 m². Este Lote terreno oferece uma excelente oportunidade de investimento, ideal para quem busca desenvolver um projeto residencial de qualidade em uma localização privilegiada. A proximidade de transportes públicos (Metro Carreira a 400m, Autocarros a 350m) facilita o deslocamento dos futuros residentes, enquanto a variedade de comércio e serviços nas proximidades garante comodidade e praticidade no dia a dia. Além disso, a área envolvente, calma e tranquila, proporciona um ambiente ideal para famílias e indivíduos que valorizam a qualidade de vida e o bem-estar. A combinação de acessibilidade, infraestrutura e um entorno agradável torna este projeto uma oportunidade imperdível para construtores e investidores que desejam apostar em um empreendimento promissor e de alta demanda. Para mais informações e marcação de visitas, contacte-nos: PREDIAL PEREIRA & FILHO – Soc. Mediação de Imobiliária, Lda. “A Merecer a sua Confiança, desde 1989”
AMI: 460
Ref. Externa: LO0616 i
Id: 1321915
Inicie sessão para guardar este imóvel e aceder à sua lista de favoritos em qualquer dispositivo.
Área de terreno : 420 m²
Rio Tinto / Próx. Metro Carreira Lote de terreno para construção em altura, com a área de 420m2, com a viabilidade de construção de um edificio habitacional, com cércea de cave, r/c e 2 andares, com possiblidade construtiva de 10 fogos. Com a área de implantação de 355m2 e uma área total de construção de 1065m2. Este Lote de terreno, oferece uma excelente oportunidade para investidores ou construtores que desejam desenvolver um projeto residencial numa localização privilegiada. A proximidade com os transportes públicos ( Metro da Carreira e Autocarros a 500m) facilita o acesso rápido ao centro da cidade, bem como a variedade de comércio e serviços nas proximidades garante comodidade e praticidade no dia a dia, enquanto a tranquilidade da zona residencial proporciona um ambiente ideal para famílias e profissionais que procuram um lugar sossegado para viver. Esta é, sem dúvida, uma oportunidade imperdível para quem deseja investir num empreendimento de sucesso, numa área em constante valorização e com uma forte procura por habitação. Para mais informações e marcação de visitas, contacte-nos: PREDIAL PEREIRA & FILHO – Soc. Mediação de Imobiliária, Lda. “A Merecer a sua Confiança, desde 1989”
AMI: 460
Ref. Externa: LO0615 i
Id: 1321914
Inicie sessão para guardar este imóvel e aceder à sua lista de favoritos em qualquer dispositivo.
Área de terreno : 745 m²
Rio Tinto / Próx. Metro Carreira Lote de terreno para construção em altura, com viabilidade de construção de um edifício de habitacional, com cércea de cave, r/c e 3 andares, com a capacidade construtiva de 18 fogos (tipo T1, T2 e T3 e cave destinada a garagem) Com a área de implantação de 444 m² e uma área total de construção de 1.776 m². Este Lote terreno oferece uma excelente oportunidade de investimento, ideal para quem busca desenvolver um projeto residencial de qualidade em uma localização privilegiada. A proximidade de transportes públicos (Metro Carreira a 400m, Autocarros a 350m) facilita o deslocamento dos futuros residentes, enquanto a variedade de comércio e serviços nas proximidades garante comodidade e praticidade no dia a dia. Além disso, a área envolvente, calma e tranquila, proporciona um ambiente ideal para famílias e indivíduos que valorizam a qualidade de vida e o bem-estar. A combinação de acessibilidade, infraestrutura e um entorno agradável torna este projeto uma oportunidade imperdível para construtores e investidores que desejam apostar em um empreendimento promissor e de alta demanda. Para mais informações e marcação de visitas, contacte-nos: PREDIAL PEREIRA & FILHO – Soc. Mediação de Imobiliária, Lda. “A Merecer a sua Confiança, desde 1989”
AMI: 460
Ref. Externa: LO0616
Id: 1143506
Inicie sessão para guardar este imóvel e aceder à sua lista de favoritos em qualquer dispositivo.
Área de terreno : 420 m²
Rio Tinto / Próx. Metro Carreira Lote de terreno para construção em altura, com a área de 420m2, com a viabilidade de construção de um edificio habitacional, com cércea de cave, r/c e 2 andares, com possiblidade construtiva de 10 fogos. Com a área de implantação de 355m2 e uma área total de construção de 1065m2. Este Lote de terreno, oferece uma excelente oportunidade para investidores ou construtores que desejam desenvolver um projeto residencial numa localização privilegiada. A proximidade com os transportes públicos ( Metro da Carreira e Autocarros a 500m) facilita o acesso rápido ao centro da cidade, bem como a variedade de comércio e serviços nas proximidades garante comodidade e praticidade no dia a dia, enquanto a tranquilidade da zona residencial proporciona um ambiente ideal para famílias e profissionais que procuram um lugar sossegado para viver. Esta é, sem dúvida, uma oportunidade imperdível para quem deseja investir num empreendimento de sucesso, numa área em constante valorização e com uma forte procura por habitação. Para mais informações e marcação de visitas, contacte-nos: PREDIAL PEREIRA & FILHO – Soc. Mediação de Imobiliária, Lda. “A Merecer a sua Confiança, desde 1989”
AMI: 460
Ref. Externa: LO0615
Id: 1143503
Inicie sessão para guardar este imóvel e aceder à sua lista de favoritos em qualquer dispositivo.
Área de terreno : 1620 m²
Descrição do Empreendimento: Lote de Terreno para Habitação Multifamiliar em Rio Tinto Área Total do Terreno: 1620 m² Área de Implantação: 408 m² Área Edificável Total: 1620 m² Número de Pisos: 4 (incluindo cave) Tipo de Empreendimento: Habitação multifamiliar Localização: Situado no centro de Rio Tinto, a apenas 5 minutos do Porto. 400 m da Paragem de Metro da Campainha. 600 m da Estação de Comboios de Rio Tinto. 1,5 km do Centro Comercial Parque Nascente. 2,2 km da Fábrica do Cobre Retail Park. 4 km do Hospital de S. João e Pólo Universitário. Vários Hipermercados e Escolas num raio de 3 km. Características do Projeto: O projeto prevê a construção de um condomínio fechado com 8 frações habitacionais: 5 T2 e 3 T3. Área habitacional total de 1355 m². Cada fração contará com lugar de garagem e arrumo na cave. Possibilidade de incluir piscina e áreas de convívio exterior, como parque infantil e churrasqueira. Ampla área interior e exterior, proporcionando conforto e bem-estar aos moradores. Oportunidade de Investimento: Este terreno representa uma excelente oportunidade para investidores e/ou promotores que buscam desenvolver um projeto habitacional em uma localização privilegiada. A proximidade com transportes públicos, comércio e serviços, além da possibilidade de criar um espaço de convivência atrativo, torna este empreendimento uma proposta vantajosa no mercado imobiliário.
AMI: 9721
Ref. Externa: SS1108
Id: 1091184
Inicie sessão para guardar este imóvel e aceder à sua lista de favoritos em qualquer dispositivo.
Área de terreno : 1620 m²
Descrição do Empreendimento: Lote de Terreno para Habitação Multifamiliar em Rio Tinto Área Total do Terreno: 1620 m² Área de Implantação: 408 m² Área Edificável Total: 1620 m² Número de Pisos: 4 (incluindo cave) Tipo de Empreendimento: Habitação multifamiliar Localização: Situado no centro de Rio Tinto, a apenas 5 minutos do Porto. 400 m da Paragem de Metro da Campainha. 600 m da Estação de Comboios de Rio Tinto. 1,5 km do Centro Comercial Parque Nascente. 2,2 km da Fábrica do Cobre Retail Park. 4 km do Hospital de S. João e Pólo Universitário. Vários Hipermercados e Escolas num raio de 3 km. Características do Projeto: O projeto prevê a construção de um condomínio fechado com 8 frações habitacionais: 5 T2 e 3 T3. Área habitacional total de 1355 m². Cada fração contará com lugar de garagem e arrumo na cave. Possibilidade de incluir piscina e áreas de convívio exterior, como parque infantil e churrasqueira. Ampla área interior e exterior, proporcionando conforto e bem-estar aos moradores. Oportunidade de Investimento: Este terreno representa uma excelente oportunidade para investidores e/ou promotores que buscam desenvolver um projeto habitacional em uma localização privilegiada. A proximidade com transportes públicos, comércio e serviços, além da possibilidade de criar um espaço de convivência atrativo, torna este empreendimento uma proposta vantajosa no mercado imobiliário.
AMI: 9721
Ref. Externa: SS1109
Id: 1091182
Inicie sessão para guardar este imóvel e aceder à sua lista de favoritos em qualquer dispositivo.
4.500.000 €
Área de terreno : 16266 m²
Se procura um terreno com enorme potencial de construção numa localização privilegiada, temos a solução ideal para si! Apresentamos um terreno de gaveto com uma área de 16.200 m² localizado na Avenida da Conduta em Gondomar. Com viabilidade para construção de habitação, este terreno oferece uma oportunidade única para investidores ou construtores que desejam desenvolver um projeto imobiliário de sucesso. A área do terreno permite a construção de várias unidades habitacionais, o que o torna ideal para a construção de um condomínio residencial exclusivo e com grande potencial de valorização. Além disso, a sua localização é privilegiada, com fácil acesso a transportes públicos, serviços, comércio e escolas. Este terreno de gaveto possui características únicas, que o diferenciam de outros terrenos da região. A sua localização, as dimensões e o potencial construtivo são alguns dos fatores que tornam este terreno numa oportunidade excepcional para investidores que procuram investir num mercado imobiliário em constante crescimento. Não perca esta oportunidade única e entre em contacto connosco para mais informações sobre este terreno excecional. Teremos todo o prazer em apresentar-lhe as potencialidades deste terreno e ajudá-lo a concretizar o seu projeto imobiliário. Se você está a procurar ajuda com serviços de mediação de crédito, veio ao lugar certo! A nossa equipa especializada em mediação de crédito está aqui para oferecer suporte e orientação durante todo o processo. Oferecemos uma variedade de serviços para atender às suas necessidades financeiras, incluindo: 1 - Análise e aconselhamento financeiro: os nossos especialistas irão analisar a sua situação financeira atual e oferecer conselhos personalizados para ajudá-lo a tomar decisões informadas. 2- Pesquisa de opções de crédito: faremos uma pesquisa abrangente das opções de crédito disponíveis no mercado, identificando as melhores soluções para você, conforme as suas necessidades e capacidade financeira. 3- Apoio na obtenção de crédito. Orientaremos durante todo o processo de obtenção de crédito, auxiliando na preparação de documentação, submissão de pedidos e acompanhamento junto às instituições financeiras. 4- Negociação de condições favoráveis. Utilizaremos a nossa experiência e conhecimento para negociar as melhores condições de crédito no seu nome, buscando taxas de juros competitivas e prazos adequados. Acompanhamento contínuo: a nossa equipa estará disponível para responder a todas as suas dúvidas e fornecer suporte contínuo ao longo do seu relacionamento com a instituição financeira. Independentemente das suas necessidades financeiras, estamos comprometidos em ajudá-lo a encontrar as melhores soluções de crédito. A nossa experiência e conhecimento do mercado nos permitem oferecer um serviço profissional e personalizado. Entre em contacto connosco hoje mesmo para agendar uma consulta e descobrir como podemos ajudá-lo a obter o crédito de que precisa. Estamos aqui para orientá-lo e simplificar o processo, tornando a sua experiência mais fácil e tranquila.
AMI: 7917
Ref. Externa: 801231020
Id: 527162
Inicie sessão para guardar este imóvel e aceder à sua lista de favoritos em qualquer dispositivo.
Área de terreno : 850 m²
Terreno em gaveto para construção em altura Já teve projeto e PIP aprovado. Espera de novo PDM Dá para construção de prédio com cave r/c e mais 5 andares Área de construção 300 m2 por piso O lote tem 850 m2 Área de construção 1.500 m2 Zona de habitação e comércio Parque Urbano de Rio Tinto Metro de Rio Tinto e Levada Para visitar contacte: José Carlos Prezado 967042919 [email protected] Vila Azul, desde 1978 Uma marca portuguesa, onde Uma boa equipa soluciona.....
AMI: 12024
Ref. Externa: 12300105
Id: 453289
Inicie sessão para guardar este imóvel e aceder à sua lista de favoritos em qualquer dispositivo.
1.750.000 €
Área de terreno : 4800 m²
Terreno com projeto aprovado na Areosa. Terreno com projeto aprovado para 39 frações, situado na Areosa, próximo ao Hospital São João. O projeto é composto por 39 apartamentos com tipologias T2,T2+1 e T3 , com cave, arrumos, varandas, terraços e lugar de garagem. Área bruta de construção acima do solo - 6.665m2 Para além deste imóvel, dispomos de mais imóveis que de certeza encaixam naquilo que pretende. Tratamos de todo o processo de crédito habitação e acompanhamento até ao ato da escritura de forma gratuita. Mais informações sobre este ou outro imóvel e marcações de visita, contacte-nos: 935 755 813 (chamada para a rede móvel nacional) Chave Nova Porto São João - Rua Mestre Guilherme Camarinha, 7742 4200-537 Porto.
AMI: 7142
Ref. Externa: PSJ/00009
Id: 353232
Inicie sessão para guardar este imóvel e aceder à sua lista de favoritos em qualquer dispositivo.
Área de terreno : 441 m²
Terreno para construção em altura com 441 m². Rio Tinto. Gondomar Localizado á face da estrada da Circunvalação, perto do Parque Nascente, saídas da VCI, mercado abastecedor e Prevê-se a construção de um prédio de cave, r/c e três andares, conforme prédio existente a norte. As construções existentes compreendem uma casa no r/c onde funciona um café, com duas salas, cozinha e dois sanitários, e com 4 quartos no sótão, e um conjunto de 7 pequenas casas e dois armazéns ao nível da cave, tipo ilha, com acesso lateral em rampa de acesso ás mesmas. As casas e armazéns estão devolutas, existindo um café fechado em que a arrendatária já negociou a saída com o proprietário. Não é apresentado o certificado energético, uma vez que se prevê a demolição do existente para construção de um prédio. Existe um estudo prévio para construção de um prédio no local. O reconhecimento global do mercado ajuda-nos a fortalecer a nossa posição como marca de mediação imobiliária Chave Nova, com o maior sucesso a nível local. Seja bem-vindo. As equipas que integramos são fortemente focadas e especializadas na sua área de localização, de forma a ajudá-lo a tomar sempre uma decisão informada sobre a compra ou venda do seu imóvel. PORQUÊ COMPRAR COM A CHAVE NOVA? Participar no sonho das pessoas é a nossa paixão! É por isso que trabalhamos com cada cliente de forma personalizada, dedicando o tempo necessário para entender o que é para ele a sua casa de sonho. Somos especialistas em trabalhar com pessoas que estão a comprar a sua casa e gostaríamos de lhe mostrar a melhor forma de o fazer. QUANDO ESCOLHE A CHAVE NOVA, OBTÉM: • Um agente imobiliário profissional e conhecedor do mercado • Um aliado comprometido em negociar no seu interesse • Os sistemas e ferramentas necessárias para agilizar a compra da sua casa • O apoio de uma empresa de confiança. COMPROMETEMO-NOS A AJUDÁ-LO NA COMPRA DA SUA CASA ATRAVÉS DE: • Visualização das casas com antecedência • Manter informado sobre novas casas no mercado • Ajudar a pesquisar casas na web • Informação sobre outras casas vendidas e por que valores • Trabalhar até encontrar a casa dos seus sonhos • Apresentação das melhores soluções financeiras para aquisição do imóvel • Apoio no processo de financiamento (se requerido) • Presença na avaliação do imóvel • Apoio na marcação e realização do CPCV (Contrato Promessa Compra e Venda) • Apoio na marcação e realização da escritura pública de compra e venda. Sendo a seriedade e honestidade o nosso lema, estamos sempre à distancia de um click, para que possa visitar os nossos imóveis o mais comodamente possível. A nossa maior referência, são os nossos clientes, a sua satisfação, é o nosso objetivo primordial. O nosso empenho e esforço traduz-se em sólidos conhecimentos, utilizados na análise de mercado de todo o tipo de imóveis, para assim entender os desejos, motivações e necessidades de todos os nossos clientes. Para além deste imóvel, dispomos de mais imóveis que de certeza encaixam naquilo que pretende. Para todas as informações que desejar, estamos ao seu inteiro dispor
AMI: 7142
Ref. Externa: AR/03376
Id: 209304
Inicie sessão para guardar este imóvel e aceder à sua lista de favoritos em qualquer dispositivo.
Área de terreno : 805 m²
Terreno no Centro de Rio Tinto ao Parque Urbano/Parque Nascente com as seguintes áreas: Área total do terreno - 805 m2; Área de implantação - 340 m2; Área bruta de construção - 2040 m2; Área bruta dependente - 340 m2 Contactos: 967042898/224804686 (Chamada para a rede fixa ou móvel de acordo com o seu tarifário em Portugal) [email protected]
AMI: 1833
Ref. Externa: 091188
Id: 193511
Inicie sessão para guardar este imóvel e aceder à sua lista de favoritos em qualquer dispositivo.
Área de terreno : 3000 m²
Terreno com 3000m2, Com projecto aprovado para 31 fracções. Muito bem localizado. QUADRATURA ...porque cada casa é um caso!
AMI: 8478
Ref. Externa: AP4459/1296
Id: 127959
Inicie sessão para guardar este imóvel e aceder à sua lista de favoritos em qualquer dispositivo.
Estes agentes são especialistas nesta zona:
Inicie sessão para ocultar este imóvel das suas pesquisas e manter a sua lista de resultados organizada.
Guardar favoritos
Este imóvel foi guardados nos seus favoritos com sucesso.
Para poder guardar pesquisa deverá ter a sua sessão iniciada.
Caso não tenha uma conta, deverá criar uma.
A sua pesquisa foi guardada com sucesso!
© Copyright 2023 | CASACERTA. All rights reserved
Este site utiliza cookies. Ao navegar no site estará a consentir a sua utilização.
Para mais informações sobre os cookies pode consultar a
política de privacidade.