Filtros
0 · 2 resultados900.000 €
Área de terreno : 1210 m²
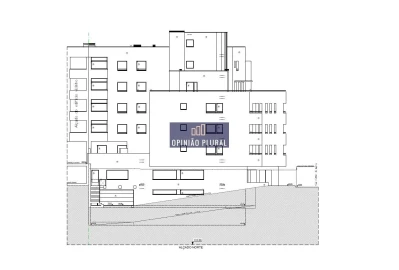
Terreno com Projeto de Arquitetura Aprovado - 27 Apartamentos, 2 Lojas Comerciais e 30 Lugares de Estacionamento Privativos Apresentamos um terreno com projeto de arquitetura aprovado, direcionado para a construção de um edifício habitacional de excelência, composto por 27 apartamentos, 2 lojas comerciais e 30 lugares de estacionamento privativos. Localizado no coração da freguesia de Canelas, em Vila Nova de Gaia, este projeto oferece uma excelente oportunidade de investimento. Localização privilegiada, com fácil acesso aos principais eixos rodoviários, como A1, A29, A20 e A44, permitindo deslocações rápidas para os principais centros urbanos, nomeadamente Porto, Gaia, Espinho, e as Praias. Além disso, a propriedade está servida por transportes públicos à porta e fica próxima de uma vasta gama de serviços e comodidades, como comércio local, escolas (básica, preparatória e secundária), instituições bancárias, postos de abastecimento, correios, GNR, farmácias, supermercados (Mercadona, Intermarché, Pingo Doce, Continente), a apenas 3 km do Hospital Santos Silva Gaia e a 5 minutos do centro de Gaia e da Estação de Metro Santo Ovídio. O projeto arquitetónico foi cuidadosamente elaborado por um gabinete especializado, com o objetivo de proporcionar o máximo de conforto e qualidade de vida aos futuros habitantes. O edifício será composto por 27 apartamentos, sendo 12 T2 e 4 T3. O piso térreo será destinado a 2 lojas comerciais, além de espaços comuns do edifício, enquanto os pisos -1 e -2 serão dedicados ao estacionamento privativo. Dados Gerais do Projeto: Área Total do Terreno: 1210 m² Área de Implantação: 588 m² Área Total de Construção: 4689,50 m² Área Bruta de Construção Acima do Solo: 3126 m² Área Bruta Habitável: 1245 m² Volume de Construção: 11015 m³ Número de Pisos Acima da Cota Soleira: 6 Número de Pisos Abaixo da Cota Soleira: 2 Número de Habitações: 27 (8 T1/ 12 T2 / 7 T3) Lojas Comerciais: 2 Área Comercial: 177 m² + 233 m² Estacionamentos Privativos: 30 Valor de Venda: €900.000, 00 (negociáveis) Esta é uma excelente oportunidade de investimento, com enorme potencial de valorização devido à localização estratégica e à qualidade do projeto aprovado. Para mais informações, entre em contacto connosco.
AMI: 15071
Ref. Externa: OPMS508
Id: 1140178
Inicie sessão para guardar este imóvel e aceder à sua lista de favoritos em qualquer dispositivo.
Profissionais que conhecem esta zona a fundo — contacte-os para uma avaliação personalizada.
300.000 €
Área de terreno : 1337 m²
Terreno com projecto aprovado para construção de 14 fracções. Área do terreno: 1337 m2 Área de implantação do edifício: 800 m2 Área bruta de construção: 1600 m2 - Zona muito central com escolas desde o jardim de infância até secundário. - Posto da GNR. - Vários postos de combustível low-cost. - Supermercados, - Igreja, - Zona Comercial bastante desenvolvida. - Zona Industrial. - Nó de acesso a auto-estrada A29 que dá ligação com A1, A20, A44, A32, A41. - Cemitério, - Jardim, - Centro de Saúde, - Parques Infantis, - Bancos, - Farmácia. Podemos ainda referenciar a Associação Humanitária com as suas valências de centro de dia, apoio domiciliário, transporte de doentes, fisioterapia. O solar dos condes de Resende é património a visitar. Quinta pedagógica com picadeiro e hospedagem de diversos animais. Pode ainda desfrutar da Serra de Canelas classificado com reserva natural.Terreno com projecto aprovado para construção de 15 fracções. Área do terreno: 1337 m2 Área de implantação do edifício: 800 m2 Área bruta de construção: 1600 m2 - Zona muito central com escolas desde o jardim de infância até secundário. - Posto da GNR. - Vários postos de combustível low-cost. - Supermercados, - Igreja, - Zona Comercial bastante desenvolvida. - Zona Industrial. - Nó de acesso a auto-estrada A29 que dá ligação com A1, A20, A44, A32, A41. - Cemitério, - Jardim, - Centro de Saúde, - Parques Infantis, - Bancos, - Farmácia. Podemos ainda referenciar a Associação Humanitária com as suas valências de centro de dia, apoio domiciliário, transporte de doentes, fisioterapia. O solar dos condes de Resende é património a visitar. Quinta pedagógica com picadeiro e hospedagem de diversos animais. Pode ainda desfrutar da Serra de Canelas classificado com reserva natural.
AMI: 17698
Ref. Externa: ARE_LP_1125
Id: 896157
Inicie sessão para guardar este imóvel e aceder à sua lista de favoritos em qualquer dispositivo.
© Copyright 2023 | CASACERTA. All rights reserved
Guardar favoritos
Este imóvel foi guardados nos seus favoritos com sucesso.
Para poder guardar pesquisa deverá ter a sua sessão iniciada.
Caso não tenha uma conta, deverá criar uma.
A sua pesquisa foi guardada com sucesso!
Este site utiliza cookies. Ao navegar no site estará a consentir a sua utilização.
Para mais informações sobre os cookies pode consultar a
política de privacidade.