Lista
Comprar
Arrendar
Área de terreno : 447 m²
Lote de terreno para construção de prédio. Lote para construção de 12 fogos apartamentos + 3 lojas , com 5 pisos mais cave, área bruta de construção de 1.776,04 m2. Localizado a 5 minutos a pé da estação da CP e junto a comercio.
AMI: 6893
Ref. Externa: L-2570
Id: 1541091
Inicie sessão para guardar este imóvel e aceder à sua lista de favoritos em qualquer dispositivo.
Área de terreno : 1185 m²
Lote de terreno destinado para construção urbana em Pontével, com área de 1185m2, poço e anexos , situado em zona calma e aprazível, junto a estrada alcatroada, a 5 min do centro do Cartaxo e a cerca de 10 min de acesso a A1/Aveiras Cima. Marque já a sua visita.
AMI: 10205
Ref. Externa: 5-T-000108
Id: 1540421
Inicie sessão para guardar este imóvel e aceder à sua lista de favoritos em qualquer dispositivo.
Área de terreno : 458 m²
Excelente terreno para construção na zona de Seiça - Ourém, com 458 metros quadrados de área e duas frentes de estrada, ótima oportunidade. Somos intermediários de crédito, confie nos a sua escolha nos ajudamos com toda a burocracia necessária, e indicamos a melhor opção de crédito para si. Conheça também a campanha de transferência de credito com taxas fixas.
AMI: 10205
Ref. Externa: 1-T-000516
Id: 1540384
Inicie sessão para guardar este imóvel e aceder à sua lista de favoritos em qualquer dispositivo.
Área de terreno : 212 m²
VENDIDO - Terreno com Moradia térrea, para venda, situada no Pombalinho, Concelho da Golegã. O terreno tem 212 m2 e nele está inserida uma Moradia com 97,20 m2 muito acolhedora e bem conservada. A parte habitacional tem vista para o campo e é composta por: - Sala; - Cozinha com salamandra; - Quarto com roupeiro; - 2 Quartos menores; - WC; - Arrecadação; - Alpendre. O restante terreno tem a área descoberta de 114,80 m2, onde encontra: - Espaço para uma mini horta ou jardim; - Reservatório de água; - Tanque; - Telheiro. O espaço está inserido na zona urbana, mas tem muita privacidade. Disfrute do convívio com a família ou amigos tendo por limite a sua imaginação. A envolvente é muito tranquila, humanizada e dispõe de comércio, vários serviços, junta de freguesia e outros, assim como de transportes próximos, nomeadamente comboio da linha do Norte. A estação ferroviária de Mato de Miranda está a 3 min, a Azinhaga de José Saramago a 4 min e a Capital do Cavalo e sede concelho, Golegã, a 10 minutos. Reguengos do Alviela, Alcanena, Santarém, tudo muito próximo. Se gosta de Planície e proximidade à Serra, este é o local certo. A Serra de Aire e Candeeiros ali bem próximo. Se gosta de Rio, o Tejo passa por perto. Um espaço de família, um espaço de união, um espaço de alegria. Marque visita. Um espaço com muito boa energia. MOVITUDO IMOBILIÁRIA, uma casa simpática. Há 29 anos dedicada a si na: • Mediação Imobiliária; • Intermediação de Crédito e • Mediação de Obras. Na MEDIAÇÃO IMOBILIÁRIA encontramos as melhores soluções e asseguramos um acompanhamento personalizado ao longo de todo o seu processo de: • Compra, venda ou arrendamento; • Investimento em imóveis da banca; • Imóveis de Oportunidade e • Imóveis de luxo ou golden visa. Na INTERMEDIAÇÃO DE CRÉDITO garantimos as melhores soluções do mercado ao nível do: • Crédito Habitação e • Crédito Hipotecário, para particulares e empresas. Na MEDIAÇÃO DE OBRAS apresentamos as melhores soluções face a padrões de qualidade que sempre nos pautaram. • Orçamentação Gratuita e • Um serviço personalizado de Chave na Mão. Na hora de comprar, vender ou arrendar o seu imóvel, lembre-se de si. Fale com MOVITUDO IMOBILIÁRIA. PORQUÊ COMPRAR COM A MOVITUDO? Diga-nos o que procura e iremos ajudá-lo(a). • FOCO no cliente; • DEDICAÇÃO na procura do imóvel ideal para si; • ORIENTAÇÃO para as suas necessidades; • RESPEITO pelos seus interesses; • INFORMAÇÃO de qualidade ao seu dispor; • ACOMPANHAMENTO em todas as fases do processo; • CONSULTORES ESPECIALISTAS em acompanhamento de compradores; • APOIO nas burocracias e • EXPERIÊNCIA comprovada desde 1992. PORQUÊ VENDER ou ARRENDAR COM A MOVITUDO? Basta contactar-nos e iremos ajudá-lo(a). • RESULTADOS comprovados; • EFICÁCIA na transação de imóveis; • CONHECIMENTO profundo do mercado imobiliário; • ORIENTAÇÃO para as suas necessidades; • PARTILHA com entidades de Licença AMI válida; • FOCO na prestação do melhor serviço e • EXPERIÊNCIA vasta e multidisciplinar.
AMI: 1804
Ref. Externa: 90000237V
Id: 1540302
Inicie sessão para guardar este imóvel e aceder à sua lista de favoritos em qualquer dispositivo.
Área de terreno : 1535 m²
Terreno totalmente plano para construção com excelente exposição solar, a 2 minutos da IC9. Ótima opção para quem procura um lugar reservado e com privacidade. Tem como medidas, 34,5 metros de frente de estrada e 44,5 metros de profundidade. Caso necessite de financiamento, oferecemos todo o nosso apoio com condições especiais de forma a tornar o processo mais célere.
AMI: 10205
Ref. Externa: 2-T-000392
Id: 1540063
Inicie sessão para guardar este imóvel e aceder à sua lista de favoritos em qualquer dispositivo.
Área de terreno : 1576 m²
Terreno na Freguesia de Atouguia com a area total de 1576 m² situado numa zona habitacional tranquila e de bons acessos. Com uma envolvente residencial e vistas deslumbrantes para as áreas verdes circundantes, este terreno oferece uma oportunidade para construir a casa dos seus sonhos. A visibilidade é excelente, permitindo que os residentes desfrutem de um ambiente tranquilo e pacífico. Qualquer informação referente à construção prestada neste anuncio não é vinculativa e não dispensa de confirmação camarária, pelo que aconselhamos que seja pedido um Pedido de Informação Prévia (PIP) junto do Município correspondente. Caso necessite de financiamento, oferecemos todo o nosso apoio com condições especiais de forma a tornar o processo mais célere. Assumimos o compromisso de ajudar as pessoas a realizarem os seus sonhos encontrando o imóvel que responda à sua necessidade, analisamos com rigor e transparência o valor de mercado de qualquer imóvel. Apostamos num serviço de qualidade e confiança e asseguramos todo o apoio na avaliação das melhores soluções de crédito.
AMI: 10205
Ref. Externa: 1-T-000785
Id: 1522354
Inicie sessão para guardar este imóvel e aceder à sua lista de favoritos em qualquer dispositivo.
110.000 €
Área de terreno : 7254 m²
O lote de terreno para construção tem cerca de 7254 m2. Localiza-se próximo da Estação Ferroviária de Riachos, em loteamento industrial a cerca de 2,5km da Golegã e 9,4km da A23. Terreno urbano em Riachos - Torres Novas Cova do Minhoto - Santarem. Imóvel promovido em propostas múltiplas à carta fechada até dia 26 de janeiro de 2025 às 13:00H.
AMI: 7142
Ref. Externa: LX/02512
Id: 1505649
Inicie sessão para guardar este imóvel e aceder à sua lista de favoritos em qualquer dispositivo.
110.000 €
Área de terreno : 7254 m²
Trata-se de um lote de terreno para construção tem cerca de 7254 m2 e localiza-se próximo da Estação Ferroviária de Riachos, em loteamento industrial a cerca de 2,5km da Golegã e 9,4km da A23. O prédio está inscrito na matriz predial urbana da freguesia de Riachos sob o artigo 3433, e encontra-se descrito na Conservatória do Registo Predial de Torres Novas sob o n.º 2212.
AMI: 9999
Ref. Externa: 28001193
Id: 1470152
Inicie sessão para guardar este imóvel e aceder à sua lista de favoritos em qualquer dispositivo.
Área de terreno : 2880 m²
Terreno Urbano para Venda em Moinho de Ordem, São João da Ribeira – Rio Maior Apresentamos este terreno urbano com uma área total de 2.880m², localizado numa zona tranquila e com excelente qualidade de vida, em Moinho de Ordem, em São João da Ribeira, concelho de Rio Maior. Com uma área de implementação do edifício de 392,29m², este terreno permite uma área bruta de construção de 400m², ideal para quem pretende construir uma moradia espaçosa. Conta ainda com uma área bruta dependente de 182,19m², perfeita para anexos, garagem ou outras funcionalidades complementares. Nota importante: O terreno já teve, em tempos, projeto aprovado para construção de uma moradia unifamiliar T4, o que demonstra a viabilidade e potencial do espaço para habitação familiar. A localização oferece o equilíbrio perfeito entre o sossego do campo e a proximidade de serviços essenciais, com bons acessos rodoviários e a poucos minutos de carro do centro de Rio Maior. ? Características principais: • Terreno urbano com viabilidade de construção • Área total: 2.880m² • Área de implantação: 392,29m² • Área bruta de construção: 400m² • Área bruta dependente: 182,19m² • Projeto aprovado anteriormente para moradia T4 • Zona calma e com boa exposição solar Ideal para quem procura investir ou construir a casa dos seus sonhos num ambiente natural e acolhedor. Não perca esta oportunidade! Para mais informações ou agendar visita, entre em contacto. Patrícia Rodrigues 9-6-5-4-6-1-1-5-6 (rede móvel nacional) Urban Plot for Sale | Moinho de Ordem, São João da Ribeira – Rio Maior We present this urban plot with a total area of 2,880m², located in a peaceful area with excellent quality of life, in Moinho de Ordem, parish of São João da Ribeira, municipality of Rio Maior. With a building footprint of 392.29m², the plot allows for a gross construction area of 400m², ideal for those looking to build a spacious and comfortable home. It also includes a gross dependent area of 182.19m², perfect for annexes, a garage, or other complementary structures. Important note: The plot previously had an approved project for the construction of a detached 4-bedroom villa, which highlights the viability and potential of the space for residential development. The location offers the perfect balance between countryside tranquility and proximity to essential services, with good road access and just a few minutes’ drive from the centre of Rio Maior. ? Key features: • Urban plot with construction viability • Total area: 2,880m² • Building footprint: 392.29m² • Gross construction area: 400m² • Gross dependent area: 182.19m² • Previously approved project for a 4-bedroom villa • Quiet area with excellent sun exposure Ideal for those looking to invest or build their dream home in a natural, welcoming environment with great potential for appreciation. Don’t miss this opportunity! For more information or to schedule a visit, please get in touch. Patrícia Rodrigues 9-6-5-4-6-1-1-5-6 (rede móvel nacional)
AMI: 7772
Ref. Externa: T-29390
Id: 1352118
Inicie sessão para guardar este imóvel e aceder à sua lista de favoritos em qualquer dispositivo.
Área de terreno : 210 m²
Lote de Terreno para construção de Prédio Habitacional com 11 fogos. Com arrecadações no sótão e parqueamento na cave. Zona residencial muito calma e óptima para se viver! Venha conhecer!
AMI: 68
Ref. Externa: 501.1131
Id: 1338916
Inicie sessão para guardar este imóvel e aceder à sua lista de favoritos em qualquer dispositivo.
Área de terreno : 1170 m²
Terreno urbano com uma área total de 1170 m² com excelente exposição solar e localização privilegiada em Ourém Com uma área de implantação e bruta de construção de 198,90 m², ideal para moradia unifamiliar ou projeto personalizado. ✅ Zona tranquila e com bons acessos ✅ Próximo de serviços, escolas e transportes ✅ Ótimo investimento para quem procura construir com qualidade de vida Qualquer informação referente à construção prestada neste anuncio não é vinculativa e não dispensa de confirmação camarária, pelo que aconselhamos que seja pedido um Pedido de Informação Prévia (PIP) junto do Município correspondente. Somos intermediários de crédito, confie nos a sua escolha nos ajudamos com toda a burocracia necessária, e indicamos a melhor opção de crédito para si. Conheça também a campanha de transferência de credito com taxas fixas. Caso necessite de financiamento, oferecemos todo o nosso apoio com condições especiais de forma a tornar o processo mais célere.
AMI: 10205
Ref. Externa: 1-T-000744
Id: 1273038
Inicie sessão para guardar este imóvel e aceder à sua lista de favoritos em qualquer dispositivo.
Área de terreno : 2100 m²
Venha descobrir este magnífico terreno urbano localizado na freguesia de Atouguia, concelho de Ourém. Com uma área bruta de 2100 m2, este terreno está disponível para venda por apenas 40 000,00€. Com uma excelente orientação solar a sul e uma visibilidade privilegiada, este terreno destaca-se pela presença de árvores que conferem um ambiente natural e sereno. O enquadramento deste terreno é ideal para quem procura comodidade e proximidade a serviços essenciais, tais como escolas, transportes públicos, supermercados, bancos, farmácias, entre outros. Localizado na periferia, este terreno beneficia de acessos facilitados, incluindo proximidade à auto-estrada e transportes públicos. Desfrute de vistas deslumbrantes para a serra, campo, pinhal e áreas verdes, num ambiente envolvente residencial e tranquilo. Esta é a oportunidade ideal para construir a sua casa de sonho, num local privilegiado e com todas as comodidades ao seu alcance. Não perca esta oportunidade única!
AMI: 10205
Ref. Externa: 2-T-000540
Id: 1108113
Inicie sessão para guardar este imóvel e aceder à sua lista de favoritos em qualquer dispositivo.
Área de terreno : 1627 m²
Patrícia Dias 910433241 |@ 9_1_0_4_3_3_2_4_1 (custo da chamada para rede móvel nacional). nove_um_zero_quatro_três_três_dois_quatro_um psr.dias@remax_pt. ....//////// ….. Terreno Urbano – 1627,40 m² Imagine um terreno que combina localização estratégica, acessibilidade e oportunidades de crescimento. Este terreno urbano, com uma área total de 1627,40 m², oferece uma excelente oportunidade para quem busca investir ou construir. Por que este terreno é perfeito para você? Potencial de Expansão Garantido Com as recentes alterações no Plano Diretor Municipal (PDM), já foi solicitado um parecer prévio para avaliar a possibilidade de construções adicionais. Localização Estratégica Situado em uma das regiões mais procuradas, o terreno oferece proximidade com importantes centros urbanos e turísticos: Apenas 10 km da charmosa Vila de Alcanena. A 11 km de Fátima, um dos destinos mais visitados de Portugal. A 20 km de Torres Novas, uma cidade vibrante com muitas opções de comércio e serviços. Acesso Rápido: Localizado junto à EN246, com ligações próximas às autoestradas A1 e A23 (10-12 km), garantindo facilidade de deslocamento para qualquer parte do país. Infraestrutura e Acesso Situado próximo a uma zona habitacional consolidada, perfeito para projetos residenciais ou mistos. Acesso fácil e pavimentado, ideal para deslocações práticas e convenientes. Oportunidade Imperdível Este terreno combina versatilidade e localização estratégica, tornando-se uma excelente opção para quem deseja investir, construir ou desenvolver projetos. Sua proximidade com áreas urbanas e a possibilidade de expansão garantem um grande potencial de valorização. ? Entre em contacto connosco! Estamos prontos para ajudá-lo a concretizar o seu sonho, seja na compra ou na venda do seu imóvel. Solicite mais informações e agende uma visita para explorar as infinitas possibilidades que este terreno oferece!
AMI: 7772
Ref. Externa: T-28403
Id: 1072859
Inicie sessão para guardar este imóvel e aceder à sua lista de favoritos em qualquer dispositivo.
150.000 €
Área de terreno : 6822 m²
Terreno com 30 m de frente, tem uma área total de 6.822 m², e um índice de construção de 50%, o que significa que você pode construir uma área de até 50% do total do terreno. Vamos calcular as áreas: 1. Índice de construção de 50%: - Isso significa que a área total construída no terreno pode chegar a 2.732 m², mas com um limite de 447,33 m², que é a área máxima de construção permitida por piso. 2. Área máxima de construção por piso: - A área máxima de construção permitida para cada piso é 447,33 m². 3. Construção de até 2 pisos ou térreo: - Se o imóvel tiver 2 pisos, a área máxima construída seria de 447,33 m² por piso, o que resulta em uma construção total de 894,66 m² (2 pisos). Ou seja, você tem a possibilidade de construir um imóvel de até 894,66 m² com 2 pisos, respeitando a área máxima de 447,33 m² por piso, o que está dentro do limite de construção total permitido no terreno. A localização é periférica, mas com transportes públicos nas proximidades, permitindo-lhe fácil acesso a todas as comodidades. Caso necessite de financiamento, oferecemos todo o nosso apoio com condições especiais de forma a tornar o processo mais célere. Assumimos o compromisso de ajudar as pessoas a realizarem os seus sonhos encontrando o imóvel que responda à sua necessidade, analisamos com rigor e transparência o valor de mercado de qualquer imóvel. Apostamos num serviço de qualidade e confiança e asseguramos todo o apoio na avaliação das melhores soluções de crédito.
AMI: 10205
Ref. Externa: 1-T-000703
Id: 1048389
Inicie sessão para guardar este imóvel e aceder à sua lista de favoritos em qualquer dispositivo.
Área de terreno : 2000 m²
Descubra a oportunidade única de construir a casa dos seus sonhos neste terreno urbano de 2000m2, localizado na encantadora freguesia de Espite, Ourém. Com um preço incrível de apenas 35 000,00€, este terreno oferece-lhe um espaço tranquilo rodeado por árvores e com um poço. A sua localização privilegiada permite-lhe ter acesso a transportes públicos e supermercados nas proximidades, bem como escolas e infantários para a educação dos seus filhos. Com vistas para o campo e áreas verdes, a zona envolvente é predominantemente residencial, proporcionando-lhe um ambiente pacífico para viver. Não perca esta oportunidade única de construir a casa dos seus sonhos neste terreno urbano em Espite, Ourém!
AMI: 10205
Ref. Externa: 2-T-000515
Id: 939591
Inicie sessão para guardar este imóvel e aceder à sua lista de favoritos em qualquer dispositivo.
130.000 €
Área de terreno : 900 m²
Fantástico terreno situado na zona de Lombo d'Égua com vista privilegiada para serra, pinhal e áreas verdes. Uma vista deslumbrante para construir a sua moradia de sonho. Em termos de infraestrutura o terreno já tem ligação à rede de água e rede elétrica. O terreno conta atualmente com um projeto aprovado, válido até 19/01/2025, para construção de uma moradia com 4 quartos e piscina. Todo este projeto foi cuidadosamente pensado em proporcionar o maior conforto e privacidade possivel. - Cave: - Garagem para duas viaturas (36,89m²) - Casa das máquinas (8,91m²) - Arrumos (26,04m²) - Rés do chão: - Sala de Estar/Jantar e Cozinha (Open Space): - Sala de Estar/Jantar (36,57m²) - Cozinha (14,70m²) - WC de serviço completo (4,64m²) - Quarto 1 (12,30m²) - Quarto 2 (12,30m²) - WC comum quarto 1 e 2 (10,63m²) - Quarto Suite: - Quarto (17,39m²) - Closet (7,50m²) - WC (9m²) - Total áreas de circulação (33,81m²) - Piso 1: - Quarto (12,90m²) - Escritório (10,63m²) - Área de circulação (8,96m²) - Terraço O terreno fica localizado próximo do centro de Fátima, a: - 1 min do Centro Infantil; - 2 min da Escola Secundária; - 2 min de supermercados e outros serviços essenciais; - 4 min do Santuário de Fátima; - 6 min Centro de Saúde de Fátima; - 6 min da entrada da A1; - 10 min da entrada do IC9; - 45 min da Nazaré; - 1h20 min de Lisboa. Caso necessite de financiamento, apostamos num serviço de qualidade e confiança e asseguramos todo o apoio na avaliação das melhores soluções de crédito.
AMI: 10205
Ref. Externa: 2-T-000499
Id: 851875
Inicie sessão para guardar este imóvel e aceder à sua lista de favoritos em qualquer dispositivo.
Área de terreno : 676 m²
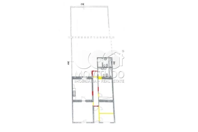
Terreno para construção de Prédio de 5 pisos - Cartaxo Composto por: cave, r/chão, 1º andar, 2º andar e sótão A cave destina-se a parqueamentos (25 lugares), r/chão, 1º e 2º andares destinados a habitação com 5 fogos/piso (3 T2 + 2 T3) e sótão (15 arrecadações). Com um total de 15 fogos (9 T2 e 6T3). Proximidades: -Escola(s) Secundária e da Escola Básica Marcelino Mesquita (2/3 Ciclo); - GNR e PSP; - Complexo Desportivo da Quinta das Pratas; - Estádio Municipal de Futebol; - Hotel do Cartaxo; - Padarias e cafés; - Pavilhão Municipal de Exposições e Recinto do(a) Mercado/Feira. Tem bons acessos ao centro do Cartaxo. Boa acessibilidade através da EN3, EN114-2, EN365-2 e A1 (nós Cartaxo e Aveiras de Cima). Somos Intermediário de crédito certificado pelo Banco de Portugal com o nº 0004071. Podemos ajudar no processo de crédito, sem burocracias e custos associados ,apresentando as melhores soluções de crédito. Para mais informações: contacte a IC KASA (telefone) / (telefone) ou (email)
AMI: 8897
Ref. Externa: Lote2349
Id: 828288
Inicie sessão para guardar este imóvel e aceder à sua lista de favoritos em qualquer dispositivo.
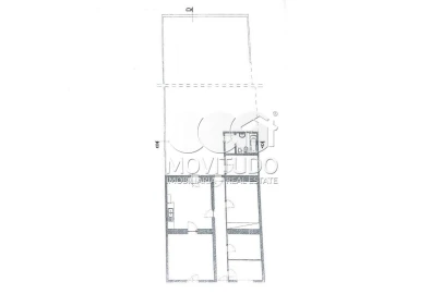
Área de terreno : 676 m²
Terreno para construção de Prédio de 5 pisos - Cartaxo Composto por: cave, r/chão, 1º andar, 2º andar e sótão A cave destina-se a parqueamentos (25 lugares), r/chão, 1º e 2º andares destinados a habitação com 5 fogos/piso (3 T2 + 2 T3) e sótão (15 arrecadações). Com um total de 15 fogos (9 T2 e 6T3). Proximidades: -Escola(s) Secundária e da Escola Básica Marcelino Mesquita (2/3 Ciclo); - GNR e PSP; - Complexo Desportivo da Quinta das Pratas; - Estádio Municipal de Futebol; - Hotel do Cartaxo; - Padarias e cafés; - Pavilhão Municipal de Exposições e Recinto do(a) Mercado/Feira. Tem bons acessos ao centro do Cartaxo. Boa acessibilidade através da EN3, EN114-2, EN365-2 e A1 (nós Cartaxo e Aveiras de Cima). Somos Intermediário de crédito certificado pelo Banco de Portugal com o nº 0004071. Podemos ajudar no processo de crédito, sem burocracias e custos associados ,apresentando as melhores soluções de crédito. Para mais informações: contacte a IC KASA (telefone) / (telefone) ou (email)
AMI: 8897
Ref. Externa: Lote2350
Id: 828287
Inicie sessão para guardar este imóvel e aceder à sua lista de favoritos em qualquer dispositivo.
Área de terreno : 598 m²
Vende-se lote para a construção de prédio, localizado em urbanização em expansão - Quinta do Mocho - Santarém. Viabilidade de construção para 3 Pisos + Cave. Estão no projeto 8 frações dos quais: -4 T2 ; - 3 T3; - 1 T4 ; - 13 estacionamentos. Área do lote: 598m2 Área de habitação :1051m2 Área da cave : 598m2 Proximidades: - 200metros de paragem de autocarro; - 2,5 kms do Pingo Doce; - 3,5 Kms do Centro de Saúde de S. Domingos e do Hospital Distrital de Santarém; - 3 kms do Hospital da CUF; - 800 mts de Escola Primária; - 3 Kms do acesso às principais autoestradas que fazem a ligação ao Norte, Sul e Oeste do País. Venha conhecer esta oportunidade de negócio! Isento de Certificado energético. Para mais informações: contacte a IC KASA (telefone) / (telefone) ou (email)
AMI: 8897
Ref. Externa: Lote2358
Id: 828280
Inicie sessão para guardar este imóvel e aceder à sua lista de favoritos em qualquer dispositivo.
Área de terreno : 770 m²
Terreno em zona urbana no centro de Caxarias já inserida no PDM de Ourém com área total de 769,77 m2. Ideal para construir um prédio de rendimento. O terreno está inserido numa zona autorizada para construção e que já tem as infraestruturas básicas, como saneamento básico, rede de eletricidade, água e telefone. Qualquer informação referente à construção prestada neste anúncio não é vinculativa e não dispensa de confirmação camarária, pelo que aconselhamos que seja pedido um Pedido de Informação Prévia (PIP) junto do Município correspondente. A sua localização no centro de Caxarias permite-lhe usufruir de uma zona envolvente residencial, com acesso a diversos serviços e comércio, como supermercados, bancos, correios, farmácias, escolas, infantários, centro de saúde. Destacar ainda a proximidade da Estação de comboios de Caxarias. Os transportes públicos e a auto-estrada são também de fácil acesso. Somos intermediários de crédito, confie nos a sua escolha nos ajudamos com toda a burocracia necessária, e indicamos a melhor opção de crédito para si. Conheça também a campanha de transferência de credito com taxas fixas. Caso necessite de financiamento, oferecemos todo o nosso apoio com condições especiais de forma a tornar o processo mais célere.
AMI: 10205
Ref. Externa: 1-T-000662
Id: 822342
Inicie sessão para guardar este imóvel e aceder à sua lista de favoritos em qualquer dispositivo.
Este agente é especialista nesta zona:
Inicie sessão para ocultar este imóvel das suas pesquisas e manter a sua lista de resultados organizada.
Guardar favoritos
Este imóvel foi guardados nos seus favoritos com sucesso.
Para poder guardar pesquisa deverá ter a sua sessão iniciada.
Caso não tenha uma conta, deverá criar uma.
A sua pesquisa foi guardada com sucesso!
© Copyright 2023 | CASACERTA. All rights reserved
Este site utiliza cookies. Ao navegar no site estará a consentir a sua utilização.
Para mais informações sobre os cookies pode consultar a
política de privacidade.