Lista
Comprar
Arrendar
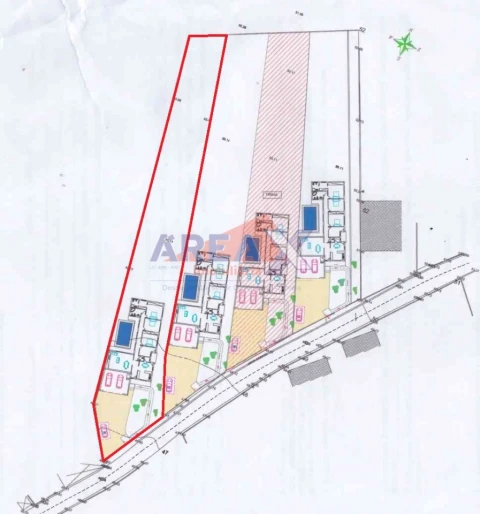
80.000 €
Área de terreno : 11250 m²
Apresentamos uma excelente oportunidade de investimento na Branca: terreno com 11.250 m², ideal para quem procura espaço, tranquilidade e potencial de valorização. Com possibilidade de construção, este terreno oferece condições ideais para desenvolver o seu projeto de moradia de sonho ou para investimento imobiliário. A sua área generosa permite criar uma habitação com amplas zonas exteriores, jardim, piscina ou até explorar soluções diferenciadoras que valorizem o espaço e a envolvente. Localizado numa zona calma e de fácil acesso, apenas a 40 min de Lisboa, beneficia da proximidade a serviços essenciais, comércio e principais vias rodoviárias, garantindo o equilíbrio perfeito entre sossego e conveniência. A envolvente natural proporciona um ambiente agradável e qualidade de vida para toda a família. Se procura um terreno com excelente dimensão, potencial construtivo e numa localização estratégica, esta é a oportunidade certa para concretizar o seu projeto. Para mais informações ou agendamento de visita, entre em contacto connosco, através do contacto: 933220707 Estamos disponíveis para o acompanhar em todas as fases do processo!
AMI: 15554
Ref. Externa: 73TerrenoBranca
Id: 1669412
Inicie sessão para guardar este imóvel e aceder à sua lista de favoritos em qualquer dispositivo.
50.000 €
Área de terreno : 1700 m²
Terreno rústico com possiblidade de conversão para urbano , ideal para investimento ou futura construção. Conta com 23 metros de frente, área total de 1.700 m2 e excelente exposição solar, proporcionando ótimas condições de luminosidade ao longo do dia . Local com bons acessos .
AMI: 21331
Ref. Externa: KWPT-026697
Id: 1564895
Inicie sessão para guardar este imóvel e aceder à sua lista de favoritos em qualquer dispositivo.
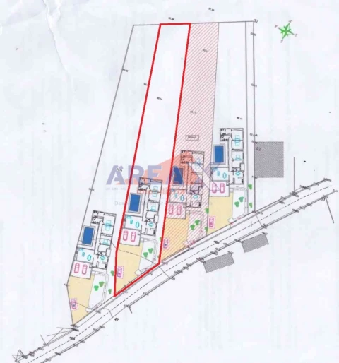
135.000 €
Área de terreno : 11000 m²
Terreno com 11.000 m² na Freguesia da Branca Coruche!!! Apenas a 40 minutos de Lisboa | Furo legalizado | Vedado | Potencial para 1 ou 2 moradias A Década Perspicaz tem para venda esta excelente oportunidade para quem procura espaço, privacidade e qualidade de vida no Ribatejo. Este terreno com 11 mil metros quadrados, vedado, situa-se na tranquila e acolhedora freguesia da Branca, no concelho de Coruche, uma localização que combina ambiente rural com acesso rápido à capital Lisboa, que está apenas 40 minutos. Com eletricidade trifàsica e um furo de água totalmente legalizado, o terreno garante autonomia e torna-se ideal para agricultura, cultivo próprio, projeto familiar ou criação de uma autêntica quintinha de lazer. A sua versatilidade é um grande destaque: Adquirido como um único lote, perfeito para desenvolver uma moradia com bastante privacidade, zonas verdes, pomar ou mesmo espaço para animais. Pode ser dividido após aquisição, em dois lotes independentes, ambos aprovados para construção, permitindo edificar duas moradias. A solução é excelente para uma ou duas famílias, investimento, projeto turístico/agroturístico ou outros projectos A freguesia da Branca oferece tudo o que torna o dia a dia mais calmo, tranquilo, prático e em total contacto com a natureza, mantendo o charme de aldeia ribatejana: Restaurantes típicos Cafés Farmácia Multibanco Comércio tradicional e serviços essenciais A poucos minutos encontra ainda a sede de concelho, Coruche, com supermercados, escolas, praia fluvial, piscinas e uma vasta oferta cultural. Aqui, encontra um equilíbrio raro entre natureza, acessibilidade e potencial de valorização. Um espaço amplo, versátil e com características que o tornam uma excelente oportunidade, seja para uso próprio ou como investimento seguro no Ribatejo. Agende já a sua visita e apresente-nos a sua proposta para esta excelente oportunidade.
AMI: 15554
Ref. Externa: Terreno147Branca
Id: 1501522
Inicie sessão para guardar este imóvel e aceder à sua lista de favoritos em qualquer dispositivo.
86.000 €
Área de terreno : 3400 m²
Terreno com Viabilidade de Construção – Outeirinho, Branca, Albergaria-a-Velha Conta com duas frentes, plano e totalmente murado, com 3400 m² e com aproximadamente 50m de frente com muro e portão para a rua do Areeiro e aproximadamente 30m de frente para a rua do Entroncamento também com muro e portão, ideal para construção residencial. Ligação à rede de água e saneamento disponível na rua. Localização estratégica a poucos metros do IC2, o terreno une a tranquilidade de uma zona tranquila com fácil acesso a vias principais. Ótima oportunidade para quem deseja investir em uma zona de fácil acesso, mas num ambiente calmo. Marque a sua visita, venha conhecer! REALIZAMOS SONHOS!
AMI: 20061
Ref. Externa: CS/05/2025
Id: 1492439
Inicie sessão para guardar este imóvel e aceder à sua lista de favoritos em qualquer dispositivo.
90.000 €
Área de terreno : 1339 m²
Terreno urbano com duas frentes localizado em zona tranquila no lugar de Soutelo, freguesia da Branca, concelho de Albergaria-a-velha. Apto para construção, possibilidade de construção de 3 moradias geminadas ou 6 apartamentos. Excelente exposição solar. Apenas a 10minutos de Albergaria, 5minutos da Branca e 15minutos de Estarreja. Próximo de restaurante, café e outros serviços. Venha conhecer, marque a sua visita! REALIZAMOS SONHOS!
AMI: 20061
Ref. Externa: CS/047/2024
Id: 1492437
Inicie sessão para guardar este imóvel e aceder à sua lista de favoritos em qualquer dispositivo.
63.000 €
Área de terreno : 1600 m²
Terreno Rústico à Venda com Viabilidade de Construção – Outeirinho, Branca, Albergaria-a-Velha Terreno rústico plano com 1600 m², com aproximadamente 50m de frente com muro e portão, localizado em Outeirinho, na freguesia de Branca, concelho de Albergaria-a-Velha, ideal para construção residencial. Totalmente murado, garantindo segurança e privacidade, e possui acesso a infraestruturas, incluindo: - Viabilidade de Construção: Documentação pronta para desenvolver projetos residenciais ou comerciais. - Ligação da rede de água e saneamento disponível na rua Localização estratégica a poucos metros do IC2, o terreno une a tranquilidade de uma zona tranquila com fácil acesso a vias principais. Ótima oportunidade para quem deseja investir em uma zona de fácil acesso, mas num ambiente calmo. Marque a sua visita, venha conhecer! REALIZAMOS SONHOS!
AMI: 20061
Ref. Externa: CS/040/2024
Id: 1492434
Inicie sessão para guardar este imóvel e aceder à sua lista de favoritos em qualquer dispositivo.
79.000 €
Área de terreno : 5124 m²
Excelente Terreno para Construção Branca (Coruche) A aldeia da Branca, concelho de Coruche situa-se a apenas 45 minutos de Lisboa, 30 de Santarém e 8 minutos de Coruche. Terreno com projeto aprovado para construção e possibilidade de destaque em dois lotes, oferecendo enorme potencial de valorização, ideal tanto para habitação própria como para investimento, este lote com 5000m2, permite 1000m2 de índice construtivo. Com acesso direto à Estrada Nacional CanhaCoruche (EN251), o terreno encontra-se numa zona tranquila e soalheira, rodeada de natureza e com ótimos acessos. A Branca dispõe de farmácia, comércio tradicional, cafés e restaurantes, proporcionando simultaneamente um ambiente acolhedor e qualidade de vida a quem procura o equilíbrio entre campo e cidade. Grande oportunidade para construir o seu futuro com valorização garantida! Contacte já a Década Perspicaz tratamos de todo o processo, com profissionalismo e acompanhamento completo. (Chamada para a rede nacional / disponível também via WhatsApp)
AMI: 15554
Ref. Externa: Terreno238Branca
Id: 1477968
Inicie sessão para guardar este imóvel e aceder à sua lista de favoritos em qualquer dispositivo.
40.000 €
Área de terreno : 1750 m²
Se procura tranquilidade sem abrir mão da conveniência, este é o lugar perfeito! Vista deslumbrante para o campo. Zona sossegada e perfeita para viver ou investir. A 10 minutos da A25 / A1 e a 20 minutos de Aveiro.
AMI: 16457
Ref. Externa: KWPT-012568
Id: 1426368
Inicie sessão para guardar este imóvel e aceder à sua lista de favoritos em qualquer dispositivo.
55.000 €
Área de terreno : 2320 m²
Terreno com 2.320 m2, plano e com grande potencial para construção habitacional, ou comercial. Com área ampla e versátil, bom acesso e localização estratégica. Próximo da N1. Excelente oportunidade para quem procura investir ou construir! A Equipa Mudda Castelo, trabalha com toda a paixão, para prestar o melhor serviço a todos os clientes. A Mudda, preza o trabalho em equipa, partilha e estamos em constante evolução. Para nós, é importante o contato e o cuidado com os clientes. Privamos um acompanhamento exclusivo, onde apresentamos várias soluções. Contacte-nos para mais informações ou para agendar uma visita.
AMI: 21110
Ref. Externa: MUDDA.1516.21110
Id: 1357005
Inicie sessão para guardar este imóvel e aceder à sua lista de favoritos em qualquer dispositivo.
259.000 €
Área de terreno : 7000 m²
Terreno com cerca de 7000m2, localizado junto à estrada nacional nº1 na zona da Branca em Albergaria a Velha. O terreno apresenta uma excelente localização, junto a diverso comércio, serviços e a zona habitacional. O imóvel é composto por três artigos, um com 5790 m2, o segundo com 700m2 e o terceiro com 558m2. O terreno está classificado segundo o PDM da Câmara Municipal de Albergaria a Velha, como solo urbano de espaço central, nível 2, ou seja prevê construção. A Equipa MUDDA Castelo trabalha com toda a paixão para prestar um excelente serviço aos clientes. Prezamos pelo trabalho em equipa, partilha e estamos em constante evolução. Para nós, é importante o contato e o cuidado com os clientes. Privamos um acompanhamento exclusivo, onde apresentamos a melhor soluções. Não deixe escapar esta oportunidade única. Entre em contato conosco agora para obter mais informações e agendar uma visita ao local. Estamos prontos para ajudá-lo a transformar seus planos em realidade.
AMI: 21110
Ref. Externa: MUDDA.1386.21110
Id: 1024603
Inicie sessão para guardar este imóvel e aceder à sua lista de favoritos em qualquer dispositivo.
620.000 €
Área de terreno : 13450 m²
Excelente Oportunidade!!! Terreno para construção em Albergaria -a-Velha, no lugar da Branca. Possibilidade de construção quer em altura, quer para moradias. Localização privilegiada junto ao IC2, bons acessos e perto de todos os serviços. Venha conhecer e siga em frente com o seu projeto. Homelux imobiliária é uma mediadora que reúne colaboradores com uma sólida experiência no mercado nacional, sempre com respeito pelas melhores práticas de gestão, orientadas para si, o nosso cliente. Mais do que uma imobiliária convencional ou simples intermediário, somos uma equipa de pessoas talentosas que se move pela paixão de encontrar as melhores soluções para si. A nossa prioridade é participar na melhoria da sua qualidade de vida. Temos uma forte presença no Continente e Ilhas. Contudo, perspetivamos um crescimento nacional capaz de abranger todas as zonas do país. Contamos ainda com parcerias estabelecidas com instituições de renome, que nos garantem sempre a melhor qualidade dos nossos serviços, a nível nacional e internacional. Os nossos valores-chave são: lealdade, dedicação, profissionalismo, proatividade e confiança. Não gerimos apenas clientes - construímos relações duradouras.
AMI: 13867
Ref. Externa: HL1926
Id: 784657
Inicie sessão para guardar este imóvel e aceder à sua lista de favoritos em qualquer dispositivo.
55.000 €
Área de terreno : 3810 m²
Aproveite esta oportunidade. Terreno urbano no centro da Vila da Branca, com 46 metros de frente, ideal para construção. O terreno dispõe de saneamento e eletricidade, conforme pode ver nas fotos. Está localizado a 5 minutos de Oliveira de Azeméis e de Albergaria-a-Velha, com excelentes acessos às principais vias, como a A1 e A29, bem como à linha de comboio e ao futuro TGV (comboio de alta velocidade). Situa-se em estrada alcatroada, com saneamento e luz disponíveis para ligação, numa zona central, com bons acessos e grande potencial para habitação ou investimento.
AMI: 13867
Ref. Externa: HL1745
Id: 752048
Inicie sessão para guardar este imóvel e aceder à sua lista de favoritos em qualquer dispositivo.
320.000 €
Área de terreno : 10100 m²
Terreno Urbano na Branca com 10.100m2. Venha conhecer esta oportunidade de perto! Marque já a sua visita!
AMI: 9966
Ref. Externa: 455
Id: 726306
Inicie sessão para guardar este imóvel e aceder à sua lista de favoritos em qualquer dispositivo.
27.500 €
Área de terreno : 300 m²
Terreno urbano para construção de moradia com localização privilegiada. Em local calmo com excelentes acessos a Albergaria a Velha e a Oliveira de Azeméis. Junto a escolas e Centro de Saúde. Para quem procura um local calmo e perto de tudo. este local é o ideal. Agende já a sua visita e conheça também as nossas soluções para auto construção. Se ainda não encontrou o imóvel com as características que necessita contacte-nos, temos imóveis em carteira que poderão ser uma solução e terá sempre ajuda de um dos nossos profissionais! Se está a pensar em comprar mas precisa primeiro de vender a sua casa, também o ajudamos nesse sentido. Não hesite contactar o responsável por este imóvel. Homelux imobiliária é uma mediadora que reúne colaboradores com uma sólida experiência no mercado nacional, sempre com respeito pelas melhores práticas de gestão, orientadas para si, o nosso cliente. Mais do que uma imobiliária convencional ou simples intermediário, somos uma equipa de pessoas talentosas que se move pela paixão de encontrar as melhores soluções para si. A nossa prioridade é participar na melhoria da sua qualidade de vida. Temos uma forte presença no Continente e Ilhas. contudo perspetivamos um crescimento nacional capaz de abranger todas as zonas do país. Contamos ainda com parcerias estabelecidas com instituições de renome, que nos garantem sempre a melhor qualidade dos nossos serviços, a nível nacional e internacional. Os nossos valores-chave são: lealdade, dedicação, profissionalismo, proatividade e confiança. Não gerimos apenas clientes construímos relações duradouras.
AMI: 13867
Ref. Externa: HL1908
Id: 713184
Inicie sessão para guardar este imóvel e aceder à sua lista de favoritos em qualquer dispositivo.
55.000 €
Área de terreno : 1700 m²
Terreno com área total de 1.700 m2, com frente de 23 metros e que permite a construção de moradia até 1 Piso. Este terreno está localizado na Branca, em Albergaria-a-Velha, a 10 minutos do centro, onde encontra todo o tipo de serviços Públicos, restaurantes e todo o tipo de comércio. Com excelentes acessos, apenas a 25 minutos de Aveiro e cerca de 39min do Porto. Em Albergaria encontra vários parques, junto à Natureza, com excelentes áreas de lazer para crianças e adultos. Ideal para convívios, proporcionando bem estar, onde poderá fazer a sua caminhada e até passear o seu animal de estimação. Fica numa zona de crescimento habitacional, perto EN1 e com bons acessos. O que lhe permite chegar a qualquer lado, mais rapidamente. Se procura terreno para construir a sua casa de sonho em zona calma e tranquila, e ao mesmo tempo a escassos minutos de centros urbanos, não perca a oportunidade! Venha conhecer o lugar ideal para a sua Casa de Sonho! Marque já a sua visita! Na MUDDA trataremos de todo o seu processo desde o agendamento da visita até à entrega das suas chaves, garantindo que está por dentro de todo o processo, sem dúvidas. ✅Quem é a MUDDA? A rede imobiliária MUDDA nasce do desejo do Grupo STARS continuar a evoluir no mercado imobiliário. O grupo encontra-se presente no mercado com várias marcas e com crescimento significativo desde a sua criação. A rede imobiliária MUDDA com 7 agência distribuídas pelo país, tem para lhe oferecer um serviço customizado e inovador no momento de comprar, arrendar ou vender casa, afastando-se estrategicamente da despersonalização e massificação, aproximando-se da ideologia de que cada cliente é uma pessoa com visões e necessidades diferenciadas. Com um espírito de melhoria continua, oferecermos a melhor formação imobiliária para prestarmos um serviço capaz de responder a qualquer desafio! Formamos consultores imobiliários de excelência. Na MUDDA trabalhamos em dedicação a quem mais importa, toda a comunidade que nos envolve. Os consultores da MUDDA trabalham de forma personalizada, sendo cada um especialista do mercado onde atua. Este é o momento, MUDDA a tua vida, comece pela sua casa! ✅Porquê a MUDDA? Na Mudda, transformamos a experiência imobiliária num processo simples, seguro e acompanhado em todas as fases. Somos uma das poucas imobiliárias que oferece suporte integral tanto a proprietários como a compradores, cuidando de toda a documentação necessária à compra e venda de imóveis. O nosso compromisso vai para além da mera intermediação: acompanhamos os nossos clientes desde o primeiro contacto até à conclusão do negócio, proporcionando apoio especializado na obtenção de crédito e na interpretação da legislação imobiliária em vigor. Desta forma, garantimos que cada transacção seja efetuada com total transparência, conformidade e segurança. Na Mudda, sabemos que cada detalhe faz a diferença. Por isso, a nossa equipa trabalha de forma personalizada para responder às suas necessidades, assegurando que o seu investimento seja tratado com o profissionalismo e a atenção que merece. ✅Visite-nos em www.mudda.me e descubra como podemos facilitar a sua jornada no mercado imobiliário.
AMI: 19923
Ref. Externa: MUDDA.2132.19923
Id: 504514
Inicie sessão para guardar este imóvel e aceder à sua lista de favoritos em qualquer dispositivo.
60.000 €
Área de terreno : 2180 m²
Terreno com 2180m2 na BrancaFrente urbana com 17m2;Com capacidade para construção;Área de construção de 704m2;Inserido em espaço residencial;Apto para construção de habitação unifamiliar.Referência interna do imóvel: 0220129Menfinvest Trading, LdaLicença AMI nº: 15215Intermediário de Crédito Vinculado nº: 0007189Quem Somos - Gold ImóveisO projeto Gold Imóveis nasceu com o objetivo de trazer diferenciação e acréscimo ao mercado imobiliário, tendo como principal premissa a satisfação dos nossos clientes. Em 2019, iniciamos a nossa atividade com a abertura da loja em Penafiel e fruto da nossa expansão continua, pode também encontrar-nos em Oliveira de Azeméis e Castelo de Paiva.Somos intermediários de crédito autorizados pelo Banco de Portugal e, juntamente com os nossos profissionais, ajudamos a obter as melhores propostas de mercado. De forma cómoda e tranquila, tratamos de todo o processo, desde o primeiro contacto até ao dia da escritura, tornando-se assim mais um Sorriso Gold.Se procura um serviço capaz de mudar a sua rotina, contacte-nos.
AMI: 15215
Ref. Externa: 0220129
Id: 478220
Inicie sessão para guardar este imóvel e aceder à sua lista de favoritos em qualquer dispositivo.
45.000 €
Área de terreno : 596 m²
Lote de terreno, Branca, Albergaria-a-Velha Lote de terreno com 596.5 m2 de área, com infraestruturas, para construção de moradia de arquitectura moderna de 2 pisos e anexos. Este lote está inserido na Urbanização Mariana, a 500 m do IC 2 que faz com que esteja a 5 minutos do centro de Albergaria-a-Velha, a 15 minutos de Aveiro e a 20 minutos do Porto, onde o investimento é a qualidade de vida, em zona privilegiada pela tranquilidade, contacto com a natureza, com espaços verdes e espaços de lazer, para toda a família. Ideal para construir a moradia com que sempre sonhou. Não perca a oportunidade!
AMI: 19923
Ref. Externa: MUDDA.1228.12989B
Id: 238063
Inicie sessão para guardar este imóvel e aceder à sua lista de favoritos em qualquer dispositivo.
45.000 €
Área de terreno : 631 m²
Lote de terreno com 631.8 m2 de área, com infraestruturas, para construção de moradia de arquitectura moderna de 2 pisos e anexos. Este lote está inserido na Urbanização Mariana, a 500 m do IC 2 que faz com que esteja a 5 minutos do centro de Albergaria-a-Velha, a 15 minutos de Aveiro e a 20 minutos do Porto, onde o investimento é a qualidade de vida, em zona privilegiada pela tranquilidade, contacto com a natureza, com espaços verdes e espaços de lazer, para toda a família. Ideal para construir a moradia com que sempre sonhou. Não perca a oportunidade! Na MUDDA trataremos de todo o seu processo desde o agendamento da visita até à entrega das suas chaves, garantindo que está por dentro de todo o processo, sem dúvidas. ✅Quem é a MUDDA? A rede imobiliária MUDDA nasce do desejo do Grupo STARS continuar a evoluir no mercado imobiliário. O grupo encontra-se presente no mercado com várias marcas e com crescimento significativo desde a sua criação. A rede imobiliária MUDDA com 7 agência distribuídas pelo país, tem para lhe oferecer um serviço customizado e inovador no momento de comprar, arrendar ou vender casa, afastando-se estrategicamente da despersonalização e massificação, aproximando-se da ideologia de que cada cliente é uma pessoa com visões e necessidades diferenciadas. Com um espírito de melhoria continua, oferecermos a melhor formação imobiliária para prestarmos um serviço capaz de responder a qualquer desafio! Formamos consultores imobiliários de excelência. Na MUDDA trabalhamos em dedicação a quem mais importa, toda a comunidade que nos envolve. Os consultores da MUDDA trabalham de forma personalizada, sendo cada um especialista do mercado onde atua. Este é o momento, MUDDA a tua vida, comece pela sua casa! ✅Porquê a MUDDA? Na Mudda, transformamos a experiência imobiliária num processo simples, seguro e acompanhado em todas as fases. Somos uma das poucas imobiliárias que oferece suporte integral tanto a proprietários como a compradores, cuidando de toda a documentação necessária à compra e venda de imóveis. O nosso compromisso vai para além da mera intermediação: acompanhamos os nossos clientes desde o primeiro contacto até à conclusão do negócio, proporcionando apoio especializado na obtenção de crédito e na interpretação da legislação imobiliária em vigor. Desta forma, garantimos que cada transacção seja efetuada com total transparência, conformidade e segurança. Na Mudda, sabemos que cada detalhe faz a diferença. Por isso, a nossa equipa trabalha de forma personalizada para responder às suas necessidades, assegurando que o seu investimento seja tratado com o profissionalismo e a atenção que merece. ✅Visite-nos em www.mudda.me e descubra como podemos facilitar a sua jornada no mercado imobiliário.
AMI: 19923
Ref. Externa: MUDDA.1237.12989B
Id: 234574
Inicie sessão para guardar este imóvel e aceder à sua lista de favoritos em qualquer dispositivo.
40.000 €
Área de terreno : 570 m²
Lote de terreno com 570.90 m2 de área, com infraestruturas, para construção de moradia de arquitectura moderna de 2 pisos e anexos. Este lote está inserido na Urbanização Mariana, a 500 m do IC 2 que faz com que esteja a 5 minutos do centro de Albergaria-a-Velha, a 15 minutos de Aveiro e a 20 minutos do Porto, onde o investimento é a qualidade de vida, em zona privilegiada pela tranquilidade, contacto com a natureza, com espaços verdes e espaços de lazer, para toda a família. Ideal para construir a moradia com que sempre sonhou. Não perca a oportunidade!
AMI: 19923
Ref. Externa: MUDDA.1232.12989B
Id: 231583
Inicie sessão para guardar este imóvel e aceder à sua lista de favoritos em qualquer dispositivo.
45.000 €
Área de terreno : 590 m²
Lote de terreno com 590.8 m2 de área, com infraestruturas, para construção de moradia de arquitectura moderna de 2 pisos e anexos. Este lote está inserido na Urbanização Mariana, a 500 m do IC 2 que faz com que esteja a 5 minutos do centro de Albergaria-a-Velha, a 15 minutos de Aveiro e a 20 minutos do Porto, onde o investimento é a qualidade de vida, em zona privilegiada pela tranquilidade, contacto com a natureza, com espaços verdes e espaços de lazer, para toda a família. Ideal para construir a moradia com que sempre sonhou. Não perca a oportunidade! Na MUDDA trataremos de todo o seu processo desde o agendamento da visita até à entrega das suas chaves, garantindo que está por dentro de todo o processo, sem dúvidas. ✅Quem é a MUDDA? A rede imobiliária MUDDA nasce do desejo do Grupo STARS continuar a evoluir no mercado imobiliário. O grupo encontra-se presente no mercado com várias marcas e com crescimento significativo desde a sua criação. A rede imobiliária MUDDA com 7 agência distribuídas pelo país, tem para lhe oferecer um serviço customizado e inovador no momento de comprar, arrendar ou vender casa, afastando-se estrategicamente da despersonalização e massificação, aproximando-se da ideologia de que cada cliente é uma pessoa com visões e necessidades diferenciadas. Com um espírito de melhoria continua, oferecermos a melhor formação imobiliária para prestarmos um serviço capaz de responder a qualquer desafio! Formamos consultores imobiliários de excelência. Na MUDDA trabalhamos em dedicação a quem mais importa, toda a comunidade que nos envolve. Os consultores da MUDDA trabalham de forma personalizada, sendo cada um especialista do mercado onde atua. Este é o momento, MUDDA a tua vida, comece pela sua casa! ✅Porquê a MUDDA? Na Mudda, transformamos a experiência imobiliária num processo simples, seguro e acompanhado em todas as fases. Somos uma das poucas imobiliárias que oferece suporte integral tanto a proprietários como a compradores, cuidando de toda a documentação necessária à compra e venda de imóveis. O nosso compromisso vai para além da mera intermediação: acompanhamos os nossos clientes desde o primeiro contacto até à conclusão do negócio, proporcionando apoio especializado na obtenção de crédito e na interpretação da legislação imobiliária em vigor. Desta forma, garantimos que cada transacção seja efetuada com total transparência, conformidade e segurança. Na Mudda, sabemos que cada detalhe faz a diferença. Por isso, a nossa equipa trabalha de forma personalizada para responder às suas necessidades, assegurando que o seu investimento seja tratado com o profissionalismo e a atenção que merece. ✅Visite-nos em www.mudda.me e descubra como podemos facilitar a sua jornada no mercado imobiliário.
AMI: 19923
Ref. Externa: MUDDA.1229.12989B
Id: 229626
Inicie sessão para guardar este imóvel e aceder à sua lista de favoritos em qualquer dispositivo.
Estes agentes são especialistas nesta zona:
Inicie sessão para ocultar este imóvel das suas pesquisas e manter a sua lista de resultados organizada.
© Copyright 2023 | CASACERTA. All rights reserved
Guardar favoritos
Este imóvel foi guardados nos seus favoritos com sucesso.
Para poder guardar pesquisa deverá ter a sua sessão iniciada.
Caso não tenha uma conta, deverá criar uma.
A sua pesquisa foi guardada com sucesso!
Este site utiliza cookies. Ao navegar no site estará a consentir a sua utilização.
Para mais informações sobre os cookies pode consultar a
política de privacidade.