Lista
Comprar
Arrendar
Área de terreno : 5030 m²
Terreno com uma área total e 5 030m2, no centro de Nogueira da Regedoura, com possibilidade de construção de moradias unifamiliares ou de construção multifamiliar. De acordo com o PMD previsto em 2015, o solo está classificado como Espaço Residencial Nível II, o que lhe confere capacidade construtiva para habitação. A excelente zona residencial onde se situa o terreno constitui uma importante caraterística do mesmo, com acesso imediato ao mais variado comércio e serviços e ligações rápidas aos centros das cidades de Espinho e de Santa Maria da Feira e A1, A29 e A41. Se pretende viver ou investir numa zona em constante valorização, então este imóvel é para si! Não perca tempo, venha já visitar connosco! Nota - O imovel não foi objeto de medição ou levantamento topográfico, pelo que as áreas anunciadas são as que constam na documentação do mesmo.
AMI: 21331
Ref. Externa: KWPT-026498
Id: 1589401
Inicie sessão para guardar este imóvel e aceder à sua lista de favoritos em qualquer dispositivo.
Área de terreno : 7231 m²
Retoma de Banco – Terrenos Urbanos em Nogueira da Regedoura Excelente oportunidade de investimento. Venda conjunta de dois terrenos urbanos, com uma área total de 7.231 m², correspondentes a dois artigos distintos (5.231 m² e 2.000 m²), destinados à construção de moradias isoladas, geminadas ou em banda. Inseridos numa zona com excelente exposição solar, os terrenos beneficiam de bons acessos rodoviários e de uma localização estratégica, próxima dos limites de Vila Nova de Gaia, com ligação rápida à A41, A1 e à Estrada Nacional 1. Uma solução ideal para promotores e investidores que procuram um projeto com forte potencial de valorização. Contacte-nos para mais informações ou para agendar uma visita.
AMI: 9083
Ref. Externa: TER_5338
Id: 1561019
Inicie sessão para guardar este imóvel e aceder à sua lista de favoritos em qualquer dispositivo.
Área de terreno : 160 m²
Terreno com 160,50m2 inserido em Nogueira da Regedoura. Localizado em zona residencial calma e segura. De fácil acesso a todos os acessos importantes e com todos os serviços muito próximos. Com boa exposição solar. Comprar um terreno para construção pode ser a solução. Esta opção dá-lhe a oportunidade de criar o imóvel que sempre quis e sonhou, exatamente à sua medida. Venha conhecer o terreno e confirme todo o seu potencial. Sobre Nogueira da Regedoura: Nogueira da Regedoura é uma freguesia portuguesa do extremo noroeste do município de Santa Maria da Feira, com 4,87 km² de área e 5 790 habitantes (2011). A sua densidade populacional é de 1 188,9 hab/km². Esta faz fronteira com São Paio de Oleiros, Mozelos, Argoncilhe, do município de Santa Maria da Feira, com Esmojães e Guetim, do município de Espinho e com a União das Freguesias de Grijó e Sermonde, do município de Vila Nova de Gaia. Património e Sítios de Interesse Igreja Matriz de São Cristóvão de Nogueira da Regedoura Cruzeiro Capela do Senhor dos Aflitos Capela de Nossa Senhora dos Remédios Centro Social Luso-Venezolano
AMI: 18137
Ref. Externa: ter329
Id: 1528862
Inicie sessão para guardar este imóvel e aceder à sua lista de favoritos em qualquer dispositivo.
Área de terreno : 7231 m²
Terrenos Urbanos em Nogueira da Regedoura, Santa Maria da Feira. Dois terrenos urbanos com uma área total de 7.231 m², localizados numa zona privilegiada de Santa Maria da Feira, com frente para as Rua da Mocidade e Avenida Luís de Camões. Estes terrenos oferecem excelente potencial construtivo, sendo ideais para projetos residenciais de habitação unifamiliar isolada, geminada ou em banda. Características Principais Área total: 7.231 m² Índice máximo de ocupação do solo: 60% Índice máximo de utilização do solo: 0,7 Área mínima dos lotes: 300 m² Número máximo de pisos: 2 acima da cota de soleira Frentes mínimas dos lotes: - 8 m (moradias em banda) - 11 m (moradias geminadas) - 18 m (moradias isoladas) Potencial de Construção De acordo com o estudo teórico de capacidade construtiva, é possível desenvolver até 19 moradias em banda, cada uma com: 115 m² de área de implantação 2 pisos acima da cota de soleira Garagem Área de terreno por lote: 305 m² (já considerado 20% para infraestruturas) Localização Estratégica Situados numa zona de expansão urbana de Santa Maria da Feira, estes terrenos beneficiam de: Acessos rápidos às principais vias rodoviárias Proximidade de comércio, escolas e serviços Envolvente residencial consolidada
AMI: 21880
Ref. Externa: 151/25
Id: 1467420
Inicie sessão para guardar este imóvel e aceder à sua lista de favoritos em qualquer dispositivo.
Área de terreno : 694 m²
Lote de terreno que se destina à construção de uma habitação isolada com as seguintes caraterísticas: Área total – 694 m² Área de implantação do edifício – 120 m² Área bruta de construção – 240 m² A sua excelente localização, numa zona central de Nogueira da Regedoura, permite o acesso ao mais variado tipo de comércio e serviços, uma rápida ligação aos centros das cidades de Espinho e Santa Maria da Feira e com excelentes acessos à A1 e A29. Se pretende construir a sua moradia numa zona urbana, com excelentes acessos e com uma excelente qualidade de vida, então este imóvel é para si! Não perca tempo… ligue antes que seja vendido!
AMI: 21331
Ref. Externa: KWPT-022219
Id: 1429904
Inicie sessão para guardar este imóvel e aceder à sua lista de favoritos em qualquer dispositivo.
Área de terreno : 1218 m²
Lotes de terrenos, contíguos, que se destinam à construção de duas habitações isoladas com as seguintes caraterísticas: • áreas totais – 524 e 694 m² • área de implantação do edifício – 120 m2/cada • área bruta de construção – 240 m²/cada A excelente localização dos dois lotes, em zona central de Nogueira da Regedoura, permite o acesso ao mais variado tipo de comércio e serviços, uma rápida ligação aos centros das cidades de Espinho e de Santa Maria da Feira e com excelentes acessos à A1 e A29. Se pretende construir a sua moradia, ou tem intenção de investir numa zona urbana, com excelentes acessos e com uma excelente qualidade de vida, então estes imóveis são para si! Não perca tempo… ligue antes que sejam vendidos!
AMI: 21331
Ref. Externa: KWPT-022221
Id: 1429552
Inicie sessão para guardar este imóvel e aceder à sua lista de favoritos em qualquer dispositivo.
Área de terreno : 524 m²
Lote de terreno que se destina à construção de uma habitação isolada com as seguintes caraterísticas: Área total – 524 m² Área de implantação do edifício – 120 m² Área bruta de construção – 240 m² A sua excelente localização, numa zona central de Nogueira da Regedoura, permite o acesso ao mais variado tipo de comércio e serviços, uma rápida ligação aos centros das cidades de Espinho e Santa Maria da Feira e com excelentes acessos à A1 e A29. Se pretende construir a sua moradia numa zona urbana, com excelentes acessos e com uma excelente qualidade de vida, então este imóvel é para si! Não perca tempo… ligue antes que seja vendido!
AMI: 21331
Ref. Externa: KWPT-022212
Id: 1427729
Inicie sessão para guardar este imóvel e aceder à sua lista de favoritos em qualquer dispositivo.
Área de terreno : 7231 m²
RO2673 Venda conjunta de dois terrenos urbanos, com a área de 7231 m2. Destinam-se preferencialmente a habitação unifamiliar, isolada, geminada ou em banda, sendo o índice máximo de ocupação do solo de 60% e o índice máximo de utilização do solo de 0,7; a área mínima dos lotes é de 300 m2 devendo apresentar frentes mínimas de, respectivamente, 8,11 e 18 metros, conforme se trate de edificações em vanda, geminadas ou isoladas; o número máximo de pisos acima da cota de soleira é de 2. De acordo com a sua capacidade construtiva, considerou-se o 'estudo teórico' da construção de 19 moradias em banda com 115m2 de área de implantação, 2 pisos acima da cota de soleira e garagem, com área de terreno por lote de 305 m2 (considera-se que 20% da área de terreno será utilizado para infraestruturas). Os terrenos localizam-se em zona predominantemente de características rurais no concelho de Santa Maria da Feira, mas em zona limítrofe com o concelho de Vila Nova de Gaia. Possuem boas acessibilidades, encontrando-se próximos dos nós da A41, A1 e estrada nacional 1. Na envolvente direta existem sobretudo moradias geminadas, isoladas ou em banda, de cércea máxima de 2 pisos acima da cota de soleira. RETOMA BANCÁRIA Não perca esta oportunidade. Contacte-nos para mais informações! A Real Objectiva é uma empresa implantada no norte de Portugal, vocacionada para a venda e arrendamento de imóveis. Fruto dos seus 26 anos de trabalho, pautados pelo rigor e profissionalismo alcançou resultados reconhecidos pelo mercado em que se insere, atuando de forma transversal no mercado habitacional e no mercado industrial. Missão: Praticar um conceito de mediação imobiliária baseada na relação cliente/empresa consolidada pelo papel do consultor especialista e capaz de permitir a superação das expectativas de todos os intervenientes. Posicionamento: Vendemos casas Vendemos armazéns, escritórios, lojas e terrenos Especialistas do mercado imobiliário Princípios de Atuação: Competência Confidencialidade Idoneidade Disponibilidade Modelos de Ação: Rigor e profissionalismo Especialistas na angariação e na mediação imobiliária Estudamos o mercado e propomo-nos a encontrar soluções adequadas Avaliações rigorosas e alvo de estudo pormenorizado Cuidado extremo nas visitas
AMI: 3456
Ref. Externa: RO2673
Id: 1386175
Inicie sessão para guardar este imóvel e aceder à sua lista de favoritos em qualquer dispositivo.
Área de terreno : 6600 m²
Terreno 6.600 m² para venda em Nogueira da Regedoura, Santa Maria da Feira.Apresentamos um terreno com 6.600 m², situado em Nogueira da Regedoura, com possibilidade de construção e um enorme potencial para diversos projetos.A localização é um dos seus grandes atrativos:-- Próximo do centro de Espinho;-- Rápidos acessos à autoestrada (A29/A1);-- Zona calma, mas com bons serviços e comércio nas proximidades.Com dimensões generosas, boa exposição solar e acessos práticos, este terreno é a escolha ideal tanto para habitação como para investimento futuro.Marque já a sua visita e conheça todo o potencial deste terreno!Excluído do SCE, ao abrigo da cláusula f), do artigo 4º, do Decreto-Lei nº 118/2013, de 20 de Agosto
AMI: 8481
Ref. Externa: 4242
Id: 1366896
Inicie sessão para guardar este imóvel e aceder à sua lista de favoritos em qualquer dispositivo.
Área de terreno : 2000 m²
Terreno para loteamento. Grande frente para estradas.. Segundo o Regulamento do PDM, é possível lotear em lotes de dimensão mínima de 200m2, com um índice de construção em cada lote de 0.9; ou então, também é permitido construção em altura até 3 pisos acima da cota de soleira e mais um abaixo (cave).. . Marque já a sua visita!. . Ajudamos a tratar de todo processo burocrático da compra. Ajudamos, também, a tratar do processo de obtenção de crédito bancário para a compra e para as obras.
AMI: 16062
Ref. Externa: 1007/12152
Id: 1343516
Inicie sessão para guardar este imóvel e aceder à sua lista de favoritos em qualquer dispositivo.
Área de terreno : 5231 m²
NOVA ANGARIAÇÃO. . Terreno para loteamento. Grande frente para estradas.. Segundo o Regulamento do PDM, é possível lotear em lotes de dimensão mínima de 200m2, com um índice de construção em cada lote de 0.9; ou então, também é permitido construção em altura até 3 pisos acima da cota de soleira e mais um abaixo (cave).. . Marque já a sua visita!. . Ajudamos a tratar de todo processo burocrático da compra. Ajudamos, também, a tratar do processo de obtenção de crédito bancário para a compra e para as obras.
AMI: 16062
Ref. Externa: 1006/12152
Id: 1343515
Inicie sessão para guardar este imóvel e aceder à sua lista de favoritos em qualquer dispositivo.
Área de terreno : 1050 m²
Terreno com Projecto aprovado para a construção de uma moradia T4 com piscina para venda em Nogueira da Regedoura.Está prevista a construção de um imóvel com 268 m² de área bruta, está inserida num terreno generoso de 1050 m², onde o conforto, a privacidade e a qualidade de vida se encontram num só espaço. Esta é a oportunidade ideal para quem procura uma casa nova, moderna e personalizável.A moradia destaca-se pelas suas amplas áreas interiores, pensadas para proporcionar funcionalidade e bem-estar em cada divisão. A zona social é composta por uma sala espaçosa e luminosa, cozinha em open space com acesso direto ao exterior, e uma área de refeições perfeita para receber família e amigos. Os quatros quartos oferecem conforto e privacidade, sendo um deles suíte com closet.No exterior, o destaque vai para a piscina privativa, ideal para momentos de lazer e descontração, e para o jardim envolvente com potencial para zona de convívio, horta ou espaço de recreio. A garagem fechada para dois carros garante segurança e comodidade.Aproveite a fase inicial da obra para personalizar acabamentos ao seu gosto e transformar este projeto na casa dos seus sonhos.Os acabamentos deste projeto são exemplares, refletindo um compromisso com a qualidade e o conforto dos seus residentes. Desde a porta com fechadura de alta segurança até aos tetos falsos com iluminação LED, cada detalhe foi cuidadosamente pensado para garantir uma experiência de vida sofisticada e confortável.Com revestimento das fachadas em isolamento térmico, esta moradia não só oferece um lar, mas também um estilo de vida de excelência àqueles que procuram o melhor em qualidade e comodidade. Porta com fechadura de alta segurança Vídeo porteiro com ligação Caixilharia em PVC Schuco e vidro triplo baixo emissivo Estores exteriores térmicos (elétricos) Carpintaria (Lacado a branco) ou equivalente Pavimento flutuante em vinil (quartos, sala, cozinha e corredores) Mobiliário de cozinha hidrófugo em termolaminado a cor Cozinha equipada com: forno, micro-ondas, exaustor, placa de indução, máquina de lavar loiça, misturadora e lava louça em aço inox Tampo da cozinha em aglomerado de quartzo Tetos falsos com iluminação LED (focos) Banhos com revestimento cerâmico ou equivalente Louças sanitárias suspensas (sanita e bidé) Móvel para banho suspenso, hidrófugo Base de duche aglomerado com resguardo em vidro temperado Lugar de garagem Ar condicionado, aspiração central e bomba de calor Revestimento das fachadas a isolamento (capoto) Localizada em Nogueira da Regedoura, esta moradia beneficia de um ambiente tranquilo e residencial, com excelentes acessos às principais vias, a poucos minutos de Santa Maria da Feira, Espinho e Vila Nova de Gaia.Excluído do SCE, ao abrigo da alínea f), do artigo 4º, do Decreto-Lei nº 118/2013, de 20 de Agosto
AMI: 8481
Ref. Externa: 4225
Id: 1342345
Inicie sessão para guardar este imóvel e aceder à sua lista de favoritos em qualquer dispositivo.
Área de terreno : 5550 m²
Terreno de 5.550m2, dos quais 4000m2 são edificáveis, com excelentes acessos. Localizado numa zona comercial/industrial com acesso rápido à autoestrada. Destinado a Estaleiro/aparcamento de camiões/Contentores etc. Fáceis acessos rodoviários para Norte e Para Sul. Solução ideal para o seu Negócio. Interessados em comprar, por favor entrar em contacto.
AMI: 17007
Ref. Externa: PAR_205_PM
Id: 1341971
Inicie sessão para guardar este imóvel e aceder à sua lista de favoritos em qualquer dispositivo.
Área de terreno : 1050 m²
Venda de terreno em Nogueira da Regedoura, com excelentes acessos, muito próximo da A1, A29 e A41. Em poucos minutos consegue colocar-se em Espinho, Vila Nova de Gaia e até no Porto. Terreno com a área de 1.050 m2 onde se encontra aprovado projecto de arquitetura, com licença pronta a levantar. Moradia com dois pisos, de tipologia T3, áreas generosas, piscina... A moradia dos seus sonhos.... Valor: 150.000,00€ Para mais informações ou agendar visita, contacte-nos!
AMI: 7142
Ref. Externa: AVR/00706
Id: 1339527
Inicie sessão para guardar este imóvel e aceder à sua lista de favoritos em qualquer dispositivo.
Área de terreno : 7231 m²
Imovel da banca. Dois terrenos urbanos para construção Excelentes condições para criar loteamento Terreno com 5231 m² – 395000 € Terreno com 2000 m² – 154000 € Área total dos terrenos 7231 m², que confrontam com os arruamentos públicos Rua da Mocidade e Avenida Luís de Camões O regime de edificabilidade é o seguinte: Destinam-se preferencialmente a habitação unifamiliar, que pode ser isolada, geminada ou em banda. O índice máximo de ocupação do solo é de 60% e o índice máximo de utilização do solo é de 0,7. A área mínima dos lotes é de 300 m². As frentes mínimas são de 8, 11 e 18 metros, respetivamente, para edificações em banda, geminadas ou isoladas. O número máximo de pisos acima da cota de soleira é 2. De acordo com a capacidade construtiva, um "estudo teórico" considerou a construção de 19 moradias em banda. Cada moradia teria 115 m² de área de implantação, 2 pisos acima da cota de soleira e garagem. A área de terreno por lote seria de 305 m², considerando que 20% da área total seria utilizada para infraestruturas. Se procura um imóvel com estas características, fale comigo! Na nossa rede dispomos também de outros imóveis semelhantes. Na iad Portugal, oferecemos um serviço personalizado, próximo e transparente. Se necessitar de financiamento, temos parcerias com entidades bancárias que lhe permitem encontrar a melhor solução de crédito, sem compromisso. Partilhamos negócios com todas as imobiliárias licenciadas (AMI), em regime de 50%. Se pretende vender ou trocar o seu imóvel, ofereço: Estimativa de valor gratuita Divulgação em mais de 200 portais imobiliários em todo o mundo Terei todo o gosto em ajudar particulares e empresas nos seus projetos imobiliários. Contacte-me e dê o próximo passo! #ref: 147960
AMI: 11220
Ref. Externa: 147960
Id: 1335918
Inicie sessão para guardar este imóvel e aceder à sua lista de favoritos em qualquer dispositivo.
Área de terreno : 12760 m²
Terreno industrial com 12.760,00m2, frente de 100metros a para a Auto-estrada A1 na freguesia de Nogueira da Regedoura, concelho de Santa Maria da Feira. Este terreno tem uma área total de implantação de 70%. Existe um estudo prévio para construção de um pavilhão com 3000m2 e 12metros de altura. Ideal para indústria ou comércio. Proximidades: - Fácil acesso à A1, A41, A29 e N1; - Costa de Espinho a 7,3km; - Centro de Vila Nova de Gaia a 19km; - Centro de Santa Maria da Feira a 13km; - Cidade do Porto a 23km, 15minutos do Porto Quer saber mais? Fale conosco. ________ STALKER RE ________ A distinção "STALKER " se destacará e atrairá aqueles que procuram uma experiência imobiliária recompensadora e excepcional. A Stalker RE tem uma equipa que está sempre um passo à frente, que trabalha incansavelmente para alcançar os resultados. Com uma abordagem inovadora e empolgante no setor, encapsulamos a jornada do cliente, revelando um mundo de possibilidades, ao mesmo tempo que transmitimos a mensagem de comprometimento e sucesso. Não procuramos casas. Revelamos possibilidades." Na Stalker Real Estate, encontre mais do que uma casa — encontre o seu lugar. Um espaço com alma, onde cada decisão tem intenção, e cada detalhe é perseguido com olhos de futuro. Somos movidos pela curiosidade estratégica, pela visão fora do comum e por uma obsessão saudável em descobrir o que ainda ninguém viu. Exploramos o invisível, antecipamos oportunidades e nunca paramos onde os outros ficam. O nosso nome pode surpreender — e é isso mesmo que queremos: despertar. Porque no mercado imobiliário, quem se destaca é quem vai além do esperado. Aqui, cada cliente é único, cada imóvel é uma peça rara e cada transação, uma experiência cuidada com precisão, transparência e propósito. Dos investimentos às casas personalizadas, abrimos portas para um futuro moldado à sua medida. Inovamos no processo, quebramos padrões antigos e construímos consigo, passo a passo, conquistas com significado. Se procura mais do que uma experiência imobiliária — se procura uma jornada com visão, estratégia e emoção — então já sabe por onde começar. Stalker Real Estate. Um passo à frente, sempre. Vamos construir juntos?
AMI: 22706
Ref. Externa: 11032
Id: 1293900
Inicie sessão para guardar este imóvel e aceder à sua lista de favoritos em qualquer dispositivo.
Área de terreno : 2000 m²
Imóvel composto por 0 sala(s), 0 quarto(s) e 0 wc(s). A venda deste imóvel está condicionada à venda conjunta com os seguintes imóveis: TERRENO URBANO - Refª 053779, TERRENO URBANO - Refª 053780Predimed Imobiliária, Mediação Imobiliária, Lda.Avenida Brasil 43, 12º Andar, 1700-062 LisboaLicença AMI nº 22503Pessoa Coletiva nº 517 239 345Seguro Responsabilidade Civil: Nº de Apólice RC65379424 Fidelidade
AMI: 13558
Ref. Externa: 053780
Id: 1284010
Inicie sessão para guardar este imóvel e aceder à sua lista de favoritos em qualquer dispositivo.
Área de terreno : 1800 m²
Vende-se terreno em Nogueira Da Regedoura em excelente localização. Inserido em zona com excelentes acessos a breves instantes da A29, A1, A41 e apenas a 5 minutos de Espinho. Terreno com área total de 1800 m2 com 36 metros de frente e 56 metros de profundidade, dividido em 2 artigos Possibilidade de construção em altura ou moradias. Visite esta excelente oportunidade! Sabia que somos Intermediários de Crédito? Estamos aqui para o ajudar em todo o processo de financiamento, desde a simulação até á aprovação. Quer comprar casa? Trocar? Investir? Transferir o crédito? Fale conosco e trate de tudo num só lugar, com confiança, simplicidade e sem complicações. Imo2007 - Mediação Imobiliária, Lda, intermediário de crédito vinculado registado junto do Banco de Portugal com o N.º 0001317. Autorizado para a apresentação ou proposta de contratos de credito a consumidores e assistência a consumidores, mediante a realização de atos preparatórios ou de outros trabalhos de gestão pré-contratual relativamente a contratos de credito que não tenham sido por si apresentados ou propostos. Autorizado a prestar serviços de consultoria. Mutuantes: Novo Banco, S.A., Caixa Geral de Depósitos, S.A., Banco Santander Totta, S.A., Bankinter, S.A. - Sucursal em Portugal, Union de Créditos Inmobiliarios, S.A. Estamos contactáveis através das nossas redes sociais (FACEBOOK e INSTAGRAM: /imobiliariaimo2007), do nosso site ou do nosso número de telemóvel - chamada para a rede móvel nacional - e também por WHATSAPP! A concretizar sonhos desde 2007! Re. interna: 2232A
AMI: 7774
Ref. Externa: 2232A
Id: 1280784
Inicie sessão para guardar este imóvel e aceder à sua lista de favoritos em qualquer dispositivo.
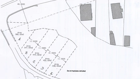
Área de terreno : 5030 m²
Vende-se Terreno com 5030 m2 em Nogueira da Regedoura em zona com excelentes acessos. Localiza-se no centro da localidade com as principais autoestradas A1, A29 e A41 a breves instantes, zona de forte crescimento industrial. Fica a 5 minutos de Espinho e a 15 minutos do centro do Porto. Com 60 metros de frente, possui capacidade construtiva para 11 moradias geminadas. Possibilidade de financiamento para aquisição do terreno! Sabia que somos Intermediários de Crédito? Estamos aqui para o ajudar em todo o processo de financiamento, desde a simulação até á aprovação. Quer comprar casa? Trocar? Investir? Transferir o crédito? Fale conosco e trate de tudo num só lugar, com confiança, simplicidade e sem complicações. Imo2007 - Mediação Imobiliária, Lda, intermediário de crédito vinculado registado junto do Banco de Portugal com o N.º 0001317. Autorizado para a apresentação ou proposta de contratos de crédito a consumidores e assistência a consumidores, mediante a realização de atos preparatórios ou de outros trabalhos de gestão pré-contratual relativamente a contratos de crédito que não tenham sido por si apresentados ou propostos. Autorizado a prestar serviços de consultoria. Mutuantes: Novo Banco, S.A., Caixa Geral de Depósitos, S.A., Banco Santander Totta, S.A., Bankinter, S.A. - Sucursal em Portugal, Union de Créditos Inmobiliarios, S.A. Estamos contactáveis através das nossas redes sociais (FACEBOOK e INSTAGRAM: /imobiliariaimo2007), do nosso site ou do nosso número de telemóvel - chamada para a rede móvel nacional - e também por WHATSAPP! A concretizar sonhos desde 2007! Ref. Interna: 2069A
AMI: 7774
Ref. Externa: 2069A
Id: 1267829
Inicie sessão para guardar este imóvel e aceder à sua lista de favoritos em qualquer dispositivo.
Área de terreno : 1400 m²
Vende-se terreno em Nogueira da Regedoura. Terreno encontra-se numa zona privilegiada com bons acessos à A1, A41 e A29 a cinco minutos de Espinho. Imóvel para construção de moradias, com maravilhosas vistas mar. O terreno tem aproximadamente trinta metros de frente. Área total do terreno: 1.400m2 Área de Implantação do edifício: 220m2 Área bruta de construção: 400m2 Área bruta dependente: 100m2 Sobre o concelho de Santa Maria da Feira: Santa Maria da Feira é uma cidade portuguesa, fazendo parte da sub-região da Área Metropolitana do Porto, pertencendo à Região do Norte e ao Distrito de Aveiro. Tem uma área urbana de 23,52 km2, 19.792 habitantes em 2021 e uma densidade populacional de 841 habitantes por km2. É sede do município de Santa Maria da Feira, tendo uma área total de 213,45 km2, 136.720 habitantes em 2021 e uma densidade populacional de 640 habitantes por km2, subdividido em 21 freguesias. O município é limitado a norte pelos municípios de Vila Nova de Gaia e Gondomar, a leste por Arouca, a sudeste por Oliveira de Azeméis e São João da Madeira, a sul e a oeste por Ovar e a oeste por Espinho. O município de Santa Maria da Feira, para além da cidade sede (Santa Maria da Feira), inclui duas cidades (Fiães e Lourosa) e 12 vilas (Argoncilhe, Arrifana, Canedo, Lobão, Mozelos, Nogueira da Regedoura, Paços de Brandão, Rio Meão, Santa Maria de Lamas, São João de Vêr, São Paio de Oleiros. Souto). As freguesias do concelho de Santa Maria da Feira são: Argoncilhe, Arrifana, Escapães, Fiães, Fornos, Lourosa, Milheirós De Poiares Mozelos, Nogueira Da Regedoura, Paços De Brandão Rio Meão, Romariz, Sanguedo Santa Maria De Lamas, São João De Ver, São Paio De Oleiros; União Das Freguesias De Caldas De São Jorge E Pigeiros; União Das Freguesias De Canedo, Vale E Vila Maior; União Das Freguesias De Lobão, Gião, Louredo E Guisande; União Das Freguesias De Santa Maria Da Feira, Travanca, Sanfins E Espargo e União Das Freguesias De São Miguel Do Souto E Mosteirô. Agende já a sua visita e não perca esta oportunidade! Sabia que somos Intermediários de Crédito? Estamos aqui para o ajudar em todo o processo de financiamento, desde a simulação até á aprovação. Quer comprar casa? Trocar? Investir? Transferir o crédito? Fale conosco e trate de tudo num só lugar, com confiança, simplicidade e sem complicações. Imo2007 - Mediação Imobiliária, Lda, intermediário de crédito vinculado registado junto do Banco de Portugal com o N.º 0001317. Autorizado para a apresentação ou proposta de contratos de credito a consumidores e assistência a consumidores, mediante a realização de atos preparatórios ou de outros trabalhos de gestão pré-contratual relativamente a contratos de credito que não tenham sido por si apresentados ou propostos. Autorizado a prestar serviços de consultoria. Mutuantes: Novo Banco, S.A., Caixa Geral de Depósitos, S.A., Banco Santander Totta, S.A., Bankinter, S.A. - Sucursal em Portugal, Union de Créditos Inmobiliarios, S.A. Estamos contactáveis através das nossas redes sociais (FACEBOOK e INSTAGRAM: /imobiliariaimo2007), do nosso site ou do nosso número de telemóvel - chamada para a rede móvel nacional - e também por WHATSAPP! A concretizar sonhos desde 2007! Ref. Interna: 1951A
AMI: 7774
Ref. Externa: 1951A
Id: 1267828
Inicie sessão para guardar este imóvel e aceder à sua lista de favoritos em qualquer dispositivo.
Estes agentes são especialistas nesta zona:
Inicie sessão para ocultar este imóvel das suas pesquisas e manter a sua lista de resultados organizada.
Guardar favoritos
Este imóvel foi guardados nos seus favoritos com sucesso.
Para poder guardar pesquisa deverá ter a sua sessão iniciada.
Caso não tenha uma conta, deverá criar uma.
A sua pesquisa foi guardada com sucesso!
© Copyright 2023 | CASACERTA. All rights reserved
Este site utiliza cookies. Ao navegar no site estará a consentir a sua utilização.
Para mais informações sobre os cookies pode consultar a
política de privacidade.