Lista
Comprar
Arrendar
230.000 €
Área de terreno : 56192 m²
Terreno urbanizavel em São Luís, concelho de Odemira, a apenas 15km de Vila Nova de MilfontesLocalizado numa zona central de São Luís, no concelho de Odemira, a poucos minutos das praias de Vila Nova de Milfontes, Malhão e Aivados, este terreno, de 5,6 hectares tem uma vista magnífica sobre a aldeia e sobre a paisagem em redor.Com óptimos acessos e infraestruturas de eletricidade e saneamento próximos, esta é uma boa oportunidade para quem pensa investir numa zona com grande potencial de crescimento.Inserida numa zona de campo, onde predomina a paisagem verde, a poucos minutos do Rio Mira e da Ribeira do Torgal, esta é uma zona de paisagem refrescante do Alentejo, onde existe um perfeito cruzamento entre a vida tranquila do campo e a proximidade das praias, boas para banhistas (Vila Nova de Milfontes e Almograve), mas também para desportos náuticos e bem conhecidas pelos surfistas (Malhão e Aivados).São Luís é uma aldeia do concelho de Odemira que tem vindo a ser procurada por quem quer maior tranquilidade pela sua excelente localização e carisma, sendo que se tem fixado uma comunidade artística multicultural.Este imóvel aguarda informação da Câmara Municipal de Odemira sobre viabilidade/finalidade de construção.
AMI: 22503
Ref. Externa: PD-027508
Id: 1725555
Inicie sessão para guardar este imóvel e aceder à sua lista de favoritos em qualquer dispositivo.
210.000 €
Área de terreno : 5250 m²
Terreno urbanizável com 5.250m², com casa para recuperar com 97m².Se procura um refúgio rural para viver, investir ou desenvolver um projeto turístico, esta propriedade oferece-lhe um potencial único no coração do Alentejo.Situada nos Troviscais, freguesia de São Luís, concelho de Odemira, esta quinta está inserida no Parque Natural do Sudoeste Alentejano e Costa Vicentina (PNSACV) e em zona de Rede Natura 2000, conjugando natureza, tranquilidade e autenticidade.Casa em ruínas com área coberta de 97,29m², pronta a recuperar.Área total do terreno: 5.250m².Área descoberta: 5.152,71m².Propriedade totalmente vedada.Eletricidade, água (furo e de rede) e rede de esgotos.Autorização para ampliação da habitação até 200m², conforme projeto (ver fotos). Projeto atualmente caducado, podendo ser reaproveitado e sujeito a nova aprovação das entidades competentes.Esta é a sua oportunidade de dar nova vida a um espaço com grande potencial, num dos locais mais bonitos do Alentejo.Contacte-me para mais detalhes e para marcar a sua visita!
AMI: 22503
Ref. Externa: PD-052535
Id: 1725244
Inicie sessão para guardar este imóvel e aceder à sua lista de favoritos em qualquer dispositivo.
90.000 €
Área de terreno : 134000 m²
Monte Novo dos Troviscais é uma propriedade com 13,4 ha (33,11 acres) perto do rio Mira. A propriedade tem acesso em terra batida. Montado do sobro com um rendimento de 150 arrobas 3 em 3 anos. Está situado dentro do parque natural, parcialmente na Reserva Ecológica Nacional, na Reserva Agrícola Nacional e no Agro-Silvo Pastoril. Sem viabilidade de construção. Odemira 15 km, Vila Nova de Milfontes 22 km. Estamos disponíveis para o ajudar a realizar sonhos, seja na compra ou na venda do seu imóvel.;ID RE/MAX: 122481384-6
AMI: 7772
Ref. Externa: 122481384-6
Id: 1602457
Inicie sessão para guardar este imóvel e aceder à sua lista de favoritos em qualquer dispositivo.
90.000 €
Área de terreno : 44250 m²
Excelente oportunidade de investimento no coração do Alentejo! Terreno rústico com uma área total de 44.250 m² (equivalente a 4,425 hectares), localizado na zona tranquila e pitoresca de São Luís, no concelho de Odemira. A propriedade apresenta relevo suave, boa exposição solar e encontra-se a aproximadamente 13 km de Odemira e 15 km de Vila Nova de Milfontes, estando assim bem situada entre o interior alentejano e a costa atlântica. . Contate-nos para mais informações!
AMI: 7183
Ref. Externa: KWPT-014859
Id: 1427529
Inicie sessão para guardar este imóvel e aceder à sua lista de favoritos em qualquer dispositivo.
210.000 €
Área de terreno : 5250 m²
Terreno urbanizável com 5.250 m², com casa para recuperar com 97 m2. Se procura um refúgio rural para viver, investir ou desenvolver um projeto turístico, esta propriedade oferece-lhe um potencial único no coração do Alentejo.Situada nos Troviscais, freguesia de São Luís, concelho de Odemira, esta quinta está inserida no Parque Natural do Sudoeste Alentejano e Costa Vicentina (PNSACV) e em zona de Rede Natura 2000, conjugando natureza, tranquilidade e autenticidade.Casa em ruínas com área coberta de 97,29 m², pronta a recuperar.Área total do terreno: 5.250 m².Área descoberta: 5.152,71 m².Propriedade totalmente vedada.Eletricidade, água (furo e de rede) e rede de esgotos. Autorização para ampliação da habitação até 200 m2, conforme projeto (ver fotos). Projeto atualmente caducado, podendo ser reaproveitado e sujeito a nova aprovação das entidades competentes. Esta é a sua oportunidade de dar nova vida a um espaço com grande potencial, num dos locais mais bonitos do Alentejo. Contacte-me para mais detalhes e para marcar a sua visita!Filipe Raposo » +351 966 936 532Predimed Imobiliária, Mediação Imobiliária, Lda.Avenida Brasil 43, 12º Andar, 1700-062 LisboaLicença AMI nº 22503Pessoa Coletiva nº 517 239 345Seguro Responsabilidade Civil: Nº de Apólice RC65379424 Fidelidade Características: Vedação;Horta-Jardim;Árvores de Frutos;Campo;Espaços Verdes;Orientação Solar;Terreno;Vista para Campo;Água;Iluminação Pública;Luz
AMI: 13558
Ref. Externa: 052535
Id: 1198914
Inicie sessão para guardar este imóvel e aceder à sua lista de favoritos em qualquer dispositivo.
3.000.000 €
Área de terreno : 29220 m²
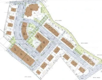
Será uma vila residencial, excelentes infraestruturas e serviços, e está a uma curta distância de carro da costa atlântica e de Vila Nova de Milfontes, uma região com belas praias de areia branca e águas azuis límpidas, como Porto Covo, Zambujeira do Mar , Almograve, São Torpes e muitos outros. Esta localização encontra-se também rodeada de pinheiros, sobreiros e eucaliptos, estando a 150m de altitude a zona apresenta um clima ameno durante todo o ano. O loteamento aprovado é composto por 39 lotes - 38 para habitação incluindo moradias em banda 2-3-4 quartos ou moradias isoladas, e 1 para hotel ou empreendimento turístico.
AMI: 14104
Ref. Externa: PGLLM-CS_119
Id: 766978
Inicie sessão para guardar este imóvel e aceder à sua lista de favoritos em qualquer dispositivo.
230.000 €
Área de terreno : 56192 m²
Terreno urbanizavel em São Luís, concelho de Odemira, a apenas 15km de Vila Nova de MilfontesLocalizado numa zona central de São Luís, no concelho de Odemira, a poucos minutos das praias de Vila Nova de Milfontes, Malhão e Aivados, este terreno, de 5,6 hectares tem uma vista magnífica sobre a aldeia e sobre a paisagem em redor.Com óptimos acessos e infraestruturas de eletricidade e saneamento próximos, esta é uma boa oportunidade para quem pensa investir numa zona com grande potencial de crescimento.Inserida numa zona de campo, onde predomina a paisagem verde, a poucos minutos do Rio Mira e da Ribeira do Torgal, esta é uma zona de paisagem refrescante do Alentejo, onde existe um perfeito cruzamento entre a vida tranquila do campo e a proximidade das praias, boas para banhistas (Vila Nova de Milfontes e Almograve), mas também para desportos náuticos e bem conhecidas pelos surfistas (Malhão e Aivados).São Luís é uma aldeia do concelho de Odemira que tem vindo a ser procurada por quem quer maior tranquilidade pela sua excelente localização e carisma, sendo que se tem fixado uma comunidade artística multicultural.Este imóvel aguarda informação da Câmara Municipal de Odemira sobre viabilidade/finalidade de construção.Predimed Imobiliária, Mediação Imobiliária, Lda.Avenida Brasil 43, 12º Andar, 1700-062 LisboaLicença AMI nº 22503Pessoa Coletiva nº 517 239 345Seguro Responsabilidade Civil: Nº de Apólice RC65379424 Fidelidade Características: Áreas de Lazer Infantil;Árvores de Frutos;Auto-Estrada;Banco;Bombeiros;Campo;Escola;Espaços Verdes;Farmácia;Hipermercado;Mercado;Polícia;Posto de Combustível;Praça Táxis;Praia;Terreno;Transportes Públicos;Vista para Campo;Vista para Cidade;Vista para Montanha;Zona Histórica
AMI: 13558
Ref. Externa: 027508
Id: 325284
Inicie sessão para guardar este imóvel e aceder à sua lista de favoritos em qualquer dispositivo.
620.000 €
Área de terreno : 538750 m²
Raco de Baixo é uma propriedade com 53,9 ha de pinheiro manso e montado de sobro. Adensamento e limpeza feito em 2020. A Câmara de Odemira confirma a viabilidade de construção de uma habitação de agricultor até ao máximo de 500 m2, apoios agrícolas até ao máximo de 1 078 m2 e um Empreendimento de Turismo em Espaço Rural até ao máximo de 400 m2/ha; 21 550 m2. Situada na freguesia de São Luís; 5 km da aldeia de São Luís e 3 km de Cercal do Alentejo, A propriedade está inserida nos Espaços Agro-Silvo-Pastoris II (57 ha). Possibilidade de adquirir em conjunto com duas propriedades próximas de 71,4 ha e 67 ha. Estamos disponíveis para o ajudar a realizar sonhos, seja na compra ou na venda do seu imóvel.;ID RE/MAX: 122481384-104
AMI: 7772
Ref. Externa: 122481384-104
Id: 170534
Inicie sessão para guardar este imóvel e aceder à sua lista de favoritos em qualquer dispositivo.
Este agente é especialista nesta zona:
Inicie sessão para ocultar este imóvel das suas pesquisas e manter a sua lista de resultados organizada.
© Copyright 2023 | CASACERTA. All rights reserved
Guardar favoritos
Este imóvel foi guardados nos seus favoritos com sucesso.
Para poder guardar pesquisa deverá ter a sua sessão iniciada.
Caso não tenha uma conta, deverá criar uma.
A sua pesquisa foi guardada com sucesso!
Este site utiliza cookies. Ao navegar no site estará a consentir a sua utilização.
Para mais informações sobre os cookies pode consultar a
política de privacidade.