Lista
Comprar
Arrendar
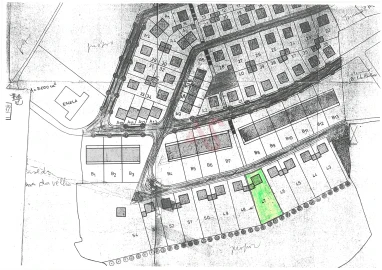
Área de terreno : 2473 m²
Terreno com 2.473m2, este tem já aprovada a licença de loteamento para 5 lotes. Estudo aprovado para 5 moradias em banda, ou 10 andares moradia de tipologia T2 cada. Proximidade ao centro de Guimarães. O Grupo Mérito Invest foi fundado no ano 2000 e desde logo procurou cimentar uma posição de solidez, competência e credibilidade junto dos mais diversos atores do mercado imobiliário, nomeadamente através de uma equipa que, desde logo, se compôs por profissionais com competência técnica e experiência. Atento à responsabilidade de prestar um serviço de excelente qualidade, foi pelo Grupo Mérito Invest definida uma nova estratégia de crescimento geográfica, que levou à abertura de novas lojas nas cidades de Barcelos, Guimarães, Vila do Conde, Vila Nova de Famalicão, Porto e Póvoa do Varzim, contando com cerca de 40 consultores e uma carteira de imóveis alargada e diversificada. Sempre "de portas abertas para fazer bons negócios", o Grupo Mérito Invest rege-se por um conjunto de princípios e valores que se têm revelado fatores de sucesso no setor imobiliário: sigilo profissional sobre factos e documentos, elevado sentido de responsabilidade, dever de informação e defesa intransigente dos interesses de todos os seus clientes. A experiência, a credibilidade e a competência do Grupo Mérito Invest, são reconhecidas tanto pelos promotores imobiliários como pelos compradores (sejam Particulares, Empresas ou Investidores). Só assim é possível estabelecer relações fortes com instituições públicas e privadas e com as restantes mediadoras. Aguardamos a sua visita em qualquer uma das nossas sete lojas do Grupo Mérito Invest… porque o nosso Mérito é Investir em Si.
AMI: 4760
Ref. Externa: MIGC-F/0130
Id: 1666237
Inicie sessão para guardar este imóvel e aceder à sua lista de favoritos em qualquer dispositivo.
Sob consulta
Área de terreno : 2473 m²
5 moradias unifamiliares independentes; Ou - 10 frações no formato de andares moradia (seguem 3d's em anexo); Cada unidade conta com entrada independente, garagem e espaço de arrumos, assegurando privacidade e praticidade aos moradores. Situado numa área tranquila com vistas panorâmicas sobre a cidade histórica de Guimarães, o empreendimento está a apenas 1,5 km do centro, com fácil acesso a transportes públicos urbanos. São 5 Lotes compostos por 2 frações cada uma com 125.60m2. Neste momento o processo tem as especialidades referentes ao loteamento em aprovação, sendo possível a edificação de 5 moradas unifamiliares ou 10 frações no formato andar moradia. Marque visita!
AMI: 9730
Ref. Externa: 4608
Id: 1564604
Inicie sessão para guardar este imóvel e aceder à sua lista de favoritos em qualquer dispositivo.
Área de terreno : 217 m²
Está prestes a dar o passo mais importante da sua vida, encontrar a casa dos seus sonhos.Apresentamos um projeto imobiliário aprovado para a construção de 10 frações no formato de andares moradia T2, cada uma com entrada independente, garagem e espaço de arrumos.A nossas moradias foram projetadas para oferecer amplos espaços internos, perfeitos para desfrutar de momentos em família e receber amigos com todo o conforto que merece.Cada detalhe conta! As moradias apresentam acabamentos de alta qualidade, que valorizam cada espaço e proporcionam uma sensação de elegância e acolhimento, sem abrir mão do conforto, exclusividade e da eficiência energética.Ideal tanto para habitação própria quanto para investimento.Localizado em uma zona tranquila, o empreendimento oferece fácil acesso a transportes públicos urbanos e está a apenas 1,5 km do centro da cidade.NOTA 1: Imagens são meramente ilustrativas.NOTA 2: Destacamos que o objetivo principal é avançar com a venda deste projeto como um conjunto completo, de modo a maximizar o seu valor e potencial de mercado.Se pretender saber o valor de cada lote/Fração não hesite em contactar-nos.Uma Oportunidade Única!Venha viver onde o passado se encontra com o futuro. Marque a sua visita hoje mesmo e deixe-se encantar por este projeto.Mascotelos espera por si!Não perca a oportunidade de fazer parte deste projeto incrível. Sua nova vida começa aqui!Detalhes das Frações: - Fração 1: 327,90 m² - Fração 2: 327,90 m² - Fração 3: 217,36 m² - Fração 4: 217,35 m² - Fração 5: 217,35 m² - Fração 6: 217,35 m² - Fração 7: 217,35 m² - Fração 8: 217,35 m² - Fração 9: 426,45 m² - Fração 10: 462,45 m²Somos Intermediários de Crédito registado junto do Banco de Portugal sob o nº 2436, agilizamos todo o processo de financiamento por si, sem qualquer custo e sem ter que se deslocar aos bancos, de forma imparcial e sempre recolhendo as melhores propostas de mercado.Porque visitar a Prestiti Imobiliária?A Prestiti Imobiliária preocupa-se com a felicidade do cliente todos os dias do Ano.A Prestiti Imobiliária está sediada em Guimarães a mais de 19 anos, o cliente connosco tem um atendimento baseado na ética, seriedade, competência, eficácia e garantimos que da nossa parte existe segurança e responsabilidade em tudo em que nos comprometemos.Fazemos o acompanhamento de todos os intervenientes desde a data da celebração do negócio até ao seu completo desfecho, e a partir desse momento não fechamos a porta, pretendemos que nossa amizade dure para sempre.Paixão a Comercializar Imóveis!Temos varias soluções de arquitetura, chave na mão e 3D.
AMI: 6575
Ref. Externa: 3155
Id: 916578
Inicie sessão para guardar este imóvel e aceder à sua lista de favoritos em qualquer dispositivo.
Área de terreno : 1230 m²
Terreno com viabilidade para Construção de 4 Frações: 2 com Tipologia T3 + 1 + 2 Duplex com Tipologia T3 | 1230 m2 em Guimarães Terreno para construção com 1230 m2 em Candoso S. Tiago, Guimarães.Imóvel com viabilidade para construção de 4 frações:Fração A | Piso -2 (Tipologia T3 + 1)Área Bruta da Habitação | 146,50 m²Área Útil da Habitação | 130,00 m²Área da Varanda | 20,35 m²Fração B | Piso -1 (Tipologia T3 + 1)Área Bruta da Habitação | 146,50 m²Área Útil da Habitação | 130,00 m²Área da Varanda | 20,35 m²Fração C | Piso 0 e 1 - Duplex (Tipologia T3)Área Bruta da Habitação | 132,70 m²Área Útil da Habitação | 110,00 m²Área da Varanda | 36,85 m²Fração D | Piso 0 e 1 - Duplex (Tipologia T3)Área Bruta da Habitação | 127,50 m²Área Útil da Habitação | 105,00 m²Área da Varanda | 33,00 m².Boa exposição solar. Situa-se:- Em zona residencial calma;- Próximo de transportes públicos;- A 10 minutos do centro de Guimarães.Referência. ASG23026Por sermos intermediários de crédito devidamente autorizados pelo Banco de Portugal (Reg. 2736) fazemos a gestão de todo o seu processo de financiamento, sempre com as melhores soluções de mercado.Porquê escolher a AS ImobiliáriaCom mais de 14 anos no ramo imobiliário e milhares de famílias felizes, dispomos de 8 agências estrategicamente localizadas, para o servir com proximidade, corresponder à suas expectativas e ajudá-lo a adquirir a sua casa de sonho. Compromisso, Competência e Confiança são os nossos valores que entregamos aos nossos Clientes na hora de comprar, arrendar ou vender o seu imóvel.A nossa prioridade é a sua Felicidade!Especialistas imobiliários em Vizela ; Guimarães ; Taipas ; Felgueiras ; Lousada ; Santo Tirso ; Barcelos ; S. João da Madeira ; Porto ; Lisboa
AMI: 13249
Ref. Externa: ASG25003
Id: 718065
Inicie sessão para guardar este imóvel e aceder à sua lista de favoritos em qualquer dispositivo.
Área de terreno : 116700 m²
Terreno com 116.700 m2, com estudo para a construção de mais 18 moradias em banda e 16 moradias individuais.O terreno dispõe de ótimos acessos e situa-se apenas a 3 km do centro de Guimarães, numa das principais zonas de expansão da cidade, junto ao Parque da Cidade Desportiva, complexo de piscinas, Hospital da Luz e Colégio Nossa Senhora da Conceição.Contacte-nos para mais informações.-A dipe foi distinguida como uma das 10 melhores PME do setor imobiliário em Portugal no ano de 2022.O reconhecimento atribuído pela SCORING resulta de uma avaliação levada a cabo por uma equipa de docentes universitários doutorados em gestão e com referência aos Certificados da BUREAU VERITAS e da ASSOFT e reforça a dipe como uma referência de confiança, solidez e futuro no setor Mediação Imobiliária.- A dipe é uma imobiliária sediada em Guimarães, com mais de 28 anos de experiência no mercado, e distingue-se pelo serviço de excelência no apoio e acompanhamento a proprietários, investidores e clientes compradores. Dispomos de uma equipa pluridisciplinar, com profissionais altamente qualificados em diferentes áreas, como Arquitectura, Design de Interiores, Gestão, Comunicação e Marketing, dedicados a criar as soluções ideais para as suas necessidades. O nosso serviço, personalizado e transversal, é completamente diferenciado, oferecendo um auxílio constante a todos os intervenientes do negócio, mesmo após a conclusão do mesmo. Dipe é hoje sinónimo de tradição, por todas as experiências e histórias que partilhamos com os nossos clientes ao longo de mais de 28 anos, mas também de inovação, fruto da ousadia de uma equipa que procura estar um passo à frente daquilo que o mercado dita.
AMI: 11491
Ref. Externa: 63.23
Id: 544829
Inicie sessão para guardar este imóvel e aceder à sua lista de favoritos em qualquer dispositivo.
Área de terreno : 2473 m²
• São Vicente Village •Terreno com 2.473 m2 para a construção de 10 andares-moradia, inserido no empreendimento São Vicente Village, em Mascotelos, Guimarães.O terreno dispõe de ótima exposição solar, vistas privilegiadas e situa-se apenas a 2 km do centro da cidade.Contacte-nos para mais informações.-A dipe foi distinguida como uma das 10 melhores PME do setor imobiliário em Portugal no ano de 2022.O reconhecimento atribuído pela SCORING resulta de uma avaliação levada a cabo por uma equipa de docentes universitários doutorados em gestão e com referência aos Certificados da BUREAU VERITAS e da ASSOFT e reforça a dipe como uma referência de confiança, solidez e futuro no setor Mediação Imobiliária.- A dipe é uma imobiliária sediada em Guimarães, com mais de 28 anos de experiência no mercado, e distingue-se pelo serviço de excelência no apoio e acompanhamento a proprietários, investidores e clientes compradores. Dispomos de uma equipa pluridisciplinar, com profissionais altamente qualificados em diferentes áreas, como Arquitectura, Design de Interiores, Gestão, Comunicação e Marketing, dedicados a criar as soluções ideais para as suas necessidades. O nosso serviço, personalizado e transversal, é completamente diferenciado, oferecendo um auxílio constante a todos os intervenientes do negócio, mesmo após a conclusão do mesmo. Dipe é hoje sinónimo de tradição, por todas as experiências e histórias que partilhamos com os nossos clientes ao longo de mais de 28 anos, mas também de inovação, fruto da ousadia de uma equipa que procura estar um passo à frente daquilo que o mercado dita.
AMI: 11491
Ref. Externa: 25.23
Id: 489504
Inicie sessão para guardar este imóvel e aceder à sua lista de favoritos em qualquer dispositivo.
Área de terreno : 2000 m²
Terreno com projeto aprovado para construção de 4 moradias.Com uma excelente localização, junto à Cidade Desportiva de Guimarães, uma zona de amplo desenvolvimento, este terreno de 2000m² contempla um projeto aprovado para a construção de 4 moradias de tipologia T3, cada uma com área de construção máxima de 376 m².Localização:- A 300 metros do Complexo de Piscinas Tempo Livre;- A 400 metros da Pista de Atletismo Gémeos Castro;- A 550 metros da Cidade Desportiva de Guimarães;- A 3 km do centro da cidade.Contacte-nos para mais informações.-A dipe foi distinguida como uma das 10 melhores PME do setor imobiliário em Portugal no ano de 2022.O reconhecimento atribuído pela SCORING resulta de uma avaliação levada a cabo por uma equipa de docentes universitários doutorados em gestão e com referência aos Certificados da BUREAU VERITAS e da ASSOFT e reforça a dipe como uma referência de confiança, solidez e futuro no setor Mediação Imobiliária.- A dipe é uma imobiliária sediada em Guimarães, com mais de 28 anos de experiência no mercado, e distingue-se pelo serviço de excelência no apoio e acompanhamento a proprietários, investidores e clientes compradores. Dispomos de uma equipa pluridisciplinar, com profissionais altamente qualificados em diferentes áreas, como Arquitectura, Design de Interiores, Gestão, Comunicação e Marketing, dedicados a criar as soluções ideais para as suas necessidades. O nosso serviço, personalizado e transversal, é completamente diferenciado, oferecendo um auxílio constante a todos os intervenientes do negócio, mesmo após a conclusão do mesmo. Dipe é hoje sinónimo de tradição, por todas as experiências e histórias que partilhamos com os nossos clientes ao longo de mais de 28 anos, mas também de inovação, fruto da ousadia de uma equipa que procura estar um passo à frente daquilo que o mercado dita.
AMI: 11491
Ref. Externa: 41.22
Id: 477898
Inicie sessão para guardar este imóvel e aceder à sua lista de favoritos em qualquer dispositivo.
Área de terreno : 1000 m²
Lote com 1000m2 para construção de um pavilhão industrial de R/Chão + andar com 1000m2 de área útil (400+400 área laboral + 200m de escritórios). Inserido em zona industrial com excelentes condições e bons acessos! Informe-se...
AMI: 3971
Ref. Externa: E-781
Id: 253259
Inicie sessão para guardar este imóvel e aceder à sua lista de favoritos em qualquer dispositivo.
Estes agentes são especialistas nesta zona:
Inicie sessão para ocultar este imóvel das suas pesquisas e manter a sua lista de resultados organizada.
© Copyright 2023 | CASACERTA. All rights reserved
Guardar favoritos
Este imóvel foi guardados nos seus favoritos com sucesso.
Para poder guardar pesquisa deverá ter a sua sessão iniciada.
Caso não tenha uma conta, deverá criar uma.
A sua pesquisa foi guardada com sucesso!
Este site utiliza cookies. Ao navegar no site estará a consentir a sua utilização.
Para mais informações sobre os cookies pode consultar a
política de privacidade.