Filtros
0 · 15 resultadosÁrea de terreno : 8000 m²
Terreno rústico na freguesia de Lemenhe. Área total 8.000 m2 | Todo murado | Com plantação de Vinha. Caminho com fácil acesso. Venha Conhecer! NOTA: -Caso seja um consultor imobiliário este imóvel está disponível para partilha de negócio. -Ao realizar a visita a este imóvel por favor faça-se acompanhar do seu documento de identificação; PORQUÊ COMPRAR COM A COMPRARCASA FAMALICÃO? Porque gostamos de auxiliar os compradores encontrar a sua casa de sonho! É por essa razão que trabalhamos com cada cliente individualmente, prestando o tempo necessário para entender o seu estilo de vida, necessidades e desejos. QUANDO ESCOLHE A COMPRARCASA FAMALICÃO PODE CONTAR COM: - Um profissional especialista conhecedor do mercado; - Um parceiro envolvido em negociar no seu interesse; - As ferramentas e sistemas indispensáveis para agilizar a compra da sua casa; EMPENHÁMOS-NOS A AJUDAR NA AQUISIÇÃO DA SUA CASA ATRAVÉS DE: - Definição das suas necessidades e motivações; - Aprovação financeira; - Pesquisa de imóveis; - Pré-Selecção dos imóveis pesquisados; - Análise de mercado; - Apoio na negociação; - Apoio processual; - Acompanhamento. Temos um serviço 360º dentro de portas. A COMPRARCASA FAMALICÃO conta com profissionais especializados prontos para lhe prestar um serviço de excelência! A COMPRARCASA FAMALICÃO está á sua inteira disposição para ajudar a tomar a melhor decisão. Se quer comprar ou vender o seu imovel conte com um consultor COMPRARCASA em qualquer parte do pais!
AMI: 8888
Ref. Externa: 261/T/04042
Id: 1866354
Inicie sessão para guardar este imóvel e aceder à sua lista de favoritos em qualquer dispositivo.
Área de terreno : 676 m²
Terreno, bouça em Mouquim - Uma Oportunidade Única para Investimento! Desfrute da tranquilidade e potencial deste terreno situado em Mouquim, ideal para investidores ou amantes da natureza que procuram um espaço versátil para diversos projetos. Características do Terreno: - Área Total: 676 metros quadrados - Zona Acessível: Localizado numa área tranquila e de fácil acesso, este terreno oferece privacidade e potencial para diversas utilizações. - Versatilidade: Com uma área generosa, este terreno pode ser utilizado para cultivo, produção agrícola, criação de animais, entre outras opções. - Localização Estratégica: Mouquim é conhecido pela sua atmosfera calma e rural, ideal para quem procura um refúgio da vida urbana agitada. - Potencial de Valorização: Invista neste terreno e beneficie do potencial de valorização numa zona em crescimento. - Infraestruturas: Devido à sua localização, este terreno pode beneficiar de diversas infraestruturas já existentes na região. - Viabilidade: Consulte as possibilidades de conectividade elétrica, de água e de saneamento disponíveis. Entre em contato para obter mais informações e agende uma visita para explorar todas as possibilidades que este terreno tem para oferecer. A oportunidade ideal para dar vida às suas ideias e planos no meio da serenidade da zona rural de Mouquim. #ref: 860772
AMI: 11220
Ref. Externa: 860772
Id: 1759387
Inicie sessão para guardar este imóvel e aceder à sua lista de favoritos em qualquer dispositivo.
Área de terreno : 466 m²
Identificação do imóvel: ZMPT586913Lote para construção, em Jesufrei, com uma área total de terreno de 466 m2Área total do terreno: 466 m2Área de implantação do edifício : 100 m2Área bruta de construção : 200 m2Área bruta dependente : 50 m2O terreno, com excelente exposição solar, localiza-se em zona privilegiada, devido ao acesso fácil à A3, junto ao nó da Cruz, pelo que, está próximo de, praticamente, todos os serviços, em Vila Nova de Famalicão (10 minutos) e Braga (10 minutos).3 razões para comprar com a Zome+ acompanhamentoCom uma preparação e experiência única no mercado imobiliário, os consultores Zome põem toda a sua dedicação em dar-lhe o melhor acompanhamento, orientando-o com a máxima confiança, na direção certa das suas necessidades e ambições.Daqui para a frente, vamos criar uma relação próxima e escutar com atenção as suas expectativas, porque a nossa prioridade é a sua felicidade! Porque é importante que sinta que está acompanhado, e que estamos consigo sempre.+ simplesOs consultores Zome têm uma formação única no mercado, ancorada na partilha de experiência prática entre profissionais e fortalecida pelo conhecimento de neurociência aplicada que lhes permite simplificar e tornar mais eficaz a sua experiência imobiliária.Deixe para trás os pesadelos burocráticos porque na Zome encontra o apoio total de uma equipa experiente e multidisciplinar que lhe dá suporte prático em todos os aspetos fundamentais, para que a sua experiência imobiliária supere as expectativas.+ felizO nosso maior valor é entregar-lhe felicidade!Liberte-se de preocupações e ganhe o tempo de qualidade que necessita para se dedicar ao que lhe faz mais feliz.Agimos diariamente para trazer mais valor à sua vida com o aconselhamento fiável de que precisa para, juntos, conseguirmos atingir os melhores resultados.Com a Zome nunca vai estar perdido ou desacompanhado e encontrará algo que não tem preço: a sua máxima tranquilidade!É assim que se vai sentir ao longo de toda a experiência: Tranquilo, seguro, confortável e... FELIZ!Notas:1. Caso seja um consultor imobiliário, este imóvel está disponível para partilha de negócio. Não hesite em apresentar aos seus clientes compradores e fale connosco para agendar a sua visita.2. Para maior facilidade na identificação deste imóvel, por favor, refira o respetivo ID ZMPT ou o respetivo agente que lhe tenha enviado a sugestão.
AMI: 17432
Ref. Externa: ZMPT586913
Id: 1718039
Inicie sessão para guardar este imóvel e aceder à sua lista de favoritos em qualquer dispositivo.
Área de terreno : 1344 m²
Lemenhe fica situado a cerca de 6Km da sede do concelho, com diversos acessos facilitados à cidade. Caracteriza-se como uma freguesia típicamente minhota com predominância da habitação isolada e por vezes em banda. Dispomos para venda de um terreno para construção de moradia térrea (ou com andar) localizado em local calmo e muito tranquilo, dispondo de bons acessos e junto das infraestruturas básicas essenciais: água e electricidade. Rodeado de zonas verdes arborizadas, constitui, sem dúvida, o local ideal para a implementação de um projeto de moradia rodeado por ampla zona ajardinada, com possibilidade de instalar uma piscina. Se procura um terreno com área generosa este corresponde ao desejado (Área = 1.344,00 m2) sendo que o especial destaque vai para a zona envolvente pontuada por árvores de grande porte. Venha conhecer.
AMI: 8366
Ref. Externa: 3536
Id: 1703609
Inicie sessão para guardar este imóvel e aceder à sua lista de favoritos em qualquer dispositivo.
Área de terreno : 800 m²
Terreno de gaveto para construção. Face estrada. ----------------------------------------------------------------------------------------------------------------------- De que forma e com que meios a Barcelcasa Imobiliária lhe presta o melhor serviço superando as suas expectativas? - Orienta o comprador a identificar e negociar o imóvel que melhor se adequa à sua necessidade e capacidade financeira. - Profundo conhecimento do mercado imobiliário local. - A Barcelcasa tem conhecimento completo sobre a situação dos imóveis e está mandatado pelos proprietários para os representar. - Fornece ao comprador o máximo de informação sobre os imóveis, não ocultando qualquer informação relevante. - Apoia e orienta na obtenção de financiamento bancário através do seu serviço de Intermediação de Crédito, com as melhores condições que o mercado lhe pode oferecer. (Intermediários de crédito vinculado registados no Banco de Portugal com o nº 0001237) - Acompanha e orienta na concretização do negócio desde as visitas aos imóveis até à escritura e registo. - Experiência de 20 anos no mercado imobiliário em Barcelos. - Profissionais com largos anos de experiência e com formação contínua. - Proporciona o melhor preço. - Assegura a rapidez e segurança no negócio. Com um padrão de seriedade na prestação de serviços imobiliários, procura realizar bons negócios com eficiência, proporcionando assim, tranquilidade aos seus clientes.
AMI: 4734
Ref. Externa: 32/21
Id: 1702207
Inicie sessão para guardar este imóvel e aceder à sua lista de favoritos em qualquer dispositivo.
Área de terreno : 7237 m²
Bouça rústica situada em Lemenhe, com 7.237 m² de área total, totalmente murada, garantindo privacidade, segurança e uma delimitação clara da propriedade. Terreno com excelente dimensão, ideal para exploração agrícola, projeto rural ou investimento a médio/longo prazo. A morfologia da parcela permite uma utilização versátil, sujeita ao enquadramento urbanístico aplicável. Inserida em zona tranquila, com bons acessos e envolvente rural, proporciona contacto direto com a natureza e total resguardo. Uma oportunidade para quem procura área, privacidade e potencial de valorização. Realty ONE Group A Realty ONE Group é atualmente a marca imobiliária com o crescimento mais rápido nos Estados Unidos. Com mais de 20 anos de experiência, está presente em 26 países e continua a expandir-se a nível global. À frente da marca está Vinnie Tracey, presidente da Realty ONE Group, que durante 40 anos liderou uma das maiores referências mundiais do setor. Com a sua vasta experiência, está a consolidar a Realty ONE Group como uma das marcas líderes nos Estados Unidos e no mundo. Motivos para escolher a ONE As Pessoas Primeiro. Os nossos consultores recebem formação de excelência, nacional e internacional, ministrada pelos melhores especialistas em todas as vertentes do negócio. Toda a formação é gratuita, garantindo que a equipa está preparada para o apoiar com máxima eficiência. “Enquanto desfruta dos prazeres da sua vida, compre e venda o seu imóvel de forma rápida, simples e segura.” ONE House. ONE Dream. ONE Life(style).
AMI: 8815
Ref. Externa: ONE0011980-1
Id: 1673948
Inicie sessão para guardar este imóvel e aceder à sua lista de favoritos em qualquer dispositivo.
Área de terreno : 3000 m²
Terreno Rústico Plano com 3.000 m² – Vila Nova de Famalicão Apresentamos este terreno rústico de 3.000 m², totalmente plano, localizado a poucos minutos do centro de Vila Nova de Famalicão. A sua morfologia facilita o aproveitamento integral da área, tornando-o ideal para projetos agrícolas, criação de pomar, horta ou espaço de lazer. Pela proximidade à cidade, é também uma excelente oportunidade de investimento para o futuro. Caracterisitcas principais: Área total: 3.000 m² Terreno plano e de fácil utilização Excelente exposição solar Local tranquilo, mas próximo de serviços e acessos Potencial de valorização Poderá ser adquirido conjuntamente com o imóvel 125411252-15 Se procura um terreno versátil, funcional e bem localizado, esta pode ser a oportunidade que esperava! ;ID RE/MAX: 125411252-16
AMI: 7772
Ref. Externa: 125411252-16
Id: 1340544
Inicie sessão para guardar este imóvel e aceder à sua lista de favoritos em qualquer dispositivo.
Área de terreno : 728 m²
Identificação do imóvel: ZMPT576238Apresentamos-lhe uma excelente oportunidade de investimento ou para construção própria: um terreno urbano com 728 m², situado numa zona residencial tranquila e em crescimento, com projeto aprovado para a construção de uma moradia térrea de sonho. Características principais:- Área total: 728 m²- Terreno plano e com bons acessos- Poço de àgua- Infraestruturas públicas próximas- Projeto aprovado para moradia térrea — poupe tempo e comece a construir de imediato! Localização estratégica – o melhor dos dois mundos: Localizado na freguesia de Jesufrei, em Vila Nova de Famalicão, este terreno proporciona-lhe o equilíbrio ideal entre a tranquilidade do campo e a proximidade dos centros urbanos. Excelentes acessibilidades:- A menos de 5 minutos da entrada da A3, garantindo rápidas ligações ao norte e sul do país.- A 10 minutos de Vila Nova de Famalicão- A 20 minutos de Braga- A 30 minutos do Porto e do aeroporto Francisco Sá Carneiro Vantagens adicionais:- Zona calma, ideal para famílias ou quem procura qualidade de vida- Bons acessos a serviços, escolas, supermercados e transportes- Potencial de valorização num concelho em constante desenvolvimento Agende já a sua visita e venha descobrir o espaço onde pode construir a sua casa de sonho ou investir com segurança.Este terreno não é apenas um pedaço de terra — é o início de um projeto de vida!3 razões para comprar com a Zome+ acompanhamentoCom uma preparação e experiência única no mercado imobiliário, os consultores Zome põem toda a sua dedicação em dar-lhe o melhor acompanhamento, orientando-o com a máxima confiança, na direção certa das suas necessidades e ambições.Daqui para a frente, vamos criar uma relação próxima e escutar com atenção as suas expectativas, porque a nossa prioridade é a sua felicidade! Porque é importante que sinta que está acompanhado, e que estamos consigo sempre.+ simplesOs consultores Zome têm uma formação única no mercado, ancorada na partilha de experiência prática entre profissionais e fortalecida pelo conhecimento de neurociência aplicada que lhes permite simplificar e tornar mais eficaz a sua experiência imobiliária.Deixe para trás os pesadelos burocráticos porque na Zome encontra o apoio total de uma equipa experiente e multidisciplinar que lhe dá suporte prático em todos os aspetos fundamentais, para que a sua experiência imobiliária supere as expectativas.+ felizO nosso maior valor é entregar-lhe felicidade!Liberte-se de preocupações e ganhe o tempo de qualidade que necessita para se dedicar ao que lhe faz mais feliz.Agimos diariamente para trazer mais valor à sua vida com o aconselhamento fiável de que precisa para, juntos, conseguirmos atingir os melhores resultados.Com a Zome nunca vai estar perdido ou desacompanhado e encontrará algo que não tem preço: a sua máxima tranquilidade!É assim que se vai sentir ao longo de toda a experiência: Tranquilo, seguro, confortável e... FELIZ!Notas:1. Caso seja um consultor imobiliário, este imóvel está disponível para partilha de negócio. Não hesite em apresentar aos seus clientes compradores e fale connosco para agendar a sua visita.2. Para maior facilidade na identificação deste imóvel, por favor, refira o respetivo ID ZMPT ou o respetivo agente que lhe tenha enviado a sugestão.
AMI: 17432
Ref. Externa: ZMPT576238
Id: 1166817
Inicie sessão para guardar este imóvel e aceder à sua lista de favoritos em qualquer dispositivo.
Profissionais que conhecem esta zona a fundo — contacte-os para uma avaliação personalizada.
Área de terreno : 2719 m²
Terreno de construção, com uma área de 2719.75 m2. Este terreno tem declive. Estamos a falar de um terreno, localizado na freguesia de Lemenhe. A Realty One Group, é a marca que mais cresce nos Estados Unidos, com mais de 20 anos, em 26 países. O presidente da Realty One Group é o Vinnie Tracey, que foi presidente durante 40 anos de uma das marcas líderes mundiais, e hoje é o Líder da Realty One Group, que com toda sua experiência esta a tornar a Realty One Group, uma das marcas Líderes nos Estados Unidos, e que já há alguns anos se espalha para todo mundo... Motivos para escolher a ONE AS PESSOAS PRIMEIRO.. Contamos com vários anos, com vários agentes premiados. -Os consultores têm formação de alto nível nacional e internacional, como os melhores formadores nacionais e internacionais, em todas vertentes do negócio, e de forma gratuita para o poder ajudar com mais eficiência. “Enquanto usufrui dos prazeres da sua vida, compre e venda o seu imóvel de forma rápida e segura...” ONE house, ONE dream, ONE life (style)
AMI: 8815
Ref. Externa: ONE0011016-386
Id: 1117851
Inicie sessão para guardar este imóvel e aceder à sua lista de favoritos em qualquer dispositivo.
Área de terreno : 1024 m²
Lote de Terreno Urbano 1024m² - Mouquim, Famalicão Apresentamos este excelente lote de terreno urbano com 1024m² planos, situado em Mouquim, a apenas 3 km do centro de Vila Nova de Famalicão. Com excelentes acessos à Variante Norte e à autoestrada, este terreno oferece a localização perfeita para quem procura tranquilidade sem abdicar da proximidade à cidade. Este lote permite a construção de até 2 pisos e uma área de implantação de 410m², proporcionando diversas possibilidades para o seu projeto. Além disso, está disponível o lote ao lado com 971,50m², ideal para quem deseja um espaço ainda maior. Se sonha construir a sua casa ideal, esta é a oportunidade perfeita! Contacte-nos para mais informações. REF: PAR_524
AMI: 2795
Ref. Externa: PAR_524
Id: 1069053
Inicie sessão para guardar este imóvel e aceder à sua lista de favoritos em qualquer dispositivo.
Área de terreno : 972 m²
Lote de Terreno Urbano 971,50m² - Mouquim, Famalicão Apresentamos este excelente lote de terreno urbano com 971,50m² planos, situado em Mouquim, a apenas 3 km do centro de Vila Nova de Famalicão. Com excelentes acessos à Variante Norte e à autoestrada, este terreno oferece a localização perfeita para quem procura tranquilidade sem abdicar da proximidade à cidade. Este lote permite a construção de até 2 pisos e uma área de implantação de 389m², proporcionando diversas possibilidades para o seu projeto. Além disso, está disponível o lote ao lado com 1024m², ideal para quem deseja um espaço ainda maior. Se sonha construir a sua casa ideal, esta é a oportunidade perfeita! Contacte-nos para mais informações. REF: PAR_525
AMI: 2795
Ref. Externa: PAR_525
Id: 1069052
Inicie sessão para guardar este imóvel e aceder à sua lista de favoritos em qualquer dispositivo.
Área de terreno : 10000 m²
Terreno urbanizável com 10.000m², localizado em Lemenhe, Vila Nova de Famalicão.O imóvel tem as seguintes características:- terreno totalmente plano;- localizado numa zona habitacional em crescimento;- a 1,5 km da estação de comboios de Nine;- boa exposição solar e acessos facilitados;- excelente opção para construtores.-------------Door of Dreams | 2D - 2 MotivosSabemos colocá-lo no lugar de destaque e por isso damos prioridade a ouvi-lo. É precisamente este o alvo de toda a nossa DEDICAÇÃO. Transformar ambições alheias em concretizações. Acolhemos o seu sonho, como nosso.Acreditamos acima de tudo na singularidade de cada cliente e esta refletir-se-á na elaboração da nossa proposta.Consciente de que os sonhos precisam de planos, assumimos um compromisso diário e é aqui que se revela toda a nossa DETERMINAÇÃO que tanto nos move e distingue.ABRIMOS PORTAS | REALIZAMOS SONHOS
AMI: 17717
Ref. Externa: 2D1526
Id: 1046467
Inicie sessão para guardar este imóvel e aceder à sua lista de favoritos em qualquer dispositivo.
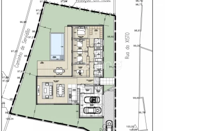
Área de terreno : 508 m²
Terreno para construção de uma fantástica moradia térrea, inserida num lote de 545m².As vantagens de uma moradia térrea incluem maior facilidade de acesso e mobilidade, além disso, o espaço exterior pode ser muito útil para desfrutar de momentos de lazer e relaxamento com a família e amigos.Esta moradia, de arquitetura moderna é composta por 3 quartos, sendo um deles suite, sala, cozinha mobilada e equipa, lavandaria, 3 casas de banho e alpendre para 3 carros.Está equipada com ar condicionado ou aquecimento central, estores térmicos e elétricos, sistema de vídeo porteiro a cores e painéis solares com acumulador de 300l, proporcionando um sistema de energia eficiente e sustentável.Fica localizada em Lemenhe, a 2 minutos da estação de Nine, a 5 minutos do acesso à autoestrada (A3 Cruz), a 7 minutos do centro de Famalicão e a 20 minutos de Braga. Agarre já esta oportunidade e marque a sua visita!
AMI: 12847
Ref. Externa: 23PPM03
Id: 867746
Inicie sessão para guardar este imóvel e aceder à sua lista de favoritos em qualquer dispositivo.
Área de terreno : 2044 m²
Zona em forte expansão, com bons e rápidos acessos à A3, nó de Cruz; a 14 km do centro de Braga; a 5 km do centro de Famalicão; a 30 minutos do Porto, Guimarães ou Barcelos. Lote com 2044 m2, 2 frentes, com excelente visibilidade. Inserido na zona industrial de Jesufrei, completamente infra estruturada e atual. Rodeado por estradas largas e em bom estado, que facilitam o acesso a pesados e TIR´s, assim como, célere circulação entre freguesias, como Louro, Outiz, Nine, Sto.Adrião, Vale S.Martinho, Vale S.Cosme, S.Tiago da Cruz, Arnoso de Sta.Maria ou de Sta.Eulália. 2 pisos Área Implantação: 1200m2 Área Bruta Construção: 1480m2 Pé direito/Altura: 7,5m Margem Imobiliária: Mediação na compra, venda e arrendamento de imóveis. Oferecemos acompanhamento em todo o processo, tanto aos compradores, como aos vendedores, desde a primeira reunião até à conclusão do negócio/escritura através de » Consultoria Financeira: Créditos (novos e transferências) » Consultoria Burocrática (obtenção de documentação; contratos e escrituras; certificados energéticos; avaliações e estudos de mercado) Na compra e na venda, que seja um bom negócio! A Margem Imobiliária existe para o bem servir, adaptando-se às suas necessidades da forma mais personalizada e profissional que cada situação requer. O objetivo não é que saiba o nosso nome, é merecer que nos trate por “a minha imobiliária“!
AMI: 14598
Ref. Externa: MP0224TI2044
Id: 813536
Inicie sessão para guardar este imóvel e aceder à sua lista de favoritos em qualquer dispositivo.
Área de terreno : 16200 m²
Terreno de construção para moradias unifamiliar com 16223 m2 em Mouquim Vila Nova de Famalicão para venda!! Venha conhecer, para mais info ligue comigo!
AMI: 8815
Ref. Externa: ONE0011026-381
Id: 238903
Inicie sessão para guardar este imóvel e aceder à sua lista de favoritos em qualquer dispositivo.
© Copyright 2023 | CASACERTA. All rights reserved
Guardar favoritos
Este imóvel foi guardados nos seus favoritos com sucesso.
Para poder guardar pesquisa deverá ter a sua sessão iniciada.
Caso não tenha uma conta, deverá criar uma.
A sua pesquisa foi guardada com sucesso!
Este site utiliza cookies. Ao navegar no site estará a consentir a sua utilização.
Para mais informações sobre os cookies pode consultar a
política de privacidade.