Lista
Comprar
Arrendar
89.000 €
Área de terreno : 2020 m²
Terreno plano, com boa exposição solar e de fácil acesso. O terreno tem uma área de 2020m², com viabilidade de construção e infraestruturas onde pode construir uma ou mais moradias, conforme o seu projeto e as suas necessidades.Aproveite esta oportunidade para adquirir um terreno com potencial para loteamento ou turismo, numa zona em crescimento e valorização constante.Loteamento:- Constituição de até 5 lotes, de 2 moradias geminadas e mais 3 moradias em banda, perfazendo um total de 5 moradias- Moradias de dois pisos com cerca de 90m² por pisoMoradia independente:- área máxima de construção 1818m²- área bruta dependente 606m²- dois pisos acima da cota de soleira e um abaixoLocalizaçãoO terreno situa-se numa vila com imensa história perto da Figueira da Foz, no distrito de Coimbra. A zona oferece escolas, comércio e serviços nas proximidades, bem como uma paisagem natural e cultural rica.Maiorca centro - 2 minutos/650mtMontemor-o-Velho - 10 minutos/8KmFigueira da Foz e as suas belas praias - 15 minutos/12KmCoimbra cidade de tradições - 40 minutos/40KmConta ainda com bons acessos às principais vias rodoviárias que servem a região e aos nós de acesso da A14 e A17.Contacte-me para mais informações.A Safti é uma rede Francesa em forte expansão em Portugal contando já com mais de 6000 consultores em toda a Europa.Os valores Safti, honestidade, ética e a nossa politica de acompanhamento e aconselhamento, garante-nos um elevado grau de satisfação dos nossos clientes.Se procura um imóvel para comprar ou vender conte com a garantia de satisfação dos nossos profissionais.SAFTIClaro que si
AMI: 17184
Ref. Externa: SF-SAFTI:004634
Id: 1734278
Inicie sessão para guardar este imóvel e aceder à sua lista de favoritos em qualquer dispositivo.
69.000 €
Área de terreno : 7652 m²
Terreno de 7644m², com 3000m² em Zona Urbana, com Estudo de Viabilidade de Construção e, com potencial de rentabilidade, nas mais diversas áreas, tais como:- Loteamento - Possibilidade de criar 3 lotes para venda individual- Parcelas - Construção de 2 Moradias Geminadas + 1 Moradia Unifamiliar.- Comércio e Serviços: Ideal para negócios de proximidade.- Turismo: Perfeito para Equipamentos Turísticos Isolados (turismo rural).- Social: Viabilidade para Lar de Idosos (equipamentos de utilização coletiva).Apesar da tranquilidade, o dia-a-dia é facilitado pela presença de comércio variado, serviços de proximidade e transportes públicos com ligação direta à praia da Figueira da Foz e à cidade de Coimbra. A propriedade esta situada em pleno coração de uma aldeia, a 150km do Porto (e seu aeroporto) e a 200 km de Lisboa, a capital (e seu aeroporto internacional), a 40km de Coimbra (cerca de 20 minutos de carro) e a 12 Km da cidade Figueira da Foz e das suas lindas praias(cerca de 10 minutos de carro).Zona maravilhosa para investir ou residirA Safti é uma rede Francesa em forte expansão em Portugal contando já com mais de 6000 consultores em toda a Europa.Os valores Safti, honestidade, ética e a nossa política de acompanhamento e aconselhamento, garante-nos um elevado grau de satisfação dos nossos clientes.Se procura um imóvel para comprar ou vender conte com a garantia de satisfação dos nossos profissionais.SAFTI
AMI: 17184
Ref. Externa: SF-SAFTI:004491
Id: 1734276
Inicie sessão para guardar este imóvel e aceder à sua lista de favoritos em qualquer dispositivo.
52.300 €
Área de terreno : 0 m²
Refª JG3771 - Vende-se terreno com 10.000m², 130 metros de frente, na freguesia de Maiorca, concelho de Figueira da Foz.O terreno conta com viabilidade para construção de Equipamentos, tais como lares, creches, infantários, unidades de cuidados continuados, apoio domiciliário, centros de dia, fisioterapia, entre outros.Também pode-se desenvolver armazém para apoio à agricultura.(Rede móvel nacional)
AMI: 10048
Ref. Externa: CI-JG3771
Id: 1728526
Inicie sessão para guardar este imóvel e aceder à sua lista de favoritos em qualquer dispositivo.
50.500 €
Área de terreno : 24229 m²
Terreno Rustico com 24300m2 à saída da A14 Visite e encontre a seu novo projeto. Figueira da Foz fica no Litoral Atlântico de Portugal. É um dos centros turísticos mais importantes do país, com o Casino mais antigo da Península Ibérica e único na Região Centro. Dispõe de um enorme areal (a praia urbana mais larga da Europa) com equipamentos lúdicos e desportivos e uma animada vida noturna. Vantagens de comprar casa com a HOMELUSA: Ser acompanhado por um consultor dedicado, com formação que se preocupa em perceber as suas necessidades e desejos Ter um acompanhamento muito próximo e eficaz, que lhe permite ganhar tempo de qualidade para a sua família, amigos e hobbies Ter um departamento processual e jurídico altamente especializado que simplifica e torna o processo eficaz, evitando constrangimentos Ter um departamento financeiro com as melhores propostas de financiamento para que escolha a melhor solução Ter acompanhamento do inicio ao fim do processo para que se sinta sempre seguro Ter a possibilidade de uma experiência imobiliária acima das suas expectativas Tratamos da aprovação do crédito para financiamento do seu imóvel. Somos intermediários de crédito vinculados inscritos no Banco de Portugal com o registo n.º 0004816, com contrato de vinculação à CGD, BPI, Banco CTT, Santander, UCI e Novo Banco. Intermediação de crédito não é mais do que o ato de uma determinada entidade tratar de um processo de crédito pelo consumidor, ajudando-o a recolher toda a documentação necessária e tratando de tudo o que é necessário.
AMI: 6179
Ref. Externa: FFMJ 5442
Id: 1707207
Inicie sessão para guardar este imóvel e aceder à sua lista de favoritos em qualquer dispositivo.
35.000 €
Área útil : 1760 m²
Este terreno com 1760 m2 em Vila Verde, é a sua opção perfeita, para quem procura terreno para construção em Figueira da Foz, este é o ideal. Localizado numa zona calma e a beira da estrada principal, fronteira dos 3 concelhos e com acessos fáceis. Todas as facilidades à mão, incluindo proximidade com paragem da estação. Possui algumas árvores (oliveiras) e com furo e é um terreno plano. LIGUE E GRAVE A SUA NOVA HISTÓRIA! Seja Bem-vindo! Tratamos da aprovação do crédito para financiamento do seu imóvel. Somos intermediários de crédito vinculados inscritos no Banco de Portugal com o registo n.º 0004816, com contrato de vinculação à CGD, BPI, BancoCTT, Santander, UCI e Novo Banco. Intermediação de crédito não é mais do que o ato de uma determinada entidade tratar de um processo de crédito pelo consumidor, ajudando-o a recolher toda a documentação necessária e tratando de tudo o que é necessário. Figueira da Foz fica no Litoral Atlântico de Portugal. é um dos centros turísticos mais importantes do país, com o Casino mais antigo da Península Ibérica e único na Região Centro. Dispõe de um enorme areal (a praia urbana mais larga da Europa) com equipamentos lúdicos e desportivos e uma animada vida noturna. Vantagens de comprar casa com a HOMELUSA: . Ser acompanhado por um consultor dedicado, com formação que se preocupa em perceber as suas necessidades e desejos; . Ter um acompanhamento muito próximo e eficaz, que lhe permite ganhar tempo de qualidade para a sua família, amigos e hobbies; . Ter um departamento processual e jurídico altamente especializado que simplifica e torna o processo eficaz, evitando constrangimentos; . Ter um departamento financeiro com as melhores propostas de financiamento para que escolha a melhor solução; . Ter acompanhamento do inicio ao fim do processo para que se sinta sempre seguro; . Ter a possibilidade de uma experiência imobiliária acima das suas
AMI: 6179
Ref. Externa: FFMS 1848
Id: 1707203
Inicie sessão para guardar este imóvel e aceder à sua lista de favoritos em qualquer dispositivo.
69.500 €
Área de terreno : 524 m²
Excelente terreno urbano em Maiorca, com 524 m², ideal para a construção da moradia com que sonhou.Com viabilidade para construção de moradia isolada de 2 pisos e infraestruturas já disponíveis.Localizado numa zona tranquila com vistas deslumbrantes sobre a vila, de onde se avista entre outras a Quinta de Foja e a Serra de Castros, este lote combina o sossego da vida rural com a conveniência de estar, a escassos minutos da Figueira da Foz e a proximidade aos acessos da autoestrada (A14/A17).A vila de Maiorca esta servida por serviços essenciais como escola, farmácia, extensão de saúde e comércio local. Marque a sua visita!A equipa +PROXIMUS está ao seu dispor.Escolha trabalhar connosco...Com a +PROXIMUS tem um profissional que o acompanha.Sabemos que o momento da compra ou venda de um imóvel é muito mais do que uma transação, por isso, queremos mantê-lo informado de tudo o que está a acontecer.Vamos caminhar lado a lado.Temos pessoas que formamos para serem consultores imobiliários dedicados, atenciosos, focados nos clientes e nos negócios, objetivados e que trabalham com a máxima transparência.Reconhecemos que todos os passos devem ser divididos consigo de forma a sentir-se sempre representado ao longo do processo de compra ou venda do seu imóvel.Trazemos TRANSPARÊNCIA ao negócio, apoiamos na parte processual, administrativa e apoio no crédito habitação, crédito para obras de forma a que chegue ao final do processo com o ACOMPANHAMENTO devido.Criamos compromisso para garantir um atendimento de EXCELÊNCIA.Afinal a nossa área de negócio não são as casas, são as pessoas!Confie num profissional da +PROXIMUS para o ajudar a encontrar o que procura.Vamos trabalhar juntos?
AMI: 18878
Ref. Externa: MP547
Id: 1607016
Inicie sessão para guardar este imóvel e aceder à sua lista de favoritos em qualquer dispositivo.
35.000 €
Área de terreno : 540 m²
Terreno com viabilidade de construção. Ao abrigo do PDM da Figueira Da Foz, este terreno está considerado com uma área de Aglomerados Rurais, com possibilidade de construção até 500m2 e com o máximo de dois pisos acima da cota de soleira e outros dois abaixo dessa mesma cota. O terreno dispõe de todas as infraestruturas necessárias para a construção: Saneamento básico, agua e luz. Fica bem localizado, nesta simpática vila de Maiorca que conta com todos os serviços para o seu dia a dia. Este terreno é uma ótima oportunidade para quem quer construir uma moradia . Não perca esta oportunidade de criar um lar, num local tão privilegiado. Figueira da Foz fica no Litoral Atlântico de Portugal. É um dos centros turísticos mais importantes do país, com o Casino mais antigo da Península Ibérica e único na Região Centro. Dispõe de um enorme areal (a praia urbana mais larga da Europa) com equipamentos lúdicos e desportivos e uma animada vida noturna. Vantagens de comprar casa com a HOMELUSA: Ser acompanhado por um consultor dedicado, com formação que se preocupa em perceber as suas necessidades e desejos Ter um acompanhamento muito próximo e eficaz, que lhe permite ganhar tempo de qualidade para a sua família, amigos e hobbies Ter um departamento processual e jurídico altamente especializado que simplifica e torna o processo eficaz, evitando constrangimentos Ter um departamento financeiro com as melhores propostas de financiamento para que escolha a melhor solução Ter acompanhamento do inicio ao fim do processo para que se sinta sempre seguro Ter a possibilidade de uma experiência imobiliária acima das suas expectativas Tratamos da aprovação do crédito para financiamento do seu imóvel. Somos intermediários de crédito vinculados inscritos no Banco de Portugal com o registo n.º 0004816, com contrato de vinculação à CGD, BPI, Banco CTT, Santander, UCI e Novo Banco. Intermediação de crédito não é mais do que o ato de uma determinada entidade tratar de um processo de crédito pelo consumidor, ajudando-o a recolher toda a documentação necessária e tratando de tudo o que é necessário.
AMI: 6179
Ref. Externa: FFCI 5055
Id: 1481899
Inicie sessão para guardar este imóvel e aceder à sua lista de favoritos em qualquer dispositivo.
35.000 €
Área de terreno : 347 m²
Terreno constituído por 3 artigos com área total de 347m2Localizada no centro da vila de Maiorca, com proximidade de comércio local diverso;Possibilidade de construção de uma moradia de 2 andares com uma área de cerca de 200m2 (100 m2 por andar) com logradouro. Marque já a sua visita!Tratamos do seu processo de aquisição de casa, com o profissionalismo e dedicação que nos acompanha desde 1993.A Figueira da Foz é um concelho privilegiado geográfica, cultural e socialmente. Desfrutando de condições naturais únicas, com serra, rio, mar, amplas praias e dunas tranquilas, alia a calma de uma cidade madura com riqueza cultural, patrimonial, histórica e associativa, ao bulício da animação de rua como o Carnaval, o S. João ou os concertos de Verão, oferecendo igualmente um manancial de modalidades desportivas de ar livre com especial relevo para os desportos náuticos (remo, vela, surf, etc.).O concelho, com 60 mil habitantes, é servido por um Hospital Distrital, uma ampla rede de cuidados de saúde, espaços comerciais de pequena, média e grande dimensão, hotéis, Casino, Centro de Artes e Espetáculos, e uma considerável oferta de património histórico visitável: o Museu Municipal Dr. Santos Rocha, a coleção de Azulejos de Delft, na Casa do Paço, as inúmeras igrejas e capelas, o Forte de Santa Catarina, o Palácio Sotto Mayor e a Fortaleza de Buarcos são apenas alguns exemplos.De salientar também a nossa saborosa gastronomia, onde predominam alguns pratos como a feijoada de búzios, caldeirada á pescador, arroz de marisco, raia de pitáu, e uma grande variedade de peixe fresco e marisco.Venha conhecer este paraíso á Beira Mar!
AMI: 1339
Ref. Externa: MBJ 3869
Id: 1474204
Inicie sessão para guardar este imóvel e aceder à sua lista de favoritos em qualquer dispositivo.
60.000 €
Área de terreno : 2013 m²
Excelente terreno localizado em Maiorca, Figueira da Foz, com uma área total de 2.013 m². Inserido numa zona tranquila, com bons acessos e envolvente predominantemente residencial, este lote oferece o equilíbrio ideal entre a proximidade à cidade e a serenidade do campo. O terreno encontra-se em zona com viabilidade de construção, permitindo a edificação de uma moradia unifamiliar. Marque já a sua visita presencial ou por videochamada! Visite a Renthouse!! VF1880 O nosso objetivo principal é responder às solicitações de todos os clientes que depositam em nós a sua confiança! Ritmo Dinâmico Mediação Imobiliária Unipessoal, Lda. Lic.9031 AMI
AMI: 9031
Ref. Externa: VF1880
Id: 1271260
Inicie sessão para guardar este imóvel e aceder à sua lista de favoritos em qualquer dispositivo.
52.300 €
Área de terreno : 0 m²
Refª JG3771 - Vende-se terreno com 10.000 m2, 130 metros de frente, na freguesia de Maiorca, concelho de Figueira da Foz. O terreno conta com viabilidade para construção de Equipamentos, tais como lares, creches, infantários, unidades de cuidados continuados, apoio domiciliário, centros de dia, fisioterapia, entre outros. Também pode-se desenvolver armazém para apoio à agricultura. Para mais informações e visitas: 925066077 (Rede móvel nacional)
AMI: 10048
Ref. Externa: JG3771
Id: 1158709
Inicie sessão para guardar este imóvel e aceder à sua lista de favoritos em qualquer dispositivo.
70.000 €
Área de terreno : 7644 m²
A poucos minutos da cidade da Figueira da Foz encontra este terreno onde poderá construir a moradia dos seus sonhos. Poderá construir duas moradias geminadas ou bi-familiares de 250m2 cada uma, ou uma moradia unifamiliar com 500m2. O terreno tem uma área total de 7644 m2 e localiza-se numa zona muito tranquila, com bons acessos ao auto-estrada e perto do centro da vila de Maiorca onde encontra vários comércios e serviços. Tem uma vista maravilhosa e uma boa exposição solar. Venha conhecer.
AMI: 7968
Ref. Externa: FH2209
Id: 942958
Inicie sessão para guardar este imóvel e aceder à sua lista de favoritos em qualquer dispositivo.
40.000 €
Área de terreno : 2802 m²
Terreno com viabilidade de construção. Ao abrigo do PDM da Figueira Da Foz, este terreno está considerado com uma área de Aglomerados Rurais, com possibilidade de construção até 500m2 e com o máximo de dois pisos acima da cota de soleira e outros dois abaixo dessa mesma cota. Terreno urbano com cerca de cento e dezasseis metros quadrados.A este terreno urbano, junta-se um terreno rústico, com cerca de dois mil e quinhentos metros quadrados, aonde encontra um poço. A entrada para estes terrenos, poderá ser feita por duas estradas diferentes, de fácil acesso. Bem localizado e com vistas incríveis sobre os amplos campos de arroz, estes terrenos oferecem muita tranquilidade e a qualidade de vida que tanta procura. Localizada a apenas de onze kilometros do centro da cidade da Figueira da Foz, na Vila de Maiorca, poderá encontrar muitos serviços como, centro de saúde, escolas, farmácias, restaurantes, pastelarias, etc. Duvidas??? Questões?? Ando por aqui Figueira da Foz fica no Litoral Atlântico de Portugal. É um dos centros turísticos mais importantes do país, com o Casino mais antigo da Península Ibérica e único na Região Centro. Dispõe de um enorme areal (a praia urbana mais larga da Europa) com equipamentos lúdicos e desportivos e uma animada vida noturna. Vantagens de comprar casa com a HOMELUSA: Ser acompanhado por um consultor dedicado, com formação que se preocupa em perceber as suas necessidades e desejos Ter um acompanhamento muito próximo e eficaz, que lhe permite ganhar tempo de qualidade para a sua família, amigos e hobbies Ter um departamento processual e jurídico altamente especializado que simplifica e torna o processo eficaz, evitando constrangimentos Ter um departamento financeiro com as melhores propostas de financiamento para que escolha a melhor solução Ter acompanhamento do inicio ao fim do processo para que se sinta sempre seguro Ter a possibilidade de uma experiência imobiliária acima das suas expectativas Tratamos da aprovação do crédito para financiamento do seu imóvel. Somos intermediários de crédito vinculados inscritos no Banco de Portugal com o registo n.º 0004816, com contrato de vinculação à CGD, BPI, Banco CTT, Santander, UCI e Novo Banco. Intermediação de crédito não é mais do que o ato de uma determinada entidade tratar de um processo de crédito pelo consumidor, ajudando-o a recolher toda a documentação necessária e tratando de tudo o que é necessário.
AMI: 6179
Ref. Externa: FFCI 5219
Id: 843683
Inicie sessão para guardar este imóvel e aceder à sua lista de favoritos em qualquer dispositivo.
62.500 €
Área de terreno : 1799 m²
Terreno urbanizável, em planalto, com vista soberba sobre os Campos do Mondego e sobre Coimbra, numa vila sossegada, pintada de verde e refrescada pela água das várias fontes que pontuam o território. Vista da Serra da Estrela no inverno. Terreno com 70% de superfície urbanizável plana, com limpeza completa. Possibilidade de edificação de 2 moradias, geminadas, com 2 pisos acima e 1 piso abaixo da cota de soleira. Infraestruturas de loteamento presentes. Confronta com rua alcatroada, com esgotos, electricidade e água da rede pública. Internet com bom sinal. Nó de acesso da A17 a 3 km, com Figueira da Foz a cerca de 10 minutos, de carro, e Coimbra a 25 minutos. A poucos minutos de distância da concorrida praia da Figueira da Foz e diversas outras praias a 15 minutos (Claridade; Buarcos; Cabedelo…). Maiorca, apelidada de “a pequena pérola do Baixo Mondego”, zona onde o verde domina a paisagem, em campo aberto ao sossego. #ref: 121762
AMI: 11220
Ref. Externa: 121762
Id: 766068
Inicie sessão para guardar este imóvel e aceder à sua lista de favoritos em qualquer dispositivo.
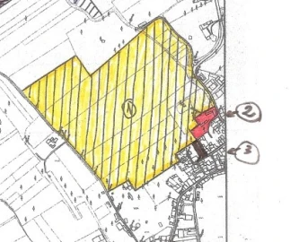
89.000 €
Área de terreno : 2020 m²
Terreno urbano para investimento em Maiorca possibilidade de construção de 5 moradias! Procura um terreno urbano com excelente potencial de investimento na zona de Maiorca? Apresentamos este terreno de 2.020 m², com estudo de viabilidade para loteamento, permitindo a construção de 5 moradias unifamiliares distribuídas por 5 lotes. Cada moradia poderá ter 2 pisos, com cerca de 90 m² por piso, totalizando uma área máxima de construção de 900 m². Características principais: Terreno urbano com viabilidade de construção para 5 moradias Acesso direto à via urbana Infraestruturas disponíveis: rede de água, eletricidade, saneamento e gás natural Situado em aldeia típica e tranquila, com todas as comodidades de proximidade Localização privilegiada entre Maiorca e Figueira da Foz, a poucos minutos da cidade e das praias Vantagem adicional: A construção beneficia de IVA reduzido a 6%, o que torna este projeto ainda mais atrativo e rentável para investidores e construtores! Nota: Imóvel excluído do SCE, ao abrigo da alínea f) do artigo 4.º do Decreto-Lei n.º 118/2013, de 20 de agosto.
AMI: 14942
Ref. Externa: FGFED77
Id: 698545
Inicie sessão para guardar este imóvel e aceder à sua lista de favoritos em qualquer dispositivo.
35.000 €
Área de terreno : 427 m²
Propriedade em Maiorca, concelho da Figueira da Foz. Localização privilegiada a 15Km da Figueira da Foz, inserida numa zona com vários pontos de interesse histórico, cultural e de beleza natural. Terreno composto por três artigos urbanos com ruinas, inserida na aldeia de Anta, com 427 m2. Permite a construção de uma moradia bi familiar com cerca de 100m2 por andar com logradouro. Localização privilegiada a 15Km da Figueira da Foz, inserida numa zona com vários pontos de interesse histórico, cultural e de beleza natural. Marque a sua visita connosco. Venha conhecer o sitio ideal para a sua nova casa!!
AMI: 14942
Ref. Externa: FGFED80
Id: 698544
Inicie sessão para guardar este imóvel e aceder à sua lista de favoritos em qualquer dispositivo.
69.000 €
Área de terreno : 7644 m²
Procura um terreno para construir e investir na zona de Maiorca? Apresentamos este terreno de 7.644 m2 dos quais 1.800 m2 em zona urbana, com estudo de viabilidade de construção por arquiteto, com as seguintes viabilidades: -Habitação: 4 habitações com cave, rés do chão e 1º andar; - Comércio e Serviços, equipamentos turísticos isolados, equipamentos de utilização coletiva (lar), de animação turística, recreio e lazer. Habitação unifamiliar ou bifamiliar até 2 pisos área máxima de construção: 500 m² Comércio e serviços área máxima de construção: 850 m², altura máxima da fachada: 7 m Equipamentos turísticos isolados área máxima de construção: 1.555,20 m², até 3 pisos, altura máxima da fachada: 9 m Equipamentos de utilização coletiva (lar, animação turística, recreio e lazer) índice máximo de utilização: 1.036,8 m², até 2 pisos, altura máxima da fachada: 9 m Vantagem fiscal: A construção beneficia de IVA reduzido a 6%, tornando este investimento ainda mais atrativo e competitivo! Situado em aldeia típica e servido por todas as infraestruturas de proximidade entre a Figueira da Foz (cidade turística e balnearia de 60.000 habitantes) e Coimbra (cidade universitária e turística de 142.000 habitantes) a 10 e 20 minutos respetivamente. Aeroporto internacional do Porto situa-se a 1h20 minutos. Zona sossegada, com vistas desafogadas para o campo! Localização: Situado em Maiorca, numa zona tranquila, com bons acessos e excelente exposição solar ideal tanto para projeto habitacional, turístico ou comercial. Nota: Imóvel excluído do SCE, ao abrigo da alínea f) do artigo 4.º do Decreto-Lei n.º 118/2013, de 20 de agosto.
AMI: 14942
Ref. Externa: FGFED78
Id: 698541
Inicie sessão para guardar este imóvel e aceder à sua lista de favoritos em qualquer dispositivo.
60.000 €
Área de terreno : 7000 m²
Terreno com viabilidade de construção! Maiorca!Apresentamos terreno com viabilidade de construção para uma moradia ou duas geminadas.7000m2, três frentes e a calma bucólica de uma das vilas mais pitorescas da Figueira da Foz, Maiorca, com foral datado de 1194.Marque já a sua visita!Desde 1993 com o profissionalismo e dedicação a trabalhar no mercado da Figueira da FozA Figueira da Foz é um concelho privilegiado geográfica, cultural e socialmente. Desfrutando de condições naturais únicas, com serra, rio, mar, amplas praias e dunas tranquilas, alia a calma de uma cidade madura com riqueza cultural, patrimonial, histórica e associativa, ao bulício da animação de rua como o Carnaval, o S. João ou os concertos de Verão, oferecendo igualmente um manancial de modalidades desportivas de ar livre com especial relevo para os desportos náuticos (remo, vela, surf, etc.).O concelho, com 60 mil habitantes, é servido por um Hospital Distrital, uma ampla rede de cuidados de saúde, espaços comerciais de pequena, média e grande dimensão, hotéis, Casino, Centro de Artes e Espetáculos, e uma considerável oferta de património histórico visitável: o Museu Municipal Dr. Santos Rocha, a coleção de Azulejos de Delft, na Casa do Paço, as inúmeras igrejas e capelas, o Forte de Santa Catarina, o Palácio Sotto Mayor e a Fortaleza de Buarcos são apenas alguns exemplos.De salientar também a nossa saborosa gastronomia, onde predominam alguns pratos como a feijoada de búzios, caldeirada á pescador, arroz de marisco, raia de pitáu, e uma grande variedade de peixe fresco e marisco.Venha conhecer este paraíso á Beira Mar!
AMI: 1339
Ref. Externa: TGM 3574
Id: 561289
Inicie sessão para guardar este imóvel e aceder à sua lista de favoritos em qualquer dispositivo.
55.000 €
Área de terreno : 9900 m²
Terreno / Maiorca / Figueira da FozTerreno com 9.900 metros, em Maiorca, Figueira da Foz.O terreno é constituído por cinco artigos rústicos.Segundo o PDM da Figueira da Foz, este terreno está classificado como “Espaços mistos de uso sílvicola com aptidão agrícola”, é possível o seguinte:a) edificação isolada para fins habitacionais, para residência própria e permanente de quem exerça atividade agroflorestal ou atividades conexas ou complementares daquela, e desde que verificados cumulativamente os seguintes requisitos:a.1) comprovação da inexistência de qualquer outra habitação na mesma exploração e de alternativas de localização para a respetiva habitação;a.2) a habitação seja unifamiliar;a.3) o acesso viário, o abastecimento de água, a drenagem de efluentes e o abastecimento de energia elétrica, caso não exista ligação às redes públicas, têm que ser assegurados por sistema autónomo com soluções técnicas comprovadamente eficazes e ambientalmente sustentáveis, cuja construção e manutenção ficam a cargo 1ª REVISÃO DO PDM DA FIGUEIRA DA FOZ Julho de 2019 49/123 dos interessados, a menos que estes suportem o custo da extensão das redes públicas, se ela for autorizada;a.4) os efluentes que contenham substâncias poluentes não podem ser lançados diretamente em linhas de água ou no solo, sem que seja previamente assegurado um tratamento adequado;b) edifício de apoio às atividades agrícolas e florestais; c) detenção caseira de espécies pecuárias;d) instalações pecuárias, desde que:d.1) implantadas a mais de 100 metros de captações de água, de imóveis classificados ou em vias de classificação, de edifícios públicos, de edifícios de habitação, de comércio ou de serviços, de equipamentos de utilização coletiva, de espaços verdes de recreio e lazer, e de edifícios com uso turístico;d.2) para além do disposto em d.1), desde que implantadas a mais de 200 metros dos limites definidos na planta de ordenamento para os perímetros urbanos e espaços de ocupação turística;d.3) assegurem uma correta integração paisagística, nomeadamente através da criação de cortinas arbóreas; d.4) sistemas de tratamento e gestão de resíduos e efluentes, desde a produção, recolha, armazenamento, encaminhamento, tratamento e destino final em conformidade com a legislação em vigor, e adotar boas práticas ambientais de modo a impedir a poluição dos solos e das águas; e) estabelecimentos industriais de fabrico e transformação de produtos agrícolas, silvícolas e pecuários, e atividades de comércio e serviços complementares, desde que cumpram os seguintes requisitos e que contribuam para a sustentabilidade económica da indústria e a promoção de emprego:e.1) o requerente deve atestar que a sua localização exige proximidade à matéria-prima ou, pela sua natureza técnica e económica, haja inconvenientes na sua instalação em zonas industriais;e.2) não pode dar origem à produção de ruídos, fumos, cheiros ou resíduos, que agravem as condições de salubridade ou que dificultem a sua eliminação, nem pode criar efeitos prejudiciais à imagem e ao ambiente da zona em que se inserem; f) empreendimentos turísticos isolados; g) equipamentos de utilização coletiva;h) estufas e abrigos;i) edificações ligadas à proteção civil;j) unidades de recolha, tratamento, eliminação, desmantelamento e valorização de resíduos.Localização e envolvente:Situada em Maiorca,em zona calma e de bons acessos. Na proximidade existe oferta dos principais serviços, nomeadamente, comércio, supermercados, restauração, take away, pastelarias, escolas, bancos, farmácia e transportes públicos.CASAS GO uma nova marca que resulta de mais de 15 anos de experiência no mercado imobiliário no concelho de Leiria.CASAS GO mais que uma imobiliária, somos também uma empresa certificada pelo Banco de Portugal para Intermediação de Crédito Habitação.Notas:1. Caso seja consultor imobiliário, este imóvel está disponível para partilha de negócio. Pode apresentar aos seus clientes compradores e agendar a sua visita.2. Para maior facilidade e rapidez na identificação deste imóvel, refira por favor, o respetivo ID 280 240 061.
AMI: 11487
Ref. Externa: 280240061
Id: 413238
Inicie sessão para guardar este imóvel e aceder à sua lista de favoritos em qualquer dispositivo.
Estes agentes são especialistas nesta zona:
Inicie sessão para ocultar este imóvel das suas pesquisas e manter a sua lista de resultados organizada.
© Copyright 2023 | CASACERTA. All rights reserved
Guardar favoritos
Este imóvel foi guardados nos seus favoritos com sucesso.
Para poder guardar pesquisa deverá ter a sua sessão iniciada.
Caso não tenha uma conta, deverá criar uma.
A sua pesquisa foi guardada com sucesso!
Este site utiliza cookies. Ao navegar no site estará a consentir a sua utilização.
Para mais informações sobre os cookies pode consultar a
política de privacidade.