Lista
Comprar
Arrendar
275.000 €
Área de terreno : 250 m²
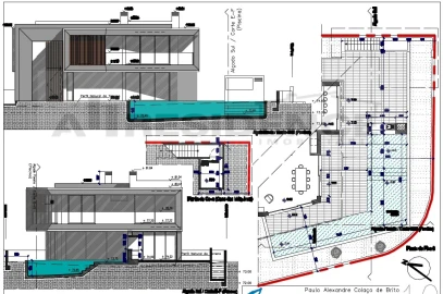
Oportunidade única para adquirir um terreno urbano de 460 m² numa das zonas mais tranquilas e exclusivas de Albufeira: as Sesmarias. Este lote beneficia de uma localização estratégica, combinando a serenidade de um bairro residencial de prestígio com a proximidade imediata a algumas das melhores praias do Algarve, como a Praia da Coelha, Praia do Evaristo e Praia de S. Rafael. Destaques do Lote: Área Total do Lote: 460,00 m². Viabilidade: Terreno pronto para construção imediata. Infraestruturas: Todas as infraestruturas (água, luz, saneamento) estão disponíveis à face do lote. Valor Acrescentado – Projeto Aprovado: O terreno é vendido com um projeto de arquitetura moderno e funcional já aprovado, o que permite evitar longos processos burocráticos e iniciar a obra em curto prazo. O projeto prevê: Uma moradia unifamiliar de design contemporâneo. Área de construção: 263,49 Área de implantação do terreno: 90,90 Configuração: 3 pisos (Cave, R/C e 1º andar) com tipologia V4. Lazer: Espaço planeado para jardim privativo e piscina. Porquê investir aqui? Sesmarias é uma zona em constante valorização, conhecida pela sua baixa densidade habitacional e ambiente selecionado. É o local ideal tanto para quem procura construir a sua residência permanente ou casa de férias, como para investidores que pretendam desenvolver um projeto imobiliário de luxo para revenda. A curta distância: Praias: 2-5 minutos de carro. Marina de Albufeira: 5 minutos. Centro de Albufeira: 10 minutos. Aeroporto de Faro: 40 minutos. Venha conhecer o local onde nascerá o seu próximo projeto. Contacte-nos para mais informações e consulta das plantas detalhadas!
AMI: 21960
Ref. Externa: KWPT-028979
Id: 1694920
Inicie sessão para guardar este imóvel e aceder à sua lista de favoritos em qualquer dispositivo.
38.000 €
Área de terreno : 1920 m²
Esqueça a correria. Esqueça o relógio. Aqui tens um pedaço de chão algarvio que não se mede apenas em metros quadrados, mas em histórias para viver e azeite para provar. Localizado na tranquila freguesia de Paderne, em Albufeira, este terreno com 1.920m² , à 20 minutos das praias mais famosas do Algarve, é um verdadeiro presente da natureza. Aqui, o tempo tem outro sabor: o sabor da azeitona que já nasce e amadurece em dezenas de árvores que pontilham a paisagem. O que o terreno conta sobre si mesmo: Pequeno Rústico com grande investimento: Todo cercado, plantado, à poucos metros da estrada de betão e com ponto de energia elétrica rente à cerca. Ideal para quem valoriza o sossego e aprecia a união dele com um bom investimento. Atividade Produtiva: São 60 Oliveiras plantadas há 12 anos, portanto, já em plena atividade produtiva. Não precisa esperar anos para ver o resultado; a terra já trabalha e dá frutos. Um refúgio à sua medida: Seja para criar uma horta sustentável, construir o seu retiro de fim de semana (sujeito às devidas autorizações) ou simplesmente possuir um pedaço autêntico do barrocal algarvio. Localização estratégica: Está perto de tudo, mas parece longe de tudo. A poucos minutos das praias, das comodidades de Albufeira e das tradições de Paderne. Este não é apenas um terreno. É a desculpa perfeita para trocar o barulho pelo cantar dos pássaros. Venha sentar-se à sombra de uma oliveira e ouvir o que este lugar tem para lhe dizer. Nota importante: Para os apreciadores, o azeite da próxima colheita já está "reservado" para quem vier a ser o novo guardião deste espaço.
AMI: 19852
Ref. Externa: JF04
Id: 1693015
Inicie sessão para guardar este imóvel e aceder à sua lista de favoritos em qualquer dispositivo.
Área de terreno : 900 m²
Excelente terreno com 900 m², localizado numa urbanização tranquila na Mouraria, numa rua sem saída, ideal para quem procura privacidade, segurança e qualidade de vida, a poucos minutos do centro de Albufeira. O terreno já dispõe de projeto aprovado pela Câmara Municipal de Albufeira para a construção de uma moradia isolada com cerca de 350 m² de área de construção, distribuída de forma funcional e moderna: Cave (200 m²) garagem espaçosa e lavandaria Rés-do-chão (100 m²) sala ampla, cozinha e 1 suíte 1.º andar (50 m²) 2 suítes e espaço adicional ideal para sala de leitura, escritório ou zona de lazer Para além do projeto aprovado, já foram investidos mais de 8.000 em projetos e licenças, e as fundações encontram-se executadas, acompanhadas do respetivo projeto de estabilidade, permitindo ao futuro proprietário avançar com a obra de forma mais rápida e segura. Existe ainda orçamento disponível para a conclusão da construção, facilitando o planeamento do investimento. Localização privilegiada Zona residencial calma Rua sem saída (mais privacidade e segurança) A poucos minutos das praias, comércio, restaurantes e serviços de Albufeira Se procura qualidade de vida, num local tranquilo e com acessos rápidos a todos os serviços e comodidades de Albufeira, esta pode ser a oportunidade ideal para concretizar o seu projeto de vida. Venha conhecer e descubra todo o potencial deste espaço.
AMI: 22786
Ref. Externa: CM134
Id: 1690576
Inicie sessão para guardar este imóvel e aceder à sua lista de favoritos em qualquer dispositivo.
290.000 €
Área de terreno : 1760 m²
Com 1.760 m² de área total, este terreno inclui uma parcela urbana de 400 m², oferecendo um interessante potencial para quem procura investir, construir ou criar um refúgio no Algarve.Dispõe ainda de acesso alcatroado, água, esgotos e eletricidade, condições cada vez mais raras em terrenos desta natureza e que acrescentam valor e viabilidade ao projeto que imaginar.Localizado na tranquila freguesia de Paderne, uma das mais antigas e autênticas do Algarve, este terreno encontra-se entre história, natureza e paisagens rurais, próximo do castelo do século XII, das ribeiras, fontes e colinas que caracterizam esta região.Inserido numa zona rural de baixa densidade, rodeado por paisagens abertas e pela serenidade do campo, este espaço convida a um estilo de vida mais equilibrado, onde a tranquilidade e o contacto com a natureza são protagonistas.A localização permite desfrutar da calma do interior sem abdicar da proximidade ao litoral, ficando a cerca de 20 minutos de Albufeira, Vilamoura, das praias e das marinas do Algarve.A vista aberta sobre o campo cria um ambiente verdadeiramente inspirador, perfeito para quem procura espaço, liberdade e qualidade de vida.Um lugar onde o tempo abranda e o Algarve revela a sua essência mais genuína.Uma propriedade que reúne localização, dimensão e comodidade, ideal tanto para residência permanente, segunda habitação ou investimento numa das regiões mais procuradas do sul de Portugal.Área total: 1.760 m² - Parcela urbana: 400 m²- Valor Unitário : 164,7 €/m²Descubra um espaço onde natureza, privacidade e proximidade ao mar se encontram de forma harmoniosa.+351 936 662 926 (rede móvel nacional) [email protected] Imobiliária, Mediação Imobiliária, Lda.Avenida Brasil 43, 12º Andar, 1700-062 LisboaLicença AMI nº 22503Pessoa Coletiva nº 517 239 345Seguro Responsabilidade Civil: Nº de Apólice RC65379424 Fidelidade Características: Arrecadação;Cisterna (L);Estacionamento Coberto;Muro;Vedação;Despensa;Árvores de Frutos;Orientação Solar;Terreno;Vista para Campo
AMI: 13558
Ref. Externa: 058631
Id: 1690426
Inicie sessão para guardar este imóvel e aceder à sua lista de favoritos em qualquer dispositivo.
210.000 €
Área de terreno : 5840 m²
Terreno com 5.840 m² em Ferreiras – Albufeira | Excelente oportunidade Apresentamos este amplo terreno rústico com 5.840 m², localizado na tranquila zona de Cortesões / Ferreiras, no concelho de Albufeira, uma das áreas mais procuradas do Algarve. Situado numa zona calma e rodeada por natureza, o terreno beneficia de bons acessos e proximidade à zona urbana, ficando a apenas poucos minutos do centro de Albufeira, das praias e dos principais acessos rodoviários. A área envolvente combina ambiente rural e proximidade à cidade, sendo ideal para quem procura um espaço de lazer, investimento ou atividade agrícola. A região apresenta uma forte valorização imobiliária devido à crescente procura por terrenos no Algarve. Características principais Área total: 5.840 m² Tipo: Prédio rústico Localização: Cortesões – Ferreiras Concelho: Albufeira Bons acessos Zona tranquila e com excelente potencial Terrenos com esta dimensão e localização são cada vez mais raros na zona de Albufeira, representando uma excelente oportunidade de investimento. Contacte para mais informações ou agendamento de visita. #ref: 841268
AMI: 11220
Ref. Externa: 841268
Id: 1690422
Inicie sessão para guardar este imóvel e aceder à sua lista de favoritos em qualquer dispositivo.
Área de terreno : 3480 m²
Terreno plano, de 3480m2, com viabiliade de construção de pequena moradia unifamiliar. Local muito calmo, próximo de Albufeira, com supermercados, cafés, multibanco, etc. Excelentes acessos. Agende já a sua visita!
AMI: 5717
Ref. Externa: NS2026.6
Id: 1690114
Inicie sessão para guardar este imóvel e aceder à sua lista de favoritos em qualquer dispositivo.
95.000 €
Área de terreno : 14513 m²
Terreno Rústico com Ruína e Vista Mar – 14.513 m² | Excelente Oportunidade Apresentamos este magnífico terreno rústico com 14.513 m², situado numa zona tranquila e com vista mar deslumbrante, ideal para quem procura um local com grande potencial e forte valorização futura. A propriedade dispõe de uma ampla área plana, perfeita para diferentes utilizações, e de uma zona ligeiramente inclinada que proporciona uma vista mar soberba e totalmente desafogada, criando um enquadramento natural único. No terreno encontra-se uma ruína antiga, sem volumetria atualmente definida, que poderá abrir portas a um projeto de reabilitação ou desenvolvimento. De momento, encontra-se em análise junto do Instituto Cadastral, aguardando resposta quanto à possibilidade de reconstrução e eventual ampliação da habitação que existiu anteriormente no local, mediante apresentação de projeto. Existe eletricidade nas proximidades e, embora não haja ligação de água, existe a possibilidade de realização de furo, solução comum na zona. O acesso ao terreno é possível, embora limitado para veículos pesados, garantindo ao mesmo tempo maior privacidade e tranquilidade. Oportunidade de investimento: Atualmente o terreno encontra-se disponível por 95.000 €, valor bastante competitivo até para terreno rústico com estas características. Caso a resposta do Instituto Cadastral seja favorável à possibilidade de construção, o valor passará para 159.000 €. Esta é uma excelente oportunidade para investidores ou para quem procura um projeto num local privilegiado com vista mar. Principais características: ● Área total: 14.513 m² ● Terreno rústico com ruína ● Vista mar ampla e desafogada ● Grande área plana + zona inclinada com vista ● Eletricidade nas proximidades ● Possibilidade de furo para água ● Acesso existente (limitado a veículos pesados) ● Potencial para reabilitação ou projeto futuro ● Preço atual: 95.000 € (sujeito a atualização após resposta oficial) Aproveite esta oportunidade única e marque já a sua visita. A MILLION GROUP surge da união de sinergias, da complementaridade e experiência dos seus fundadores. Que iniciaram a sua colaboração sob a matriz de uma marca internacional e decidem criar um novo conceito para o setor imobiliário. Sentiram os desafios com uma perspetiva mais universal e flexível na abordagem do mercado imobiliário, e a criação da marca MILLION GROUP vem responder a todas as necessidades. Era preciso dar corpo a uma filosofia e uma forma de estar no mercado, nova e diferenciadora. Os nossos valores CONFIANÇA, PROXIMIDADE, MATURIDADE, UNIVERSALIDADE. CONFIANÇA – Conquistada interna e externamente pelo rigor e a lealdade na relação que estabelecemos com os nossos Consultores, Parceiros, Clientes e Amigos. PROXIMIDADE – Uma relação sincera, com acompanhamento, apoio e disponibilidade permanente. MATURIDADE – Um património de experiência e conhecimento no mercado imobiliário. UNIVERSALIDADE – Baseada numa presença abrangente em todos os segmentos de mercado, a profissionalizar os nossos consultores com foco na satisfação dos nossos clientes. O que fazemos "Concretizamos sonhos" Uma verdadeira síntese emocional do que fazemos todos os dias. Conciliamos compradores e vendedores, promovemos negócios e apoiamos a sua concretização.
AMI: 22034
Ref. Externa: MGA00067
Id: 1685879
Inicie sessão para guardar este imóvel e aceder à sua lista de favoritos em qualquer dispositivo.
49.000 €
Área de terreno : 8825 m²
Terreno Rústico com 8.825 m2 – Excelente oportunidade Apresentamos este terreno rústico com 8.825 m2, situado em zona tranquila e de fácil acesso, ideal para quem procura espaço, natureza e potencial de valorização. O terreno apresenta ligeira inclinação, característica que favorece a drenagem natural e proporciona um enquadramento agradável na paisagem. Conta com bons acessos, permitindo chegar facilmente à propriedade durante todo o ano. Dispõe ainda de electricidade e água nas proximidades, o que representa uma mais-valia importante para quem pretende desenvolver um projecto agrícola, de lazer ou outro tipo de utilização compatível com a natureza rústica do terreno. A presença de habitações nas imediações contribui para um ambiente equilibrado entre tranquilidade e proximidade de vizinhança. Pela área generosa e pelo preço apresentado, este terreno representa uma excelente oportunidade de investimento. Principais características: ● Área total: 8.825 m2 ● Terreno rústico ● Bons acessos ● Ligeira inclinação ● Electricidade e água nas proximidades ● Habitações por perto ● Excelente potencial pelo valor Para mais informações ou agendamento de visita, não hesite em entrar em contacto. A MILLION GROUP surge da união de sinergias, da complementaridade e experiência dos seus fundadores. Que iniciaram a sua colaboração sob a matriz de uma marca internacional e decidem criar um novo conceito para o setor imobiliário. Sentiram os desafios com uma perspetiva mais universal e flexível na abordagem do mercado imobiliário, e a criação da marca MILLION GROUP vem responder a todas as necessidades. Era preciso dar corpo a uma filosofia e uma forma de estar no mercado, nova e diferenciadora. Os nossos valores CONFIANÇA, PROXIMIDADE, MATURIDADE, UNIVERSALIDADE. CONFIANÇA – Conquistada interna e externamente pelo rigor e a lealdade na relação que estabelecemos com os nossos Consultores, Parceiros, Clientes e Amigos. PROXIMIDADE – Uma relação sincera, com acompanhamento, apoio e disponibilidade permanente. MATURIDADE – Um património de experiência e conhecimento no mercado imobiliário. UNIVERSALIDADE – Baseada numa presença abrangente em todos os segmentos de mercado, a profissionalizar os nossos consultores com foco na satisfação dos nossos clientes. O que fazemos "Concretizamos sonhos" Uma verdadeira síntese emocional do que fazemos todos os dias. Conciliamos compradores e vendedores, promovemos negócios e apoiamos a sua concretização.
AMI: 22034
Ref. Externa: MGA00068
Id: 1685807
Inicie sessão para guardar este imóvel e aceder à sua lista de favoritos em qualquer dispositivo.
290.000 €
Área de terreno : 7480 m²
Entre a serenidade do campo e a proximidade das melhores praias do Algarve, este terreno exclusivo oferece a oportunidade ideal para construir uma moradia de sonho com total privacidade. Com 7.480 m² de área e duas frentes de acesso, o lote conta com projeto aprovado para uma moradia térrea T5 de arquitetura contemporânea, com 299,95 m² de área bruta de construção e piscina privada, pensado para proporcionar conforto, funcionalidade e integração com a natureza envolvente. A localização é particularmente estratégica: situa-se a cerca de 20 minutos de Albufeira e a 35 minutos do Aeroporto Internacional de Faro, permitindo usufruir facilmente de praias de referência, gastronomia, comércio e serviços, sem abdicar da tranquilidade de um ambiente rural. Destaques do imóvel : Projeto aprovado: moradia térrea T5 com piscina e amplas áreas exteriores. Área generosa: terreno com 7.480 m², garantindo privacidade e espaço. Duas frentes de terreno: maior flexibilidade de acessos e implantação da construção. Ambiente tranquilo: envolvente natural, ideal para quem valoriza qualidade de vida. Excelente potencial de valorização: dimensão, localização e projeto já aprovado. Este terreno é ideal tanto para residência permanente como para segunda habitação de prestígio, oferecendo o cenário perfeito para um estilo de vida sofisticado, tranquilo e em plena ligação com a natureza algarvia. Contacte-nos para mais informações ou para agendar a sua visita. A nossa empresa auxilia em todos os setores como por exemplo, em como obter as melhores taxas de câmbio, na abertura de conta e na documentação relativa aos empréstimos bancários, na realização de obras de melhoramento, etc.
AMI: 15969
Ref. Externa: TP884
Id: 1678515
Inicie sessão para guardar este imóvel e aceder à sua lista de favoritos em qualquer dispositivo.
210.000 €
Área de terreno : 5800 m²
Albufeira, Ferreiras! Terreno plano, com possibilidade futura de construção de moradia ou armazém. O terreno está dentro de zona Agicola RAN. No entanto encontra-se ao lado da zona urbana (cola com zona urbana) sendo um terreno com grande potencial de valorização. Ideal para investimento. Acesso directo à EN 125. Verifique no local as condições.
AMI: 5717
Ref. Externa: NS2026.05
Id: 1676433
Inicie sessão para guardar este imóvel e aceder à sua lista de favoritos em qualquer dispositivo.
150.000 €
Área de terreno : 4240 m²
Descubra oequilíbrio perfeito entre natureza, privacidade e proximidade no litoralalgarvio.Localizadona freguesia de Paderne, uma das mais antigas da região do Algarve,concelho de Albufeira, este terreno insere-se numa zona rural de baixadensidade, conhecida pelas suas paisagens e autenticidade. A apenas cercade 15 km de Albufeira e deVilamoura (15 minutos de carro), permite disfrutar comtranquilidade do campo sem abdicar das praias, marinas e serviços do Algarve.Com água,eletricidade e acesso alcatroado, oferece condições raras para um terrenorústico. Um fator cada vez mais valorizado por quem procura investir ou criarum refúgio longe da pressão urbana.A vistaaberta para o campo proporciona um ambiente sereno, ideal para quemprivilegia qualidade de vida, contacto com a natureza e um ritmo maisequilibrado.Umaoportunidade sólida para investimento ou para quem sonha com um espaçoautêntico no Algarve.Transformeeste cenário natural num projeto à altura da sua visão.AT4240m2 / VU: 28,69m2 [email protected]+351 936 662 926 (chamada para rede móvel nacional)Predimed Imobiliária, Mediação Imobiliária, Lda.Avenida Brasil 43, 12º Andar, 1700-062 LisboaLicença AMI nº 22503Pessoa Coletiva nº 517 239 345Seguro Responsabilidade Civil: Nº de Apólice RC65379424 Fidelidade Características: Horta-Jardim;Árvores de Frutos;Campo;Espaços Verdes;Terreno;Vista para Montanha
AMI: 13558
Ref. Externa: 058117
Id: 1674002
Inicie sessão para guardar este imóvel e aceder à sua lista de favoritos em qualquer dispositivo.
42.000 €
Área de terreno : 2920 m²
RESERVADOTERRENO RUSTICO EM VALE DA URSA COM 2.920 M2Predimed Imobiliária, Mediação Imobiliária, Lda.Avenida Brasil 43, 12º Andar, 1700-062 LisboaLicença AMI nº 22503Pessoa Coletiva nº 517 239 345Seguro Responsabilidade Civil: Nº de Apólice RC65379424 Fidelidade Características: Árvores de Frutos;Campo;Espaços Verdes;Terreno;Vista para Campo
AMI: 13558
Ref. Externa: 058642
Id: 1666240
Inicie sessão para guardar este imóvel e aceder à sua lista de favoritos em qualquer dispositivo.
3.250.000 €
Área de terreno : 9725 m²
Inserido numa das zonas mais promissoras do Algarve, este exclusivo terreno com 9.725 m² apresenta-se como uma oportunidade rara para investimento de elevado padrão, já com projeto aprovado para a criação de um moderno Sports & Family Club de conceito premium. Trata-se de um ativo imobiliário diferenciador que combina dimensão, localização estratégica e um projeto arquitetónico contemporâneo pensado para integração harmoniosa com a paisagem natural envolvente, privilegiando sustentabilidade, funcionalidade e valorização a longo prazo. O projeto aprovado contempla uma área de construção de 620 m², incluindo edifício de apoio com cave técnica e cobertura acessível, concebido para proporcionar uma experiência completa de lazer, desporto e bem-estar para todas as idades. A arquitetura privilegia a relação entre espaços interiores e exteriores, com soluções passivas de proteção solar e uma linguagem moderna orientada para o conforto e eficiência, elevando o posicionamento do empreendimento para um segmento claramente premium. A proposta urbanística inclui sete campos de padel, cinco cobertos e dois exteriores, garantindo operação anual em diferentes condições climatéricas, reforçando o potencial de exploração comercial contínua. Complementarmente, o projeto integra piscina, mini-golfe, parque infantil interior e exterior, áreas de jogos e amplas zonas ajardinadas com vegetação natural e soluções permeáveis, criando um ambiente exclusivo, familiar e sustentável, altamente valorizado no mercado turístico internacional. O edifício principal foi cuidadosamente programado para suportar uma operação de clube de alto nível, incorporando receção, áreas administrativas, sala multiusos destinada a atividades como yoga, dança ou animação infantil, snack-bar com zona de preparação de refeições ligeiras, lounge, balneários completos, sala de aquecimento desportivo e uma cobertura panorâmica com zonas de estar e observação das atividades desportivas. O estacionamento privativo com 20 lugares, incluindo espaços para mobilidade reduzida, assegura conforto e funcionalidade aos utilizadores. Localizado numa área de forte crescimento turístico e residencial, próximo de resorts de luxo, campos de golfe, praias de referência e principais acessos do Algarve, este terreno beneficia de uma envolvente estratégica que potencia a valorização futura e a atratividade para operadores internacionais de desporto, lazer e wellness. A combinação entre projeto aprovado, conceito inovador e dimensão do lote traduz-se numa redução significativa de risco e tempo de desenvolvimento, tornando esta propriedade especialmente apelativa para investidores, promotores imobiliários ou marcas ligadas ao segmento premium do turismo desportivo. Mais do que um simples terreno, esta é uma oportunidade única para desenvolver um empreendimento distintivo no Algarve, alinhado com as tendências globais de turismo ativo, bem-estar e experiências familiares de luxo, com elevado potencial de rentabilidade e posicionamento exclusivo no mercado. Hometown - Compromisso, Transparência e Excelência Imobiliária Desde 2018, a Hometown tem vindo a consolidar-se como uma referência no setor imobiliário, destacando-se pelo crescimento sustentado e pela confiança dos nossos clientes. A nossa equipa atua com profissionalismo e dedicação, mantendo um ambiente de trabalho baseado na cooperação, transparência e ética. Porque escolher a Hometown? Acompanhamento personalizado e próximo, desde a primeira visita até ao pós-venda Equipa experiente e focada em oferecer soluções adaptadas às suas necessidades Reconhecimento no setor, com dois prémios imobiliários conquistados em 2024 Compromisso inabalável com a satisfação dos nossos clientes Na Hometown, não vendemos apenas imóveis criamos relações de confiança duradouras. Contacte-nos e descubra um serviço imobiliário à medida das suas expectativas
AMI: 16926
Ref. Externa: HTP-1087
Id: 1659678
Inicie sessão para guardar este imóvel e aceder à sua lista de favoritos em qualquer dispositivo.
Área de terreno : 526 m²
Oportunidade Exclusiva de Investimento Esta é uma excelente oportunidade para adquirir um dos últimos lotes de terreno disponíveis no coração da cidade de Albufeira, seja para construir a sua casa de sonho ou para investir num ativo imobiliário com custos de manutenção reduzidos e um elevado potencial de valorização. Este loteamento de baixa densidade conta com apenas 26 lotes exclusivos destinados a habitação, garantindo privacidade e uma excelente qualidade de vida. O terreno dispõe de todas as infraestruturas essenciais, incluindo ligação à rede elétrica, saneamento e águas pluviais, além de acessos amplos e bem conservados. A localização privilegiada coloca-o a poucos passos de restaurantes, supermercados, hospitais e transportes públicos, proporcionando um dia a dia prático e conveniente. As magníficas praias algarvias encontram-se a apenas 5 minutos de carro, enquanto o Aeroporto Internacional de Faro está a 25 minutos de distância. Além disso, os lotes disponíveis variam entre 500 m² e 737 m², com áreas de construção que vão de 300 m² a 530 m², oferecendo soluções versáteis para diferentes tipos de projetos arquitetônicos. Investimento Seguro e Valorização Garantida O mercado imobiliário em Albufeira mantém-se sólido e em crescimento constante, com uma procura crescente por terrenos bem localizados. Este investimento oferece baixo risco e alto retorno, sendo ideal tanto para construção própria como para revenda ou arrendamento. Garanta já o seu lote e beneficie de uma das últimas oportunidades de investimento nesta localização estratégica. Não perca esta chance! Contacte-nos para mais informações e visitas ao local.
AMI: 9973
Ref. Externa: CB-01
Id: 1655295
Inicie sessão para guardar este imóvel e aceder à sua lista de favoritos em qualquer dispositivo.
Área de terreno : 503 m²
Últimos Lotes Disponíveis no Centro de Albufeira - Oportunidade Exclusiva de Investimento Esta é uma excelente oportunidade para adquirir um dos últimos lotes de terreno disponíveis no coração da cidade de Albufeira, seja para construir a sua casa de sonho ou para investir num ativo imobiliário com custos de manutenção reduzidos e um elevado potencial de valorização. Este loteamento de baixa densidade conta com apenas 26 lotes exclusivos destinados a habitação, garantindo privacidade e uma excelente qualidade de vida. O terreno dispõe de todas as infraestruturas essenciais, incluindo ligação à rede elétrica, saneamento e águas pluviais, além de acessos amplos e bem conservados. A localização privilegiada coloca-o a poucos passos de restaurantes, supermercados, hospitais e transportes públicos, proporcionando um dia a dia prático e conveniente. As magníficas praias algarvias encontram-se a apenas 5 minutos de carro, enquanto o Aeroporto Internacional de Faro está a 25 minutos de distância. o) Além disso, os lotes disponíveis variam entre 500 m² e 737 m², com áreas de construção que vão de 300 m² a 530 m², oferecendo soluções versáteis para diferentes tipos de projetos arquitetônicos. Investimento Seguro e Valorização Garantida O mercado imobiliário em Albufeira mantém-se sólido e em crescimento constante, com uma procura crescente por terrenos bem localizados. Este investimento oferece baixo risco e alto retorno, sendo ideal tanto para construção própria como para revenda ou arrendamento. Garanta já o seu lote e beneficie de uma das últimas oportunidades de investimento nesta localização estratégica. Não perca esta chance! Contacte-nos para mais informações e visitas ao local.
AMI: 9973
Ref. Externa: CB-02
Id: 1655294
Inicie sessão para guardar este imóvel e aceder à sua lista de favoritos em qualquer dispositivo.
250.000 €
Área de terreno : 5840 m²
Oportunidade Única - Terreno rustico em Ferreiras, Pronto para o Seu Projeto de Sonho! Descrição do Terreno: - Tipo: Terreno Rustico - Área do Terreno: 5840 m² - Localização: Ferreiras - Exposição Solar: Sul Características Especiais: - Viabilidade de Acesso: Ligação às redes de água e eletricidade encostado ao terreno. - Condições Naturais: Exposição solar privilegiada, favorecendo o crescimento de culturas sazonais - Área Espaçosa: Terreno generoso que oferece inúmeras possibilidades de utilização - Potencial de Desenvolvimento: Ideal para agricultura, horticultura, vinicultura ou até mesmo para projeto residencial, sujeito a aprovação legal Localização e Proximidade: - Situado na pacata região de Ferreiras - Ambiente Rural: Desfrute da tranquilidade e da atmosfera campestre - Acesso Fácil: Boa acessibilidade por estrada - Próximo de Necessidades Básicas: Supermercados, escolas, centros médicos a uma curta distância de carro - Proximidade da Natureza: Aprecie a beleza natural envolvente e respire ar puro Este terreno oferece-lhe a oportunidade de criar e desenvolver o projeto dos seus sonhos. Seja para cultivo agrícola, investimento futuro ou construção residencial, este terreno possui um potencial tremendo para quem procura um espaço versátil e com infinitas possibilidades. Não perca a oportunidade de adquirir este terreno especial em Ferreiras. Contacte-nos hoje mesmo para mais informações e agende a sua visita. Transforme a sua visão em realidade neste terreno único! #ref: 823082
AMI: 11220
Ref. Externa: 823082
Id: 1652052
Inicie sessão para guardar este imóvel e aceder à sua lista de favoritos em qualquer dispositivo.
Área de terreno : 15129 m²
Um projeto inovador que redefine o conceito de hub desportivo e de bem-estar no Algarve. Estrategicamente localizado em Correeira / Areias de S. João, integra infraestruturas de última geração com um modelo de negócio sólido, diversificado e escalável. Com a viabilidade urbanística já validada, o ativo mitiga os principais riscos de desenvolvimento, oferecendo aos investidores institucionais uma proposta rara no mercado: receitas recorrentes e previsíveis, múltiplas alavancas de monetização, crescimento sustentável ao longo do ciclo e um posicionamento distintivo num segmento premium com procura comprovada. Mais do que um investimento imobiliário, trata-se de uma plataforma integrada ao serviço de residentes, turistas e empresas, desenhada para reduzir a sazonalidade e assegurar resiliência operacional num dos destinos mais dinâmicos da Europa.
AMI: 9973
Ref. Externa: SÒL_2657
Id: 1645334
Inicie sessão para guardar este imóvel e aceder à sua lista de favoritos em qualquer dispositivo.
500.000 €
Área de terreno : 6440 m²
Num enquadramento onde a autenticidade Algarvia se alia à crescente procura por projetos residenciais de baixa densidade, apresenta-se este terreno com 6.440 m², inserido numa zona consolidada de edificação dispersa.Com viabilidade construtiva e histórico de aprovação para 12 moradias T3, esta propriedade oferece uma base consistente para o desenvolvimento de um projeto residencial estruturado e alinhado com as atuais tendências do mercado.Dispõe de infraestruturas disponíveis no local: água, eletricidade, rede de esgotos e acesso alcatroado, fatores que simplificam o planeamento e potenciam eficiência na execução.Localizado a cerca de 12 km de Albufeira, Vilamoura e das praias, e a aproximadamente 25 km do Aeroporto Internacional de Faro, beneficia de um equilíbrio estratégico entre tranquilidade, enquadramento natural e proximidade aos principais polos turísticos do Algarve. VU: 77,63 €/m²Uma oportunidade para investidores e promotores que procuram localização, viabilidade e enquadramento adequados para um projeto diferenciador.Para informação detalhada sobre parâmetros urbanísticos e potencial de desenvolvimento, entre em contacto:[email protected] +351 936 662 926 (chamada para rede móvel nacional)Predimed Imobiliária, Mediação Imobiliária, Lda.Avenida Brasil 43, 12º Andar, 1700-062 LisboaLicença AMI nº 22503Pessoa Coletiva nº 517 239 345Seguro Responsabilidade Civil: Nº de Apólice RC65379424 Fidelidade Características: Campo;Orientação Solar
AMI: 13558
Ref. Externa: 058205
Id: 1643851
Inicie sessão para guardar este imóvel e aceder à sua lista de favoritos em qualquer dispositivo.
1.400.000 €
Área de terreno : 5400 m²
Oportunidade de Investimento Imobiliário - Terreno em Localização Prime Terreno com localização excecional numa das zonas mais valorizadas do concelho, reunindo condições únicas para o desenvolvimento de projetos imobiliários com elevado potencial de retorno. Inserido numa área urbana consolidada, dispõe de infraestruturas completas, acessos estabelecidos e enquadramento urbanístico favorável. Distingue-se pela sua escassez numa zona de forte valorização, oferecendo elevada flexibilidade para diferentes modelos de negócio, desde projetos residenciais a empreendimentos turísticos ou soluções mistas. Os índices urbanísticos permitem o desenvolvimento de projetos economicamente rentáveis, com possibilidade de execução faseada, otimizando o risco e o capital investido. A envolvente apresenta um forte apelo turístico e residencial, sustentado pela proximidade imediata ao centro da cidade, a serviços, comércio e principais acessos, bem como a Praia de Santa Eulália, acessíveis a poucos minutos a pé. Usos admitidos (UOPG 01 e 03), Habitação, Empreendimentos turísticos, Comércio e serviços, Restauração e bebidas, Equipamentos e espaços verdes. Trata-se de uma oportunidade sólida para investidores que procuram criação de valor, liquidez futura e exposição a uma das localizações com maior procura e potencial de valorização do mercado. REF. 4476
AMI: 6795
Ref. Externa: 4476
Id: 1638286
Inicie sessão para guardar este imóvel e aceder à sua lista de favoritos em qualquer dispositivo.
4.640.000 €
Área de terreno : 9540 m²
Terreno de 9.540m2 no topo de uma colina com vistas deslumbrantes sobre o mar, numa zona semi-rural tranquila, apenas a uma curta distância de praias maravilhosas como São Rafael, Evaristo e Galé. 5 minutos de carro da cidade velha de Albufeira e do centro, onde temos todo o tipo de comércio disponiviel, hospital privado, centro de saude, bancos, escolas, restaurantes e bares, etc Tem o PIP aprovado para a construção de até 29 moradias T3 e T4 com piscina privativa, numa área de construção de 5.494m2, fazendo deste lote uma oportunidade única de investimento. Não perca esta oportunidade e agende a sua visita!
AMI: 16926
Ref. Externa: HTP-0839
Id: 1630480
Inicie sessão para guardar este imóvel e aceder à sua lista de favoritos em qualquer dispositivo.
Estes agentes são especialistas nesta zona:
Inicie sessão para ocultar este imóvel das suas pesquisas e manter a sua lista de resultados organizada.
© Copyright 2023 | CASACERTA. All rights reserved
Guardar favoritos
Este imóvel foi guardados nos seus favoritos com sucesso.
Para poder guardar pesquisa deverá ter a sua sessão iniciada.
Caso não tenha uma conta, deverá criar uma.
A sua pesquisa foi guardada com sucesso!
Este site utiliza cookies. Ao navegar no site estará a consentir a sua utilização.
Para mais informações sobre os cookies pode consultar a
política de privacidade.