Lista
Comprar
Arrendar
267.500 €
Área de terreno : 600 m²
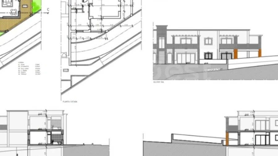
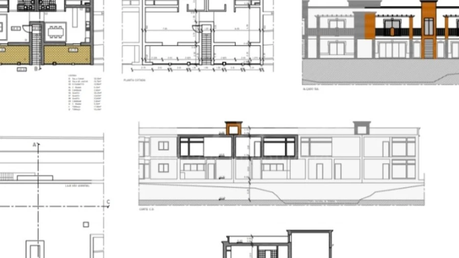
Excelente oportunidade de adquirir terreno urbano com projeto aprovado para moradia T3 de dois pisos com piscina, pronto a iniciar construção.. . Localizado na Urbanização da Belavista – Parchal, em zona residencial consolidada, este lote permite avançar imediatamente para obra, eliminando prazos e incertezas de licenciamento.. A 15min de Ferragudo. . Características:. . Área do terreno: 600 m2. . Projeto aprovado para moradia T3 (2 pisos). . Área de implantação: até 144 m2. . Área bruta de construção: 288 m2. . Piscina e zona exterior de lazer. . Estacionamento/garagem. . Uso urbano – habitação. . A moradia foi projetada para oferecer conforto, funcionalidade e excelente aproveitamento de espaço, sendo ideal para habitação própria ou investimento com elevado potencial de valorização.. . Projeto aprovado – pronto a construir. Redução de custos e tempo. Tipologia muito procurada (T3+1). Excelente enquadramento residencial. . Para mais informações ou consulta do projeto completo, entre em contacto.
AMI: 21448
Ref. Externa: 00719_2026/12048
Id: 1651844
Inicie sessão para guardar este imóvel e aceder à sua lista de favoritos em qualquer dispositivo.
158.000 €
Área de terreno : 360 m²
Descubra este lote de terreno residencial com 360m², situado numa tranquila estrada sem saída na zona de Bela Vista. Com uma topografia totalmente plana, oferece ótimas condições para construção da sua futura moradia. O terreno conta com todas as infraestruturas essenciais: água, luz e esgotos, proporcionando mais comodidade no processo de edificação. Destaca-se pela excelente exposição solar e localização privilegiada, a poucos minutos de escolas, supermercados, transportes públicos e praias. Uma oportunidade rara numa zona consolidada e muito procurada para habitação. Ideal para construir a sua moradia de sonho com tranquilidade e proximidade a tudo. Agende visita a este lote terreno residencial em Bela Vista! Refª LT-7039
AMI: 9205
Ref. Externa: LT-7039
Id: 1636058
Inicie sessão para guardar este imóvel e aceder à sua lista de favoritos em qualquer dispositivo.
225.000 €
Área de terreno : 154 m²
Oportunidade de Terreno para Construção no Pateiro/Lagoa. Inserido em Nova Urbanização de Qualidade em Desenvolvimento.Área do Terreno 157 m2Área Bruta de Construção 460 m2Possibilidade de Construção de 2 Apartamentos T 1 e 2 Apartamentos T 2 com 4 Parqueamentos.Venha Visitar.Predimed Imobiliária, Mediação Imobiliária, Lda.Avenida Brasil 43, 12º Andar, 1700-062 LisboaLicença AMI nº 22503Pessoa Coletiva nº 517 239 345Seguro Responsabilidade Civil: Nº de Apólice RC65379424 Fidelidade Características: Espaços Verdes;Terreno
AMI: 13558
Ref. Externa: 057863
Id: 1580370
Inicie sessão para guardar este imóvel e aceder à sua lista de favoritos em qualquer dispositivo.
2.800.000 €
Área de terreno : 176520 m²
Grande quinta típica algarvia localizada a 5 minutos do mar. Este imóvel trata-se de uma parcela de terreno com 17 ha, onde estão implantadas 5 ruínas, zonas com eucaliptos, pinhal e algumas árvores centenárias. O terreno é praticamente plano e tem bastante exposição solar com orientação a sul. Tem muro de vedação em todo o perímetro e vários portões de entrada. Esta quinta tem inúmeras possibilidades de investimento que podem passar por Hotelaria, Parque-Aventura, centro de Hipismo, campo de golfe e outros. (Esta informação esta sujeita a alterações e requer consulta nas entidades competentes). A tranquilidade do local e a sua localização de excelência faz deste este imóvel um investimento com muita capacidade de rentabilização. Marque a sua visita!
AMI: 15990
Ref. Externa: 06-415/1
Id: 1577364
Inicie sessão para guardar este imóvel e aceder à sua lista de favoritos em qualquer dispositivo.
165.000 €
Área de terreno : 420 m²
Terreno urbano no AlgarveLote terreno para construção de moradia unifamiliarImagine desenvolver a base onde a sua família vai crescer, brincar, estudar e criar memórias. Apresentamos um lote plano na tranquila Urbanização da Bela Vista, Parchal — um espaço pensado para desenhar a moradia familiar que sempre idealizou.Capacidade construtiva: Lote com 420,00 m², perfeitamente aproveitável e com frente aproximada de 13,00 m; Implantação máxima por piso: 144,00 m²; capacidade construtiva total: 288,00 m²; Possibilidade de dois pisos (144,00 m² cada) mais cave com área da implantação — espaço mais que suficiente para salas amplas, quartos com closet, área de estudo, escritório e garagem/cave técnica.Porquê este terreno é ideal para si:Este lote combina dimensões inteligentes com regras de implantação que lhe permitem criar áreas sociais amplas e quartos generosos — o equilíbrio ideal entre privacidade e espaços partilhados. Um terreno plano com 13 metros de frente facilita o projecto arquitetónico e reduz custos de terraplenagem; traduz-se em rapidez de obra e menos surpresas para quem quer entrar em casa no menor tempo possível.Inserido numa urbanização estritamente residencial e composta por moradias, o lote oferece a tranquilidade de um bairro familiar, onde as crianças podem crescer com segurança e vizinhança estável. Para pais que valorizam proximidade às rotinas do dia a dia: a menos de 5 minutos de escolas e da encantadora vila de Ferragudo — uma vantagem que potencia qualidade de vida e valorização do investimento — e a menos de 10 minutos das praias e do centro de Portimão ou Lagoa. Acesso rápido à via rápida e à A22 garante deslocações eficazes para o trabalho e para escapadinhas de fim-de-semana.A vida no AlgarveViver no Algarve é escolher um clima ameno, sol quase todo o ano, praias de excelência e um estilo de vida ao ar livre que favorece atividades em família, desde passeios à beira-mar a fins de tarde em esplanadas seguras. Estas qualidades trazem não só bem-estar como uma procura constante por habitação de qualidade — um factor que ajuda a preservar e a valorizar o seu investimento ao longo do tempo.O terreno ideal para quem não aceita compromissosPense em: um projecto arquitetónico que privilegie uma cozinha de sonho com ligação a um jardim privado, uma sala que se abra para um terraço sul, quartos ao nível do sossego à face poente e um espaço para garagem, arrumos ou área de lazer. Com 288 m² de construção possível, tem margem para criar áreas diferenciadas para crianças, zona de estudo, e até um espaço de teletrabalho que privilegie a conciliação familiar. A configuração permite ainda incluir uma piscina discreta no jardim, sem sacrificar a zona de jardim para os fins de semana em família.Não se trata apenas de comprar um lote — trata-se de escolher o palco onde se constrói uma vida. Um lote pronto a desenhar a sua moradia, numa urbanização de moradias, perto de escolas, a um passo de Ferragudo e das praias, com acessos rápidos para todo o Algarve. Se procura qualidade de vida sem abrir mão da praticidade, este é um dos terrenos que vale a pena ver com atenção.Quer ver o lugar ao vivo?Marque já a sua visita — venha sentir a luz sobre o lote, ver a orientação do sol e imaginar o projecto.
AMI: 18021
Ref. Externa: DHA0142
Id: 1575891
Inicie sessão para guardar este imóvel e aceder à sua lista de favoritos em qualquer dispositivo.
2.500.000 €
Área de terreno : 87900 m²
Quinta Exclusiva com 9 Hectares Junto ao Rio Arade – Lagoa, Algarve. . Apresentamos uma oportunidade rara no coração do Algarve: uma quinta com cerca de 9 hectares, situada num vale maravilhoso que acompanha o curso do Rio Arade, proporcionando um cenário natural absolutamente único e envolvente.. . A propriedade inclui um imóvel com 189 m2, atualmente para remodelar, com possibilidade de ampliação até 500 m2 de construção — ideal para criar a casa de sonho ou desenvolver um projeto turístico/rural de grande impacto.. . Rodeada pela serenidade da natureza, esta quinta beneficia de vistas panorâmicas sobre o vale e o rio, oferecendo privacidade, tranquilidade e um ambiente perfeito para quem procura viver em harmonia com o campo.. . Localizada muito perto da cidade histórica de Lagoa, com fácil acesso às praias e a Portimão, esta é uma zona que junta o melhor dos dois mundos: natureza e comodidade.. . . ---. . Destaques da Propriedade:. . Área total: . 9 hectares. . Habitação existente: 189 m2 para recuperar. . Potencial construtivo até 500 m2. . Vista ampla sobre o Rio Arade e o vale envolvente. . Ambiente 100% natural e privado. . Fortíssimo potencial agrícola, habitacional ou turístico. . A poucos minutos de Lagoa, Portimão e das melhores praias do Algarve. . Para mais informações ligue Bruno Jeronimo 928030899 (chamada para rede móvel nacional)
AMI: 21448
Ref. Externa: 00681_2025/12048
Id: 1515321
Inicie sessão para guardar este imóvel e aceder à sua lista de favoritos em qualquer dispositivo.
Área de terreno : 136 m²
Já pensou em construir a sua casa de sonho, mas não encontra um lote de terreno urbano a preço acessível? Então aqui está a opção certa para si. Lote de terreno urbano ideal para construção da sua moradia geminada com uma área de 136m2, com possibilidade de construir até 160m2 (80m2 em cada piso). Este terreno localizado no Parchal, numa zona tranquila e em constante desenvolvimento no concelho de Lagoa, oferece o equilíbrio perfeito entre proximidade urbana e ambiente residencial. Com boa exposição solar, todo virado a sul e acesso facilitado, o terreno encontra-se a poucos minutos das belas praias de Ferragudo. A área envolvente dispõe de serviços essenciais como supermercados, escolas, centro de saúde, estação de comboios e restaurantes típicos. Excelente oportunidade de investimento no coração do Algarve!
AMI: 23350
Ref. Externa: KWPT-024839
Id: 1495503
Inicie sessão para guardar este imóvel e aceder à sua lista de favoritos em qualquer dispositivo.
Área de terreno : 180 m²
Terreno urbano 180m2 |Moradia | Zona Residencial | Mexilhoeira da Carregação| Lagoa | Algarve | Excelente oportunidade para construir a sua moradia de sonho, num lote inserido em zona de moradias unifamiliares e pequeno comércio local, com ótimos acessos, próximo de escolas, serviços, cafés, transportes públicos e a poucos minutos do centro de Lagoa, Portimão e das praias de Ferragudo. Área total do terreno: 180 m² Área de implantação do edifício: 106 m² Área bruta de construção: 267 m² Área bruta dependente: 106 m² Viabilidade: Moradia unifamiliar com 2 pisos e anexo/garagem Realizamos visitas online aos imóveis em tempo real através de videochamada (WhatsApp/Messenger) e/ou videoconferência (Skype/Zoom). ... E já sabe os melhores negócios são com a BP ALGARVE REALTY.
AMI: 15015
Ref. Externa: BP301025
Id: 1443147
Inicie sessão para guardar este imóvel e aceder à sua lista de favoritos em qualquer dispositivo.
225.000 €
Área de terreno : 1011 m²
Excelente oportunidade de investimento na dinâmica zona industrial do Pateiro, Parchal. Este espaçoso lote de 1.011 m², com possibilidade de construção de 325 m² de acordo com o Alvará de Loteamento, oferece amplo espaço para atividades de, armazenagem, logística ou outros usos comerciais. Situado estrategicamente com bom acesso rodoviário, o imóvel localiza-se numa zona industrial bem conectada, sendo ideal para empresas que procuram estabelecer-se ou expandir as suas operações na região do Algarve. Seja investidor ou empresário, esta propriedade oferece flexibilidade, espaço e uma base sólida para o crescimento futuro. *As características/equipamentos mencionados nesta descrição estão sujeitos a verificação e acordo entre os vendedores e compradores. A Fine & Country Algarve faz parte de uma rede internacional de escritórios F&C em mais de 300 localizações em todo o mundo, temos quatro escritórios no Algarve cobrindo toda a região de leste a oeste. Trabalhamos igualmente em estreita colaboração com os escritórios da Fine & Country noutros locais de Portugal e a nível internacional. No Algarve, a Fine & Country dispõe de um vasto portefólio de imóveis para venda e de uma equipa dedicada de profissionais com um profundo conhecimento do mercado.
AMI: 9767
Ref. Externa: FC1054VCL
Id: 1360324
Inicie sessão para guardar este imóvel e aceder à sua lista de favoritos em qualquer dispositivo.
1.450.000 €
Área de terreno : 4690 m²
OPORTUNIDADE FLEXÍVEL DE INVESTIMENTO NO ALGARVE - TERRENO COM POTENCIAL PARA HOTEL DE TURISMO RURAL COM 15 MORADIAS, COM VISTA MAR E ENVOLVÊNCIA NATURAL Apresenta-se uma oportunidade rara e versátil para investidores exigentes: terreno com 4.690 m² localizado em Estômbar, no Sítio das Seixosas, com vista para o mar e inserido num ambiente de grande beleza natural. Este lote oferece um plano de desenvolvimento excelente - um projeto para um hotel de turismo rural com 15 moradias geminadas fazendo assim 39 quartos. A localização é um dos principais trunfos deste terreno: numa zona elevada e serena, rodeada pela natureza, mas com bons acessos às principais vias do Algarve, praias, campos de golfe, vilas históricas e atrações turísticas. A vista para o mar e a tranquilidade da envolvente proporcionam o cenário perfeito para um projeto sustentável e diferenciado. O conceito de turismo de natureza, bem-estar e autenticidade está em forte crescimento, e este terreno oferece as condições ideais para responder a essa procura. Ao mesmo tempo, a opção habitacional permite atrair o segmento de segunda residência, residencial permanente ou investimento em arrendamento de longa duração. Seja para desenvolver um hotel rural, seja para criar um conjunto residencial integrado na paisagem, este terreno adapta-se a diferentes estratégias de investimento, todas com elevado potencial de valorização. Se procura um terreno com versatilidade, vista mar, localização tranquila e contexto natural privilegiado, esta é a oportunidade certa. Para mais informações ou para marcar uma visita, seja bem-vindo(a) a contactar-nos!. Teremos todo o gosto em apresentar-lhe este projeto promissor no coração do Algarve.
AMI: 5717
Ref. Externa: AD2885
Id: 1356802
Inicie sessão para guardar este imóvel e aceder à sua lista de favoritos em qualquer dispositivo.
115.000 €
Área de terreno : 235 m²
OPORTUNIDADE DE CONSTRUÇÃO EM ZONA RESIDENCIAL TRANQUILA - TERRENO PARA MORADIA GEMINADA / APARTAMENTOS NA URBANIZAÇÃO QUINTA DE SÃO PEDRO Apresenta-se uma excelente oportunidade para quem procura construir uma moradia à sua medida ou apartamentos numa zona calma e com qualidade de vida. Este terreno, com 235 m², está localizado na Urbanização Quinta de São Pedro, uma área consolidada, tranquila e com bons acessos. Com viabilidade para construção de uma moradia geminada ou apartamentos, este lote oferece a possibilidade de criar uma habitação moderna, funcional e adaptada ao seu gosto e necessidades, seja para residência permanente, casa de férias ou investimento para arrendamento. O terreno apresenta uma declinação natural para Sudeste, o que poderá ser vantajoso para a integração paisagística, criação de pisos semi-enterrados, maior privacidade ou até mesmo para beneficiar de vistas mais abertas, dependendo do projeto arquitetónico a desenvolver. A urbanização é composta maioritariamente por moradias e pequenas unidades habitacionais, garantindo um ambiente familiar e sossegado, ideal para quem valoriza privacidade e tranquilidade, sem abdicar da proximidade a serviços, escolas, comércios e principais vias de acesso. Se procura um terreno com localização prática, bom enquadramento urbano, potencial de valorização e liberdade para construir o seu próprio projeto, esta é uma escolha segura e inteligente. Para mais informações ou para marcar uma visita, seja bem-vindo(a) a contactar-nos!. Teremos todo o gosto em apresentar-lhe este projeto promissor no coração do Algarve.
AMI: 5717
Ref. Externa: AD2927
Id: 1355116
Inicie sessão para guardar este imóvel e aceder à sua lista de favoritos em qualquer dispositivo.
115.000 €
Área de terreno : 155 m²
O terreno urbano tem uma área de 155 m2. Localizado em Parchal, zona habitacional e perto de todos os serviços, tais como, supermercados, centro comercial, escolas e restauração, este terreno urbano permite construção destinado a comercio ou serviços e hotelarias ou habitação. Este terreno é uma excelente oportunidade de investimento com retorno financeiro. Marque já a sua visita, esperamos por si , venha conhecer o lugar para a sua nova Moradia. Lagoa está situado no Barlavento algarvio, distante da zona costeira, nas terras férteis do Barrocal. A parte jusante do rio Arade delimita Lagoa do concelho vizinho de Portimão. A Estrada Nacional 125, o eixo viário mais importante que atravessa o Algarve de leste a oeste, passa diretamente por dentro da cidade. Da saída 7 da autoestrada A22, chega-se ao centro da cidade de Lagoa em poucos minutos. A região costeira do concelho de Lagoa tem muitas das praias mais bonitas do Barlavento. Em grande parte, trata-se de pequenas enseadas arenosas, aconchegadas às falésias calcárias. Na sua maior parte, estas praias dispõem de uma excelente infraestrutura e de uma grande oferta de desportos aquáticos. As formações rochosas e as grutas, esculpidas pelo mar e pelo vento ao longo dos milénios, valem uma visita. Recomenda-se igualmente uma excursão de barco para explorar esta área costeira do lado do mar. Também é um sítio ideal para caminhadas ao longo das falésias. Alguns dos mais conhecidos campos de golfe da região encontram-se entre Lagoa e Carvoeiro: Gramacho e Pinta, que fazem parte do Pestana Golf Resort, e o campo do Vale de Milho com nove buracos. Outros campos de golfe, não menos fascinantes, ficam a 30 mins. de carro. Parte integral das opções de lazer da região de Lagoa é o Slide & Splash, um dos aquaparques mais populares do Algarve, situado entre Lagoa e Estômbar. A região de Lagoa é considerada a principal e mais relevante zona vitícola do Algarve. O edifício da Adega Cooperativa de Lagoa, situada na EN125, alberga uma galeria de arte, onde uma interessante Feira de Natal tem lugar em Dezembro. Na saída leste de cidade de Lagoa fica o terreno da Fatacil, a conhecida Feira de Artesanato, Turismo, Agricultura, Comércio e Indústria de Lagoa, que decorre anualmente na segunda quinzena de Agosto. Além da exposição amplíssima, a FATACIL ainda oferece um programa muito variado de música e diversão. Lagoa é o centro vitivinícola do Algarve. O prédio da Adega Cooperativa de Lagoa não tem grande atratividade, mas os peritos em vinho vão achar gratificante uma visita ao estabelecimento. Por outro lado, não deixe de ver a Quinta dos Vales em Estômbar, uma combinação única de uma adega com um centro de arte montado no coração dos vinhedos, que tem exposições permanentes de escultura moderna.
AMI: 11034
Ref. Externa: NF043 ES
Id: 1342278
Inicie sessão para guardar este imóvel e aceder à sua lista de favoritos em qualquer dispositivo.
115.000 €
Área de terreno : 155 m²
Lote de terreno plano, com excelente localização e fácil acesso, ideal para construção de moradia ou projeto de investimento. Situado numa zona tranquila, mas perto de praias, comércio e serviços. Grande potencial de valorização. Não perca esta chance de construir no coração do Algarve! Apresentamos um lote de terreno com grande potencial de construção, situado na freguesia do Parchal, no concelho de Lagoa, Algarve. Esta localização oferece a combinação perfeita entre tranquilidade e acesso fácil a tudo o que a região tem para oferecer. A apenas minutos de praias, centros comerciais, restaurantes e principais vias de acesso. Acesso direto à estrada principal, este terreno é plano, o que facilita a construção e garante um excelente potencial de valorização. Este lote de esquina, com exposição solar privilegiada, destaca-se ainda pela autorização para construção de edifício de uso misto permitindo a edificação de espaço comercial no rés do chão e habitação nos pisos superiores. Uma excelente solução para quem deseja viver e trabalhar no mesmo local, ou para quem procura um investimento com retorno garantido. A infraestrutura local está bem desenvolvida, com serviços essenciais como escolas, hospitais, supermercados, farmácias e transportes públicos nas imediações, garantindo uma vivência confortável e prática. O terreno encontra-se pronto para iniciar a construção, permitindo-lhe dar início ao projeto de casa de sonho ou ao seu negócio de sucesso de forma rápida e sem obstáculos. Oportunidade única de adquirir um terreno com imenso potencial de crescimento numa das regiões mais procuradas do sul de Portugal. Entre em contacto connosco e comece a concretizar o seu projeto no Algarve! Contacte-nos para mais!
AMI: 9393
Ref. Externa: L911PRC
Id: 1265312
Inicie sessão para guardar este imóvel e aceder à sua lista de favoritos em qualquer dispositivo.
1.450.000 €
Área de terreno : 4690 m²
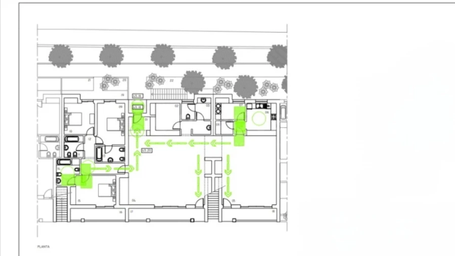
FAÇA CONNOSCO O MELHOR NEGÓCIO CAMPANHA BAIXA DE PREÇO - FINAL DE ANO Projeto aprovado para as Casas de Campo 'Santa Leonor', um Hotel de Turismo Rural localizado nas Seixosas, numa zona rural de Ferragudo. O empreendimento está situado em um lote de 4.690 m² com excelente acesso às praias de Ferragudo, Carvoeiro e Lagoa. A unidade de alojamento, que integra o Espaço Rural - Casas de Campo, é composta por 15 moradias geminadas, totalizando 39 quartos. O complexo dispõe de receção, piscina, bar, garagem, lavandaria, sala de convívio, áreas verdes e demais comodidades. Contamos com uma variedade de unidades de alojamento, oferecendo opções para diferentes necessidades e preferências: Unidade de alojamento 1 - T3, 127 m2 Unidade de alojamento 2 - T2, 84 m2 Unidade de alojamento 3 - T3, 112 m2 Unidade de alojamento 4 - T3, 112 m2 Unidade de alojamento 5 - T3, 161 m2 Unidade de alojamento 6 - T2, 79 m2 Unidade de alojamento 7 - Edifício Principal, T3, 289 m2 Unidade de alojamento 8 - T1, 54 m2 Unidade de alojamento 9 - T3, 208 m2 Unidade de alojamento 10 - T3, 110 m2 Unidade de alojamento 11 - T3, 110 m2 Unidade de alojamento 12 - T3, 158 m2 Unidade de alojamento 13 -T3, 171 m2 Unidade de alojamento 14 - T3, 171 m2 Unidade de alojamento 15 -T1, 55 m2 As 15 unidades de alojamento estão distribuídas em duas zonas distintas: a cave, destinada a estacionamento, áreas técnicas e arrumos; e a parte superior, onde se situam as moradias. A unidade principal, designada AU7, inclui a receção, um átrio de entrada e uma sala comum que conecta duas áreas funcionais: uma destinada às refeições, com cozinha, lavandaria e despensa, e outra para convívio, composta por três suítes, sendo uma delas adaptada para acessibilidade para utentes com mobilidade reduzida. Ferragudo é uma vila repleta de atrativos, desde os seus pontos históricos até às suas praias paradisíacas, passando pelo comércio local vibrante, uma vasta seleção de restaurantes e cafés, além de diversas opções de lazer que enriquecem a experiência na região. A proximidade de Portimão oferece a conveniência de acesso a lojas, hospitais e outras infraestruturas essenciais, permitindo desfrutar da tranquilidade e do som relaxante do mar, sem abrir mão do conforto urbano. Tratamos do seu processo de crédito, sem burocracias apresentando as melhores soluções para cada cliente. Intermediário de crédito certificado pelo Banco de Portugal com o nº 0001802. Ajudamos com todo o processo! Entre em contacto connosco ou deixe-nos os seus dados e entraremos em contacto assim que possível! AL89246LP
AMI: 8989
Ref. Externa: AL89246LP
Id: 1219867
Inicie sessão para guardar este imóvel e aceder à sua lista de favoritos em qualquer dispositivo.
750.000 €
Área de terreno : 313 m²
FAÇA CONNOSCO O MELHOR NEGÓCIO Apresentamos este fantástico Lote para Moradia composta por dois pisos que de momento está em fase de construção que é vendida com chave na mão. O imóvel fica localizado na zona da Belavista no Parchal. A Moradia tem um prazo estimado para conclusão de um ano e meio e será projetada a pensar em um estilo moderno, e construída com acabamentos topo de gama na qual irá levar piso radiante hidráulico regula o frio e o calor, irá apresentar portas com dois metros e meio de altura, tanto interiores como exteriores. E vai ter a nível de equipamento na cozinha uma placa de exaustão, permitem-lhe uma maior liberdade e flexibilidade no planeamento e utilização da cozinha. Irá ter pré instalação de painel fotovoltaicos, tanto como ar condicionado. A moradia fica virada a Norte e apresenta uma área de aproximadamente de 315m2, uma área de implantação de 96m2 e de construção de 170 m2. A moradia irá ser composta por dois pisos e a sua composição irá ser: No piso -1 irá dar acesso a cave que dispõe de um amplo espaço que permite colocar entre dois a tres carros dependendo dos seus formatos e uma zona de arrumos, um dos pontos principais do acesso á cave é bastante bom porque não tem inclinação e que oferece um melhor conforto ao estacionar os veículos. A nível do 1º piso temos as seguintes divisões: - Uma ampla sala de 30 M2 com ligação diretamente a zona da cozinha - Uma cozinha totalmente equipada de 15 M2 em estilo open space que liga a zona de arrumos e a lavandaria e ao terraço com aproximadamente 50 m2 - Um escritório de 10.30 M2 que lhe permitirá poder trabalhar no conforto do seu lar ou se preferir fazer mais um quarto - Uma W.C de serviço. Ainda a nível do 1ºpiso temos uma zona de lazer que irá ser construída uma piscina e um jardim e ainda terá espaço para colocar uma zona de barbecue para convivo entre família e amigos. Conta também na parte da frente ao acesso a entrada um logradouro com capacidade de mais um carro. A nível do segundo Piso: - Dois dos quartos ambos com 13M2 e ambos tem acesso a varanda não tem casa de banho privativa mas ambos tem acesso a uma casa de banho - O quarto maior apresenta uma área de 23 m2 e em suite e tem acesso a um terraço A zona onde esta moradia está inserida fica aproximadamente a escassos km da cidade de Portimão e Lagoa e aproximadamente a 5 km das praias mais próximas como a do Molho em Ferragudo, como a da Rocha em Portimão. Acrescento que a zona onde esta Moradia esta a ser construída é uma zona de desenvolvimento de habitação permitindo a valorização da zona. Tratamos do seu processo de crédito, sem burocracias apresentando as melhores soluções para cada cliente. Intermediário de crédito certificado pelo Banco de Portugal com o nº 0001802. Ajudamos com todo o processo! Entre em contacto connosco ou deixe-nos os seus dados e entraremos em contacto assim que possível! AL83796LP
AMI: 8989
Ref. Externa: AL83796LP
Id: 1216973
Inicie sessão para guardar este imóvel e aceder à sua lista de favoritos em qualquer dispositivo.
215.000 €
Área de terreno : 2550 m²
Descubra esta maravilhosa oportunidade de compra neste terreno rustico, deslumbrante na vila de Estômbar. Com um espaço amplo e versátil, esta propriedade é perfeita para quem procura a pacatez da natureza, perto do núcleo urbano. Localizado numa área tranquila e pitoresca, este terreno, oferece um refúgio acolhedor, longe da azáfama da cidade. Com possibilidade de transformar este espaço num refúgio moderno, com um toque pessoal e único. Com um furo, fornecimento de água municipal, fossa, eletricidade, algumas árvores de fruto como limoeiros, laranjeiras e figueiras, completamente vedado e murado, com bons acessos por estrada de alcatrão, e com 3 portões. Não perca a oportunidade de investir neste imóvel único e transformá-lo no seu lugar de sonho. Contacte-nos hoje para marcar uma visita e começar a construir o futuro que sempre desejou. A construção existente não está legal. Para mais informações não hesite em contactar 962602600 [email protected]
AMI: 18450
Ref. Externa: 330
Id: 1204944
Inicie sessão para guardar este imóvel e aceder à sua lista de favoritos em qualquer dispositivo.
115.000 €
Área de terreno : 235 m²
TERRENO URBANO PARA CONSTRUÇÃO DE MORADIA UNIFAMILIAR Lote urbano de 235m2 na Quinta de São Pedro, Mexilhoeira da Carregação, Estômbar. Com possibilidade de construção de 280m2 de 3 pisos com garagem. Perto de escolas, creches, restaurantes e transporte público
AMI: 6110
Ref. Externa: LT13994
Id: 1204327
Inicie sessão para guardar este imóvel e aceder à sua lista de favoritos em qualquer dispositivo.
365.000 €
Área de terreno : 2095 m²
Lote de Terreno Presa da Moura – LagoaApresentamos-lhe este magnífico lote de terreno com 2.095 m², situado numa zona elevada e privilegiada, mesmo ao lado da exclusiva urbanização Presa da Moura, nos arredores de Carvoeiro. Uma localização de excelência, onde a tranquilidade e a beleza natural se aliam à proximidade de todas as comodidades.Com possibilidade de construção de uma moradia de dois pisos com 314,25 m², piscina privada e cave (conforme o regulamento em vigor), este lote oferece o cenário ideal para desenvolver a sua casa de sonho.O terreno já dispõe de infraestruturas essenciais — água, eletricidade e esgotos — permitindo-lhe dar início ao projeto sem atrasos.Destaques da Localização:Entre as encantadoras vilas de Carvoeiro e Ferragudo (apenas 5 minutos de carro);Próximo de campos de golfe de renome internacional;A poucos minutos de praias paradisíacas, restaurantes de qualidade e do clube de ténis de Carvoeiro;Próximo da Escola Internacional (cerca de 10 minutos).Ideal para residência permanente, casa de férias ou investimento seguro no Algarve.Não perca esta oportunidade rara de construir uma propriedade única numa das zonas mais procuradas do Algarve.Agende já a sua visita!
AMI: 7513
Ref. Externa: 4734
Id: 1195695
Inicie sessão para guardar este imóvel e aceder à sua lista de favoritos em qualquer dispositivo.
385.000 €
Área de terreno : 2231 m²
Lote de Terreno Presa da Moura – LagoaApresentamos-lhe este magnífico lote de terreno com 2.321 m², situado numa zona elevada e privilegiada, mesmo ao lado da exclusiva urbanização Presa da Moura, nos arredores de Carvoeiro. Uma localização de excelência, onde a tranquilidade e a beleza natural se aliam à proximidade de todas as comodidades.Com possibilidade de construção de uma moradia de dois pisos com 334,65 m², piscina privada e cave (conforme o regulamento em vigor), este lote oferece o cenário ideal para desenvolver a sua casa de sonho.O terreno já dispõe de infraestruturas essenciais — água, eletricidade e esgotos — permitindo-lhe dar início ao projeto sem atrasos.Destaques da Localização:Entre as encantadoras vilas de Carvoeiro e Ferragudo (apenas 5 minutos de carro);Próximo de campos de golfe de renome internacional;A poucos minutos de praias paradisíacas, restaurantes de qualidade e do clube de ténis de Carvoeiro;Próximo da Escola Internacional (cerca de 10 minutos).Ideal para residência permanente, casa de férias ou investimento seguro no Algarve.Não perca esta oportunidade rara de construir uma propriedade única numa das zonas mais procuradas do Algarve.Agende já a sua visita!
AMI: 7513
Ref. Externa: 4733
Id: 1195694
Inicie sessão para guardar este imóvel e aceder à sua lista de favoritos em qualquer dispositivo.
510.000 €
Área de terreno : 2343 m²
Lote de Terreno Presa da Moura – LagoaApresentamos-lhe este magnífico lote de terreno com 2.343 m², situado numa zona elevada e privilegiada, mesmo ao lado da exclusiva urbanização Presa da Moura, nos arredores de Carvoeiro. Uma localização de excelência, onde a tranquilidade e a beleza natural se aliam à proximidade de todas as comodidades.Com possibilidade de construção de uma moradia de dois pisos com 351,45 m², piscina privada e cave (conforme o regulamento em vigor), este lote oferece o cenário ideal para desenvolver a sua casa de sonho com vistas deslumbrantes sobre o mar. Esta poderá ser um exemplo de moradia para construir neste magnífico lote.O terreno já dispõe de infraestruturas essenciais — água, eletricidade e esgotos — permitindo-lhe dar início ao projeto sem atrasos.Destaques da Localização:Entre as encantadoras vilas de Carvoeiro e Ferragudo (apenas 5 minutos de carro);Próximo de campos de golfe de renome internacional;A poucos minutos de praias paradisíacas, restaurantes de qualidade e do clube de ténis de Carvoeiro;Próximo da Escola Internacional (cerca de 10 minutos).Ideal para residência permanente, casa de férias ou investimento seguro no Algarve.Não perca esta oportunidade rara de construir uma propriedade única numa das zonas mais procuradas do Algarve.Agende já a sua visita!
AMI: 7513
Ref. Externa: 4732
Id: 1195693
Inicie sessão para guardar este imóvel e aceder à sua lista de favoritos em qualquer dispositivo.
Estes agentes são especialistas nesta zona:
Inicie sessão para ocultar este imóvel das suas pesquisas e manter a sua lista de resultados organizada.
© Copyright 2023 | CASACERTA. All rights reserved
Guardar favoritos
Este imóvel foi guardados nos seus favoritos com sucesso.
Para poder guardar pesquisa deverá ter a sua sessão iniciada.
Caso não tenha uma conta, deverá criar uma.
A sua pesquisa foi guardada com sucesso!
Este site utiliza cookies. Ao navegar no site estará a consentir a sua utilização.
Para mais informações sobre os cookies pode consultar a
política de privacidade.