Lista
Comprar
Arrendar
1.450.000 €
Área de terreno : 4690 m²
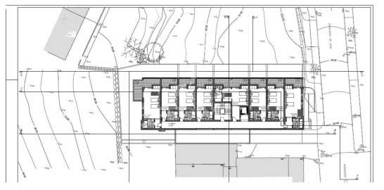
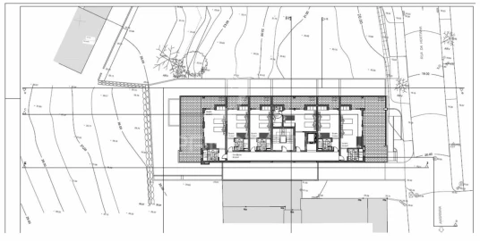
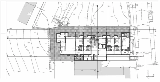
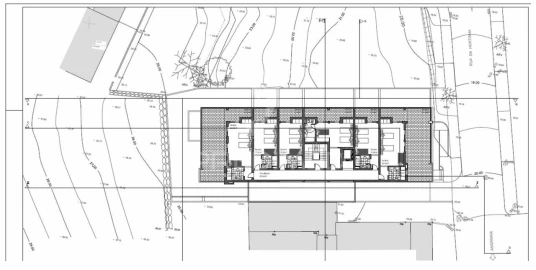
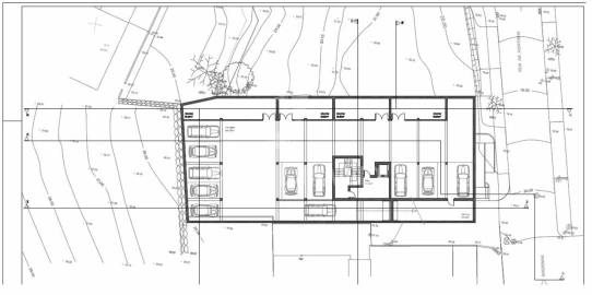
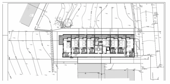
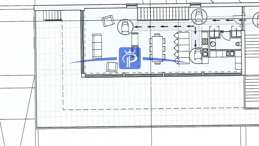
Terreno com projeto de Turismo Rural aprovado para 39 quartos, inserido num lote de 4.690 m2, com área de construção de cerca de 2.000 m2 mais cave com 853 m2. Localizado em Ferragudo, numa zona tranquila e de fácil acesso às praias, campos de golfe e principais centros urbanos do Algarve. O empreendimento apresenta um conceito intimista e integrado na natureza, composto por: - 39 quartos; - 15 salas; - Receção; - Piscina; - Bar; - Garagem com 853 m2; - Lavandaria; - Sala de convívio; - Zonas verdes. A implantação e orientação do projeto garantem excelente exposição solar, total privacidade e vistas desafogadas, resultando num produto turístico orientado para o bem-estar, descanso e contacto com a natureza. Este ativo destaca-se no mercado algarvio por já possuir projeto de Turismo Rural aprovado, reduzindo significativamente riscos e prazos de licenciamento para o investidor. A combinação de localização estratégica, enquadramento paisagístico, forte procura por turismo de natureza e bem-estar, bem como a facilidade de acessos, torna este empreendimento uma aposta sólida e diferenciadora. Adequado para: - Exploração própria; - Parceria com operador turístico; - Investimento com foco na valorização patrimonial futura. Ideal para investidores que pretendem desenvolver uma oferta turística distinta no eixo de forte crescimento entre Ferragudo, Lagoa e Portimão. Localização privilegiada: - 1 km da Escola; - 3 km da Autoestrada A22; - 4 km do Centro de Saúde de Lagoa; - 4 a 8 km de quatro campos de golfe de referência; - 6 km do Hospital de Portimão; - 7 km de Escola internacional NOBEL Algarve Escola Internacional de Lagoa; - 10 km de Centro Comercial em Portimão; - 10 a 12 km das Praias da Marinha, Benagil e Carvoeiro; - 60 km do Aeroporto Internacional de Faro. Invista agora e dê vida a um projeto com elevado potencial de crescimento e rentabilidade sustentável no coração do Algarve.
AMI: 14719
Ref. Externa: 0002/26
Id: 1558553
Inicie sessão para guardar este imóvel e aceder à sua lista de favoritos em qualquer dispositivo.
198.000 €
Área de terreno : 204 m²
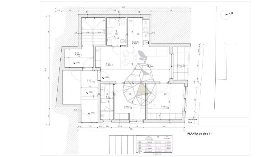
Lote de Terreno para Construção - Projeto Aprovado | Moradia em Banda T3 com Garagem e Piscina | Lagoa Oportunidade única para investir no coração de Lagoa! Este lote de terreno conta com projeto aprovado para a construção de uma moradia em banda T3 de 2 pisos, localizado no centro da cidade, numa zona de reabilitação urbana (ARU). Com 136 m² de terreno, 102 m² de área de implantação e 204 m² de área bruta de construção, representa uma excelente oportunidade de investimento numa localização estratégica, próxima de escolas, serviços, transportes e comércio tradicional, e a poucos minutos das praias, campos de golfe, da Escola Nobel do Algarve e de parques aquáticos. O projeto prevê um rés-do-chão com open space, integrando cozinha e sala, com acesso direto a um jardim de 60 m² e possibilidade de piscina. No primeiro andar encontram-se três quartos, incluindo uma suíte principal, garantindo conforto, privacidade e funcionalidade. O terreno dispõe ainda de espaço para garagem e beneficia de excelente exposição solar, tornando-o ideal para quem pretende desenvolver uma habitação de qualidade no coração do Algarve. Contacte-nos para agendar a sua visita!
AMI: 5796
Ref. Externa: L30097
Id: 1529751
Inicie sessão para guardar este imóvel e aceder à sua lista de favoritos em qualquer dispositivo.
450.000 €
Área de terreno : 54 m²
Ruina com Projeto Aprovado para construção de 3 apartamentos na pitoresca Vila de Ferragudo próximo de varias comodidades , serviços , restaurantes , comercio e a dois passos das Maravilhosas Praias da Região. O Projeto Prevê a construção de 3 apartamentos , um T2 no rés do chão , um T2 no 1º andar e outro T2 no ultimo andar com Terraço e uma Vista panorâmica sobre o Rio Arade e sobre Portimão. Existe tambem a possibilidade de ser vendido com a construção dos 3 apartamentos chave na mão , não perca esta oportunidade e contacte-nos hoje mesmo , faça-nos uma visita. Ferragudo é uma das mais belas silhuetas de vila à beira mar que se podem encontrar em todo o Algarve. A povoação de Ferragudo terá nascido por volta de do séc. XIV. Pescadores que procuravam no mar o sustento para as suas famílias, instalaram-se nestas paragens, erigindo toscos e humildes casebres. No entanto, existem vestígios que nos atestam presença humana em Ferragudo no período da Pré História. A foz do Arade foi, também, alvo de cobiça para os Fenícios e Cartagineses. Os Romanos assentaram arraiais, dedicando-se à pesca e à indústria da salga do peixe. A comprovar esta estada estão os achados arqueológicos encontrados junto ao Forte de S. João do Arade. Segundo fontes históricas, o topónimo Ferragudo provém da existência de um engenho de ferro, implantado na Praia da Angrinha, cuja finalidade era a de elevar o pescado e as mercadorias das embarcações que ali acostavam. Às maravilhosas praias e às excepcionais condições naturais que aqui se podem encontrar, aliaram-se as villas, os aldeamentos, entre outras unidades de alojamento, tornando Ferragudo, uma região de reconhecida beleza, num lugar aprazível e ideal para umas férias tranquilas.
AMI: 11034
Ref. Externa: IS043 FE
Id: 1360359
Inicie sessão para guardar este imóvel e aceder à sua lista de favoritos em qualquer dispositivo.
3.090.000 €
Área de terreno : 14320 m²
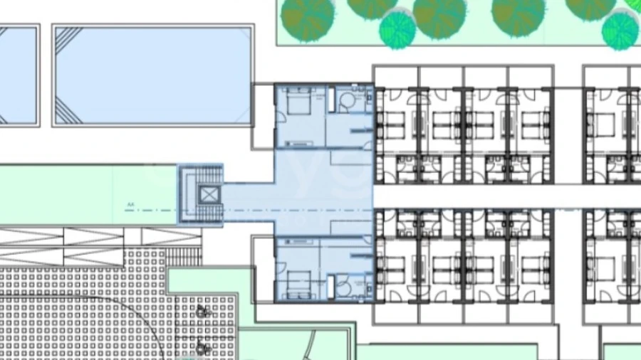
INVESTIMENTO DE ALTA RENTABILIDADE NO ALGARVE - PROJETO APROVADO PARA HOTEL DE TURISMO RURAL COM VISTA MAR E RIO Apresenta-se uma oportunidade única para investidores visionários: terreno com 14.320 m² localizado em Ferragudo, com projeto aprovado para a construção de um hotel de turismo rural com 46 quartos. Trata-se de uma oportunidade estratégica para entrar num dos mercados turísticos mais valorizados da Europa, com uma localização privilegiada e um conceito alinhado com as tendências atuais de turismo sustentável, de charme e natureza. Este terreno situa-se numa das zonas mais autênticas e encantadoras do Algarve, oferecendo uma vista absolutamente deslumbrante sobre o mar e o rio Arade. A envolvência natural, a tranquilidade da área e a proximidade de praias, marina, campos de golfe e vilas históricas tornam este local ideal para a criação de uma unidade hoteleira distinta e atrativa, com forte apelo tanto ao turismo nacional como internacional. Ferragudo, mantendo o seu charme tradicional, tem vindo a atrair cada vez mais visitantes e investidores, tornando-se num hotspot do turismo de qualidade no Algarve. Esta é uma proposta sólida e de futuro, com rentabilidade garantida e enorme margem de valorização. Se procura um investimento seguro, com elevado potencial de retorno, localização prestigiada e projeto pronto a executar, esta é a sua oportunidade. Para mais informações ou para marcar uma visita, seja bem-vindo(a) a contactar-nos!
AMI: 5717
Ref. Externa: AD2887
Id: 1355118
Inicie sessão para guardar este imóvel e aceder à sua lista de favoritos em qualquer dispositivo.
950.000 €
Área de terreno : 720 m²
OPORTUNIDADE DE INVESTIMENTO NO ALGARVE - TERRENO COM PROJETO APROVADO PARA HOSTEL EM FERRAGUDO, A MENOS DE 500 METROS DA PRAIA Apresenta-se uma excelente oportunidade de investimento no coração do Algarve, numa das zonas com maior procura turística: terreno com 720 m² localizado em Ferragudo, com projeto aprovado para a construção de um HOSTEL moderno e funcional com 20 quartos. O projeto inclui áreas comuns pensadas para promover a interação entre hóspedes, como sala de convívio, lavandaria equipada e estacionamento subterrâneo, garantindo conforto, comodidade e uma experiência diferenciada ao público jovem e viajantes independentes, que continuam a ser um dos segmentos com maior crescimento no setor do turismo. Com uma localização absolutamente privilegiada, o terreno encontra-se a menos de 500 metros da praia, ideal para atrair turistas nacionais e internacionais em busca de sol, mar e autenticidade. Ferragudo é uma vila piscatória charmosa, com forte identidade local, restaurantes típicos, e um ambiente descontraído que se encaixa perfeitamente no conceito de HOSTEL. Este é um investimento de alta rentabilidade, com um modelo de alojamento cada vez mais procurado, sobretudo em destinos costeiros como o Algarve. O projeto já aprovado permite avançar rapidamente com a construção e entrar no mercado numa localização de excelência e com grande potencial de ocupação anual. Se procura um terreno com projeto pronto, numa zona de elevada procura turística e a poucos passos da praia, esta é a oportunidade ideal. Para mais informações ou para marcar uma visita, seja bem-vindo(a) a contactar-nos!. Não perca esta oportunidade de criar um negócio sólido e atual no Algarve.
AMI: 5717
Ref. Externa: AD2907
Id: 1355117
Inicie sessão para guardar este imóvel e aceder à sua lista de favoritos em qualquer dispositivo.
3.090.000 €
Área de terreno : 15620 m²
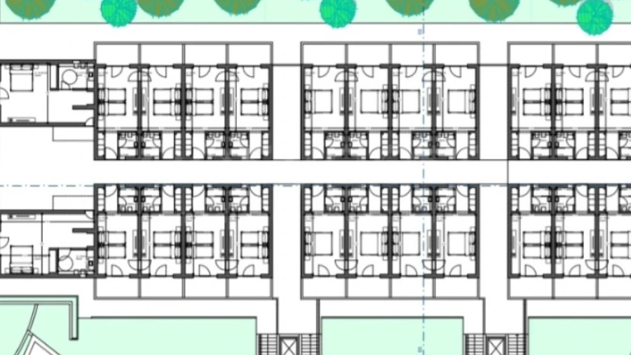
INVESTIMENTO DE ALTA RENTABILIDADE NO ALGARVE - PROJETO APROVADO PARA HOTEL DE TURISMO RURAL COM VISTA MAR E RIO Apresenta-se uma oportunidade única para investidores visionários: terreno com 15.620 m² localizado em Ferragudo, com projeto aprovado para a construção de um hotel de turismo rural com 48 quartos. Trata-se de uma oportunidade estratégica para entrar num dos mercados turísticos mais valorizados da Europa, com uma localização privilegiada e um conceito alinhado com as tendências atuais de turismo sustentável, de charme e natureza. Este terreno situa-se numa das zonas mais autênticas e encantadoras do Algarve, oferecendo uma vista absolutamente deslumbrante sobre o mar e o rio Arade. A envolvência natural, a tranquilidade da área e a proximidade de praias, marina, campos de golfe e vilas históricas tornam este local ideal para a criação de uma unidade hoteleira distinta e atrativa, com forte apelo tanto ao turismo nacional como internacional. Ferragudo, mantendo o seu charme tradicional, tem vindo a atrair cada vez mais visitantes e investidores, tornando-se num hotspot do turismo de qualidade no Algarve. Esta é uma proposta sólida e de futuro, com rentabilidade garantida e enorme margem de valorização. Se procura um investimento seguro, com elevado potencial de retorno, localização prestigiada e projeto pronto a executar, esta é a sua oportunidade. Para mais informações ou para marcar uma visita, seja bem-vindo(a) a contactar-nos!
AMI: 5717
Ref. Externa: AD2888
Id: 1354192
Inicie sessão para guardar este imóvel e aceder à sua lista de favoritos em qualquer dispositivo.
375.000 €
Área de terreno : 450 m²
Terreno com Projeto Aprovado para Moradia T3 com Piscina e Vista Mar | Carvoeiro Uma oportunidade única na zona dos Moinhos, em Carvoeiro, um local cheio de autenticidade e história onde ainda é possível apreciar o encanto dos antigos moinhos que marcam a paisagem. O terreno, com uma área total de 450 m² e 175 m² de construção, já dispõe de projeto aprovado por arquiteto de renome, concebido com linhas contemporâneas que se integram de forma harmoniosa no enquadramento típico da região. O projeto contempla uma moradia de dois andares e cave com 90 m², desenhada para oferecer modernidade, conforto e funcionalidade. A cave, ampla e versátil, oferece múltiplas possibilidades de utilização, seja como ginásio, sala de cinema, zona de lazer ou espaço de arrumação, acrescentando ainda mais valor e flexibilidade à futura habitação. No rés-do-chão encontra-se uma luminosa sala de estar e jantar em open space, com cozinha integrada e uma casa de banho social. No primeiro andar, encontram-se três suites espaçosas, todas com acesso direto ao exterior, garantindo privacidade e comodidade. O terraço panorâmico oferece uma vista mar deslumbrante, perfeito para momentos de lazer. No exterior, o carport e a piscina aquecida completam este projeto pensado ao detalhe. Com localização privilegiada, excelente exposição solar e um ambiente que combina sossego, charme histórico e proximidade de todas as comodidades, este terreno representa muito mais do que a possibilidade de construir uma casa. É a oportunidade de criar um refúgio contemporâneo e sofisticado, numa zona marcada pela tradição e pela beleza intemporal dos Moinhos, em Carvoeiro. Contacte-nos hoje para mais informações ou para agendar a sua visita.
AMI: 5796
Ref. Externa: L30095
Id: 1340769
Inicie sessão para guardar este imóvel e aceder à sua lista de favoritos em qualquer dispositivo.
3.090.000 €
Área de terreno : 15620 m²
FAÇA CONNOSCO O MELHOR NEGÓCIO Descubra uma oportunidade única de investimento em Ferragudo, Lagoa, uma região em rápida expansão, conhecida pela construção de residências de luxo e sua proximidade à deslumbrante praia do Pintadinho. Este lote de 15.620 m² oferece um potencial excecional para empreendedores e investidores que desejam atuar no setor hoteleiro e de turismo rural. Com um projeto aprovado para a construção de um hotel de turismo rural com 52 quartos, o terreno apresenta uma excelente oportunidade para desenvolver um empreendimento de destaque na área. A localização privilegiada, aliada ao potencial de crescimento da região, torna este investimento ainda mais atrativo. Este terreno permite diversas modalidades de utilização, incluindo obras de reconstrução, conservação, alteração e ampliação das construções existentes, voltadas para fins habitacionais, empreendimentos de Turismo em Espaço Rural, Turismo de Habitação, bem como equipamentos sociais, culturais e estabelecimentos de restauração. As áreas máximas de construção previstas variam de 300 m² para fins habitacionais, até 2.000 m² para empreendimentos de Turismo em Espaço Rural e Turismo de Habitação, e 500 m² para os demais usos permitidos em solo rústico. Essa oportunidade de expansão, com o lote confinante de 14.320m² e o projeto aprovado para mais 46 quartos, representa uma excelente perspectiva de crescimento para o empreendimento. Além disso, a aprovação do projeto facilita a implementação rápida, reduzindo prazos e custos de desenvolvimento. Entre em contato conosco para mais informações e agende uma visita para conhecer de perto este incrível terreno. Tratamos do seu processo de crédito, sem burocracias apresentando as melhores soluções para cada cliente. Intermediário de crédito certificado pelo Banco de Portugal com o nº 0001802. Ajudamos com todo o processo! Entre em contacto connosco ou deixe-nos os seus dados e entraremos em contacto assim que possível! AL97572LP
AMI: 8989
Ref. Externa: AL97572LP
Id: 1290914
Inicie sessão para guardar este imóvel e aceder à sua lista de favoritos em qualquer dispositivo.
3.090.000 €
Área de terreno : 15620 m²
Situado na encantadora e muito procurada vila de Ferragudo, este terreno com projeto aprovado para desenvolvimento turístico representa uma oportunidade rara de construir numa das zonas mais valorizadas e promissoras do Algarve. Localizado no Vale de Canada, o terreno tem uma área total de 15.620 m² e encontra-se no topo de uma colina com vista sobre um vale tranquilo, pontuado por laranjeiras, oliveiras, amendoeiras, figueiras, Quintas tradicionais e caminhos rurais estreitos outrora utilizados por carroças e ainda hoje delimitados por muros de pedra caiados. Este é um terreno de uso misto, com uma área rústica de 15.534,1 m² e uma secção urbana de 85,9 m² já licenciada para construção de unidade hoteleira. O projeto aprovado permite avançar de imediato com a construção, uma possibilidade cada vez mais rara no Algarve atual. Os terrenos agrícolas envolventes estão protegidos contra construções futuras, assegurando a tranquilidade e autenticidade da paisagem rural. O terreno encontra-se a uma curta distância a pé das emblemáticas falésias algarvias, das praias e do Oceano Atlântico. A propriedade mais próxima é o hotel de 4 estrelas Bricia de Mar, além de um novo projeto hoteleiro de 5 estrelas recentemente lançado, o que reforça ainda mais o potencial de investimento desta localização. Ferragudo continua a ser uma vila piscatória ativa, onde as capturas do dia são trazidas pelos pescadores locais. As suas várias praias encontram-se todas a curta distância ao longo da costa e, mesmo em pleno verão, mantêm-se pouco movimentadas. Com uma população de menos de 2.000 habitantes e mais de 500 anos de história, Ferragudo oferece uma combinação única de património e estilo de vida descontraído. A vila conta com excelentes restaurantes, cafés, lojas boutique, mercados locais e todos os serviços essenciais. A apenas 10 minutos de carro ou numa pitoresca travessia de táxi fluvial, chega-se a Portimão, a segunda maior cidade do Algarve. Ferragudo é uma joia cada vez mais apreciada por compradores portugueses e internacionais, sendo também o local escolhido pela Família Real Portuguesa nas suas visitas à região. Este terreno com licença representa uma oportunidade notável de investir num ambiente sereno e autêntico, com forte potencial de valorização a longo prazo.
AMI: 13824
Ref. Externa: 21894
Id: 1277525
Inicie sessão para guardar este imóvel e aceder à sua lista de favoritos em qualquer dispositivo.
3.090.000 €
Área de terreno : 14320 m²
Situado na encantadora e muito procurada vila de Ferragudo, este terreno com projeto aprovado para desenvolvimento turístico representa uma oportunidade rara de construir numa das zonas mais valorizadas e promissoras do Algarve. Localizado no Vale de Canada, o terreno tem uma área total de 14.320 m² e encontra-se no topo de uma colina com vista sobre um vale tranquilo, pontuado por laranjeiras, oliveiras, amendoeiras, figueiras, Quintas tradicionais e caminhos rurais estreitos outrora utilizados por carroças e ainda hoje delimitados por muros de pedra caiados. Este é um terreno de uso misto, com uma área rústica de 14.060 m² e uma secção urbana de 260 m² já licenciada para construção de unidade hoteleira. O projeto aprovado permite avançar de imediato com a construção, uma possibilidade cada vez mais rara no Algarve atual. Os terrenos agrícolas envolventes estão protegidos contra construções futuras, assegurando a tranquilidade e autenticidade da paisagem rural. O terreno encontra-se a uma curta distância a pé das emblemáticas falésias algarvias, das praias e do Oceano Atlântico. A propriedade mais próxima é o hotel de 4 estrelas Bricia de Mar, além de um novo projeto hoteleiro de 5 estrelas recentemente lançado, o que reforça ainda mais o potencial de investimento desta localização. Ferragudo continua a ser uma vila piscatória ativa, onde as capturas do dia são trazidas pelos pescadores locais. As suas várias praias encontram-se todas a curta distância ao longo da costa e, mesmo em pleno verão, mantêm-se pouco movimentadas. Com uma população de menos de 2.000 habitantes e mais de 500 anos de história, Ferragudo oferece uma combinação única de património e estilo de vida descontraído. A vila conta com excelentes restaurantes, cafés, lojas boutique, mercados locais e todos os serviços essenciais. A apenas 10 minutos de carro ou numa pitoresca travessia de táxi fluvial, chega-se a Portimão, a segunda maior cidade do Algarve. Ferragudo é uma joia cada vez mais apreciada por compradores portugueses e internacionais, sendo também o local escolhido pela Família Real Portuguesa nas suas visitas à região. Este terreno com licença representa uma oportunidade notável de investir num ambiente sereno e autêntico, com forte potencial de valorização a longo prazo.
AMI: 13824
Ref. Externa: 21893
Id: 1270776
Inicie sessão para guardar este imóvel e aceder à sua lista de favoritos em qualquer dispositivo.
950.000 €
Área de terreno : 720 m²
FAÇA CONNOSCO O MELHOR NEGÓCIO Lote de Terreno Urbano, com projeto aprovado para um Hostel, com uma área de 720m2, localizado na vila de Ferragudo. Este Lote de Terreno tem um projeto aprovado para 20 quartos, sala de convívio, lavandaria, estacionamento na cave, entre outros serviços, acaba por ser uma excelente porta para um investimento ou negócio próprio numa das zonas turísticas mais procuradas no pais. Com uma localização excelente e bastante central nesta pitoresca vila de Ferragudo, uma das zonas mais procuradas para quem procura passar umas férias no Algarve, pelas suas praias e atrações turísticas, mas principalmente pela tranquilidade que esta oferece aos seus visitantes durante todo o ano. Com acesso a diversos serviços como supermercados, farmácia, correios, cafés e alguns dos melhores restaurantes onde pode conhecer os pratos típicos da cozinha do Algarve. Atualmente Ferragudo é uma vila com grande incidência turística, mas onde os traços tradicionais continuam a persistir realçando a sua beleza cultural e paisagística através das suas praias, encostas e do rio Arade, pontos determinantes para o seu próspero desenvolvimento. Tratamos do seu processo de crédito, sem burocracias apresentando as melhores soluções para cada cliente. Intermediário de crédito certificado pelo Banco de Portugal com o nº 0001802. Ajudamos com todo o processo! Entre em contacto connosco ou deixe-nos os seus dados e entraremos em contacto assim que possível! AL90186LP
AMI: 8989
Ref. Externa: AL90186LP
Id: 1219842
Inicie sessão para guardar este imóvel e aceder à sua lista de favoritos em qualquer dispositivo.
650.000 €
Área de terreno : 4770 m²
Vende-se terreno com 4,770m2 com viabilidade de construção de uma moradia unifamiliar, onde serão permitidas obras para alteração, ampliação, conservação e demolição, com o número máximo de 2 pisos, sendo que a altura máxima das edificações são de 7,5m. Relativamente às áreas, deverão ser consideradas: Área de implantação: 15% da área do terreno Área de Construção encerrada: 15% da área do terreno Área de Construção espaços exteriores cobertos: 5% da área do terreno Afastamento da edificação aos limites do terreno: 5m (excepto a pré-existência) Muros de vedação: 1,20m de altura em alvenaria e 1,80m em sebe viva ou gradeamento. Admite cave (totalmente enterrada, afeta a estacionamento e áreas técnicas) O terreno situa-se a curta distância da Praia dos Caneiros, em Ferragudo. Aproveite esta excelente oportunidade, nesta que é uma das zonas mais procuradas para passar férias no Algarve. Agende já uma visita!
AMI: 20540
Ref. Externa: KAT121
Id: 1211983
Inicie sessão para guardar este imóvel e aceder à sua lista de favoritos em qualquer dispositivo.
900.000 €
Área de terreno : 3700 m²
Oportunidade de Desenvolvimento Prime: Terreno de 3700m² no Centro de Ferragudo para 5 Moradias de Luxo Desbloqueie um potencial excepcional com este terreno de 3700 m², estrategicamente localizado no coração de Ferragudo, oferecendo uma rara oportunidade de desenvolver cinco moradias isoladas de alto padrão. Esta localização privilegiada oferece o equilíbrio perfeito entre uma vida residencial tranquila e o acesso imediato ao vibrante charme de Ferragudo e de toda a região do Algarve. Ferragudo e arredores: Charme autêntico: mergulhe na beleza pitoresca de Ferragudo, uma tradicional vila piscatória famosa pela sua arquitetura caiada, porto pitoresco e aclamada cena gastronómica. Proximidade de Portimão: Aproveite a comodidade da vizinha Portimão, a segunda maior cidade do Algarve, que oferece comodidades completas, incluindo praias, vida noturna, lojas, saúde e instalações educativas. Potencial de desenvolvimento: O terreno foi previamente aprovado para um projeto composto por 4 moradias geminadas e 1 moradia isolada. Cada vivenda seria uma propriedade T3 de 2 pisos com piscina e dois lugares de estacionamento. Cada habitação terá uma área total de construção de 266m2 e será implantada em 5 lotes individuais de 432 a 608m2 Se construir 5 moradias não é o que procura, são possíveis opções alternativas de desenvolvimento. Com efeito, a Cidade já aprovou o seguinte: - Usos permitidos: Habitação, Comércio, Serviços, Indústria e Turismo - Densidade: Máximo 20 unidades/hectare (7 fogos) - Coeficiente de Construção: 0,36 (1.332m2) - Coeficiente de Implantação: 0,25 (925m2) - Máximo de pisos de construção: 2 Análise de mercado: As recentes transações imobiliárias em Ferragudo indicam uma forte procura por moradias de alta qualidade, com imóveis de 3 quartos a serem vendidos entre 850.000€ e 1.450.000€. Com base na localização privilegiada da propriedade, nas comodidades propostas e nos acabamentos premium, os preços de venda previstos estão estimados em 1.150.000 € por moradia. Projeções financeiras: Assumindo um custo médio de construção de 1.600 €/m2, um custo de conectividade de 400.000 € e um período de construção de 18 meses, isto representa um potencial retorno do investimento de aproximadamente 1.525.000 € (ou um retorno de caixa anualizado de 25%). Destaques do investimento: ⭐ Localização privilegiada no centro de Ferragudo. ⭐ Potencial de retorno significativo do investimento. ⭐ Forte procura de mercado por villas de luxo na região. ⭐ Oportunidade de criar um empreendimento residencial de prestígio. Entre em contacto connosco para saber mais sobre esta oportunidade de investimento excecional. #ref: 138690
AMI: 11220
Ref. Externa: 138690
Id: 1119173
Inicie sessão para guardar este imóvel e aceder à sua lista de favoritos em qualquer dispositivo.
450.000 €
Área de terreno : 1116 m²
Terreno de Excelência com Projeto para Deslumbrante Moradia de Dois Andares | Localização Privilegiada em Carvoeiro Localizado na prestigiada área de Carvoeiro, este lote de 1.116 m² oferece uma excelente oportunidade para construir uma moradia de dois andares com garagem. O projeto inclui uma área de construção de 167 m², concebida para proporcionar conforto moderno e funcionalidade. A moradia projetada dispõe de três quartos espaçosos e três casas de banho, garantindo privacidade e comodidade. A cozinha em plano aberto, totalmente equipada, integra-se harmoniosamente com a área de jantar, ideal para um estilo de vida contemporâneo. Além disso, a moradia dispõe de uma lavandaria, para maior praticidade no dia a dia. A sala de estar, repleta de luz natural, cria o ambiente perfeito para momentos de relaxamento e convívio. No exterior, o amplo jardim e a piscina privada oferecem um espaço ideal para desfrutar do clima mediterrânico do Algarve ao longo de todo o ano. Situado numa zona tranquila, mas conveniente, este lote encontra-se a uma curta distância do centro de Carvoeiro e oferece fácil acesso a Lagoa, Porches, praias magníficas, campos de golfe, restaurantes e escolas internacionais. Esta é uma excelente oportunidade para construir a sua casa numa das localizações mais desejadas do Algarve. Conte connosco para vender ou comprar com confiança. Estamos apenas a uma chamada de distância.
AMI: 5796
Ref. Externa: L30093
Id: 1094711
Inicie sessão para guardar este imóvel e aceder à sua lista de favoritos em qualquer dispositivo.
410.000 €
Área de terreno : 284 m²
Localizado na pitoresca vila de Ferragudo, este edifício ainda em projeto, constituído. apenas por 2 pisos, com três frações oferece uma vista deslumbrante para o rio e está. situado numa zona turística privilegiada, com fácil acesso a todos os serviços e praias.. . T2 -R/C com 104.50m2- 410.000. Esta fração é composta por 2 quartos, um deles em suite, uma casa de banho. completa, sala de estar/jantar em open space para a kitchenette.. Excelentes áreas, conforto e praticidade;. Ideal para si que procura a sua habitação própria ou para suas férias/ rentabilizar. . T2 1º Piso com 100m2- 420.000. Este andar possui dois quartos com roupeiros, 1 deles em suíte, uma casa de banho. completa, uma sala de estar/jantar em open space com uma prática e funcional. kitchenette.. Um dos grandes destaques é sua varanda generosa com uma vista encantadora para. o rio, perfeita para momentos de lazer ao ar livre, e ainda uma arrecadação de uso. exclusivo ao nível do mesmo piso;. . T2 2º piso com 80.40m2 750.000. Semelhante ao primeiro andar, esta fração inclui dois quartos, um deles em suite, uma. casa de banho completa, uma sala de estar/jantar em open space para uma magnifica. kitchenette. Este piso beneficia de uma magnifica varanda, uma arrecadação e um. terraço privado de 57 m2 com jacuzzi, oferecendo um espaço adicional ideal para. jardim, área de lazer ou pequenas atividades ao ar livre.. Localização e Vantagens. . Vistas magníficas para o rio, criando um ambiente relaxante e visualmente agradável.. Localizado numa zona turística, o edifício está perto de várias comodidades. essenciais, como supermercados, restaurantes, cafés e lojas.. As praias de Ferragudo, conhecidas pela sua beleza e tranquilidade, estão a uma. curta distância, oferecendo aos residentes e visitantes uma experiência costeira. incomparável.. . Este edifício é uma excelente oportunidade para investimento, seja para residência. própria, arrendamento de longa duração ou alojamento turístico, beneficiando da sua. localização estratégica e das suas amplas áreas e qualidade.
AMI: 21448
Ref. Externa: 422_2024/12048
Id: 1018826
Inicie sessão para guardar este imóvel e aceder à sua lista de favoritos em qualquer dispositivo.
3.800.000 €
Área de terreno : 43240 m²
Terreno com ruína e com uma vista de mar desafogada em Ferragudo, situa-se a escassos metros da praia dos caneiros, que pertence à famosa vila pitoresca de Ferragudo, mais precisamente no aglomerado urbano de grande expansão. Para venda temos este terreno com mais de quatro hectares de área total, sendo que 2200m2 são de área urbana. A casa existente no terreno trata-se de uma construção tipica Algarvia de 1987, com uma casa principal, casa do gado, duas cisternas e eira. Da casa principal avista-se o oceano proporcionando assim uma sensação fantastica. Neste terreno em especifico é possível construir moradia com 300m2 para habitação mais piscina, 500m2 para outros serviços , ou a possibilidade de construção de 2000m2 para turismo rural, para loteamento será necessário apresentar um plano de loteamento à câmara municipal de Lagoa.
AMI: 5717
Ref. Externa: FB550
Id: 883572
Inicie sessão para guardar este imóvel e aceder à sua lista de favoritos em qualquer dispositivo.
950.000 €
Área de terreno : 720 m²
Terreno Urbano com PROJECTO APROVADO para um HOSTEL com 20 quartos , Sala de Convívio , Lavandaria , Estacionamento na Cave. Este projeto situa-se numa zona de Excelência a 200 metros da pequena Villa de Ferragudo. O terreno está virado a Sul com uma excelente exposição Solar. Excelentes acessos. Está inserido numa zona de requalificação da zona pedonal de Ferragudo por parte da Camara Municipal de Lagoa. Excelente Investimento.
AMI: 16149
Ref. Externa: PBI-751
Id: 878521
Inicie sessão para guardar este imóvel e aceder à sua lista de favoritos em qualquer dispositivo.
950.000 €
Área de terreno : 720 m²
Terreno com projeto aprovado para Hostel - Ferragudo Encontramos este lote de terreno com 720m2, com projeto aprovado para um Hostel com 20 quartos, sala de convívio, lavandaria e estacionamento na cave. Muito bem localizado, fica apenas a 10 minutos a pé das praias de Ferragudo e a 10km de Portimão. Ferragudo é uma das mais belas silhuetas de vila à beira mar que se podem encontrar em todo o Algarve. Às maravilhosas praias e às excepcionais condições naturais que aqui se podem encontrar, existe um alargado leque de restaurantes e esplanadas, tornando Ferragudo, num lugar aprazível e ideal para umas férias tranquilas. «Lagoa é uma cidade portuguesa pertencente ao distrito de Faro na província, região e sub-região do Algarve, com cerca de 6 000 habitantes. É sede do município de Lagoa com 88,25 km² de área e 22 975 habitantes (2011), subdividido em 4 freguesias. O município é limitado a norte e leste pelo município de Silves, a oeste por Portimão e a sul tem costa no Oceano Atlântico. O município de Lagoa está dividido em 4 freguesias: - Estômbar e Parchal - Ferragudo - Lagoa e Carvoeiro - Porches Lagoa é, actualmente, um dos mais importantes municípios turísticos do Algarve. São vários os factores que contribuem para este reconhecimento, nomeadamente a oferta diversificada (a beleza das suas praias - apoiadas por magníficas unidades hoteleiras, os campos de golfe, o património cultural), a correcta ocupação do solo em termos de ordenamento do território, a estabilidade social e a afabilidade das suas gentes. Com uma renovada visão cultural, preconizada pela actividade turística, Lagoa acarinha inúmeras técnicas ancestrais, ligadas à olaria, à doçaria, com o intuito de as potenciar e valorizar como componente do produto turístico. A comprovar esta dinamização está a grande mostra de artesanato, realizada anualmente no Parque de Feiras e Exposições de Lagoa - FATACIL.» fonte: Wikipédia, a enciclopédia livre Desde 2009 no mercado imobiliário, a Golden Properties dispõe de um portfólio com mais de 1.900 imóveis no Algarve e na zona de Lisboa, desde apartamentos, moradias, lotes de terreno, lojas, escritórios, empreendimentos, em construção ou planta, entre outras opções de investimento. Ao comprar a sua casa connosco, pode usufruir de vários serviços, tais como: apoio financeiro, aconselhamento fiscal, apoio jurídico personalizado, apoio à rentabilização do investimento realizado (arrendamento anual e/ou para férias), pós-venda, gestão das inspecções necessárias ao imóvel e ainda o acompanhamento no processo de certificação energética através da procura dos melhores profissionais do sector. Visite o nosso website e encontre a sua casa de sonho!
AMI: 8576
Ref. Externa: GA-8604
Id: 856355
Inicie sessão para guardar este imóvel e aceder à sua lista de favoritos em qualquer dispositivo.
500.000 €
4 Quartos
Área de terreno : 1120 m²
Aproveite esta rara oportunidade de possuir um terreno de 1.120 m² no coração de Ferragudo, uma das vilas costeiras mais procuradas do Algarve.Rodeado por propriedades milionárias, este terreno excecional oferece o cenário perfeito para uma moradia de luxo personalizada, concebida inteiramente de acordo com as suas especificações.Porquê esta propriedade?Localização de prestígio – A poucos minutos de praias imaculadas, restaurantes requintados e comodidades essenciais.Espaço amplo – Espaço amplo para uma villa de 4 a 5 quartos com piscina privada, jardins paisagísticos e espaçosas áreas de estar exteriores.Potencial de investimento incomparável – Com moradias vizinhas avaliadas em mais de 2,5 milhões de euros, este terreno apresenta perspetivas de valorização excecionais.Vistas de cortar a respiração – Desfrute da luz natural deslumbrante e das vistas panorâmicas do Rio Arade.Flexibilidade no design – Trabalhe com um arquiteto local de confiança para criar e enviar plantas de vivendas personalizadas, adaptadas à sua visão.A Sua Visão, a Sua Casa!Quer esteja a sonhar com um luxuoso retiro pessoal ou um imóvel de investimento de alto padrão, este terreno oferece infinitas possibilidades numa área conhecida pelo seu luxo e exclusividade.Não perca esta oportunidade excecional.Contacte-nos hoje mesmo para saber mais ou agendar uma visita.Distâncias (aprox.) :Praça de Ferragudo: 700 metrosCarvoeiro : 5 kmsPortimão : 3 kmsPraia : 100 mtsComércio: 100 mtsGolfe : 2,6 kmsAeroporto : 68 kms* As características/equipamentos mencionados nesta descrição estão sujeitos a verificação e acordo entre vendedores e compradores.
AMI: 9571
Ref. Externa: PPF714-P
Id: 852730
Inicie sessão para guardar este imóvel e aceder à sua lista de favoritos em qualquer dispositivo.
325.000 €
Área de terreno : 868 m²
Ferragudo-Belavista: Bem-vindo ao Arade Premium Village. Apresentamos para venda Lotes de Terreno para construção de Moradia Independente no Arade Premium Village, na Bela Vista, Ferragudo. Esta nova urbanização está situada a apenas 900 m da bonita e pitoresca vila de Ferragudo e apenas a poucos minutos de carro de Parchal e Portimão. Este projeto apresenta seis moradias isoladas, sete moradias geminadas, nove moradias em banda e oito apartamentos, proporcionando uma gama de opções de luxo para qualquer comprador exigente. O lotes disponível para venda, 12, permite sob o Alvará de Loteamento aprovado a construção de uma moradia de dois pisos acima da cota soleira, e de um abaixo da mesma. Área Bruta de Construção para os 4 Lotes 250 m² Área de Implantação para os 4 Lotes 160 m² O Arade Premium Village fica próximo das deslumbrantes praias, Praia da Angrinha e da Praia da Rocha. E para os entusiastas do golfe, existem vários campos de golfe de primeira linha nas proximidades. O supermercado mais próximo fica a apenas 2 minutos de carro, enquanto todos os outros serviços essenciais estão convenientemente localizados e de fácil acesso. Nunca terá de se aventurar longe de casa para aproveitar o melhor que esta região deslumbrante tem a oferecer. Contacte-nos para mais informações e invista no seu sonho de construir a sua própria casa. - REF: PL-173-1 * As informações contidas neste anúncio destinam-se apenas a fins informativos. O conteúdo deste anúncio e as impressões nele apresentadas foram compilados com o máximo cuidado. Nenhum direito pode ser derivado destes conteúdos.
AMI: 5796
Ref. Externa: PL-173-1
Id: 818607
Inicie sessão para guardar este imóvel e aceder à sua lista de favoritos em qualquer dispositivo.
Estes agentes são especialistas nesta zona:
Inicie sessão para ocultar este imóvel das suas pesquisas e manter a sua lista de resultados organizada.
Guardar favoritos
Este imóvel foi guardados nos seus favoritos com sucesso.
Para poder guardar pesquisa deverá ter a sua sessão iniciada.
Caso não tenha uma conta, deverá criar uma.
A sua pesquisa foi guardada com sucesso!
© Copyright 2023 | CASACERTA. All rights reserved
Este site utiliza cookies. Ao navegar no site estará a consentir a sua utilização.
Para mais informações sobre os cookies pode consultar a
política de privacidade.