Lista
Comprar
Arrendar
1.890.000 €
Área de terreno : 2780 m²
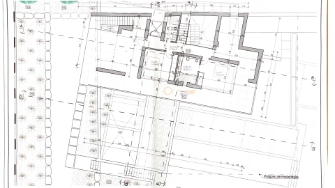
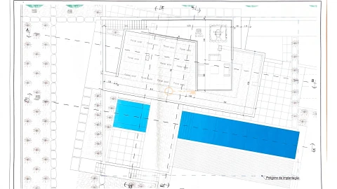
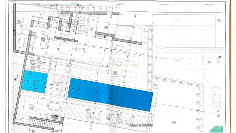
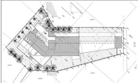
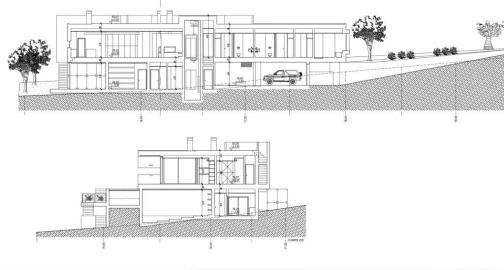
Este excepcional terreno está localizado dentro do prestigiado Palmares Golf Course em Lagos, oferecendo uma rara oportunidade de desenvolver uma vila de luxo em um dos locais mais procurados do Algarve. O terreno é vendido com um PIP aprovado (Pedido de Informação Prévia), confirmando a viabilidade de um projeto residencial de alto padrão no local. O conceito proposto apresenta uma vila contemporânea de três andares, projetada para maximizar a vista do oceano, a luz natural e uma vida integrada e externa sem interrupções. De acordo com o conceito aprovado pelo PIP, a villa ofereceria uma ampla área de estar em plano aberto no último andar, combinando lounge, refeições e cozinha, tudo orientado para grandes terraços com vista panorâmica para o mar. O nível inferior está previsto para incluir quatro quartos privativos e uma área de estar secundária, todos com acesso direto à piscina e ao jardim. O conceito também permite um terraço no terraço com vistas de 360 graus, um nível de subsolo com garagem e espaços multifuncionais, além de um elevador conectando todos os andares. Os compradores têm a flexibilidade de prosseguir com o conceito aprovado pelo PIP existente ou desenvolver um projeto arquitetônico diferente, sujeito à obtenção das aprovações necessárias. Situada em um dos principais resorts de golfe do Algarve, a propriedade desfruta de uma combinação única de tranquilidade, beleza natural e proximidade com praias deslumbrantes e a vibrante cidade de Lagos. Por favor, note que o preço anunciado se refere apenas ao terreno. A licença de construção e de projetos não estão incluídas. Para mais informações sobre o terreno, documentação PIP ou possibilidades de desenvolvimento, sinta-se à vontade para entrar em contato com a ten Hoopen Realty.
AMI: 19855
Ref. Externa: T1212
Id: 1752151
Inicie sessão para guardar este imóvel e aceder à sua lista de favoritos em qualquer dispositivo.
120.000 €
Área de terreno : 129 m²
Lote urbano com uma área total de 129,40 m², localizado na tradicional vila de Odiáxere, a poucos minutos de Lagos. Este lote oferece a possibilidade de construção de uma moradia em banda com dois pisos, com uma área bruta de construção até 100 m², sendo ideal para criar uma confortável residência permanente, casa de férias ou um investimento inteligente. Inserido numa zona residencial de fácil acesso, o terreno beneficia da proximidade a várias comodidades locais, incluindo comércio, cafés, restaurantes e escolas, mantendo ao mesmo tempo um ambiente tranquilo e típico de vila. A localização permite ainda rápidas ligações ao centro de Lagos, às deslumbrantes praias da Meia Praia e à autoestrada A22. Com boa exposição solar e uma dimensão prática, esta é uma excelente oportunidade para quem procura projetar e construir uma casa à medida no Algarve. Odiáxere é conhecida pela sua autenticidade e charme, oferecendo um estilo de vida relaxado, sem abdicar da proximidade a todas as atrações e serviços de Lagos. Uma excelente oportunidade para investir e construir numa zona em crescimento e cada vez mais procurada.
AMI: 1538
Ref. Externa: U554
Id: 1752096
Inicie sessão para guardar este imóvel e aceder à sua lista de favoritos em qualquer dispositivo.
Área de terreno : 84350 m²
Terreno de 85.000 m² e com projecto de 296 m2 de área útil em Barão de São João – Vista Mar, Projeto Aprovado e Vedação Premium (2 km) e 3 casas móveis de madeira, de cerca de 30 m2 cada. Descubra esta propriedade única situada em Barão de São João, um refúgio de tranquilidade com vista mar, inserido numa zona de natureza preservada, a poucos minutos das praias e da cidade de Lagos. Com uma área total de 85.000 m², o terreno encontra-se totalmente vedado com cerca de 2 km de vedação de alta qualidade, utilizando postes de cimento robustos e arame grosso, garantindo segurança, durabilidade e privacidade. A propriedade inclui: Uma ruína com possibilidade de reconstrução, com PIP aprovado para 296 m² de construção; Portão automático e muro em pedra tradicional; Sistema de irrigação instalado e centenas de árvores autóctones; Água agrícola (custo reduzido, cerca de 10x mais barata que a doméstica); Ligação à rede elétrica da companhia. Localização e envolvente Barão de São João é uma pitoresca aldeia do concelho de Lagos, inserida na União de Freguesias de Bensafrim e Barão de São João, conhecida pelo seu charme rústico, arte urbana e forte ligação à natureza. Distâncias aproximadas: Lagos – 10 a 12 min de carro (12 km) Praia da Luz – 13 min (8 km) Praias de Lagos – Meia Praia, Camilo, Dona Ana, Porto de Mós (entre 15 e 20 min) Faro (Aeroporto) – 59 min de carro (90 km) Serviços e comodidades Supermercado Coviran – a menos de 2 min a pé na aldeia Restaurantes locais – Ca La Mora, Vadibar, O Cangalho, Gecko, entre outros Farmácia, cafés, serviços bancários e outros – em Bensafrim, a 4 km Mercado Municipal e centros de saúde – em Lagos Lazer, natureza e cultura Mata Nacional de Barão de São João – percursos pedestres, BTT, áreas de piquenique e esculturas ao ar livre Património cultural – igreja paroquial, núcleo artístico da aldeia, festas tradicionais Atividades de bem-estar e turismo sustentável – zona ideal para retiros, glamping, eco-turismo ou turismo rural
AMI: 16799
Ref. Externa: KWPT-028678
Id: 1752025
Inicie sessão para guardar este imóvel e aceder à sua lista de favoritos em qualquer dispositivo.
130.000 €
Área de terreno : 216 m²
Localizado na tranquila e estratégica vila de Odiáxere, este lote urbano de 216,5 m² representa a base ideal para quem procura construir a casa dos seus sonhos ou investir num mercado em crescimento. Com uma área bruta de 115 m², o terreno permite a edificação de uma moradia funcional e moderna, tirando partido de uma excelente exposição solar e da proximidade a Lagos e às principais praias da região. ZONAS MÁGICAS e seus agentes estão disponíveis para lhe ajudar a adquirir esta propriedade.
AMI: 15213
Ref. Externa: T0551
Id: 1749799
Inicie sessão para guardar este imóvel e aceder à sua lista de favoritos em qualquer dispositivo.
130.000 €
Área de terreno : 186 m²
Oportunidade para Construção da Casa dos Seus Sonhos. Apresentamos este excelente lote de terreno urbano localizado na charmosa vila de Odiáxere, concelho de Lagos. Situado numa zona calma e de fácil acesso, este terreno oferece o equilíbrio perfeito para quem procura a tranquilidade de uma freguesia tradicional algarvia sem abdicar da proximidade aos principais centros urbanos. Ideal para uma moradia de dois pisos (ex: moradia V3 ou V4), permitindo um design funcional com áreas generosas. A poucos minutos da Meia Praia e do centro histórico de Lagos. Lote inserido em zona urbana com acessos pavimentados e facilidade de ligação a redes de água, eletricidade e saneamento. Próximo de comércio local, serviços, escolas e da famosa gastronomia regional (mercado local e restauração de referência). Com uma área de implantação de 112,2 m², terá espaço suficiente para criar uma zona exterior de lazer, como um pequeno jardim ou um logradouro privado. ZONAS MÁGICAS e seus agentes estão disponíveis para lhe ajudar a adquirir esta propriedade.
AMI: 15213
Ref. Externa: T0552
Id: 1749798
Inicie sessão para guardar este imóvel e aceder à sua lista de favoritos em qualquer dispositivo.
120.000 €
Área de terreno : 129 m²
Lote de Terreno Urbano em Zona Residencial Tranquila Odiáxere Apresentamos este lote de terreno urbano com uma área total de 129m², situado numa zona residencial calma em Odiáxere. Ideal para quem procura construir a sua moradia num ambiente tranquilo, com boa envolvência e qualidade de vida. Uma oportunidade a considerar para investimento ou projeto próprio. Características Principais Área total de 129m² Classificação como terreno urbano Potencial para construção de moradia Exterior e Comodidades Inserido em zona residencial Ambiente calmo e agradável Bons acessos nas imediações Localização Localizado em Odiáxere Zona tranquila, ideal para residência permanente Proximidade a serviços essenciais e vias de acesso Fale connosco e aproveite esta oportunidade. Ref.: VAP273383
AMI: 10094
Ref. Externa: VAP273383
Id: 1749773
Inicie sessão para guardar este imóvel e aceder à sua lista de favoritos em qualquer dispositivo.
120.000 €
Área de terreno : 129 m²
LT023 - ODIÁXERE Lote urbano para construção de moradia contemporânea em Odiáxere, Lagos Algarve. Apresentamos este excelente lote urbano, ideal para a construção de uma moradia de linhas modernas, situado na tranquila e charmosa freguesia de Odiáxere, a poucos minutos da cidade de Lagos. Com uma localização privilegiada, este terreno oferece o equilíbrio perfeito entre a serenidade do campo e a proximidade de todas as comodidades urbanas. Inserido numa zona em crescimento e de fácil acesso, o lote permite desenvolver um projeto arquitetónico contemporâneo, com amplas áreas, luminosidade natural e integração harmoniosa com o ambiente envolvente. A curta distância encontram-se algumas das mais deslumbrantes praias do Algarve, como a Meia Praia, bem como campos de golfe, marina, comércio, serviços e restauração. A proximidade a Lagos garante ainda acesso a escolas, supermercados e diversas opções de lazer. Ideal para residência permanente, casa de férias ou investimento, este lote representa uma oportunidade única para construir a casa dos seus sonhos numa das regiões mais procuradas do sul de Portugal. Não perca esta oportunidade e venha conhecer o potencial deste espaço! LT023 - ODIÁXERE Urban plot for construction of a contemporary villa in Odiáxere, Lagos Algarve. We present this excellent urban plot, ideal for the construction of a villa with modern lines, located in the quiet and charming parish of Odiáxere, a few minutes from the city of Lagos. With a privileged location, this plot offers the perfect balance between the serenity of the countryside and the proximity to all urban amenities. Inserted in a growing area and with easy access, the plot allows the development of a contemporary architectural project, with large areas, natural light and harmonious integration with the surrounding environment. Within walking distance are some of the most stunning beaches in the Algarve, such as Meia Praia, as well as golf courses, marina, shops, services and restaurants. The proximity to Lagos also guarantees access to schools, supermarkets and various leisure options. Ideal for permanent residence, holiday home or investment, this plot represents a unique opportunity to build the home of your dreams in one of the most sought-after regions in southern Portugal. Don't miss this opportunity and come and discover the potential of this space!
AMI: 17839
Ref. Externa: LT023
Id: 1739432
Inicie sessão para guardar este imóvel e aceder à sua lista de favoritos em qualquer dispositivo.
Área de terreno : 1255 m²
Com uma área total de 1.255 m², este lote oferece condições ideais para a construção de uma moradia unifamiliar de arquitetura contemporânea, perfeitamente integrada na paisagem natural e com privilegiada vista mar. Dispõe de uma área de implantação de 200 m² e área bruta de construção de 223 m², permitindo desenvolver um projeto funcional e sofisticado, com amplos espaços interiores e exteriores, jardim e piscina. Inserido numa urbanização de qualidade, o terreno beneficia de excelente exposição solar e de uma localização estratégica, a poucos minutos da Praia de Porto de Mós, do centro histórico de Lagos e de todas as comodidades essenciais. Ideal para residência permanente, casa de férias ou investimento, este lote combina privacidade, exclusividade e proximidade ao mar, num dos destinos mais procurados do Algarve.
AMI: 21077
Ref. Externa: L136
Id: 1736922
Inicie sessão para guardar este imóvel e aceder à sua lista de favoritos em qualquer dispositivo.
Área de terreno : 9570 m²
Aviso aos investidores! O potencial é enorme!O terreno está localizado apenas a 5 minutos de Lagos e de todas as suas comodidades.A vantagem é estar num local muito sossegado mesmo na época alta turística estando perto de todos os recantos mágicos do Algarve.- 5km de Lagos- 6 km da famosa Meia Praia- 10 km do Monte da Piedade- 17km de Portimão- 80 km do aeroportoO terreno tem vários acessos a diferentes estradas o que o torna verdadeiramente único.Arquivo completo a pedido.
AMI: 17184
Ref. Externa: SF-SAFTI:003052
Id: 1734637
Inicie sessão para guardar este imóvel e aceder à sua lista de favoritos em qualquer dispositivo.
910.000 €
Área de terreno : 12052 m²
T-267Esta fantástica quinta, com 1,2 hectares, está situada no Valverde, a apenas 1,5 km da Praia da Luz. Inserida numa zona tranquila, com acessos recentemente renovados, oferece vistas agradáveis e um excelente enquadramento natural. Localiza-se nas proximidades do Boavista Golf Resort e a cerca de 3 km do centro da cidade de Lagos.De acordo com a informação da CML para futura reconstrução, terá que ser feito no local da atual ruína e estando inserido numa área RAN, é necessário solicitar um parecer à CML. O máximo permitido para reconstrução é de 300m², incluindo as infraestruturas necessárias.A propriedade dispõe de um projeto de moradia, com arquitetura típica algarvia, perfeitamente enquadrada na envolvente rural, ainda não submetido à Câmara Municipal de Lagos.O amplo espaço exterior oferece excelentes condições para a criação de um jardim relvado, construção de uma piscina e cultivo de árvores de fruto ou outras culturas permanentes. A propriedade conta ainda com um furo artesanal, um elemento de grande valor acrescentado para a exploração e manutenção do terreno.Pelas suas características, localização e potencial, este imóvel representa uma excelente oportunidade de investimento, seja para habitação própria, seja para exploração turística.Convido-o a visitar esta propriedade e a conhecer todo o seu potencial. ENThis fantastic 1.2 acre farm is located in Valverde, just 1.5 km from Praia da Luz. Set in a quiet area with recently renovated access roads, it offers pleasant views and an excellent natural setting. It is located near the Boavista Golf Resort and about 3 km from the center of Lagos.According to information from the CML (Lisbon City Council) for future reconstruction, it will have to be done on the site of the current ruin and, as it is located in an RAN area, it is necessary to request an opinion from the CML. The maximum allowed for reconstruction is 300m², including the necessary infrastructure.The property has a villa project, with typical Algarve architecture, perfectly suited to the rural surroundings, which has not yet been submitted to the Lagos City Council.The large outdoor space offers excellent conditions for creating a lawn garden, building a swimming pool, and growing fruit trees or other permanent crops. The property also has a hand-dug well, which is a great added value for the exploitation and maintenance of the land.Due to its characteristics, location, and potential, this property represents an excellent investment opportunity, whether for your own home or for tourist exploitation.I invite you to visit this property and discover its full potential.
AMI: 8592
Ref. Externa: ON-123041084-4
Id: 1733845
Inicie sessão para guardar este imóvel e aceder à sua lista de favoritos em qualquer dispositivo.
Área de terreno : 558 m²
LT-225Lote de terreno urbano com 558m², destinado à construção de uma moradia isolada, localizado no Porto de Mós, uma das zonas mais premium e exclusivas de Lagos, caracterizada por moradias de elevado padrão, ambiente residencial calmo e a poucos minutos a pé da praia.O lote permite construir uma moradia com 270m² de área de implantação e até 350m² de área bruta de construção, oferecendo excelente potencial para um projeto moderno e funcional.Dispõe de todas as infraestruturas no local, garantindo condições imediatas para construção.Ideal para habitação própria, segunda residência ou investimento, numa zona de elevada valorização.ENUrban plot of land with 558 sqm, designated for the construction of a detached villa, located in Porto de Mós, one of the most premium and exclusive areas of Lagos, characterised by high-end villas, a calm residential atmosphere and just a few minutes’ walk from the beach. The plot allows for a building footprint of 270 sqm and a total construction area of up to 350 sqm, offering excellent potential for a modern and functional villa project.All main infrastructures are in place, ensuring immediate conditions to start construction.Ideal for permanent residence, holiday home or investment, in an area with strong and consistent value appreciation.
AMI: 8592
Ref. Externa: ON-123041071-45
Id: 1733842
Inicie sessão para guardar este imóvel e aceder à sua lista de favoritos em qualquer dispositivo.
800.000 €
Área de terreno : 16000 m²
T-250Excelente oportunidade de investimento! Apresentamos um terreno rústico com 1.6 hectares, situado em Montinhos da Luz, Praia da Luz, Lagos. Este terreno oferece uma combinação única, proporcionando uma vasta gama de possibilidades para diferentes tipos de projetos.Uma parte do terreno encontra-se em solo urbano, especificamente em Espaço de Uso Especial Turismo, conforme definido no artigo 67º, nº 1 e 2 do Regulamento do PDM. Isto significa que existe a possibilidade de desenvolver um projeto turístico, de acordo com a legislação e regulamentação em vigor, tornando este terreno uma excelente opção para investidores que procuram expandir o seu portfólio no setor do turismo.Localizado numa zona tranquila e de fácil acesso, este terreno é ideal tanto para fins agrícolas quanto para desenvolvimento turístico. Além disso, a sua proximidade às belas praias da Luz e às comodidades de Lagos torna-o ainda mais atrativo para quem valoriza a serenidade do campo sem abrir mão das vantagens de estar perto do mar e da cidade.Características principais:• Área total: 1.6 hectares• Localização: Montinhos da Luz, Praia da Luz, Lagos• Parte do terreno em Espaço de Uso Especial Turismo• Potencial para desenvolvimento turístico, de acordo com a legislação• Zona calma e de fácil acessoNão perca esta oportunidade única de adquirir um terreno versátil numa das zonas mais procuradas do Algarve! Ideal para quem deseja investir no setor turístico ou explorar outras possibilidades. Para mais informações ou para agendar uma visita, contacte-nos!ENGExcellent investment opportunity! We present a rustic plot of 1.6 hectares, located in Montinhos da Luz, Praia da Luz, Lagos. This land offers a unique combination, providing a wide range of possibilities for different types of projects.Part of the land is in urban soil, specifically in the Tourism Special Use Area, as defined in article 67, no. 1 and 2 of the PDM Regulation. This means that there is the possibility of developing a tourism project, in accordance with current legislation and regulations, making this land an excellent option for investors looking to expand their portfolio in the tourism sector.Located in a quiet and easily accessible area, this land is ideal for both agricultural purposes and tourism development. In addition, its proximity to the beautiful beaches of Luz and the amenities of Lagos make it even more attractive for those who value the serenity of the countryside without giving up the advantages of being close to the sea and the city.Main features:- Total area: 1.6 hectares- Location: Montinhos da Luz, Praia da Luz, Lagos- Part of the land in Special Use Area for Tourism- Potential for tourist development, according to legislation- Quiet area with easy accessDon't miss out on this unique opportunity to acquire a versatile plot of land in one of the Algarve's most sought-after areas! Ideal for those wishing to invest in the tourism sector or explore other possibilities. For more information or to schedule a visit, contact us!
AMI: 8592
Ref. Externa: ON-123041079-2
Id: 1733835
Inicie sessão para guardar este imóvel e aceder à sua lista de favoritos em qualquer dispositivo.
Área de terreno : 1635 m²
LT-200Apresento-lhe este lote urbano com projeto aprovado para construir a sua casa de sonho nesta localização excepcional, situado na prestigiada área do Porto de Mós, em Lagos.Características:● Localização privilegiada: A poucos passos da deslumbrante praia do Porto de Mós,numa Urbanização tranquila e familiar, ideal para quem procura um espaço amplo e confortável num ambiente calmo e seguro para viver.● Área generosa: Terreno com 1635m², oferecendo espaço para uma moradia unifamiliar T3 de 2 pisos+cave com estilo contemporâneo, com piscina, jacuzzi, espaço de barbecue e jardim.● Área de construção: Possibilidade de construir até 323m² de área bruta, incluindo 174m² de área de construção principal, 149m² de áreas não habitáveis (cave, garagem e outros espaços não habitáveis). Projecto inclui ainda 52m² de espelho de água de piscina e 15m² de área de jacuzzi.● Proximidade de comodidades: Diversos restaurantes, bares, cafés, praias, campos de ténis e o Campo de Golfe da Boavista estão a uma curta distância.Contacte-nos para mais informações sobre este lote excepcional.ENGI present to you this urban plot with approved project to build your dream home in this exceptional location, situated in the prestigious area of Porto de Mós in Lagos.Features:Privileged location: Just a few steps from the stunning Porto de Mós beach, in a quiet,family-friendly urbanization, ideal for those looking for ample, comfortable space in a calm, safe environment in which to live.- Generous area: 1635m² plot, offering space for a 3-bedroom detached house with 2 floors + basement in a contemporary style, with swimming pool, jacuzzi, barbecue area and garden.- Construction area: Possibility of building up to 323m² of gross area, including 174m² of main construction area, 149m² of non-habitable areas (basement, garage and othernon-habitable spaces). Project also includes 52m² of swimming pool and 15m² of jacuzzi area.- Close to amenities: Several restaurants, bars, cafés, beaches, tennis courts and the Boavista Golf Course are within walking distance.Contact us for more information about this exceptional plot.
AMI: 8592
Ref. Externa: ON-123041071-20
Id: 1733821
Inicie sessão para guardar este imóvel e aceder à sua lista de favoritos em qualquer dispositivo.
450.000 €
Área de terreno : 52760 m²
REF: T-199Apresento um conjunto de dois terrenos rústicos com uma área de 5.3ha, o terreno localizado a sul possui uma área urbana de 4000m² conforme consta no Plano director municipal de Lagos.Os imóveis estão localizados entre a aldeia de Almadena e a urbanização Cerro do Moínho, representando um grande potencial de desenvolvimento de projetos habitacionais ao abrigo da nova lei dos solos.Os terrenos privilegiam da proximidade de bons acessos, água, luz e uma boa exposição solar.Sem dúvida uma excelente oportunidade de investimento.Marque a sua visitaREF: T-199I am presenting a set of two rustic plots with an area of 5.3ha, the plot located to the south has an urban area of 4000m² as stated in the Lagos Municipal Master Plan.The properties are located between the village of Almadena and the Cerro do Moínho urbanization, representing great potential for the development of housing projects under the new land law.The plots are close to good access, water, electricity and good sun exposure.Undoubtedly an excellent investment opportunity.Book your visit
AMI: 8592
Ref. Externa: ON-123041066-2
Id: 1733811
Inicie sessão para guardar este imóvel e aceder à sua lista de favoritos em qualquer dispositivo.
750.000 €
Área de terreno : 406500 m²
Ref. T-158 Monte Ruivo - Odiáxere Uma imensidão de terreno, localizado em Monte Ruivo - Odiáxere. Uma propriedade enorme, onde poderá ter o seu refugio, reconstruindo e ampliando a construção rural existente até 300m², e/ou projetando um turismo rural sustentável, capaz de enriquecer a área. Com zona de pinhal manso, e capacidade de cultivo, outrora explorado pelos primordiais proprietários, onde entre montes e vales, obtiveram bastante fruto desta terra fértil, com topo dos montes, onde é possível avistar-se o mar e ouvir-se o silêncio, convido-o a uma visita para que possa, imaginar-se neste cenário com o seu projeto realizado.Ref. T-158 Monte Ruivo - Odiáxere An immensity of land, located in Monte Ruivo - Odiaxere. A huge property, where you can have your shelter, rebuilding and expanding the existing rural construction up to 300m², and / or designing a sustainable rural tourism, capable of enriching the area. With a pinewood area, and cultivation capacity, once exploited by the primordial owners, where among mountains and valleys, they obtained enough fruit from this fertile land, with top of the hills, where it is possible to see the sea and to hear the silence, I invite you to visit so that you can imagine yourself in this scenario with your accomplished project.
AMI: 8592
Ref. Externa: ON-123041060-36
Id: 1733807
Inicie sessão para guardar este imóvel e aceder à sua lista de favoritos em qualquer dispositivo.
Área de terreno : 1104 m²
LT-223Lote com projeto aprovado para moradia T3 no Cerro das Mós, LagosInserido numa das zonas mais prestigiadas e tranquilas da cidade, este lote urbano com 1104m² distingue-se por ter o dobro da dimensão dos lotes vizinhos e já contar com projeto aprovado para a construção de uma moradia T3, com 313m² de área bruta de construção. A localização é de excelência: a apenas 5 minutos a pé de supermercados, e a poucos minutos da Marina, das praias e do centro histórico de Lagos.Entre as particularidades únicas deste lote, destaca-se a possibilidade de desfrutar de vista mar a partir do primeiro andar e a presença de um moinho antigo para reconstrução, que pode conferir um charme especial ao projeto.Uma oportunidade ideal para quem pretende construir a sua casa de sonho numa zona residencial tranquila, com todas as comodidades e o melhor que Lagos tem para oferecer a poucos passos de distância.Contacte-me para mais informações sobre este lote único em Lagos. ENPlot with Approved Project for a 3-Bedroom Villa in Cerro das Mós, LagosLocated in one of the most prestigious and quiet residential areas of Lagos, this urban plot of 1,104m² stands out for its size-almost double that of the neighboring plots-and already has an approved project for a 3-bedroom villa with 313m² of gross construction area. Within walking distance of several supermarkets, and just a few minutes from the Marina, beaches, and the historic city center, the location offers both convenience and tranquility.The plot also benefits from sea views from the first floor and includes an old windmill for reconstruction, adding a unique character to the project.An ideal opportunity for those looking to build their dream home in Lagos, combining a peaceful residential setting with proximity to all amenities.Contact me for more information about this unique plot in Lagos.
AMI: 8592
Ref. Externa: ON-123041071-41
Id: 1733796
Inicie sessão para guardar este imóvel e aceder à sua lista de favoritos em qualquer dispositivo.
400.000 €
Área de terreno : 697 m²
Lote 10 - T4 em lote de 697m² - Urbanização Montinhos da LuzInserido num loteamento exclusivo de 10 moradias, este lote de 697m² temprevista a construção de uma moradia T4 e destaca-se pela tranquilidade da zonae proximidade à praia.A futura moradia poderá ter cave, rés-do-chão e primeiro andar, num máximo de184m² de construção prevista acima da cota da soleira, ideal para quem procura aoportunidade de construir uma moradia T4 moderna em zona premium, seja pararesidência permanente, casa de férias ou investimento.Se está à procura de um terreno perto da praia, com bons acessos e pronto aconstruir, tem aqui a oportunidade ideal.Fale connosco para mais detalhes ou para marcar uma visita ao local.Detalhes de construção para o Lote 10:• Tipologia: T4• Nº Pisos acima cota soleira: 2• Nº Pisos abaixo cota soleira: 1• Área de Implantação: 184m²• Área de Construção: 184m²• Área Impermeável: 240m²• Cércea: 7,50m• Cota Soleira: 70,00mENGPlot 9 - 4-Bedroom Villa Plot of 697 sqm - Montinhos da Luz Urbanization Located within an exclusive development of just 10 villas, this 697sqm plot is designated for the construction of a 4-bedroom villa. It stands out for its peaceful setting and close proximity to the beach.The future villa may include a basement, ground floor, and first floor, with a maximum of 184 sqm of buildable area above ground level. It’s an ideal opportunity for those looking to build a modern 4-bedroom home in a premium location-whether as a permanent residence, holiday home, or investment.If you’re searching for a plot near the beach, with good access and ready for construction, this is the perfect opportunity.Contact us for more details or to schedule a visit.Construction Details for Plot 10:• Typology: 4 Bedrooms• Number of Floors Above Ground: 2• Number of Floors Below Ground: 1• Building Footprint: 184 sqm• Construction Area: 184 sqm• Impermeable Area: 205 sqm• Maximum Building Height: 7.50 m• FFL (mean sea level): 70.00 m
AMI: 8592
Ref. Externa: ON-123041071-25
Id: 1733793
Inicie sessão para guardar este imóvel e aceder à sua lista de favoritos em qualquer dispositivo.
430.000 €
Área de terreno : 1059 m²
Lote 7 - T4 em lote de 1059m² - Urbanização Montinhos da LuzInserido num loteamento exclusivo de 10 moradias, este lote de 1059m² temprevista a construção de uma moradia T4 e destaca-se pela tranquilidade da zonae proximidade à praia.A futura moradia poderá ter cave, rés-do-chão e primeiro andar, num máximo de144m² de construção prevista acima da cota da soleira, ideal para quem procura aoportunidade de construir uma moradia T4 moderna em zona premium, seja pararesidência permanente, casa de férias ou investimento.Se está à procura de um terreno perto da praia, com bons acessos e pronto aconstruir, tem aqui a oportunidade ideal.Fale connosco para mais detalhes ou para marcar uma visita ao local.Detalhes de construção para o Lote: 7• Tipologia: T4• Nº Pisos acima cota soleira: 2• Nº Pisos abaixo cota soleira: 1• Área de Implantação: 184m²• Área de Construção: 184m²• Área Impermeável: 240m²• Cércea: 7,50m• Cota Soleira: 68,80mENGPlot 7 - 4-Bedroom Villa Plot of 1059 sqm - Montinhos da Luz Urbanization Located within an exclusive development of just 10 villas, this 1059 sqm plot is designated for the construction of a 4-bedroom villa. It stands out for its peaceful setting and close proximity to the beach.The future villa may include a basement, ground floor, and first floor, with a maximum of 184 sqm of buildable area above ground level. It’s an ideal opportunity for those looking to build a modern 4-bedroom home in a premium location-whether as a permanent residence, holiday home, or investment.If you’re searching for a plot near the beach, with good access and ready for construction, this is the perfect opportunity.Contact us for more details or to schedule a visit.Construction Details for Plot 7:• Typology: 4 Bedrooms• Number of Floors Above Ground: 2• Number of Floors Below Ground: 1• Building Footprint: 184 sqm• Construction Area: 184 sqm• Impermeable Area: 205 sqm• Maximum Building Height: 7.50 m• FFL (mean sea level): 68.80 m
AMI: 8592
Ref. Externa: ON-123041071-26
Id: 1733791
Inicie sessão para guardar este imóvel e aceder à sua lista de favoritos em qualquer dispositivo.
400.000 €
Área de terreno : 785 m²
Lote 8 - T4 em lote de 785m² - Urbanização Montinhos da LuzInserido num loteamento exclusivo de 10 moradias, este lote de 785m² temprevista a construção de uma moradia T4 e destaca-se pela tranquilidade da zonae proximidade à praia.A futura moradia poderá ter cave, rés-do-chão e primeiro andar, num máximo de184m² de construção prevista acima da cota da soleira, ideal para quem procura aoportunidade de construir uma moradia T4 moderna em zona premium, seja pararesidência permanente, casa de férias ou investimento.Se está à procura de um terreno perto da praia, com bons acessos e pronto aconstruir, tem aqui a oportunidade ideal.Fale connosco para mais detalhes ou para marcar uma visita ao local.Detalhes de construção para o Lote 8:• Tipologia: T4• Nº Pisos acima cota soleira: 2• Nº Pisos abaixo cota soleira: 1• Área de Implantação: 184m²• Área de Construção: 184m²• Área Impermeável: 240m²• Cércea: 7,50m• Cota Soleira: 69,20mENGPlot 8 - 4-Bedroom Villa Plot of 785 sqm - Montinhos da Luz Urbanization Located within an exclusive development of just 10 villas, this 785sqm plot is designated for the construction of a 4-bedroom villa. It stands out for its peaceful setting and close proximity to the beach.The future villa may include a basement, ground floor, and first floor, with a maximum of 184m² of buildable area above ground level. It’s an ideal opportunity for those looking to build a modern 4-bedroom home in a premium location-whether as a permanent residence, holiday home, or investment.If you’re searching for a plot near the beach, with good access and ready for construction, this is the perfect opportunity.Contact us for more details or to schedule a visit.Construction Details for Plot 8:• Typology: 4 Bedrooms• Number of Floors Above Ground: 2• Number of Floors Below Ground: 1• Building Footprint: 184 sqm• Construction Area: 184 sqm• Impermeable Area: 205 sqm• Maximum Building Height: 7.50 m• FFL (mean sea level): 69.20 m
AMI: 8592
Ref. Externa: ON-123041071-27
Id: 1733790
Inicie sessão para guardar este imóvel e aceder à sua lista de favoritos em qualquer dispositivo.
400.000 €
Área de terreno : 716 m²
Lote 9 - T4 em lote de 716m² - Urbanização Montinhos da LuzInserido num loteamento exclusivo de 10 moradias, este lote de 716m² temprevista a construção de uma moradia T4 e destaca-se pela tranquilidade da zonae proximidade à praia.A futura moradia poderá ter cave, rés-do-chão e primeiro andar, num máximo de184m² de construção prevista acima da cota da soleira, ideal para quem procura aoportunidade de construir uma moradia T4 moderna em zona premium, seja pararesidência permanente, casa de férias ou investimento.Se está à procura de um terreno perto da praia, com bons acessos e pronto aconstruir, tem aqui a oportunidade ideal.Fale connosco para mais detalhes ou para marcar uma visita ao local.Detalhes de construção para o Lote 9:• Tipologia: T4• Nº Pisos acima cota soleira: 2• Nº Pisos abaixo cota soleira: 1• Área de Implantação: 184m²• Área de Construção: 184m²• Área Impermeável: 240m²• Cércea: 7,50m• Cota Soleira: 69,60mENGPlot 9 - 4-Bedroom Villa Plot of 716 sqm - Montinhos da Luz Urbanization Located within an exclusive development of just 10 villas, this 716sqm plot is designated for the construction of a 4-bedroom villa. It stands out for its peaceful setting and close proximity to the beach.The future villa may include a basement, ground floor, and first floor, with a maximum of 184 sqm of buildable area above ground level. It’s an ideal opportunity for those looking to build a modern 4-bedroom home in a premium location-whether as a permanent residence, holiday home, or investment.If you’re searching for a plot near the beach, with good access and ready for construction, this is the perfect opportunity.Contact us for more details or to schedule a visit.Construction Details for Plot 9:• Typology: 4 Bedrooms• Number of Floors Above Ground: 2• Number of Floors Below Ground: 1• Building Footprint: 184 sqm• Construction Area: 184 sqm• Impermeable Area: 205 sqm• Maximum Building Height: 7.50 m• FFL (mean sea level): 69.60 m
AMI: 8592
Ref. Externa: ON-123041071-28
Id: 1733789
Inicie sessão para guardar este imóvel e aceder à sua lista de favoritos em qualquer dispositivo.
Estes agentes são especialistas nesta zona:
Inicie sessão para ocultar este imóvel das suas pesquisas e manter a sua lista de resultados organizada.
© Copyright 2023 | CASACERTA. All rights reserved
Guardar favoritos
Este imóvel foi guardados nos seus favoritos com sucesso.
Para poder guardar pesquisa deverá ter a sua sessão iniciada.
Caso não tenha uma conta, deverá criar uma.
A sua pesquisa foi guardada com sucesso!
Este site utiliza cookies. Ao navegar no site estará a consentir a sua utilização.
Para mais informações sobre os cookies pode consultar a
política de privacidade.