Filtros
0 · 29 resultadosÁrea de terreno : 1030 m²
Situado na tranquila zona rural de Amaro Gonçalves, perto de Luz de Tavira e com fácil acesso à Praia do Barril, este lote de 1.030 m² oferece uma excelente oportunidade para construir uma casa privada num dos cenários mais autênticos do sotavento algarvio. O projeto de arquitetura para uma moradia de luxo com 4 quartos já se encontra aprovado, estando ainda pendente a aprovação das especialidades para que a construção possa avançar. A proposta arquitetónica inspira-se em referências regionais e mediterrânicas, reinterpretadas com um acabamento contemporâneo mais cuidado, combinando paredes rebocadas em tom bege, telhados de telha terracota, materiais naturais e amplas janelas que permitem a entrada de abundante luz natural. O projeto inclui também áreas exteriores ajardinadas, vistas abertas sobre a envolvente campestre e uma piscina de 5 x 10 metros pensada para desfrutar plenamente da vida ao ar livre. A distribuição proposta para o piso térreo foi concebida para garantir conforto no dia a dia e facilidade em receber. Inclui um hall de entrada espaçoso, uma ampla sala de estar, cozinha e zona de refeições, uma casa de banho social e um quarto em suite neste piso com varanda. No piso superior, os planos aprovados preveem mais três quartos, incluindo uma suite principal com closet, casa de banho privativa e terraço, além de duas casas de banho adicionais, varandas, hall e zonas de circulação. No conjunto, o desenho oferece uma distribuição equilibrada de 4 quartos, assegurando privacidade tanto para a família como para convidados. Para além da área principal de habitação, os planos incluem uma ampla cave com garagem para dois carros, zona de arrumos, área técnica, hall e uma casa das máquinas independente, acrescentando funcionalidade e valor ao projeto. O desenho exterior acompanha o estilo de vida algarvio, com terraços, zonas de sombra e jardins paisagísticos organizados em torno da piscina, criando o ambiente certo para refeições ao ar livre, momentos em família ou simplesmente para desfrutar da tranquilidade do campo. No total, este projeto de moradia prevê 291 m² de construção acima do solo, aos quais se junta a área de cave e outras áreas interiores úteis que oferecem maior flexibilidade para arrumação e espaços de apoio. Esta é uma excelente oportunidade para quem procura adquirir um terreno bem localizado com projeto aprovado para moradia, numa zona calma mas bem ligada, com Tavira a cerca de 15 minutos, o Aeroporto Internacional de Faro a aproximadamente 30 minutos, campos de golfe e praias nas proximidades, e acesso rápido à N125 e à A22. Quer esteja a planear uma mudança permanente, uma segunda habitação no Algarve ou um investimento a longo prazo numa zona procurada, esta propriedade oferece privacidade, carácter e forte potencial futuro. Contacte-nos para conhecer os planos em detalhe e agendar uma visita ao terreno e à sua envolvente. As características e equipamentos mencionados estão sujeitos a acordo e verificação entre o vendedor e o comprador. Resumo em bullet points: - Lote de 1.030 m² em ambiente campestre e tranquilo perto de Luz de Tavira - Projeto de arquitetura aprovado para moradia de luxo com 4 quartos - Especialidades ainda pendentes de aprovação antes do início da construção - Arquitetura de inspiração regional e mediterrânica com um acabamento contemporâneo - Paredes rebocadas em tom bege, telhados de telha terracota, materiais naturais e amplas janelas - Sala de estar espaçosa com aproximadamente 38 m² - Cozinha e zona de refeições em open space com aproximadamente 31 m² - Suite principal com closet, casa de banho privativa e terraço - Cave com garagem dupla, arrumos e áreas técnicas - Perto de Tavira, da Praia do Barril, de campos de golfe, do Aeroporto Internacional de Faro, da N125 e da A22
AMI: 9767
Ref. Externa: FC084TVA
Id: 1875517
Inicie sessão para guardar este imóvel e aceder à sua lista de favoritos em qualquer dispositivo.
Área de terreno : 2789 m²
Excelente Lote de Terreno com 2.789,0m2, localizado em Estorninhos, lugar Conceição, Cabanas de Tavira O lote encontra-se dividido em duas parcelas: - Parcela 1 - 524,35m2; - Parcela 2 - 2264,65m2 Para a Parcela 2 foi desenvolvido um projeto para construção de uma moradia de 4 frentes, T4: O projeto encontra-se APROVADO, com possibilidade de construção imediata. No lote existem, atualmente, algumas ruínas que serão demolidas e darão lugar à nova construção da Moradia. O projeto APROVADO prevê: - Área exterior para estacionamento de carros; - Entrada com roupeiros; - 4 suites todas com roupeiros e q. banho completo; - wc serviço; - Compartimento para arrumos; - Sala comum com zona para cozinha, muito espaçosa. - Ampla zona exterior no seguimento da sala e dos quartos - Banco corrido para apoio ao exterior; - Piscina. Todos os quartos têm acesso ao exterior e à zona da piscina Tratando-se de uma zona à cota 175,0m permite desfrutar de uma magnífica vista com o mar no horizonte. Zona tranquila com um pequeno aglomerado de casas mas a escassos 15 minutos do centro de Tavira e das praias. Possibilidade de construção de casa própria ou para rendimento em local aprazível.
AMI: 5470
Ref. Externa: VL 533
Id: 1780421
Inicie sessão para guardar este imóvel e aceder à sua lista de favoritos em qualquer dispositivo.
Área de terreno : 90 m²
Terreno rústico, situado no sítio da Galharda-Conceição de Tavira.Tem plantação de alfarrobeiras com rega, sendo que a água é transportada de uma barragem a cerca de 300m.Está completamente limpo, acesso terra batida em bom estado, exposição solar nascente, próximo da localidade.Marque a sua visita, ao seu dispor para mais informações.Sobre Conceição e Cabanas de Tavira:A freguesia de Conceição e Cabanas de Tavira tem conhecido, nos últimos anos, um grande desenvolvimento, sobretudo, no que diz respeito à construção de habitação. No entanto, este crescimento passa por uma estratégia de sustentabilidade que contempla a qualidade de vida da população e dos seus visitantes, onde é possível desfrutar de uma boa refeição nos diferentes restaurantes e descansar nos diversos alojamentos da freguesia.Conceição e Cabanas de Tavira continuam a ser locais de paz e bem-estar, onde sabe bem viver e passear.Casas do Sotavento é uma empresa familiar, reconhecida no país e no estrangeiro, por clientes, colaboradores, investidores, pela qualidade das nossas ações e dos nossos projetos. A nossa missão é de proporcionar uma experiência fácil e tranquila.
AMI: 17215
Ref. Externa: SU-CS-TR-92421
Id: 1754826
Inicie sessão para guardar este imóvel e aceder à sua lista de favoritos em qualquer dispositivo.
Área de terreno : 1320 m²
Prédio Misto localizado a 14 kms de Tavira.Esta propriedade é composta por área urbana, em estado de ruína, com 110m², geminada, e área rústica de 1320m².Tem eletricidade no local, mas não tem água.Situada numa zona calma e elevada, tem uma relaxante vista para o mar e para o campo.Acesso por caminho de terra batida em estado razoável, com distância de 700m da estrada de alcatrão.Agende já uma visita!Sobre a Cidade de Tavira:Tavira é uma pequena cidade na costa algarvia de Portugal. Estende-se ao longo do rio Gilão, que chega ao mar através das entradas das lagoas do Parque Natural da Ria Formosa.A Ilha de Tavira tem uma longa praia arenosa e salinas que atraem flamingos, colhereiros e outras aves pernaltas.Tavira é cidade de uma história muito marcada pela reconquista cristã sendo que alguns dos seus marcos refletem essa mesma história: o castelo medieval de Tavira que oferece vistas para a cidade, a Ponte Romana que atravessa o rio Gilão, e as suas igrejas que guardam verdadeiros tesouros.Todas estas características apaixonam aqueles que visitam esta cidade fazendo com que queiram por cá ficar.Viver em Tavira é nunca mais querer viver noutro lugar.Casas do Sotavento é uma empresa familiar, reconhecida no país e no estrangeiro, por clientes, colaboradores, investidores, pela qualidade das nossas ações e dos nossos projetos.A nossa missão é proporcionar uma experiência fácil e tranquila a quem nos procura. A nossa preocupação, tratar toda a gente como gostaríamos de ser tratados.
AMI: 17215
Ref. Externa: SU-CS-TU-89796
Id: 1754830
Inicie sessão para guardar este imóvel e aceder à sua lista de favoritos em qualquer dispositivo.
Área de terreno : 185 m²
Ruína localizada num monte a cerca de 14km de TaviraEste imóvel de tipologia T2 conta com uma área total de 185.95m² distribuídos da seguinte forma: 176.96m² de área coberta e 8.99m² de área descoberta.Existe eletricidade no local.O acesso ao monte faz-se por um caminho de terra de cerca de 700m.Trata-se de uma zona calma e elevada com uma relaxante vista campo.A cidade de Tavira e a praia encontram-se a cerca de 15 minutos de carro.Agende já a sua visita.Sobre a Cidade de Tavira:Tavira é uma pequena cidade na costa algarvia de Portugal. Estende-se ao longo do rio Gilão, que chega ao mar através das entradas das lagoas do Parque Natural da Ria Formosa.A Ilha de Tavira tem uma longa praia arenosa e salinas que atraem flamingos, colhereiros e outras aves pernaltas.Tavira é cidade de uma história muito marcada pela reconquista cristã sendo que alguns dos seus marcos refletem essa mesma história: o castelo medieval de Tavira que oferece vistas para a cidade, a Ponte Romana que atravessa o rio Gilão, e as suas igrejas que guardam verdadeiros tesouros.Todas estas características apaixonam aqueles que visitam esta cidade fazendo com que queiram por cá ficar.Viver em Tavira é nunca mais querer viver noutro lugar.Casas do Sotavento é uma empresa familiar, reconhecida no país e no estrangeiro, por clientes, colaboradores, investidores, pela qualidade das nossas ações e dos nossos projetos.A nossa missão é proporcionar uma experiência fácil e tranquila a quem nos procura. A nossa preocupação, tratar toda a gente como gostaríamos de ser tratados.
AMI: 17215
Ref. Externa: SU-CS-TU-86315
Id: 1754833
Inicie sessão para guardar este imóvel e aceder à sua lista de favoritos em qualquer dispositivo.
Área de terreno : 37731 m²
Terreno Rústico Champana, Corte António MartinsEste terreno com 37.700m² com acesso por caminho de terra localiza-se próximo a Corte António Martins, na serra de Conceição de Tavira.Terreno muito fértil com uma charca.Agende já a sua visita.Sobre Conceição e Cabanas de Tavira:A freguesia de Conceição e Cabanas de Tavira tem conhecido, nos últimos anos, um grande desenvolvimento, sobretudo, no que diz respeito à construção de habitação. No entanto, este crescimento passa por uma estratégia de sustentabilidade que contempla a qualidade de vida da população e dos seus visitantes, onde é possível desfrutar de uma boa refeição nos diferentes restaurantes e descansar nos diversos alojamentos da freguesia.Conceição e Cabanas de Tavira continuam a ser locais de paz e bem-estar, onde sabe bem viver e passear.Casas do Sotavento é uma empresa familiar, reconhecida no país e no estrangeiro, por clientes, colaboradores, investidores, pela qualidade das nossas ações e dos nossos projetos. A nossa missão é de proporcionar uma experiência fácil e tranquila.
AMI: 17215
Ref. Externa: SU-CS-TR-93235
Id: 1754812
Inicie sessão para guardar este imóvel e aceder à sua lista de favoritos em qualquer dispositivo.
Área de terreno : 4460 m²
Terreno rustico situado no sítio da Galharda Tavira.Completamente limpo e plantado com alfarrobeiras e respetiva rega de água transportada.Algumas pequenas bacias de água na zona.Acesso terra batida, exposição solar nascente.Algo inclinado.Marque a sua visita.Casas do Sotavento é uma empresa familiar, reconhecida no país e no estrangeiro, por clientes, colaboradores, investidores, pela qualidade das nossas acções e dos nossos projecto. A nossa missão é de proporcionar uma experiência fácil e tranquila. A nossa preocupação, tratar toda a gente como gostaríamos de ser tratados.
AMI: 17215
Ref. Externa: SU-CS-TR-92423
Id: 1754818
Inicie sessão para guardar este imóvel e aceder à sua lista de favoritos em qualquer dispositivo.
Área de terreno : 5550 m²
Terreno Rústico com 5.550m² - Próximo a Localidade Curral dos Boieiros, em Conceição - Tavira -Algarve.Terreno Com Árvores. Bons acesso. Vista desafogada da Serra Algarvia.Próximo da Conduta de água. Água de rega.Localizado a 15 minutos de Tavira e da Praia de Cabanas de Tavira.Aeroporto de Faro a 45 minutos.Marque a sua visita.
AMI: 17215
Ref. Externa: SU-CS-TR-86051
Id: 1754791
Inicie sessão para guardar este imóvel e aceder à sua lista de favoritos em qualquer dispositivo.
Área de terreno : 9550 m²
Excelente oportunidade! Terreno com 9.550m² localizado na deslumbrante Carrapateira em Tavira - Algarve.Este terreno possui uma localização privilegiada, com fácil acesso por estrada asfaltada, garantindo conveniência e comodidade.Uma das características únicas deste terreno é a presença de um poço com água, proporcionando uma fonte sustentável e confiável de abastecimento.Com uma área tão generosa, este terreno oferece uma infinidade de possibilidades para desenvolver um projeto de acordo com suas necessidades e desejos.A Carrapateira em Tavira é conhecida por sua beleza natural, paisagens deslumbrantes e ambiente tranquilo, tornando-se um lugar perfeito para construir a casa dos seus sonhos ou investir em uma propriedade promissora.Não perca esta oportunidade única de adquirir um terreno com acesso conveniente, poço de água e um vasto potencial de desenvolvimento. Entre em contato connosco hoje mesmo para mais informações e descubra como transformar seus planos em realidade.Bons acessos. Terreno com ótima exposição solar. Com algumas árvores e leito d´água.Vista desafogada da serra e do campo.Terreno limpo com árvores e pastagem.A 25 minutos de carro das melhores praias do Algarve.A 25 minutos de da fronteira com Ayamonte, Espanha.Localizado a 55 minutos do Aeroporto de Faro.Marque a sua visita!A Casas do Sotavento é uma imobiliária líder, especializada em propriedades de alta qualidade. Nosso compromisso é garantir uma experiência tranquila e satisfatória para nossos clientes, colaboradores e investidores. Com uma reputação sólida tanto em Portugal quanto no exterior, somos conhecidos pelo nosso alto padrão de qualidade em produtos e projetos imobiliários.Valorizamos o respeito e a atenção a todas as pessoas, e buscamos oferecer um serviço transparente e honesto em todas as etapas do processo de compra, desde a seleção do imóvel até a entrega final. Se você está em busca de uma empresa confiável e experiente para ajudá-lo a encontrar a propriedade dos seus sonhos, a Casas do Sotavento é a escolha certa.Nossa equipe dedicada e profissional está pronta para orientá-lo e auxiliá-lo em todas as suas necessidades imobiliárias. Com um amplo conhecimento do mercado local e uma extensa rede de parceiros, estamos bem posicionados para oferecer as melhores opções de imóveis que atendam às suas preferências e requisitos.Não importa se você está procurando uma casa de praia, uma propriedade para investimento ou um lugar para chamar de lar, estamos empenhados em encontrar a solução perfeita para você. Entre em contato conosco hoje mesmo e descubra como podemos ajudá-lo a transformar seu sonho imobiliário em realidade.
AMI: 17215
Ref. Externa: SU-CS-TR-86180
Id: 1754758
Inicie sessão para guardar este imóvel e aceder à sua lista de favoritos em qualquer dispositivo.
Área de terreno : 12000 m²
Terreno rústico situado no sítio da Galharda (Serro Alto), boas áreas, bom acesso, totalmente limpo, com algumas árvores de fruto, (oliveiras, videiras, laranjeiras, damasqueiro) um poço com água o ano inteiro.Tem uma estrada de terra batida que atravessa o terreno em dois locais e plataformas onde já esteve uma caravana em tempos.Pequena horta onde poderá fazer a sua agricultura caseira.Venha ás nossa instalações e damos todos as informações sobre o mesmo.Marque a sua visita.Sobre Conceição e Cabanas de Tavira:A freguesia de Conceição e Cabanas de Tavira tem conhecido, nos últimos anos, um grande desenvolvimento, sobretudo, no que diz respeito à construção de habitação. No entanto, este crescimento passa por uma estratégia de sustentabilidade que contempla a qualidade de vida da população e dos seus visitantes, onde é possível desfrutar de uma boa refeição nos diferentes restaurantes e descansar nos diversos alojamentos da freguesia.Conceição e Cabanas de Tavira continuam a ser locais de paz e bem-estar, onde sabe bem viver e passear.Casas do Sotavento é uma empresa familiar, reconhecida no país e no estrangeiro, por clientes, colaboradores, investidores, pela qualidade das nossas ações e dos nossos projetos. A nossa missão é de proporcionar uma experiência fácil e tranquila.
AMI: 17215
Ref. Externa: SU-CS-TR-92420
Id: 1754743
Inicie sessão para guardar este imóvel e aceder à sua lista de favoritos em qualquer dispositivo.
Profissionais que conhecem esta zona a fundo — contacte-os para uma avaliação personalizada.
Área de terreno : 23000 m²
Terreno Rústico com 2,3ha situado numa povoação da freguesia da Conceição de Tavira.Este terreno é atravessado por um caminho público, de terra mas em bom estado.Tem uma pequena nascente de água e encontra-se totalmente limpo.Terreno de declive moderado.Perfeito para exploração de frutos secos.A 10 minutos de distância da Conceição de Tavira, 12 de Tavira.Sobre Conceição de Tavira:A freguesia de Conceição de Tavira tem conhecido, nos últimos anos, um grande desenvolvimento, sobretudo, no que diz respeito à construção de habitação. No entanto, este crescimento passa por uma estratégia de sustentabilidade que contempla a qualidade de vida da população e dos seus visitantes, onde é possível desfrutar de uma boa refeição nos diferentes restaurantes e descansar nos diversos alojamentos da freguesia.Conceição de Tavira continua a ser um local de paz e bem-estar, onde sabe bem viver e passear.Casas do Sotavento é uma empresa familiar, reconhecida no país e no estrangeiro, por clientes, colaboradores, investidores, pela qualidade das nossas acções e dos nossos projecto. A nossa missão é de proporcionar uma experiência fácil e tranquila. A nossa preocupação, tratar toda a gente como gostaríamos de ser tratados.
AMI: 17215
Ref. Externa: SU-CS-TR-87517
Id: 1754735
Inicie sessão para guardar este imóvel e aceder à sua lista de favoritos em qualquer dispositivo.
Área de terreno : 13583 m²
Terreno Misto com 13583,22m² e ruína com 7m² destinado a arrecadação ou estrutura de apoio agrícola.Sem possibilidade de aumentar área da ruína para habitação.Situado em zona calma na serra da Conceição de Tavira, a cerca de 6Km do Campo de Golfe Monte Rei e a cerca de 15 Km da praia.Tem electricidade, água da rede e esgotos no limite do terreno.Óptimo para projecto agrícola.Sobre a Cidade de Tavira:Tavira é uma pequena cidade na costa algarvia de Portugal. Estende-se ao longo do rio Gilão, que chega ao mar através das entradas das lagoas do Parque Natural da Ria Formosa.A Ilha de Tavira tem uma longa praia arenosa e salinas que atraem flamingos, colhereiros e outras aves pernaltas.Tavira é cidade de uma história muito marcada pela reconquista cristã sendo que alguns dos seus marcos refletem essa mesma história: o castelo medieval de Tavira que oferece vistas para a cidade, a Ponte Romana que atravessa o rio Gilão, e as suas igrejas que guardam verdadeiros tesouros.Todas estas características apaixonam aqueles que visitam esta cidade fazendo com que queiram por cá ficar.Viver em Tavira é nunca mais querer viver noutro lugar.Casas do Sotavento é uma empresa familiar, reconhecida no país e no estrangeiro, por clientes, colaboradores, investidores, pela qualidade das nossas ações e dos nossos projetos.A nossa missão é proporcionar uma experiência fácil e tranquila a quem nos procura. A nossa preocupação, tratar os outros como gostaríamos de ser tratados.
AMI: 17215
Ref. Externa: SU-CS-TU-85358
Id: 1728465
Inicie sessão para guardar este imóvel e aceder à sua lista de favoritos em qualquer dispositivo.
Área de terreno : 7263 m²
Terreno rústico com 7263m², situado a cerca de 6 Km da cidade de Tavira.Bons acessos ao terreno, com água da rede e electricidade no local.O terreno é totalmente plano e fica localizado em zona agrícola.Agende já a sua visita!Casas do Sotavento é uma empresa familiar, reconhecida no país e no estrangeiro, por clientes, colaboradores, investidores, pela qualidade das nossas ações e dos nossos projetos.A nossa missão é proporcionar uma experiência fácil e tranquila a quem nos procura. A nossa preocupação, tratar toda a gente como gostaríamos de ser tratados.Sobre a Cidade de Tavira:Tavira é uma pequena cidade na costa algarvia de Portugal. Estende-se ao longo do rio Gilão, que chega ao mar através das entradas das lagoas do Parque Natural da Ria Formosa.É cidade de uma história muito marcada pela reconquista cristã sendo que alguns dos seus marcos refletem essa mesma história: o castelo medieval de Tavira que oferece vistas para a cidade, a Ponte Romana que atravessa o rio Gilão, e as suas igrejas que guardam verdadeiros tesouros.Todas estas características apaixonam aqueles que visitam esta cidade fazendo com que queiram por cá ficar.Viver em Tavira é nunca mais querer viver noutro lugar.
AMI: 17215
Ref. Externa: SU-CS-TV-60003
Id: 1728065
Inicie sessão para guardar este imóvel e aceder à sua lista de favoritos em qualquer dispositivo.
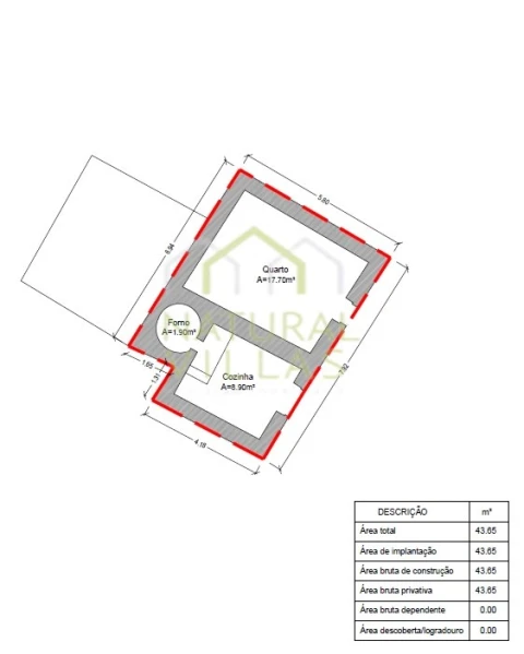
Área de terreno : 223 m²
Oportunidade de investimento em ambiente tranquilo no Algarve. Venda de 2 Ruínas distintas, inseridas em pequeno aglomerado urbano a norte de Conceição de Tavira. A primeira ruína é composta por um piso térreo, inserida em lote de terreno de 179m2, dispondo de área de implantação de 47m2 e área descoberta de 132m2. A segunda ruína igualmente composta por um piso térreo, de área total de terreno e implantação de 43,65m2. Apesar de não confinarem entre si, as duas ruínas encontram-se a poucos passos de distância, permitindo uma utilização complementar. Localizada numa zona calma, com vizinhança pacata, acessos alcatroados e proximidade a serviços de rede pública. Tranquilidade e qualidade de vida garantidas a cerca de 15 minutos de carro do centro urbano de Conceição de Tavira. Marque já a sua visita através do nosso website! (Visite a seção vídeos para ficar a saber como o fazer!) Todos os agendamentos estão sujeitos a confirmação telefónica. Para mais informações não hesite em contactar. 'A SUA CASA NO ALGARVE'
AMI: 8923
Ref. Externa: RUÍ_2612_VEND
Id: 1690776
Inicie sessão para guardar este imóvel e aceder à sua lista de favoritos em qualquer dispositivo.
Área de terreno : 71000 m²
? Oportunidade Estratégica em Tavira – Champana Procura o local perfeito para um projeto exclusivo no Algarve? Apresento este terreno excecional com 7 hectares na zona da Champana, Tavira. Um verdadeiro refúgio que combina a escala do latifúndio com um potencial de construção raramente encontrado. O que torna este terreno único? Versatilidade Total: Quer pretenda uma moradia de sonho ou um empreendimento turístico, as métricas são claras: Habitação Própria: Ampliação da ruína até 300 m². Turismo Rural: Capacidade construtiva até 2.000 m². Privacidade e Natureza: 70.000 m² de terreno para garantir isolamento total, mantendo a proximidade a Tavira. Investimento Seguro: Uma localização em crescente valorização, ideal para projetos de nicho ou luxo sustentável. Interessado(a)? Fale com quem percebe do mercado. Branca Castro KW Portugal ? +351 964 582 983 ? [email protected]
AMI: 23350
Ref. Externa: KWPT-027984
Id: 1666309
Inicie sessão para guardar este imóvel e aceder à sua lista de favoritos em qualquer dispositivo.
Área de terreno : 2789 m²
Ruína para recuperar, com projecto aprovado para moradia térrea com 4 suites, sala e cozinha em 'open espace', arrumos, dispensa, wc social, terraços, BBQ, deck, piscina e eira. Excelente exposição solar, orientado a sul, com uma vista de perder o folgo. A 10km de Tavira. Venha visitar.
AMI: 12910
Ref. Externa: 570MR-1
Id: 1442747
Inicie sessão para guardar este imóvel e aceder à sua lista de favoritos em qualquer dispositivo.
Área de terreno : 1002 m²
Uma oportunidade excepcional para adquirir uma grande ruína situada num ambiente rural tranquilo com vista mar e montanha. Inserida num terreno de 1000 m2, esta propriedade é perfeita para quem procura restaurar uma estrutura tradicional ou desenvolver uma casa única num dos locais mais tranquilos e pitorescos disponíveis. A ruína oferece caráter, charme e uma tela em branco para a visão criativa. Se você sonha com um retiro no campo, uma casa de família ou um refúgio ecológico, esta propriedade oferece o espaço e o cenário para dar vida às suas ideias. O terreno é amplo o suficiente para acomodar jardins, terraço ou horta, enquanto desfruta de vistas ininterruptas da natureza circundante e do litoral. O acesso é uma estrada de alcatrão que leva a uma trilha de pedra que exigirá alguma limpeza. As conexões de água e eletricidade estão próximas, simplificando o processo de desenvolvimento ou renovação. Localizada em uma área rural tranquila e intocada, a propriedade oferece paz, privacidade e uma conexão genuína com a natureza, enquanto ainda está a uma curta distância de carro do café e restaurante local. A paisagem circundante é ideal para caminhadas, ciclismo e vida ao ar livre. Uma joia rara para investidores, construtores ou sonhadores que buscam algo verdadeiramente especial.
AMI: 19171
Ref. Externa: PL/843
Id: 1441140
Inicie sessão para guardar este imóvel e aceder à sua lista de favoritos em qualquer dispositivo.
Área de terreno : 2789 m²
Lote com projecto aprovado para moradia térrea com 4 suites, sala e cozinha em 'open espace', arrumos, dispensa, wc social, terraços, BBQ, deck, piscina e eira. Excelente exposição solar, orientado a sul, com uma vista de perder o folgo. A 10km de Tavira. Venha visitar.
AMI: 12910
Ref. Externa: 570MR
Id: 1415483
Inicie sessão para guardar este imóvel e aceder à sua lista de favoritos em qualquer dispositivo.
Localizada na pitoresca cidade de Tavira, na cobiçada região do Algarve, em Portugal, esta impressionante propriedade em ruínas apresenta uma oportunidade rara e emocionante para quem procura projetar e construir a casa dos seus sonhos ou desenvolver um projeto de investimento único. Empoleirada no topo de uma colina tranquila, a propriedade oferece vistas panorâmicas deslumbrantes sobre a paisagem circundante, com vislumbres distantes do mar e da dramática costa algarvia. A orientação sudoeste garante que a propriedade seja banhada pela luz natural do sol durante todo o dia, criando uma atmosfera iluminada e acolhedora, ideal para a vida interna e externa. Se você imagina um retiro tranquilo, uma villa moderna e elegante ou um refúgio encantador no campo, esta tela em branco oferece um potencial infinito de transformação. A estrutura principal é composta por várias salas, oferecendo uma base sólida para a renovação. Além disso, um anexo na propriedade pode servir como garagem independente, acomodação para hóspedes ou até mesmo aluguel de temporada independente, agregando mais valor e flexibilidade ao projeto. O acesso à propriedade é fácil através de estradas bem conservadas, e o ambiente rural tranquilo fica a apenas 10 minutos de carro da simpática vila de Vila Nova de Cacela. Aqui, você encontrará comodidades essenciais, incluindo supermercados, cafés, restaurantes, farmácia e centro de saúde. Esta é uma chance verdadeiramente rara de investir em um pedaço do charme intocado do Algarve, com espaço, vistas e potencial para criar algo extraordinário. Quer procure um santuário pessoal ou um projeto com grande potencial de retorno, esta propriedade em Tavira é imperdível. Entre em contato conosco hoje para marcar uma visita e começar a planejar o futuro desta propriedade excepcional. A casa dos sonhos que você está procurando pode começar aqui.
AMI: 19171
Ref. Externa: PL/844
Id: 1345716
Inicie sessão para guardar este imóvel e aceder à sua lista de favoritos em qualquer dispositivo.
Área de terreno : 218000 m²
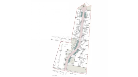
Terreno com 21,8 Hectares, nas imediações da Cidade de Tavira num local com excelente potencial de desenvolvimento, Sotavento Algarvio, a 37 KM de Faro, ( a 39 Km do Aeroporto ). O Plano de Pormenor onde o Terreno se integra, permite desenvolver um projecto com um potencial construtivo de 76.021 m2 para área Residencial, um Hotel, e espaço Comercial. O Lote divide-se em três unidades de execução e uma área Rústica, facilitando o adequado faseamento do projecto. Parte do terreno adjacente será mantido rústico ( 79.885m2 ). Informações em pormenor serão facultadas exclusivamente ás entidades interessadas. Não aceitamos Parcerias. NOTA: As informações aqui prestadas carecem de confirmação e não podem ser consideradas vinculativas.
AMI: 1863
Ref. Externa: TER_0500_020250787
Id: 1312773
Inicie sessão para guardar este imóvel e aceder à sua lista de favoritos em qualquer dispositivo.
© Copyright 2023 | CASACERTA. All rights reserved
Guardar favoritos
Este imóvel foi guardados nos seus favoritos com sucesso.
Para poder guardar pesquisa deverá ter a sua sessão iniciada.
Caso não tenha uma conta, deverá criar uma.
A sua pesquisa foi guardada com sucesso!
Este site utiliza cookies. Ao navegar no site estará a consentir a sua utilização.
Para mais informações sobre os cookies pode consultar a
política de privacidade.