Lista
Comprar
Arrendar
1.150.000 €
Área de terreno : 8110 m²
Terreno localizado na Fajã da Ovelha com enquadramento paisagístico de elevada qualidade. Inserido no concelho da Calheta com acessos eficientes e contexto de valorização contínua. Terreno plano que permite execução construtiva otimizada e redução de custos técnicos. Vista mar definitiva que assegura valorização patrimonial e atratividade comercial futura. Imóvel indicado para empreendimento turístico ou hotel e projeto de grande escala. Valor de 141 euros por metro quadrado com posicionamento competitivo no mercado atual. Preço negociável permitindo flexibilidade estratégica na decisão de investimento. Terreno imponente com presença marcante e potencial diferenciador no mercado. Situado no Miradouro do Massapez com projeção visual privilegiada sobre o oceano. Área total de 8.110 m² que viabiliza soluções arquitetónicas amplas e rentáveis. Vídeo YouTube https://www.youtube.com/watch?v=2_gyweZPApU Google Maps https://maps.app.goo.gl/FJkLm8uVZh2yacrNA Link do site https://www.d31imo.biz/imovel--6204531 Referência AU_AL_314 Se você é um consultor imobiliário, não hesite em entrar em contacto connosco para uma parceria de 50%-50%. Sousa 967 924 403 D31 AMI 23602 https://www.d31imo.biz https://www.d31.biz
AMI: 23602
Ref. Externa: AU_AL_314
Id: 1562644
Inicie sessão para guardar este imóvel e aceder à sua lista de favoritos em qualquer dispositivo.
550.000 €
Área de terreno : 2295 m²
Procura o lugar ideal para construir a sua moradia de sonho? Próximo à praia, com vista mar e em zona quente toda o ano? Este poderá ser o ideal para si! Este terreno de 2295m2, fica localizado na Fajã do Mar, na Arco da Calheta. Apenas 200m acima do nível do mar, e oferece-lhe proximidade e acesso rápido a vários serviços e pontos de interesse da Calheta, tais como: Praia da Calheta (5min de distância a pé). onde poderá apanhar belos banhos de sol. Fazer as suas compras mensais no supermercado Pingo Doce, jantar com amigos nos vários e variados restaurantes localizados na Marina da Calheta ou até mesmo ter o seu próprio barco por lá. O Museu de Arte Contemporânea da Calheta (a 2.2km de distância) e a Estrela da Calheta (3.1km de distância) onde encontrará todo o tipo de serviços como veterinários, Centro de Saúde, bancos, entre outros essenciais para o dia-a-dia. Não perca a oportunidade de comprar este excelente terreno com vista para o mar na ilha da Madeira. Agenda já a sua visita!
AMI: 14912
Ref. Externa: GR-HL894
Id: 1558088
Inicie sessão para guardar este imóvel e aceder à sua lista de favoritos em qualquer dispositivo.
375.000 €
Área de terreno : 2504 m²
Oportunidade rara na costa oeste da Madeira. Apresentamos um terreno com 2.504 m², situado no Sítio dos Falcões, Fajã da Ovelha uma zona reconhecida pelo ambiente natural, tranquilidade absoluta e pela vista mar definitiva de 180º, completamente desobstruída. O lote é composto por vários artigos rústicos e inclui um artigo urbano (Artigo 96) com construção registada, ideal para reabilitação ou substituição futura, conforme legislação municipal. Adicionalmente, o levantamento topográfico identifica um segundo edifício existente, classificado como 'Armazém' no mapa (lado sul do terreno), ampliando o potencial de uso e valorização futura do imóvel Faja da Ovelha - Sr. João Pere . A morfologia do terreno suave, bem escalonada e com plataformas naturais permite integrar facilmente uma moradia de luxo, eco-villas ou um pequeno empreendimento turístico de alto valor. A implantação proposta nas peças arquitetónicas anexas demonstra a viabilidade de criar uma propriedade exclusiva com piscina, zonas sociais amplas e orientação total para o oceano. A localização está validada pela Planta SIG do Município da Calheta, inserindo o terreno num contexto de natureza, baixa densidade habitacional e acesso rápido à estrada regional, bares, restaurantes e praias da zona. Destaques do imóvel: 2.504 m² com vista mar permanente de 180º Edifício urbano registado (Art. 96) para possível reabilitação ou substituição Segundo edifício existente ('Armazém') incluído no levantamento topográfico Plataformas naturais que facilitam a construção Potencial para projeto de luxo, eco-resort, glamping premium ou habitação unifamiliar Projeto arquitetónico preliminar disponível (opcional) Zona extremamente tranquila, ensolarada e com privacidade máxima Investimento com forte valorização futura Preço: €375.000 Este terreno combina legalidade sólida, construções existentes, topografia favorável e uma vista mar absolutamente única um conjunto praticamente impossível de encontrar novamente na zona.
AMI: 17917
Ref. Externa: TER_132
Id: 1500130
Inicie sessão para guardar este imóvel e aceder à sua lista de favoritos em qualquer dispositivo.
375.000 €
Área de terreno : 1294 m²
Excelente oportunidade de investimento na tranquila e pitoresca Fajã da Ovelha. Este terreno com 1.294 m² oferece uma vista deslumbrante sobre o mar e situa-se numa zona extremamente sossegada, ideal para projetos turísticos ou habitacionais. Conta com boa capacidade construtiva e um anteprojeto para 5 moradias, existindo também a possibilidade de desenvolver um pequeno hotel. O acesso será melhorado pela Câmara Municipal, o que valoriza ainda mais esta propriedade. Uma oportunidade única para quem procura investir num local com beleza natural, tranquilidade e grande potencial de valorização. Na Keller Williams partilhamos negócios com todos os consultores ou agências imobiliárias. Se é profissional do sector e tem um cliente comprador, contacte-me e agende a sua visita. ***Juntos fazemos mais pelos nossos clientes***
AMI: 13132
Ref. Externa: KWPT-011102
Id: 1430862
Inicie sessão para guardar este imóvel e aceder à sua lista de favoritos em qualquer dispositivo.
120.000 €
Área de terreno : 280 m²
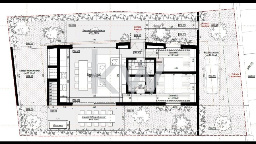
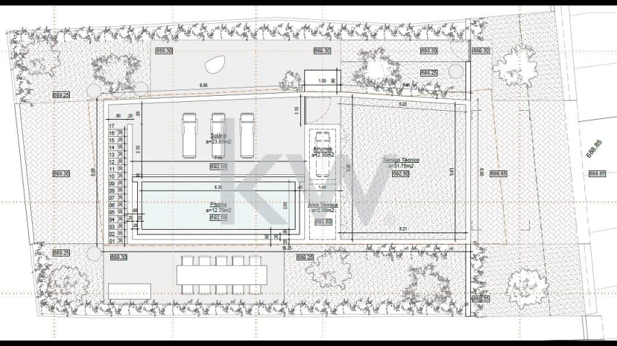
Terreno localizado em São João, na Fajã da Ovelha, com projeto de arquitetura aprovado na Câmara Municipal da Calheta. O terreno será vendido com todos os projetos aprovados para uma moradia T2, com 2 WCs, cozinha e sala em open-space no primeiro piso. Na cobertura está prevista uma piscina, um solário e ainda zona para terraço, de onde poderá ter uma vista desimpedida para o mar e a serra. Descrição do projeto: Ao entrar na moradia encontramos um pequeno hall que faz a distribuição para um quarto, a casa de banho social e a zona pública da moradia, onde está incluída a sala de estar, sala de jantar e cozinha, em open-space. Através da zona pública é possível ter acesso ao quarto principal, em suite, com casa de banho privativa. O open-space permite a saída para o exterior, para o lado nascente e poente, onde no lado nascente foi preconizado um espaço de estadia pavimentado, e no lado poente, um espaço de refeição exterior acompanhado por uma zona de churrasco. Através do espaço exterior poente e nascente é possível aceder ao espaço exterior norte, onde foi preconizada uma zona multifuncional para secar roupa, e para a zona de arrumos localizada por debaixo da escada de acesso ao terraço. No terraço, na zona norte, foi implantada uma piscina, com vista desafogada sobre o mar e sobre o prado envolvente. A piscina, de forma a manter a segurança de quem a utiliza, está afastada do limite da moradia 60cm, nos três lados, sendo que o outro lado sobrante é onde é feito ao acesso á mesma através do solário. Na zona sul do terraço foi dedicado um espaço para a arrumos do mobiliário de exterior, e um compartimento técnico para os equipamentos da piscina. Nesta zona também ficarão localizadas as máquinas exteriores de AVAC, assim como os painéis fotovoltaicos e respetiva bomba de calor. Os vãos exteriores da zona social vão até ao pavimento, permitindo acesso ao jardim que concede momentos de convívio e de lazer, e os vãos dos quartos são de parapeito com uma janela projetante, que permite a entrada de luz solar e a ventilação do espaço. Em suma, os vãos e entradas de luz são orientados a Nascente e Poente e a moradia foi projetada de forma concisa para poder beneficiar dos espaços exteriores.
AMI: 13132
Ref. Externa: KWPT-003828
Id: 1426675
Inicie sessão para guardar este imóvel e aceder à sua lista de favoritos em qualquer dispositivo.
110.000 €
Área de terreno : 714 m²
Terreno Fajã da Ovelha Imagina acordar todos os dias com uma vista de sonho sobre o mar ?☀️ Na Fajã da Ovelha, espera por ti um terreno com 714 m², acesso a carro e um projeto já aprovado para construir a tua moradia T1 de sonho ?? Um espaço onde podes criar o teu refúgio, rodeado de natureza, tranquilidade e uma vista simplesmente inesquecível ? Não é só um terreno… é o início de uma nova vida ? ?Fajã da Ovelha – onde o céu e o mar se encontram ? ? Estas fotos ainda não são as profissionais, mas em breve teremos imagens oficiais e um vídeo promocional incrível para te mostrar tudo com ainda mais detalhe ?✨ Terreno Fajã da Ovelha Imagine waking up every day to a dream view over the ocean ?☀️ In Fajã da Ovelha, there’s a 714 m² plot waiting for you — with car access and an approved project to build your dream 1-bedroom villa ?? A place to create your own retreat, surrounded by nature, peace, and an unforgettable sea view ? It’s not just a plot… it’s the beginning of a new life ? ?Fajã da Ovelha – where the sky meets the sea ? ? These photos are not the professional ones yet, but soon we’ll share official images and an amazing promotional video to show you every detail ?✨ A MILLION GROUP surge da união de sinergias, da complementaridade e experiência dos seus fundadores. Que iniciaram a sua colaboração sob a matriz de uma marca internacional e decidem criar um novo conceito para o setor imobiliário. Sentiram os desafios com uma perspetiva mais universal e flexível na abordagem do mercado imobiliário, e a criação da marca MILLION GROUP vem responder a todas as necessidades. Era preciso dar corpo a uma filosofia e uma forma de estar no mercado, nova e diferenciadora. Os nossos valores CONFIANÇA, PROXIMIDADE, MATURIDADE, UNIVERSALIDADE. CONFIANÇA – Conquistada interna e externamente pelo rigor e a lealdade na relação que estabelecemos com os nossos Consultores, Parceiros, Clientes e Amigos. PROXIMIDADE – Uma relação sincera, com acompanhamento, apoio e disponibilidade permanente. MATURIDADE – Um património de experiência e conhecimento no mercado imobiliário. UNIVERSALIDADE – Baseada numa presença abrangente em todos os segmentos de mercado, a profissionalizar os nossos consultores com foco na satisfação dos nossos clientes. O que fazemos "Concretizamos sonhos" Uma verdadeira síntese emocional do que fazemos todos os dias. Conciliamos compradores e vendedores, promovemos negócios e apoiamos a sua concretização.
AMI: 22034
Ref. Externa: MGM00612
Id: 1423257
Inicie sessão para guardar este imóvel e aceder à sua lista de favoritos em qualquer dispositivo.
110.000 €
Área de terreno : 480 m²
Localizado na pitoresca freguesia da Fajã da Ovelha, concelho da Calheta, este terreno urbano com 480 m² é a oportunidade ideal para quem procura construir a sua casa de sonho numa das zonas mais tranquilas e ensolaradas da Madeira. O lote destaca-se pela sua excelente exposição solar, bons acessos e envolvência natural, oferecendo um ambiente calmo e acolhedor. A proximidade ao mar e às áreas rurais típicas desta região garante um cenário único, perfeito para quem valoriza qualidade de vida, privacidade e contacto direto com a natureza. Com acesso direto à estrada e inserido numa zona habitacional em crescimento, este terreno representa não apenas um espaço para habitação própria, mas também uma oportunidade de investimento numa das áreas mais procuradas do concelho da Calheta. Para mais informações ou agendamento de visita contacte o nosso consultor ONE. Realty ONE Group A Realty ONE Group é atualmente a marca imobiliária com o crescimento mais rápido nos Estados Unidos. Com mais de 20 anos de experiência, está presente em 26 países e continua a expandir-se a nível global. À frente da marca está Vinnie Tracey, presidente da Realty ONE Group, que durante 40 anos liderou uma das maiores referências mundiais do setor. Com a sua vasta experiência, está a consolidar a Realty ONE Group como uma das marcas líderes nos Estados Unidos e no mundo. Motivos para escolher a ONE As Pessoas Primeiro. Os nossos consultores recebem formação de excelência, nacional e internacional, ministrada pelos melhores especialistas em todas as vertentes do negócio. Toda a formação é gratuita, garantindo que a equipa está preparada para o apoiar com máxima eficiência. “Enquanto desfruta dos prazeres da sua vida, compre e venda o seu imóvel de forma rápida, simples e segura.” ONE House. ONE Dream. ONE Life(style).
AMI: 20050
Ref. Externa: ONE361867-28
Id: 1421604
Inicie sessão para guardar este imóvel e aceder à sua lista de favoritos em qualquer dispositivo.
149.000 €
Área de terreno : 610 m²
Terreno plano com 610 metros quadrados, situado na Fajã da Ovelha - Calheta, com excelente vista mar e com projeto acabado de ser aprovado. Próximo de todos os acessos. Zona muito sossegada rodeada pela natureza, onde poderá desfrutar de um pôr do sol no mar 365 dias por ano. Zona em crescente Valorização! Construa a sua Moradia de sonho! Marque já a sua visita! Ligue-me para mais informações: Nuno Barros - 00351968296936 - [email protected]
AMI: 20107
Ref. Externa: 24-1059
Id: 1279279
Inicie sessão para guardar este imóvel e aceder à sua lista de favoritos em qualquer dispositivo.
120.000 €
Área de terreno : 990 m²
Terreno com 990 m2 na Fajã da Ovelha, atrás do Bar Formiga, com viabilidade de construção uma moradia unifamiliar isolada. Configuração rectangular e sem declive, permite uma com construção fácil. O terreno beneficia de uma excelente exposição solar, garantindo luminosidade natural durante todo o dia. Excelentes acessos, facilitando a entrada e saída da propriedade e proporcionando conveniência no dia a dia. Obs: Possui projecto de licenciamento de uma moradia unifamiliar com parecer positivo da CM da Calheta. Venha conhecer!! _________________________________________________________________________________________________________________________________________
AMI: 12570
Ref. Externa: HH_2512MD25
Id: 1216896
Inicie sessão para guardar este imóvel e aceder à sua lista de favoritos em qualquer dispositivo.
145.000 €
Área de terreno : 618 m²
-------------------------------------- **** CRYPTO ACCEPTED **** ** LEGALISED BY NOTARY ** * find out more - contact us * -------------------------------------- Construa a Casa dos Seus Sonhos com Vista Mar Aceitamos Cripto moedas! Escondido na beleza serena da Fajã da Ovelha, este maravilhoso terreno de 618 metros quadrados oferece mais do que espaço oferece possibilidades. Com o pedido de viabilidade já está a um passo de tornar o seu projeto realidade. Imagine uma casa com até 200m² de construção, 8,5 metros de altura, permitindo dois pisos e garagem tudo estrategicamente posicionado para aproveitar a deslumbrante vista para o oceano Atlântico. Rodeado pela natureza e pela tranquilidade absoluta, aqui o tempo desacelera, o canto dos pássaros substitui o trânsito e os dias pacíficos fazem parte da rotina. O acesso ao terreno é fácil, toda a documentação está em ordem e, se precisar, oferecemos apoio com indicações de construtores e profissionais locais de confiança. Acreditamos em possibilidades modernas: aceitamos pagamento em Bitcoin ou outras cripto moedas e acompanhamos todo o processo do sonho à concretização. English Build Your Dream Home in Paradise with Ocean Views and Crypto-Friendly Options! Tucked away in the serene beauty of Fajã da Ovelha, this stunning 618 sqm plot of land offers more than just spaceit offers possibility. With a Construction Feasibility Analysis, youre one step closer to building the home of your dreams. Picture a beautiful house with up to 200m² of construction, 8.5 meters high, allowing for two floors and a garageall perfectly positioned to soak in the breathtaking Atlantic Ocean views. Surrounded by lush nature and absolute tranquility, this is where time slows down, birdsong replaces traffic, and peaceful days are simply part of life. Access is easy, all documents are in order, and if you need guidance, were here to help connect you with trusted builders and local professionals. We believe in modern possibilities too: payment is accepted in Bitcoin or other cryptocurrencies, and well support you throughout the entire processfrom dream to reality. Your island sanctuary awaits. Lets build it together. Dana Munteanu +351 931 187 938 Chamada para a rede móvel nacional
AMI: 10701
Ref. Externa: 11708-DM
Id: 1196769
Inicie sessão para guardar este imóvel e aceder à sua lista de favoritos em qualquer dispositivo.
250.000 €
Área de terreno : 1079 m²
-------------------------------------- **** CRYPTO ACCEPTED **** ** LEGALISED BY NOTARY ** * find out more - contact us * -------------------------------------- Terreno com vista de mar e definitiva, paisagem deslumbrante com a natureza e o silêncio predominantes numa zona muito calma. Este terreno contempla Projeto aprovado e especialidades para moradia com piscina. Acesso a carro. Regime de Uso e Ocupação - Espaços Agrícolas a) Primeira habitação; b) Empreendimentos turísticos; c) Edifícios destinados a Alojamento Local; d) Equipamentos de utilização coletiva ou de interesse público; e) Postos de abastecimento combustível ou abastecimento elétrico de viaturas; e) Atividades socioculturais; Para mais informações: Martina Vieira +351926333174 (chamada para rede fixa)
AMI: 10701
Ref. Externa: 11707-MV
Id: 1189478
Inicie sessão para guardar este imóvel e aceder à sua lista de favoritos em qualquer dispositivo.
250.000 €
Área de terreno : 1110 m²
-------------------------------------- **** CRYPTO ACCEPTED **** ** LEGALISED BY NOTARY ** * find out more - contact us * -------------------------------------- Terreno com vista de tirar a respiração na Fajã da Ovelha É possível construir moradia térrea, ou duas geminadas, numa zona altamente silenciosa onde o fatos com maior relevância é a natureza. Acesso a carro. a) Índice de Utilização do solo máximo: 0,5; b) Área total de construção: 400 m²; c) Índice de impermeabilização do solo máximo: 40%; d) Altura total da edificação, valor máximo: 10 m; e) Altura da edificação, valor máximo: 7 m; f) Afastamentos laterais e de tardoz mínimos: 3 m; g) Afastamento ao eixo da via mínimo: 6 m. Para mais informações contacte: Martina Vieira +351926333174 Chamada para a rede móvel nacional
AMI: 10701
Ref. Externa: 11677-MV
Id: 1189241
Inicie sessão para guardar este imóvel e aceder à sua lista de favoritos em qualquer dispositivo.
110.000 €
Área de terreno : 480 m²
Fantástico terreno na Maloeira, Calheta! A costa Sul da Ilha da Madeira é conhecida pelas suas excelentes condições climatéricas e esta zona em específico é caracterizada pelo sossego e serenidade! O facto de este terreno ter uma boa capacidade de construção faz com que seja uma mais valia, podendo facilmente ter a sua casa de sonho. Não perca esta oportunidade, aposte na Casa Certa! CASAS & TETO - Mediação Imobiliária, Lda. Somos intermediários de crédito certificados e ajudamos-lhe a encontrar as melhores soluções do mercado! Aproveite este serviço gratuito que temos para lhe oferecer; "A informação disponibilizada, embora precisa é meramente informativa, pelo que não pode ser considerada vinculativa, e poderá ser sujeita a alterações."
AMI: 15431
Ref. Externa: CT-1672/2024
Id: 1181409
Inicie sessão para guardar este imóvel e aceder à sua lista de favoritos em qualquer dispositivo.
125.000 €
Área de terreno : 580 m²
Terreno rústico situado na costa oeste da ilha da Madeira. Este terreno plano, oferece o refúgio perfeito para quem deseja construir a sua casa de campo, com fácil acesso e a apenas alguns minutos da Vila dos Prazeres e da deslumbrante praia de areia da Calheta. Com a possibilidade de construção de um piso térreo até 155m² de área de implantação, o terreno está inserido em um ambiente tranquilo e sereno. Não perca esta oportunidade venha conhecê-lo!
AMI: 13062
Ref. Externa: AG1186/2024
Id: 1159769
Inicie sessão para guardar este imóvel e aceder à sua lista de favoritos em qualquer dispositivo.
225.000 €
Área de terreno : 3800 m²
Se procura um lugar especial para construir, este terreno é a escolha certa! Totalmente plano - construção fácil e sem complicações! Dois acessos de carro aos lotes- possibilidade de edificar 1, 2 ou 3 casas, conforme o seu projeto e de acordo aos seus sonhos. Localizado numa zona rural e tranquila, rodeado pela natureza, com diversos trilhos por perto, perfeitos para as suas caminhadas ao ar livre, disfrutando do meio ambiente fresco e solarengo. A apenas 10 minutos do novo Campo de Golfe (em construção), 3 minutos da Via Expresso, 10 minutos da praia da Calheta e 35 minutos do Funchal. Este é um refúgio perfeito para quem ama a tranquilidade do campo, mas sem abrir mão da conveniência de ter muitos serviços por perto. Não perca esta oportunidade! Entre em contato e venha conhecer este paraíso!
AMI: 6315
Ref. Externa: 1709
Id: 1139024
Inicie sessão para guardar este imóvel e aceder à sua lista de favoritos em qualquer dispositivo.
225.000 €
Área de terreno : 3800 m²
Excelente terreno, na Fajã da Ovelha. Zona extremamente calma; mas próxima de acessibilidades e de todos os serviços essenciais. Totalmente plano e de fácil construção. Ótima opção para viver e/ou rentabilizar para turismo.
AMI: 5190
Ref. Externa: TER_328
Id: 1138715
Inicie sessão para guardar este imóvel e aceder à sua lista de favoritos em qualquer dispositivo.
110.000 €
Área de terreno : 480 m²
Descubra este lote de terreno único, com generosos 480 metros quadrados, situado na Fajã da Ovelha. Este é o local ideal para quem procura construir a sua moradia de sonho num ambiente natural deslumbrante, com a serenidade característica da costa oeste da Madeira. A principal mais-valia deste terreno reside na sua viabilidade para a construção de uma moradia. Imagine projetar e edificar o lar perfeito, adaptado às suas necessidades e desejos, aproveitando a área disponível para criar espaços interiores amplos e luminosos, complementados por um exterior onde poderá desfrutar do clima ameno da região. Localizado numa área com acessos facilitados, este terreno oferece a combinação perfeita entre a privacidade e o contacto com a natureza, sem comprometer a conveniência de estar a poucos minutos de comodidades essenciais e dos encantos da Fajã da Ovelha. A Fajã da Ovelha é conhecida pela sua beleza natural ímpar, pelas suas paisagens verdejantes e pela proximidade a trilhos pedestres emblemáticos, proporcionando um estilo de vida calmo e em harmonia com o ambiente. Desfrute da brisa do mar, da vista para as montanhas e da tranquilidade que só esta localização privilegiada pode oferecer. Este terreno representa uma oportunidade de investimento singular para quem ambiciona construir uma residência personalizada num dos recantos mais bonitos da ilha da Madeira. Não perca a chance de transformar este espaço no seu futuro lar. Entre em contacto connosco para agendar uma visita e conhecer de perto este terreno exclusivo na Santa, em Porto Moniz. Estamos à sua disposição para fornecer mais informações e detalhes sobre este terreno. Aguardamos o seu contacto! SN Real Estate - Madeira. Island. Home. "Onde cada imóvel conta uma história, cada cliente vive um sonho!"
AMI: 13770
Ref. Externa: 071920
Id: 1121581
Inicie sessão para guardar este imóvel e aceder à sua lista de favoritos em qualquer dispositivo.
210.000 €
Área de terreno : 1190 m²
-------------------------------------- **** CRYPTO ACCEPTED **** ** LEGALISED BY NOTARY ** * find out more - contact us * -------------------------------------- Terreno em zona bastante calma na zona oeste da Ilha da Madeira, com uma área total de cerca de 1190m2. Ideal para uma casa de campo, casa pré-fabricada ou mesmo um projeto de alojamento local uma vez que está inserido numa zona de pura natureza onde impera o silêncio. Inclui estudo para dois tipos de projetos conforme condicionantes do PDM. i) Índice de Utilização do solo máximo: 0,7; ii) Área total de construção: 400 m²; iii) Altura total da edificação, valor máximo: 10m; iv) Altura da edificação, valor máximo: 8,5m; v) Altura máxima da fachada, valor máximo: 7m; vi) Índice de impermeabilização do solo máximo: 50%; vii) Afastamentos laterais e tardoz mínimos: 3m Marque uma visita e apaixone-se pela tranquilidade desta zona. Martina Vieira 926333174 "Chamada para a rede móvel nacional
AMI: 10701
Ref. Externa: 11523-MV
Id: 1096484
Inicie sessão para guardar este imóvel e aceder à sua lista de favoritos em qualquer dispositivo.
95.000 €
Área de terreno : 87 m²
Apresentamos esta oportunidade singular para quem valoriza o património rural e procura um projeto de recuperação personalizado: Terreno rústico de 87 m² com um palheiro em ruínas em zona tranquila com potencial para ser renovado e transformado num espaço exclusivo. Ideal para quem pretende um refúgio de fim de semana ou um local de lazer intimista, este terreno oferece a possibilidade de construir um espaço que alia autenticidade e funcionalidade. O palheiro, com a sua estrutura original, permite uma recuperação respeitosa das suas características tradicionais, preservando o encanto rural das construções típicas da região. A possibilidade de personalização é uma mais-valia para quem deseja criar um espaço distintivo e exclusivo. Com um investimento reduzido, este terreno permite explorar o potencial de um espaço rústico, sem as exigências de grandes infraestruturas. A localização proporciona um ambiente de tranquilidade e proximidade à natureza, ideal para quem valoriza momentos de recolhimento e conexão com o meio natural. Esta é uma oportunidade rara de desenvolver um projeto de recuperação numa área de elevado valor patrimonial e com um potencial de valorização único. Marque já a sua visita! Ref. C0216-03034
AMI: 9318
Ref. Externa: C0216-03034
Id: 954333
Inicie sessão para guardar este imóvel e aceder à sua lista de favoritos em qualquer dispositivo.
1.150.000 €
Área de terreno : 8110 m²
Terreno na Fajã da Ovelha, com 8.110 m2 inserido em zona calma e com vista panorâmica sobre o mar. Potencial para construção de moradias ou turismo. Venha conhecer!!! A informação disponibilizada, embora precisa é meramente informativa, pelo que não pode ser considerada vinculativa, e poderá ser sujeita a alterações.
AMI: 12570
Ref. Externa: HH_2355MD24
Id: 942234
Inicie sessão para guardar este imóvel e aceder à sua lista de favoritos em qualquer dispositivo.
Estes agentes são especialistas nesta zona:
Inicie sessão para ocultar este imóvel das suas pesquisas e manter a sua lista de resultados organizada.
Guardar favoritos
Este imóvel foi guardados nos seus favoritos com sucesso.
Para poder guardar pesquisa deverá ter a sua sessão iniciada.
Caso não tenha uma conta, deverá criar uma.
A sua pesquisa foi guardada com sucesso!
© Copyright 2023 | CASACERTA. All rights reserved
Este site utiliza cookies. Ao navegar no site estará a consentir a sua utilização.
Para mais informações sobre os cookies pode consultar a
política de privacidade.