Lista
Comprar
Arrendar
155.000 €
Área de terreno : 358 m²
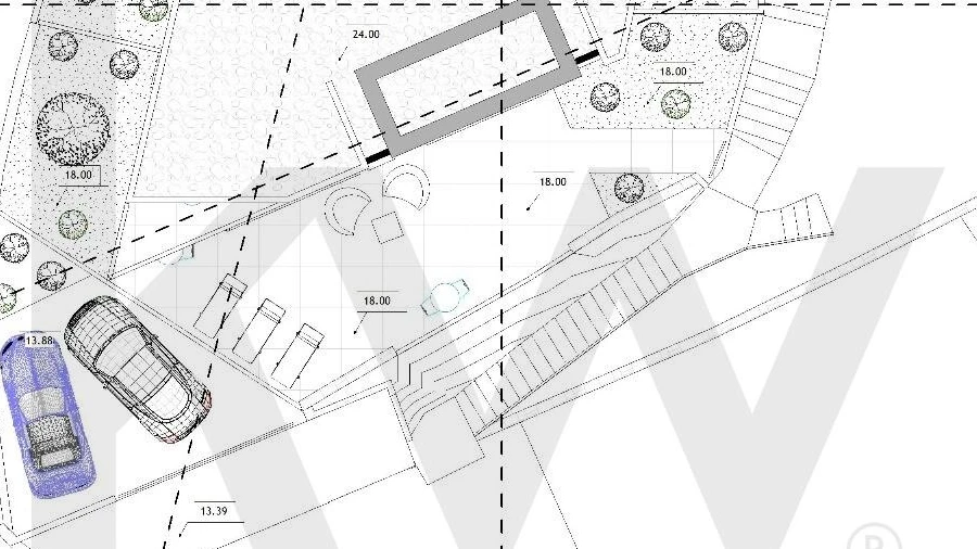
Terreno, com 358 m2, localizado na zona do Casal do Marco, próximo do acesso à A2.. . Área bruta de construção 193m2. . Área bruta dependente 30m2. . Zona com excelentes acessos na Margem Sul e a Lisboa. Próximo das praias da Fonte da Telha, e Costa da Caparica. Permite a construção de 1 fogo habitacional (2 pisos+CV+Sótão). Area de construção até 270m2, incluindo garagem/arrumos. Altura máxima 10 metros. Estacionamento permitido para 2 viaturas.. Venha conhecer.. . Nota:. . - Tratamos do financiamento Bancário, se assim for necessário.. - Podemos apresentar a Planta cotada, para ter toda a informação a nível de arquitetura.. . A informação disponibilizada, não dispensa a sua confirmação nem pode ser considerada vinculativa, não dispensando a sua confirmação através de visita ao imóvel.. . Temos uma equipa certificada em Intermediação de Crédito devidamente autorizados pelo Banco de Portugal, tratamos de todo o seu processo bancário de forma a garantir as melhores soluções para si.. . . LICENÇA AMI 17264. . Consultor - Raul Carvalho. Tel. 912241623
AMI: 17264
Ref. Externa: RC20250811/11863
Id: 1518994
Inicie sessão para guardar este imóvel e aceder à sua lista de favoritos em qualquer dispositivo.
80.000 €
Área de terreno : 522 m²
Terreno com projeto aprovado para uma moradia, na freguesia da Santa, no concelho do Porto Moniz. Este terreno plano, com 522 m², destaca-se pelos bons acessos e pela sua localização tranquila, a apenas alguns minutos da vila do Porto Moniz. Com características ideais para quem procura construir a sua nova habitação ou investir numa zona em crescimento, o terreno oferece facilidade de construção e um ambiente envolvente marcado pela natureza e pela serenidade típica da costa norte da Madeira. Uma opção segura e versátil, perfeita para concretizar um projeto pessoal ou valorização futura. Contacte para mais informações!
AMI: 18543
Ref. Externa: DR513
Id: 1515764
Inicie sessão para guardar este imóvel e aceder à sua lista de favoritos em qualquer dispositivo.
45.000 €
Área de terreno : 653 m²
Parcela de 652 m² localizada na pacífica e tradicional vila de Santa, Porto Moniz, Madeira. Situada a 530 metros de altitude, a zona mantém-se praticamente intocada pelo desenvolvimento intenso que se verifica noutras partes da ilha, oferecendo um ambiente calmo e autenticamente madeirense. O terreno tem vistas magníficas para o mar e sobre a natureza envolvente, proporcionando uma sensação de espaço, privacidade e tranquilidade. A propriedade conta com acesso direto por estrada a um terreno plano ideal para construir uma moradia ou instalar uma casa pré-fabricada. A partir do terreno, é possível deslocar-se a pé a diversas lojas, cafés e restaurantes da vila, usufruindo de um estilo de vida autêntico e tranquilo, em perfeita sintonia com o ambiente local. A curta distância de carro encontra-se a pitoresca Ribeira da Janela, um dos cenários mais icónicos da Madeira, reconhecida internacionalmente por ter servido de local de filmagens de Star Wars e, atualmente, famosa pelas suas experiências únicas, como o emocionante slide e baloiço suspensos sobre a falésia. Este terreno está atrativamente valorizado, representando uma excelente oportunidade numa das zonas mais autênticas e cénicas da Madeira. Para mais informações ou para agendar uma visita, contacte-nos.
AMI: 9318
Ref. Externa: C0216-03250
Id: 1513261
Inicie sessão para guardar este imóvel e aceder à sua lista de favoritos em qualquer dispositivo.
105.000 €
Área de terreno : 625 m²
Terreno com 625 m² – Seixal, Porto Moniz Apresentamos este magnífico terreno com 625 m², situado no início do Seixal, na subida para o Chão da Ribeira, uma das zonas mais pitorescas e procuradas do norte da ilha. Com possibilidade de construção de um palheiro, esta propriedade oferece o equilíbrio perfeito entre natureza e acessibilidade. Fica a apenas 5 minutos de carro da praia (ou cerca de 25 minutos a pé) e próxima dos principais acessos, garantindo comodidade sem abrir mão da tranquilidade. Inserido fora da agitação da freguesia do Seixal, o terreno proporciona um ambiente sereno, ideal para quem procura paz e contacto direto com a natureza. A vista é simplesmente deslumbrante, especialmente ao nascer do sol, beneficiando de excelente exposição solar ao longo do dia. Com acesso direto à estrada, este é o local perfeito para construir o seu refúgio de montanha ou uma casa de férias num cenário autêntico e inspirador.
AMI: 21947
Ref. Externa: Seixal - Rustico
Id: 1494761
Inicie sessão para guardar este imóvel e aceder à sua lista de favoritos em qualquer dispositivo.
85.000 €
Área de terreno : 339 m²
Este terreno para construção oferece uma vista mar deslumbrante, garantindo um cenário de excelência. Perto da icónica Praia do Jamaica, Seixal, usufrui de uma localização privilegiada e valorizada. O terreno beneficia de frente estrada, o que proporciona um acesso direto e conveniente. É uma excelente aquisição para a construção da sua moradia de férias ideal, permitindo a personalização total. Os bons acessos rodoviários facilitam as deslocações para a área circundante, valorizando a propriedade. A área generosa do terreno é de 339 m2, viabilizando um projeto arquitetónico ambicioso e funcional. Localização: https://maps.app.goo.gl/jzWTAH7BJtjpTj3q9 Link do Imóvel: https://www.d31imo.biz/imovel--6186426 Certificado Energético: Não aplicável. Se você é um consultor imobiliário, não hesite em entrar em contacto connosco para uma parceria de 50%-50%. Sousa 967 924 403 D31 AMI 23602 https://www.d31imo.biz https://www.d31.biz
AMI: 23602
Ref. Externa: AU_AL_301
Id: 1492583
Inicie sessão para guardar este imóvel e aceder à sua lista de favoritos em qualquer dispositivo.
75.000 €
Área de terreno : 612 m²
Localização: Chão da Ribeira, Seixal, Madeira, Portugal Este terreno oferece acesso conveniente por estrada, facilitando o transporte e a construção. Imagine-se acordando com vistas panorâmicas do mar e da costa acidentada da Madeira Um palheiro em pedra já existente no terreno oferece a oportunidade de criar uma casa de campo charmosa ou um espaço de armazenamento útil. Rodeie-se pela beleza da natureza neste terreno tranquilo, ideal para quem busca paz e sossego. Saboreie frutas frescas direto do seu quintal com diversas árvores frutíferas já plantadas no terreno. Esta propriedade oferece um excelente custo-benefício, ideal para quem busca realizar seu sonho de ter um terreno na Madeira sem gastar muito. •O terreno está localizado em uma zona tranquila e segura. •A área oferece diversas opções de atividades ao ar livre, como caminhadas e pesca. •A vila do Seixal fica a apenas alguns minutos de carro, oferecendo acesso a lojas, restaurantes e outros serviços. Entre em contato conosco para mais informações ou para agendar uma visita. Não perca a oportunidade de adquirir este terreno único e desfrutar de tudo o que a Madeira tem a oferecer! Não deixe este sonho escapar! Agende sua visita hoje mesmo e venha descobrir este paraíso escondido. Sousa 967 924 403 D31 AMI 23602
AMI: 23602
Ref. Externa: AU_AL_1
Id: 1492523
Inicie sessão para guardar este imóvel e aceder à sua lista de favoritos em qualquer dispositivo.
97.500 €
Área de terreno : 1283 m²
Descubra uma oportunidade única: um terreno completamente plano com 1 283 m², localizado na tranquila e encantadora zona da Santa do Porto Moniz. Neste espaço encontra-se um armazém com elevado potencial de reconstrução ideal para transformar em investimento rentável ou para erigir a moradia dos seus sonhos. Situado numa zona calma, com fácil acesso e próximo de todos os serviços do dia-a-dia, este local combina privacidade com conveniência. Imaginamos uma família a desfrutar deste ambiente privilegiado, com espaço de sobra para lazer, horta ou jardim, e com o mar e a natureza como enquadramento. A apenas 5 minutos de carro das célebres Piscinas Naturais do Porto Moniz um ex-libris da ilha e com acesso a pé para trilhos e levadas que convidam ao contacto com a paisagem envolvente. Se procura um investimento com procura ou um local para viver com qualidade de vida na ilha da Madeira, este é o espaço certo. Contacte-nos para mais informações e venha conhecer de perto esta excelente oportunidade.
AMI: 13132
Ref. Externa: KWPT-024418
Id: 1482147
Inicie sessão para guardar este imóvel e aceder à sua lista de favoritos em qualquer dispositivo.
150.000 €
Área de terreno : 718 m²
Está à procura do melhor lugar no Sítio do Patrimônio Mundial da UNESCO? As montanhas encontram o Atlântico! Aqui você pode vivenciar ambos! Apresenta-se Terreno de dois artigos localizados no Sítio do Covão, Chão da Ribeira, Porto Moniz com Projecto Aprovado para a construção de um Palheiro. Inseridos numa envolvente natural de grande beleza, o terreno é ideal para quem procura tranquilidade, contacto com a natureza e potencial agrícola ou turístico. Área total : 718 m² (407 m² + 311m²) Excelente exposição solar Acesso por vereda tradicional Vistas abertas sobre o vale e a montanha Terreno fértil, ideal para cultivo agrícola, pomar ou projeto de turismo rural Potencial: Este terreno oferece uma oportunidade única para desenvolver um projeto sustentável ou criar um refúgio em plena natureza, numa das zonas mais autênticas e preservadas da Madeira.
AMI: 13132
Ref. Externa: KWPT-024121
Id: 1458408
Inicie sessão para guardar este imóvel e aceder à sua lista de favoritos em qualquer dispositivo.
Sob consulta
Área de terreno : 700 m²
VENDO TERRENO PLANO NA SANTA DO PORTO MONIZ VISTA MAR.PREÇO- EXTRAORDINÁRIO DE MERCADOTerreno Plano para construção de 700m2 - Santa - Porto MonizTrata-se de um terreno completamente plano com vista mar e uma excelente exposição solar.Este terreno á beira da estrada, aqui terá a possibilidade de construir até duas moradias ou até mesmo a construção da sua quintinha de sonho tendo a mais valia de estar próximo de todo tipo de serviços que necessita para o seu dia a dia.PREÇO-MSG PRIVADA Não deixe esta oportunidade escapar AGENDE A SUA VISITA -Trato de todo o processo e apresento o melhor crédito bancário do mercado, ajudando a encontrar a melhor oferta junto das diversas instituições Bancárias, pois somos intermediários de crédito autorizados pelo Banco de Portugal.Conte com o meu empenho, a excelência e a minha ajuda.Confie no meu profissionalismo e na Predimed nas decisões mais importantes da sua vida.Para mais informações e marcação de visita, contacte-me:Mais InformaçõesFernando Ornelas+351 915407300Whatsapp [email protected] Imobiliária, Mediação Imobiliária, Lda.Avenida Brasil 43, 12º Andar, 1700-062 LisboaLicença AMI nº 22503Pessoa Coletiva nº 517 239 345Seguro Responsabilidade Civil: Nº de Apólice RC65379424 Fidelidade
AMI: 13558
Ref. Externa: 056267
Id: 1456354
Inicie sessão para guardar este imóvel e aceder à sua lista de favoritos em qualquer dispositivo.
120.000 €
Área de terreno : 1361 m²
Terreno com perto de 1360 m2 que apesar de rústico tem viabilidade construtiva para habitação ou para investimento em projeto turístico de grande potencial. O terreno tem uma casa em ruínas que poderá ser aproveitada para a reconversão da mesma. O terreno tem acesso para entrada de carro. Terreno com grande proximidade a vários pontos de interesse e junto da estrada. Além disso, os caminhos secundários convidam à exploração da área circundante, oferecendo oportunidades infinitas para passeios relaxantes e descobertas emocionantes. Venha descobrir o grande potencial existente e não perca esta oportunidade. Não perca esta oportunidade!
AMI: 18543
Ref. Externa: DR502
Id: 1456064
Inicie sessão para guardar este imóvel e aceder à sua lista de favoritos em qualquer dispositivo.
75.000 €
Área de terreno : 694 m²
PROJECTO APROVADO PARA PALHEIRO, TERRENO 690.61
AMI: 13132
Ref. Externa: KWPT-014668
Id: 1432698
Inicie sessão para guardar este imóvel e aceder à sua lista de favoritos em qualquer dispositivo.
1.175.000 €
Área de terreno : 2876 m²
‼️Terreno Urbano no Centro de Porto Moniz - Oportunidade Única de Investimento‼️ Apresentamos-lhe uma oportunidade rara de adquirir um terreno urbano com 2.876 m², situado no coração da pitoresca vila de Porto Moniz, na ilha da Madeira. ?Localizado a apenas dois minutos a pé do mar, este terreno beneficia de uma vista deslumbrante para o oceano Atlântico e insere-se numa zona em plena fase de crescimento e valorização urbana. ?️ Rodeado de todos os serviços essenciais para o dia a dia: Supermercados, cafés, escolas, transportes, farmácia, centro de saúde, bancos e muito mais! ?Potencial de Construção ✔️Área Bruta de Construção: 4.602 m² ✔️Área de Implantação do Edifício: 1.726 m² ✔️Área Dependente: 2.300 m² ✔️Índice de Construção: 1,60 ✔️Índice de Ocupação do Solo: 0,60 ✔️Impermeabilização Máxima do Logradouro: 20% ✔️Índice de Utilização Emergente: 0,80 ✔️Altura da Fachada: 8 metros ✔️Altura Máxima da Edificação: 10,5 metros ?️Possibilidades de Projeto O terreno permite a construção de: ✔️Moradias isoladas, geminadas ou em banda ✔️Empreendimentos turísticos / espaço hoteleiro ?Este é o local ideal para desenvolver um projeto habitacional exclusivo, turístico ou misto, tirando partido do charme da vila, da sua proximidade ao mar e da tranquilidade natural da Madeira. ?Interessado? Entre em contacto connosco e saiba mais!
AMI: 13132
Ref. Externa: KWPT-017020
Id: 1431722
Inicie sessão para guardar este imóvel e aceder à sua lista de favoritos em qualquer dispositivo.
100.000 €
Área de terreno : 980 m²
Terreno urbano com 980 m², localizado à beira da estrada, com excelente acessibilidade e uma vista privilegiada sobre o mar. Com uma área de construção permitida de 300 m², este espaço é ideal para a construção de uma moradia unifamiliar ou para um projeto turístico, beneficiando de uma localização estratégica e de grande potencial de valorização. A proximidade à estrada principal garante fácil acesso, enquanto a vista panorâmica para o oceano acrescenta um valor único à propriedade, tornando-a uma oportunidade imperdível para quem procura investir ou viver numa zona tranquila com cenário natural envolvente.
AMI: 13132
Ref. Externa: KWPT-015450
Id: 1430568
Inicie sessão para guardar este imóvel e aceder à sua lista de favoritos em qualquer dispositivo.
Área de terreno : 277 m²
Descubra este pequeno paraíso na zona norte da Madeira. Excelente terreno totalmente plano com 295m2. A propriedade possui um palheiro de 2 pisos em perfeito estado de conservação, categorizado como armazém. Situada muito próxima do centro daquela freguesia e do teleférico das Achadas da Cruz, pode deslocar-se facilmente a todos os serviços (supermercado, escolas, farmácias), com acesso rápido às principais vias de comunicação. As Achadas da Cruz e o Porto Moniz são sinónimo de beleza natural, tranquilidade e qualidade de vida. Aqui pode desfrutar de: - Praias e piscinas naturais: relaxe nas famosas piscinas naturais do Porto Moniz ou nas praias de areia negra. - Trilhos pedestres: explore a natureza exuberante através de trilhos pedestres com paisagens deslumbrantes. - Gastronomia: saboreie a deliciosa gastronomia madeirense em restaurantes locais. O seu refugio rural. Excelente oportunidade de investimento. Venha descobrir!
AMI: 13132
Ref. Externa: KWPT-015788
Id: 1428835
Inicie sessão para guardar este imóvel e aceder à sua lista de favoritos em qualquer dispositivo.
150.000 €
Área de terreno : 496 m²
? Oportunidade Única de Investimento em Seixal, Porto Moniz! ? ? Terreno à venda com Vista Deslumbrante para o oceano. Descubra a magia do Seixal, um dos tesouros escondidos da Ilha da Madeira! Este terreno de 496 m² apresenta uma oportunidade ímpar para aqueles que sonham em construir a casa dos seus sonhos em um dos locais mais pitorescos e tranquilos do arquipélago. Por que Este Terreno É Perfeito para Você? ? Vista Incomparável Imagine acordar todos os dias com vistas panorâmicas do mar e das montanhas. Este terreno oferece um cenário natural de tirar o fôlego, perfeito para quem busca tranquilidade e beleza. ?️ Proximidade à Praia A poucos minutos das praias de Seixal, você poderá desfrutar de um estilo de vida à beira do mar, com acesso a atividades aquáticas e momentos relaxantes sob o sol. ? Potencial Para Construção Com uma área generosa, esse terreno é ideal para um projeto residencial ou mesmo uma propriedade de turismo, aproveitando o crescente interesse em experiências de hospedagem na Madeira. ? Ambiente Natural Rodeado pela beleza natural, este local proporciona um refúgio perfeito do agito da vida urbana, onde você pode relaxar e conectar-se com a natureza. Com um índice de construção que permite a edificação de uma moradia de dois pisos com até 250 m² de área útil, este lote destaca-se ainda pela sua vista panorâmica sobre o oceano – um cenário perfeito para desfrutar da tranquilidade e da beleza natural da região. Além da possibilidade de ser utilizado como habitação própria, este terreno representa também uma excelente oportunidade de investimento. O Seixal é uma zona cada vez mais procurada por turistas, tornando-se ideal para projetos de alojamento local ou holiday rental. Detalhes do Terreno: Área: 496 m² Localização: Seixal, Porto Moniz — uma área conhecida por suas paisagens deslumbrantes e tranquilidade. Faça Seu Investimento em um Sonho! ? Entre em contato agora para saber mais sobre este incrível terreno e como você pode transformar essa visão em realidade. Não perca a oportunidade de adquirir um pedaço do paraíso na Madeira! ? Acesse ao nosso link para mais informações e consulte-nos para agendar uma visita ao local.
AMI: 13132
Ref. Externa: KWPT-014302
Id: 1428544
Inicie sessão para guardar este imóvel e aceder à sua lista de favoritos em qualquer dispositivo.
30.000 €
Área de terreno : 198 m²
No coração do Seixal, no concelho de Porto Moniz, encontra este terreno com 198 m², ideal para quem procura tranquilidade, natureza e uma vista desafogada sobre o mar e a serra. Com excelente exposição solar e totalmente vedado, o terreno oferece o cenário perfeito para construir a sua casa de férias, residência permanente ou até um projeto turístico, mediante viabilidade da câmara. A localização combina a calma do ambiente rural com a proximidade das emblemáticas piscinas naturais de Porto Moniz e de outros pontos de interesse da costa norte da Madeira. O acesso é fácil, feito por estrada, e toda a documentação está em ordem para avançar com o seu projeto sem complicações. Uma oportunidade rara numa zona autêntica da ilha.
AMI: 13132
Ref. Externa: KWPT-015781
Id: 1427980
Inicie sessão para guardar este imóvel e aceder à sua lista de favoritos em qualquer dispositivo.
75.000 €
Área de terreno : 690 m²
TERRENO COM 690,52M2 COM PROJECTO APROVADO PARA PALHEIRO,NO CHAO DA RIBEIRA -SEIXAL, A APENAS 5 MIN DA PRAIA
AMI: 13132
Ref. Externa: KWPT-014685
Id: 1426607
Inicie sessão para guardar este imóvel e aceder à sua lista de favoritos em qualquer dispositivo.
215.000 €
Área de terreno : 265 m²
Oportunidade única para adquirir um terreno situado em frente ao mar, no Seixal, Porto Moniz, junto à charmosa Praia das Lajes. Com uma vista deslumbrante sobre o Oceano Atlântico e uma excelente exposição solar durante todo o dia, esta propriedade destaca-se pela sua localização privilegiada, ideal para quem procura tranquilidade e contacto direto com a natureza. O terreno conta já com projeto aprovado para a construção de uma moradia T3, facilitando o processo para iniciar a concretização da sua casa de sonho. Este é o investimento perfeito para quem deseja construir uma residência permanente, casa de férias ou até mesmo um projeto turístico, beneficiando da proximidade ao mar e das paisagens únicas da costa norte da Madeira. Não perca esta oportunidade de investir num dos locais mais autênticos e preservados da ilha!
AMI: 13132
Ref. Externa: KWPT-016936
Id: 1425520
Inicie sessão para guardar este imóvel e aceder à sua lista de favoritos em qualquer dispositivo.
235.000 €
Área de terreno : 5002 m²
-------------------------------------- **** CRYPTO ACCEPTED **** ** LEGALISED BY NOTARY ** * find out more - contact us * -------------------------------------- SE O MAR O ATRAI, ENTÃO ISTO É PARA SI !!! Propriedade Excecional com Frente Única de Mar , abrange impressionantes 5002 M2 planos , está situada no conselho de Porto Moniz , com acesso por caminho público pedonal, com uma ruina e uma construção agrícola com água da rede, WC, apresentando uma oportunidade notável para aqueles que desejem construir a sua 1º casa de sonho com vista única sobre o mar e Porto Moniz, bem perto de todos os serviços, escolas, farmácias, campo de futebol e atividades desportivas. Esta propriedade com montanhas de tirar o fôlego de um lado e do outro o mar com vista exuberante em 180º, oferece um visual deslumbrante que muda com as estações, proporcionando uma tela em constante evolução de beleza natural. O terreno é um verdadeiro oásis da natureza, com um potencial para diversos fins . Investir em terrenos é seguro e rentável! A apenas cinco minutos de carro, você descobrirá as deslumbrantes piscinas naturais de Porto Moniz , conhecidas pelas suas águas refrescantes que convidam a mergulhos tranquilos e relaxamento sob o sol. É um local perfeito tanto para contemplação tranquila quanto para passeios familiares cheios de diversão, tornando-a um destino querido por moradores e visitantes. Além de toda esta beleza natural que cerca a propriedade, a área ostenta excelentes restaurantes à beira-mar, que oferecem uma variedade de experiências culinárias, permitindo que você saboreie refeições deliciosas enquanto aprecia a vista mar. Esta oportunidade única combina a tranquilidade da natureza com a conveniência de comodidades próximas, tornando-a uma escolha ideal para aqueles que procuram criar um espaço de vida sereno, mas acessível a todas as comodidades. Quer você imagine um retiro tranquilo ou uma casa de família vibrante, esta propriedade oferece a oportunidade perfeita para dar vida aos seus sonhos em um local de chão plano que equilibra relaxamento e recreação. Não perca a chance de investir neste notável pedaço de terra, onde a beleza da natureza está junta com os confortos da vida moderna. Vitor e Graça +351 968 224 262 Chamada para a rede móvel nacional
AMI: 10701
Ref. Externa: 11773-VG
Id: 1410449
Inicie sessão para guardar este imóvel e aceder à sua lista de favoritos em qualquer dispositivo.
155.000 €
Área de terreno : 358 m²
Terreno, com 358 m2, localizado na zona do Casal do Marco, próximo do acesso à A2. . . Área bruta de construção 193m2. . Área bruta dependente 30m2. . Zona com excelentes acessos na Margem Sul e a Lisboa. Próximo das praias da Fonte da Telha, e Costa da Caparica. Permite a construção de 1 fogo habitacional (2 pisos+CV+Sótão). Area de construção até 270m2, incluindo garagem/arrumos. Altura máxima 10 metros. Estacionamento permitido para 2 viaturas.. Venha conhecer.. . Nota:. . - Tratamos do financiamento Bancário, se assim for necessário.. - Podemos apresentar a Planta cotada, para ter toda a informação a nível de arquitetura.. . A informação disponibilizada, não dispensa a sua confirmação nem pode ser considerada vinculativa, não dispensando a sua confirmação através de visita ao imóvel.. . Temos uma equipa certificada em Intermediação de Crédito devidamente autorizados pelo Banco de Portugal, tratamos de todo o seu processo bancário de forma a garantir as melhores soluções para si.. . . LICENÇA AMI 17264. . Consultor - Raul Carvalho. Tel. 912241623
AMI: 17264
Ref. Externa: RC20250823JC/11863
Id: 1335055
Inicie sessão para guardar este imóvel e aceder à sua lista de favoritos em qualquer dispositivo.
Estes agentes são especialistas nesta zona:
Inicie sessão para ocultar este imóvel das suas pesquisas e manter a sua lista de resultados organizada.
Guardar favoritos
Este imóvel foi guardados nos seus favoritos com sucesso.
Para poder guardar pesquisa deverá ter a sua sessão iniciada.
Caso não tenha uma conta, deverá criar uma.
A sua pesquisa foi guardada com sucesso!
© Copyright 2023 | CASACERTA. All rights reserved
Este site utiliza cookies. Ao navegar no site estará a consentir a sua utilização.
Para mais informações sobre os cookies pode consultar a
política de privacidade.